防雷接地大样图和做法示意图
- 格式:pdf
- 大小:464.63 KB
- 文档页数:1
防雷接地系统安装专项施工方案分部分项工程名称:建筑电气一一防雷接地系统安装一、设计意图本工程按二类防雷建筑物设计防雷装置。
防雷与工频共用一个接地体,要求接地电阻检测值不大于1Q。
利用基础桩基主筋、地梁与底板钢筋网作接地体,接地体必须饱和焊接形成可靠的电报通路。
防雷引下线利用剪力墙或柱内两根直径不小于© 16的主筋上、下通长焊接,在建筑物外侧墙面的室外地面-1米处预留不少于四处100*100*10镀锌钢板做外接人工接地体的连接点,并在相同位置的+0.5米处预留四个100*100*10镀锌钢板做接地电阻检测点,要求所有连接点或检测点与引下线两根大于© 16的主筋可靠焊接。
所有进出建筑物的金属管道、配电房及井道内电气设备、突出屋面的金属构件、30米以上的外门窗、卫生间内金属器具均须按要求做等电位联结。
强电井及弱电井上、下通长设置-40*4镀锌扁钢接地干线,井道内有电气设备时必须沿井道四周敷设-40*4镀锌扁钢做接地线,安装高度0.3 米。
沿屋面周边用© 12镀锌圆钢做避雷带,高出屋面0.1米支持卡间距0.8米,但转角处支持卡间距不得大于0.5米;避雷带间距过大时暗敷-40*4镀锌扁钢做避雷网格。
二、施工要素及施工工艺流程具备完整的设计文件并充分领悟文件意图;施工操作人员及检测人员必须持证上岗;接地电阻测试仪表经检定合格,使用时在检定的有效期限之内;机具运行正常,定期检查符合要求;原材料有出厂合格证、检测报告,并具有监理及建设单位确认许可的档案资料。
施工工艺流程:三、技术交底I II ]提前组织相关人员熟悉图纸内容,做好重要结点的交底工作。
本工程人防地下室、地面以上分别由两个单位进行设计,地上部分与地下部分可能会出现某些不太吻合的地方,女口:引下线位置及数量;等电位联结做法及具体部位;接地电阻测试点的部位及数量;防雷引下线在转换层的过渡等。
A、本工程人防地下室共设17处接地引下线,具体位置如下:(引下线与基础钢筋网以及用做接地体的基础梁板钢筋按要求焊接完成后用黄色油漆标注)©- 9/ Q- Q ;Q-Q/ Q-Q ;Q-Q/ Q- Q ;(H-Q/ Q- Q ;Q-Q/ Q- Q ;(H-Q/ Q- Q;©- Q/ Q- Q; Q G-Q/Q-Q ;(G-Q>/ Q- Q;CG-®/ Q- Q;Q-Q/ Q- Q;锯桩时配合土建施工,将引下线部位桩基内两条① 10主筋预留100-150伽,再用同等规格钢筋双面焊接后引出(焊缝长度大于6D),并与承台及地梁主筋焊通形成可靠的电气通路。
高层建筑铝合金门窗的防雷接地施工标准化管理处编码[BBX968T-XBB8968-NNJ668-MM9N]高层建筑铝合金门窗的防雷接地施工铝门窗自问世以来.由于其体轻、耐蚀等特点受到消费者的青睐,同时较之塑钢门窗在抗风压强度和水密性能、采光性能、防火性能、抗老化功能以及变形与膨胀方面亦有其优势,特别是在防雷和静电问题上更具优势。
铝合金是良导电体,将其做建筑外围护结构时。
采取有效的接地措施,可以作为避雷设施。
并可防止静电现象产生。
本文拟就高层建筑外墙铝合金门窗的防雷接地方式进行探讨。
1 建筑物防雷类别及铝合金门窗需做防雷接地处理的确定平均年雷击次数雷云对地放电的频繁程度可用地面落雷密度r (次/km^2·d)表示,它与年平均雷电日Td(d/年)有关。
Td值可查年平均雷电日数分布图及从有关气象资料中获取,r与Td之间的关系可用经验公式近似计算:r=^ 。
当建筑物上各部位高低不平时.应沿其周边逐点算出最大扩展宽度,其等值受雷面积应根据每点最大扩展宽度外端的连线所包围的面积来计算。
高层建筑物的防雷类别铝合金门窗需做防雷接地处理的确定铝合金门窗框架等较大的金属物,如果距离地面等于滚球半径及以上时,应将其与防雷装置连接。
滚球法是以为半径的一个球体,沿需要防直击雷的部位滚动,当球体只触及接闪器(包括被利用作为接闪器的金属物),或只触及接闪器和地面(包括与大地接触并能承受雷击的金属物),而不触及需要保护的部位时,则该部分就得到接闪器的保护。
高层建筑物的滚球半径见表1。
2 铝合金门窗防雷接地施工铝合金门窗的防雷接地施工是高层建筑防雷工程中的重要组成部分。
但由于建筑单位的差异。
施工队伍的参差不齐。
铝合金门窗防雷接地的施工不尽理想。
存在较大的安全隐患。
施工原理高层建筑铝合金门窗的防雷接地施工主要解决的问题,就是将位于滚球半径以上的铝合金门窗框通过防雷装置与建筑物钢筋骨架法拉第笼连接.把雷电流的巨大能量,通过建筑物的接地系统,迅速传送到地下,从而防止建筑物受雷击破坏。
避雷施工方法(一)防雷与接地装置1、接地系统采用TN-S系统,即电源端直接接地,电气设备金属外壳与中性相连接,在整个系统中,保护导线(PE)和中性线是分开的。
2、按设计规定防雷装置接地体的位置进行放线。
沿接地体的线路,开挖接地沟,以便打入接地体和敷设连接接地体的扁钢。
3、接地体经验收合格后,即进行安装接地体和敷设接地体连接母线。
安装时先将接地体放在沟内中心线上打入地中。
锤击接地体顶部时,为防止将顶部打劈,应在接地体的顶端设置防护帽。
锤击接地体时,应严格控制接地体的垂直度,使其与地面保持垂直,以防止接地体与土之间产生缝隙,增加接地电阻,而影响接地体的散流效果。
打入深度以接地体顶端面距自然地面的距离,应符合设计要求。
4、避雷针体常规用镀锌钢筋或钢管制成。
避雷针体顶端应制成尖状并应成封闭的。
避雷针安装必须垂直、牢固,其倾斜度不得大于5/1000。
5、明装避雷带距屋面应保持有100~150mm的间距,每隔1000~1500mm应用支持架固定。
暗装避雷带可利用建筑物内的钢筋组成。
暗装引下线,利用建筑物中钢筋砼柱的钢筋作为组成时,至少要选用4根柱子且每根柱子至少要有2根主筋通过连接焊接组成一体后,作为引下线。
6、防雷装置各部分的铁件均应为镀锌制品件,镀锌层要均匀,安装后应无脱落现象。
7、接地在电气装置中电气设备的金属外壳、金属构架、金属配线管路,及其金属配件、电缆保护管、电缆金属护套等非带电的裸露金属部分,均应做保护接地或接零。
与接地体连接的接地线应采取焊接方式连接,接地线应与设备内的接地螺栓连接,钢带及金属外壳应与设备外的接地螺栓连接。
接地用的螺栓应有防松动装置。
接地线紧固前,其接地端子及紧固件应涂电力复合脂,以防紧固件锈死。
(二)防雷与接地装置施工方法:1、防雷接地焊接质量标准:1.1扁钢与扁钢搭接为扁钢宽度的2倍,不少于三面施焊。
1.2圆钢与圆钢搭接为圆钢直径的6倍,双面施焊。
1.3圆钢与扁钢搭接为圆钢直径的6倍,双面施焊。
注:本记录一式两份,一份交底单位存,一份接受交底单位存。
山东省建设工程质量监督总站监制年月日鲁DQ一004工程名称润德大厦施工单位山东新城建工股份有限公司交底部位电气工程工序名称基础防雷接地交底提要:交底内容:材料要求、1、基础接地施工方法:利用建筑物桩基、建筑物基础地梁上的上下两层钢筋中的两根主筋通长焊接形成的基础接地网。
2、基础接地施工要点(1)桩基钢筋与基础钢筋焊接:桩基钢筋与基础钢筋焊接施工要点:○1对照施工图纸确保在每处防雷引下线点,桩基钢筋均与基础地梁钢筋做可靠焊接,要求两根桩基钢筋与基础地筋的两根主筋焊接;○2桩基与基础钢筋必须采用φ12圆钢作为焊接材质。
要求双面施焊,焊接长度为6倍直径,焊接饱满,无遗漏。
③按照基础防雷规范要求桩基利用率应达到70%,考虑现场施工实际情况,对照施工图,基础接地网经过的桩基钢筋均与基础地梁钢筋做可靠焊接,要求两根桩基钢筋与基础地筋的两个主筋焊接。
(2)桩基钢筋与防雷引下线焊接:桩基钢筋与防雷引下线焊接施工要点:○1对照施工图纸确保每处防雷引下线均与桩基项目(专业)交底人接受交底人技术负责人注:本记录一式两份,一份交底单位存,一份接受交底单位存。
山东省建设工程质量监督总站监制注:本记录一式两份,一份交底单位存,一份接受交底单位存。
山东省建设工程质量监督总站监制年月日鲁DQ一004工程名称润德大厦施工单位山东新城建工股份有限公司交底部位电气工程工序名称基础防雷接地交底提要:交底内容:材料要求、屋面避雷带安装施工要点:①明装避雷带支架水平间距为1米,转弯处为0.5米;②支架间距均匀,并应在一条水平线上。
避雷带安装顺直、美观,转弯处相同弧度弯曲,固定可靠。
○3双面施焊,搭接长度为6倍直径,焊缝饱满、无遗漏;焊接完毕后及时清除药皮,并及时在焊缝处第一道涂刷防锈漆、第二道涂刷银粉漆。
(2)明装避雷带支架制作、安装示意图(3)、等电位、局部等电位联接施工工艺1、本工程采用总等电位联接,总等电位端子箱通过结构柱上预留接地端子与基础接地装置连接。
防雷接地方案及交底【某项目防雷接地方案】1.1 防雷接地概况本建筑属第二类防雷建筑物,按此类建筑物的防雷要求设置防雷设施。
利用建筑物的金属构件及钢筋混凝土结构中的钢筋作为防雷接地装置。
利用本建筑金属屋面及屋面上的金属屋架做接闪器,利用建筑物四周柱子内的主钢筋做为引下线,基础内钢筋网做为自然接地体,并用φ12MM镀锌圆钢与金属屋面接闪器相连。
将进出建筑物的所有金属管道就近与防雷接地装置相连,将竖直敷设的金属管道及金属物的顶端和底端与防雷装置相连,屋顶上装设的霓虹灯和风机等电气设备的电源线路穿钢管保护,此钢管一端与用电设备的外壳或保护罩相连,并就近接于防雷装置,另一端与配电箱的外壳相连。
高压配电系统为中性点不接地系统,电力变压器的低压侧为中性点直接接地系统,要求所有电气装置的金属外壳及事故情况下可能带电的金属体实行保护接地。
低压配电系统接地采用TN—S系统,其工作零线和保护地线在接地点后要严格分开。
本建筑物采取总等电位联结,其总等电位联结线必须与楼内所有导电部分互相连接,如保护线干线,接地干线,建筑物内的输送管道的金属件(如水管等),集中采暖及空调系统的升压管,建筑物金属构件等导电体。
总等电位联结主母线均采用25MM2铜导线。
本建筑物除采取总等电位联结外,游泳池部分还应进行辅助等电位联结。
辅助等电位联结必须将游泳池不同区域(分0、1、2区)内所有装置外可导电部分,与位于这些区内的外露可导电部分的保护线连接起来,并经过总接地端子与接地装置相连。
防雷接地、保护接地和工作接地共用同一接地装置即建筑物的基础接地体。
要求接地体的接地电阻不大于1欧姆,否则应在室外补设人工接地体。
3.1 防雷系统技术措施3.1.1 防雷系统按华北标“建筑电气通用图集92DQ13”及国家建筑标准设计“建筑物防雷设计安装99D562”施工。
3.1.2 屋顶采用φ10镀锌圆钢作避雷带,并在屋端设HELITA避雷针Pulsar40两根,所突出屋面的金属物均与避雷带相连,并利用金属屋面作为防雷接闪器。
监理单位施工单位交底部位交底日期交底人签字接收人签字(二)主要机具1.手动工具:电工组合工具、手锤、钢锯、压力案子、台钳、铁锹、铁镐等。
2.电动工具:电锤、冲击钻、电气焊机具等。
3.测试器具:小线、线坠、卷尺、粉线袋等。
4.其他工具:大绳、绞磨(或倒链)、紧线器等。
四、施工工艺(一)接地装置安装1.自然接地体的安装利用结构地板上层、下层各2根φ≥16相邻钢筋通长可靠焊接连通构成接地网。
横向纵向交叉部位可靠跨接,并在交叉处把上层、下层的接地钢筋网可靠焊接连通。
再将标有防雷引下线的柱内主筋(不少于2根)底部与底板筋接地网搭接焊好,并在室外地面以下将柱内主筋焊好连接板,并将两根主筋用色漆做好标记,便于引出和检查,做好隐蔽检查,填写隐检记录。
2.变电所接地系统监理单位施工单位交底部位交底日期交底人签字接收人签字所有电气装置的金属外壳,基础槽钢两端,电缆进户预埋钢管,配线钢管,电缆桥架,母线的金属外壳等正常情况下不带电的金属器件均应可靠接地;变压器柜的金属轨道采用100*5的热镀锌扁钢与基地网可靠焊接连通,变压器的中性点采用100*5的热镀锌扁钢与接地系统可靠连通;所有配电柜下方四周统长10#槽钢预埋件采用40*4的热镀锌扁钢与基地网可靠焊接连通,高、低压柜的金属外壳与10#槽钢预埋件可靠电气连通;为满足环保部门防电磁辐射要求,变电所、开关站。
柴油发电机房的顶板和四周侧墙内设置10*10mm的钢丝网,并在多处采用40*4热镀锌扁钢与变电所、开关站、柴油发电机房四周的接地装置可靠焊接连通。
3.弱电竖井工作接地弱电井在地下二层焊处一根40*4的扁钢至弱电井专用接地端子箱(箱底距地坪500mm),然后在竖井内沿墙向上明敷一根40*4扁铜,每层再用40*4变通从竖向干线引出至接地专用端子箱,套绝缘套(注:明敷扁铜在穿楼板处预埋PVC50管)监理单位施工单位交底部位交底日期交底人签字接收人签字弱电竖井工作接地4.弱电竖井防静电接地:同弱电竖井工作接地;5.弱电机房专用工作接地在地下三层距基础接地网高500mm处预埋150w*150h*80d的钢盒,钢盒与接地网之间采用40*4的扁钢焊接连通,在钢盒至弱电机房、网络机房及多媒体机房专用接地端子箱(距地面300mm)之间用WDZA-YJY-1*95的电缆穿沿墙暗敷PVC32管可靠连接(螺栓连接)。
1.编制依据2.防雷接地系统概述根据GB50057-2010,本项目的预计年雷击次数为1.19次,属于二类防雷建筑。
但按照重庆地方标准,预计年雷击次数大于0.3次,建筑高度大于90米的,防直击雷要按一类防雷建筑设计。
建筑防雷系统包括防直接雷、侧击雷、雷电感应、雷电波的侵入及雷击电磁脉冲的防雷措施。
本项目采用各种接地子系统共用同一接地装置的共用接地方式,接地电阻不大于1Ω。
当实测不能满足设计要求时应增设人工接地极。
接地系统包括防雷接地、工作接地、保护接地、防静电接地。
以下为防雷接地系统图例。
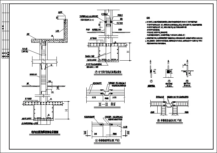
9玻璃幕墙预埋镀锌钢板100mm×100mm×6mm镀锌钢板3.防雷接地施工3.1.工艺流程防雷接地施工工艺流程图3.2.接地极安装本设计将利用基础内钢筋网作为接地体。
利用建筑物承台板内的两根直径不小于16mm的承台板面钢筋按平面图示作环形及网格通长焊接,建筑的灌注桩或钢筋混凝土桩内两根直径不小于16mm的主钢筋就近与接地网格或环形接地连接线连接。
接地网格,环形接地连接线及与之相连的桩内引下线共同构成共用接地体。
具体做法参看大样图。
为满足最不利点的防雷电阻值不大于1Ω的要求,在首层外围柱距地面30cm处预留40×4mm热镀锌扁钢作为人工接地极端子,施工过程中随时测量接地电阻,达不到要求时在首层外围增加人工接地极。
具体做法见下图。
圆钢(钢筋)与镀锌扁钢搭接大样图避雷引下线与接地网连接大样图3.3.测试端子在外墙引下线距室外地坪0.5m外设置测试卡子,焊出M12×50接地螺栓,(装在75×75的金属接线盒内,加盖面板,做出接地标志)供测量接地电阻之用。
3.4.防雷引下线安装防雷引下线将利用建筑物钢筋混凝土柱或剪力墙内直径不小于16mm的两根主钢筋作为引下线,引下线平均间距不大于12m,避雷带和主钢筋可靠焊接,利用建筑的桩基内钢筋及承台内基础板之钢筋做共享接地极,引下线和基础底盘钢筋焊接为一整体作为接地装置,并依需要在建筑外围补打接地钢钎,并与镀锌扁钢连接组成接地网以达到接地电阻值要求。
防雷,接地平面图的设计及应重点注意的问题1 标准、规范,设计条件和要求1.1 防雷、接地设计应执行的标准、规范防雷、接地设计中应执行的标准、规范由电气专业负责人在设计统一规定中提出。
1.1.1 国内设计项目按下列标准、规范执行《工业与民用电力装置的接地设计规范》(试行) GBJ65《爆炸和火灾危险环境电力装置设计规范》 GB50058《建筑物防雷设计规范》 GB50057《交流电气装置的过电压保护和绝缘配合》DL/T620—1997《低压配电设计规范》 GB50054《石油化工企业防火规范》 GB50160《石油库设计规范》 GBJ74《化工企业静电接地设计规程》 HGJ28静电接地安装图按《化工企业静电接地安装通用图CD90B4》执行1.1.2 引进项目根据合同要求可按卖方国家有关规定执行,但不得低于1.1.1条的要求。
1.1.3 技术出口项目根据合同要求可执行买方国家或地方的标准、规范,或买方指定的国际标准、规范。
1.2 防雷、接地装置的设计过程防雷、接地装置的设计可分下列几个阶段:1.2.1设计条件和设计资料收集阶段。
为了进行设计计算,应收集以下资料,如不便收集或收集不到时,也可采用经验数据。
所有条件经由电气专业负责人签收转发。
从其它专业提供的设计条件,按设计过程控制规定,由电气专业负责人验收,并在《提出条件通知单》上验收签字后直接(或发给设计人,再由设计人)交给由他负责培训或指导工作的见习生进行设计。
设计人发现设计条件有错误或条件深度达不到设计要求,应及时向电气专业负责人提出,并由电气专业负责人与提供条件的专业负责人协商,由提供条件的专业负责人填写《设计条件变更单》。
设计人按《设计条件变更单》进行设(1) 基础设计(或初步设计)文件详细设计(施工图设计)必需符合基础设计(或初步设计)文件中有关防雷、接地设计的规定。
(2) 工艺装置设备布置图,包括平立剖面图标明界区范围、指北针、主要设备位置及尺寸、框架及管廊、塔、罐及其它操作平台和上下扶梯。