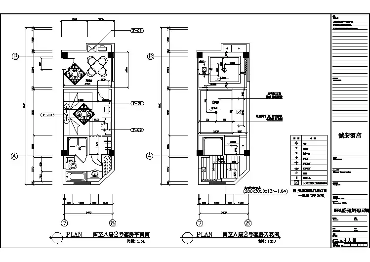
四至八层2号套房平面及天花图图纸编号变更序号Drawing No.Revision No.复核比例CheckedScale日期Date业主/承建商工程编号绘图人Drawn图则项目Project No.Drawing Title日期DateClient Contractor工程名称ProjectArchitect建筑师Revision设计变更3)此图不依比例,请勿度量本图纸任何尺寸1)除注明外,所有尺寸均以毫米表示2)所有尺寸必须以地盆量度作准备注Notes诚安酒店四至八层2号套房平面图比例:1:50PLAN72G8A2号套房B2,2002,2002,6002号套房2,6002,2005001200906003400600100078600340060090120010001:50比例:PLAN四至八层2号套房天花图4-A-01(200x3000x13r=1.8孔)涂白色乳胶漆周边围100宽石膏线涂白色乳胶漆石膏板天花条形铝板天花BC0012032351540170020018401860AB1102017001480120120250012032351540200注:天花靠近门的灯具375850665190560562030030030070011008509502400一律对门中为准.800250033502400950133010509807205061180800300x300方形底回风口侧出口风烟感石英射灯艺术壁灯石英灯图 例筒灯防水筒灯衣柜灯名 称EQEQEQF-02F-01F-02F-05