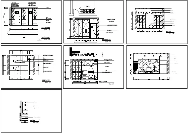
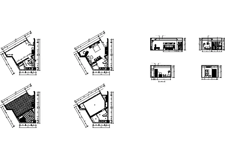
阳台客厅洗手间小孩房餐厅海尔-Haier厨房下上下上REFECDF吸顶灯+2,700300X300铝扣板天花bD-03筒灯DESCRIPTION 说明REVISION修改DATE日期PROJECT工程名称CONTENT图纸名称DESIGNED BY设计DRAWN BY绘图SCALE比例尺1:75APPROVED BY 审核CHECKED BY校对DATE日期DESIGN NO.设计号DRAWING NO.图号P-01B型 平面布置图SHEET NO.张数立面图 3E-01D-0113D-02D-0310校 对编 制设 计78945620Zheng E-04E-05E-06191718E-02E-03141516图号平 面 布 置 图图 纸 名 称序 号21图号P-02P-01序 号1211图 纸 名 称造型吊灯立面图SCALE:1:30CA. B. C天 花 布 置 图洗手间书房校对CHECKED BYDATE日期修改REVISION说明DESCRIPTION 绘图DRAWN BY日期DATE审核APPROVED BY 图纸名称CONTENTB型 天花布置图1:75SCALE比例尺设计DESIGNED BY工程名称PROJECT下上P-02图号DRAWING NO.张数设计号SHEET NO.DESIGN NO.天花油白色ICI +2,700天花油白色ICI 吸顶灯吸顶灯吸顶灯+2,400筒灯+2,400条形铝扣板天花+2,700天花油白色ICI 吸顶灯条形铝扣板天花筒灯+2,400筒灯暗藏灯管IJKLGHABMREVISION修改日期DATEB型 立面图校对CHECKED BYDESCRIPTION 说明绘图DRAWN BY1:30审核APPROVED BY 日期DATE设计DESIGNED BY比例尺SCALECONTENT图纸名称PROJE