钢梁等强拼接节点设计计算书(Mathcad)
- 格式:pdf
- 大小:75.26 KB
- 文档页数:2
等强度设计法计算梁的拼接接点设计型号H900x300x20x25工字钢梁高h=900mm工字钢腹板厚t w=20mm f=295f V=工字钢上翼缘宽b1=300mm工字钢上翼缘厚t f1=25mm f=265f V=工字钢下翼缘宽b2=300mm工字钢下翼缘厚t f2=25mm f=265f V=工字钢腹板高度h w=850mm截面面积A0b=32000mm2中和轴位置h1=450mm h2=450惯性矩I0x b=3895416667mm4截面抵抗矩W0x1b=8656481.481mm3W0x2b=8656481腹板连接板的高度h wm=680mm初定螺栓型号:M24P=180KN孔径26接触面处理方法:μ=0.4传力摩擦面个数:n=22.拼接连接计算1) 梁单侧翼缘和腹杆的净截面面积估算和相应的连接螺栓数目估算:a=6375mm2净截面面积估算:Anf1A nf2a=6375mm2A nw a=14450mm2连接螺栓估算:采用n fb1a=11.7317708316n fb2a=11.7317708316n wb a=17.05902778162)翼缘外侧拼接连接板的厚度t11=15.5mm20(-18x300x1160)t12=15.5mm20(-18x300x1160)翼缘内侧拼接连接的宽度b为:b1=140mm120b2=140mm120翼缘内侧拼接连接板厚度:t21=19.625mm25(-20x120x1160)t22=19.625mm25(-20x120x1160)腹板两侧拼接连接板的厚度,t3=13.5mm16(-14x190x670)3)梁的截面特性(1)梁上的螺栓孔截面惯性矩:I rR b=637802013.3mm4(2)扣除螺栓孔后的净截面惯性矩:I nx b=3257614653mm4(3)梁的净截面抵抗矩:W nx b=7239143.674mm3(4)梁单侧翼缘的净截面面积A nF b=4900mm2(5)梁腹板的净截面面积A nw b=12320mm24)梁的拼接连接按等强设计法的设计内力值弯矩M n b=1918373074N*mm剪力V n b=2094400N5)校核在初开始估计的螺栓数目n fb1a=15.22518312<16ok!n fb2a=15.22518312<16ok!n wb=14.54444444<16ok!6)拼接连接板的校核(1)净截面面积的校核单侧翼缘拼接连接板的净截面面积A oF PL=7320>4900ok!腹板拼接连接板的净截面面积A oW PL=15104>12320ok!(2)拼接连接板刚性的校核拼接连接板的毛截面惯性矩I ox PL=4399335333cm4拼接连接板上的螺栓孔截面惯性矩I xR PL=984164237.3cm4拼接连接板扣除螺栓孔后的净截面惯性矩I nx PL=3415171096cm4拼接连接板的净截面抵抗矩W nx PL=7266321.481>7239144ok!7)按抗震设计要求对拼接连接节点的最大承载力的校核(1)梁的全塑性弯矩M px b=1821875000N*mm(2)拼接连接节点的最大承载力的校核对弯矩梁翼缘拼接连接般的净截面抗拉最大承载力的相应最大弯矩M u1=3013358000梁翼缘连接高强度螺栓的抗剪最大承载力的相应最大弯矩M u2=6617520000梁翼缘板的边端截面抗拉最大承载力的相应最大弯矩M u3=8225000000> 3.01E+09翼缘拼接连接板边端截面抗拉最大承载力的相应最大弯矩M u4=14673400000> 3.01E+09M u=3013358000> 2.19E+09ok!对剪力梁腹板净截面面积的抗剪最大承载力:V u1=3343088.999梁腹板拼接连接板净截面面积的抗剪最大承载力:V u2=4098540.279>3343089腹板连接高强度螺栓的抗剪最大承载力V u3=7562880>3343089V u=3343088.999>249309.2ok!(3)螺栓孔对梁截面的削弱校核梁的毛截面面积A0=32000mm2螺栓孔的削弱面积:A R=6760mm2螺栓孔对梁截面的削弱率μr=21%<25%ok!170 155 155。
等强度设计法计算梁的拼接接点设计型号H450x300x10x20工字钢梁高h=450mm工字钢腹板厚t w=10mm f=310f V=工字钢上翼缘宽b1=300mm工字钢上翼缘厚t f1=20mm f=295f V=工字钢下翼缘宽b2=300mm工字钢下翼缘厚t f2=20mm f=295f V=工字钢腹板高度h w=410mm截面面积A0b=16100mm2中和轴位置h1=225mm h2=225惯性矩I0x b=612534166.7mm4截面抵抗矩W0x1b=2722374.074mm3W0x2b=2722374腹板连接板的高度h wm=340mm初定螺栓型号:M22(腹板)P=180KN孔径23.5M22(翼缘) P=180KN孔径23.5接触面处理方法:μ=0.4传力摩擦面个数:n=22.拼接连接计算1) 梁单侧翼缘和腹杆的净截面面积估算和相应的连接螺栓数目估算:a=5100mm2净截面面积估算:Anf1A nf2a=5100mm2A nw a=3485mm2连接螺栓估算:采用n fb1a=10.4479166712n fb2a=10.4479166712n wb a= 4.3562542)翼缘外侧拼接连接板的厚度t11=13mm22(-22x450x840)t12=13mm22(-22x450x840)翼缘内侧拼接连接的宽度b为:b1=145mm130b2=145mm130翼缘内侧拼接连接板厚度:t21=15.53846154mm25(-25x220x840)t22=15.53846154mm25(-25x220x840)腹板两侧拼接连接板的厚度,t3=7.029411765mm12(-18x190x840)3)梁的截面特性(1)梁上的螺栓孔截面惯性矩:I rR b=94528926.25mm4(2)扣除螺栓孔后的净截面惯性矩:I nx b=518005240.4mm4(3)梁的净截面抵抗矩:W nx b=2302245.513mm3(4)梁单侧翼缘的净截面面积A nF b=4120mm2(5)梁腹板的净截面面积A nw b=1985mm24)梁的拼接连接按等强设计法的设计内力值弯矩M n b=679162426.3N*mm剪力V n b=357300N5)校核在初开始估计的螺栓数目n fb1a=10.96838544<12ok!n fb2a=10.96838544<12ok!n wb= 2.48125<4ok!6)拼接连接板的校核(1)净截面面积的校核单侧翼缘拼接连接板的净截面面积A oF PL=8682>4120ok!腹板拼接连接板的净截面面积A oW PL=7032>1985ok!(2)拼接连接板刚性的校核拼接连接板的毛截面惯性矩I ox PL=1055531767cm4拼接连接板上的螺栓孔截面惯性矩I xR PL=473665984.3cm4拼接连接板扣除螺栓孔后的净截面惯性矩I nx PL=581865782.3cm4拼接连接板的净截面抵抗矩W nx PL=2355731.912>2302246ok!7)按抗震设计要求对拼接连接节点的最大承载力的校核(1)梁的全塑性弯矩M px b=810955000N*mm(2)拼接连接节点的最大承载力的校核对弯矩梁翼缘拼接连接般的净截面抗拉最大承载力的相应最大弯矩M u1=1756321380梁翼缘连接高强度螺栓的抗剪最大承载力的相应最大弯矩M u2=2439028800梁翼缘板的边端截面抗拉最大承载力的相应最大弯矩M u3=2425200000> 1.76E+09翼缘拼接连接板边端截面抗拉最大承载力的相应最大弯矩M u4=5642538000> 1.76E+09M u=1756321380>8.92E+08ok!对剪力梁腹板净截面面积的抗剪最大承载力:V u1=538638.9336梁腹板拼接连接板净截面面积的抗剪最大承载力:V u2=1908165.734>538638.9腹板连接高强度螺栓的抗剪最大承载力V u3=1890720>538638.9V u=538638.9336>87853.46ok!(3)螺栓孔对梁截面的削弱校核梁的毛截面面积A0=16100mm2螺栓孔的削弱面积:A R=2820mm2螺栓孔对梁截面的削弱率μr=18%<25%ok!180 170 170。
荷载标准组合下的挠度挠度最终计算值Δscl := 5( g1k + g2k + ψq ⋅ qk L ⋅ 10 384Bs ( 3 4 mm Δscl = 18.151 Δ L 10 3 mm mm Δ := Δc + max ( Δsc , Δscl = 56.605 = 1 211 结论:变形不满足验算要求 4.7 栓钉数量验算一个剪跨内的剪力计算需要的栓钉数量实际布置的栓钉数量 Vs := min ( As ⋅ f , be ⋅ hc1 ⋅ fc ⋅ 10 nf := Vs ÷ Nvc n := L ⋅ ns ÷ 0.344 −3 Vs = 2.119 × 10 nf = 43.095 n = 69.767 3 KN 个个结论:栓钉数量满足完全抗剪要求 4.8 局部稳定性验算(按《钢规范》11.1.6)钢梁的轴力按《钢规范》表9.1.4 允许宽厚比(翼缘)N := 0 Χb := 9 KN 235 fy 235 fy Χb = 7.272 Χh = 58.172 χb = 6.9 χh = 52.5 允许高厚比(腹板) 3 ⎛ N ⋅ 10 ⎞ Χh := ⎜72 − 100 ⎟⋅ As ⋅ f ⎠⎝设计实际的宽厚比(翼缘)χb := χh := b2 − tw 2t2 hw tw 设计实际的高厚比(腹板)结论:局部稳定满足要求 114.9 混凝土翼板内横向钢筋验算 b-b 界面的剪力设计值 Vlb := ns ⋅ Nvc ⋅ 10 ai 3 Vlb = 285.907 3 N/mm a-a 界面的剪力设计值 ns ⋅ Nvc ⋅ 10 ⋅ b11 Vla := ai ⋅ b e k1 := 0.9 k2 := 0.19 s := 1 Vla = 131.957 N/mm 抗剪承载力折减系数应力单位纵向受剪界面的周边长度 N/mm2 lsb := 120 × 2 + 109 lsa := hc1 lsb = 349 lsa = 76 Asvb = 0.67 Asva = 0.67 VBb = 482.94 VBa = 206.492 mm mm mm2/mm mm2/mm N/mmN/mm 与界面相交的横向钢筋面积 Asvb := Asva := 2Ab 1000 At + Ab 1000 纵向受剪截面的抗剪承载力 VBb := min ( k1 ⋅ s ⋅ lsb + 0.7Asvb ⋅ fy , k2 ⋅ lsb ⋅ fc VBa := min ( k1 ⋅ s ⋅ lsa + 0.7Asva ⋅ fy , k2 ⋅ lsa ⋅ fc 结论:验算满足要求 12。
MIDAS钢箱梁计算书1.1B07~F03 D07~H03 50.5+65+50.5m(桥宽10m)钢箱梁1.1.1计算参数及参考规范(1)标准设计荷载:城-A级;桥梁安全等级为一级,结构重要性系数1.1;(2)主要材料钢箱梁采用Q345D 钢材,桥面板采用C40混凝土。
(3)参考规范《公路钢结构桥梁设计规范》报批稿,《公路钢筋混凝土及预应力混凝土桥涵设计规范》。
1.1.2主要计算内容结构纵向整体应力,即主梁体系,采用三维有限元建模分析,采用梁格模型,计算主梁顶、底板最不利应力。
1.1.3纵向整体计算1.1.3.1.1计算模型纵向整体计算采用三维有限元建模分析,采用梁格法模型进行模拟。
参照《公路钢结构桥梁设计规范》报批稿进行钢梁有效分布宽度的计算。
根据桥面布置,汽车按最不利情况进行影响线加载。
温度考虑整体升降温20度和梯度温度。
永久支承按简支支承条件进行约束。
全桥共划分为241个单元,162个节点。
结构计算几何模型如下图:计算几何模型1.1.3.1.2计算荷载(1)一期恒载主梁顶、底和腹板采用实际板厚,钢材重力密度78.5kN/m 3,单元重力密度考虑各种加劲肋和焊缝实际重量提高1.24倍;混凝土桥面板重力密度25kN/m 3。
沥青混凝土重力密度24kN/m 3。
(2)二期恒载1.1.3.1.3计算参数(1)钢材材料特性如下表:结构钢材性能表应用结构钢箱加劲梁材质Q345D 力学性能弹性模量E(MPa) 210000 剪切模量G(MPa)81000 泊松比γ0.3 轴向容许应力[σ] (MPa)200 弯曲容许应力[σw] (MPa)210 容许剪应力[τ] (MPa) 120 屈服应力[σs] (MPa) 345 热膨胀系数(℃)0.000012(2)梯度温差:参照混凝土规范规定:升温取T1=14°C,T2=5.5°C,负温度效应按照一半考虑。
(3)基础变位:主墩沉降2cm,边墩沉降1cm。
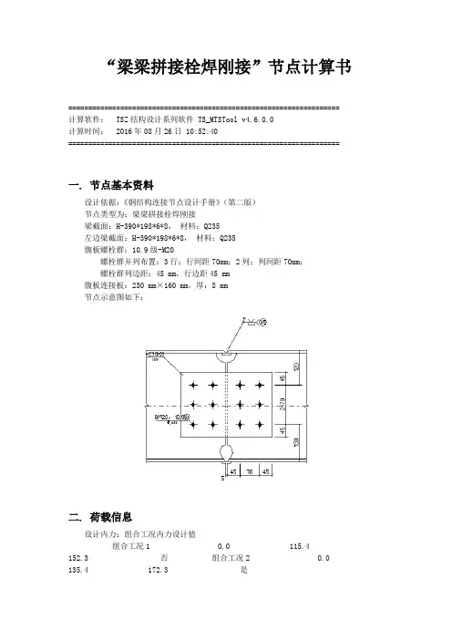
“梁梁拼接栓焊刚接”节点计算书====================================================================计算软件:TSZ结构设计系列软件 TS_MTSTool v4.6.0.0计算时间:2016年08月26日 10:52:40====================================================================一. 节点基本资料设计依据:《钢结构连接节点设计手册》(第二版)节点类型为:梁梁拼接栓焊刚接梁截面:H-390*198*6*8,材料:Q235左边梁截面:H-390*198*6*8,材料:Q235腹板螺栓群:10.9级-M20螺栓群并列布置:3行;行间距70mm;2列;列间距70mm;螺栓群列边距:45 mm,行边距45 mm腹板连接板:230 mm×160 mm,厚:8 mm节点示意图如下:二. 荷载信息设计内力:组合工况内力设计值组合工况1 0.0 115.4 152.3 否组合工况2 0.0 135.4 172.3 是三. 验算结果一览承担剪力(kN) 38.5 最大126 满足列边距(mm) 45 最小33 满足列边距(mm) 45 最大64 满足外排列间距(mm) 70 最大96 满足中排列间距(mm) 70 最大192 满足列间距(mm) 70 最小66 满足行边距(mm) 45 最小44 满足行边距(mm) 45 最大64 满足外排行间距(mm) 70 最大96 满足中排行间距(mm) 70 最大192 满足行间距(mm) 70 最小66 满足净截面剪应力比 0.704 1 满足净截面正应力比 0.000 1 满足最大拉应力(MPa) 215 最大215 满足最大压应力(MPa) -215 最小-215 满足连接板高度(mm) 230 最大287 满足四. 梁梁腹板螺栓群验算1 腹板螺栓群受力计算控制工况:梁净截面承载力梁腹板净截面抗剪承载力:V wn=[6×(390-2×8)-max(3×22,0+0)×6]×125=231kN梁净截面抗弯承载力计算翼缘螺栓:I fb=0 cm^4腹板螺栓:I wb=[3×6×22^3/12+6×20×9800]×10^-4=131 cm^4翼缘净截面:I fn=1.156e+004-0=1.156e+004 cm^4梁净截面:I n=1.382e+004-0-131=1.369e+004 cm^4梁净截面:W n=1.369e+004/0.5/390×10=702 cm^4净截面抗弯承载力:M n=W n*f=702×215×10^-3=150.9 kN·m梁翼缘弯矩分担系数:ρf=I fn/I n=0.8445>0.7,翼缘承担全部弯矩梁腹板分担弯矩:M wn=0 kN·m2 腹板螺栓群承载力计算列向剪力:V=231 kN螺栓采用:10.9级-M20螺栓群并列布置:3行;行间距70mm;2列;列间距70mm;螺栓群列边距:45 mm,行边距45 mm螺栓受剪面个数为2个连接板材料类型为Q235螺栓抗剪承载力:N vt=N v=0.9n fμP=0.9×2×0.45×155=125.55kN计算右上角边缘螺栓承受的力:N v=231/6=38.5 kNN h=0 kN螺栓群对中心的坐标平方和:S=∑x^2+∑y^2=26950 mm^2N mx=0 kNN my=0 kNN=[(|N mx|+|N h|)^2+(|N my|+|N v|)^2]^0.5=[(0+0)^2+(0+38.5)^2]^0.5=38.5 kN≤125.55,满足3 腹板螺栓群构造检查列边距为45,最小限值为33,满足!列边距为45,最大限值为64,满足!外排列间距为70,最大限值为96,满足!中排列间距为70,最大限值为192,满足!列间距为70,最小限值为66,满足!行边距为45,最小限值为44,满足!行边距为45,最大限值为64,满足!外排行间距为70,最大限值为96,满足!中排行间距为70,最大限值为192,满足!行间距为70,最小限值为66,满足!4 腹板连接板计算连接板剪力:V l=231 kN采用一样的两块连接板连接板截面宽度为:B l=230 mm连接板截面厚度为:T l=8 mm连接板材料抗剪强度为:f v=125 N/mm^2连接板材料抗拉强度为:f=215 N/mm^2连接板全面积:A=B l*T l*2=230×8×2×10^-2=36.8 cm^2开洞总面积:A0=3×22×8×2×10^-2=10.56 cm^2连接板净面积:A n=A-A0=36.8-10.56=26.24 cm^2连接板净截面剪应力计算:τ=V l×10^3/A n=231/26.24×10=88.0335 N/mm^2≤125,满足!连接板截面正应力计算:按《钢结构设计规范》5.1.1-2公式计算:σ=(1-0.5n1/n)N/A n=(1-0.5×3/6)×0/26.24×10=0 N/mm^2≤215,满足!按《钢结构设计规范》5.1.1-3公式计算:σ=N/A=0/36.8×10=0 N/mm^2≤215,满足!五. 梁梁翼缘对接焊缝验算1 翼缘对接焊缝受力计算控制工况:梁净截面承载力翼缘承担的净截面弯矩:M fn=M n-M wn=127.444 kN·m2 翼缘对接焊缝承载力计算焊缝受力:N=0 kN;M x=0 kN·mM y=127.444kN·m抗拉强度:F t=215N/mm^2抗压强度:F c=215N/mm^2轴力N为零,σN=0 N/mm^2弯矩Mx为零,σMx=0 N/mm^2W y=592.763cm^3σMy=|M y|/W y=127.444/592.763×1000=215N/mm^2最大拉应力:σt=σN+σMx+σMy=0+0+215=215N/mm^2≤215,满足最大压应力:σc=σN-σMx-σMy=0-0-215=(-215)N/mm^2≥(-215),满足。
| 工程设备与材料 | Engineering Equipment and Materials·118·2019年第1期压型钢板组合楼板简化计算及MathCAD 在计算中的应用研究贺强强(北京市市政工程设计研究总院有限公司,北京 100082)摘 要:压型钢板组合楼板在钢结构的公共建筑、高层等应用已经非常普遍,文章通过对压型钢板组合楼板的构造介绍、组合楼板与费组合楼板的区别,将压型钢板组合楼板的计算简化为T 型多跨连续梁,从而达到直接利用规范中的公式手工计算的目的。
同时,文章还对MathCAD 这个数学计算工具做了介绍,有利于结构设计过程中计算书的书写和提高设计的效率。
关键词:压型钢板组合楼板;等效T 型连续梁;MathCAD;结构计算中图分类号:TU398+.9 文献标志码:A 文章编号:2096-2789(2019)01-0118-02作者简介:贺强强(1982—),男,工程师,一级注册结构工程师,研究方向:建筑结构设计和地下市政工程。
压型钢板组合楼板,是指用在压型钢板上浇筑混凝土形成的楼板结构,根据压型钢板是否与混凝土共同工作,可分为组合楼板和非组合楼板。
组合楼板是指压型钢板除用作浇筑混凝土的永久性模板外还充当板底受拉钢筋的现浇混凝土楼(屋面)板;非组合板是指压型钢板仅作为混凝土楼板的永久性模板,不考虑参与结构受力的现浇混凝土楼(屋面)板。
由于压型钢板作为混凝土浇筑时的模板,大量节约了传统临时模板的施工周期。
因此近20年以来,组合楼板大量应用于工业和民用建筑当中,尤其是高层钢结构更是普遍使用。
本文将通过对压型钢板组合楼板的简化计算,同时简单介绍Math-CAD 数学计算工具的应用。
1 压型钢板组合楼板的设计构造要求工程中较为普遍的做法是混凝土—压型钢板非组合楼板时,采用开口型压型钢板,此时压型钢板仅当做永久性模板。
当混凝土—压型钢板按照组合型楼板设计时,压型钢板充当了板底部分受力钢筋的作用,因此选用闭口型压型钢板比较合适,由于其主要充当正弯矩钢筋的肋四周均被混凝土包裹,好似钢筋有保护层一般。
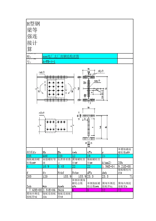
H型钢梁等强连接计算
项目名称:构件编号:材质fy Hb Bb twb tFb r 单翼缘截面螺栓数nFP
235
6002201219242腹板截面螺栓数nwP
高强螺栓等级抗滑移系数μ翼缘螺栓直径df 腹板螺栓直径dw
A(mm2)I0b
410.90.45
22
22
1.56E+049.21E+08
f
fv Nvbf Nvbw dFb
dwb 腹板螺栓间距D
205
120
153.9153.923.5
23.5
71
Inb Wnb Anwb 单侧单翼缘
螺栓总数nFb 单侧腹板螺栓总数nwb 翼缘外侧连接板厚t1
翼缘内侧连
接板宽b
7.63E+082.54E+065616
681272
翼缘内侧连接板厚t2
腹板连接板高h 腹板连接板厚t3
18307
12
连接节点抗震验算梁翼缘抗震设计强度梁腹板震设计强度净截面面积
fay fu
fay fu 单侧Anf Anw
225375
23537541335616
翼缘外侧板尺寸螺栓面积与极限强度
t1Bb
fay fu An1Ae fub
14220
23537524223031040
xxx电厂主厂房钢结构详图A-FB-4-1。
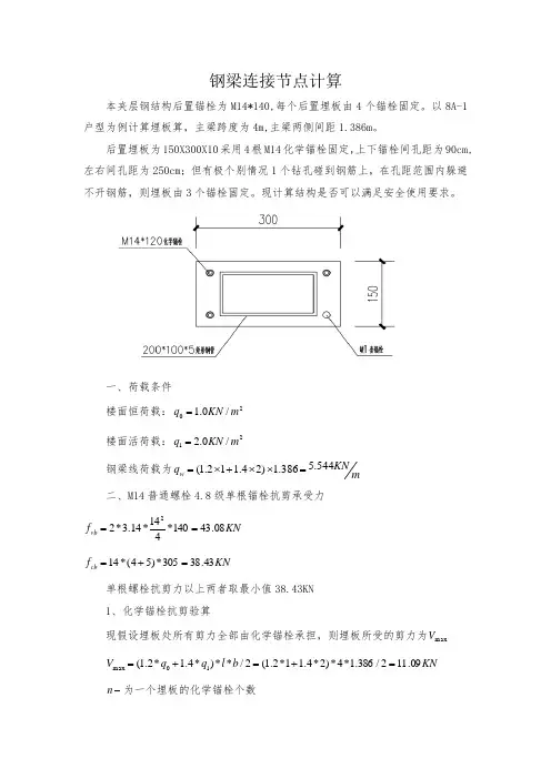
钢梁连接节点计算本夹层钢结构后置锚栓为M14*140,每个后置埋板由4个锚栓固定。
以8A-1户型为例计算埋板算,主梁跨度为4m,主梁两侧间距1.386m 。
后置埋板为150X300X10采用4根M14化学锚栓固定,上下锚栓间孔距为90cm,左右间孔距为250cm ;但有极个别情况1个钻孔碰到钢筋上,在孔距范围内躲避不开钢筋,则埋板由3个锚栓固定。
现计算结构是否可以满足安全使用要求。
一、荷载条件楼面恒荷载:20/0.1m KN q =楼面活荷载:21/0.2m KN q = 钢梁线荷载为m KN q w 544.5386.1)24.112.1(=⨯⨯+⨯=二、M14普通螺栓4.8级单根锚栓抗剪承受力KN f vb 08.43140*414*14.3*22== KN f cb 43.38305*)54(*14=+=单根螺栓抗剪力以上两者取最小值38.43KN1、化学锚栓抗剪验算现假设埋板处所有剪力全部由化学锚栓承担,则埋板所受的剪力为max V KN b l q q V 09.112/386.1*4*)2*4.11*2.1(2/**)*4.1*2.1(10max =+=+= -n 为一个埋板的化学锚栓个数则:vb f =38.43≧KN V 09.11max = 所以单根螺栓也可以满足抗剪要求 vbh N -螺栓所受承载力2、后置埋件抗拉验算埋板4个锚栓上面2个锚栓承受拉力,下面2个锚栓承受压力1)埋板受拉力N N gsd 5544=埋板受剪力N V g sd 27702/386.14=⨯=mm N M .221600802770=⨯= 2)受力最大锚栓拉力N N gsd 5544=N M n N yi y 1385)502()50221600(25544221=⨯⨯-=-∑≥0 N y y M n N N ih sd 1465100210022160025544221=⨯⨯+=''+=∑ 3)锚栓钢材所受破坏承载力锚栓钢材所受承载力标准值N f A N u s s Rk 2900050058=⨯==⋅锚栓受拉破坏承载力分项系数锚栓受拉破坏承载力设计值N N Y N N h sd N Rs s Rk s Rd 146514500229000=≥===⋅⋅⋅结论:埋板在上排两个M14化学锚栓可以满足要求!。
利用 mathcad 及力法原理计算多跨连续梁的内力陈叶文;马博【摘要】应用力法原理对水工结构中的多跨连续梁进行内力计算,阐述如何利用mathcad软件程序使计算实现的过程,分析连续梁在均布荷载作用下的内力分布规律,与计算不等跨连续梁内力的传统方法进行比较,比较两种方法计算不等跨连续梁的内力可以看出利用mathcad计算显著提高计算精度,给其它结构工程中的连续梁内力计算提供参考,证明了mathcad软件在工程设计计算中的准确、有效、快捷。
%Principle of the Force Method of Structural Mechanics is applied to Calculation of Internal Forces of Multi -span Continuous Beam in hydraulic structure , and the processes of calculation by means of Mathcad software are expounded , the distribution rule of internal force in uniform load condition is analyzed , the accuracy of calculation by Mathcad is proved to be significantly improved in comparison with traditional calculation , the reference of calculation of internal force of is provided to other continuous beam in engineering structure , and it is proved that the calculation by using Mathcad software in engineering design is effective, fast and accurate .【期刊名称】《广东水利水电》【年(卷),期】2015(000)008【总页数】4页(P1-3,10)【关键词】连续梁;力法;弯矩;剪力【作者】陈叶文;马博【作者单位】广东省水利电力勘测设计研究院,广东广州 510635;广州市珠江堤防管理处,广东广州 510640【正文语种】中文【中图分类】TU378.2在水工钢结构或混凝土结构中,涉及很多连续梁的设计,如钢闸门中的水平次梁,厂房楼面的次梁,闸坝上的工作桥和交通桥中的部分梁系等。
夹层梁柱节点计算书KL1-1、KL1-2与柱的连接一、设计资料节点形式:翼缘采用对接焊,腹板采用高强螺栓连接其节点图见下图;高强螺栓资料:高强螺栓等级为:10.9级;高强螺栓直径为:id=20mm;根据《钢结构设计规范》(GB50017-2003)中表7.2.2-2:高强螺栓的预拉力为:P=155.0kN;焊缝资料:焊缝强度与母材等强,f t w=310 MPaKL1-1:高强螺栓几何位置信息:高强螺栓总数为:6个;每排高强螺栓的数量为:2个;高强螺栓共有:3排;各排高强螺栓离螺栓群形心的距离为:x1=80.0mm= .080m;最外排高强螺栓到翼缘边的距离为:ef=50.0mm;最外排高强螺栓到腹板边的距离为:ew=80.0mm;KL1-1尺寸:H350x200x6x8KL1-2:高强螺栓几何位置信息:高强螺栓总数为:10个;每排高强螺栓的数量为:2个;高强螺栓共有:5排;各排高强螺栓离螺栓群形心的距离为:x1=80.0mm= .080m;x2=160.0mm= .160m;最外排高强螺栓到翼缘边的距离为:ef=50.0mm;最外排高强螺栓到腹板边的距离为:ew=80.0mm;KL1-2尺寸:H500x240x6x10二、内力设计值根据主刚架计算书,可以查得本节点的最不利内力设计值为:KL1-1:弯距:M= 18.5kN*m;轴力:N= 6.4kN;(压力)剪力:V= 13.8kN;KL1-2:弯距:M= 72.4kN*m;轴力:N= 11.6kN;(拉力)剪力:V= 43.6kN;三、节点验算KL1-1:本文按摩擦型高强螺栓计算;本文根据《钢结构设计规范》(GB50017-2003)中第7.2.2条计算:单个螺栓的抗剪极限承载力为:Nvb=0.9*nf*μ*P=0.9*0.45*155=62.775kN对接焊缝强度验算:考虑焊缝承受全部的弯矩:σ=M/(h*b f*t f)=18.5*10^6/[(350-8)*200*8]=33.8MPa<f t w=310 MPa,满足高强度螺栓摩擦型单剪连接:考虑螺栓承受全部剪力,验算螺栓强度:本节点设置2排6个高强螺栓,则腹板连接处螺栓能承受的剪力为:Vmax=n*Nvb=3*62.775=188.3kN > V=13.8kN,满足腹板净面积验算:A0= (350-2*8)*6-3*21.5*6=1617mm2σ=V/A0=13.8*1000/1617=8.5MPa<f V=180 MPa,满足KL1-2:本文按摩擦型高强螺栓计算;本文根据《钢结构设计规范》(GB50017-2003)中第7.2.2条计算:单个螺栓的抗剪极限承载力为:Nvb=0.9*nf*μ*P=0.9*0.45*155=62.775kN对接焊缝强度验算:考虑焊缝承受全部的弯矩:σ=M/(h*b f*t f)=72.4*10^6/[(500-10)*240*10]=61.6MPa<f t w=310 MPa,满足高强度螺栓摩擦型单剪连接:考虑螺栓承受全部剪力,验算螺栓强度:本节点设置2排10个高强螺栓,则腹板连接处螺栓能承受的剪力为:Vmax=n*Nvb=5*62.775=313.9kN > V=43.6kN,满足腹板净面积验算:A0= (500-2*10)*6-5*21.5*6=2235mm2σ=V/A0=43.6*1000/2235=19.15MPa<f V=180 MPa,满足连接板设计资料:连接板厚度为:t=16.0mm;连接板宽度为:b=200.0mm;梁柱翼缘宽度为:bf=180.0mm;梁柱腹板厚度为:tw= 6.0mm;连接板材料为:Q345B钢;KL1、KL3与柱的连接一、设计资料节点形式:翼缘采用对接焊,腹板采用高强螺栓连接高强螺栓资料:高强螺栓等级为:10.9级;高强螺栓直径为:id=20mm;根据《钢结构设计规范》(GB50017-2003)中表7.2.2-2:高强螺栓的预拉力为:P=155.0kN;焊缝资料:焊缝强度与母材等强,f t w=310 MPaKL1:高强螺栓几何位置信息:高强螺栓总数为:12个;每排高强螺栓的数量为:2个;高强螺栓共有:6排;各排高强螺栓离螺栓群形心的距离为:x1=40.0mm= .040m;x2=120.0mm= .0120m;x3=200.0mm= .200m;最外排高强螺栓到翼缘边的距离为:ef=50.0mm;最外排高强螺栓到腹板边的距离为:ew=140.0mm;KL1尺寸:H700x200x6x10KL3:高强螺栓几何位置信息:高强螺栓总数为:6个;每排高强螺栓的数量为:2个;高强螺栓共有:3排;各排高强螺栓离螺栓群形心的距离为:x1=80.0mm= .080m;最外排高强螺栓到翼缘边的距离为:ef=50.0mm;最外排高强螺栓到腹板边的距离为:ew=87.0mm;KL3尺寸:H350x200x6x8二、内力设计值根据主刚架计算书,可以查得本节点的最不利内力设计值为:KL1:弯距:M= 271.0kN*m;轴力:N= 23.3kN;(拉力)剪力:V= 147.0kN;KL3:弯距:M= 53.3kN*m;轴力:N= 55.5kN;(压力)剪力:V= 31.2kN;弯矩图(kN*m)剪力图(kN)轴力图(kN)三、节点验算KL1:本文按摩擦型高强螺栓计算;本文根据《钢结构设计规范》(GB50017-2003)中第7.2.2条计算:单个螺栓的抗剪极限承载力为:Nvb=0.9*nf*μ*P=0.9*0.45*155=62.775kN对接焊缝强度验算:考虑焊缝承受全部的弯矩:σ=M/(h*b f*t f)=271.0*10^6/[(700-10)*200*10]=196.4MPa<f t w=310 MPa,满足高强度螺栓摩擦型单剪连接:考虑螺栓承受全部剪力,验算螺栓强度:本节点设置2排12个高强螺栓,则腹板连接处螺栓能承受的剪力为:Vmax=n*Nvb=6*62.775=313.9kN > V=147.0kN,满足腹板净面积验算:A0= (700-2*10)*6-6*21.5*6=3306mm2σ=V/A0=147.0*1000/3306=44.5MPa<f V=180 MPa,满足KL3:本文按摩擦型高强螺栓计算;本文根据《钢结构设计规范》(GB50017-2003)中第7.2.2条计算:单个螺栓的抗剪极限承载力为:Nvb=0.9*nf*μ*P=0.9*0.45*155=62.775kN对接焊缝强度验算:考虑焊缝承受全部的弯矩:σ=M/(h*b f*t f)=53.3*10^6/[(350-8)*200*8]=97.4MPa<f t w=310 MPa,满足高强度螺栓摩擦型单剪连接:考虑螺栓承受全部剪力,验算螺栓强度:本节点设置2排6个高强螺栓,则腹板连接处螺栓能承受的剪力为:Vmax=n*Nvb=3*62.775=188.3kN > V=31.2kN,满足腹板净面积验算:A0= (350-2*8)*6-3*21.5*6=1617mm2σ=V/A0=31.2*1000/1617=19.3MPa<f V=180 MPa,满足KL2与柱的连接一、设计资料节点形式:翼缘采用对接焊,腹板采用高强螺栓连接其节点图见下图;高强螺栓资料:高强螺栓等级为:10.9级;高强螺栓直径为:id=20mm;根据《钢结构设计规范》(GB50017-2003)中表7.2.2-2:高强螺栓的预拉力为:P=155.0kN;焊缝资料:焊缝强度与母材等强,f t w=310 MPaKL2:高强螺栓几何位置信息:高强螺栓总数为:12个;每排高强螺栓的数量为:2个;高强螺栓共有:6排;各排高强螺栓离螺栓群形心的距离为:x1=40.0mm= .040m;x2=120.0mm= .0120m;x3=200.0mm= .200m;最外排高强螺栓到翼缘边的距离为:ef=50.0mm;最外排高强螺栓到腹板边的距离为:ew=140.0mm;KL1尺寸:H700x200x8x12二、内力设计值根据主刚架计算书,可以查得本节点的最不利内力设计值为:KL2:(考虑连接点距轴线偏离500mm)弯距:M= 388.0kN*m;轴力:N= 47.6kN;(拉力)剪力:V= 288.0kN;弯矩图(kN*m)剪力图(kN)轴力图(kN)三、节点验算KL2:本文按摩擦型高强螺栓计算;本文根据《钢结构设计规范》(GB50017-2003)中第7.2.2条计算:单个螺栓的抗剪极限承载力为:Nvb=0.9*nf*μ*P=0.9*0.45*155=62.775kN对接焊缝强度验算:考虑焊缝承受全部的弯矩:σ=M/(h*b f*t f)=388.0*10^6/[(700-12)*200*12]=235.0MPa<f t w=310 MPa,满足高强度螺栓摩擦型单剪连接:考虑螺栓承受全部剪力,验算螺栓强度:本节点设置2排12个高强螺栓,则腹板连接处螺栓能承受的剪力为:Vmax=n*Nvb=6*62.775=313.9kN > V=147.0kN,满足腹板净面积验算:A0= (700-2*12)*8-6*21.5*8=4376mm2σ=V/A0=288.0*1000/4376=65.8MPa<f V=180 MPa,满足。
转动刚度R1R 1G h 1⋅h oe ⋅t p⋅:=R 1 6.11010×=N-mm/rad三、转动刚度R2钢材的弹性模量E 206000:=N/mm2端板惯性矩端板宽b e 250:=mm 端板厚t e 20:=mm I e 1.667105×=mm4梁端翼缘板中心间的距离h 1390=mm 端板外伸处螺栓中心到梁翼缘外边缘的距离e f 50:=mm梁柱刚接节点刚度设计计算书海军上海工程机械厂新建厂房按照《建筑结构荷载规范》GB 50009-2001 《门式钢架轻型房屋钢结构技术规程》CECS 102:2002 《钢结构设计规范》GB50017-2003======================================================================================* 未注明长度为mm ;未注明应力为 MPa一、设计资料1. 节点简图:2. 材料:梁截面:400x200x6x8 钢材:Q345f 295:=N/mm 2柱截面:350x250x6x10 钢材:Q345二、转动刚度R1钢材的剪切变形模量G 79000:=N/mm2梁端翼缘板中心间的距离h 1390:=mm 柱节点域腹板的宽度h oe 330:=mm 柱节点域腹板的厚度t p 6:=mmΔ0.988=结论:梁柱节点转动刚度不满足要求六、设置斜加劲肋后的转动刚度校核斜加劲肋的倾角α47:=度两条加劲肋的总截面面积A st 63506−()⋅:=A st 2.064103×=mm2梁腹板的高度h ob 4508−8−:=h ob 434=mm设置斜加劲肋后的转动刚度R1'R 1'R 1E h ob ⋅A st ⋅cos α()2⋅sin α()⋅+:=R 1'8.3461010×=mm三、转动刚度RR 4.8121010×=N-mm/rad四、刚架横梁的线刚度刚架横梁胯间的平均截面惯性矩I b 151250000:=mm4刚架横梁的跨度l b 16000:=mm刚架横梁的线刚度i b 1.947109×=N-mm五、梁柱刚接节点转动刚度校核=N-mm/radR' 6.1091010×刚架横梁的线刚度R'梁柱刚接及诶单转动刚度校核=Δ' 1.255结论:梁柱节点转动刚度满足要求。
钢与组合结构桥梁课程设计30m钢板组合梁桥课程设计计算书二○一五年一月目录1、总体设计 (1)设计原则 (1)技术标准 (1)1.3 设计标准 (1)主要材料 (2)总体布置 (2)2、桥面板设计 (4)桥面板尺寸拟定 (4)桥面板作用与组合 (4)3、主梁设计 (5)设计原则与方法 (5)主梁尺寸拟定 (5)加劲肋尺寸拟定 (6)联结系 (6)4、主梁截面特性及内力计算 (6)结构参数 (6)计算模型与方法 (7)主梁截面特性计算 (7)主梁内力计算 (10)5、主梁应力验算 (15)5.1 一、二期恒载效应 (15)徐变效应 (16)收缩效应 (17)梯度温度效应 (17)车辆荷载效应 (18)5.6 承载能力极限状态验算 (18)5.7 承载能力极限状态验算 (19)5.8 承正常使用极限状态抗裂验算 (19)6. 次结构验算 (20)混凝土桥面板 (20)剪力连接件 (21)加劲肋验算 (24)7.稳定性验算 (26)整体稳定性验算 (26)倾覆稳定计算 (27)8.刚度验算 (27)刚度与变形验算 (27)预拱度的设置 (28)9.疲劳破坏极限状态验算 (28)1、总体设计满足安全、功能、经济、美观等要求,还要便于施工、维修和养护。
参照《公路工程技术标准》〔JTG B01-2003〕,确定此30m简支钢板组合梁桥的主要技术标准如下:〔1〕公路等级:二级四车道公路〔2〕结构设计安全等级:二级〔3〕结构重要性系数:〔4〕设计速度:80km/h〔5〕桥梁跨径:计算跨径m,标准跨径〔含m〔6〕桥面宽度:两行车道宽4*3.75m;两侧分别设m硬路肩〔含安全距离〕以及m防撞护栏,中央分隔带2m,桥面宽:0.50+2.5+2+2+2*3.75+2.m〔7〕桥梁结构设计基准期:100年〔8〕汽车荷载等级:公路-Ⅰ级〔9〕桥面净空:二级公路至少〔10〕桥面坡度:设置2%横坡;不设置纵坡。
1.3 设计标准〔1〕《公路工程技术标准》〔JTG B01-2003〕〔2〕《公路桥涵设计通用标准》〔JTG D60-2004〕〔3〕《公路钢结构桥梁设计标准〔报批稿20130419修改版〕》〔JTG D64-201X〕〔4〕《公路钢筋混凝土及预应力混凝土桥涵设计标准》〔JTG D62-2004〕〔5〕《公路桥涵施工技术标准》〔JTG/T F50-2011〕〔6〕《公路桥梁抗风设计标准》〔JTG/T D60-01-2004 〕〔7〕《公路桥梁抗震设计标准》〔JTJ 004-89〕〔8〕《公路桥梁抗震设计细则》〔JTG/T B02-01-2008〕〔9〕《桥梁用结构钢》〔GB/T 714-2000〕〔10〕《公路工程结构可靠度设计统一标准》〔GB/T50283-1999〕〔11〕《公路工程质量检验评定标准第一册土建工程》〔JTG F80.1-2004〕〔12〕《公路工程质量检验评定标准第二册机电工程》〔〕〔13〕日本《道路桥示方书》主梁及联结系:Q345钢材,52.0610E MPa =⨯,37850/kg m ρ=。
拼接节点设计计算书计算依据:1、《钢结构设计规范》GB50017-2003一、基本参数计算简图:高强螺栓布置图(十排)二、连接节点计算螺栓强度等级8.8级高强螺栓型号M20一个高强度螺栓的预拉力P(kN) 125 摩擦面的抗滑移系数μ0.45连接板材质Q345 节点域腹板抗剪强度设计值τ(N/mm2) 170 最外排螺栓至螺栓群形心距离:e fh=∑e f/2=(50+50+60+60+70+70+80+80+90+90+100)/2=400mm每排螺栓至螺栓群形心距离的平方和:∑e f2=e fh2+e fh2+(e fh-e f3-e f5)2+(e fh-e f4-e f6)2+(e fh-e f3-e f5-e f7)2+(e fh-e f4-e f6-e f8)2+(e fh-e f3-e f5-e f7-e f9)2+(e fh-e f-e f6-e f8-e f10)2+(e fh-e f3-e f5-e f7-e f9-e f11)2+(e fh-e f4-e f6-e f8-e f10-e f12)2=4002+4002+(400-50-60)2+(400 4-50-60)2+(400-50-60-70)2+(400-50-60-70)2+(400-50-60-70-80)2+(400-50-60-70-80)2+(400-50-60-70-80-90)2+(400-50-60-70-80-90)2=629200mm2螺栓承受的拉力:N t1=M×e fh/(2×∑e f2)=90×103×400/(2×629200)=28.608kNN t2=M×(e fh-e f3-e f5)/(2×∑e f2)=90×103×(400-50-60)/(2×629200)=20.741kNN t3=M×(e fh-e f3-e f5-e f7)/(2×∑e f2)=90×103×(400-50-60-70)/(2×629200)=15.734kNN t4=M×(e fh-e f3-e f5-e f7-e f9)/(2×∑e f2)=90×103×(400-50-60-70-80)/(2×629200)=10.013kN N t5=M×(e fh-e f3-e f5-e f7-e f9-e f11)/(2×∑e f2)=90×103×(400-50-60-70-80-90)/(2×629200)=3.576kN中和轴以下螺栓所受力大小与以上各值相等,但均为压力单个螺栓受拉承载力设计值:N t b=0.8P=0.8×125=100kNN t=28.608kN≤N t b=100kN满足要求!受拉力最大螺栓的抗剪承载力设计值为N v b=0.9n fμ(P-1.25N t)=0.9×1×0.45×(125-1.25×28.608=36.142kN若剪力按螺栓群平均承担则单个螺栓承受的剪力为N v=V/(2n)=15/(2×10)=0.75kNN v=0.75<N v b=36.142N v/N v b+N t/N t b=0.75/36.142+28.608/100=0.307≤1满足要求!三、端板支撑验算计算简图:端板支撑条件节点域腹板剪应力:τ=M/(d b×d c×t c)=90×106/(700×150×8)=107.143N/mm2≤[τ]=170N/mm2满足要求!端板所需厚度:t≥(6×e f×e w×N t/((e w×b+2e f×(e f+e w))×f))0.5=(6×50×100×28.608×103/((100×350+2×50×(50+100))×215))0.5= 8.935mmt≥(12×e f×e w×N t/((e w×b+4e f×(e f+e w))×f))0.5=(12×50×100×28.608×103/((100×350+4×50×(50+100))×215))0.5= 11.083mm t≥(3×e w×N t/((0.5a+e w)×f))0.5= (3×100×28.608×103/((0.5×206+100)×215))0.5= 14.023mm。
MathCAD计算说明书基础部分 (2)LESSON 1:MathCAD工具栏及面板 (7)LESSON 2:使用MathCAD工作区域 (9)LESSON 3:输入数学和文本 (10)LESSON 4:定义变量 (13)LESSON 5:定义函数 (14)LESSON 6:建立数学表达式 (16)LESSON 7:编辑表达式 (18)LESSON 8:定义变量范围 (19)LESSON 9:定义矢量和矩阵 (22)LESSON 10:单位运算 (26)算例 (28)基础部分Mathcad 的特点:Mathcad 是唯一的一个在同一张工作表集合了数学公式、数字、文本和图表的功能强大的工程应用工具。
和其它数学软件不同的是,Mathcad 是用和您一样的方式做数学。
那是因为它的操作界面就像是铅笔和纸张。
Mathcad 的操作界面就是一个空自的工作区域,您可以在上面直接输入公式、图表或者是方程式,而且可以在任意的地方插入文字注解。
不像有些数学软件需要您会使用某种相关的语言,Mathcad 可以让您直接使用自然数学语言来进行工作。
比如,在一个程序语言中,等式输入应该是这样:x = (-B + SQRT ( B * * 2 -4 * A * C ) ) / ( 2 * A )在Mathcad 中,输入同样的等式就同您在参考书中看到的一样:唯一的区别在于Mathcad 中的等式和图表是活的。
改变其中的任意一个数据、变量或者等式,Mathcad 就立到重新计算这些数学公式和画图。
在Mathcad 的帮助下,您可以解决许多的技术问题― 从简单的到非常复杂的数值或符号运算。
您可以利用兰维或三维图形使等式和数据显性化。
利用Mathcad 电子书,您也可以得到许多数学知识和相关的参考资料,并且都可以在您的工作表中直接使用的。
最重要的是,Mathcad 的强大的功能可以帮助您完成您的工作。
利用M athcad ,您可以钻研问题、形成新的概念、工作表、分析数据和模型并检验备选方案以作出最好的选择,而且可以记录、显示和交流这些结果。
一、设计条件:钢材强度设计值f=20.5(10N/mm 2)钢材抗剪强度设计值f v =12.0钢材屈服强度值fy=22.5(10N/mm 2)连接板抗拉强度最小值:f u=37.5梁截面高H=70.0(cm)翼缘宽B=60.0腹板厚tw=2.0(cm)翼缘板厚t f =3.0摩擦系数µ=0.45双剪螺栓直径Φ=2.4梁腹板螺栓间距d1=10.0(cm)螺栓预拉力P=125.0梁腹板螺栓边距d2=7.0(cm)连接板极限承压强度f cu b =56.3螺栓强度设计值f tb =50.0(10N/mm 2)螺栓有效面积A e bH =3.53104.0(10N/mm 2)翼缘螺栓距离翼缘端e=5.50计算长度l b =500.0(cm)型钢圆弧半径r=2.0设计参考资料:《钢结构节点手册》、《钢结构设计规范》、《抗震规范》二、拼接连接计算:153.0[计算过程:0.85*F6*F7]108.8[计算过程:0.85*(C6-2*F7)*C7]101.3[计算过程:0.9*2*C8*F9]31.0取n F ac=[计算过程:F17*C4/F21]6.0螺栓列数n2:12.9取n W ac =[计算过程:F19*F4/F21]5.0螺栓列数n4:-10.000.00大于3行的扩展x =大于6行的扩展x =-20.00-10.00大于3列的扩展y=10.0020.00大于6列的扩展y=大于9列的扩展y=54.0[计算过程:(E29-1)*C9+2*C10]框架柱等强度连接抗震设计钢柱截面为BH600x700x20x30(r=20),钢材为Q235,抗震设防烈度为8度,采用10.9级高强螺栓摩擦型连接。
螺栓采用M20,摩擦用喷砂处理。
节点位置详见布置高强螺栓抗拉强度f u bH=1、净截面面积估算:《手册》P236: 单侧翼缘面积估算:A n a F =0.85*B*t f=腹板面积估算:A n aw =0.85*(H-2*t f )*t w =单个螺栓抗剪承载力设计值:Nv bH=0.9*n f *µ*P=螺栓数目估算:单侧翼缘螺栓估算:n F a c = A n a F ×f/ N v bH=螺栓行数n1:腹板螺栓估算:n W a c = A n a W ×f v / N v bH=螺栓行数n3:(行)腹板螺栓距离螺栓群中心距离x 1=(列)腹板螺栓距离螺栓群中心距离y=腹板拼接连接板的高度H 3=(n 3-1)*d 1+2*d 2=1.8(cm), 取t 1=60.0(cm) 取B 2=27.0(cm), 取B 2=2.2(cm), 取t 2=[计算过程:F6*F7/(4*G57)+0.5]1.3(cm), 取t 3=[计算过程:0.5*C7*(C6-2*F7)/F37+0.1]1)梁未消弱截面特性:491.4(cm 2)[计算过程:C7*(C6-2*F7)+2*F6*F7+(4*F13^2*(1-PI()/4))]I 0x c=447970.7(cm 4)W 0x c=12799.2[计算过程:1/12*(F6*C6^3-(F6-C7)*(C6-2*F7)^3)][计算过程:C68/(0.5*C6)]2)螺栓孔的特性:105112.8(cm 4)[计算过程:1/12*((F8+0.2)*C6^3-(F8+0.2)*(C6-2*F7)^3)*E26]5214.6(cm 4)1/12*((F8+0.2)*C6^3-(F8+0.2)*(C6-2*F7)^3)*E26平行移轴公式110327.4(cm 4)3)扣除螺栓孔后梁截面特性:337643.29646.9133.2[计算过程:F6*F7-E26*F7*(F8+0.2)]102.0[计算过程:C7*(C6-2*F7)-E29*C7*(F8+0.2)]197762.5(kN*m)1224.0(kN)[计算过程:F80*C4][计算过程:F84*F4]29.2<36[计算过程:E87/((C6-F7)*F21)]可得:(n Fb < n Fac)设计满足12.1<20[计算过程:E88/F21]可得:(n wb < n W ac )设计满足(cm 2)[计算过程:(E56-E26*(F8+0.2))*G55][计算过程:G57*G58*2-(F8+0.2)*E26*G58]《手册》8-21:可得:(A nF PL >A nF b )设计满足(cm 2)164.02、连接板厚度估算:《手册》8-25:翼缘外侧连接板t 1=0.5*t f +0.3=翼缘外侧连接板宽度取为B1=翼缘内侧连接板宽度B 2=(B-t w )/2-r=《手册》8-26:若面积相等则厚度t 2=B*t f /(4*B 2)+0.5=《手册》8-28:腹板两侧连接板t 3=t wb *h wb /(2*h 3)+0.1=3、梁截面特性:A 0c=t w *h w +2*B*t f =翼缘板螺栓孔截面惯性矩I xr1c=腹板螺栓孔截面惯性矩I xr2c=螺栓孔截面惯性矩I xr c =I xr1c +I xr2c=梁扣除螺栓孔后的净截面惯性矩I nx c =I 0x c -I xr c=梁扣除螺栓孔后的净截面抵抗矩W nx c=I nx c/0.5H=梁单侧翼缘的净截面积A nF b=B*t f -n 1*t f *(Φ+0.2)=梁腹板的净截面面积A nw b=tw*(H-2*tf)-n3*tw*(Φ+0.2)=4、梁的拼接连接按等强度设计法设计内力值M n b = W n b ×f=V n b = A nw b×f v =5、校核估算螺栓数《手册》8-6:n Fb = W n b ×f/[(H b -t Fb )N V bH]=《手册》8-7:n Wb = A nw b ×f v / N V Bh=6、拼接连接板的校核1) 净截面面积的校核梁单侧翼缘连接板的净截面面积:A nF PL 翼缘外侧联结板扣除螺栓孔后净截面面积:A nF1PL=(B 1-n 1*(Φ+0.2))*t 1=翼缘内侧联结板扣除螺栓孔后净截面面积:A nF2PL=(B 2-0.5n 1*(Φ+0.2))*t 2*2=A nF PL =A nF1PL +A nF2PL=腹板拼接连接板的净截面面积A nW PL A nW PL =(H 3-n 3*(Φ+0.2))*t 3*2=[计算过程:手动计算栓摩擦型连接。