五星级酒店客房电气配置共17页
- 格式:ppt
- 大小:354.50 KB
- 文档页数:17
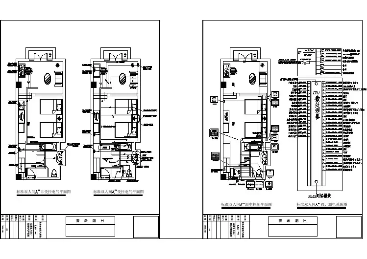
建筑电气——五星级酒店电气设计标准参考(二)七、客房内电气设备控制1、当钥匙卡插入取电开关时,整个客房系统处于被客人控制的状态,客人可以根据需要使用客房内所有的用电设备。
这时,系统自动进入“迎宾”场景,打开灯光并自动调节亮度,使人感到“宾至如归”的温馨。
取出钥匙卡,系统进入“离开”模式,灯光关闭,电源插座断电(杜绝用电危险);2、卫生间设SOS紧急求助按钮;3、在客房内的场景面板上按下“请勿打扰”、“请稍候”、“清扫房间”等信息提示时,门口的门铃显示开关显示相关的信息,同时上传给服务中心;4、总统套房内设置彩色触控屏,控制房间内所有的电气设备、查询酒店提供的各种服务、呼叫预定各种服务(如呼叫服务员、点餐、租车、预定服务等)。
八、应急照明1、应急照明设置在公共走道、疏散通道、人员众多地点、宴会厅、餐厅、厨房、后勤员工区、大办公室、前台等处。
2、客房进门处小走廊处应有一个地脚灯,由柴油发电机供电,无论任何原因,客房停电时,该灯均应自动点亮。
3、餐饮包房、会议室、SPA包房进门处应有一应急灯(由自带蓄电池供电)。
4、安全出口指示灯和疏散指示灯自带蓄电池,疏散照明灯由EPS 供电,EPS分层设置,容量按1.5W/m2设计。
每个EPS所带客房层的层数不宜超过三层,裙房每层设置一个EPS。
5、应急照明应考虑平时使用,平时纳入智能照明控制系统控制,火灾时由消防联动系统强制点亮。
九、消防1、防火剩余电流动作报警系统在末端配电箱设一级保护监测点。
2、消防线路的导线(电缆)选择消防设备的供电线路采用耐火电缆,消防设备的信号和控制线路采用阻燃电缆或导线。
3、消防值班室消防值班室通常和安防值班室共用;消防值班室应安装VRV空调或分体空调;酒店弱电设计标准一、总则弱电设计应包括以下系统安全防范系统(含入侵报警系统、视频安防监控系统、出入口控制系统、电子巡更系统、停车场管理系统);有线电视和卫星电视系统;背景音乐和广播系统;建筑设备监控系统;通信网络系统(含有线电话系统、计算机网络系统、手机无线信号放大系统、无线寻呼对讲系统);综合布线系统;信息发布系统;IC卡门锁系统;酒店管理系统;二、安全防范系统1、闭路电视监控系统:各建筑物的出入口雨棚下、入口处、电梯厅、电梯轿厢内、公共通道、地下车库、财务室、大堂接待台、行李房、贵重物品储藏间、IT机房、财务室等处设置摄像机进行实时监控。
【很干货】五星级酒店电气设计标准,收藏了酒店强电设计标准一、不同业态用电技术指标:(按5万平米酒店为例)序号业态类别用电指标(用于区域开关选择)1 燃气厨房800W/m2;(宴会厅厨房为1000W/m2)2 厨房冷库粗加工厨房冷库为40kW;全日餐厅、中餐厅、宴会厅餐厅厨房冷库为20 kW。
3 地下车库15 W/m24 标准客房 3.5kW/套5 普通套房 5.5kW/套6 行政套房15kW/套7 总统套房30kW/套8 厨房粗加工50kW9 厨房面包房85kW10 垃圾间5kW11 大堂吧30kW12 宴会厅临时展览灯光250kW(不计入变压器总负荷)13 行政酒廊50kW14 洗衣房120kW15 AV控制室20kW16 宴会厅舞台灯光80kW17 SPA(桑拿)80kW18 屋顶擦窗机15kW19 室内游泳池30kW二、高压供电1、从当地市政取得两路10kV电源供电,每路电源容量应满足100%变压器安装容量,互为备用;2、高压电源的进线方式、保护方式、计量方式及对土建的要求应符合当地供电局的规定。
3、容量在1000kVA及以下的变压器,高压柜选用六氟化硫开关柜,1000kVA以上的变压器,高压柜选用真空断路器柜。
三、低压配电1、低压配电室应预留安装配电监控系统监控柜的位置;2、照明配电和动力配电尽量分开,以减少动力设备对照明供电的影响。
3、冷冻机组及其水泵由单独的变压器供电,以减少对照明供电的影响。
4、谐波处理:宴会厅调光设备处设有源滤波器,无功补偿柜内设置合适的电抗器。
5、客房区配电采用分开干线形式,即客房为单独干线、公共区(走廊、电梯前厅等)为单独干线。
6、各楼层及功能分区,应根据防火功能及使用要求,分设区域总配电箱柜。
根据负荷性质,可分为普通照明配电箱AL、应急照明配电箱ALE、普通动力配电箱AP、应急动力配电箱APE、必保配电箱(如冷库等)。
7、当酒店低于十层时,配电室至普通客房层采用电缆作为配电干线;酒店层数大于、等于十层时,采用封闭母线作为配电干线,每一条封闭母线所带楼层不应超过十层。
五星级酒店电气设计要点供电方案2.8酒店重要区域供电方案选用表1)01方案:一路市电由变电所引来+一路发电机电源由变电所确保母线引来,末端设双电源切换箱2)02方案:一路发电机电源由变电所确保母线或区域确保总配电柜引来,末端不设双电源切换箱3)03方案:一路市电由区域普通照明配电箱引来+发电机电源由区域确保总配电柜引来,末端设双电源切换箱4)04方案:一路市电由变电所或区域普通照明总配电柜引来,不设双电源切换箱压柜进出线断路器应标明瞬时整定电流值,且分断能力应合理。
低压柜出线回路250A 以上采用电子脱扣器,250A及以下采用热磁或者单磁。
低压配电塑壳及框架断路器:应按规范要求选择对应等级的壳架电流断路器。
按断路器设置点短路电流选择相应分断能力,不应盲目加大。
除有特殊要求外,原则上选用热磁脱扣器。
电机控制:对水泵、风机类设备启动及控制,11kW以下电动机采用直接启动,11kW以上电动机采用降压启动。
原则上不使用软启动器,尽量采用断路器、交流接触器、热继电器组合的传统方式,作为电机类设备启动、保护用。
(功率要求这么小??)穿导管的绝缘电线(两根除外),其总截面积(包括外护层)不应超过管内截面积的40%。
线槽内电线或电缆的总截面不应超过线槽内截面的20%。
控制、信号或与其类似的线路,电线或电缆的总截面不应超过线槽内截面的50%。
应急电源负荷配置方式表发电机负荷及供电回路应符合规范要求,符合保安和生命安全要求,以及满足酒店基本经营和减少相关损失的要求,较重要负荷包括但不限于这些负荷:1、所有消防用电负荷——包括应急照明、消防泵房、楼梯间正压送风机、消防排烟风机、消防电梯、消防卷帘门动力、消防控制室等。
2、变配电室的照明负荷、发电机房的照明和油泵动力负荷、电梯的照明及后备电源、其他主要机房的照明负荷。
3、航空障碍灯。
4、安监系统、通信系统的消防监控中心、弱电机房、有线及卫星电视机房、宴会厅声光控制室等重要机房的全部应急供电。
5星级酒店的供电负荷标准
5星级酒店的供电负荷标准通常根据酒店的规模和设施来确定,以下是一般的供电负荷标准:
1. 酒店客房:每个客房通常配置有照明、空调、电视、冰箱、电热水壶等电器设备。
根据客房数量和设备功率,计算客房区域的总负荷。
2. 公共区域:包括大堂、餐厅、会议室、健身房、游泳池等公共设施。
公共区域的负荷主要来自照明、空调、电梯、电视、音响设备等。
3. 厨房和餐饮设施:包括厨房、餐厅、酒吧等。
厨房通常有大型电炉、冰柜、蒸烤箱等设备,对供电负荷要求较高。
4. 会议和宴会设施:大型会议厅和宴会厅需要供电支持音响、投影设备、灯光等设备。
5. 其他服务设施:如酒店车库、洗衣房、员工休息区等,也需要考虑相应的供电负荷。
供电负荷标准的具体数值会根据不同地区和国家的电力规定和酒店标准而有所不同。
高级宾馆标准客房强、弱电配置.txt6宽容润滑了彼此的关系,消除了彼此的隔阂,扫清了彼此的顾忌,增进了彼此的了解。
高级宾馆标准客房强、弱电配置2005-6-16冯蔚唐森骑随着经济的不断发展,我国各大、中型城市中,四星、五星级标准的宾馆酒店不断地建成及投入使用。
在整个宾馆电气设计项目中,客房的标准双人间、单人间的电气设计是比较重要的一个部分,同时又是不同于其他建筑空间的部分。
以前标准不是很高的宾馆,在客房系统中较多地采用床头柜控制系统,所有房灯、强电插座及各种弱电插座的控制均集中于客房床头柜前,但是经过多年的使用,发现其节电的效果并不十分明显,而且由于太多的强、弱电线路统一集中在一起,床头柜控制面板按钮的反复使用,其故障、维修率较高,造成客人入住时的不便,同时又不能为业主节约成本。
近年来,我国新建成或在建的不少高标准的宾馆、酒店,均聘请了境外大型的酒店管理公司对宾馆进行运营管理,由此带来了不少国外先进的管理及运营方式,在机电方面也有不少更新的内容,下面作一个简单介绍。
1、电源:每套客房由两路电源供电,一路正常电源回路,另一路为应急电源回路供应急灯(此应急电源应由发电机供电及双电源切换回路引来:如发电机容量有限,可考虑使用小容量EPS电源,据每层客房的套数、几层设置一个EPS电源)。
每个标准客房至少有一只灯是接入应急供电回路,通常放在小走廊进门处。
当正常电源故障时,切换于应急电源点亮应急灯。
有两种做法都不需要在客房内设开关:A.灯具内设两个灯头,其中一个为应急灯,连接应急电源回路,平时不亮;B.专门的灯具配应急灯连接应急电源,可选小瓦数灯泡。
平时不亮,由楼层强电间切换。
2、进门钥匙开关A、该开关应有延时功能。
B、客房电源状态监视和空调节能控制可以利用节能钥匙牌的状态,通过BA系统在总台电脑反映客人是否在房;如不在房,由BA系统控制房内风机盘管处于低档运行,达到节能的目的。
C、所有照明灯,卫生间排气扇,开水壶插座,风机盘管均受钥匙开关控制,未列入的均不受控。
五星酒店客房机电系统配置要求五星级酒店是高档酒店的代表,客房的设计和配置直接影响到客人的住宿体验。
客房机电系统是指电气、暖通和智能化系统,下面是五星级客房机电系统配置的一些建议和要求。
电气系统方面,五星级酒店客房需要提供可靠的电力供应,确保客人的日常生活和工作所需的电力。
一般来说,每个客房都应该配备至少两个插座,为客人提供足够的电源。
此外,五星级酒店应该提供免费的Wi-Fi网络,并在每个客房安装有线网络接口,以满足客人的上网需求。
暖通系统方面,五星级酒店需要在客房内提供舒适的温度和空气质量。
建议在每个客房都安装空调系统,使客人能够根据个人需求调节室内温度。
此外,应该保证每个客房都有通风设施,以保证空气的流通与新鲜。
智能化系统方面,五星级酒店应该提供智能化的客房体验。
每个客房都应该配备智能化控制系统,让客人可以通过手机或者智能设备来控制房间的电器设备。
此外,酒店应该提供智能化的安防系统,包括摄像头、门禁系统和报警器,以保障客人的安全。
除了以上的几个主要配置要求外,五星级酒店客房的机电系统还应考虑以下一些附加要求:-抗干扰能力:客房的电气系统应具有较强的抗干扰能力,以避免来自外界的电磁干扰对客人使用电器设备产生影响。
-能耗控制:五星级酒店应该考虑环保和节能的问题,客房的机电系统应该具有一定的能耗控制能力,例如自动关灯、自动调节温度等功能。
-照明设计:五星级酒店客房应该有合理的照明设计,明暗部分适度过渡,避免给客人带来不适感。
-远程管理:酒店管理人员应该能够通过远程管理系统对客房的机电设备进行监控和控制,从而及时调整和处理故障。
总之,五星级酒店客房的机电系统配置要求较高,需要提供可靠的电力供应、舒适的温度和空气质量、智能化的客房体验等。
同时,还应考虑抗干扰能力、能耗控制、照明设计和远程管理等要求,以提供给客人一个舒适、便捷、安全和环保的住宿环境。
五星级酒店电气设计要点供电方案2.8酒店重要区域供电方案选用表1)01方案:一路市电由变电所引来+一路发电机电源由变电所确保母线引来,末端设双电源切换箱2)02方案:一路发电机电源由变电所确保母线或区域确保总配电柜引来,末端不设双电源切换箱3)03方案:一路市电由区域普通照明配电箱引来+发电机电源由区域确保总配电柜引来,末端设双电源切换箱4)04方案:一路市电由变电所或区域普通照明总配电柜引来,不设双电源切换箱压柜进出线断路器应标明瞬时整定电流值,且分断能力应合理。
低压柜出线回路250A 以上采用电子脱扣器,250A及以下采用热磁或者单磁。
低压配电塑壳及框架断路器:应按规范要求选择对应等级的壳架电流断路器。
按断路器设置点短路电流选择相应分断能力,不应盲目加大。
除有特殊要求外,原则上选用热磁脱扣器。
电机控制:对水泵、风机类设备启动及控制,11kW以下电动机采用直接启动,11kW以上电动机采用降压启动。
原则上不使用软启动器,尽量采用断路器、交流接触器、热继电器组合的传统方式,作为电机类设备启动、保护用。
(功率要求这么小??)穿导管的绝缘电线(两根除外),其总截面积(包括外护层)不应超过管内截面积的40%。
线槽内电线或电缆的总截面不应超过线槽内截面的20%。
控制、信号或与其类似的线路,电线或电缆的总截面不应超过线槽内截面的50%。
应急电源负荷配置方式表发电机负荷及供电回路应符合规范要求,符合保安和生命安全要求,以及满足酒店基本经营和减少相关损失的要求,较重要负荷包括但不限于这些负荷:1、所有消防用电负荷——包括应急照明、消防泵房、楼梯间正压送风机、消防排烟风机、消防电梯、消防卷帘门动力、消防控制室等。
2、变配电室的照明负荷、发电机房的照明和油泵动力负荷、电梯的照明及后备电源、其他主要机房的照明负荷。
3、航空障碍灯。
4、安监系统、通信系统的消防监控中心、弱电机房、有线及卫星电视机房、宴会厅声光控制室等重要机房的全部应急供电。
星级酒店供配电系统配置及要求一、高低压供电、应急发电机组、照明系统、应急照明、不间断电源:如某工程地上建筑用电容量平均按每平方米100w 估算,则设备容量Pe=1611kw Pe=1611kw,取的需要,取的需要系数,地下室用电容量平均按每平方米80w 估算,则地下室设备容量Pe=306kw Pe=306kw,,合计Pe=1917kw, 取的综合需要系数,计算视在容量Sj=1704KVA Sj=1704KVA,,需两台1000KVA 变压器,变压器负载率约为77%.基本符合使用要求基本符合使用要求..酒店估算总设备容量为1534KW 1534KW,其中照明用电容量,其中照明用电容量448KW 448KW,动力用电容量,动力用电容量575KW 575KW,空调用,空调用电容量511KW 511KW;;变压器低压侧单母线分段,分段母线之间设联络开关,手动切换。
采用低压侧集中补偿方式,功率因数自动补偿到以上。
1.1.高低压供配电系统高低压供配电系统(1)设备的布置和配置要确保在故障情况下能用最短的时间恢复供电,能提供便捷的维修、保养和测试条件。
(2)高压变配电系统应装设可靠的连锁装置和闭锁装置,防止可能的误操作。
(3)变压器采用高效低耗型干式变压器,变压器采用高效低耗型干式变压器,变压器配属二路不同的高压进线,变压器配属二路不同的高压进线,变压器配属二路不同的高压进线,变压器应有变压器应有3030%的余量,应能满足并联运行。
%的余量,应能满足并联运行。
(4)低压配电系统应设置联络装置和相应的连锁装置,为检修、测试创造条件,同时防止可能的误操作。
(5)中央空调采用单独的变压器,其余负荷由二路高压电源分别配属的其它变压器供电,两路电源在低压侧可通过低压联络开关进行切换。
(6)(6)低压照明、低压照明、插座等单相电源应均匀分布到三相电源中,以确保三相不平衡度<以确保三相不平衡度<151515%%(7)低压侧需配置能自动投切的无功功率补偿装置,该装置的容量应确保在设计最大负荷满负载运行时,荷满负载运行时,cos cos cosφ>。
五星酒店客房机电系统配置要求随着人们对旅游和度假需求的增加,五星级酒店作为高档旅馆和度假村的代表,需要提供高品质的服务和舒适的住宿环境。
客房机电系统的配置是一个关键要素,它为客人提供充足的电力和智能化控制,以保证他们的满意度和舒适度。
以下是五星级酒店客房机电系统配置的一些要求。
1.电力供应系统:五星级酒店的客房需要提供稳定和可靠的电力供应。
酒店应配置独立的电力系统,包括备用发电机和自动切换设备,以确保客房内的所有电子设备都能正常运行,即使在停电情况下也能提供紧急电力支持。
2.照明系统:五星级酒店的客房应配置先进的照明系统,包括节能灯具、智能照明控制系统和感应器。
通过智能化的照明控制系统,客人可以根据自己的需求调节光线的亮度和颜色,以创造一个舒适和温暖的氛围。
感应器可以用于自动控制照明,当客人进入或离开房间时,照明系统可以自动开启或关闭,提高能源的利用效率。
3.空调系统:五星级酒店的客房应配置先进的空调系统,以提供舒适的室内温度。
空调系统应具备智能温控功能,客人可以通过面板或遥控器调整室内温度,满足个人的需求。
此外,空调系统还应具备高效的能源管理功能,以降低能耗,并为环境保护作出贡献。
4.通风系统:五星级酒店的客房应配置有效的通风系统,以实现新风的供应和室内空气的循环。
通风系统应具备可调节的风速和方向功能,为客人提供新鲜和舒适的室内空气。
此外,通风系统还应具备过滤功能,对室内空气进行净化,提供洁净的居住环境。
5.智能家居系统:五星级酒店的客房应配置智能家居系统,提供一键控制和远程控制的功能。
客人可以通过智能手机或平板电脑控制客房内的灯光、空调、电视和音响等设备,实现个性化的舒适设置。
此外,智能家居系统还可以与酒店其他设施进行联动,例如智能门锁和自动窗帘,提供更加便利和安全的居住体验。
6.多媒体系统:五星级酒店的客房应配置先进的多媒体系统,包括高清电视、音响和投影设备等。
客人可以通过多媒体系统观看电影、收听音乐或进行视频会议等活动,享受高品质的娱乐和沟通体验。