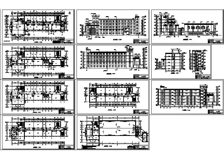
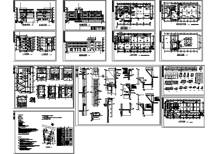
0.51.1.1.51.59.14.1-1四层电气平面图三建 筑电 气给 排 水结 构暖 通1:1001%1%1:21:21%1%1%1%1%1%1%15.3501%~1:1001%1%1%1:21:21%1%1%1%办公室办公室办公室上下办公室办公室办公室男卫办公室办公室1:1001%办公室办公室办公室3.600办公室下上办公室办公室办公室男卫办公室办公室1:100一层电气平面图1%上残疾人坡道-0.3001:12办公室办公室-0.015男卫办公室办公室办公室下上办公室办公室办公室办公室办公室开水间开水间办公室3.600会议室下上办公室上办公室办公室办公室开水间女卫女卫女卫012米处予留40x4米 1.21镀锌扁钢在在重复接地处相连外,其余全部分开说明基础接地平面图15169101213141132156478引线标记管内穿线根数n暗暗暗暗暗暗暗暗暗所有正常不带电的金属外壳均与TN-C-S,接地系统为与保护线N,工作零线PE保护接地线连接PE接地装置及接地极引线。建筑物金属构件,金属结构;c>d>进线配电箱母排;a>公共设施金属管道;b>箱底距地接地采用镀锌圆钢引上012序号序号4132新新AP86Z13A-16AP86K21-10AP86K31-10AP86K41-10三位单极开关二位单极开关四位单极开关kF新新新新AP86Z223A-10AP86Z223<F>-102x40w1x40w图 名新1X40W1X40W吊管节能单管日光灯铁制配电箱图例说明说明电施电施电施电施图号04010302图别吊管节能单管日光灯吸顶灯带红外线开关吸顶灯应急感应吸顶灯一位单极开关hE1X40W吊管安装方式图 幅1#吊管配电系统图吸顶吸顶吸顶AP86K11-10利用桩柱作垂直接地体。镀锌扁钢沿基槽内敷设一周,要求埋深为/40X41.0m,总等电位接线箱.镀锌扁钢引至电表箱接地