S03-2Q093避雷针构造图
- 格式:dwg
- 大小:144.03 KB
- 文档页数:1
管式避雷器结构排气式避雷器通称管型避雷器,由产气管、内部间隙和外部间隙三部分组成。
管式避雷器实际是一种具有较高熄弧能力的保护间隙,它由两个串联间隙组成,- -个间隙在大气中,称为外间隙,其工作就是隔离工作电压,避免产气管被流经管子的工频泄露电流所烧坏;另- -个装设在气管内,称为内间隙或者灭弧间隙。
排气式避雷器具有残压小的突出优点,且简单经济,但动作时有气体吹出,因此只用于室外线路,变配电所内一般采用阀式避雷器。
2、管式避雷器。
管式避雷器的灭弧能力与工频续流的大小有关,原理结构见下3、阀式避雷器。
阀式避雷器是由空气间隙和一个非线性电阻串联并装在密封的瓷瓶中构成的。
在正常电压下,非线性电阻阻值很大,而在过电压时,其组织又很小,避雷器正是利用非线性电阻这--特性而防雷的:在雷电波侵入时,由于电压很高(即发生过电压),间隙被击穿,而非线性电阻阻值很小,雷电流便迅速进入大地,从而防止雷电波的侵入。
当过电压消失之后,非线性电阻阻值很大,间隙又恢复为断路状态。
随时准备阻止雷电波的入侵。
3、阀式避雷器。
阀式避雷器的构造主要由瓷质绝缘套管、火花间隙和阀片电阻等元件组成。
避雷器的工作原理及结构3、阀式避雷器。
阀式避雷器其主要元件及作用是:(2)阀片电阻:是由金刚砂和水玻璃等混合后经模型压制成饼状。
它具有良好的伏安特性,当电流通过阀片电阻时,其电阻甚小,产生的残片(火花间隙放电以后,雷电流通过阀片电阻泄入大地,并在阀片电阻上产生- -定的电压降)不会超过被保护设备的绝缘水平。
当雷电流通过后,其电阻自动变大,将工频续流值限制在80A以下,以保护火花间隙可靠灭弧。
总之,阀式避雷器的工作原理是,当线路正常运行时,避雷器的火花间隙将线路与地隔开,当线路出现危险的过压时,火花间隙即被击穿,雷电流通过阀片电阻泄入大地,从而起到了保护电气设备的目的。
避雷器的参数、作用、原理和结构避雷器避雷器是保证电力系统安全运行的重要保护设备之一,主要用于限制由线路传来的雷电过电压或由操作引起的内部过电压。
一旦出现不正常电压,避雷器产生作用,起到保护作用。
氧化锌避雷器是在20世纪70年代出现的--种新型避雷器,它具有无间隙、无续流、残压低等优点。
已经成为取代阀型避雷器、磁吹阀式避雷器的新一-代产品,在电力系统广泛使用。
陶瓷绝缘避雷器复合绝缘避雷器避雷器型号意义避雷器的主要性能参数及代表意义避雷器的铭牌意义避雷器的基本要求为了可靠地保护电气设备,使电力系统安全运行,需满足以下要求:避雷器的伏秒特性与被保护设备的伏秒性要正确配合,即避雷器的冲击放电电压任何时刻都要低于被保护设备的冲击电压。
避雷器的伏安型应与被保护的电气设备正确匹配,即避雷器动作后的残余电压低于被保护设备通过相同电流时所能承受的电压。
避雷器的灭弧电压应与安装地点的最高工频电压正确配合,使避雷器在系统发生相间接地故障时也能可靠运行为防止避雷器爆炸,采用工频连续电流灭弧。
当过电压超过一定值时,避雷器将放电并使导线变直通过电阻来限制过电压。
过电压过电压的定义、分类及危害(1)什么是过电压?电力系统正常运行时,电气设备的绝缘低于电网的额定电压。
由于雷击、运行、故障或参数配合不当等原因,电力系统某些部位的电压可能会升高,有时会大大超过正常状态下的电压值。
这种电压上升称为过电压。
过电压过电压的类型和危害(2)过电压分为内部过电压和大气过电压。
内部过电压:由于操作(合闸、合闸)、事故(接地、短路、断开等)或其他原因,使电力系统状态发生突然变化,可能对系统造成危险过电压的过渡过程。
这些过电压是由系统中电磁能量的振荡和积累引起的,称为内部过电压。
内部过电压可分为工频过电压、操作过电压和谐振过电压。
大气过电压:是由于雷暴季节雷暴云在空气中带电引起的。
雷暴及其附近的地面感应带电体和地面上的一些导电电荷相结合产生不均匀电荷。
避雷器避雷器的作用当雷电过电压沿架空线路侵入变配电所或其他建筑物内时,将发生闪络,甚至将电气设备的绝缘击穿。
因此,假如在电气设备的电源进线端并联一种保护设备即避雷器,如图1,当过电压值达到规定的动作电压时,避雷器立即动作,流过电荷,限制过电压幅值,保护设备绝缘;电压值正常后,避雷器又迅速恢复原状,以保证系统正常供电避雷器的保护作用基于三个前提:1、伏秒特性与被保护绝缘的伏秒特性有良好的配合2、保证其残压低于被保护绝缘的冲击电气强度3、被保护绝缘必须处于该避雷器的保护距离之内避雷器的要求:1、正常运行时不放电,过电压时放电正确动作2、放电后要有自恢复功能避雷器的相关参数持续运行电压:即允许长期工作电压。
它应等于或大于系统的最高相电压。
额定电压(“KV”:最大工作电压(“弧灭火电压”)可在短时间内使用。
术语保险杠可以在工作电压下放电并关闭电弧。
访友脚印暂没有访客留下脚印!很久这是保护装置的特性和结构的基本参数和设计基础。
工作频率容许电压性能:指示性氧化锌抵抗在规定条件下过压的能力。
额定放电电流(“KA”:用于分离避雷器电平的放电电流峰值220KV 及以下系统不得超过5KA的剩余电压,也就是说,在冲击电流的影响下,避雷针两端产生的电压可以理解为避雷针两端所承受的最大电压。
避雷器的分类和结构用于阀型、管型、有限金属氧化物保护形式。
阀避雷针主要分为两大类:普通阀避雷针和磁性鼓风机避雷针。
Tic.Les普通阀避雷器是FS和FZ系列;磁性鼓风机避雷器是FCD和FCZ.Les阀式防雷装置模型中使用的符号如下:电力站:Y电路:D-旋转电机:C-with磁性鼓风机放电间隙。
阀挡板主要由串联连接到碳化硅电阻板(“阀板”)的平面火花空间构成,该平面火花空间安装在密封的陶瓷管中,并装有安装的连接螺栓。
在保险杠中,具有非线性特性,高电压强度和低电压强度。
一种阀式保险杠不能在正常工作电压下通过一个点火间隔穿孔,但在过压电压下通过一段点火间隔撞击保险杠。
1、吊装准备a 轴线、标高复查与放线,复核根据土建提供的基础基准轴线和标高点,以此为基准确定安装基准线。
避雷针吊装前,对避雷针的外形尺寸、方位等等,进行全面复核。
确认符合设计图纸要求后,划出避雷针上下两端的安装中心线和钢柱下端标高线.b 吊装前首先确定避雷针吊点位置为第四节处,用吊带捆绑避雷针,吊装时做好防护措施。
c 吊车站位后,应根据回转半径转杆、趴杆,检查是否抗杆。
d 设备吊装前,应掌握当地的天气预报,遇有大于五级的大风时,不得进行吊装作业。
2、正式吊装a本工程吊装主要是独立避雷针吊装,现场根据设计要求组合完毕吊车直接吊装。
b另外,避雷针采用螺栓连接,对每两节之间的螺栓连接质量设立停检点,确保避雷针安装质量,螺栓连接完毕后进行自检、互检合格方可进行吊装,否则整改。
螺栓全部安装就位后,可以开始紧固。
紧固方法一般分两步进行,即初拧和终拧。
应将全部螺栓进行初拧,初拧扭矩应为标准轴力的60%~80%,具体还要根据材料厚度、螺栓间距等情况适当掌握。
本工程钢材是Q235B故根据螺栓拧紧力矩技术标准拧紧力矩为225.6N.m初拧扭矩力度为人的臂力受到最大阻碍时为宜。
终拧时人的全身力气拧不动时为宜。
为了防止螺栓受外部环境的影响故一般初拧、终拧应该在同一时间内完成。
c吊车的选取:根据避雷针的自身重量40米高为3.55T、30米高为2.45T,以最大重量选择吊车的型号满足现场吊装要求故选择25T吊车,25T吊车主臂加副臂的高度能满足最大40米高度的要求。
3、现场参数金堤变:(吊车支点按照方案实施,现场线路与吊车有冲突时根据现场调整位置)1#避雷针安装时不受周围环境影响,吊车站在大门口处先把旧塔基拆除吊到门口外围进行拆散。
吊车四角支撑点全部支撑在大门口处,现场能满足支撑要求。
2#避雷针安装时吊车的北边安全距离为5米不能带电施工。
吊车支设时四角支撑点为南侧靠南墙、吊车北侧支撑在路边石北1米左右范围处。
3#避雷针安装时吊车的北边和东边安全距离为3米不能带电施工。
各种避雷针的结构及其防雷性能(一)十几年来我国防雷学者一直在进行"消雷器"、"排雷器"和"限流避雷针"的研究和讨论,促进了我国防雷事业的发展和进步。
其中关于用辩证唯物论的思想分析避雷针的防雷性能,如今有了较为充实的实验和理论基础。
综合国内外防雷专家的研究成果,笔者试图提出一个初步概论,与同行商榷,如有错误和不当之处欢迎大家批评指正。
1避雷针的引雷性能避雷针的防雷作用是它能把闪电从保护物上方引向自己并安全地通过自己泄入大地,因此,其引雷性能和泄流性能是至关重要的。
避雷针的引雷性能已有实验和理论分析如下:一个竖立在平地的避雷针其引雷空域如图1所示[1]。
其中简化包络线是一条抛物线,此线即为在正、负雷雨云下该避雷针的50%击针击地平均分界线。
图中小圈为空中各点实验放电统计数据,表示模拟实验下行先导的针尖位置,黑圈表示百分之百击针,白圈表示百分之百击地,黑白各半表示50%击针及击地。
雷击避雷针和地的放电强度与雷电极的极性有关:当雷的极性为正时,雷对避雷针的放电强度高于雷对地;当雷的极性为负时,雷对避雷针的放电强度略低于雷对地。
所以在同样电压下雷电极对针的放电距离R 与雷电极对地的放电距离H是不同的。
根据长间隙放电的实验数据大致有:雷电极为负、地为正时,k=R/H=1.1;雷电极为正、地为负时,k=R/H=0.8~0.9,图2为雷击针地分界面的理论分析图,据此可以求出雷击避雷针和地的理论分界线。
图中L为避雷针尖,其高度为h,P为雷电极头部,其对地高度为H,E 为雷电极正下方的投影点,L、P之间的距离为R。
当P点维持k等于某一常数在图面上运动时,其运动轨迹就是雷击避雷针和地的理论分界线。
分界线以y轴为中心旋转就是立体的分界面。
分界面内为雷击避雷针的空域,分界面以外为雷击大地的空域,分界面附近引下的雷击地面为散击区。
分界线有3种:k=0.9情况下其分界线为一椭圆;k=1.1情况下其分界线为一双曲线;k=1情况下其分界线为一抛物线,后者为一般分析避雷针接闪性能的理论基础,它是正负雷击情况的平均数。
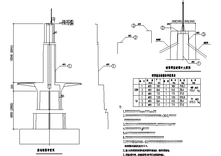
03避雷针避雷器-o k新建武汉至咸宁城际铁路四电集成牵引供电施工作业指导书避雷针、避雷器安装单位:中铁建电气化局集团有限公司武咸城际铁路四电集成项目经理部编制:审核:批准:2011年03月20日发布 2011年03月20日实施避雷针、避雷器安装施工作业指导书主控项目1 设备运达现场应进行检查,其质量应符合下列规定:1.1 避雷针的规格、型号应符合设计规定,产品的节间连接方式应符合订货合同的规定要求,节间连接法兰盘或连接圆钢的规格符合设计或订货合同规定,法兰盘连接孔的直径和数量符合有关标准的规定。
1.2 避雷器的规格,型号应符合设计要求,瓷件外观检查应无裂纹及破损现象,瓷铁粘合牢固,法兰连接面与避雷器瓷件轴线垂直,每节避雷器的组装序列编号准确明显与产品说明书一致,避雷器的底座绝缘应良好,绝缘电阻应符合产品技术规定。
2 避雷器安装前,需经绝缘试验检测合格,且与出厂试验报告没有明显变化。
3 避雷针的安装应垂直牢固,倾斜度不大于3‰.4 独立避雷针的接地方式及接地电阻值应符合设计要求。
5 避雷针的接地引下线与接地网的连接应符合设计要求,且牢固可靠。
6 避雷器的安装应垂直、固定牢靠;均压环应水平,放电计数器应密封良好、动作可靠。
7 避雷针节与节之间的连接应牢固,当采用电焊连接时,焊缝不得有裂缝、气孔及假焊等缺陷,节间应附焊不少于两根加强钢筋,加强钢筋的直径不得小于下节避雷针主筋的直径;当采用螺栓连接时,紧固件应齐全,紧固应牢靠,节间应加焊接地跨接钢筋。
8 避雷器各单元节间接触紧密、密封、均压环,放电计数器安装位置符合规定;接地线连接可靠,防腐涂层完好。
9 磁吹阀式避雷器的防爆片及金属氧化物避雷器的安全装置应完整无损。
10 当避雷器带有隔离间隙电极时,隔离间隙应安装牢固,间隙的距离应符合产品或设计规定。
一般项目1 三相并列安装的避雷器,其中心线应位于同一垂直平面内;铭牌及放电计数器应位于便于观察的同一侧。
避雷针的工作原理一、引言避雷针是一种用于保护建筑物和其他高耸物体免受雷击的装置。
它通过将雷电引导到地面,从而减少了雷电对建筑物和人身安全的威胁。
本文将详细介绍避雷针的工作原理。
二、避雷针的组成避雷针通常由以下几部分组成:1. 避雷针杆:通常由金属材料制成,如铜或铝。
它是避雷针的主要部分,负责接收雷电。
2. 导线:连接避雷针杆和地面,将引导的雷电传输到地下。
3. 接地装置:用于将引导的雷电导入地下,以确保安全。
三、工作原理避雷针的工作原理基于电荷分布和电场原理。
当云层中形成电荷分离时,正电荷集中在云底部,而负电荷则集中在云顶部。
这种电荷分离导致云与地面之间形成电场。
当电场强度达到一定程度时,电荷之间的电势差会超过空气的绝缘能力,从而形成一条电离通道,也就是闪电。
闪电会沿着最短路径传输,通常是从云到地面。
避雷针的存在改变了电场的分布,从而影响了闪电的路径。
当避雷针安装在建筑物顶部时,它会成为云与地面之间的最短路径,吸引闪电击中它。
以下是避雷针的工作过程:1. 电场影响:避雷针的尖端会通过电场的影响而带电。
由于尖端半径较小,电场强度较高,因此它会吸引附近的电荷。
2. 电离和放电:当电场强度足够高时,空气中的分子会电离,形成一个导电通道。
这个通道会导致闪电放电,使避雷针与云之间建立起电连接。
3. 引导闪电:一旦电离通道形成,它会成为闪电放电的路径。
闪电会沿着这个通道传输,从而将电荷从云中释放到避雷针。
4. 导电通道和接地:避雷针的导线将引导的闪电传输到地面。
地面上的接地装置将接收到的电荷导入地下,从而将雷电排放到安全的地方。
四、避雷针的作用避雷针的工作原理使其具有以下几个作用:1. 保护建筑物:避雷针将雷电引导到地下,减少了雷电对建筑物的直接影响。
这可以避免建筑物被雷电击中而引发火灾或结构损坏。
2. 保护人身安全:通过引导雷电到地下,避雷针减少了雷电对人身安全的威胁。
它确保了人们在建筑物内或附近的相对安全。
高压输电线路可控避雷针详解1.可控避雷针主动引雷原理常规避雷针是“富兰克林式”避雷针(有时称为接闪器、接闪杆等)。
其特点是通过引下线接入地下,与地面形成电位差,利用自身的高度,使电场强度增加到极限值的雷电云电场发生畸变,开始电离并下行先导放电;避雷针在强电场作用下产生尖端放电,形成向上先导放电; 两者会合形成雷电通路,随之电流泻入大地,使被保护物达到避雷效果。
实际上,避雷针是引雷针,它可将比较靠近的雷电引来并将雷电电流通过自身的接地导体传向地面,避免保护对象直接遭雷击。
可控避雷针利用避雷针在强电场作用下会引发形成上行先导放电的机理基础之上,通过储能元件激发更强的上行先导,做到更好的迎闪作用。
而储能元件的工作机理是当天空中的有雷云产生时,雷云中的电荷密度很高(以负电荷为例,实际中也是以负电荷为主),主针尖上则会积聚大量的正电荷,储能元件的上半球由于与主针是同一金属连接,所以上半球会积聚大量的负电荷,而储能元件下半球则是与接地网联通,这样就会在球隙上下形成地-负极的内部电场,如图4,内部电场场强设置球隙触发阈值,间隙被击穿形成向空气延伸的电弧转化为上行雷,如此强的上行雷可以中和雷云中的云电荷或者主动迎闪雷电下行先导,达到主动防雷的最终目的。
图1 避雷针原理示意图因此可控避雷针存在两个状态:一个是工作前,一个是工作时。
状态1:在雷云电场较低时,不可能有对地雷击发生,避雷针不需要进入准保护状态。
此时,储能装置通过针头接收雷云电场能量,针头电位处于浮动状态与周围大气电位差小,因此针头上部的电场比较均匀,其等位线分布如图2(a )所示,避雷针几乎没有电晕。
状态2:当雷云电场上升至某个临界值,超过这个临界值的电场通常是被认为有可能发展自雷暴云至地面的放电,我们把它定为避雷针进入准保护状态的阀值。
此时,储能元件向针本体释放储存的能量,使针体电位产生跳跃式突升。
由于针头的结构配置,均压环的电位将瞬时保持原有电位不变,而使针点附近电场严重畸变,针尖顶部电场强度剧烈上升(等位线如图2(b )所示),一个突发式的放电在没有任何空间电荷阻碍的情况下自针尖顶部向上发展。
避雷器基本结构电力系统过电压可分为三类:1、暂时过电压:这类过电压一般由单相接地、甩负荷、或谐振等原因引起,持续时间较长。
2、操作过电压:正常操作或故障时会使系统由一种稳定状态转变成另一种稳定状态而产生的电磁暂态过程,从而产生过电压。
3、雷电过电压,它分为以下三种:1感应雷达电压2雷直击过电压3雷击杆塔引起的反击过电压。
由于杆塔本身的电感和接地电阻的存在雷电流在杆塔导体电阻形成的压降产生的反击电压,通常要求杆塔接地电阻小于10欧姆电磁式电压互感器--一次绕组成星形,中性点直接接地。
当进行某些操作时,电压互感器的激磁阻抗与系统的对地电容形成非线性谐振回路,由于回路参数及外界激发条件的不同,可能造成分频、王频或高频铁磁谐振过电压。
统计表明,电磁式电压互感器引起的铁磁谐振过电压是中性点不接地系统中最常见、且造成事故最多的一种内部过电压,严重地影响供电安全电力系统运行的电气设备除了承受正常运行电压下的工频电压外,有时还会遭受到暂时过电压、操作过电压和雷电过电压的作用。
由于雷电过电压和操作过电压的幅值均会超过电力设备的绝缘耐受水平在过电压的冲击下,会使设备绝缘损坏而导致设备发生事故。
因此必须采取综合措施来限制电力系统中的过电压。
避雷器就是电力系统防雷保护措施之一1.避雷器是用来限制过电压的一种主要保护电器,是发电厂变电所防雷保护的基本保护措施之一-。
2.工作原理:通常避雷器接在系统与地之向,与被保护设备并联。
在正常运行电压下,氧化锌电阻片呈现极高的电阻,通过它的电流只有微安级;当系统出现危害电器设备绝缘的过电压时,由于氧绞锌电阻片的非线性,避雷器两端的残压被限制在允许值之下,并且吸收过电压能量,从而保护了电器设备的绝缘。
避雷器的运行特性1)在正常工作电压情况下,避雷器对地有较高的绝缘电阻,等于开路。
2)在出现异常电压(如大(过电压)时,不论异常电压频率的高低,避雷器均能很快地对地接通,使雷电流迅速对地放电。