室外管网设计说明
- 格式:doc
- 大小:30.50 KB
- 文档页数:7
1. 设计说明:1.1 设计依据:1.1.1 《室外给水设计规范》GB 50013-2006;1.1.2 《室外排水设计规范》GB 50014-2006(2014年版);1.1.3 《建筑给水排水设计规范》GB50015-2003(2009年版);1.1.4 《建筑设计防火规范》GB50016-2006;1.1.5《建筑给水排水及采暖工程施工质量验收规范》GB50242-2002;1.1.6 《自动喷水灭火系统设计规范》GB 50084-2001(2005年版)。
1.1.7 甲方提供的院区周围市政道路的给水排水管网现状图、设计委托书;1.1.8 建筑专业提供的作业图及相关专业提供的设计资料。
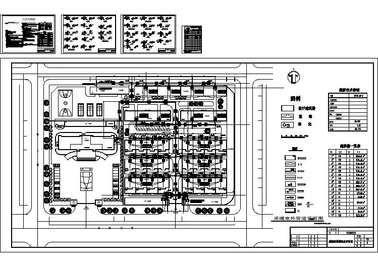
1.2 工程概况:本工程为卓达绿色建筑(新材料)海城产业园,工程位于辽宁省海城太湖路两侧西。
建设单位为卓达辽宁1.3 设计范围:1.3.1 卓达绿色建筑(新材料)海城产业园范围内生活给水管网、工艺给水管网(其中工艺给水管网管径和用水量由甲方提供,本次设计只负责工艺用水管线位置的布置)消防管网、雨水管网、污水管网的设计,不包含生产和工艺排水管网、防洪设计。
1.4 管道系统:本工程设有给水管网、雨水管网、污水管网。
1.4.1 给水系统:1.4.1.1 生活和消防用水水源来自市政管网,由北侧太湖路接入一条dn180给水管接入厂区内作为生活和消防用水;管道覆土 1.35m。
根据甲方提供的资料,市政管网水量、水质满足使用要求,太湖路市政绝对水压0.20MPa,只能满足厂房和动力中心补水要求,不能满足厂前区使用要求,厂前区供水需要在动力中心加压后供给厂前区单体,供水压力为0.35MPa;生产用水水源为市政管网直接供水;绿化用水水源为厂区内的自挖井(水量和水质由甲方负责满足现行绿化用水水质要求);总入口处的计量装置由市政部门负责。
1.4.3 污水设计:厂区内污水收集后,经化粪池处理之后分别接入西侧经七路和北侧东湖路的市政污水管网中。
室外综合管网设计规范
是一个重要的设计标准,它保障了室外管道系统的安全、稳定
和高效运转。
在进行室外综合管网设计时,必须遵守一系列规范
和标准。
首先,设计人员需要考虑管道的铺设方向和深度。
管道应该垂
直于地面,避免出现过大的倾角。
同时,管道的深度应该足够,
以保证管道不会被地下设施所破坏。
其次,设计人员还需考虑管道的材质和外径。
在选择管道的材
质时,需要符合设计要求,并考虑材质的使用寿命和稳定性。
此外,外径的大小也需要与设计要求相符,以确保管道能够承受正
常的水压和负荷。
除此之外,在室外综合管网的设计过程中,还需要考虑管道若
干重要的问题。
比如,在管道设计中要注意保证管道的排水性能。
否则,管道在使用过程中容易受到水浸泡,导致管道生锈或破损,最终影响管道的使用寿命。
此外,在管道设计中要注意管道的接口处。
接口应符合国家标准,并且在使用过程中应避免出现渗漏等问题。
若出现接口问题需要及时修复,避免破坏管道系统的正常运行。
最后,室外综合管网设计人员还需要考虑管道系统的排放和污水处理。
若污水不能及时得到处理,会给周围环境带来很大的危害和污染。
再次提醒设计人员在设计过程中应该注重这个因素。
综上所述,是非常重要的,需要严格的执行和遵循。
同时,设计人员在进行室外综合管网设计的过程中,应该根据实际情况具体问题具体分析,以保证设计质量。
雨水管网设计说明关键信息项:1、设计标准2、管材选择3、管径确定4、检查井设置5、雨水口布置6、管道坡度7、排放出口8、施工要求9、维护管理11 设计标准本次雨水管网设计遵循以下标准:111 降雨量计算采用当地暴雨强度公式,根据规划区域的性质、面积和汇水特点,确定设计重现期和降雨历时。
112 雨水流量计算公式为 Q =ψ×q×F,其中ψ 为径流系数,q 为设计暴雨强度,F 为汇水面积。
113 设计应满足区域内雨水排放要求,确保在设计重现期内不发生内涝。
12 管材选择121 考虑到管材的强度、耐久性、密封性和经济性等因素,本次设计选用以下管材:钢筋混凝土管:适用于管径较大、埋深较深的管道,具有较高的强度和承载能力。
高密度聚乙烯(HDPE)管:适用于管径较小、施工条件复杂的区域,具有重量轻、耐腐蚀、安装方便等优点。
122 管材的质量应符合国家相关标准和规范的要求,具备相应的检测报告和合格证书。
13 管径确定131 根据雨水流量计算结果,结合管道敷设坡度和充满度要求,合理确定管径。
132 管径的选择应考虑远期发展需求,适当预留一定的余量。
133 对于重要路段和汇水面积较大的区域,管径应适当加大,以提高排水能力。
14 检查井设置141 检查井的设置应根据管道走向、管径变化、转弯、分支等情况合理布置。
142 检查井间距一般不宜大于 40 米,在管道交汇处、转弯处应增设检查井。
143 检查井采用砖砌或混凝土结构,井内设置爬梯,井盖应具备防盗、防坠落功能。
15 雨水口布置151 雨水口应布置在道路两侧的低洼处,间距一般为 25 50 米。
152 雨水口形式可采用平箅式、立箅式或联合式,根据道路类型和排水要求选择。
153 雨水口连接管管径不宜小于 300 毫米,坡度不小于 1%。
16 管道坡度161 管道坡度应根据管径大小、管材材质和地面坡度等因素确定,一般不小于 03%。
162 在满足排水要求的前提下,尽量减小管道坡度,以降低工程造价。
室外管网设计规范室外管网是城市公共设施的重要组成部分,它是连接市政工程和民用建筑的关键通道,同时也是城市管理和维护的重要内容。
室外管网设计规范是指用于指导室外管网的设计、施工和运营的一系列规范,目的是确保室外管网的安全、可靠和经济合理。
一、设计思路室外管网的设计应考虑以下因素:1. 管线布置:管线应在交通干线的两侧或中央布置,水平和竖直伸延应符合施工易、运输便利、维护方便的原则。
2. 管径设计:不同管材、管径应根据现有用水量和用水压力确定。
如果水源不够稳定,就要根据原水压力选择合适的管径。
3. 管线深度:管线应按规范要求深埋于土石层下,遵循安全和环保要求。
特别是在沿海或山区更应注意管道深度,以防止水管因地震或其它自然灾害而破裂。
4. 泵站设计:应考虑客户的用水量、区域地理形势、供水压力以及当地环境因素。
泵站应位于较高处,泵站内部设施也应符合消防、电气和运输规范。
二、管道材质室外管网的材质选择应考虑以下因素:1. 材料的耐久性:耐久性越高,管道使用寿命就越长。
2. 材料的承压能力:在保持耐久性的前提下,应选择承压能力合适的材料。
3. 材料的环保性:应选用环保材料,以减少环境污染。
今天,10年使用寿命的钢质管道已变得越来越受欢迎,因为它们的生产工艺和防腐涂层都得到了很大的改进和提高。
然而,陶瓷管道、聚氨酯管道、PE管道和PVC管道也是可行的选择。
三、设计细节除了以上两个因素,室外管网设计还需要考虑以下细节特征:1. 防盗措施:管道铺设在野外或路口面临着盗窃危险,特别应注意防盗和加固。
2. 排水设计:为避免水管生锈腐蚀、防止淤泥积存和预防车辆损坏等问题,需要合理排水。
3. 管道颜色设计:不同的室外管网应配备适合不同的颜色标识,以便民众区分和记忆。
室外管网设计规范是为了建设安全可靠、运营高效的市政设施而制定的,正确遵循规范不能只关注效益,还要以保证民生为基础。
管道设计方面需要具备全方位、系统化和科学化的思想,以期更好地服务于城市建设和发展。
室外管网工程方案设计规范一、前言室外管网工程涉及城市道路、自来水、排水、供电、通信等工程建设,是城市基础设施的重要组成部分。
室外管网工程方案设计规范的制定,旨在规范室外管网工程设计流程,保障工程质量,提高城市基础设施的建设水平。
本规范适用于城市室外管网工程设计过程中,包括道路、排水、自来水、供电、通信等方面的设计规范。
二、设计前期工作1. 工程概况调查在进行室外管网工程设计之前,需要进行工程概况调查,了解工程所在地区的地形、地貌、地质、气候等情况,对道路、自来水、排水、供电、通信等各个方面的现状进行详细调查。
用地质、地貌、气候等因素来影响工程设计方案的选择。
2. 技术经济分析在进行室外管网工程设计之前,需要进行技术经济分析,合理选择工程施工方案,根据工程的具体情况,考虑工程所在地区的地质、地貌、气候等因素,选择合适的材料和工艺,合理控制工程投资。
三、设计原则1. 立足实际,科学合理室外管网工程设计应该立足于实际情况,遵循科学的原则,保证工程方案的可行性和有效性。
2. 综合规划,协调发展室外管网工程设计应该综合规划,协调发展,将道路、自来水、排水、供电、通信等各个方面的工程规划融为一体,保证城市基础设施的统一规划和协调发展。
3. 安全可靠,环保节能室外管网工程设计应该重视工程的安全可靠性,注重环保和节能,保障城市基础设施在使用过程中的安全和可靠性。
四、设计内容1. 道路设计室外管网工程设计中,道路设计是其中一个重要的部分。
道路设计需要考虑道路的交通量、道路的结构、路基、路面、排水、照明等方面的设计,确保道路的安全、畅通。
2. 自来水设计自来水设计需要考虑自来水的输送、分配、供水系统、水质和水流的稳定性等方面的设计,确保自来水的供应安全可靠。
3. 排水设计排水设计需要考虑城市内部和建筑物周围的排水系统,确保城市内部和建筑物周围的排水通畅,防止城市内部和建筑物周围的积水等情况。
4. 供电设计供电设计需要考虑供电系统的输电、配电、电气设备的选型、电力线路的布置等方面的设计,确保城市供电系统的安全可靠。
管网课程设计说明书一、目的对某县城进行市政给水,市政排水及雨水管网设计,管道的铺设和埋深,包括给水处理厂,污水处理厂位置的选择,水塔的高度和清水池与水塔的容积,水泵的扬程。
二、设计内容Ⅰ:给水设计1.县城面积计算分区划分计算,确定其面积。
2.计算最高时用水量取居民用水定额为200(L/cap.d)近期用水量,远期用水量。
3.给水管网定线按照官网订线一般原则定线。
4.节点流量计算及管段流量初分配。
5.取经济流速,确定管径。
经济流速最小为0.6m/s,最大为1m/s,可根据适当情况调整。
6.利用哈代克罗斯法进行平差计算。
评差时取c w=110,m=4.87,n=1.852.7.进行管网水力计算。
计算时假定控制点,然后根据要求自由水压和得到的自由水压确定真正的控制点。
8.进行三项校核。
消防校核、最大转输校核及事故校核。
9.确定清水池和水塔调节容积。
清水池按最高时的百分之二十计算,水塔按最高时的百分之三计算。
10.确定二级泵站扬程和设计流量。
Ⅱ:污水设计1.制定该县排水系统规划,选择排水体制。
2.排水管网定线和排水区域划分。
3.计算居民区排水面积。
4.污水管段流量计算。
居民排水定额按给水的百分之七十计算。
K z的确定,根据流量大小确定总变化系数。
5.排水管网水力分析。
确定坡度和埋深。
计算时取n=0.013.Ⅲ:雨水设计1.雨水管道系统定线。
2.划分区域,确定汇水面积。
3.雨水一根干管各个设计管段流量计算。
4.雨水一根干管水力计算。
设计成果第一部分:给水设计成果1.管道布置形式(如草图T1所示)。
2.计算理论基础。
按照设计思路进行计算,参照任务书及给水排水管网系统课本理论知识进行计算。
3.主要涉及参数及要求。
①居民区用水定额200(L/cap.d)。
②哈代克罗斯平差参数c w=110,m=4.87,n=1.852.③经济流速的确定。
最小为0.6m/s,最大为1m/s,可根据适当情况调整。
4.设计成果。
①服务面积:48.865公顷。
室外管网设计方案
1. 概述
本文档旨在提供一份室外管网设计方案,解决相关问题并满足项目的要求。
2. 设计目标
本设计方案旨在实现以下目标:
- 提供可靠的室外管网系统,确保稳定供水和排水功能;
- 节约用地,提高空间利用率;
- 考虑环境保护和可持续性因素;
- 遵循法律法规和相关标准。
3. 设计方案
3.1 管道布局
室外管网的管道布局应符合以下原则:
- 管道应尽量缩短长度,以减少水力损失;
- 管道应合理布置,便于维修和扩展;
- 根据不同的用途和需求,将管道分为供水管道和排水管道。
3.2 管道材料选择
在选择管道材料时,应考虑以下因素:
- 确保材料具有良好的耐腐蚀性和抗压性能;
- 考虑管道材料的寿命和维护成本;
- 遵循相关标准和规范。
3.3 安全措施
为确保管网系统的安全运行,应采取以下措施:
- 安装可靠的阀门和安全设备,以控制流量和防止管道爆裂;- 定期检查和维护管道,及时排除故障;
- 遵循相关安全操作规程,保障工作人员的安全。
3.4 环境保护和可持续性
在设计和运营室外管网时,应考虑环境保护和可持续发展因素:- 使用环保的材料和技术,降低对环境的影响;
- 合理利用雨水和再生水资源,减少对自然水资源的依赖;
- 定期监测和评估管网系统的环境影响,并采取相应的改进措施。
4. 总结
本设计方案提供了一份室外管网设计方案,以实现稳定供水和
排水功能,并兼顾环境保护和可持续性要求。
在实施过程中,应遵
循相关法律法规和标准,确保系统安全运行。
1.设计说明:1.1设计依据:1.1.1《室外给水设计规范》GB50013—2006;1.1.2《室外排水设计规范》GB50014-2006(2014年版);1.1.3《建筑给水排水设计规范》GB50015-2003(2009年版);1.1.4《建筑设计防火规范》GB50016-2006;1.1.5《建筑给水排水及采暖工程施工质量验收规范》GB50242-2002;1.1.6《自动喷水灭火系统设计规范》GB50084-2001(2005年版)。
1.1.7甲方提供的院区周围市政道路的给水排水管网现状图、设计委托书;1.1.8建筑专业提供的作业图及相关专业提供的设计资料。
1.2工程概况:本工程为卓达绿色建筑(新材料)海城产业园,工程位于辽宁省海城太湖路两侧西。
建设单位为卓达辽宁1.3设计范围:1.3.1卓达绿色建筑(新材料)海城产业园范围内生活给水管网、工艺给水管网(其中工艺给水管网管径和用水量由甲方提供,本次设计只负责工艺用水管线位置的布置)消防管网、雨水管网、污水管网的设计,不包含生产和工艺排水管网、防洪设计。
1.4管道系统:本工程设有给水管网、雨水管网、污水管网。
1.4.1给水系统:1.4.1.1生活和消防用水水源来自市政管网,由北侧太湖路接入一条dn180给水管接入厂区内作为生活和消防用水;管道覆土1.35m。
根据甲方提供的资料,市政管网水量、水质满足使用要求,太湖路市政绝对水压0.20MPa,只能满足厂房和动力中心补水要求,不能满足厂前区使用要求,厂前区供水需要在动力中心加压后供给厂前区单体,供水压力为0.35MPa;生产用水水源为市政管网直接供水;绿化用水水源为厂区内的自挖井(水量和水质由甲方负责满足现行绿化用水水质要求);总入口处的计量装置由市政部门负责。
1.4.3污水设计:厂区内污水收集后,经化粪池处理之后分别接入西侧经七路和北侧东湖路的市政污水管网中1.4.4雨水设计:雨水暴雨强度公式采用辽宁鞍山暴雨强度公式i=,设计重现期为2年;区域内雨水收集后,排入北侧太湖路雨水管网中。
室外热力管网施工图设计总说明1、设计依据:1.1《城镇供热管网设计规范》CJJ34-20101.2《城镇供热直埋热水管道技术规程》CJJ/T81-20131.3《高密度聚乙烯外护管聚氨酯泡沫塑料预制直埋保温管》CJ/T114-2000 1.4《高密度聚乙烯外护管聚氨酯泡沫塑料预制直埋保温管件》CJ/T155-2001 1.5《城镇供热管网工程施工及验收规范》CJJ28-20141.6《城镇供热直埋热水管道技术规程》CJJ/T81-20131.7《建筑给水排水及采暖工程施工质量验收规范》GB50242-2002。
1.8本说明中未详尽之处应按下列国家及地方标准的相关规定执行.2、工程概况:2.1工程名称:***集中供热项目2.2工程地点:***2.3设计范围:本工程为****集中供热项目地热水一次管网工程及二次供热管网设计。
2.4地热水一次管网分从地热井房接至地热机房。
其中接至北区块住宅地下地热机房的有3对地热井,接至南区块企业地上地热机房的有1对地热井,接至裕盛景地下地热机房有1对地热井。
2.5二次供热管网干管分别由地热机房接至各住宅区及公建末端。
其中北区块住宅地下地热机房位于政府办公楼以北,南区块企业地上地热机房位于古早清凉酒店东北侧,永裕盛景地下地热机房位于永裕盛景小区内。
所有二次管网全部对接与所有供热单体的原有二次供热管网主管或分集水器上,地上部分所对接的二次供热管网主管或分集水器前,供回水管都需加蝶阀,具体阀门规格见3.3条款。
3、地热水一次管网系统:3.1管网采用无补偿直埋敷设方式,管线坡度及埋深参数见图,图中直埋管道标注的标高为管顶(外保护层顶标高)标高,图中架空管道标注的标高为管中标高。
在管线最高点安装放气装置,最低点安装泄水装置。
3.2管道采用无缝钢管,材质为20#钢,其屈服极限为220MPa。
3.3管网中的阀门均采用Pn=1.6MPa,耐温不低于80°C,为铸铁材质,阀门规格:DN≥150mm选用涡轮传动蝶阀,150mm>DN≥50mm选用手动对夹式蝶阀,DN<50mm选用铜球阀(丝扣连接),规格同管道。
1. 设计说明:1.1 设计依据:1.1.1 《室外给水设计规范》GB 50013-2006;1.1.2 《室外排水设计规范》GB 50014-2006(2014年版);1.1.3 《建筑给水排水设计规范》GB50015-2003(2009年版);1.1.4 《建筑设计防火规范》GB50016-2006;1.1.5《建筑给水排水及采暖工程施工质量验收规范》GB50242-2002;1.1.6 《自动喷水灭火系统设计规范》GB 50084-2001(2005年版)。
1.1.7 甲方提供的院区周围市政道路的给水排水管网现状图、设计委托书;1.1.8 建筑专业提供的作业图及相关专业提供的设计资料。
1.2 工程概况:本工程为卓达绿色建筑(新材料)海城产业园,工程位于辽宁省海城太湖路两侧西。
建设单位为卓达辽宁1.3 设计范围:1.3.1 卓达绿色建筑(新材料)海城产业园范围内生活给水管网、工艺给水管网(其中工艺给水管网管径和用水量由甲方提供,本次设计只负责工艺用水管线位置的布置)消防管网、雨水管网、污水管网的设计,不包含生产和工艺排水管网、防洪设计。
1.4 管道系统:本工程设有给水管网、雨水管网、污水管网。
1.4.1 给水系统:1.4.1.1 生活和消防用水水源来自市政管网,由北侧太湖路接入一条dn180给水管接入厂区内作为生活和消防用水;管道覆土1.35m。
根据甲方提供的资料,市政管网水量、水质满足使用要求,太湖路市政绝对水压0.20MPa,只能满足厂房和动力中心补水要求,不能满足厂前区使用要求,厂前区供水需要在动力中心加压后供给厂前区单体,供水压力为0.35MPa;生产用水水源为市政管网直接供水;绿化用水水源为厂区内的自挖井(水量和水质由甲方负责满足现行绿化用水水质要求);总入口处的计量装置由市政部门负责。
1.4.3 污水设计:厂区内污水收集后,经化粪池处理之后分别接入西侧经七路和北侧东湖路的市政污水管网中。
室外管网综合排布设计标准室外管网设计标准(一)小区管网的内容:小区管网品种繁多、数量庞大,具体包含:a、给水系统1、生活给水管及水表、阀门井;2、消火栓给水管及水表、消火栓、水泵接合器、阀门井;3、消防喷淋给水管及水表、阀门井;4、绿化浇灌给水管及水表、阀门井;5、商业给水管及水表、阀门井;b、排水系统1、小区雨水排水管及排水检查井;2、小区污水排水管及排水检查井;3、绿化系统排水管及排水检查井;4、小区明沟、暗沟排水系统;5、地下室强排系统排水管;c、供电系统1、小区专变供电管群及电缆井;2、小区公变供电管群及电缆井;3、小区景观照明系统电缆及手孔井;d、燃气系统小区燃气管网及阀门井e、三网系统小区电话、电视、宽带系统管网;g、供热系统小区供暖室外管道及检查井h、小区弱电安防系统1、CCTV 监控系统电缆及手孔井;2、围墙对射监控系统电缆及手孔井;3、门禁及可视对讲系统电缆及手孔井;4、行车道闸系统电缆及手孔井;5、小区背景音乐系统电缆及手孔井;(二)根据上述管道控制的难易程度可分为两大类:第一类:内部可控管网,它包含小区排水系统管网、小区给水系统(市政给水除外)、小区专变供电出线系统、小区弱电安防系统。
该部分管网可与小区总图设计同时进行,并可根据随后的园林景观设计加以调整。
第二类:部分可控管网,它包含市政室外给水管网、小区煤气管网、小区总高压进线及公变供电管网、三网系统管网等。
也即通常所说的外部市政水、电、气、三网等管网。
该部分都必须满足一定条件才能向相关部门申报。
根据申报的时间不同、合同签订的时间不同,出图时间是不同的,有时会滞后整个小区管网设计完成时间很多。
同时这些部门的规定也在不断变化,而且管道的施工和管理均由相应部门完成。
因此第二类管道把控难度较大,必须在管网综合实施时加以重点关注。
(三)各阶段管网设计要求1、各专业管网施工图阶段:第一类管线:首先设计出各类管线的专业平面图,并注明所有主管、进户支管的走向、平面定位、标高、管沟尺寸、埋管数量、各类井(进户井、转换井、主井等等管线构筑物)的尺寸规格及做法。
住宅小区室外管网工程方案一、前言室外管网工程是指小区内供水、排水、供暖和燃气等设施的管道系统,是小区基础设施建设的重要组成部分。
良好的室外管网工程能够确保小区内居民日常生活的便利与舒适,因此其设计与建设至关重要。
二、工程背景小区位于城市郊区,总占地面积约3000平方米,规划分为多个住宅楼宇和独立别墅区。
小区内已经建成完工的住宅楼宇有30栋,别墅区已经规划建设3栋别墅。
小区内人口密集,日常生活所需的供水、供暖和燃气设施应完善健全。
三、设计原则1. 安全性原则:要求管网工程符合国家相关安全性标准,确保居民使用的设施安全可靠。
2. 环保性原则:在设计施工过程中尽量减小对环境的影响,选用环保材料,降低能源消耗等。
3. 经济性原则:在满足使用要求的基础上尽量减少成本。
4. 可维护性原则:设计合理方便维护和管理,减少日后维护成本。
四、设计内容1. 供水管道设计为了满足小区内大量居民的日常生活用水需求,需将供水管道设计得充分满足日常用水量,同时也要考虑到供水网络的互联和防止水质污染和泄漏。
供水管道宜设置流量计、压力计等流量和压力计量设施,以保证用水系统正常运行。
2. 排水管道设计排水管道设计应考虑到小区内雨水和生活污水排放方向,根据用地情况来设计排水管道线路。
同时,需合理设置雨水和污水收集设施,并合理规划排水管道的坡度和直径,以保证排水系统正常运行。
3. 供暖管道设计供暖管道设计应考虑到小区内建筑的供暖方式,如集中供暖、分户供暖等,根据实际情况来设计供暖管道线路。
一般情况下,集中供暖的供水管道需布置在预制板内或暗挡内,以保证供热系统正常运行。
分户供暖需布置在每户建筑内并与集中供暖系统相连接。
4. 燃气管道设计燃气管道设计应考虑到小区内建筑的燃气使用需求,根据实际情况来设计燃气管道线路。
燃气管道设计需满足国家相关标准,同时要合理设计供气点和阀门,以确保燃气系统正常使用。
同时需设置燃气泄漏报警设备和防护设施。
五、施工方案1. 施工过程应按照相关国家标准和规定进行,同时在施工现场设置专人负责施工监督,确保施工安全和质量。
室外管网工程方案设计要点一、工程背景室外管网工程是城市基础设施建设的重要组成部分,它负责城市内外的供水、供气、排水、通讯等功能,直接关系到城市居民的生活和工作。
室外管网工程的设计方案是基于城市规划和土地利用的需求,以保障城市基础设施和居民生活需求为目标进行设计的方案。
二、设计原则1. 安全性原则在设计室外管网工程时,应充分考虑到工程的安全性,包括管道的材料选用、施工工艺、管道布设等方面,以防止管网工程因材料质量、施工过程中不当操作等导致安全事故的发生。
2. 经济性原则在设计室外管网工程时,应充分考虑到工程的经济性,包括管道的材料成本、施工成本、维护成本等方面,以确保工程的投资回报率和效益。
3. 可持续发展原则在设计室外管网工程时,应充分考虑到工程的可持续性,包括管道的材料环保性、设计寿命、维护周期等方面,以确保工程在使用过程中对环境的影响降到最低。
4. 适用性原则在设计室外管网工程时,应充分考虑到工程的适用性,包括管道的材料适用范围、施工工艺适用性、管道布设适用于城市规划的要求等方面,以确保工程能够满足城市规划和土地利用的需求。
三、设计内容1. 城市规划与土地利用的要求根据城市规划和土地利用的要求,确定室外管网工程的设计范围和管道布设的位置。
确保管网工程能够满足城市规划和土地利用的需求,并且不影响城市基础设施和居民生活。
2. 管道材料的选用根据管网工程的使用要求和环境条件,选择合适的管道材料,包括塑料管道、钢制管道、铸铁管道等,以确保管道的材料能够满足城市规划和土地利用的需求,并且能够在使用过程中长期保持良好的使用性能。
3. 施工工艺的选择根据管网工程的设计要求和环境条件,选择合适的施工工艺,包括地面开挖、管道铺设、管道连接、维护设施建设等,以确保施工工艺能够满足城市规划和土地利用的需求,并且能够在使用过程中长期保持良好的使用性能。
4. 管道布设的规划根据城市规划和土地利用的要求,对管道的布设进行规划,包括管道的走向、管道的连接、管道的排列等,以确保管道布设能够满足城市规划和土地利用的需求,并且能够在使用过程中长期保持良好的使用性能。
(封面)XXXXXXX学院某小区室外管网供热系统工程设计报告题目:院(系):专业班级:学生姓名:指导老师:时间:年月日摘要本次设计地点范围为某花园小区室外管网工程设计,小区位于,内有六栋低层住宅楼,每栋为6层。
本小区是一个住宿小区,小区内设有集中采暖系统,结合实际情况,小区都是底层住宅,所以采暖不分高低区,主要系统为: 集中采暖系统。
本小区内的配套系统大体如下:集中采暖系统,本小区采暖由小区换热站统一提供热源,一次网供热由市政管网提供,各系统中的管道都沿路或沿墙敷设,力求简短顺直节约管材。
随着人们生活水平的提高,集中供热被越来越多地采用,采用集中供暖可以减少能量的浪费,提高供热效率,减少环境污染,利于管理.同时采用集中供热可提高供热质量,提高人们的生活质量本设计以经济、环保、节能为原则,通过借鉴以前的设计方法和经验,采用了合理的技术措施,使设计的各个系统达到了很好的使用效果。
关键词:集中供热;管道保温;换热站目录第1章绪论 (1)1.1 设计概况 (1)1.1.1 我国城市供热的技术走向 (1)1.2 设计目的及意义 (2)1.3 设计指导思想 (2)1.4 集中供热系统 (2)1.4.1 设计题目 (2)1.4.2 设计原始资料 (2)1.4.3 设计地区气象资料 (3)1.4.4 设计参数资料 (3)第2章供暖外网热负荷的计算 (4)2.1 集中供热系统热负荷的概算 (4)2.1.1 集中供热系统 (4)2.1.2 热负荷的计算方法和规划供热面积 (4)2.2 热负荷的计算 (4)2.2.1 采暖设计热负荷的计算 (4)2.2.2 年负荷的计算 (6)第3章供暖方案的确定 (8)3.1 系统热源型式及热媒的选择 (8)3.2 供热管道的平面布置类型 (8)3.3 供热管道的定线以及敷设方式 (8)3.4 管道的保温与防腐 (9)3.5 供热管网系统定压方式的确定 (9)第4章供暖管网的水力计算及水压图 (11)4.1 供暖管网的水力计算 (11)4.1.1 计算方法 (11)4.1.2 水力计算的步骤 (11)第5章供热管网水压图的绘制 (24)5.1 供热管网水压图确定 (24)5.2 选定静水压曲线位置 (24)5.3 选定回水管动水压曲线位置 (25)5.4 选定供水管动水压曲线位置 (25)第6章供热调节 (26)6.1 供热调节分类 (26)6.2 连接管道供暖系统计算 (26)第7章管道的保温 (29)7.1 管道保温目的 (29)7.2 管道保温的方法 (29)第8章附件的选择 (30)8.1 固定支座的选择 (30)8.2 支架选择计算 (30)8.3 补偿器选择计算 (32)8.3.1 供热管道的热伸长 (32)8.3.2 管道的补偿器 (33)第9章换热站设备的选取 (35)9.1 换热器的选取 (35)9.1.1 换热器类型的选取 (35)9.1.2 换热器选型计算 (35)9.1.3 凝结水冷却器(水—水换热器)的选择计算 (37)9.2 热网循环水泵 (38)9.2.1 水泵的计算 (38)9.2.2 补给水泵选择: (39)9.2.3 补水箱的选择 (40)9.3 集水器 (40)9.4 除污器的选择 (41)9.4.1 旋流除污器原理 (41)9.4.2 旋流除污器产品特点 (41)9.4.3 旋流除污器技术参数 (42)9.4.4 旋流除污器工作原理 (42)9.4.5 旋流除污器外型尺寸 (43)9.4.6 旋流除污器规格型号 (44)9.4.7 旋流除污器选用说明 (45)9.4.8 旋流除污器设备使用 (46)第10章工程经济技术分析 (48)10.1 概述 (48)10.2 管网布置的合理性分析 (48)10.3 管道水力计算的经济分析 (49)错误!未定义书签。
室外综合管网设计指引目录一、室外综合管网说明 (2)1.1 管网综合目的 (2)1.2 管线分类 (2)二、综合管网布置与室外道路、铺装、绿化对接要求 (2)2.1 综合管网检查井设置要求 (2)三、各类管线布置及间距标准 (3)3.1 布置原则 (3)3.2 交叉管线说明 (4)3.3 地下管线交叉时最小(水平)垂直净距表(m) (5)3.4 地下工程管线交叉时最小垂直净距表(m) (5)一、室外综合管网说明1.1 管网综合目的管线综合目的,就是要综合解决各专业工程技术管线布置及其相互间的矛盾,从全面出发,使各种管线布置合理、经济,最后将各种管线统一布置在管线综合平面图上,包括内容为:1)敷设时的排列顺序;2)最小水平净距、最小垂直净距;3)与周围建、构筑物的最小水平净距、最小垂直净距。
1.2 管线分类1)给水管:生产用水、生活用水、消防用水、市政用水2)排水管:污水、废水3)热力管:蒸汽、热力管4)电力线:生活性、生产性5)电信线路:电话、广播、有线电视6)燃气管:天然气管、煤气管二、综合管网布置与室外道路、铺装、绿化对接要求2.1 综合管网检查井设置要求检查井位置需考虑以下原则:一,美观性原则;二,行车震动井盖发出噪声,影响附近住户生活;三,检修时减少对用户影响,并且检修方便。
室外综合管网设计必须与道路及景观园林设计进行综合统筹考虑,具体要求如下:D小区内车行道路及入户通道上应尽量不设置检查井,私家花园内尽量少设置检查井,若必须设置,不宜集中设置在单户私家花园内;井盖应以设于公共隐蔽位置为佳。
2)小区内给水、燃气等压力管线可设置于车行路下方,应尽量靠近路边布置,管道间距应布置紧凑,满足施工要求;检修阀门等应设置于车行路以外位置。
3)小区内雨水、污水等重力流管线可设置于车行路边,但检查井盖应设置于路边的人行道或绿地内,且检查井盖应与相邻道路或围墙边线平行,并与园林专业协调进行装饰处理。
4)为了提高“三点一线”景观示范区品质,要求车行及人行道路及通道上不得设置各类检查井,检查井应以化妆井盖形式设置于绿化中进行隐蔽,并且不应与植物种植冲突。
室外综合管网方案1. 引言室外综合管网是指城市或建筑物外部的各种管线网络,包括水、电、燃气、通信等。
它的设计和建设对于城市的正常运转和居民生活至关重要。
本文将就室外综合管网的设计方案进行详细讨论和说明。
2. 方案概述室外综合管网方案的主要目标是确保城市的正常供水、供电、供气和通信等服务,并提高它们的可靠性和可持续性。
我们将在以下几个方面进行思考和设计:•管线布置和规划:–不同管线之间的距离和布局方式;–各部分的容量和覆盖范围。
•材料选择和施工:–各种管线材料的优缺点;–确保施工质量和安全性。
•管线维护和管理:–定期巡检和维护计划;–快速应对和修复管线故障的预案。
3. 管线布置和规划在管线布置和规划阶段,我们需要考虑以下几个因素:•供应和需求关系:–根据城市的用水量、用电量和用气量确定供应管线的容量;–考虑未来的用需增长,以确保管线的可扩展性。
•管线之间的距离:–不同管线之间需要足够的距离,以防止彼此干扰和损坏;–同时需要考虑管线布置的紧凑性,以减少空间占用。
•各部分的容量和覆盖范围:–根据居民和企业的分布,决定各部分的容量和覆盖范围;–特定区域的需求可以有针对性地进行规划和设计,以提高供应的效率。
4. 材料选择和施工室外综合管网的材料选择和施工质量直接影响管线的可靠性和使用寿命。
以下是我们需要考虑的几个方面:•管线材料的选择:–不同管线需要选择适合的材料,例如耐腐蚀、耐高压等;–管线材料的成本和可获取性也需要考虑进去。
•施工质量和安全性:–施工过程中需要严格按照规范和标准进行,确保管线的质量;–确保施工人员的安全,遵守相关安全措施和操作规程。
5. 管线维护和管理室外综合管网的维护和管理是保证管线正常运行的关键。
以下是我们需要考虑的几个方面:•定期巡检和维护计划:–设定定期巡检的频率和内容,以及维护计划的执行方式;–及时发现并修复潜在问题,以避免大规模故障的发生。
•快速应对和修复管线故障的预案:–建立完善的应急预案,包括人员调配、物资储备等方面;–针对不同类型的故障,制定相应的应对策略和修复方案。
1. 设计说明:设计依据:《室外给水设计规范》GB 50013-2006;《室外排水设计规范》GB 50014-2006(2014年版);《建筑给水排水设计规范》GB50015-2003(2009年版);《建筑设计防火规范》GB50016-2006;《建筑给水排水及采暖工程施工质量验收规范》GB50242-2002;《自动喷水灭火系统设计规范》GB 50084-2001(2005年版)。
甲方提供的院区周围市政道路的给水排水管网现状图、设计委托书;建筑专业提供的作业图及相关专业提供的设计资料。
工程概况:本工程为卓达绿色建筑(新材料)海城产业园,工程位于辽宁省海城太湖路两侧西。
建设单位为卓达辽宁设计范围:卓达绿色建筑(新材料)海城产业园范围内生活给水管网、工艺给水管网(其中工艺给水管网管径和用水量由甲方提供,本次设计只负责工艺用水管线位置的布置)消防管网、雨水管网、污水管网的设计,不包含生产和工艺排水管网、防洪设计。
管道系统:本工程设有给水管网、雨水管网、污水管网。
给水系统:生活和消防用水水源来自市政管网,由北侧太湖路接入一条dn180给水管接入厂区内作为生活和消防用水;管道覆土。
根据甲方提供的资料,市政管网水量、水质满足使用要求,太湖路市政绝对水压,只能满足厂房和动力中心补水要求,不能满足厂前区使用要求,厂前区供水需要在动力中心加压后供给厂前区单体,供水压力为;生产用水水源为市政管网直接供水;绿化用水水源为厂区内的自挖井(水量和水质由甲方负责满足现行绿化用水水质要求);总入口处的计量装置由市政部门负责。
污水设计:厂区内污水收集后,经化粪池处理之后分别接入西侧经七路和北侧东湖路的市政污水管网中。
雨水设计:雨水暴雨强度公式采用辽宁鞍山暴雨强度公式i= ,设计重现期为2年;区域内雨水收集后,排入北侧太湖路雨水管网中。
2 施工说明:市政接管经标高确认:建筑室外雨水管道,在施工前应对本工程允许接入西侧河道水面标高进行实测确认与设计标高无误差后,再进行施工。
如河道水面、市政污水管道管底实测标高与设计标高有误差时,应通知设计院,设计院按实测标高对设计标高进行调整修改,以修改后的管道标高进行施工。
管材及接口:埋地给水管采用PE100管(公称压力,采用热熔连接,过路部分增加钢套管,延出道路两侧各。
埋地消防给水管采用PE100管(公称压力,热熔连接;连接室外消火栓支管,消火栓阀门井之后管材选用给水球墨铸铁管,PE管与铸铁管之间采用法兰连接。
污水、雨水管道管径小于等于DN800采用HDPE双壁波纹管,大于DN800,小于等于DN1000采用HDPE中空壁缠绕管,环刚度为8,管道接口采用承口橡胶密封圈接口;管径大于1000采用钢筋混凝土Ⅱ级管,胶圈承插连接,过路部分管道采用钢筋混凝土Ⅱ管。
阀门:DN≤50mm时采用铜截止阀,DN>50mm时,给水管和消防水管采用球墨铸铁铜芯闸阀,生活生产给水阀门耐压不小于,消防阀门耐压不小于。
管道敷设和连接:给水管:1) 当给水管敷设在污水管的下面时,应采用钢管或钢套管,套管伸出交叉管的长度每边不得小于,套管两端应采用防水材料封闭。
排水管(污水管、雨水管、废水管):1) 排水管道应直线敷设且不得出现无坡、倒坡现象。
2) 两检查井之间的管段坡度应一致。
如有困难时,后段坡度不应小于前段管道坡度。
排水坡度改变时应增加检查井。
3) 排水管道转弯和交汇处检查井内流槽应保证水流转角不应小于90°,但当管径小于300mm时,且跌水高度大于时,可不受此限。
4) 排水管在检查井内均采用管顶平接连接方式。
排水管的承口应为水的逆流方向敷设。
5) 排水管在检查井内的跌水高度大于时,如DN400mm时采用管道内跌;如管径>400mm 时,采用井外跌竖槽式跌水。
6) 管道与检查井的连接,应符合现行规程要求,并确保安全、牢固、不渗漏水。
7) 雨污水出户管接检查井管材管径与单体图一致。
管道基础给水管道基础做法详见《建筑小区埋地塑料给水管道施工》10S507-40相关规定施工。
1) 如为未经扰动的原状土层,则天然地基进行夯实。
2) 如为回填土层,则在回填土地段做300mm厚碎石垫层。
3) 如为岩石或多石层,则在岩石或多石地段做150mm厚砂石垫层。
4) 如为软泥土则应更换土壤,换填深度。
排水管道:1) 沟槽槽底宽度:D≤450mm时,管道每边净宽不小于300mm;D>450mm时,管道每边净宽不小于500mm。
2) 管道基础应严格按照《埋地塑料排水管道施工》04S520和《混凝土排水管道基础及接口》04S519的相关规定施工。
预埋过路管道:预埋过路管道基础采用120°砂石基础,做法详见04S516-13。
施工要求:1) 管道基础应坐落在良好原状土层上,如为刚性接口,其地基承载力特征值fak不得低于80KPa;如为柔性接口,地基承载力特征值fak不得低于60KPa,否则应进行地基处理。
2) 如采用机械开挖管道沟槽时,应保留厚的不开挖土层,该土层用人工清槽,不得超挖,如若超挖或发生扰动,如若超挖或发生扰动,应换填10~15mm天然级配砂石料或颗粒小于40mm碎石,整平夯实进行地基处理。
地基土被扰动,应采取如下处理措施:1) 扰动150mm以内,可原状土夯实,压实系数大于。
2) 扰动150mm以上,可用卵石、碎石、毛石等填充夯实,压实系数大于等于.管道防腐:管道防腐施工应在管道试压、试水合格后进行。
镀锌钢管、焊接钢管埋地敷设时,防腐做法按照《建筑给排水及采暖工程施工质量验收规范》GB 50242-2002第条施工。
热镀锌钢管的焊缝处应涂刷二道防锈漆,并包扎纤维布一道后,再刷石油沥青两道。
球墨铸铁给水管:无防腐处理或防腐破坏时,则外壁刷冷底子油一道,石油沥青两道。
阀门井和检查井:本工程雨水检查井采用砖砌排水检查井;DN200~DN600管道检查井采用1000圆形砖砌雨水检查井,DN700~DN800管道检查井采用1250圆形砖砌雨水检查井,DN900~DN1000管道检查井采用1500圆形砖砌雨水检查井,DN1100~DN1400管道检查井采用矩形砖砌检查井。
雨水检查井做法详见02S515《排水检查井图集》;污水检查井均采用圆形砖砌污水检查井,检查井做法详见国标图集02S515-20。
给水阀门井采用收口式阀门井;阀门井做法参照05S502-15~25。
有检查井井盖位于机动车道上的检查井采用重型铸铁井盖;非机动车道检查井盖用高强纤维树脂系列:分重型、普通、轻型. (执行标准CJ/211-2005,CJ/T212-2005)位于非道路下采用非防护井盖检查井;室外铺装路面上的室外检查井均采用方形不锈钢铺装隐形井盖。
各种砖或其它材质砌块砌筑的阀门井、检查井、跌水井、雨水口、洒水栓井、消火栓井、水泵接合器井、水表井等均优先按国标图集进行施工。
雨水口做法参照国标图集05S518-9~10,每个雨水口均设置沉砂池;雨水口连接管串联雨水口个数不超过3个,单箅雨水口连接管管径均为D200,两个及以上连接管管径为DN300,其坡度不小于,每段长度不大于25m,连接管起点覆土绿化带下为,车行道下为。
绿化带内雨水为收集路面雨水,雨水口标高比路面略低。
管槽回填土:全部管道均应试压、试水和防腐施工合格后,方可进行回填土施工。
从管底基础至管顶上部500mm以内,必须用人工回填,严禁用掘土机回填。
管顶500mm以上用机械回填土时,应从管轴线两侧均匀进行,并夯实碾压。
沟槽内的回填土应分层夯实。
管道接口处的回填土应仔细夯实,不得扰动管道的接口。
给排水构筑物:水表井做法国标图集05S502-44页进行施工,增加旁通管、旁通管后安装倒流防止器。
室外消火栓安装详见国标图集01S201-21支管深装和01S201-24干管安装。
消防水泵接合器安装按照国标99S203-17页SQX150-A型地下式水泵接合器进行施工。
在路面上的井盖,上表面应同路面相平,无路面井盖应高出室外设计标高200mm,并应在井口周围以的坡度向外做护坡。
化粪池采用砖砌化粪池,施工按国标图集02S701《砖砌化粪池》进行。
其人孔采用重型球墨铸铁双层井盖、井座。
通气管室外埋设部分采用涂塑钢管,出气口就近引至绿化带内。
管道试压和试水:室外给水管道试压应按《给水排水管道工程施工及验收规范》(GB 50268-2008)第条及第条的规定进行,给水管网试验压。
消火栓给水给水管网试验压力为,自喷系统给水给水管网试验压力为.室外排水管的试水要求,应按《埋地聚乙烯排水管管道工程技术规程》CECS164:2004中的“附录D 闭水阀试验”的规定进行。
管道冲洗给水管道试压合格交付使用前,应按《给水排水管道工程施工及验收规范》GB 50268-2008第条的要求,对管道进行冲洗消毒。
室外消火栓在与室内给水管连接前,必须将室外给水管冲洗干净,其冲洗强度应达到消防时最大设计流量.其它:图中所注尺寸:除距离、管长、标高以m计外,其余均已mm计。
图中所注标高:给水管和其它压力管道为管中心标高,排水管和其它重力流管道为管内底标高。
本工程图纸采用1956黄海高程基准和1980西安坐标系。
本工程所采用的管道、阀门及附件等,均应符合国家现行的相关“产品标准”的质量要求。
除以上说明外,在施工中,还应遵照下列规范、规程:《建筑给水排水及采暖工程施工质量验收规范》GB50242-2002《给水排水管道工程施工及验收规范》GB50268-2008《给排水构筑物工程施工及验收规范》GB50141-2008未尽事宜按国家现行规范执行。