施工管理工作流程图
- 格式:doc
- 大小:238.50 KB
- 文档页数:11
1.1施工管理阶段流程图工程施工管理流程图质量控制进度控制项目部参加监理部组织的竣工预检项目经理组织项目管理人员对竣工工程进行预验1.参与对地基基础、主体工程、装饰装修工程、屋面工程、水暖及燃气工程、通风与空调工程、建筑电气工程、智能建筑工程、电梯工程、室外工程分部工程及所属分项、检验批工程的验收及试运行2.记录、整理、汇总施工技术资料,成本控制1.项目部对预验结果需要整改处进行整改,再由监理人员进行验收2.项目部的质量保证资料进行验收- 正式验收合格,建设、设计、承包、监理单位在竣工文件上签字,参加建设单位组织竣工验收仪式合同管理项目部解散工程移交建设单位,建设、监理、承包单位办理交接手续,工程进入保修期信息管理沟通参加建设各方之间的关系2.1工程施工(质量、进度、成本、安全)控制动态图3.1工程质量保证体系工作流程图4.1工程质量控制体系流程图:工程部、物资部审查合格审查不合格1 T原表(A1)报项目监理部合格 工程开工 总监理工程师项目经理部5.1工程质量控制程序1)单位工程质量控制基本程序(图5-1) 2)开工基本程序(图5-2)第一次工地会议已开过,已经过施工管理交底,项目经理部认为已具备开工条件,填报《工程开工/复工报审表》(A1)检查施工准备情况: 1. 各项开工报批手续已落实2.施工组织设计及施工方案已批准3. 现场测量控制桩已经查验合格4. 现场“四通一平”已经满足施工需要5. 项目经理部的施工、管理、技术人员已到位6. 各项管理制度已建立7.主要建筑材料及施工设备已到场,并满足开工需要 8.其它开工需要的条件已具备项目经理3)分包单位资格审查基本和序(图5-3)4)施工组织设计(施工方案)审批基本程序(图5-4)分包商评价:1营业执照2 . 资质证明3专业许可证4境内承包工程许可5 . 技术能力6 . 人员配备7 . 机械设备8 . 实际业绩9 . 领导层状况1 0财务状况1信誉状况1其它必要文件商务部直接选定分包商业主报送分包单位资质有关资料并填报《分包单位资格报审表》业主对有关情况进行不同意,清退分包单位审查、调研不同意,清退分包单位项目监理部同意签定施工分包合同项目经理部分包商进场施工项目经理部5)工程测量放线签认基本程序(图5-5)编制工程项目的施工组织设计(施工方案),技术部组织管理人员进行审查项目总工审核以下重点内容:1.承包单位的报批手续和申报程序是否符合要求2.施工程序和顺序是否合理,采取的施工方法是否可行,质量保证措施是否可靠3.工期安排是否符合施工合同规定的开工、竣工日期4.进度计划能否保证施工的连续性和均衡性5.承包单位的技术、质量保证体系是否健全6.安全施工防止事故,消防、场区卫生环保、文明施工的保证措施是否安排齐备7.季节施工方案、专项施工方案的可行性、合理性、先进性8其它必要的内容项目总工报项目监理部技术部V■按批准的施工组织设计及施工方案组织施工报项目监理部审查项目监理部IF工程部6)工程材料、构配件和设备质量控制基本程序(图5-6)不同意修改后再报1 .3.4.5.6.7.物资供应计划审批物资采购计划工程部、商务部项目经理物资部采购文件物资部、商务部采购文件审批项目经理物资采购物资部供方生产的资规质、模供货情况供方质量体系现状供方评价物资部、商务部业绩运输及社储存会信能力誉管理物资质量的验证对物资部报来的工程用材料的质量资料进行审核,对材料实物进行检查签定(需要时)对产品是否影响结构安全度、耐久性、使用功能、观感效果,以及是否符合设计要求及违反现行法令、法规的规定,进行严格的控制物资部选定工程用材料后,报送产品合格证、材质化验单、复试合格证等有关规定的资料,物资部选定建筑构配件厂后,报送厂家资质、产品合格证等有关规定的文件资料,选定设备制造厂后,报送厂家资质、产品合格证、产品说明书等有关规定的文件资料对到场的建筑材料、构配件进行检查核对,并按有关规定进行法定检验,监理见证取样送检对到场设备进行开箱检验清点(必要时会同设备安装单位)不合格填报《工程材料/构件/设备报审表》(A9)报项目监理部记录工程物资质量台帐质量咅E施工任务单工程部7)工程预检、隐检,检验批、分项、分部工程签认基本程序(图5-7)8)工程质量问题及工程质量事故处理基本程序(图5-8)9)单位工程验收基本程序(图5-9)10)工程项目保修阶段验收基本程序(图5-10)6.1工程进度控制程序(图3-1)7.1工程成本控制程序1)工程款支付基本程序(图7-1)2)竣工结算控制的程序(图7-2)8.1合同管理的程序1)工程变更管理的基本程序(图8-1)5)合同争议调理的基本程序(图8-5) 6)违约处理的基本程序(图8-6)7)工程暂停及复工管理的基本程序(图8-7)3)工程洽商控制及签认的基本程序(图8-3) 4)费用索赔管理的基本程序(图8-4)一方提出工程洽商要求,取得另一方同意后,共同填写《工程变更单》(C2)表并签认提出工程洽商要求,填写(C2)表并签认 业主、项目经理部 设计单位涉及设计问题,征求设计单位意见*— 审核工程洽商要求 主管设计工程师不同同意,签认意,返回重新研(C2)表审查洽商,提出意见建设单位。
一、服务承诺及响应承诺1工程施工管理流程图1、 市场拓展及开发1、 投标书的编制是否1、 中标通知书领取1、规划性文件编制2、材料设备需求计划编制3、 施工图纸预审和交底4、工程进度计划编制5、相关作业指导书技术1、入场人员合同签订及归纳入档综合部负责1、现有库存数量的清查2、根据材料及设备计划对不足物资进行购买3、提供物资部负责 有无1、现有试验设备及工具的维护及保养2、新入库设备的电气试实验班负责 5、收集相关设备的合格证及说明书6、对需检测物资部负责 1、 现场施工操作2、现场施工进度的控制3、施工质量及安全工作的监督及执行4、分部分项技术部、工程部负责1、 现场施工操作2、现场施工进度的控制3、施工质量及安全工作的监督及执行4、分部技术部、工程部1、检查施工过程中存在的缺陷技术部、工程部1、配合监理单位对已完成工程项目进行初步验收2、 对验收缺陷登记在册技术部、工程部工程自验收缺陷处理业主验没1、施工过程中的后勤保障2、施工综合部负责 物资部负责(施1、对已安装设备进行交接试验实验班负责 1、根据验收缺陷清单处理已发现的缺陷2、最后一轮处理现场存在的各种问题技术部、工程部通电开通土建 目信息收集项目部成立理单位验收电气施工标工作准备施缺陷处理工程验收 1、业主验收,提供相关的技术资料及在现场进行技术说明2、1、开通手续的办理2、关单位的交流沟通通通电土建施工项目信息收集项目部成立监理单位验收电气投标工作准备工前的准备工作缺陷土建分部分项 工程验收4、 配合业主验收,提供相关的技术资料及在现场进行技术说明 5、 提供技术部、工程部4、 送电开通手续的办理 5、 与相关单位的交流沟通 技术部负责 1、 收集相关设备的合格证及说明书2、 对需检技术部负责 技术部负责 1、相关资质文件的准备2、标书综合部负责 中标工作技术部负责。
工程施工管理流程图1.1施工阶段管理工作总程序框图(图1-1)2.1工程施工(质量、进度、成本、安全)控制动态图质量控制进度控制选择分包商、供应商施工并确认隐、预检工程施工并确认检验批、分项分部工程米购并确认进场材料、构配件、设备记录、整理、汇总工程质量报表参加工程质量事故的调查处理制定工程总进度计划制定工程年季月度工程进度计划加强对进度计划的动态控制对年季月度进度计划进行修改确定完成的工程量沟通参加建设各方之间的关系项目部参加监理部组织的竣工预检3.1工程质量保证体系工作流程图4.1工程质量控制体系流程图:5.1工程质量控制程序1)单位工程质量控制基本程序(图2)开工基本程序(图 5 —2)1.2.3.4.5.6.7.8. 熟悉各掌握施工图纸,做好会审, 参与设计交底编制施工组织设计(施工方案),并认真执行建立并完善项目组织机构及技术、质量保证体系并确定其有效运行选择施工分包商及供应商现场检查,核查工程隐检、预检,实行三检制施工并确认检验批、分项、分部工程验收采购并确定进场的材料、构配件、设备的质量,对影响工程质量、使用功能及观感的材料设备进行预控记录、整理、汇总工程归档资料针对本工程的内容,根据本工程的施工组织设计及施工方案,编制本工程的质量计划作为质量控制的依据第一次工地会议已开过,已经过施工管理交底,项目经理部认为已具备开工条件,填报〈〈工程开工/复工报审表》(A1)项目经理部经有关质检、监理人员检查签认后可进入下一道工序质量部工程部、物资部、F整改合格工程部工程竣工,自检合格,填写〈〈工程竣工报验单》(A 10),申请竣工验收项目经理部签复表(A 10)要求整改总监理工程师项目监理部组织的竣工预4■验收1 . 确定各施工工序质量控制目标2.确定各施工工序和工艺过程的质量控制点3.制定质量隐患防范措施4.质量控制管理程序执行细则检查施工准备情况:1. 各项开工报批手续已落实2. 施工组织设计及施工方案已批准3. 现场测量控制桩已经查验合格4. 现场“四通一平”已经满足施工需要5. 项目经理部的施工、管理、技术人员已到位6. 各项管理制度已建立7. 主要建筑材料及施工设备已到场,并满足开工需要8.其它开工需要的条件已具备项目经理项目监理部审查合今格审查不合格结构安全及功能检测质量监督站参加业主组织的竣工验验,项目经理部1r进行工程移交工程技术质量资料归档项目经理部质量部技术部原表(A 1)报项目监理部总监理工程师合格工程开工项目经理部3)分包单位资格审查基本和序(图5—3)4)施工组织设计(施工方案)审批基本程序(图 5 —4)编制工程项目的施工组织设计(施工方案),技术部组织管理人员进行审查项目总工审核以下重点内容:1.承包单位的报批手续和申报程序是否符合要求2.施工程序和顺序是否合理,采取的施工方法是否可行,质量保证措施是否可靠3.工期安排是否符合施工合同规定的开工、竣工日期4.进度计划能否保证施工的连续性和均衡性5.承包单位的技术、质量保证体系是否健全6.安全施工防止事故,消防、场区卫生环保、文明施工的保证措施是否安排齐备7.季节施工方案、专项施工方案的可行性、合理性、先进性8.其它必要的内容项目总工报项目监理部技术部不同意修改后再报5)工程测量放线签认基本程序(图 6 )工程材料、构配件和设备质量控制基本程序(图 5 —6)1. 3. 4. 5. 6. 7.物资供应计划审批物资采购计划丄程部、商务部■ 项目经理 IP物资部采购文件 供方评价 物资部、商务部物资部、商务部采购文件审批项目经理物资采购物资部供方的资情况现状物资质量的验证对物资部报来的工程用材料的质量资料进行审 核,对材料实物进行检查签定(需要时)对产品是否影响结构安全度、耐久性、使用功 能、观感效果,以及是否符合设计要求及违反 现行法令、法规的规定,进行严格的控制 物资部选定工程用材料后,报送产品合格证、 材质化验单、复试合格证等有关规定的资料, 物资部选定建筑构配件厂后,报送厂家资质、 产品合格证等有关规定的文件资料,选定设备 制造厂后,报送厂家资质、产品合格证、产品 说明书等有关规定的文件资料 对到场的建筑材料、构配件进行检查核对,并 按有关规定进行法定检验,监理见证取样送检 对到场设备进行开箱检验清点(必要时会同设 备安装单位) 质量部合格业绩运输及社储存会信能力誉供方质量 管理体系不合格填报〈〈工程材料/构件/设备报审表》 (A 9)报项目监理部记录工程物资质量台帐质量部出库物资质量检查、物资质量台帐物资用于工程实体亠 --工程部 w------------------ 1质量部7)工程预检、隐检,检验批、分项、分部工程签认基本程序(图 5 —7)8)工程质量问题及工程质量事故处理基本程序(图5—8)9)单位工程验收基本程序(图5—9)10 )工程项目保修阶段验收基本程序(图 5 —10)提出竣丄验收要求1.组织各专业(含分包商)现场进行竣工自检合格2.各项施工技术资料根据有关规定整理齐全合格3.竣工档案完成,基本符合城建档案管理部门的要求4.填报〈〈工程竣工报验单》丄程部、技术部组织各专业质量丄程师申核竣丄资料并现场检查丄程完成情况及工程质量,进行内部验收,发现问题要求工程部整改项目经理、总工1.组织建设、设计、承包单位进行竣工预验,对发现的工程质量缺陷通知承包单位整改2.对竣工资料审核中发现的问题通知承包单位修改,并签批(A 10)表总监理工程师V.承包单位整改后,填写(A~10)表,再次要求验收2. 总监理工程师组织监理人员检查,认为合格可以进行正式验收,总监理工程师签复(A 10)表项目经理部、项目监理部组织承包、设计、监理单位有关人员监领导人员位按请各出上级主管部门人员进行正式验收,验合格的竣工档人员在做好工程竣证书》工作字。
工程项目施工管理流程图表
一、项目启动阶段
1.初步规划
–制定项目目标和范围
–确定项目可行性
–分配项目资源
2.立项决策
–经过评估和讨论,项目是否值得继续进行
二、项目准备阶段
1.设计规划
–编制施工设计
–筛选合适的设计方案
–确定工程施工方案
2.材料采购
–制定采购计划
–进行供应商竞标
–确定采购额度
3.施工准备
–筹备劳动力资源
–准备相关施工设备和工具
–制定施工进度计划
三、施工执行阶段
1.施工管理
–按照施工计划进行现场管理
–合理调配人力和物力资源
–处理突发事件和问题
2.质量控制
–定期进行质量检查
–进行质量验收和整改
–做好工程质量记录和报告
3.安全管理
–制定安全生产规章制度
–加强安全培训和教育
–实施安全检查和隐患排查
四、项目收尾阶段
1.完工验收
–进行竣工验收和评估
–整理项目资料和档案
–完成结算和交接手续
2.项目总结
–总结项目经验和教训
–提出改进建议和优化措施
–撰写项目总结报告
五、项目关闭阶段
1.拆卸及清理
–完成拆卸和清理工作
–处理废弃物和材料
2.结算和归档
–结算尾款和其它费用
–归档管理相关文档和数据
以上是工程项目施工管理的流程图表,从项目启动到项目关闭一共分为五个阶段,每个阶段都有具体的工作安排和管理要点。
在实际操作中,应根据具体项目情况灵活调整和完善管理流程,以保障工程项目的顺利进行及高质量完成。
工程施工管理流程图1.1 施工管理阶段流程图
2.1工程施工(质量、进度、成本、安全)控制动态图
3.1 工程质量保证体系工作流程图
4.1
5.1 工程质量控制程序
1)单位工程质量控制基本程序(图5-1)2)开工基本程序(图5-2)
3)分包单位资格审查基本和序(图5-3)
4)施工组织设计(施工方案)审批基本程序(图5-4)
不同意修
改后再报
5)工程测量放线签认基本程序(图5-5)
6)工程材料、构配件和设备质量控制基本程序(图5-6)
7)工程预检、隐检,检验批、分项、分部工程签认基本程序(图5-7)8)工程质量问题及工程质量事故处理基本程序(图5-8)
9)单位工程验收基本程序(图5-9)
10)工程项目保修阶段验收基本程序(图5-10)
6.1 工程进度控制程序(图3-1)
7.1 工程成本控制程序
1)工程款支付基本程序(图7-1)2)竣工结算控制的程序(图7-2)
8.1 合同管理的程序
1)工程变更管理的基本程序(图8-1)2)工误延期管理的基本程序(图8-2)
3)工程洽商控制及签认的基本程序(图8-3) 4)费用索赔管理的基本程序(图8-4)
5)合同争议调理的基本程序(图8-5) 6)违约处理的基本程序(图8-6)
7)工程暂停及复工管理的基本程序(图8-7)
\\。
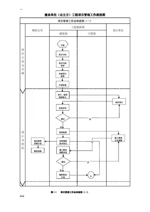
建设单位(业主方)工程项目管理工作流程图图1-2 项目管理工作总体流程(二)图1-3 施工协调管理流程图1-4 工程建设月报上报流程图1-5档案信息管理流程竣工审查工程竣工档案 审核工程竣工档案工程竣工档案移交提出档案管理的目标计划及要求收集自身负责的 所有相关文档案 及影像资料经施工单位审核后 上报验竣工资料做好纸质文档的 收发保管工作, 每月整理影像资按要求对文件资料 进行归档工作工程竣工档案移交・ 至公司档案室 确认工程竣工档案w 移交接受工程竣工档案彳移交确认工程档案管理目 标、档案范围及要求项目安全管理工作总体流程(一)图2-1 项目安全管理工作总体流程(一)***安全监察部 监督检查工程 安全管理体的 建立和运行参建单位项 刖 期 及 施准 备 阶 段 &&&图2-2 项目安全管理工作总体流程(二)图3-1 项目质量管理工作总体流程(一)图3-2 项目质量管理工作总体流程(二)图3-3 施工质量控制管理流程图4-2 项目造价管理工作总体流程(二)图4-3工程进度款管理工作流程图4-4 工程变更管理工作流程图4-5成本控制管理工作流程***图5-1 项目进度管理工作总体流程****** 否是否 合格 材料进货检验(设备开箱)流程图工程指挥部监理单位施工单位物资公司工程部开始组织验货按意见处理W是结束进货检验 设备开箱参加设备 开箱验货对不合格设备 提出处理意见 并清出现场物资发放 建立跟踪记录进入设备合格 区并建立台账乙供材 料存在 缺陷联 系厂家 处理物资(设备)到货, 提出物资使用计 划,各种试验报告,申请验货图5-3 材料进货检验(设备开箱)流程***图6-1项目技术管理工作总体流程。
工程施工管理流程图1.1 施工管理阶段流程图
2.1工程施工(质量、进度、成本、安全)控制动态图
3.1 工程质量保证体系工作流程图
4.1 工程质量控制体系流程图:
5.1 工程质量控制程序
1)单位工程质量控制基本程序(图5-1)2)开工基本程序(图5-2)
3)分包单位资格审查基本和序(图5-3)
4)施工组织设计(施工方案)审批基本程序(图5-4)
不同意修
改后再报5)工程测量放线签认基本程序(图5-5)
6)工程材料、构配件和设备质量控制基本程序(图5-6)
7)工程预检、隐检,检验批、分项、分部工程签认基本程序(图5-7)8)工程质量问题及工程质量事故处理基本程序(图5-8)
9)单位工程验收基本程序(图5-9)
10)工程项目保修阶段验收基本程序(图5-10)
6.1 工程进度控制程序(图3-1)
7.1 工程成本控制程序
1)工程款支付基本程序(图7-1)
8.1 合同管理的程序
1)工程变更管理的基本程序(图8-1)2)工误延期管理的基本程序(图8-2)
3)工程洽商控制及签认的基本程序(图8-3) 4)费用索赔管理的基本程序(图8-4)
5)合同争议调理的基本程序(图8-5) 6)违约处理的基本程序(图8-6)
.
. 7)工程暂停及复工管理的基本程序(图8-7)。