新农村三层小别墅设计图纸附效果图
- 格式:doc
- 大小:693.00 KB
- 文档页数:2
8米面宽的农村3层小户型别墅含平面布局图纸
农村人有的是宅基地,一家一块这是肯定的事实,但不是所有人的宅地都属于那种很方正大气的样式,多数人的宅地归结为狭长小户型设计,所以今天就给大家带来一套农村小面宽户型设计,三层新中式别墅,以供建房需要。
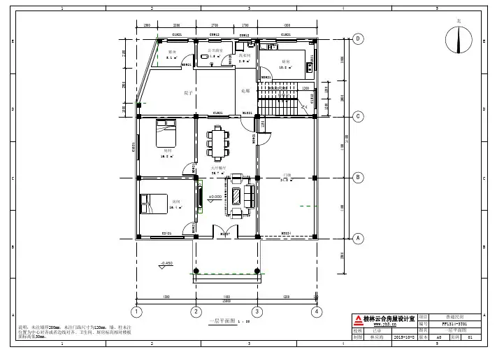
平面布局图;
首层布局设有堂屋车库,无设计卧室,餐厅位于正北处,方便日常就餐。
二三层布局一致所以绘在了一起,双卧室的配备设计带有起居房,同时东北方位单独设计了一间书房以供日常工作需要,三层的娱乐室可改造为屋顶阳台,以丰富农村人的日常生活。
阁楼层平面布局图:
立面图展示:
剖面图:。
三层实用农村自建房设计图施工图图纸属性
编号: DC0194 层数:三层结构形式: 砖混结构主体造价: 24—28万
开间: 11.14米进深: 11.8米占地面积: 120平方米建筑面积: 333平方米图纸内容
建筑图: 建筑设计说明、一层平面图、二层平面图、三层平面图、屋顶平面图、正立面图、背立面图、右立面图、1—1剖面图
结构图:结构设计说明、结构构造详图、基础平面图、基础详图、二层梁平法施工图、二层板配筋图、三层梁平法施工图、三层板配筋图、屋面梁平法施工图、屋面板配筋图、楼梯结构图、节点大样图
设计功能
一层: 客厅、卧室、厨房、餐厅、卫生间、车库
二层:客厅(附阳台)、3卧室、贮藏室、2卫生间
三层:客厅(附露台)、卧室(附露台)、2卧室、贮藏
室、卫生间。
鲁班设计图纸网:最新提供的三层别墅房屋图纸大全《鲁班设计图纸网》因为有限制不能展示太多,只能展示有限的套数,如果想看到更多请搜《鲁班设计图纸网》《鲁班设计图纸大全》自建别墅的设计方案,每套都有外观图、效果图、结构图、施工图(平面图、立面图、剖面图、结构图、水电暖、钢筋)等,图纸皆为.dwg格式,可直接编辑修改出图;同时,图纸还包括独栋别墅、双拼别墅、联排别墅、欧式别墅、农村小别墅等;其中分单层,二层、二层半、三层、三层半等多种户型;另外,配套的还含有1000套室内装修方案大全,庭院设计图纸。
6400多套自建房屋,自建别墅设计方案。
都是对自建房屋,自建别墅非常有帮助的资源。
因为有限制如果想看更多可以进鲁班设计图纸网看一下新平法图集和老平法图集区别1、老图集以2002版《砼规》、2001版《抗规》、2002版《高规》为编制依据,新图集以2010版《砼规》、2010版《抗规》、2010版《高规》为编制依据。
2、老图集一共有六本,新图集整合为三本。
3、老图集墙柱共有10种,新图集墙柱类别划分为4类(仍为10种)。
4、老图集剪力墙拉筋只标注一种间距,新图集需要标注两种间距,并增加双向拉筋与梅花双向拉筋示意图。
5、梁钢筋在支座内的锚固按铰接设计及按充分利用钢筋的抗拉强度设计,老图集是设计应按《规范》规定另行变更,新图集是设计者应注明。
6、老图集板类别有4种,新图集为3种,取消了延伸悬挑板YXB。
7、老图集无梁板中没有暗梁AL构件,新图集无梁板中增加了AL构件。
8、老图集未区分板端支座按铰接设计或按充分利用钢筋抗拉强度设计,新图集有区分并规定设计应注明。
9、老图集板相关构造类型共有13种,新图集共有11种,取消了板挑檐TY和悬挑阴角附加筋Cis。
10、老图集锚固长度分为受拉钢筋最小锚固长度La和受拉钢筋抗震锚固长度Lae,新图集锚固长度以基本锚固长度Lab为基础,通过修正系数计算受拉钢筋锚固长度La和抗震锚固长度Lae。
新农村三层小别墅设计图纸附效果图
图纸属性
编号:DC0178 层数:三层结构形式:砖混结构主体造价:24-28万
开间:9米进深:11.6米占地面积:100.6平方米建筑面积:209.93平方米
图纸内容
建筑图:建筑设计总说明、门窗表、一层平面图、二层平面图、三层平面图、屋顶平面图、正立面图、背立面图、左立面图、右立面图、1-1剖面图、卫生间大样图、门窗详图、节点详图
结构图:结构设计说明、基础施工图、基础详图、一层结构平面图、二层结构平面图、三层结构平面图、一层梁结构平面图、二层梁结构平面图、三层梁结构平面图、一层柱结构平面图、二层柱结构平面图、节点配筋图、楼梯结构图
给排水图:给排水设计说明、一层给排水平面图、二层给排水平面图、三层给排水平面图、屋顶给排水平面图、给排水系统图
电气图:电气设计说明、配电系统图、弱电系统图、电位联结做法及系统图、一层照明平面图、二层照明平面图、三层照明平面图、一层插座平面图、二层插座平面图、三层插座平面图、一层弱电平面图、二层弱电平面图、三层弱电平面图
设计功能
一层:客厅、卧室、厨房、餐厅、杂物间、卫生间
二层:卧室(附阳台,衣帽间,卫生间)、2卧室、卫生间
三层:卧室(附卫生间,阳台)。