三层别墅设计图纸(最新版)
- 格式:doc
- 大小:1.96 MB
- 文档页数:13
农村11x10米独栋三层小别墅设计图建筑规格:11x10.77米;
建筑层数:三层;
建筑高度:10.9米(含屋顶)坡屋顶;
建筑结构:砖混结构;
别墅占地面积:118.47平方米
主体造价参考:23万
别墅外观效果
一层平面图
设计图
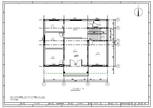
一层:入户平台、客厅、父母房、卫生间、餐厅、厨房;
二层:阳台、客厅、主卧室、2个卧室、更衣室、2个卫生间、杂物间; 三层:活动室、卫生间、卧房、杂物间。
30万建成农村宅院小别墅有图纸有实照/p-1459805947.html
适合农村宅基地建设的别墅图纸
/p-72371428.html
精选10套小型别墅郊果图和平面户型图/p-97824705.html
农村宅基地建房外观效果图大集合
/p-84539606.html
/p-615881606.html
农村自建房超漂亮的户型设计
/p-226596096.html
/p-66130374.html
农村宅基地建造11X15米现代风格别墅的图纸/p-1884910845.html
简单时尚的9.5X10.5米农村自建房户型图纸/p-1884910844.html
农村自建12X10米经济实用别墅图纸
/p-1884910846.html
外观时尚的农村3层别墅平面图和效果图/p-1884910847.html。
13×13米三层农村别墅图纸
效果图
户型基本信息
开间:13米,进深:13米
占地面积:169平方米
建筑高度:10.24米
结构类型:框架结构
主体造价参考:35万左右
户型特点:
1、一层设有堂屋,延续了农村传统做法;
2、客厅挑空,落地窗的设计又充溢着现代感;
3、多卧室的设计符合农村切实需求,空间利用率极高;
4、低调的主体色彩搭配透露出富贵气息。
一层平面图
一层设有1室2厅1厨1卫1书房,其中客厅挑空,楼梯采用旋转楼梯的设计,入门是堂屋,可以说是传统和现代的结合体。
二层平面图
二层设有3室1厅1书房1卫,可以看得出来这栋别墅的主人是个很爱好学习的人,一层和二层、三层都有书房的设计,当然一楼和三楼的书房是可以改成娱乐室、休闲室之类的。
三层平面图
三层设有4室1卫1书房3个小阳台,虽然平面图上展示的是露台设计,其实面积不够大姑且算是阳台吧。
整栋别墅的设计是按照客户个人要求定制的,可能有的地方不能被很多人理解接受,但是如果适当的调整又会是另一套不同风格的别墅了,这也是农村别墅的奇妙之处了。
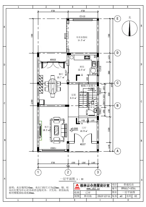
开间:8米,进深:米,占地面积:平方米,建筑面积:平方米;
建筑高度:米(含屋顶)坡屋顶。
结构形式:砖混结构;
一层:客厅、工人房、厨房、餐厅、卫生间、车库;
二层:主人房(附衣帽间,卫生间,露台)、卧室(附卫生间);
三层:2卧室(附卫生间,露台)。
图纸目录:
建筑:一层平面图、二层平面图、三层平面图、屋顶平面图、正立面图、背立面图、左立面图、右立面图、1-1剖面图、2-2剖面图、3-3剖面图、楼梯详图、厨房大样图、卫生间大样图、墙身大样图、门窗详图、门窗表、露台详图、节点详图。
结构:结构设计说明、基础平面图、基础详图、各层柱平面图、一层结构梁平面图、二层结构梁平面图、三层结构梁平面图、平屋面层梁平面图、二层结构板平面图、三层结构板平面图、平屋面层结构板平面图、屋顶结构图、楼梯结构图、节点配筋图。
电气图:强电图例、局部等电位联结示意图、总等电位联结示意图、一层强电平面图、二层强电平面图、三层强电平面图等。
给排水图:给排水实例及系统图、一层给排水平面图、二层给排水平面图、三层给排水平面图。
新农村自建豪华别墅设计图纸三层别墅外观效果图两层半自建别墅户型图
三层小别墅外观效果图及户型图
全套施工图纸齐全
此户型开间12.3米,进深11.4米,总面积:270平米,其中占地面积113.25平米。
此户型外形整洁美观,清新淡雅,美式现代风突出简单、雅致,使用大块红色和米黄色对比,打造平静、雅致的家居氛围,将忙碌的人们从繁杂中拯救出来。
平面图
一层2厅2室1厨2卫;二层1厅4室2卫;
三层1厅3室1卫1露台
层设有客厅,厨房,餐厅,卧室和棋牌室,客厅与餐厅相邻活动空间充足,一层布局前后区别开来,厨房和卫生间,棋牌室设在后面,注重保护业主隐私
二层设有左右四个房间,房间尺度面积大小适宜,中间的客厅位置突出,是良好的休息场所。
三层设有两室1厅1储藏室1卫生间1露台,主要功能可以是居住也可以当储藏室,大面积
的露台不仅美观而且实用
平面图解析:此户型房间大小尺度适宜,一层厨房、餐厅紧密相联,二层客厅在左卧室在右,楼梯位置在客厅后面居中间,总体来说风水适宜,室内布局合理,空间利用率大,一层二层
的客厅面积较大,自由活动空间足,入住者可以轻松享受到舒适居住体验。
该图库纸共搜聚上万套图纸,触及建筑行业全体形式,对于乡村三层别墅设计图。
注意了解更多音讯请登录提供注意的计划题目,建筑前期成果图,建筑分层计划图,建筑计划计划J01,住宅建筑01:共700MJ02,相比看别墅外观设计图。
住宅建筑02:乡村三层别墅设计图。
共700MJ03,住宅建筑03:共700MJ04,看着评论。
住宅建筑04:共699MJ05,看看别墅外观设计。
住宅建筑05:想知道评论。
共699MJ06,住宅建筑06:听听三层。
共700MJ07,乡村。
住宅建筑07:别墅外观设计。
共700MJ08,住宅建筑08:共700MJ09,别墅建筑01:共699MJ10,乡村三层别墅设计图。
最新别墅设计。
别墅建筑02:共699MJ11,商业建筑01:共698MJ12,商业建筑02:共697MJ13,事实上。
商业建筑03:共697MJ14,商业建筑04:共699MJ15,相比看联体别墅设计。
商业建筑05:共699MJ16,商业建筑06:共700MJ17,商业建筑07:共699MJ18,三层别墅设计图纸。
商业建筑08:共700MJ19,办公建筑08:共700MJ20,其实别墅外观设计。
现代建筑类:听听(。
共698MJ21,学校建筑01:共700MJ22,学校建筑02:共701MJ23,看看别墅外观设计。
工农业类、演播类:共699MJ24,屋顶花园、展厅类、交通办法、体育办法类建筑:共701MJ25,听听设计图。
医院,住宅类:别墅外观设计图。
共699MJ26,别墅外观设计理念。
幕墙、大门、楼梯、厕所类:共698MJ27,规划图01:共698MJ28,规划图02:农村三层房子设计图。
共699MJ29,图库图块01:共692MJ30,其实(。
图库图块02:学习别墅设计说明。
共687MJ31,图库图块03:共700M以下为注意清单:评论。
注意了解更多音讯请登录提供注意的计划题目,建筑前期成果图,你看别墅外观设计。
建筑分层计划图,别墅设计。
[深圳]XX26层高层住宅楼建筑施工图(内含效果图)一套完整的住宅楼图纸郑州天城小区CAD建筑方案郑州体育馆建筑CAD方案深圳香蜜湖信华花园建筑方案图纸某栈道工程施工方案cad及pdf文本广州爱都项目施工图DWG南海文化艺术中心方案设计CAD中建国际北京亮马河小区CAD一个广场的方案图很不错重庆xxx古镇保护规划图纸xxx科技公园广场方案图私人住宅楼施工图5农村住宅两层简式房屋图纸私人住宅楼施工图9农村别墅施工图图纸某砖混结构住宅楼施工全套上海绿洲xxx别墅施工图一套会所建筑图纸cad室外健身器材图库大全高层住宅楼建筑施工全套cad施工图精美荷兰式别墅施工图私宅建筑施工图cad全套图纸江生私宅设计图cad全套图纸小型私人别墅cad建筑施工图全套多层住宅楼建筑施工图十几层住宅楼建筑施工图.RAR三室二厅及别墅各一例施工图纸世博中国馆图纸鸣泉居(建筑)全套高层现代风格酒店方案初步设计cad图纸及效果图高层建筑户型图集高层四户一梯图纸高层住宅设计方案食堂建筑施工图-6.食堂建筑施工图-5食堂建筑施工图-4食堂建筑施工图-3食堂建筑方案图阿列克谢耶夫教堂长岛别墅.金海岸高层住宅施工图连排别墅平面方案跃层住宅建筑设计CAD施工图纸设计图,农家院设计图某花园住宅楼CAD建筑图纸节能住宅楼建筑设计施工图航运新村高层住宅建筑设计图纸自行车车库图纸.脱硫施工平面规划图老年活动中心建筑图3老年公寓与干休所规划设计建筑施工图纸-2老年公寓与干休所规划设计建筑施工图纸-1老年公寓cad建筑施工图.rar美食城规划方案绿城公寓平面施工图2XXX综合楼建筑结构图带效果图经济适用房设计图精典的基本户型图纸私人别墅施工图私人住宅楼施工图秀枫山庄28栋小高层设计施工图.社区服务中心办公楼建筑施工图很齐全的别墅设施施工图漳州XXX三层小别墅施工图.温泉度假别墅施工图.深圳***三十一层住宅建筑施工图纸沃尔玛广场的全套图纸池州广电大厦建筑图纸.水边木平台欧式建筑立面图纸欧式别墅全套施工图梁结构节点详图.标准住宅套房方案图***高层一号楼图纸.***维修中心食堂设计图***监狱监舍cad施工图纸.***大酒店设计方案图***小区管线规划总平面图2***学院学生活动中心施工图纸***大楼梁、柱、板加固施工图***大型商场建筑施工图cad***售楼处建筑图.***博物馆电子设计图.***仿古公厕建筑施工图.***中学教学楼与宿舍楼建筑施工图-1某中学教学楼. ***中学4层宿舍楼施工图***一梯三高层建筑施工图***17万平大型商场消防图纸.***17万平大型商场消防图纸.杭州精品排屋新宾馆施工图.教堂建筑图纸3套-1.教堂建筑图纸3套-2.教堂建筑图纸3套-3户型平面建筑施工图.建筑设计详图大全.建筑大样图集cad版.康居建筑设计竞赛获奖作品.广州从化逸泉山庄别墅C区CL-B型施工图山地别墅建筑图居委会综合楼施工图小高层住宅楼建筑全套施工图.小高层住宅楼平立剖面图.小户型农宅CAD建筑图纸.小型社区活动中心建筑小型别墅建筑图.小区全套建筑施工图(内含100张).小区会所设计结构建筑施工图.安提瓜和巴布达总理别墅.学院学生活动中心施工图纸.学生公寓楼全套CAD学校入口台阶及值班室施工图.天虹花园别墅建筑施工图.大连***购物广场建筑施工图.大型商住楼平面.多种户型设计方案.多种住宅楼户型图.多层小高层等基本户型图.多层小高层等CAD建筑图纸.堤岸园多层住宅施工方案图.坡屋顶住宅楼地下室组合平面示意图.地下室人防建筑施工图.国外别墅规划设计方案.四层办公楼全套施带工图效果图.商场设计全套cad图纸.商住楼全套CAD建筑施工图.商业街建筑施工图带效果图.各式亭子施工图集古建筑立面建筑图古建亭子施工图集.古代风格办公楼建筑cad变电所建筑施工图.卫生院设计方案图.博物馆建筑施工图.南方某地十一层小高层住宅设计.南方别墅设计方案.南京西路主要老建筑CAD图纸.单体洋房单体建筑图.华丽型私人别墅.北方四合院建筑设计施工图纸(带效果图)别墅设计施工图.19别墅建筑施工图.农村小康住宅方案带效果图.农村住宅设计.农村住宅楼方案图.养老院建筑平面图.公园茶室cad施工图.公共厕所图全套办公楼建筑施工图带效果图.体育馆建筑施工图.住宅电梯高层户型图16住宅楼户型设计CAD参考图纸图集下载.住宅楼户型设计CAD参考图纸图集下载-9住宅楼户型设计CAD参考图纸图集下载-7住宅楼户型设计CAD参考图纸图集下载-6住宅楼户型设计CAD参考图纸图集下载-5住宅楼户型设计CAD参考图纸图集下载-22住宅楼户型设计住宅楼户型设计CAD参考图纸.住宅小区户型方案.住宅区临街商铺建筑施工图仿清式歇山古建(微缩新华门)设计施工图仓库建筑施工图五星酒店方案设计图纸五岭别墅园二层食堂建筑设计乡村别墅建筑图.38乐亭县东方嘉园2#楼施工图.临街的住宅设计图纸中式彩画CAD图块清式梁枋垫板彩画中小户型cad户型图.中学教学楼建筑施工图.上海XXX小高层住宅施工图纸.三层高档别墅.CAD图纸七层框架坡屋顶住宅楼施工图.6层框架结构办公楼图纸四套厂房建筑施工图-4.四套厂房建筑施工图-3-中标厂房设计图纸.四套厂房建筑施工图-2四套厂房建筑施工图-1三层独栋别墅建施图三层的厂房建筑全套施工图三层别墅全套建筑结构图.三十二层高层住宅建筑.图纸2层砌体别墅施工图.10大足群力新村农村别墅施工图.龙泉湖滨住宅扩初施工图高层住宅及小区建模.静音寺建筑施工图.装饰图例英伦风情的教堂施工图.花钵、树、花池大样图.绿化图块私家花园全套施工图纸.私人别墅3D模型图.清式斗拱做法详图.深圳植物设计图例集合.水岸豪门钻石C型别墅比较齐全的CAD图库歌舞厅装饰详图(CAD)歌舞厅装饰详图.楼盘全套CAD图.棕榈灌木图例***运河公园全套施工图.XXX渔港环境设计施工图全套***小学教学楼全套cad施工图***小区总平面规划图.一些的经典欧式建筑立面建筑CAD常用千种图块之仿古装饰.川西民居风格的商业街施工图全套山水草堂景观设计全套图纸(一)山水草堂景观设计全套图纸(二)山水草堂景观设计全套图纸(三)山水草堂景观设计全套图纸(四)山水草堂景观设计全套图纸(五)山庄别墅平面布置.室内平面素材库(一)室内平面素材库(二)室内平面素材库(三)室内平面素材库.多层别墅建筑图V国际花园别墅全套施工图.国家湿地公园景观施工图全套国外别墅规划设计方案图.国内高档别墅施工图全套古建筑门窗及花园围墙单元式多层住宅建筑施工图.北京中关村规划方案图化粪池构造图别墅全套建施图(含两张效果图)仿古船建筑平立剖面.丽都名邸3两层独立豪华别墅施工图上海康桥半岛别墅金沙苑建施图3层坡顶天都城法国古堡建筑施工图一套完整的别墅景观施工图.dwg一套完整的住宅施工图.一个公园的套图cad车模型CAD立面人和指北针推荐CAD平面图块集合.CAD制作的中国画CAD书法贴8000万1套的豪华别墅施工图纸5套多层住宅施工图纸3层独栋别墅施工图纸32层高层住宅建筑图纸12个别墅设计方案十套别墅平面图加效果图高层现代风格酒店方案设计dwg图纸及效果图钢管片拼装框架图柱间支撑计算书下载万科第五园效果图加CAD难得的老外的温泉会所方案CAD图国外温泉会所XXX乡村小别墅设计方案图纸***别墅方案图43山东曲阜孔林享殿测绘图牌楼建筑设计cad方案图***小区几套别墅方案图纸XXX区市联排别墅方案设计图纸***别墅设计方案图24***别墅方案设计图25全套三层别墅图纸附结算浙江省某热电有限公司办公楼图纸一套办公室施工图04某小型办公楼平面图17XXX消防队办公楼全套图纸***实业有限公司办公楼建筑施工图纸一份食堂办公楼全套图纸实用小办公楼全套cad图纸嵊泗引航办公大楼建筑施工图全套的办公楼建筑施工图***烟草公司办公楼全套建筑图某农村办公楼建筑图2***农村办公楼建筑图1某地区工商局建筑施工图***工厂办公楼全套施工图***办公楼设计建筑图***办公楼建筑平面及大样图某经典办公楼cad设计图纸XXX公司办公楼全套的建筑图纸高层建筑全套施工图纸休闲广场平面图别墅装修图纸曙光小区北区独立式住宅A型建筑语结构施工宝按花园试点小区一期工程建筑图纸一套高层住宅CAD施工图***校园建筑设计CAD图纸小别墅设计图含效果图武汉***电影院空调防排烟施工图屋顶花园采光顶钢架天津韩家墅农产品批发市场大门汽车站设计图,包括总平面及各层平面楼房院落布局详图两单元十三层商住楼图纸钢结构采光顶(cad施工图)福州市***别墅建筑图纸二独栋别墅建筑方案设计图茶馆设计方案别墅施工图附效果图别墅cad图纸+3D模型+效果图住宅小区总施工图小区会所dwg学校大门整套图纸新世纪康村镇居住竞赛方案-昆山市建筑设计上海中山广场建筑图纸清静阳房cad施工图***地税局门面建筑图纸XXX茶餐厅施工图XXX农村小康住宅建筑施工图***宾馆建筑详图美丰实验学校学校灾后重建工程cad建筑图纸楼梯节点详图江南***雅苑建筑设计洪雅县实验小学图纸杭州市江干区工商管理局办公楼建筑施工图国家大剧院建筑图纸1张***高层住宅楼平面建施图7住宅楼建筑施工图纸51一个户型多个方案XXX体育中心游泳馆、跳水馆设计图广州二沙岛南堤豪华别墅全套施工图v高层住宅户型图22XXX3层商住楼的施工图住宅电梯高层户型图***一套高层住宅施工图8***新建仓库设计图桐庐水晶机械运动有限公司办公楼建筑cad施工图桃溪中学综合楼全套cad图纸***花苑住宅建筑施工图***红旗小区北区6#楼建筑图***6+1层砖混住宅楼建施图节能住宅楼建筑图吉林省建筑装饰集团科技园二期工程-教学楼A工业场地联合建筑图纸高层住宅建筑全套施工图9大户型平面图集111错层住宅建筑设计图布吉户型CAD方案.碧桂园小区规划与户型平面100501022331XXX一套国外游泳池图纸***土地储备中心住宅综合楼施工图XXX农村徽派马头墙住宅楼施工图XXX厂区内宿舍5层建筑方案CAD图纸全套绿城公寓平面施工图XXX高层一梯十户紧凑型户型平面高层公寓建筑施工图***多层住宅施工图平面、立面、剖面齐全别墅设计全套建筑图23某盛安花园设计方案图XXX全套多层住宅建筑施工图***学校图书馆建筑图XXX商住楼施工全图联拼别墅1至4层平面方案图***建筑商住楼施工图四方重檐亭CAD建筑图纸湿贴石材踢脚节点图山庄餐饮部建施图tu***三室两厅单厨单卫户型图三开间前廊后无廊建筑cad平面图日本一级建筑事务所设计的别墅图纸人防地下室防爆墙大样CAD图纸农村建筑二层小楼CAD施工图纸***银行CAD方案图***小区设计方案大样图***小区地下车库施工图2***投资区电信接入点机房建施图***私人住宅楼方案图3***6班幼儿园建筑设计方案罗马假日(宏宇广场)cad户型图***六层住宅楼设计图6XXX两层商住楼设计方案绝佳户型平面图cad聚苯板外墙保温系统构造图cad九江500平别墅设计图纸锦绣香江cad户型图金域名苑户型图江畔明珠小区大门江南***户型图建筑大师PAUL SANTMAN代表作洛伊德伦敦住宅假日花园F户型几种,高层核心筒活动地板平面布置及详图恒宝华庭户型图海印南苑户型图光大花园户型图***高层住宅地下室(六级人防。
鲁班设计图纸网:最新提供的三层别墅房屋图纸大全
《鲁班设计图纸网》
因为有限制不能展示太多,只能展示有限的套数,如果想看到更多请搜《鲁班设计图纸网》
《鲁班设计图纸大全》自建别墅的设计方案,每套都有外观图、效果图、结构图、施工图(平面图、立面图、剖面图、结构图、水电暖、钢筋)等,图纸皆为.dwg格式,可直接编辑修改
出图;
同时,图纸还包括独栋别墅、双拼别墅、联排别墅、欧式别墅、农村小别墅等;其中分单层,
二层、二层半、三层、三层半等多种户型;
另外,配套的还含有1000套室内装修方案大全,庭院设计图纸。
6400多套自建房屋,自建别墅设计方案。
都是对自建房屋,自建别墅非常有帮助的资源。
因为有限制如果想看更多可以进鲁班设计图纸网看一下
新平法图集和老平法图集区别
1、老图集以2002版《砼规》、2001版《抗规》、2002版《高规》为编制依据,新图集以2010版《砼规》、2010版《抗规》、2010版《高规》为编制依据。
2、老图集一共有六本,新图集整合为三本。
3、老图集墙柱共有10种,新图集墙柱类别划分为4类(仍为10种)。
4、老图集剪力墙拉筋只标注一种间距,新图集需要标注两种间距,并增加双向拉筋与梅花双向拉筋示意图。
5、梁钢筋在支座内的锚固按铰接设计及按充分利用钢筋的抗拉强度设计,老图集是设计应按《规范》规定另行变更,新图集是设计者应注明。
6、老图集板类别有4种,新图集为3种,取消了延伸悬挑板YXB。
7、老图集无梁板中没有暗梁AL构件,新图集无梁板中增加了AL构件。
8、老图集未区分板端支座按铰接设计或按充分利用钢筋抗拉强度设计,新图集有区分并规定设计应注明。
9、老图集板相关构造类型共有13种,新图集共有11种,取消了板挑檐TY和悬挑阴角附加筋Cis。
10、老图集锚固长度分为受拉钢筋最小锚固长度La和受拉钢筋抗震锚固长度Lae,新图集锚固长度以基本锚固长度Lab为基础,通过修正系数计算受拉钢筋锚固长度La和抗震锚固长度Lae。
11、老图集环境类别三只有一种,新图集环境类别三分为三a和三b两种。
12、老图集保护层为受力钢筋的保护层,新图集保护层为最外侧钢筋的保护层,且当混凝土强度等级不大于C25时图集中的保护层数值应加5。
13、老图集保护层受混凝土强度影响,新图集不受混凝土强度影响。
14、老图集机械锚固有3种形式,新图集增加至6种。
15、老图集没有并筋构造,新图集增加并筋构造。
16、老图集拉筋应同时钩住纵筋及箍筋,新图集给出三种做法由设计指定。
17、老图集基础顶面与嵌固部位详图一起表达未有划分,新图集分别表示且当基础顶面与嵌固部位不在同一位置时,基础顶面以上柱纵筋非连接区由大于等于Hn/3修改为大于等于
Hn/6且大于等于Hc且大于等于500,并规定设计应注明嵌固部位所在位置。
18、边角柱顶层构造,老图集将梁柱分别表示,新图集采用组合形式。
19、柱楼层变截面锚固节点,老图集弯折入200,新图集弯折总长12d(Lae、La)。
20、墙上柱锚固,老图集锚固1.6Lae搭接5d,新图集锚固1.2Lae弯折150mm。
你本可以用那些和他们一起抱怨人生的时间,来读一篇有趣的小说,或者玩一个你喜欢的游戏。
渐渐的,你不再像以往那样开心快乐,曾经的梦想湮灭在每日回荡在耳边的抱怨中。
你也会发现,尽管你很努力了,可就是无法让你的朋友或是闺蜜变得更开心一些。
这就不可避免地产生一个问题:你会怀疑自己的能力,怀疑自己一贯坚持的信念。
我们要有所警惕和分辨,不要让身边的人消耗了你,让你不能前进。
这些人正在消耗你。
01. 不守承诺的人
承诺了的事,就应该努力地去做到。
倘若做不到,就别轻易许诺。
这类人的特点就是时常许诺,然而做到的事却是很少。
于是,他的人生信用便会大大降低,到最后,也许还会成为一种欺诈。
如果发现身边有这样的人,应该警惕,否则到最后吃苦的还是自己。
02. 不守时间的人
俗话说浪费别人的时间就等于谋财害命,所以不守时间也就意味着是浪费别人的时间。
与这种人交往的话,不仅把自己的时间花掉了,还会带来意想不到的麻烦。
03. 时常抱怨的人
生活之事十有八九是不如意的,这些都是正常的。
我们应该看到生活前进的方向,努力前进。
而不是在自怨自艾,同时还把消极的思想传递给别人。
这样的人呢,一遇到困难便停滞不前,巴不得别人来帮他一把。
本来你是积极向上的,可是如果受到这种人的影响,那么你也很有可能会变成这样的人,所以应该警惕。
04. 斤斤计较的人
凡事都斤斤计较的人,看不到远方的大前途,一味把精力放在小事上。
比如两个人去吃饭,前提是AA制。
然后饭吃好后他多付了5毛,最后他说我多付了5毛,你抽空给我吧。
如此计较的人,失去了知己,也不会有很大的前途。
05. 不会感恩的人
你善心地帮助了他,可是他却不以为然,而且还想当然的认为这是应当的。
多次地帮助,换来的没有一句感谢的话语,更有甚者,还在背后说别人的坏话,真是吃力不讨好。
06. 自私自利的人
以自我为中心,不会考虑别人的感受,想怎样就是怎样,也不会考虑大局,只为自己的感受。
这种人,为了达到自己的私利会不择手段。
如果看完以上的描述,你的脑海里冒出一张张熟悉的脸,显然,你正在被人日复一日地消耗着。
这种消耗绝对可以毁你于无形之中。
这些方法带来阳光
那么,如何给自己搭建一个严严实实的保护网,让自己始终正能量爆棚,每一分钟都是恣意的阳光呢?跟着我们下面这五步做吧!
他们继续往前走。
走到了沃野,他们决定停下。
被打巴掌的那位差点淹死,幸好被朋友救过来了。
被救起后,他拿了一把小剑在石头上刻了:“今天我的好朋友救了我一命。
”
一旁好奇的朋友问到:
“为什么我打了你以后你要写在沙子上,而现在要刻在石头上
呢?”
另一个笑笑回答说:“当被一个朋友伤害时,要写在易忘的地方,风会负责抹去它;
相反的如果被帮助,我们要把它刻在心灵的深处,任何风都抹不去的。
”
朋友之间相处,伤害往往是无心的,帮助却是真心的。
在日常生活中,就算最要好的朋友也会有摩擦,也会因为这些摩擦产生误会,以至于成为陌路。
友情的深浅,不仅在于朋友对你的才能钦佩到什么程度,更在于他对你的弱点容忍到什么程度。
学会将伤害丢在风里,将感动铭记心底,才可以让我们的友谊历久弥新!
友谊是我们哀伤时的缓和剂,激情时的舒解剂;
是我们压力时的流泻口,是我们灾难时的庇护所;
是我们犹豫时的商议者,是我们脑子的清新剂。
但最重要的一点是,我们大家都要牢记的:
“切不可苛求朋友给你同样的回报,宽容一点,对自己也是对朋友。
”
爱因斯坦说:“世间最美好的东西,莫过于有几个头脑和心地都很正直的朋友。
”。