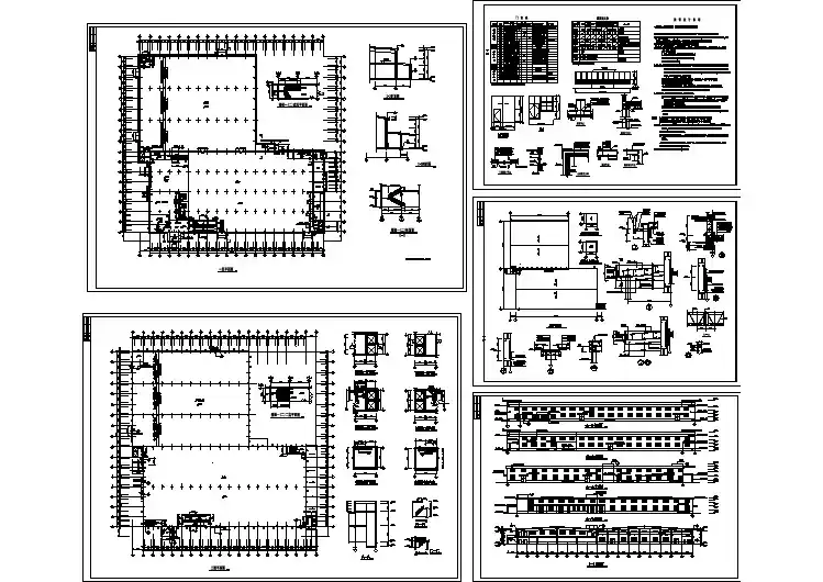
2#+1请通知有关人员验槽基槽开挖后平面图中所注尺寸不包括垫层尺寸5.4.水泥砂浆砌筑Fak = 120KPa其余未标注者均以下墙体采用 非粘土烧结实心砖混凝土:c.3.钢筋b.:%%c%%p0.000a.C10级外,级钢%%c,MU10级钢HRB335,M10根据相邻工程地质勘探报告,以第一单元粉质粘土夹粉土层为持力层,1.说明地基承载力特征值按C30级.,,待正式勘探报告提供后,经我方校对无误后,方可基础施工。基础平面布置图L90x56x6L90x6611A基础顶面抗剪键DE7550mm厚C40细石混凝土刚架定位后浇筑预埋抗剪键1-1%%c206彩钢推拉门彩钢泛水板轨道现场定雨蓬挑梁2%彩钢雨篷板北-0.200%%P0.000生产车间一层平面图1:100上C1809C1809C1809C1809库房库房二、三层平面图下下护栏做法参照楼梯扶手提升机机坑提升机预留洞-0.200%%P0.0004.5009.000111-挑梁高墙檩宽门过梁4.000复合墙板外板钢柱复合墙板内板玻璃棉-0.2001.0005.500-0.200%%P0.0005.5007.3009.7004.500墙檩2.9002.000-0.2005.5007.3001.0003.1003.1007.3003.10065801J925-1女儿墙内檐沟其中墙体部分按06J925-1中41页节点17(复合板)执行。126101J925-1夹芯板屋脊56906J925-266906J925-216806J925-216806J925-21.000西立面图东立面图南北立面图2-4.500墙檩复合保温墙板玻璃棉1-1剖面图-0.02005YJ1“外墙12”银灰色仿石面砖压型钢板复合保温外墙白色-4601J925-105YJ1“外墙12”银灰色仿石面砖压型钢板复合保温外墙白色05YJ1“外墙12”银灰色仿石面砖-4301J925-