结施01-结构设计总说明
- 格式:pdf
- 大小:387.53 KB
- 文档页数:1
建筑设计院制图标准(结构)结构图制图标准及深度要求(2011版)第⼀部分制图标准⼀、总则本标准参照国家和院内相关标准制定,在建筑六所内部使⽤。
1、⼯作⽬标:规范所内制图标准,提⾼⼯作质量和⼯作效率,为院内开展协同设计打下坚实基础。
2、总体要求:结构制图表达要求简洁、完整、统⼀、针对性强、逻辑清晰,便于阅读使⽤。
⼆、制图软件原则上要求采⽤“TSSD3.0+cad2004”及以上版本进⾏制图。
三、图幅1采⽤三院标准图签,同时尽量采⽤A1图幅(便于施⼯现场阅读使⽤),同⼀⼦项图幅种类不应超过2种;尽量采⽤标准图幅,如确需加长(只允许长边加长)。
2、图纸选⽤图幅应把握⼯整、疏密有度原则,主要图纸应尽量采⽤同⼀图幅及其加长版。
3、图框由专业执⾏负责提供给各设计⼈员。
四、图层及颜⾊图层设置要求详下表:注:在绘图中切记同⼀性质图需采⽤同种图层。
五、字体出于图纸美观及字库统⼀的考虑,结构制图标注样式及字⾼主要采⽤TSSD 软件缺省值。
字体设置详下表:注:不要改动缺省⽂字样式。
六、线型及线宽除个别特殊注明者外图纸使⽤颜⾊控制出图线宽。
以多义线控制线宽的图形元素详下表:图形元素图层线宽线型备注轴线DOTE 0 CENTER2梁线beam 0 ByLayer,DASH 按正投影法绘制平⾯图竖向构件竖向构件50 ByLayer图名线图名80 ByLayer剖⾯线⼩剖⾯50 ByLayer图框、表格⼩剖⾯0 ByLayer 图框外框线才⽤50厚粗线七、⽐例1、平⾯图以1:100为主,若⼯程平⾯较⼤,出图⽐例可采⽤1:150,但应注意相关字体⼤⼩及图框应协调统⼀。
2、⼤样图以1:25为主。
3、单独绘制的楼梯平⾯绘图⽐例为1:50。
⼋、封⾯、图纸⽬录及结构总说明封⾯、图纸⽬录由具体制图⼈员整理绘制;结构设计总说明由专业执⾏负责整理绘制。
九、图⾯表达1、绘制⽅式;(1)结施图均采⽤正投影法绘制。
上层柱及梁上柱⽤粗实线表⽰,并填充注明“梁上柱”(详图列⼀)。
工程量清单与计价应用毕业设计一、施工图纸某办公楼建筑工程施工图目录序号图号名称1 建施01 建筑设计说明2 建施02 门窗明细表3 建施03 一层平面图4 建施04 二、三、四层平面图5 建施05 屋顶平面图6 建施06 1—1剖面图7 建施7 台阶详图散水详图1.本工程建筑面积300.00m2。
2.本设计标高以m为单位,其余尺寸以mm为单位。
3.砖墙体在标高-0.060m处做1:2水泥砂浆加5%防水剂的防潮层20厚。
4.各层平面图中,墙体厚度除注明者外,均为240厚。
5.盥洗室地面标高比楼地面标高低20mm,阳台、楼梯间入户地面标高比楼地面标高低30mm。
6.安装铝合金窗时按墙中线安装,所有平开门在门后均安装固门器。
7.天沟内采用C20细石混凝土找坡1%,厚度为20mm(最薄处),屋面、天沟防水涂膜采用聚氨酯涂膜。
8.雨篷、窗台线等构件,凡未注明者,其上部抹20mm厚1:2水泥砂浆并按1%找排水坡,底面抹15mm厚1:2水泥砂浆,面刷仿瓷涂料三遍,并做20mm宽滴水线。
9.凡木材与砌体接触处,均涂防腐剂。
10.落水管及雨水口材料为镀锌铁皮。
建筑装饰做法说明表楼面1.钢筋混凝土楼板2.刷素水泥浆一道3.20厚1:2干硬性水泥砂浆结合层4.10厚铺地砖,稀水泥浆填缝盥洗室楼面1.钢筋混凝土楼板2.刷素水泥浆结合层3.1;8水泥炉渣充填(卫生间)4.60厚C20细石混凝土(卫生间)5. 20厚1:3干硬性水泥砂浆找平层6.1:1水泥细砂浆粘贴防滑地板砖面层楼梯面层同楼面踢脚1. 6厚1:2.5水泥砂浆找平扫毛2.5厚1:1水泥细砂浆压实抹光3.面层同地面、楼面,高度150mm盥洗室内墙面1.6厚1:3水泥砂浆打底扫毛2.6厚1:2.5水泥砂浆找平扫毛3.6厚1:0.1:2.5水泥石灰膏砂浆结合层4.3厚陶瓷墙地砖胶粘剂粘贴内墙釉面瓷砖,稀白水泥浆擦缝其他内墙面1.7厚1:3水泥砂浆打底扫毛2.7厚1:3水泥砂浆找平扫毛3.6厚1:2.5水泥砂浆压实抹光4. 满刮腻子两遍,乳胶漆三遍外墙面1.7厚1:3水泥砂浆打底扫毛2.刷素水泥浆一道3.12厚1:0.2:2水泥石灰膏砂浆结合层4.3厚T920瓷砖胶粘剂贴6-12厚面砖,用J924砂质勾缝剂勾缝2700 DLM100-36-K/93M—2 1000×210018 胶合板门M—3 800×21009 塑钢门M—4 1000×21001 钢防盗门建施02门窗明细表序号图号名称1 结施01 结构设计说明2 结施02 基础平面结构布置图3 结施03ZJ-1、ZJ-2大样图1-1、2-2、3-3、4-4剖面图4 结施04 J1、J2基础详图5 结施05 二三四层楼面结构布置图GZ、QL大样图6 结施06B配筋图YP-1、YP-2大样图7 结施07屋顶结构布置图TGL1-1、TGL2-2详图8 结施08楼梯配筋图TKL-1剖面图一、一般说明1.全部尺寸除注明外,均以“mm”为单位,标高以“m”为单位;2.本工程±0.000为室内地面标高,相当于测量标高;二、抗震设计及防火要求1.本工程按三级抗震设防;2.本建筑物耐火等级为二级。
工程图纸目录及图纸(按招标文件所附光盘)
图纸目录(建筑、结构)
一、图纸目录
工程图纸目录及图纸(安装工程)一、图纸目录
20#楼电气
一、图纸目录
20#楼给排水
21#楼电气
一、图纸目录
21#楼给排水
26#楼电气
26#楼给排水
28#楼电气
一、图纸目录
28#楼给排水
一、图纸目录
29#楼电气
一、图纸目录
29#楼给排水
一、图纸目录
地下车库电气
地下车库给排水
文体中心电气
文体中心给排水
1#地下车库人防工程二期电气
1#地下车库人防工程二期给排水
社区及物业27#楼暖通
1#地下车库人防工程二期暖通
21#楼暖通
21#楼暖通
26#楼暖通。
结构设计总说明(二)1.4剪力墙连梁梁侧腰筋大于墙水平分布需单独设置时, 梁侧腰筋与剪力墙水平分布筋连接详见6-4。
1.5基础埋深内(地下室地面下)剪力墙洞品加强做法详图6-5。
2.钢筋混凝土框架柱构造2.1框架柱纵身钢筋连接、箍筋等构迁及大样说明及框架柱在上下截面变化时,大样均详见03G101-1第36-41页。
2.2柱中竖向钢筋宜采用机械连接或焊接,如采用绑扎搭接,其接头位置应避开柱端部箍筋加密区,直径大于等于22㎜时必须采用机械连接,接头应符合II级及以上接头性能。
3.混凝土框架梁构造:3.1楼面梁采用平法绘图,梁配筋表示方法详标准图03G101-1,各层梁分另编号。
框架梁(KL,WKL)钢筋锚固及接头做法按第54,55页三级抗震等级框架梁构造执行。
框架梁上生柱做法详第39页。
3.2非框架梁及挑梁的构造详见03G101-1第65~66页。
3.3框架梁钢筋搭接,箍筋加密,吊筋及宽窄梁连接等构造及大样说明详见03G101-1第63页。
3.4当梁一端支撑在砼墙上或柱上,另一端支撑在梁上时,支撑于墙或柱的一端做法按框梁的构造要求,支撑于梁的一端做法按普通梁的构造要求,具体做法详见03G101-1相应的构造做法。
当垂直支撑于砼墙的梁端做法做法大样详图6-63.5所有主次梁相效处均在主梁上次梁的两侧各附加3Фd@50(d为主梁箍筋直径),需设吊筋者吊筋规格见平面图,当梁高(腹板高度)≥450时需于梁两侧附设纵向构造筋,当图中构造钢筋未注明时,按照图6-7设置。
附加箍筋、吊筋及纵向构造筋大样说03G101-1第63页,平面图中所抗扭纵筋锚固做法详第63页3.6当梁的跨度≥4m时,模板按跨度的0.2%起拱;悬臂梁按悬臂长度的0.4%起拱。
起拱高度不小于20㎜。
3.7主次梁交接处,当主次梁的纵筋处于同一标高时,次梁的上下纵筋应放在主梁纵筋之上,主梁上筋的保护层取(25+d)㎜,(d为次梁上筋直径),下部纵向筋节点大样详见图6-8。
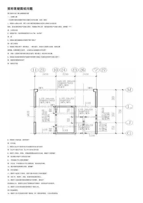
招标答疑图纸问题周⼝森林半岛⼆期13#楼图纸问题⼀、13#楼⼟建(凡各楼中提到结通施中相关问题均为共性问题,应统⼀修改)1、结施01-a 第6.4.2条:置于⼟体中填充墙选⽤MU10砼实⼼砖M7.5⽔泥砂浆砌筑,其他位置采⽤加⽓混凝⼟砌块;⽽建施01第4.2条:填充墙采⽤加⽓混凝⼟砌块。
请明确⼀下?答:以结构为准2、结施02 桩1、桩2顶标⾼是否应为-6.17M、-8.47M?答:是3、结施04 填充墙基础⼤样是⽤于哪个部位?答:⼀层门厅部分4、结施05 详图①⽤于⼀侧为填⼟,⼀侧为室外,标⾼为-0.5M⾄-0.05M,具体位置请明确。
如果两侧均为室内, -0.5M⾄±0.00M墙体为何材质?答:详图⼀主要⽤于图中索引部位及室内⼀侧为填⼟⼀侧为洞⼝的位置。
5、结施08 机房屋顶层结构平⾯图中梁布置与结施21 电梯机房顶梁平法施⼯图不⼀致,板配筋布置是否有误?答:修改如下图:6、结施09 11轴为Q6,是否有误?答:应为Q2。
7、结施14 XL2尺⼨是否为0.2*0.45是否应为0.25*0.45?答:XL2尺⼨是0.2*0.45,XL1尺⼨改为0.25*0.608、结施T1 详图3、详图4、详图8挑檐厚200是否应为80,截⾯尺⼨请明确?答:该位置处详图尺⼨200应改为809、⼀层地⾯3:7灰⼟厚度请明确?答:卫⽣间、不封闭阳台3:7灰⼟厚度350,其余房间为390。
10、通往电梯机房楼梯⽆详图,请明确?答:详共性附图⼀11、建施T1 地2含门厅做法,是否与楼1所含的门厅做法重复?答: ⼀层门厅、电梯厅、前室、⾛道均按地2做法施⼯。
12、建施T1 设备间是否是指排烟机房与排烟井、通风井?答:是指地上⽔、电管井以及地下排烟机房与排烟井、送风机房与送风竖井。
13、建施T1 ⽣活⽔泵房具体是何部位?图纸上⽆。
答:只有26#楼有。
14、建施T1 顶1与顶2是否⽭盾?管道间(井)具体指何部位,⽣活⽔泵具体指何部位?答:顶1与顶2不⽭盾;管道间(井)具体指地上⽔、电管井以及地下排烟机房与排烟井、送风机房与送风竖井;⽣活⽔泵只有26#楼有。
一、一般说明1.本说明包括的范围:主楼、辅楼及地下室。
2.本工程设计使用年限为50年,建筑结构安全等级为二级,使用过程中应注意定期维护。
3.全部尺寸除注明外,均以毫米(mm)为单位,标高则以米(m)为单位。
4.本工程设计标高±0.000相当于绝对标高:21.2000m(黄海高程系)5.本工程基础设计系根据武汉华中岩土工程有限责任公司2010年10月提供的武汉市老干部活动中心《岩土工程勘察报告》(详勘)进行设计的。
本工程建筑场地土类型为中软场地土,建筑物场地类别为Ⅱ类,无液化土层,场地内的地下水对砼,砼中的钢筋均无腐蚀性,地基基础设计等级为甲级,建筑桩基设计等级为甲级。
6.本工程主楼、辅楼下部共一个地下室,地下室顶板为主楼上部结构的嵌固端。
辅楼上部建筑为框架结构,主楼上部建筑为框架—剪力墙结构。
7.本工程建筑抗震设防类别为丙类,抗震设防烈度为6度,设计基础地震加速度为0.05g;设计地震分组为第一组。
根据武震办(2007)4号文件,本工程属于ⅢA设计地震动参数分区,地震影响系数最大值αmax=0.075,特征周期Tg=0.40s,设计地震动加速度放大系数最大值βm=2.5,设计地震动峰值加速度Amax=30gal。
各部分的抗震等级如下:(1)地下室抗震等级:主楼范围框架的抗震等级为四级,辅楼范围框架的抗震等级为三级,剪力墙的抗震等级为三级。
纯地下室(无上部结构)框架的抗震等级为:四级。
(2)辅楼为大跨度框架结构,其框架梁、柱抗震等级:三级。
(3)主楼为框架-剪力墙结构,其框架梁、柱的抗震等级:四级;剪力墙的抗震等级:三级。
8.本工程基本风压为0.35KN/㎡,基本雪压为0.5 KN/㎡,考虑风荷载的地面粗糙为:C类。
9.未经技术鉴定或设计许可,不得改变结构的用途和使用环境。
10.凡本说明未尽之处,均应按照国家现行施工验收规范有关要求施工。
11.本工程地下室防水等级为二级,地下室说明另详。
结构施工图纸审核意见共性问题:1、结通-01:1)、第四、2、(6)条中:“留出300mm以上用人工挖掘修正”的提法不妥,建议改为“预留200mm采用人工挖掘”。
2)、第五、1条中:建议将挡土墙与地下室外墙统一。
同时,对于表下注明的部位应明确抗渗等级。
3)、第五、4条中:表中“钢材”一栏应注明Q235B。
4)、第六、1条中:表中应给出“梁、楼板”二b环境下的保护层厚度为宜。
5)、第六、3条中:应给出机械接头的等级和采用机械接头钢筋的最小直径要求。
6)、第六、5、1)条中:“墙分布钢筋锚入暗柱La”的要求,应该为“墙体水平分布钢筋”及“Lae”。
7)、第六、5、2)条中:文字描述与图6内容不一致,建议取消其中以项。
8)、第六、5、3)条中:建议明确图7做法到底是用于“直径大于300mm”还是“D=300~450mm”建议统一。
9)、图8中标注“40d”建议改为“Lae”。
10)、第六、5、5)条附图中:洞口上下附加钢筋的图示长度应减小,并应单独标注“Lae”或补充文字(圆洞口的示意图遗漏)。
11)、第六、5、6)中:对于本项目连梁,腰筋直径无需额外要求(同墙体分布钢筋即可)。
12)、第六、7、1)中:取消所有后浇带中的附加钢筋做法。
底板、地梁应为“附加防水卷材”而不是图示的“双层防水层及垫层”。
具体做法参照北京院92版《结构专业技术措施》。
外墙后浇带处按照目前流行的施工做法,无需附加防水卷材。
所有后浇带示意中均缺少止水钢板、止水条或企口的示意。
13)、图10中b、c:除二级次梁的高度有差异外,两者无区别。
建议增加主梁与次梁的示意。
14)、第七、5中:构造柱尺寸建议改为墙厚X200或墙厚X250。
2、楼板上铁的尺寸标注,应注明是从轴线还是从梁(墙)外皮。
3、电梯门洞上口连梁尺寸,应按照层高减去建筑做法和洞口高度预留。
4、暗柱宽度等于300mm时无需设置拉接筋。
例如:1#楼结施-09中GAZ1的沿墙肢长方向的拉接筋应取消。