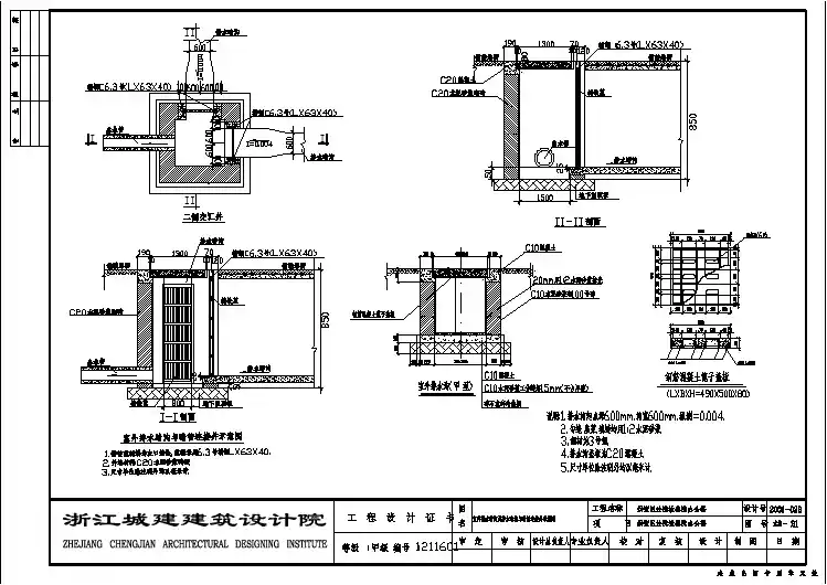
1232019602102④1616⑨141616⑧⑦⑥⑤1616⑩编号①14直径(mm)800800②16③16一 节 箱 涵 钢 筋 表395.91013920196056205620123202483420456205620123202483260526052102101424.62021135.22021135.22021488.7501.6202526.2202型式9900单根长(mm)99008008005620139207220单位重总长(m)3445.2根数3482811.92022021458.5砼2352.2670.91373.6831.41793.6310.44168.7625.52304.44442.8重量792.5备注1.581.581.581.211.581.581.581.581.581.21526.2260520219355.61.58合计%,总计钢筋总量288600.8kg,C25混凝土5214.7m,含钢率62.4kg/m。34966.4m合计C25 混凝土3274857.943型号1614钢筋加损失5总重(Kg)总材料表193386.281471.7430.1kg/m。434.3m,含钢率13051.5kg,C25混凝土%,总计钢筋总量3422.09008.0总材料表总重(Kg)加损失5钢筋1418型号3124303C25 混凝土合计413.6m316@10016@10014@10016@100⑨⑩⑦16@100①161416@100③1426①⑧16@10016@100①1462①2714①161416①14②⑥②⑥@100@100①16④16⑤14271462①16@100①2614①1614800500080050008001240090040008005700②62/2 14@200②101/2 16@100⑥101/2 16@100①54/2 14@200顶板下面底板下面①底板上面顶板上面1/4面板⑥101/2 16@100101/2 16@20054/2 14@200①62/2 14@200①①28 14@200①外面内面20 14@200③101/2 16@100外立板平面配筋图101/2 16@100⑦570049909980/2@200@20018@20018@20027①①341414@20014@20016@200⑧④⑤18@20018@200⑧⑦18@200①141618@200③14⑨18@20018@2006614①⑤18⑧18@20027①14①1414①1616②②⑥⑥@200@20018⑧18@200⑤18④6614①⑤18⑧18@200①1414①1634500012400570040001500150015005000800800⑦18@200③18@200⑥21 1818@200⑦ⅠⅢ-Ⅲ46/2 14Ⅰ①500012400800500015008003980①36 14@200③ 21 18@200 21 18@200⑦侧板配筋图20 14@200①48 14①②21 1821 18⑥②21 18底板配筋图21 18⑥66 14①顶板配筋图66/2 14①48/2 14①800186818⑤⑧⑨⑦⑥18141818③④18182322142069206920130208001868232216457095692013020852037366920直径(mm)②①编号800181480013020型式146203900单根长(mm)单个镇墩钢筋表 390084195.0290.6546.85590.542298.04242357.84242156.9614.01115.4总长(m)42286备注根数箱涵剖面配筋图说明:3.混凝土保护层厚度40mm。4.箱涵间伸缩缝宽度为20mm。2.箱涵两端止水安装受阻时可弯曲相关钢筋。1.图中尺寸以mm计。箱涵顶、底板配筋图C10素砼垫层厚100M7.5浆砌块石挡土墙M7.5浆砌块石挡土墙M7.5浆砌块石护底C10素砼垫层厚100C25砼挡土墙塑料止水7.回填土方必须夯实,干容重不得小于1.65g/cm 。6.涵洞上方回填石方时必须先回填土方3至5m作为缓冲层。2.每节涵洞之间的止水安装受阻时可弯曲相关钢筋。5.必须在涵洞砼强度达到80%后方可进行涵洞上方土方回填。立 剖面图见图C10素砼垫层厚100核定图号比例设计证号:审查设计CAD制图制图校核1:100剖面图镇 墩C10素砼垫层厚100说明:1.图中尺寸以mm计。4.每节方涵间伸缩缝宽度为2cm。3.混凝土保护层厚度40mm。施 工 图设计LG-YS-01日期2004.09部分31:200立面图 8005000800500010009004000800500050008008002420061008004005000300300100900400080080030050030020020020020050004000C10素砼垫层厚100剖面图1:10010008008004000900800500050008005000800AABBDDCCCCBBAADD5000800800L-600闭孔塑料泡沫板橡胶止水带双组份聚硫胶双组份聚硫胶双组份聚硫胶双组份聚硫胶4030L双组份聚硫胶L-600闭孔塑料泡沫板橡胶止水带20L-600闭孔塑料泡沫板橡胶止水带双组份聚硫胶L-600闭孔塑料泡沫板橡胶止水带双组份聚硫胶L204030L3040双组份聚硫胶橡胶止水带L-600闭孔塑料泡沫板4030L302584D--DB--BA--AC--C止水大样2.管端止水安装受阻时可弯曲相关钢筋。说明:3.砼中部设橡胶止水带,迎水侧设40mmX30mm双组份SGJL-851聚硫胶。1.图中尺寸以mm计。4.两联涵洞间预留20mm的沉降缝,缝内填沥青杉板。 双组份SGJL-851聚硫胶。1.图中尺寸以mm计。说明:1.图中尺寸以mm计。说明:1.图中尺寸以mm计。说明:1.图中尺寸以mm计。说明:1.图中尺寸以mm计。说明:1.图中尺寸以mm计。说明:施工技术总说明设计证号:校核制图CAD制图设计审查核定日期施 工 图LG-YS-02见图比例图号2004.09部分设计设计证号:核定审查设计CAD制图制图校核施 工 图日期图号比例见图LG-YS-04设计部分2004.09比例图号校核制图CAD制图设计审查核定设计证号:2004.09部分设计LG-YS-05见图日期施 工 图比例图号校核制图CAD制图设计审查核定设计证号:2004.09部分设计LG-YS-03见图日期施 工 图箱涵剖面配筋图箱涵顶、底板配筋图外立板平面配筋图涵洞洞身钢筋表设计证号:CAD制图核定审查设计制图校核日期1:502004.09比例LG-YS-06图号箱涵镇墩剖面配筋图施 工 图设计部分图号比例CAD制图设计证号:核定审查设计制图校核日期见图2004.09LG-YS-09立 板 配 筋 图施 工 图设计部分比例图号制图设计证号:CAD制图校核设计审查核定LG-YS-082004.09见图日期部分设计施 工 图止水、伸缩缝大样图设计设计证号:CAD制图制图日期见图比例LG-YS-10图号2004.09核定审查校核施 工 图设计部分顶板、底板配筋图设计图号比例CAD制图设计证号:制图日期1:502004.09LG-YS-07核定审查校核施 工 图设计部分①②8814@200300400800A大样A大样涵洞顶板C25砼挡土墙材料表②①编号12350型式14直径(mm)8 8002560800256012350单根长(mm)砼1.2125232根数645.12395.2总长(m)1.58单位重重量1019.3478.2备注25.0m,含钢率1572.0kg,C25混凝土%,总计钢筋总量加损失53362.9kg/m。加损失5%,总计钢筋总量一、设计依据:1.《水工设计手册》涵洞部分;2.水利电力出版社灌区水工建筑物丛书《涵洞》;3.国家、省及部委 颁发的与本工程有关的规范、规定。二、技术要求:(一)基础1.在基础开挖前,应在施工现场定出基础轴线、边线位置及各部分标高。控制好开挖深度,严禁超挖。2.根据附近相关地质资料,结合现场实际情况,建议涵洞基础落在粗砂3.如基坑湿度较大,且受地下水影响较大时,应做好降低地下水位和安 全支护工作,保证施工人员的安全。层上。1.涵洞洞身采用C25砼,砼配合比要根据实验确定,砼拌和时要严格按2.涵洞洞身砼浇筑时,必须控制好砼下落高度,当落差超过2m时,为防(二)涵洞洞身工程 照配合比进行,并控制好拌和时间和砼塌落度。 止砼离析,应当使用溜管或溜槽。2.其它未祥事宜参照国家、省、市的有关规范、规定执行。1.工程施工过程中遇到特殊问题,由建设单位、设计单位、(三)上下游砌石工程(四)涵洞的施工定线由建设单位根据工程实际情况现场确定。(六)其它为防止水流冲刷涵洞基础,保证涵洞的安全,涵洞的上下游河底进行护砌。(五)建议建设单位采用有资质的专业队伍进行施工,委托有资质的6.涵洞上方进行石方回填时,涵洞上方应预先回填3~5m的缓冲层。7.进行石方回填时,单块石头重量不得大于80kg。4.砼浇注完毕后应及时进行洒水养护,养护时间不少于七天。5.涵洞进行土方回填前,必须对涵洞的外露面进行防腐处理,外刷沥青防腐层两遍,单层厚度不小于1.5mm。3.砼进行二次浇注时,结合部位应设2~3cm厚的高标号砂浆。 监理单位进行监理。 监理单位和施工单位共同商议决定。外侧内侧内侧外侧ⅢⅢⅢ--ⅢⅢⅢ--剖面图施 工 图 设 计二 四年九月OO 11.9m3目 录LG-YS-01LG-YS-02LG-YS-03LG-YS-04LG-YS-05LG-YS-06LG-YS-07LG-YS-08LG-YS-09LG-YS-102.箱涵剖面配筋图1.立、剖面图3.箱涵顶、底板配筋图4.外立板平面配筋图5.涵洞洞身钢筋表6.箱涵镇墩剖面配筋图7.顶板、底板配筋图剖面图Ⅲ8.Ⅲ--9.立 板 配 筋 图10.止水、伸缩缝大样图编辑部:shuigong@ 水利网易 NetEase市场部:ivpmarket@ 技术部:ivptech@水利人的网络家园,打造水利人技术商务第一平台==土木在线