某大学教学楼全套平面设计方案详图
- 格式:dwg
- 大小:4.11 MB
- 文档页数:1
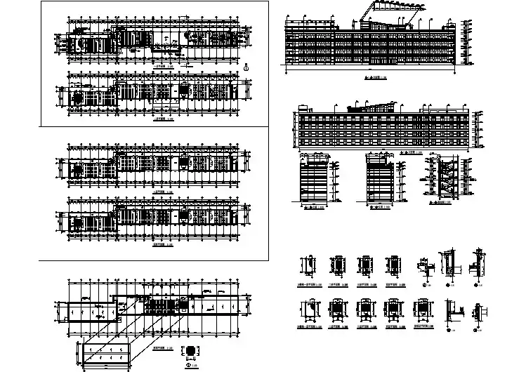
学士学位毕业设计XXX教学楼学生姓名:XXX学号:******XXXX指导教师:XXX所在学院:工程学院专业:土木工程图纸链接右键打开即可中国·XX2016年 5月XXX教学楼1工程概况本工程为北方某高校拟建一栋综合性教学楼1.1工程名称:XXX教学楼1.2建设地点:北方某市。
1.3 建设场地:场地平面见附录1。
1.4 建设规模:1.4.1 建筑面积:5917.51.4.2 建筑层数:5层1.4.3 净高:3.6m1.4.4 房间分配及面积组成:见附录22 设计原始资料2.1气象条件2.1.1冬季采暖室外计算温度-20°C。
2.1.2地区基本风压0.35kN/m2,全年主导风向为北风;2.1.3 基本雪压0.270kN/m2。
2.1.4最大降雨强度65.265mm/h,阵雨强度145145mm/h。
2.2 工程地质条件2.2.1根据对建筑基地的勘察结果,地质情况见附录3。
2.2.2地下水位:钻探至自然地面下7.5米处未见地下水。
地下水对混凝土结构不具腐蚀性,但在干湿交替条件下对钢筋混凝土结构中的钢筋具弱腐蚀性。
地基持力层为基岩。
2.2.3抗震设防烈度按7度考虑,场地类别为Ⅱ类,设计地震分组为第一组。
2.2.4建筑地点冰冻深度:室外天然地面以下300 mm。
3 建筑设计任务及要求3.1 设计任务按设计题目确定的工程项目,完成建筑总平面设计,平面、剖面及立面设计。
建筑功能、房间类型及数量的要求见附录1。
3.2 设计要求3.2.1 总平面设计:合理布置建筑主、次入口;解决好人流、车流关系;尽可能考虑室外停车;满足建筑物防火间距及消防通道要求。
3.2.2 平面设计:合理确定平面柱网尺寸;布置房间;确定楼(电)梯数量、位置及形式;满足室内采光、通风要求。
3.2.3 剖面设计:确定合理层高;给出楼(地)面、屋面、墙身构造做法。
3.2.4 立面设计:建筑风格、造型应富有创意,有时代感。
3.3 设计成果3.3.1 建筑设计说明书。