画法几何及阴影透视练习题
- 格式:doc
- 大小:119.00 KB
- 文档页数:5
画法几何与阴影透视复习题一一、过点M作一条与平面ABC平行的水平线(10分)二、补全平面图形的W面投影。
(10分)bacc' b'a'm'm三、铅垂线AB的高度是30mm,点B在基面内,求直线AB的透视。
四、求直线AB在承影面P和Q上的落影。
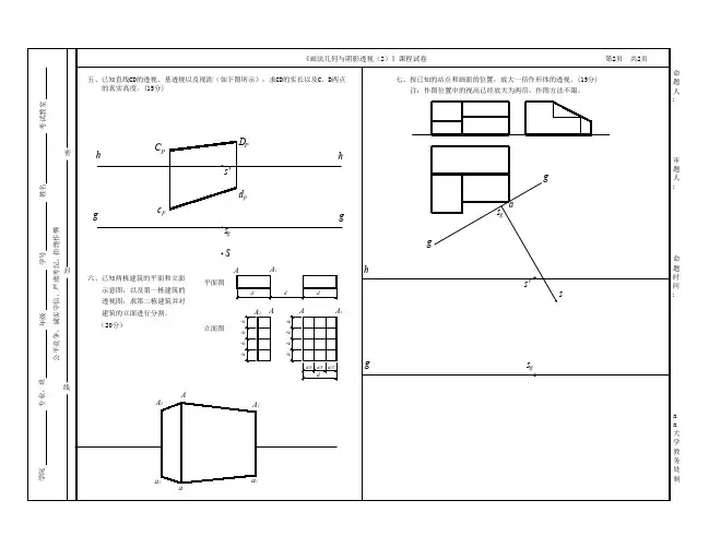
(保留辅助线)(10分)五、已知位于基面上的一T型块,并已知基线g-g、视平线h-h,画面p-p,s、so的位置,求该T型块的透视(25分)六、求地面上电线杆的落影。
(保留辅助线)(15分)七、做出窗台和窗洞的阴影。
(保留辅助线)(20分)复习题一标准答案及评分标准一作出辅助水平线5分作出mnm’n’点5分共10分二、补全平面图形的W面投影。
(10分)每条线1分,总体2分共10分三、铅垂线AB的高度是30mm,点B在基面内,求直线AB的透视。
(保留辅助线)。
(10分)辅助线6分,AB透视4分四、求直线AB在承影面P和Q上的落影。
(保留辅助线)(10分)AB点的透视4分,折点透视4分,连接2分五、已知位于基面上的一T型块,并已知基线g-g、视平线h-h,画面p-p,s、so的位置,求该T型块的透视(25分)心点作辅助线5分,站点作辅助线5分,真高线10分,连线5分共25分六、求地面上电线杆的落影。
(保留辅助线)(15分)落影各8分,辅助线7分七、做出窗台和窗洞的阴影。
(保留辅助线)(20分)窗台阴影10分,窗洞阴影10分复习题二一、过点M作一条与平面ABC平行的正平线(10分)bacc'b'a'm'm二、作出平面三角形ABC上三角形DEF的H面投影。
(10分)三、求基面内的线AB的透视图(保留辅助线)。
(保留辅助线)。
(10分)四、求直线AB在承影面P和Q上的落影。
(保留辅助线)(10分五、作出下图纪念碑的透视图(保留辅助线)(25分)六求地面上电线杆的落影。
(保留辅助线)(15分)七、做出窗台和窗洞的阴影。
阴影透视期末试题及答案一、选择题(每题2分,共计60分)1. 以下哪个是透视绘画中常用的方法?A. 漫反射B. 投影C. 渐变D. 美术史2. 透视绘画中,哪个要素负责给画面增加真实感和立体感?A. 光影B. 彩色C. 纹理D. 比例3. 以下哪种透视是主要用于绘制建筑物的?A. 线性透视B. 多点透视C. 空间透视D. 高斯透视4. 透视绘画中,下列哪种线条是垂直于地面的?A. 水平线B. 主视线C. 构图线D. 消失点5. 透视绘画中,哪个概念以“V”字型的透视线为特点?A. 单点透视B. 双点透视C. 三点透视D. 多点透视6. 以下哪种透视绘画方法主要用于描绘街道、铁轨等?A. 线性透视B. 对角透视C. 切面透视D. 环境透视7. 在透视绘画中,哪个概念能够帮助我们判断物体的消失点?A. 镜头焦距B. 透视投影C. 视觉角度D. 线性尺寸8. 以下哪个因素与透视绘画无关?A. 塑造B. 配色C. 平面构图D. 精细线稿9. 透视绘画中,哪个概念能够帮助我们确定远近景物体的比例关系?A. 细节表现B. 衬托效果C. 双重影线D. 错觉透视10. 对于透视绘画来说,以下哪个元素最重要?A. 线条B. 颜色C. 主题D. 笔触二、简答题(每题10分,共计30分)1. 解释线性透视理论,并描述其中的几何原理。
2. 请说明透视绘画中的投影法和透视法有何区别?3. 为什么透视绘画在建筑设计和室内设计中非常重要?请给出理由。
三、综合题(共计10分)请根据所学的透视绘画知识,选择一幅平面图,并在此基础上运用透视原理进行改造,使其呈现立体感。
答案:一、选择题答案:1. B2. A3. B4. A5. B6. A7. B8. D9. C10. A二、简答题答案:1. 线性透视是透视绘画中最简单的一种方法,通过使用一条水平线和一个消失点来创造出真实感和立体感。
几何原理是通过将远离我们的物体绘制得较小,而将靠近我们的物体绘制得较大,以达到透视效果。
一、判断下列直线对投影面的相对位置并填写它们的名称。
(制图要按照比例、位置放对,否则不得分,一般红色标记内为答案所在)
二、完成平面五边形ABCDE 的投影。
三、完成房屋形体的H 面投影。
参考答案:
四、补画台阶的H 投影。
参考答案:
五、根据立体图及所注尺寸画建筑形体(纪念碑)的三视图(比例1:1)并注出尺寸。
2 1
3
参考答案:(
2 1
3
六、求台阶的阴影。
参考答案:
画法几何与阴影透视2 一、已知平面体被截切后的V面和H面投影,求W面投影。
二、作三角形ABC与三角形DEF的交线并判别可见性。
三、补画右侧面图和背立面图。
参考答案:
四、根据立体图及所注尺寸画建筑形体的三视图(比例1:1)并注出尺寸(画在下一页)。
参考答案:
五、求门洞的阴影。
参考答案:
模拟题三
一、判断下列直线对投影面的相对位置并填写它们的名称。
二、根据立体图作出三面投影图(大小有图形量取)。
三、补画台阶的H投影。
参考答案:
四、求歇山屋面的H投影。
参考答案:
参考答案:
参考答案:
六、完成同坡屋顶的水平投影和正面投影。
参考答案:
七、求门洞的阴影。
参考答案:。
一、已知直线AB通过原点,且与H投影面的夹角α=30°,补全AB的三面投影。
二、已知直线AB上的点C、D,AC:CB=1:3;D点与V、W面等距;作C、D点的投影。
三、补全平面图形ABCDEFG的正面投影。
四、直线AB为平面上的对H面的一条最大倾斜线。
在该平面上作距V面20mm的正平线。
五、求两平面的交线,并表明可见性。
六、过点B作三角形ABC对正投影面(V面)的最大倾斜线及三角形ABC对V面的倾角β。
七、左旋圆柱螺旋线的直径D及导程S如图所示,求作该螺旋线的投影。
八、补全正五棱锥切割后的立体的投影。
九、补全正四棱柱切割后的投影。
十、补全立体的投影。
十一、补全立体的投影。
十二、作直线与立体的贯穿点。
十三、作两立体的相贯线。
画法几何与阴影透视会考试卷之一及答案《画法几何与阴影透视》科会考试卷(A)一、填空题:(每一空格1.5分,共31.5分)1. 透视图一般就按照画面上主向灭点的多少分__________透视, __________透视,和__________透视。
2. 画法几何的任务是研究在平面上表达________________的图示法.研究在平面上解答___________________的图解法。
3. A1图纸的幅面规格b*l=________________mm;A3图纸的幅面规格b*l=________________mm。
4. 投影法分两大类__________________;和__________________。
5. 直线平行于投影面,它的投影反映____________;直线垂直于投影面,它的投影反映:____________。
6. 图纸分__________________和__________________两种幅面。
7. 同一张图纸内,相同比例的各图样的线宽组:粗线为0.7mm,中线为___________mm,细线为___________mm。
8. 折断线的画法_____________________一般用途:_____________________。
9. 空间直线对投影面的位置分____________;___________和____________三种10.正等轴测图的实际(非简化系数)轴向缩短系数_____________,斜二测轴向缩短系数____________。
二、选择题:(每题只有一个正确答案。
每小题3分,共15分)1. 中心投影法是从固定的中心引出投影线,下面属于中心投影的是:( )。
A:太阳光 B:电灯 C:平行光束 D:以上几个都对2. 以下不属于平行投影的基本特性的是:( )。
A:直线的投影在一般的情况下仍旧是直线。
B:点在直线上,则该点的投影不一定位在该直线的投影上。
一、已知直线AB通过原点,且与H投影面的夹角α=30°,补全AB的三面投影。
二、已知直线AB上的点C、D,AC:CB=1:3;D点与V、W面等距;作C、D点的投影。
三、补全平面图形ABCDEFG的正面投影。
四、直线AB为平面上的对H面的一条最大倾斜线。
在该平面上作距V面20mm的正平线。
五、求两平面的交线,并表明可见性。
六、过点B作三角形ABC对正投影面(V面)的最大倾斜线及三角形ABC对V面的倾角β。
七、左旋圆柱螺旋线的直径D及导程S如图所示,求作该螺旋线的投影。
八、补全正五棱锥切割后的立体的投影。
九、补全正四棱柱切割后的投影。
十、补全立体的投影。
十一、补全立体的投影。
十二、作直线与立体的贯穿点。
十三、作两立体的相贯线。