厌氧池设计 厌氧池.doc
- 格式:pdf
- 大小:3.11 MB
- 文档页数:11
污水处理厌氧池污水处理厌氧池是一种常见的废水处理设备,主要用于处理含有有机物质的废水。
该设备通过利用厌氧微生物的作用,将有机物质分解为甲烷和二氧化碳,从而实现废水的净化和资源化利用。
一、污水处理厌氧池的设计要求:1. 设计处理能力:根据污水的流量和水质要求,确定厌氧池的设计处理能力。
一般来说,根据废水的水质和污染程度,可以采用不同的设计处理能力,以确保厌氧池的正常运行。
2. 厌氧池的容积:根据废水的流量和水质要求,确定厌氧池的容积。
厌氧池的容积应根据废水的处理需求和水质要求进行合理的设计,以确保废水在厌氧池内有足够的停留时间来进行有机物质的分解。
3. 厌氧池的结构:厌氧池的结构应具有良好的密封性能,以防止有害气体泄漏。
同时,厌氧池的结构应具有良好的耐腐蚀性能,以确保设备长期稳定运行。
4. 厌氧池的进出水口:厌氧池应设置进出水口,以便将废水引入厌氧池并将处理后的水排出。
进出水口的位置和尺寸应根据废水的流量和水质要求进行合理的设计,以确保废水在厌氧池内得到充分的处理。
5. 厌氧池的通风系统:厌氧池内的有害气体需要通过通风系统进行处理和排放。
通风系统应具有良好的排气效果,以确保厌氧池内的有害气体得到有效地处理和排放。
6. 厌氧池的操作和维护:厌氧池的操作和维护应按照相关的规定进行。
操作人员应具备相关的专业知识和技能,能够熟练地操作和维护厌氧池设备,以确保设备的正常运行和长期稳定性。
二、污水处理厌氧池的工作原理:1. 厌氧池的填料:厌氧池内应填充适当的填料,以提供良好的生物附着面积。
填料的选择应根据废水的水质要求和处理能力进行合理的设计,以确保废水能够充分接触到厌氧微生物,从而实现有机物质的分解。
2. 厌氧微生物的作用:厌氧池内的厌氧微生物通过吸附和降解有机物质,将其分解为甲烷和二氧化碳。
厌氧微生物的作用需要一定的时间,因此废水需要在厌氧池内停留一定的时间,以确保有机物质得到充分的分解。
3. 厌氧池的混合:为了保持厌氧池内的温度和pH值的稳定,需要对厌氧池进行适当的混合。
污水处理厌氧池污水处理厌氧池是污水处理系统中的一个关键环节,用于处理含有有机物的废水。
下面将详细介绍污水处理厌氧池的标准格式文本。
一、污水处理厌氧池的定义和作用污水处理厌氧池是污水处理系统中的一个处理单元,主要用于处理含有有机物的废水。
它通过在无氧条件下,利用厌氧微生物对有机物进行降解和转化,将有机物转化为可供后续处理单元进一步处理的物质,同时还能去除部分氮和磷。
二、污水处理厌氧池的设计要求1. 容积:根据处理规模和有机负荷确定厌氧池的容积,一般为总进水量的10-30%。
2. 水力停留时间:根据有机负荷和污泥特性确定水力停留时间,一般为4-12小时。
3. 温度:厌氧池的温度要控制在适宜的范围内,一般为30-40摄氏度。
4. 搅拌和通气:为了保证厌氧微生物的正常生长和活动,需要进行适当的搅拌和通气。
三、污水处理厌氧池的运行参数监测1. 进水COD浓度:通过采样和分析,监测进入厌氧池的化学需氧量(COD)浓度。
2. 污泥浓度:通过测量厌氧池中的污泥浓度,判断污泥的活性和沉降性能。
3. pH值:监测厌氧池的pH值,保持在适宜的范围内,维持厌氧微生物的正常生长。
4. 温度:定期测量厌氧池的温度,确保在适宜的范围内。
四、污水处理厌氧池的操作维护1. 污泥投加:根据污泥浓度和处理效果,适量投加新鲜污泥,维持良好的活性污泥浓度。
2. 搅拌和通气:定期进行搅拌和通气,促进厌氧微生物的生长和降解活动。
3. 污泥回流:根据需要,适量回流厌氧池的污泥,提高处理效果。
4. 污泥处理:定期清理和处理厌氧池中的污泥,避免过多的污泥积累。
五、污水处理厌氧池的效果评估1. COD去除率:通过监测进出水COD浓度,计算COD去除率,评估厌氧池的处理效果。
2. 污泥活性:通过测量污泥的活性指标,如呼吸速率和酸化速率,评估污泥的活性和降解能力。
3. 氮和磷去除率:监测进出水中氮和磷的浓度,计算去除率,评估厌氧池的除磷和除氮效果。
六、污水处理厌氧池的常见问题及解决方法1. 污泥浓度过低:增加污泥投加量或回流量,提高污泥浓度。
污水处理厌氧池污水处理厌氧池是一种常见的污水处理设备,用于处理工业和生活污水中的有机物质。
它通过利用微生物的代谢活动将有机物质转化为气体和沉淀物,从而达到净化水质的目的。
下面将详细介绍污水处理厌氧池的标准格式文本。
1. 引言污水处理厌氧池是污水处理系统中的重要组成部分,它能够有效降解有机物质,减少对环境的污染。
本文将介绍厌氧池的工作原理、设计要求、操作规程和效果评估等方面的内容。
2. 工作原理污水处理厌氧池利用厌氧微生物代谢活动将有机物质分解为甲烷、二氧化碳和沉淀物。
厌氧微生物在无氧环境下通过发酵作用将有机物质转化为挥发性脂肪酸,然后进一步转化为甲烷和二氧化碳。
同时,沉淀物也会在厌氧条件下沉淀下来,净化水质。
3. 设计要求污水处理厌氧池的设计要求包括容积、水力停留时间、温度、pH值等方面。
根据污水处理厌氧池的设计原则,应根据进水水质、水量和处理效果等因素确定池体的容积大小。
水力停留时间是指污水在厌氧池内停留的时间,一般根据水质和处理效果的要求确定。
温度和pH值对厌氧微生物的生长和代谢活动有重要影响,应根据厌氧微生物的生态特性来确定适宜的温度和pH值范围。
4. 操作规程污水处理厌氧池的操作规程包括进水控制、池体清洁、厌氧菌的添加和池体温度的调控等方面。
进水控制是指根据进水水质和水量来控制进水流量和进水方式,以保证厌氧池的正常运行。
池体清洁是保持池体内部清洁的重要步骤,可以采用定期清理、冲洗等方法。
厌氧菌的添加是为了增加厌氧池内的微生物数量和种类,可以通过添加厌氧菌剂来实现。
池体温度的调控是为了保持适宜的微生物生长环境,可以通过加热或降温等方式进行调节。
5. 效果评估污水处理厌氧池的效果评估主要包括出水水质分析、处理效率评估和能耗评估等方面。
出水水质分析是通过对出水样品进行化学分析和微生物检测,评估池体的处理效果。
处理效率评估是通过对进水和出水水质进行对比,计算去除率来评估池体的处理效率。
能耗评估是评估池体运行所需的能源消耗,包括电能消耗、加热能耗等。
2023年度厌氧池及缺氧池设计计算方案2023年度厌氧池及缺氧池设计计算方案一、设计依据1.1 目的本设计方案的目的是为了完成一座废水处理厂的规划和设计工作,其中包括厌氧池和缺氧池的设计和计算。
废水处理厂是为了减少污染和保护环境而建设的,因此本设计方案力求使其在设计上达到尽可能高的效率和可靠性。
1.2 法规和标准本设计方案的设计和建设必须符合我国的环保法律法规,以及国家标准和行业规范。
特别是《城镇污水处理厂设计规范》(GB 50014-2017)、《城市污水厂设计规范》(GB 18918-2002)等相关标准和规范。
1.3 工程概况本废水处理厂为城市筹建的废水处理工程,位于某市区,占地面积为XXX平方米,设计规模XXX,设计产污量为XXX,污水处理级别为二级A标准,设计处理周期为天,设计使用年限为XX年。
二、厌氧池设计2.1 设计原则厌氧池是用于处理高浓度污水的一种处理设备,其工作原理是利用厌氧菌对废水中的有机物进行降解。
本设计采用UASB反应器作为厌氧池,设计厌氧池的原则是最大限度地利用整个反应器的体积,达到最高的废水处理效率。
2.2 设计参数根据设计规模、产污量、处理周期等因素,厌氧池的设计参数如下:设计污水流量:XXX m3/d反应器型式:UASB反应器数量:1单反应器处理容积:XXX m3进水COD浓度:XXX mg/L进水SS浓度:XXX mg/L进水NH4+-N浓度:XXX mg/L进水TP浓度:XXX mg/L进水pH值:XXX反应器高度:XXX m反应器直径:XXX m2.3 设计计算2.3.1 反应器的高度计算反应器的高度主要是根据进水的COD浓度来计算的,反应器的高度应该能够保证最大限度地利用反应器体积,使污水中COD的去除率达到最高。
根据研究表明,当UASB反应器的高度为4.5-8.5m时,处理废水的效果最佳。
本设计方案的UASB反应器高度计算为:反应器高度 = 设计污水流量 x COD进水浓度 / 反应器处理容积 / 1.2根据上述公式,可以得到反应器高度为XXX m。
4.2 设计计算本工艺是采用池体单建的方式,各个池子根据厌氧—好氧-缺氧活性污泥法污水处理工程技术规范[20]进行设计计算。
4.2。
1 厌氧池设计计算(1)池体设计计算 a 。
反应池总容积(4—1)式中:t p —— 厌氧池水力停留时间,h ; Q -— 污水设计水量,m 3/d ; V p —— 厌氧池容积,m 3;3150024200008.1m V p =⨯=b.反应池总面积h VA =(4-2)式中:A --——--反应池总面积,2m ; h —---——反应池有效水深,m ;取4m 237541500m A ==c 。
单组反应池有效面积NAA =1 (4—3) 式中:1A -—--—-每座厌氧池面积,2m ;N —----—厌氧池个数,个;21m 5.1872375==A d.反应池总深设超高为h 1=1。
0m ,则反应池总深为:mH 0.50.10.4h h 1=+=+=e 。
反应池尺寸 mm m H L B 57.1115⨯⨯=⨯⨯(2)进、出水管设计24Q t V p p ⨯=s m Q Q /204.02408.023max 1===sm Q Q /408.034.02.12.13max max '=⨯==()11Q R R Q i ++=321)2(gmb Q H =a 。
进水设计进水管设计流量s m Q /34.03max =,安全系数为1。
2 故分两条管道,则每条管道流量为: 管道流速v = 1。
4m/s ,则进水管理论管径为:mm m Q 429429.04.1204.044d 1==⨯⨯==ππν(4—4)取进水管管径DN=450mm 。
反应池采用潜孔进水,孔口面积21v Q F =(4—5) 式中:F ———--—每座反应池所需孔口面积,2m ;2v —-——-—孔口流速(m/s),一般采用0。
2—1.5s m /,本设计取2v =0。
2s m /202.12.0204.0m F ==设每个孔口尺寸为0.5×0.5m,则孔口数为(4—6)式中:n --—---每座曝气池所需孔口数,个; f —————-每个孔口的面积,2m ;个个,取508.45.05.002.1==⨯=n nb 。
好氧池缺氧厌氧池容设计好氧池缺氧厌氧池容设计一、好氧池1.1 好氧池的定义和作用好氧池是废水处理系统中的一个重要环节,主要是通过生物降解将废水中的有机物转化为无机物,同时也可以去除废水中的悬浮颗粒物和溶解性有机物。
好氧池通常位于生化池之前,其作用是为生化反应提供充足的含氧量。
1.2 好氧池容积设计原则好氧池的容积设计需要考虑以下几个方面:(1)水质特性:包括进水COD、BOD5、NH3-N等指标,这些指标直接影响好氧反应器内微生物种类和数量,从而影响反应器的处理效果。
(2)进出水流量:进出水流量对于好氧反应器内微生物代谢产生影响,因此需要根据实际情况确定。
(3)停留时间:停留时间是指废水在好氧反应器内停留的时间,通常需要根据进出水质量和流量来计算。
(4)填料类型和填料比例:填料类型和比例对于好氧反应器内微生物种类和数量也有影响,因此需要根据实际情况选择。
1.3 好氧池容积设计计算方法好氧池容积的计算方法通常采用进水COD负荷法或进水BOD负荷法。
以进水COD负荷法为例,其计算公式如下:V = Q × CODin / (K × θ × (Ss - X))其中,V为好氧反应器的有效容积,单位为m3;Q为废水进水流量,单位为m3/d;CODin为废水进水COD浓度,单位为mg/L;K为比容系数,取值范围在0.3-0.5之间;θ为停留时间,单位为d;Ss和X 分别表示好氧反应器内微生物生长所需的最小底物浓度和微生物污泥浓度。
二、缺氧池2.1 缺氧池的定义和作用缺氧池是一种介于好氧池和厌氧池之间的处理设施。
缺氧条件下微生物可以利用废水中的硝酸盐、亚硝酸盐等化合物进行呼吸代谢,并将有机物降解成较简单的化合物。
缺氧池主要是用来去除废水中的有机氮和部分有机物质。
2.2 缺氧池容积设计原则缺氧池的容积设计需要考虑以下几个方面:(1)进出水水质:进出水水质对于缺氧反应器内微生物种类和数量有影响,因此需要根据实际情况确定。
厌氧反应池参数摘要:一、厌氧反应池概述二、厌氧反应池的主要参数1.温度2.pH值3.有机负荷4.反应时间5.搅拌速度6.进水水质三、厌氧反应池的运行与管理1.启动与调试2.正常运行管理3.故障处理与维修四、厌氧反应池的应用领域1.污水处理2.工业废水处理3.农业废弃物处理4.生活垃圾处理正文:一、厌氧反应池概述厌氧反应池是一种处理有机废水、废水和垃圾的环保设施,通过微生物在无氧或缺氧条件下分解有机物,产生甲烷、二氧化碳等可再生资源。
厌氧反应池在国内外得到了广泛应用,具有投资低、能耗低、运行成本低、环保效益显著等特点。
二、厌氧反应池的主要参数1.温度:厌氧反应的最佳温度一般在35-45℃之间,过高或过低的温度都会影响微生物的活性。
2.pH值:厌氧微生物的生长适应pH值在6.5-7.5之间,过酸或过碱的环境都会对微生物活性产生抑制作用。
3.有机负荷:有机负荷是指单位时间内进入反应池的有机物质量,过高或过低的有机负荷都会影响反应效果。
4.反应时间:反应时间一般在20-30天左右,根据废水特性和微生物种类进行调整。
5.搅拌速度:适当的搅拌速度可以保持反应池内物料的均匀分布,提高反应效率。
但过快的搅拌速度会导致能耗增加,过慢则容易造成污泥层堆积。
6.进水水质:进水水质直接关系到厌氧反应的效果,需对废水中的有机物、营养物质、有害物质等进行监测和管理。
三、厌氧反应池的运行与管理1.启动与调试:新建成的厌氧反应池需进行启动与调试,确保设施正常运行。
启动过程中要注意控制进水流量、有机负荷、温度等参数。
2.正常运行管理:正常运行时,要定期监测反应池的各项参数,根据实际情况调整运行参数,保证反应效果。
3.故障处理与维修:遇到故障时,要及时分析原因,采取相应措施进行处理,避免影响正常运行。
四、厌氧反应池的应用领域1.污水处理:厌氧反应池可用于生活污水、工业废水等有机污水处理。
2.工业废水处理:厌氧反应池适用于石油、化工、制药、食品等行业的废水处理。
厌氧池施工方案范文厌氧池是一种用于处理有机废水的污水处理设备,采用厌氧发酵的原理,能够将有机废水中的有机物质转化为可稳定沉降的污泥,并同时产生甲烷气体,具有处理效果好、资源化利用高的优点。
下面将介绍一种厌氧池施工方案。
一、前期准备工作1.确定厌氧池的建设位置和规模,结合实际情况选择合适的场地。
2.进行土地平整、清理和测量工作,确保场地平整,并绘制出厌氧池的详细布局图纸。
3.准备建设所需的材料和设备,包括施工用的混凝土、钢筋、砖石等建材,以及厌氧池所需的气体收集系统、输送设备等。
二、施工步骤1.按照布局图纸对场地进行标线,并进行深度测量,确定池壁和池底的厚度和强度要求。
2.根据标线挖掘土壤,确保池壁与土壤之间有足够的距离,以避免土壤中的压力对池壁形成影响。
3.按照设计要求搭建施工支架,以保持池壁和池底的形状。
4.开始浇筑池壁,使用混凝土和钢筋加固池壁,确保池壁的强度和稳定性。
5.等待池壁的混凝土干燥后,开始浇筑池底,同样使用混凝土和钢筋加固池底,以提高池底的稳定性。
6.完成池底的浇筑后,进行防水处理,可以使用特殊的防水材料或涂层来防止池底渗漏。
7.在池壁上安装气体收集系统,包括气体收集管道和气体收集设备,用于收集厌氧池产生的甲烷气体。
8.安装污水输送系统,包括进水管道和排水管道,将有机废水引入厌氧池并排出处理后的水。
9.进行一次性测试,验证厌氧池的工作效果和安全性。
10.进行厌氧池的开机调试,确保设备正常运行。
三、施工注意事项1.在施工期间,要严格遵守安全操作规程,佩戴好安全防护用品,确保施工人员的人身安全。
2.施工人员要具备一定的技术水平和经验,熟悉厌氧池的施工工艺和操作要求。
3.施工过程中要做好现场管理,确保施工设备和材料的安全和正确使用。
4.施工期间要进行定期检查和维护,及时发现并解决问题,保证施工进度和质量。
5.施工结束后,进行一次性测试和调试,确保厌氧池的正常运行。
以上是一种厌氧池施工方案的简要介绍,该方案通过合理的工序安排和施工要求,能够保证厌氧池的施工质量和使用效果。
好氧池缺氧厌氧池容设计
在污水处理过程中,好氧池和缺氧厌氧池是两个重要的处理单元。
好氧池主要用于生物降解有机物,而缺氧厌氧池则用于去除硝酸盐和亚硝酸盐。
好氧池的容量设计通常基于进水量、有机负荷、停留时间和氧气需求。
进水量是指污水每天流入好氧池的总量,有机负荷指污水中有机物的浓度。
停留时间是指污水在好氧池中停留的时间长度,通常以小时为单位。
氧气需求是指污水中有机物需氧降解的氧气量。
好氧池的容量设计要考虑进水量和有机负荷的高低,以确保污水能够充分接触到氧气并进行有效的降解。
如果好氧池容量过小,可能导致污水在处理过程中接触氧气时间不足,从而影响有机物的降解效果。
反之,如果好氧池容量过大,会导致能源浪费和处理成本的增加。
缺氧厌氧池的容量设计通常基于硝酸盐和亚硝酸盐的去除需求。
硝酸盐和亚硝酸盐是污水中常见的氮化物,它们可以通过反硝化作用转化为气体排放出去。
缺氧厌氧池提供了一个无氧环境,使得细菌能够利用有机物代替氧气进行呼吸作用,从而将硝酸盐和亚硝酸盐还原为氮气。
缺氧厌氧池的容量设计要考虑硝酸盐和亚硝酸盐的浓度和去除效率。
如果缺氧厌氧池容量过小,会导致硝酸盐和亚硝酸盐没有充分还原,从而影响后续的处理效果。
反之,如果容量过大,会导致能源浪费和处理成本的增加。
综上所述,好氧池和缺氧厌氧池的容量设计是污水处理系统中至关重要的环节。
合理的容量设计可以保证污水能够有效降解有机物和去除硝酸盐和亚硝酸盐,从而提高处理效果并降低处理成本。
污水处理厌氧池污水处理厌氧池是污水处理系统中的一个重要环节,它通过厌氧条件下的微生物代谢作用,将有机物质进行降解和转化,从而实现对污水中有机物质的去除。
下面将详细介绍污水处理厌氧池的标准格式文本。
一、引言污水处理厌氧池是污水处理过程中的关键环节之一。
它通过提供适宜的环境条件,利用厌氧微生物对污水中的有机物质进行降解和转化,从而实现对污水的净化。
本文将详细介绍污水处理厌氧池的设计要求、操作规程以及效果评价等内容。
二、设计要求1. 厌氧池的设计应考虑处理规模、进水水质、处理效果等因素,确保满足污水处理厌氧池的处理要求。
2. 厌氧池的设计应符合相关的环保法规和标准,确保处理过程安全可靠。
3. 厌氧池的设计应充分考虑运行维护的便利性,便于操作和管理。
三、操作规程1. 进水调节:根据进水水质的变化,调节进水流量和水质,保持稳定的进水条件。
2. 混合搅拌:通过搅拌设备,保持污水中的悬浮物均匀分布,提供良好的微生物接触和反应条件。
3. 控制温度:根据微生物的适宜生长温度,控制厌氧池的温度,保持适宜的微生物活性。
4. 控制pH值:根据微生物的适宜pH范围,调节厌氧池的pH值,保持适宜的微生物代谢环境。
5. 氧气控制:保持厌氧池内的氧气浓度低,防止氧化还原反应的发生,维持厌氧条件。
6. 污泥处理:定期清理和处理污泥,防止厌氧池内污泥的堆积和产生异味。
四、效果评价1. COD去除率:根据进水和出水COD浓度的变化,计算厌氧池的COD去除率,评价处理效果。
2. 氨氮去除率:根据进水和出水氨氮浓度的变化,计算厌氧池的氨氮去除率,评价处理效果。
3. 污泥产量:根据污泥的产生量和含水率,计算厌氧池的污泥产量,评价处理效果。
4. 异味和气味:通过感官评价和气味检测,评估厌氧池的异味和气味情况,判断处理效果。
五、结论污水处理厌氧池是污水处理系统中的重要环节,通过厌氧条件下的微生物代谢作用,实现对污水中有机物质的去除。
合理的设计要求、操作规程和效果评价是确保厌氧池正常运行和处理效果的关键。
污水处理厌氧池污水处理厌氧池是污水处理系统中的一个重要环节,用于处理含有有机物质的废水。
它通过利用厌氧微生物的代谢作用,将有机物质分解为甲烷和二氧化碳,并去除废水中的污染物质。
污水处理厌氧池的设计和操作需要遵循一定的标准和规范,以确保其有效运行和处理效果。
以下是按照任务名称描述的污水处理厌氧池的标准格式文本:一、污水处理厌氧池的设计要求1. 污水处理厌氧池的设计应符合国家相关标准和规范要求,如《城镇污水处理厂设计规范》等。
2. 厌氧池的设计应考虑处理能力、有机负荷、水力停留时间等因素,并合理确定其尺寸、形状和容积。
3. 厌氧池应具备良好的密闭性和防渗漏性能,以防止厌氧气体和有害物质的泄漏。
4. 厌氧池的进水口和出水口应设置合理,以保证污水的均匀分布和流动。
二、污水处理厌氧池的操作要求1. 厌氧池应保持适宜的温度和PH值,以促进厌氧微生物的代谢活动。
通常,温度应保持在35-40摄氏度,PH值在6.8-7.5之间。
2. 厌氧池的进水应保持稳定,并控制有机负荷,避免过载导致处理效果下降。
3. 定期监测和调整厌氧池内的厌氧微生物群落结构,确保其多样性和稳定性。
4. 定期清理和维护厌氧池,清除污泥和杂质,保持厌氧池的正常运行。
三、污水处理厌氧池的处理效果评估1. 定期监测厌氧池的出水水质,包括COD(化学需氧量)、BOD(生化需氧量)、氨氮等指标,以评估处理效果。
2. 根据监测结果,及时调整和优化厌氧池的操作参数,以提高处理效果。
3. 定期对厌氧池进行检查和评估,包括池体结构、设备运行情况、气体排放等,发现问题及时处理。
四、污水处理厌氧池的安全管理1. 厌氧池应建立安全管理制度,制定相关操作规程和安全操作流程,确保人员的安全。
2. 厌氧池应配备必要的安全设施和防护措施,如气体检测仪、通风系统、防滑设施等。
3. 厌氧池的操作人员应接受相关的培训和考核,具备相关的专业知识和操作技能。
总结:污水处理厌氧池的设计和操作要符合相关标准和规范,确保其处理效果和安全运行。
污水处理厌氧池污水处理厌氧池是一种常见的污水处理设备,用于处理含有有机物质的废水。
本文将详细介绍污水处理厌氧池的标准格式以及相关内容。
一、引言污水处理厌氧池是废水处理系统中的一个重要组成部分,主要用于去除废水中的有机物质。
本文将介绍污水处理厌氧池的设计要求、操作规程、监测方法以及维护保养等内容。
二、设计要求1. 容量:根据废水产生量和处理效果要求确定污水处理厌氧池的容量。
2. 厌氧池深度:根据厌氧菌的生长特性和废水特性确定厌氧池的深度,一般为3-6米。
3. 进水方式:确定污水进水方式,常见的有上进式、中进式和下进式。
4. 搅拌设备:根据污水特性选择适合的搅拌设备,保证污水均匀混合。
三、操作规程1. 进水调节:根据进水水质变化情况,调节进水流量和浓度,保持污水处理厌氧池的稳定运行。
2. 温度控制:厌氧菌对温度敏感,需要保持污水处理厌氧池内的温度在适宜范围内,一般为35-40摄氏度。
3. 溶解氧控制:污水处理厌氧池内需保持低溶解氧环境,可通过减少进水的氧气含量或增加还原剂的投加量来实现。
4. 污泥处理:定期清理污水处理厌氧池内的污泥,防止污泥积累过多影响处理效果。
5. 出水监测:定期对出水进行监测,确保出水达到排放标准。
四、监测方法1. 水质监测:通过取样分析废水中的COD、BOD、氨氮等指标,评估污水处理厌氧池的处理效果。
2. 温度监测:安装温度传感器,实时监测污水处理厌氧池内的温度变化。
3. 溶解氧监测:使用溶解氧仪对污水处理厌氧池内的溶解氧含量进行监测。
4. 污泥监测:通过取样分析污泥的含水率、有机物含量等指标,评估污泥的性质和处理效果。
五、维护保养1. 定期检查:定期检查污水处理厌氧池的设备运行情况,及时发现并处理故障。
2. 清洗维护:定期对污水处理厌氧池进行清洗,清除污垢和沉积物,保持设备的正常运行。
3. 设备维修:对设备进行定期的维修和保养,确保设备的正常运转。
4. 废物处理:处理污水处理厌氧池产生的污泥和废水,符合环境保护要求。
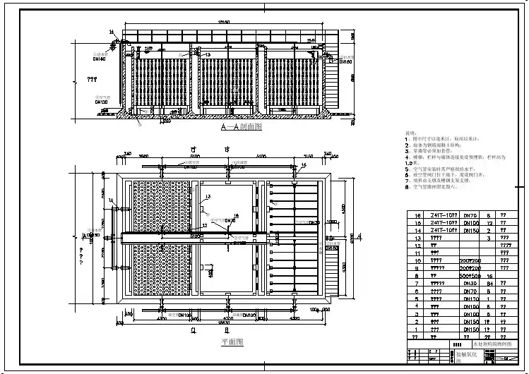
1)工程概况本工程为厌氧池为T字形构筑物,池体长度为56.15m,池壁高度为6.1m,外侧池壁厚度为400mm,内侧池壁为250mm。
池体中有伸缩缝一道以及数个刚性防水套管,由于刚性防水套管截面尺寸较大,因此刚性防水套管以及伸缩缝处的施工是此构筑物施工中的重点与难点。
施工工艺ⅡⅠ施工段划分2)基础工程A、基坑开挖厌氧池垫层标高2.53 m,而现地平标高为3.00m左右。
故基坑降水采用边开挖边降水的明排法,排水沟尺寸为300×200,集水坑为Φ600深1m,每25m布置一口。
由于构筑物的整体布置,基坑采用反铲挖土机在各个施工段均沿短边开始沿长边水平推进的方法进行开挖,当挖至距离基底200m处停止机械开挖改用人工进行清理,直至挖到构筑物设计标高,将对基底的扰动效果达到最小。
开挖至设计标高后如遇杂填土及淤泥应清除干净,超挖部分回填级配碎石,并分层夯实至设计标高,压实系数。
由于基坑深度不大,基坑边坡采用直槽,当达到设计深度后排水沟用碎石填平,积水坑最后定型,在达到理想降水效果的同时减少水流对基坑边坡的冲击,保持边坡稳定。
B、桩头剔凿厌氧池基础采用桩承台基础,在进行基础垫层及基础底板施工之前,必须先将桩头剔凿,露出桩内的纵向受力主筋,将桩内的主筋引致底板之中,使底板与混凝土桩成为一体。
在剔凿桩头时为了保证是施工进度及时合理化施工的要求,剔凿桩头采用风镐进行。
桩头的顶部宜剔凿至基础底面。
同时在剔凿时注意对有效桩体的保护,保证桩体无通长裂缝。
C、垫层施工厌氧池垫层采用C15混凝土,模板采用1015的组合钢模板拼装。
基坑开挖完成后池底如有杂填土不满足设计要求则全部将其清除,回填砂碎石层应是混合的粒径2—5mm约含20~30%砂粒,粒径大于0.5mm的占50%以上要求砂石含泥量不大于3%,不能含草屑杂物等。
回填砂碎石采用洒水夯实法,洒水量占砂石体积的8~12%,每层厚度不超过25cm。
注意做垫层混凝土前应在进行一次高程的复测待确实无误后浇筑垫层混凝土,待达到强度后注意垫层混凝土上只许上人,不允许上车,(包括各种车辆)所有材料运输都采用人工运到现场,浇筑砼要求一次成型,待混凝土初凝后用木抹子进行搓面,垫层打完后及时养护。
厌氧池施工组织设计一、工程概况1、本工程位于新疆尼勒克县。
厌氧池规格:9.4×22。
8×7。
6M2、本工程抗震设防烈度为8度,设计基本地震加速度值为0。
2g,设计地震分组为第二组,设计特征周期为0.4s,场地类别为二类,安全等级为二级。
3、本工程混凝土等级为C30,混凝土保护层厚度为池壁为30mm,梁、支柱、底板为40mm,走道板为25mm。
4、基础:持力层为粉土层,承载力特征值为120Kpa;基槽开挖后,严禁地表水浸润地基土,同时应做好钎探工作。
5、水池池体结构:a.水池池体砼为C30抗渗砼,抗渗等级为S6,抗冻等级为F300;所用水泥为普通硅酸盐水泥;b。
水池一次浇筑完成,不留施工缝;c.水池内壁、底板顶面抹20厚1:2防水水泥砂浆,防水砂浆应分层紧密连续涂抹;d。
水池土建完成后,覆土应沿水池四周分层均匀回填;e。
施工中应注意各种设备的预埋。
6、厌氧池池壁应用环氧玻璃布做防腐处理,并做池内钢爬梯。
二、施工准备在土建施工之前应进行图纸审核、材料准备、设备进场、临时工棚搭建等工作。
1、施工管理组织:本人有幸承建此工程,作为本工程的项目经理对工程实施全面管理,是工程实施第一责任人,做好岗位分工、任务明确、责任清楚。
带领项目班子创造性开展工程项目管理工作,严格执行国家法律、法规和公司各项规章制度,争取工程质量、施工安全、文明管理等都达到建设单位的要求.2、劳动力组织:本人将精选施工队伍,选择技术过硬、能吃苦、能打硬仗、勇于克服困难、思想素质高的队伍及管理人员参与本工程施工。
对进入现场的职工必须进行入场三级安全教育,提高全体职工对搞好安全文明施工重要意义的认识,提高质量意识、安全意识,抓好文明施工教育。
3、搭设临建设施、生活性临建和施工性临建.主要包括:项目部、监理办公室、工人宿舍、食堂、工具库、机械修理库、水泥库、配电房等,接通电源、水源,给施工作业提供良好的生活环境。
4、收到施工图纸后,预算员、工长、放线工等有关技术人员即要认真熟悉图纸,了解设计意图,并注意图纸上问题,做好记录,准备好图纸会审,力争把问题在施工前处理完。