35KV变电站电气主接线图-Model
- 格式:pdf
- 大小:24.38 KB
- 文档页数:1
35~110kV变电所电气主接线典型方案35~110kV变电所电气主接线典型方案见图.图 110KV变电所电气主接线图说明:1.变压器高压侧(110kV)采用内桥接线(也可采用线路变压器组或单母分段接线).低压侧采用单母分段(出线回路少时,也可采用单母线接线).2.两台变压器都是采用有载调压变压器(110/10kV);可以互为备用.3.两台所用变压器(10/0.4kV)分别接在10kV母线地两段上,供本所用电,并互为备用.4.两电压级母线上和110kV线路上均设有避雷器.5.配置一定地电压互感器和电流互感器.6.110kV线路采用二回架空电源进线,同时供电;10kV出线既有架空出线也有电缆出线.7.110kV采用屋外配电装置,10kV侧采用屋内成套配电装置.8.10kV母线地两段上还应配置无功补偿装置.版权申明本文部分内容,包括文字、图片、以及设计等在网上搜集整理.版权为个人所有This article includes some parts, including text, pictures, and design. Copyright is personal ownership.b5E2R。
用户可将本文地内容或服务用于个人学习、研究或欣赏,以及其他非商业性或非盈利性用途,但同时应遵守著作权法及其他相关法律地规定,不得侵犯本网站及相关权利人地合法权利.除此以外,将本文任何内容或服务用于其他用途时,须征得本人及相关权利人地书面许可,并支付报酬.p1Ean。
Users may use the contents or services of this article for personal study, research or appreciation, and othernon-commercial or non-profit purposes, but at the same time, they shall abide by the provisions of copyright law and other relevant laws, and shall not infringe upon the legitimate rights of this website and its relevant obligees. In addition, when any content or service of this article is used for other purposes, written permission and remuneration shall be obtained from the person concerned and the relevant obligee.DXDiT。
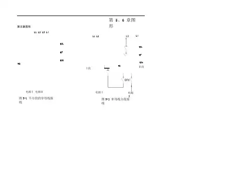
第五章图形L1 L2 L3 L4QS LQFQS BWBL1 L2Ⅰ段电源Ⅰ 电源Ⅱ电源Ⅰ图5-1 不分段的单母线接线第5、6 章图形WB电源Ⅱ图5-2 单母线分段接线L4QS LQFQS B Ⅱ段WBa1QSa1QF QFaWBQSa 1WBaQSa 2WBⅠ段 WB Ⅱ段电源Ⅰ 电源Ⅱ 图5-3 单母线带旁路母线接线QFd电源Ⅰ 电源Ⅱ图5-4 单母线分段带旁路母线接线图5-5 分段断路器兼作旁路断路器接线 图5-6 旁路断路器兼作分段断路器接线L1 L2QS 1 QS 2QSa 1WBaQSa 2QS 41QFQFa2QFL2L1 QS 5QS 3Ⅱ段Ⅰ段QS 1WBWBQS 2 电源Ⅰ电源Ⅱ电源Ⅰ 电源ⅡL1L2L3Ⅱ段 Ⅰ段 1QF QFjQS j Ⅱ QS j Ⅰ2QF电源Ⅰ 电源Ⅱ 图5-7 双母线接线L2WBL3L4L1 L2 L3WBⅡ段 Ⅰ段 QS 1QS Ⅱ1QS Ⅰ1QF QF电源Ⅰ 2QF电源Ⅱ图5-8 用母联断路器代替出线断路器时电流的路径L1QFj1 图5-9 双母线分段接线L1 L2 L3WBaQFaL1L2Ⅱ段Ⅰ段WBL3电源Ⅰ电源Ⅱ(a)图5-10 双母线带旁路接线(a)标准接线电源Ⅱ(b)图5-10 双母线带旁路接线b)母联断路器兼作旁路断路器接线(一)(c)图 5-10 双母线带旁路接线(c) 母联断路器兼作旁路断路器(二)L1 L2 L3WBa QSa QFjQS j ⅡS j ⅠⅡ段 Ⅰ段WBL1 L2 L2电源Ⅰ电源Ⅱ电源Ⅰ电源Ⅱ图5-11 一台半断路器接线L1 L2L1 L2 1QF 2QFQS13QFQS21QF3QF2QF1T2T1T2T(a)(b)图5-12 桥形接线(a) 内桥接线;(b) 外桥接线(a) 发电机-变压器单元 (b)发电机-三绕组变压器单元 (c)发电机-自耦变压器单元G(a)(b)图5-13 单元接线图5-14 扩大单元接线WLG G(a)(a) (b)图5-16 多角形接线图5-15 发电机-变压器-线路单元接线(a) 四角形接线 (b) 三角形接线(b)图5-17 例5-1 方案接线图( a )方案5-1-1 接线,( b )方案5-1-2 接线4MVA 2MVA6.3KV近区负荷 10KVG1G3×3.2MW(b)近区负荷6.3KVG(a)图5-18 例5-2 方案接线图a)方案5-2-1 接线,( b)方案5-2-2 接线,( c)方案5-2-3 接线注:图5-19 见:“主接线厂用电实例”图(b)(c)TMY-100X8ZN21-10/1250配CD10Ⅲ-30 -01LZZBJ-10 1000/50.5/10P励磁互感器(厂家配套)RN2-6/0.5A2NDJ-6√3励磁变(厂家配套)2×(ZR-YJV 22-6/3 ×240) SFWG8000-6/4950Ue=6.3kVIe=916.45ACOSφ=0.8LZX-10Q800/5 0.5/10P TYD-110/ √ -30.07HGW4-110DW/630 左接地GW4-110DW/630 双接地LCWB6-110100/50.2/0.5/10P/10PLW25-1261250A,40kAGW4-110DW/630左接地LGJ-120SF9-20000/110Y,d11121±3×2.5 %/6.3kVU k%=10.5%LFZJ-10000/5.5/0.5/0/10PZN21-10/2500配CD10ⅢTMY-100X8GW4-110DW/630双接地JDCF-110110 0.1 0.1 √3√3√30.1Y5W1-100/26030J2YN图5-19 某水电站电气主接线全图ZN21-10/630配CD10ⅢLZZBJ-10100/50.5/10PZR-YJV22-6/3 ×50SC9-800/6.3D,yn116.3 ±5%/0.4kVUd%=7LMZ1-0.5 1200/5LMY10×0 8-40×8DW15-1200ZN21-10/630配CD10ⅢLZZBJ-10100/50.5/10PZR-YJV22-10/3 ×5010kV外来电源LMZ1-0.5 1200/5LMY100×8-40×8ZR-YJV22-10/3 ×50SC9-800/10D,yn1110±5%/0.4kVUd%=70.4kVDW15-12004 回图5-20 地区变电所接线第六章图形b)a)图6-1 设两台厂变的厂用电源引接方式图6-2 厂用负荷供电回路图6-3 见“主接线厂用电实例”图6.3KVRN1-6/10ASC-80/66.3±51#厂变1厂变%/0.4KVY,yn0Uk%=4.0V22-3×50+1×25PRWG1-10/100S9-80/3510.5±2×2.5%/0.4KVY,yn0Uk%=4.010kVVV22-3×50+1×25AA A AAAV kwhLMY-40×4DT864-2,380/220V,3(6A42L6-A,0 ~150A42L6-A,0 ~150A 42L6-V,0 ~450VA I 段380/220VB C42L6-A,0 ~100AAAA42L6-A,0 ~100AA A A42L6-A,0 ~100AAAA(6A)42L6-A,0 ~150A42L6-V,0 ~450VAAAV kwh42L6-A,0 ~100AAAA配电屏型号GGD1 -36GGD1-36(改)GGD1-10GGD1-36(改)GGD1-36配电屏编号12345馈线名称集泵水井水动力箱吊车整流器一安动装场力箱备用事分故照明电箱主厂房照明分电箱生活区备用1#机动力盘1#厂变进线母线分段2#厂变进线2# 机动力盘备用备用整流器二厂内油处理室分电箱前池动力箱气系统备用副厂房照明分电箱备用回路电流(A)23.63411281331.75725115115251110.8271028刀开关HD13BX-200/31HD13BX-200/31HD13BX-200/31HD13BX-200/31HD13BX-200/31HD13BX-200/31HD13BX-200/31断路器1D Z20J- D Z20J-D Z20J-DZ20J- D Z20J-DZ20J-DZ20J- D Z20J-DZ20J-DZ20J-DW15-DW15-200/120A DW15-DZ20J-DZ20J-DZ20J-DZ20J-DZ20J-DZ20J-DZ20J-DZ20J-DZ20J-DZ20J-00/32A 100/40A00/20A 100/32A 100/20A 100/20A100/32A 100/63A100/20A100/32A200/120A200/120A100/32A100/32A100/20A100/20A100/20A100/32A100/20A100/20A100/32A100/20A电流互感器LMZ1-0.66,100/5LMZ1-0.66,100/5LMZ1-0.66,150/5LMZ1-0.66,100/5LMZ1-0.66,150/5LMZ1-0.66,100/5LMZ1-0.66,100/5引出电缆型号截面3V×6+1×43×10+1×6VV3×22-14+1×2.53×6+1×4V-2×4V22-1-4×6 V3×25+1×103×6+1×4VV22-13×50+1×253×50+1×253×6+1×43×4+1×2.53×4+1×2.5 3×6+1×43×44×6穿管管径G25G25G25G25G15G32G32G25G25G25G25G25G25G32说明:BT95O9 为事故照明切换板,其直流电源用VV22-1-2 ×4电缆引至直流屏。
10KV35kv变电站主接线图讲解主接线的一般要求(1) 35kV变电所主接线设计应根据负荷容量大小、负荷性质、电源条件、变压器容量及台数、设备特点以及进出线回路数等综合分析来确定。
主接线应力求简单、运行可靠、操作方便、设备少并便于维修,节约投资和便于扩建等要求。
树上鸟教育电气设计视频教程(2) 35kV采用室外配电装置,并有两回路电源线和两台变压器时,主接线可采用“桥形接线”。
当电源线路较长时,应采用内桥接线,为了提高可靠性和灵活性,可增设带隔离开关的跨条。
当电源线路较短,需经常切除变压器,或桥上有穿越功率时,应采用外桥接线。
当35kV出线数为两回路以上或采用室内配电装置时,宜采用单母线或分段单母线接线。
10(6)kV侧宜用分段单母线、单母线接线。
(3)10(6)kV配电所主接线宜采用单母线或分段单母线; 当供电连续性要求较高,不允许停电检修断路器或母线时,可采用双母线接线。
(4)10(6)kV配电所专用电源线的进线开关宜采用断路器或带熔断器的负荷开关。
当无继电保护和自动装置要求,且出线回路少无需带负荷操作时,可采用隔离开关或隔离触头。
树上鸟教育电气设计视频教程(5) 在高压断路器的电源侧及可能反馈电能的一侧,必须装设高压隔离开关或隔离触头。
(6) 向高压并联电容器组或频繁操作的高压用电设备供电的出线断路器兼做操作开关时,应采用具有高分断能力和频繁操作性能的断路器。
(7) 10 (6) kV母线的分段处,宜装设断路器,但符合下列情况时,可装设隔离开关或隔离触头组:1)事故时手动切换电源能满足要求。
2)不需要带负荷操作。
3)继电保护或自动装置无要求。
4)出线回路较少。
(8)10(6)kV两配电所之间的联络线宜在供电可能性大的一侧配电所装设断路器,另一侧装隔离开关或负荷开关,如两侧供电可能性相同,宜在两侧均装设断路器。
(9)变电所、配电所每段高压母线上及架空线路末端必须装设避雷器。
接在母线上的避雷器和电压互感器,宜合用-~组隔离开关。
1、单电源一台变压器,高供低计
页脚内容1
2、单电源一台变压器,高供高计(负荷开关)
页脚内容2
3、单电源二台变压器,高供高计(负荷开关)
页脚内容3
4、单电源一台变压器,高供高计(断路器)
页脚内容4
5、高压双电源一台变压器,高压单母线,负荷开关
页脚内容5
6、双电源一高一低,一台变压器,高压线变组(负荷开关),低压单母线分段
页脚内容6
7、高压双电源二台变压器,高供高计(负荷开关),高压单母线、低压单母线分段
页脚内容7
8、高压双电源(一主一备)三台变压器,高供高计(断路器),高压单母线、低压环形接线
页脚内容8
页脚内容9
9、高压双电源(两路同供)四台变压器,高供高计(断路器),高压单母线分段、低压多分段,加所变
页脚内容10
110kV降压变电所电气一次部分设计原始资料
页脚内容11。
35kv变电站设计—电气主接线10KV侧选择(四)3.3.2 10kV侧根据要求可以草拟以下三种方案:图3-5方案1单母分段带旁母图3-6 方案2单母分段表4-2两种方案进行比较方案项目方案1 单母分段带旁母接线方案2 单母分段可靠用断路器把母线分段后,对重要用户可从不同段引出两个回路, 保证不间断供电,可靠;检修出线断路器,可以不停电用断路器把母线分段后,对重要用户可从不同段引出两个回路,可靠,适合用于屋内布置,可采用手车式断路器,这样可保证进出线检修时不性检修,供电可靠性高中断供电灵活性当一回线路故障时,分段断路器自动将故障段隔离,保证正常段母线不间断供电,不致使重要用户停电当一回线路故障时,分段断路器自动将故障段隔离,保证正常段母线不间断供电,不致使重要用户停电,且扩建方便经济性占地面积大,多一旁路增加了投资占地面积小,但小车投资多方案三:桥式接线方式当有两台变压器和两条线路时,在变压器—线路接线的基础上,在其中间加一连接桥,则成为桥式接线,方案三所示:桥式接线按照连接桥断路器的位置,可以分为内桥和外桥接线两种接线。
桥式接线中,四个回路只有三台断路器,所以用的断路器数量最少,接线也最经济。
内桥式接线的特点是连接桥断路器在变压器侧,其它两台断路器接在线路上。
因此,线路的投入和切除比较方便,并且当线路发生短路故障时,仅故障线路的断路器调闸,不影响其他回路的运行。
但是,当变压器故障时,则与该变压器连接的两台断路器都要调闸,从而影响了一回未发生故障线路的运行。
此外,变压器的投入与切除的操作比较复杂,需要投入和切除与该变压器连接的两台断路器,也影响了一回未故障线路的运行。
鉴于变压器属于可靠性高的设备,故障率远较线路小,一般不经常切换,因此系统中应用内桥接线的较为普遍。
外桥接线的特点恰好与内桥式接线相反,连接桥断路器在线路侧,其他两台断路器接在变压器的回路中。
所以,当线路故障和进行投入与切除操作时,不影响其他回路运行,故外桥接线只适合于线路短,检修和倒闸操作频繁以及设备故障率较小,而变压器由于按照经济运行的要求需要经常切换的情况。