墙面石材干挂(背栓式)施工工艺(完整版)
- 格式:doc
- 大小:375.00 KB
- 文档页数:5
墙面石材干挂背栓式施工工艺文档仅供参考墙面石材干挂(背栓式)施工工艺墙面石材背栓式干挂施工工艺即在石材板面打孔,孔中安装连接挂件,用专用连接件与结构基层上的专用连接件相连接,使饰面板与墙体间形成80-90mm宽的空气层的施工方法。
它不适用于砖墙和加气混凝土墙。
根据本公司的经验,20mm厚的石材板采用背栓式施工,一般在结构强度上能满足要求。
可是,板在安装后的一段时期中,受各种应力的综合作用,石材会发生一定的变形,使原先平整的大面,板与板之间会发生凹凸不平,影响整个施工面应有的平整度。
为此,建议本工程在使用背栓式安装时,板材最好采用30mm厚的石材,否则容易产生质量问题。
1.操作要点文档仅供参考2.操作要点2.1出翻样图根据设计图以及墙柱校核实测的规格尺寸,并将饰面板的缝宽度包括在内,计算出板块的排档,并按安装顺序编号,绘制墙、柱面各分块大样图以及节点大样图,作为加工定货的依据和基层弹线安装钢架的依据。
2.2进场材料检验A.对进场材料按加工定货单检验其品种、规格、颜色。
B.对进场材料按定货要求检验其边角垂直度、平整度、光洁度、倒角要求、裂缝、棱角缺陷,应符合定货合同和国家验收规范要求。
2.3基层检测处理基层面检测垂直度和平整度。
平整度误差不能大于10mm。
超出部分凿去,凹陷不足部分用高标号水泥砂浆找平。
2.4基层弹线文档仅供参考A. 水平线必须以一定的标高为起点,四周连通,特别要注意接缝必须与窗洞的水平线连通。
B. 垂直线尽可能按块材尺寸,由阳角端向阴角端方向弹。
2.5 基层钻孔混凝土墙体用不锈钢膨胀螺栓固定连接件或用化学锚固剂固定连接件。
孔位要依照弹线尺寸确定,孔径按选用的膨胀螺栓确定,一般比膨胀螺栓胀管直径大1mm 。
孔径深度必须达到选用膨胀螺栓胀管的长度。
2.6 安装基层钢架A. 钢架由膨胀螺栓与基层相连接,螺帽必须拧紧,拧紧后的螺栓再涂强力粘接胶加固。
钢架与基层予埋件相连接,电焊焊缝长度、厚度必须按设计要求进行。
墙面石材干挂(背栓式)施工工艺墙面石材背栓式干挂施工工艺即在石材板面打孔,孔中安装连接挂件,用专用连接件与结构基层上的专用连接件相连接,使饰面板与墙体间形成80—90mm宽的空气层的施工方法。
它不适用于砖墙和加气混凝土墙。
根据本公司的经验,20mm厚的石材板采用背栓式施工,一般在结构强度上能满足要求。
但是,板在安装后的一段时期中,受各种应力的综合作用,石材会发生一定的变形,使原先平整的大面,板与板之间会发生凹凸不平,影响整个施工面应有的平整度。
为此,建议本工程在使用背栓式安装时,板材最好采用30mm厚的石材,否则容易产生质量问题。
1. 操作要点2。
操作要点2.1 出翻样图根据设计图以及墙柱校核实测的规格尺寸,并将饰面板的缝宽度包括在内,计算出板块的排档,并按安装顺序编号,绘制墙、柱面各分块大样图以及节点大样图,作为加工定货的依据和基层弹线安装钢架的依据。
2。
2 进场材料检验A.对进场材料按加工定货单检验其品种、规格、颜色.B.对进场材料按定货要求检验其边角垂直度、平整度、光洁度、倒角要求、裂缝、棱角缺陷,应符合定货合同和国家验收规范要求.2.3 基层检测处理基层面检测垂直度和平整度.平整度误差不能大于10mm。
超出部分凿去,凹陷不足部分用高标号水泥砂浆找平。
2.4 基层弹线A.水平线必须以一定的标高为起点,四周连通,尤其要注意接缝必须与窗洞的水平线连通。
B.垂直线尽可能按块材尺寸,由阳角端向阴角端方向弹。
2。
5 基层钻孔混凝土墙体用不锈钢膨胀螺栓固定连接件或用化学锚固剂固定连接件.孔位要依照弹线尺寸确定,孔径按选用的膨胀螺栓确定,一般比膨胀螺栓胀管直径大1mm。
孔径深度必须达到选用膨胀螺栓胀管的长度。
2。
6 安装基层钢架A.钢架由膨胀螺栓与基层相连接,螺帽必须拧紧,拧紧后的螺栓再涂强力粘接胶加固。
钢架与基层予埋件相连接,电焊焊缝长度、厚度必须按设计要求进行。
B.钢架安装完毕,必须采用专用防锈漆进行除锈处理。
背栓式干挂石材幕墙施工工艺背栓式干挂石材幕墙施工工艺一、背栓式干挂石材幕墙的优点背栓式干挂石材幕墙是在石材背面钻成燕尾孔与凸形胀栓结合然后与龙骨连接,并由金属支架组成的横竖龙骨通过埋件连接固定在外墙上,此工艺普遍运用于高层和超高层干挂石材幕墙施工,它具有以下的优点:第一:背栓式干挂石材,由于每块石材均有四个背栓式挂件,每个挂件都均匀承受石材重量且石材挂件与龙骨挂件间接触面积大,相应的强度和稳定性好。
因此它可适用于高层和超高层外幕墙施工。
第二:背栓式干挂石材,因各个挂件均承载石材重量破裂后石材不易脱落且易于更换。
第三:背栓式干挂石材表面清洁,不易受污染,而且用水泥砂浆粘结石材表面因受水泥浆侵蚀易变色形成色差。
二、施工准备石材幕墙使用的材料应符合国家现行产品标准的规定,要求具有耐候,抗火和抗风性能。
由于本工程外墙干挂石材用量大,干挂高度高(97.05m),为防止出现色差和供货能力,应配合建设方选用盛产石材的产地和大矿脉。
三、主要施工工序的施工方法与技术措施1、施工工序准备--测量放线--预埋件矫偏补强--龙骨安装--石材安装--施胶清洁--验收2、放样定位将土建方提供的基准中心线、标高线进行复测,无误后根据图纸给出的、竖龙骨的位置和轴线放钢线,定出横、竖龙骨位置和石材幕墙位置。
先由中间向两端测量,然后由两段向中间复核尺寸。
放出的横竖龙骨位置误差符合设计要求。
根据放线位置,寻找预埋件,如果预埋件没有即时补打埋件,补打埋件用的一块10mm厚钢板和4颗M12后切式锚栓,钻孔后螺栓拧紧并将螺母与螺栓点焊。
3、龙骨安装从结构上实现先竖立柱,后上横梁,立柱定位后再装横梁,将能很好的保证横梁立柱的直线度和横梁的伸缩缝,安装顺序是先下后上。
龙骨安装完要进行全面检查,尤其是横梁立柱中心线,必须用仪器对横梁立柱进行调整。
4、石材挂件的安装铝合金挂件的定位、安装是可更换背栓式石材幕墙安装中至关重要一环,它位置准确与否直接关系到石材幕墙的外观效果、铝合金挂件采用分段形式,通过螺栓与龙骨角钢相连,石材板块上的胀栓与挂件间有一定的配合尺寸,可以保证石材水平板块方向的调整。
墙面石材干挂(背栓式)施工工艺墙面石材背栓式干挂施工工艺即在石材板面打孔,孔中安装连接挂件,用专用连接件与结构基层上的专用连接件相连接,使饰面板与墙体间形成80-90mm宽的空气层的施工方法。
它不适用于砖墙和加气混凝土墙。
根据本公司的经验,20mm厚的石材板采用背栓式施工,一般在结构强度上能满足要求。
但是,板在安装后的一段时期中,受各种应力的综合作用,石材会发生一定的变形,使原先平整的大面,板与板之间会发生凹凸不平,影响整个施工面应有的平整度。
为此,建议本工程在使用背栓式安装时,板材最好采用30mm厚的石材,否则容易产生质量问题。
1. 操作要点2. 操作要点2.1 出翻样图根据设计图以及墙柱校核实测的规格尺寸,并将饰面板的缝宽度包括在内,计算出板块的排档,并按安装顺序编号,绘制墙、柱面各分块大样图以及节点大样图,作为加工定货的依据和基层弹线安装钢架的依据。
2.2 进场材料检验A.对进场材料按加工定货单检验其品种、规格、颜色。
B.对进场材料按定货要求检验其边角垂直度、平整度、光洁度、倒角要求、裂缝、棱角缺陷,应符合定货合同和国家验收规范要求。
2.3 基层检测处理基层面检测垂直度和平整度。
平整度误差不能大于10mm。
超出部分凿去,凹陷不足部分用高标号水泥砂浆找平。
2.4 基层弹线A.水平线必须以一定的标高为起点,四周连通,尤其要注意接缝必须与窗洞的水平线连通。
B.垂直线尽可能按块材尺寸,由阳角端向阴角端方向弹。
2.5 基层钻孔混凝土墙体用不锈钢膨胀螺栓固定连接件或用化学锚固剂固定连接件。
孔位要依照弹线尺寸确定,孔径按选用的膨胀螺栓确定,一般比膨胀螺栓胀管直径大1mm。
孔径深度必须达到选用膨胀螺栓胀管的长度。
2.6 安装基层钢架A.钢架由膨胀螺栓与基层相连接,螺帽必须拧紧,拧紧后的螺栓再涂强力粘接胶加固。
钢架与基层予埋件相连接,电焊焊缝长度、厚度必须按设计要求进行。
B.钢架安装完毕,必须采用专用防锈漆进行除锈处理。
墙面石材干挂(背栓式)施工工艺墙面石材背栓式干挂施工工艺即在石材板面打孔,孔中安装连接挂件,用专用连接件与结构基层上的专用连接件相连接,使饰面板与墙体间形成80-90mm宽的空气层的施工方法。
它不适用于砖墙和加气混凝土墙。
根据本公司的经验,20mm厚的石材板采用背栓式施工,一般在结构强度上能满足要求。
但是,板在安装后的一段时期中,受各种应力的综合作用,石材会发生一定的变形,使原先平整的大面,板与板之间会发生凹凸不平,影响整个施工面应有的平整度。
为此,建议本工程在使用背栓式安装时,板材最好采用30mm厚的石材,否则容易产生质量问题。
1. 操作要点2. 操作要点2.1 出翻样图根据设计图以及墙柱校核实测的规格尺寸,并将饰面板的缝宽度包括在内,计算出板块的排档,并按安装顺序编号,绘制墙、柱面各分块大样图以及节点大样图,作为加工定货的依据和基层弹线安装钢架的依据。
2.2 进场材料检验A.对进场材料按加工定货单检验其品种、规格、颜色。
对进场材料按定货要求检验其边角垂直度、平整度、光洁度、倒角要求、裂缝、棱角缺陷,应符合定货合同和国家验收规范要求。
2.3 基层检测处理基层面检测垂直度和平整度。
平整度误差不能大于10mm。
超出部分凿去,凹陷不足部分用高标号水泥砂浆找平。
2.4 基层弹线A.水平线必须以一定的标高为起点,四周连通,尤其要注意接缝必须与窗洞的水平线连通。
B.垂直线尽可能按块材尺寸,由阳角端向阴角端方向弹。
2.5 基层钻孔混凝土墙体用不锈钢膨胀螺栓固定连接件或用化学锚固剂固定连接件。
孔位要依照弹线尺寸确定,孔径按选用的膨胀螺栓确定,一般比膨胀螺栓胀管直径大1mm。
孔径深度必须达到选用膨胀螺栓胀管的长度。
2.6 安装基层钢架钢架由膨胀螺栓与基层相连接,螺帽必须拧紧,拧紧后的螺栓再涂强力粘接胶加固。
钢架与基层予埋件相连接,电焊焊缝长度、厚度必须按设计要求进行。
B.钢架安装完毕,必须采用专用防锈漆进行除锈处理。
墙面石材干挂(背栓式)施工工艺墙面石材背栓式干挂施工工艺即在石材板面打孔,孔中安装连接挂件,用专用连接件与结构基层上的专用连接件相连接,使饰面板与墙体间形成80-90mm宽的空气层的施工方法。
它不适用于砖墙和加气混凝土墙。
根据本公司的经验,20mm厚的石材板采用背栓式施工,一般在结构强度上能满足要求。
但是,板在安装后的一段时期中,受各种应力的综合作用,石材会发生一定的变形,使原先平整的大面,板与板之间会发生凹凸不平,影响整个施工面应有的平整度。
为此,建议本工程在使用背栓式安装时,板材最好采用30mm厚的石材,否则容易产生质量问题。
1. 操作要点2. 操作要点2.1 出翻样图根据设计图以及墙柱校核实测的规格尺寸,并将饰面板的缝宽度包括在内,计算出板块的排档,并按安装顺序编号,绘制墙、柱面各分块大样图以及节点大样图,作为加工定货的依据和基层弹线安装钢架的依据。
2.2 进场材料检验A.对进场材料按加工定货单检验其品种、规格、颜色。
B.对进场材料按定货要求检验其边角垂直度、平整度、光洁度、倒角要求、裂缝、棱角缺陷,应符合定货合同和国家验收规范要求。
2.3 基层检测处理基层面检测垂直度和平整度。
平整度误差不能大于10mm。
超出部分凿去,凹陷不足部分用高标号水泥砂浆找平。
2.4 基层弹线A.水平线必须以一定的标高为起点,四周连通,尤其要注意接缝必须与窗洞的水平线连通。
B.垂直线尽可能按块材尺寸,由阳角端向阴角端方向弹。
2.5 基层钻孔混凝土墙体用不锈钢膨胀螺栓固定连接件或用化学锚固剂固定连接件。
孔位要依照弹线尺寸确定,孔径按选用的膨胀螺栓确定,一般比膨胀螺栓胀管直径大1mm。
孔径深度必须达到选用膨胀螺栓胀管的长度。
2.6 安装基层钢架A.钢架由膨胀螺栓与基层相连接,螺帽必须拧紧,拧紧后的螺栓再涂强力粘接胶加固。
钢架与基层予埋件相连接,电焊焊缝长度、厚度必须按设计要求进行。
B.钢架安装完毕,必须采用专用防锈漆进行除锈处理。
墙面石材干挂(背栓式)施工工艺墙面石材背栓式干挂施工工艺即在石材板面打孔,孔中安装连接挂件,用专用连接件与结构基层上的专用连接件相连接,使饰面板与墙体间形成80—90mm宽的空气层的施工方法。
它不适用于砖墙和加气混凝土墙。
根据本公司的经验,20mm厚的石材板采用背栓式施工,一般在结构强度上能满足要求。
但是,板在安装后的一段时期中,受各种应力的综合作用,石材会发生一定的变形,使原先平整的大面,板与板之间会发生凹凸不平,影响整个施工面应有的平整度。
为此,建议本工程在使用背栓式安装时,板材最好采用30mm厚的石材,否则容易产生质量问题.1. 操作要点2. 操作要点2.1 出翻样图根据设计图以及墙柱校核实测的规格尺寸,并将饰面板的缝宽度包括在内,计算出板块的排档,并按安装顺序编号,绘制墙、柱面各分块大样图以及节点大样图,作为加工定货的依据和基层弹线安装钢架的依据。
2.2 进场材料检验A.对进场材料按加工定货单检验其品种、规格、颜色.B.对进场材料按定货要求检验其边角垂直度、平整度、光洁度、倒角要求、裂缝、棱角缺陷,应符合定货合同和国家验收规范要求。
2。
3 基层检测处理基层面检测垂直度和平整度。
平整度误差不能大于10mm.超出部分凿去,凹陷不足部分用高标号水泥砂浆找平。
2。
4 基层弹线A.水平线必须以一定的标高为起点,四周连通,尤其要注意接缝必须与窗洞的水平线连通。
B.垂直线尽可能按块材尺寸,由阳角端向阴角端方向弹。
2。
5 基层钻孔混凝土墙体用不锈钢膨胀螺栓固定连接件或用化学锚固剂固定连接件.孔位要依照弹线尺寸确定,孔径按选用的膨胀螺栓确定,一般比膨胀螺栓胀管直径大1mm。
孔径深度必须达到选用膨胀螺栓胀管的长度。
2。
6 安装基层钢架A.钢架由膨胀螺栓与基层相连接,螺帽必须拧紧,拧紧后的螺栓再涂强力粘接胶加固.钢架与基层予埋件相连接,电焊焊缝长度、厚度必须按设计要求进行。
B.钢架安装完毕,必须采用专用防锈漆进行除锈处理。
室内墙面石材背栓施工工艺流程
室内墙面石材背栓施工工艺流程主要包括以下步骤:
1.定位放线:以50mm水平线为依据向上施工,进行定位放线。
2.基层处理:对砼外墙表面进行测量、检查其平整度,保证主龙骨的垂直度,根
据图纸对砼外墙面进行基层处理,将基准面清理干净。
3.石材板块的安装:先安装立板,待调试水平、垂直后,再安装上下转角板。
4.背栓式连接石材安装方法:工艺流程施工准备、测量放线、预埋件处理、连接
角码安装、立柱安装、防水挡板安装、横梁安装、石材装配组件制作安装、清洁检查、竣工验收。
5.测量工具的使用:进行测量和校核。
6.打孔和植筋胶的使用:用电锤连续打孔,并在孔内注入植筋胶,使其固化后达
到有效的锚固强度。
7.干挂石材:安装好背栓挂件的石材面板根据放线,定位打孔位置干挂上墙。
调
整距墙体的间距,达到固化时间后可去除定位固化用木楔,最后保证整个成型面的平面度,用经纬仪调整,校准。
8.密封胶嵌缝成型:成型的石材安装上墙后,石材面板之间嵌以硅酮耐候密封胶。
注胶需用胶枪,先在间隙内填塞泡末条,注胶四周用纸胶带做护边处理,然后注硅酮密
封胶,胶缝直线度误差要求在±0.5mm以内。
9.防雷系统的安装:与建筑物连接,每隔3-5m通过扁钢带、预埋件与建筑物防
雷系统的引下线接地,接通位置不少于一个开间,以防静电感应电压对人和设备造成危害。
安装后进行检测和调整。
请注意,以上步骤可能因工程具体要求和当地规范有所不同,因此在实际施工前,建议详细查阅相关的施工图纸和规范,并与专业的施工团队进行沟通,确保施工质量和安全。
石材背栓干挂法的施工工艺流程下载温馨提示:该文档是我店铺精心编制而成,希望大家下载以后,能够帮助大家解决实际的问题。
文档下载后可定制随意修改,请根据实际需要进行相应的调整和使用,谢谢!Download Tip: This document has been carefully written by the editor. I hope that after you download, they can help you solve practical problems. After downloading, the document can be customized and modified. Please adjust and use it according to actual needs. Thank you!石材背栓干挂法的施工工艺流程如下:①施工准备:确认设计图纸,准备石材、背栓、支撑架等材料,确保工具齐全,现场清理并测量放线。
②基层处理与埋件安装:处理好建筑基层,安装预埋件或后置埋件,使用化学锚栓或膨胀螺栓固定,确保承载力。
③安装连接件:在埋件基础上安装连接角码或节点板,使用螺栓连接固定,为石材挂装提供支撑结构。
④石材加工与背栓钻孔:根据设计要求,对石材板进行尺寸切割、边缘处理,并在石材背面按设计图案钻背栓孔。
⑤背栓安装:在石材背面孔中安装背栓组件,使用专用胶或机械锁定方式确保背栓与石材牢固连接。
⑥石材吊装与调整:使用吊装设备将石材板吊起,对准已安装好的连接件,通过背栓缓缓调整石材板至预定位置,确保水平与垂直。
⑦固定石材板:通过背栓系统的螺丝等紧固件将石材板固定在连接件上,逐一固定所有石材板块。
⑧缝隙处理与密封:对石材间的缝隙进行处理,填充密封胶或安装密封条,确保防水和美观。
⑨清洁与检查:施工完毕后,对石材表面及整体结构进行清洁,检查有无遗漏或瑕疵,确保施工质量。
⑩竣工验收:完成所有施工步骤后,进行质量自检与项目验收,确保符合安全及设计要求,最终交付使用。
墙面石材干挂(背栓式)施工工艺墙面石材背栓式干挂施工工艺即在石材板面打孔,孔中安装连接挂件,用专用连接件与结构基层上的专用连接件相连接,使饰面板与墙体间形成80-90mm宽的空气层的施工方法。
它不适用于砖墙和加气混凝土墙。
根据本公司的经验,20mm厚的石材板采用背栓式施工,一般在结构强度上能满足要求。
但是,板在安装后的一段时期中,受各种应力的综合作用,石材会发生一定的变形,使原先平整的大面,板与板之间会发生凹凸不平,影响整个施工面应有的平整度。
为此,建议本工程在使用背栓式安装时,板材最好采用30mm厚的石材,否则容易产生质量问题。
1. 操作要点2. 操作要点2.1 出翻样图根据设计图以及墙柱校核实测的规格尺寸,并将饰面板的缝宽度包括在内,计算出板块的排档,并按安装顺序编号,绘制墙、柱面各分块大样图以及节点大样图,作为加工定货的依据和基层弹线安装钢架的依据。
2.2 进场材料检验A.对进场材料按加工定货单检验其品种、规格、颜色。
B.对进场材料按定货要求检验其边角垂直度、平整度、光洁度、倒角要求、裂缝、棱角缺陷,应符合定货合同和国家验收规范要求。
2.3 基层检测处理基层面检测垂直度和平整度。
平整度误差不能大于10mm。
超出部分凿去,凹陷不足部分用高标号水泥砂浆找平。
2.4 基层弹线A.水平线必须以一定的标高为起点,四周连通,尤其要注意接缝必须与窗洞的水平线连通。
B.垂直线尽可能按块材尺寸,由阳角端向阴角端方向弹。
2.5 基层钻孔混凝土墙体用不锈钢膨胀螺栓固定连接件或用化学锚固剂固定连接件。
孔位要依照弹线尺寸确定,孔径按选用的膨胀螺栓确定,一般比膨胀螺栓胀管直径大1mm。
孔径深度必须达到选用膨胀螺栓胀管的长度。
2.6 安装基层钢架A.钢架由膨胀螺栓与基层相连接,螺帽必须拧紧,拧紧后的螺栓再涂强力粘接胶加固。
钢架与基层予埋件相连接,电焊焊缝长度、厚度必须按设计要求进行。
B.钢架安装完毕,必须采用专用防锈漆进行除锈处理。
墙面石材干挂(背栓式)施工工艺墙面石材背栓式干挂施工工艺即在石材板面打孔,孔中安装连接挂件,用专用连接件与结构基层上的专用连接件相连接,使饰面板与墙体间形成80-90mm宽的空气层的施工方法。
它不适用于砖墙和加气混凝土墙。
根据本公司的经验,20mm厚的石材板采用背栓式施工,一般在结构强度上能满足要求。
但是,板在安装后的一段时期中,受各种应力的综合作用,石材会发生一定的变形,使原先平整的大面,板与板之间会发生凹凸不平,影响整个施工面应有的平整度。
为此,建议本工程在使用背栓式安装时,板材最好采用30mm厚的石材,否则容易产生质量问题。
1. 操作要点2. 操作要点2.1 出翻样图根据设计图以及墙柱校核实测的规格尺寸,并将饰面板的缝宽度包括在内,计算出板块的排档,并按安装顺序编号,绘制墙、柱面各分块大样图以及节点大样图,作为加工定货的依据和基层弹线安装钢架的依据。
2.2 进场材料检验A.对进场材料按加工定货单检验其品种、规格、颜色。
B.对进场材料按定货要求检验其边角垂直度、平整度、光洁度、倒角要求、裂缝、棱角缺陷,应符合定货合同和国家验收规范要求。
2.3 基层检测处理基层面检测垂直度和平整度。
平整度误差不能大于10mm。
超出部分凿去,凹陷不足部分用高标号水泥砂浆找平。
2.4 基层弹线A.水平线必须以一定的标高为起点,四周连通,尤其要注意接缝必须与窗洞的水平线连通。
B.垂直线尽可能按块材尺寸,由阳角端向阴角端方向弹。
2.5 基层钻孔混凝土墙体用不锈钢膨胀螺栓固定连接件或用化学锚固剂固定连接件。
孔位要依照弹线尺寸确定,孔径按选用的膨胀螺栓确定,一般比膨胀螺栓胀管直径大1mm。
孔径深度必须达到选用膨胀螺栓胀管的长度。
2.6 安装基层钢架A.钢架由膨胀螺栓与基层相连接,螺帽必须拧紧,拧紧后的螺栓再涂强力粘接胶加固。
钢架与基层予埋件相连接,电焊焊缝长度、厚度必须按设计要求进行。
B.钢架安装完毕,必须采用专用防锈漆进行除锈处理。
墙面石材干挂(背栓式)施工工艺墙面石材背栓式干挂施工工艺即在石材板面打孔,孔中安装连接挂件,用专用连接件与结构基层上的专用连接件相连接,使饰面板与墙体间形成80-90mm宽的空气层的施工方法。
它不适用于砖墙和加气混凝土墙。
根据本公司的经验,20mm厚的石材板采用背栓式施工,一般在结构强度上能满足要求。
但是,板在安装后的一段时期中,受各种应力的综合作用,石材会发生一定的变形,使原先平整的大面,板与板之间会发生凹凸不平,影响整个施工面应有的平整度。
为此,建议本工程在使用背栓式安装时,板材最好采用30mm厚的石材,否则容易产生质量问题。
1. 操作要点2. 操作要点2.1 出翻样图根据设计图以及墙柱校核实测的规格尺寸,并将饰面板的缝宽度包括在内,计算出板块的排档,并按安装顺序编号,绘制墙、柱面各分块大样图以及节点大样图,作为加工定货的依据和基层弹线安装钢架的依据。
2.2 进场材料检验A.对进场材料按加工定货单检验其品种、规格、颜色。
B.对进场材料按定货要求检验其边角垂直度、平整度、光洁度、倒角要求、裂缝、棱角缺陷,应符合定货合同和国家验收规范要求。
2.3 基层检测处理基层面检测垂直度和平整度。
平整度误差不能大于10mm。
超出部分凿去,凹陷不足部分用高标号水泥砂浆找平。
2.4 基层弹线A.水平线必须以一定的标高为起点,四周连通,尤其要注意接缝必须与窗洞的水平线连通。
B.垂直线尽可能按块材尺寸,由阳角端向阴角端方向弹。
2.5 基层钻孔混凝土墙体用不锈钢膨胀螺栓固定连接件或用化学锚固剂固定连接件。
孔位要依照弹线尺寸确定,孔径按选用的膨胀螺栓确定,一般比膨胀螺栓胀管直径大1mm。
孔径深度必须达到选用膨胀螺栓胀管的长度。
2.6 安装基层钢架A.钢架由膨胀螺栓与基层相连接,螺帽必须拧紧,拧紧后的螺栓再涂强力粘接胶加固。
钢架与基层予埋件相连接,电焊焊缝长度、厚度必须按设计要求进行。
B.钢架安装完毕,必须采用专用防锈漆进行除锈处理。
干挂石材背栓施工工艺流程一、施工前准备。
二、石材打孔。
这石材打孔可是个技术活。
要根据背栓的规格来确定打孔的大小和深度。
不能打得太大了,不然背栓就不牢固;也不能打得太小了,塞都塞不进去。
打孔的时候得小心翼翼的,就像给小宝贝扎辫子,得细致。
打孔的位置也很重要呢,要按照设计要求来,要是打歪了,那后面的工序可就麻烦大了。
三、背栓安装。
背栓安装可不能马虎。
把背栓慢慢塞进打好的孔里,就像给小娃娃穿衣服一样,得轻柔又准确。
要确保背栓完全嵌入孔内,并且安装牢固。
有时候背栓没安好,在后面石材挂上去的时候就可能会松动,那就像一颗松动的牙齿,可让人不放心啦。
四、挂件安装。
挂件安装也是很重要的一环。
要把挂件准确地安装在背栓上,这就像给项链戴上吊坠一样,得对好位置。
挂件安装得牢固了,才能承受住石材的重量。
要是挂件松松垮垮的,石材就可能会掉下来,那可危险极了,就像头顶上悬着个炸弹一样。
五、石材安装。
石材安装就像是搭积木。
把打好孔、安装好背栓和挂件的石材一块一块地挂上去。
挂的时候要注意石材之间的缝隙,要均匀一致。
不能有的缝隙大,有的缝隙小,那就像小朋友换牙的时候,牙齿长得参差不齐一样难看。
每块石材都要挂得稳稳当当的,这样整个墙面或者地面看起来才美观又安全。
六、调整与固定。
石材挂上去之后,还得进行调整呢。
看看有没有高低不平的地方,有没有缝隙没对齐的情况。
就像整理自己的衣服一样,哪里不整齐就得调整哪里。
调整好之后就要把石材固定住,这样它就不会再乱动了。
七、清理与验收。
墙面石材干挂(背栓式)施工工艺墙面石材背栓式干挂施工工艺即在石材板面打孔,孔中安装连接挂件,用专用连接件与结构基层上的专用连接件相连接,使饰面板与墙体间形成80-90mm宽的空气层的施工方法。
它不适用于砖墙和加气混凝土墙。
根据本公司的经验,20mm厚的石材板采用背栓式施工,一般在结构强度上能满足要求。
但是,板在安装后的一段时期中,受各种应力的综合作用,石材会发生一定的变形,使原先平整的大面,板与板之间会发生凹凸不平,影响整个施工面应有的平整度。
为此,建议本工程在使用背栓式安装时,板材最好采用30mm厚的石材,否则容易产生质量问题。
1. 操作要点2. 操作要点2.1 出翻样图根据设计图以及墙柱校核实测的规格尺寸,并将饰面板的缝宽度包括在内,计算出板块的排档,并按安装顺序编号,绘制墙、柱面各分块大样图以及节点大样图,作为加工定货的依据和基层弹线安装钢架的依据。
2.2 进场材料检验A.对进场材料按加工定货单检验其品种、规格、颜色。
B.对进场材料按定货要求检验其边角垂直度、平整度、光洁度、倒角要求、裂缝、棱角缺陷,应符合定货合同和国家验收规范要求。
2.3 基层检测处理基层面检测垂直度和平整度。
平整度误差不能大于10mm。
超出部分凿去,凹陷不足部分用高标号水泥砂浆找平。
2.4 基层弹线A.水平线必须以一定的标高为起点,四周连通,尤其要注意接缝必须与窗洞的水平线连通。
B.垂直线尽可能按块材尺寸,由阳角端向阴角端方向弹。
2.5 基层钻孔混凝土墙体用不锈钢膨胀螺栓固定连接件或用化学锚固剂固定连接件。
孔位要依照弹线尺寸确定,孔径按选用的膨胀螺栓确定,一般比膨胀螺栓胀管直径大1mm。
孔径深度必须达到选用膨胀螺栓胀管的长度。
2.6 安装基层钢架A.钢架由膨胀螺栓与基层相连接,螺帽必须拧紧,拧紧后的螺栓再涂强力粘接胶加固。
钢架与基层予埋件相连接,电焊焊缝长度、厚度必须按设计要求进行。
B.钢架安装完毕,必须采用专用防锈漆进行除锈处理。
墙面石材干挂(背栓式)施工工艺墙面石材背栓式干挂施工工艺即在石材板面打孔,孔中安装连接挂件,用专用连接件与结构基层上的专用连接件相连接,使饰面板与墙体间形成80-90mm宽的空气层的施工方法。
它不适用于砖墙和加气混凝土墙。
根据本公司的经验,20mm厚的石材板采用背栓式施工,一般在结构强度上能满足要求。
但是,板在安装后的一段时期中,受各种应力的综合作用,石材会发生一定的变形,使原先平整的大面,板与板之间会发生凹凸不平,影响整个施工面应有的平整度。
为此,建议本工程在使用背栓式安装时,板材最好采用30mm厚的石材,否则容易产生质量问题。
1. 操作要点出翻样图基层检测处理弹线钻孔厂家加工安装基层钢架钢架防腐处理隐蔽工程验收产品保护预排编号安装膨胀螺栓板栓扩孔安装连接件干挂石材嵌缝清洗板面2. 操作要点2.1 出翻样图根据设计图以及墙柱校核实测的规格尺寸,并将饰面板的缝宽度包括在内,计算出板块的排档,并按安装顺序编号,绘制墙、柱面各分块大样图以及节点大样图,作为加工定货的依据和基层弹线安装钢架的依据。
2.2 进场材料检验A.对进场材料按加工定货单检验其品种、规格、颜色。
B.对进场材料按定货要求检验其边角垂直度、平整度、光洁度、倒角要求、裂缝、棱角缺陷,应符合定货合同和国家验收规范要求。
2.3 基层检测处理基层面检测垂直度和平整度。
平整度误差不能大于10mm。
超出部分凿去,凹陷不足部分用高标号水泥砂浆找平。
2.4 基层弹线A.水平线必须以一定的标高为起点,四周连通,尤其要注意接缝必须与窗洞的水平线连通。
B.垂直线尽可能按块材尺寸,由阳角端向阴角端方向弹。
2.5 基层钻孔混凝土墙体用不锈钢膨胀螺栓固定连接件或用化学锚固剂固定连接件。
孔位要依照弹线尺寸确定,孔径按选用的膨胀螺栓确定,一般比膨胀螺栓胀管直径大1mm。
孔径深度必须达到选用膨胀螺栓胀管的长度。
2.6 安装基层钢架A.钢架由膨胀螺栓与基层相连接,螺帽必须拧紧,拧紧后的螺栓再涂强力粘接胶加固。
墙面石材干挂(背栓式)施工工艺墙面石材背栓式干挂施工工艺即在石材板面打孔,孔中安装连接挂件,用专用连接件与结构基层上的专用连接件相连接,使饰面板与墙体间形成80-90mm宽的空气层的施工方法。
它不适用于砖墙和加气混凝土墙。
根据本公司的经验,20mm厚的石材板采用背栓式施工,一般在结构强度上能满足要求。
但是,板在安装后的一段时期中,受各种应力的综合作用,石材会发生一定的变形,使原先平整的大面,板与板之间会发生凹凸不平,影响整个施工面应有的平整度。
为此,建议本工程在使用背栓式安装时,板材最好采用30mm厚的石材,否则容易产生质量问题。
1. 操作要点2. 操作要点2.1 出翻样图根据设计图以及墙柱校核实测的规格尺寸,并将饰面板的缝宽度包括在内,计算出板块的排档,并按安装顺序编号,绘制墙、柱面各分块大样图以及节点大样图,作为加工定货的依据和基层弹线安装钢架的依据。
2.2 进场材料检验A.对进场材料按加工定货单检验其品种、规格、颜色。
B.对进场材料按定货要求检验其边角垂直度、平整度、光洁度、倒角要求、裂缝、棱角缺陷,应符合定货合同和国家验收规范要求。
2.3 基层检测处理基层面检测垂直度和平整度。
平整度误差不能大于10mm。
超出部分凿去,凹陷不足部分用高标号水泥砂浆找平。
2.4 基层弹线A.水平线必须以一定的标高为起点,四周连通,尤其要注意接缝必须与窗洞的水平线连通。
B.垂直线尽可能按块材尺寸,由阳角端向阴角端方向弹。
2.5 基层钻孔混凝土墙体用不锈钢膨胀螺栓固定连接件或用化学锚固剂固定连接件。
孔位要依照弹线尺寸确定,孔径按选用的膨胀螺栓确定,一般比膨胀螺栓胀管直径大1mm。
孔径深度必须达到选用膨胀螺栓胀管的长度。
2.6 安装基层钢架A.钢架由膨胀螺栓与基层相连接,螺帽必须拧紧,拧紧后的螺栓再涂强力粘接胶加固。
钢架与基层予埋件相连接,电焊焊缝长度、厚度必须按设计要求进行。
B.钢架安装完毕,必须采用专用防锈漆进行除锈处理。
墙面石材干挂(背栓式)施工工艺
墙面石材背栓式干挂施工工艺即在石材板面打孔,孔中安装连接挂件,用专用连接件与结构基层上的专用连接件相连接,
使饰面板与墙体间形成 80-90mm宽的空气层的施工方法。
它不适用于砖墙和加气混凝土墙。
根据本公司的经验, 20mm厚的石材板采用背栓式施工,一般在结构强度上能满足要求。
但是,板在安装后的一段时期中,
受各种应力的综合作用,石材会发生一定的变形,使原先平整
的大面,板与板之间会发生凹凸不平,影响整个施工面应有的
平整度。
为此,建议本工程在使用背栓式安装时,板材最好采
用 30mm厚的石材,否则容易产生质量问题。
1.操作要点
出翻样图厂家加工基层检测处理
弹线钻孔安装基层钢架钢架防腐处理隐蔽工程验收预排编号
产品保护安装膨胀螺栓
板栓扩孔
安装连接件
干挂石材
嵌缝
清洗板面
产品保护
2.操作要点
2.1出翻样图
根据设计图以及墙柱校核实测的规格尺寸,并将饰面板的缝宽度包括在内,计算出板块的排档,并按安装顺序编号,绘
制墙、柱面各分块大样图以及节点大样图,作为加工定货的依
据和基层弹线安装钢架的依据。
2.2进场材料检验
A.对进场材料按加工定货单检验其品种、规格、颜色。
B.对进场材料按定货要求检验其边角垂直度、平整度、光洁度、
倒角要求、裂缝、棱角缺陷,应符合定货合同和国家验收规
范要求。
2.3基层检测处理
基层面检测垂直度和平整度。
平整度误差不能大于 10mm。
超出部分凿去,凹陷不足部分用高标号水泥砂浆找平。
2.4基层弹线
A.水平线必须以一定的标高为起点,四周连通,尤其要注意接
缝必须与窗洞的水平线连通。
B.垂直线尽可能按块材尺寸,由阳角端向阴角端方向弹。
2.5基层钻孔
混凝土墙体用不锈钢膨胀螺栓固定连接件或用化学锚固剂固定连接件。
孔位要依照弹线尺寸确定,孔径按选用的膨胀螺
栓确定,一般比膨胀螺栓胀管直径大 1mm。
孔径深度必须达到
选用膨胀螺栓胀管的长度。
2.6安装基层钢架
A.钢架由膨胀螺栓与基层相连接,螺帽必须拧紧,拧紧后的螺
栓再涂强力粘接胶加固。
钢架与基层予埋件相连接,电焊焊
缝长度、厚度必须按设计要求进行。
B.钢架安装完毕,必须采用专用防锈漆进行除锈处理。
2.7予排编号
石材安装前必须按翻样图进行予排,石材安装时应保持上下左右颜色、花纹一致,纹理通顺接缝严密吻合,遇有不合格
的石材,必须剔除,安置于阴角,底部不显眼的部位。
但应保
持挽上的石材与相邻石材色泽、纹路一致。
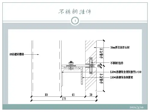
2.8背栓扩孔
2 2
A.板材面积小等于 1m,一般设 4个对应孔,大于 1m的板材,
应该根据受力情况适当增加孔位。
B.孔位应该离板边缘至少 15cm。
C.孔眼内大外小,使进入孔中的连接杆件无法拔出。
D.孔深一般应保持 15mm。
E.先用规定粗的钻头打 15mm深的孔,然后用专用钻头进行孔
内扩孔,形成内大外小的连接孔(见背栓扩孔示意图 1和图
2)。
2.9安装连接件
A.在板孔中安装背栓螺丝,背栓螺丝安装入孔中后,在孔内部
分会大,形成内大外小的形状,与石材上的孔恰好吻合,为
了安全起见,本公司主张在背栓螺丝安装入孔前,先在孔内
注入环氧树脂胶,使连接件与石材形成良好的面连接,而且
环氧树脂胶还能有效防止石材孔边的受剪破坏。
击入式背栓
螺丝安装,见示意图 3、图 4,旋入式背栓螺丝安装见示意
图 5、图 6。
B.在连接件安装牢固后,再套上专用挂件,用螺栓与连接件拧
紧。
同时,在混凝土基层或钢支架上同样安装对应的专用挂
件(见附图 7)。
2.10挂板
A.为了保证离缝的准确性,安装时在每条缝中安放二片厚度与
缝宽要求相一致的塑料片(待打硅胶时取出)。
B.专用挂件对接完毕,石材边线排列均顺直之后,拧紧限位螺
丝,使石材保持最佳的位置。
C.每安装完一块板必须检查它的水平和垂直度。
2.11嵌缝
A.嵌缝前基层面必须清理干净,基层面要干燥,以便确保嵌缝
胶与基层良好的粘结。
B.泡沫条直径要大于缝宽 4mm,确保泡沫条顶紧板材二边,不
留缝隙。
泡沫条要深入板面 10mm。
C.嵌缝胶要均匀地挤打,一要保证嵌缝胶与基板边粘结牢固,
二要使外表呈凹形半圆状态,平整光滑美观。
2.12清洗板面
A.施工时尽可能不要造成污染,减少清洗工作量,有效保护板
材光泽。
B.一般的色污可用草酸,双氧水刷洗,严重的色污可用双氧水
与漂白粉掺在一起搅成面糊状涂于斑痕处, 2-3天后铲除,
色斑可逐步减弱。
C.清洗完毕必须重新对板材磨光,上光腊。