预埋止水节QC成果
- 格式:pptx
- 大小:3.30 MB
- 文档页数:48
开展QC活动控制施工缝防水质量小组名称:施工缝防水质量控制小组发表人:###发表时间:#####年##月#####集团有限公司第#公司##项目部目录一、工程现状 (1)二、小组概况 (1)三、选题理由 (2)四、活动目标 (3)五、可行性分析 (3)六、QC小组活动情况 (5)6.1第一次PDCA循环 (5)(1)活动时间 (5)(2)计划目标 (5)(3)现状调查 (5)(4)因果分析及要因确认 (6)(5)制定对策 (7)(6)措施的实施 (9)(7)效果检查 (10)6.2第二次PDCA循环 (10)(1)活动时间 (10)(2)计划目标 (10)(3)因果分析及主要因素 (10)(4)制定对策 (11)(5)实施过程 (12)(6)效果复查 (12)七、活动总效果 (13)八、巩固措施及下一步打算 (15)8.1巩固措施 (15)8.2下一步打算 (15)开展QC活动控制施工缝防水质量一、工程现状##4标于2009年9月开工,至现在已进入隧道主体结构施工中。
本标段范围为东城南至寮步区间GDK19+780~GDK25+080段矿山法区间隧道主体结构,位于东莞市东城南区及寮步镇,全段为矿山法区间隧道。
本段区间隧道自GDK19+780沿东北方向依次下穿光明二路、八一路,至GDK20+700附近,线路逐渐转向东,穿越一残丘后于GDK21+500附近开始向东下穿东莞高尔夫球场、环城东路,并于GDK22+500附近进入山体、下穿莞深高速、上屯村居民房、厂房及黄沙河,止于黄沙河东侧GDK25+080处,所在地区属冲积平原、剥蚀丘陵及低山丘陵,本表段地表水水量丰富,居民区局部地段基岩裂隙可能与地表水连通,通过地表水补给,基岩裂隙水量丰富;黄沙河勘测期间水量随季节变化明显,河床的底部砂层与该区段砂层连通,雨季河水对地下水进行补给显著,标段内地下水水文地质条件受当地气候、地貌、岩性、地质构造及人类活动等因素的影响,根据地下水埋藏条件可简单划分为孔隙水、基岩裂隙水。
一、概况:1.1工程概况表(1)由于黄河三角洲地区,地下水位较高,地质情况由第四纪新近沉积的粘土、粉土及粉砂土构成。
在***油田综合办公写字楼主楼及商河路MN组团、J组团等基坑支护工程中,采用传统的单轴深层搅拌桩及大直径双轴搅拌桩,止水帷幕在地表以下6米处穿越粉细砂层时出现开叉、漏水现象。
由于深基坑支护的成功与否关系到地下构筑物的安全质量及施工进度,而止水帷幕截渗墙是其中的关键环节,其成败直接决定了地下构筑物防水等工序的顺利进行,而且直接影响基坑周围建筑物的安全。
二、小组简介表(2)小组名称喷锚支护技术QC小组注册时间小组成立时间2003年5月小组类型现场型序号姓名性别年龄文化程度职称小组成员1 王俊新男42 大本中级组长2 张军男29 大专助工副组长3 杨爱文男33 研究生中级组员4 张霈男26 中专技术员组员5 刘学军男28 大专技术员组员6 于华男36 大专中级组员7 张保军男23 大专技术员组员8 张宝金男33 大专助工组员9 岳辉男23 本科技术员组员活动方式1、每周两次不定期活动。
2、坚持出勤,有记录,有成果。
3、根据检查情况进行问题分析,并予以解决。
制表人:张霈编制时间:2004 年3月29 日三、选题理由附图一商河路MN组团帷幕开叉附图二综合办公楼主楼帷幕漏水制图人:张霈编制时间:2004 年4 月 10 日四、现状调查QC小组对以往施工的三个基坑支护工程中出现渗漏点,从以下三方面进行了调查:调查一、渗漏点发生的部位:在***油田综合办公写字楼及商河路MN组团、J组团等基坑支护工程中,采用传统的单轴深层搅拌桩及大直径双轴搅拌桩,一般都在埋深约5-6米处以下部位穿越粉土层、粉细砂层时出现开叉、漏水现象。
调查二、施工机械此次施工的施工水泥搅拌桩机共有2台,我们对所有施工机械进行统计,同时对施工发生渗漏点的施工机械进行了调查。
调查情况见下表:调查三、小组成员及施工队伍 (1)小组成员自我评价小组成员在活动之初进行了自我评价,评价结果见雷达图(2)施工队伍素质调查工程施工之前,QC 小组向施工队伍发出了针对是否了解3223 2质量意识个人能力QC 知识解决问题能力团队精神 自我评价 总分制图人:刘学军 编制时间:2004 年4 月 10 日施工工艺的问卷调查。
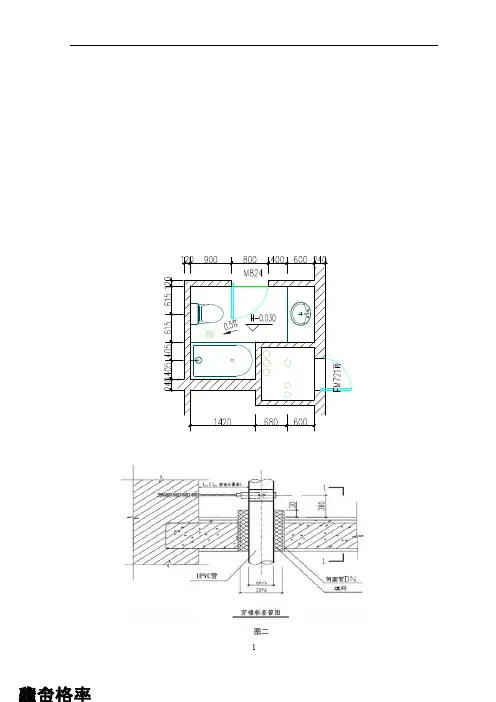
QC小组成果发布材料发布单位:XX小组名称:XXQC小组发布人:XX时间:二O一三年五月目录 (7)一、工程概况XX工程,位于XX市栖霞区迈皋桥创业园,建筑面积10.8万㎡,包含四栋高层住宅,一栋幼儿园,一栋社区中心及一个地下车库。
安装部分的给排水系统设计有生活给水系统、污水排水系统、废水排水系统、雨水排水系统。
其中包含1120个卫生间,排水管道均采用UPVC管,详见图2卫生间大样图。
排水管道穿越楼板做法详见图3。
G-2G-1G-2G-2G-2G-2G-1G-2G-2G-2图1:标准层平面布置图图2:卫生间大样图图3:PVC管穿楼板做法二、小组概况1、小组简介表1 小组名称XXQC小组小组课题卫生间管道根部防渗治理成立时间2012-06-06 注册日期2012-06-06小组类型攻关型注册登记号QC-CRCEG-1206 活动时间2012.07-2013.2 成员人数8人活动次数17 出勤率100%小组人员情况序号姓名年龄学历职称职务组内职务接受QC教育时间1 XX 36 本科高工项目经理组长72小时2 XX 29 大专工程师生产经理副组长72小时3 XX 29 本科工程师技术部长副组长72小时4 XX 25 本科助工技术员组员72小时5 XX 26 本科助工资料员组员48小时6 XX 25 本科助工质检员组员48小时7 XX 24 本科助工施工员组员48小时8 XX 22 大专助工施工员组员48小时制表:XX制表日期:2012年06月06日2、小组出勤情况小组活动出勤情况统计表表2 小组活动人员1 2 3 4 5 6 7 8 9 10 11 12 13 14 15 16 177月1日7月12日7月22日8月5日8月15日8月26日8月8日8月25日9月10日9月23日10月8日10月24日11月12日11月28日12月10日1月5日2月25日序号姓名1 ★★★★★★★★★★★★★★★★★★2 ★★★★★★★★★★★★★★★★★★3 ★★★★★★★★★★★★★★★★★★4 ★★★★★★★★★★★★★★★★★★5 ★★★★★★★★★★★★★★★★★★6 ★★★★★★★★★★★★★★★★★★7 ★★★★★★★★★★★★★★★★★★8 ★★★★★★★★★★★★★★★★★★备注:出勤:★缺勤:请假:※制表:XX2013年2月25日三、选题理由四、现状调查通过小组开会研究、讨论认为在施工过程中,由于管道周围二次浇注引起的管道根部渗漏是工程中常见的质量通病,为确保本项目立管施工一次成优,我们QC 攻关小组于2012年7月1日至15日对周边几个已经完成立管施工的项目管道根部渗漏情况进行了详细的调查,共检查750个点,不合格点102个,合格率86.4%。
提高现浇预埋PVC止水节施工质量冠鲁建设股份有限公司工程科QC小组一、小组概况小组概况见表1表1 小组概况1、山东省质量通病防治措施规定,为防治三小间渗漏的质量通病,排水管道安装中宜使用止水节方法施工。
2、现浇预留PVC止水节施工,能够有效治理三小间渗漏的质量通病,同时节省工程造价,提高工效。
3、开拓现浇预留PVC止水节施工新技术,降低施工中出现的质量弊病。
4、现浇预埋PVC止水节的质量直接影响排水管道安装的质量,是排水管道安装质量的重要指标,为此我小组将提高现浇预埋PVC止水节施工质量作为本次活动的课题。
三、计划阶段(P)1、现状调查(1)我小组对过去5个工程施工的现浇预埋PVC止水节的施工质量情况进行检查,检查测点平均合格率为82%(图1制图:高海涛日期:2010年12月15日(2)在现浇预埋PVC止水节质量情况检查中,本小组对主要的质量弊病进行了调查统计(表2和图2)表2 现浇预埋PVC止水节质量弊病频数统计表从排列图分析可知,上下层PVC止水节垂直度超差、PVC止水节损坏两项质量弊病占频数的82.5%,是影响现浇预埋PVC止水节质量的主要问题。
2、活动目标值现浇预埋PVC止水节质量合格率达到98%。
3、目标可行性研究(1)项目部工程技术人员充足,建设资金到位,施工设备齐全。
(2)公司领导重视,亲临现场技术指导,有关部门积极配合。
(3)小组成员积极性高,对此目标的完成决心很大。
4、运用因果分析图对影响现浇预埋PVC止水节质量的两项主要质量弊病即上下层止水节垂直度超差及PVC止水节损坏进行分析(图3、4)。
图3 PVC止水节上下层垂直度超差因果分析制图:高海涛郑伟日期:2011年1月8日图4 PVC止水节破损因果分析5、对影响上下层止水节垂直度超差及PVC止水节破损的诸末端原因做进一步分析(表3)通过分析,产生预留止水节垂直度超差及止水节破损的主要因素有:(1)对图纸尺寸不熟悉。
(2)垂线方法不当,存在误差。
一、基本情况1.工程简介高崎站为厦门轨道交通1号线中间站,,为地下二层岛式站台车站、双柱三跨闭合框架结构,车站长度为276.4m,站台宽度为12m,车站标准段宽度为20.7m,基坑开挖深度约16.36~18.4m,开挖方量约9.3万方,顶板覆土厚度约3.2m,总建筑面积为14836㎡。
图1 厦门轨道交通1号线线路图高崎站采用明挖顺筑法施工,围护结构采用φ1000@1200围护桩+φ800@1200三重管高压旋喷桩止水,其中高压旋喷桩共有662根,桩长为13.5m~15.7m,总长度为15229.1m。
图2 主体围护结构平面布置图图3 围护结构断面图图3 灌注桩、旋喷桩与主体侧墙组合大样图基坑围护结构的止水效果直接关系到基坑施工的安全和工程施工的顺利开展,项目领导要求必须确保基坑止水施工质量,因此成立QC活动小组,就提高车站深基坑的止水效果进行了攻关。
2.QC小组概况QC小组概况表表1制表:游健制表时间:2014年07月03日二、选题理由1.车站所处位置地下水丰富,且埋深浅,约2~4m,而车站基坑开挖深度达到16.36~18.12m,最大水头差达到16m,止水问题严峻。
2. 深基坑止水是顺利施工的关键,也是确保安全生产的关键。
3. 基坑止水施工隐蔽性强,施工质量控制难度大;4.基坑所处位置为厦门出岛的交通要道,必须保证交通顺畅,因此施工场地狭小,周边环境复杂,无法采取大规模降排水措施,一旦出现大量涌水、涌泥,后果不堪设想。
三、目标确定(1)目标设定基坑施工前,根据以上分析资料,测算了现场基坑最大明排水量可以为2m3/d,应项目要求,我们设定了如下控制目标:(2)现场调查根据地质勘查报告及围护桩施工过程中收集的地质情况,我们对车站所处位置的水文地质条件进行了详细的分析,结果如下:a、地表水:站位处地表水不发育,对基坑开挖不会产生大的影响;b、地下水:地下水的动态变化受年降水量变化规律的控制,地下水位一般3月开始上升,9月逐渐下降,5~6月为最高水位,12月至翌年2月为最低水位。
水利工程优秀QC小组活动成果报告课题名称:缩短泵组安装工期QC小组名称:申报单位:2019年8月30日目录第1章工程概况 (2)第2章小组简介 (3)第3章选题理由 (6)第4章设定目标 (7)第5章目标可行性分析 (8)第7章确定主要原因 (10)第8章制定对策 (21)第9章对策实施 (21)第10章效果检查 (26)第11章巩固措施 (28)第12章总结与打算 (31)1第1章工程概况泵站设计排水流量38m3/s,总装机容量为6500kW。
设两种泵组。
大泵设计扬程10.44m,单台设计流量≥9.25m3/s,配套异步电机1400kW,电动机电压等级10kV,共4台;小泵设计扬程10.44m,单台设计流量≥4.94m3/s,配套异步电机900kW,电动机电压等级10kV,共1台。
水泵与电动机采用直联传动方式。
第2章小组简介本“xxxx QC小组”共7名成员,本课题类型为现场型。
其中小组成员有2名成员取得“xx 省省水利工程建设质量管理小组活动内审员”,小组的具体介绍如下表:制表人:日期:2018年12月1日QC会议日期:2018年12月2日小组成员xx及xx参加了广东省水利工程建设质量管理小组内审员的培训,获得了内审员证如下:第3章选题理由3.1 名词解释:立式混流泵通常所说的离心泵、混流泵、轴流泵,是根据介质流经叶轮的方向来分类的,一般进水方向都为轴向,出水方向则各自不同,离心泵介质延径向流出,轴流泵介质由轴向流出,而两者兼而有之的我们称为混流泵。
立式混流泵零部件包括吸入锥管、导流壳、连接管、出水弯管、叶轮、主轴、导轴承等。
叶轮结构复杂,大型混流泵叶轮铸件。
壳体可以使铸件,也可以是焊接件,轴为锻件。
3.2YL异步电机YL系列立式异步电动机是消化、吸收国外先进技术后于20世纪90年代开发的产品。
该系列电动机用以拖动立式水泵等立式安装的机械设备。
电动机具有高效、节能、噪声低、振动小、重量轻、性能可靠、安装维护方便等优点。
附件:二O 一四年度南京工程建设优异QC 成就申报资料单位名称(盖印):南京建筑安装工程有限企业课题名称:如何提升止水后浇带施工质量工程名称:课题正、副组长;联系电话:56205699()如何提升止水后浇带施工质量一、小组概略为实现企业质量目标——保证“金陵杯”争创“扬子杯”奖,2014 年8 月1 日组建了本QC 小组,小组为为攻关型,注册号TQ-14-03 ,活动时间为2014.8.1-2014.11.5,小构成员人均TQC 专业知识培训48 小时,小组人员搭配合理,个人能力强。
二、小组简介我 QC 小组自建立以来,向来以“小、实、活、新”作为活动主旨,充足弘扬团结拼搏、务实创新、敬业奉献、勇创一流的精神。
小组简介小组名称小组种类攻关型注册编号TQ-14-03建即刻间2014年 8月活动时间均匀年纪38 岁接受 QC 教育时间160 小时 /年成员简介姓名性别年龄职称组内职务企业职务男45 高级工程师组长项目经理男44 高级工程师副组长项目副经理男36 工程师组员技术负责人男28 工程师组员技术员男37 助工组员工长男38 助工组员技工男42 助工组员技工男41 助工组员技工男29 工程师组员技术员男40 助工组员工长三、先题原由1、后浇带的渗漏,裂痕直接影响工程查收,过去止水后浇带施工质量不高,惯例的施工方法存在弊端,施工质量需要提升;2、改良其节点做法能有效减少后浇带关闭前的清理困难、用工多的这一问题,能够有效提升项目经济效益;3、本工程为企业管理要点工程,体量大,工期紧,质量要求高,企业的管理目标为“扬子杯”。
四、现状检查止水后浇带施工质量通病检查统计表序名称溧水南京频数频次累计号项目工程工程(处)(%)频次( %)1 后浇带渗漏10 10 20 70 402 后浇带处积9 10 19 38 78 水、积浆3 表面裂痕 2 1 3 6 844 接缝不顺直 2 1 3 6 905 表面平坦度差 1 1 2 4 946 其余 1 2 3 6 100共计25 25 50我们小组依据以上检查统计表,作出了影响止水后浇带施工质量问题的摆列图,见下列图 :从摆列图能够看出,影响止水后浇带施工质量的主要问题是止水后浇带处渗漏;后浇带处积水、积浆,其累计频次已达到 78%,属 A 类问题,为解决问题的主要对象。
三段式止水螺杆连接节点创新研究浙江杰立建设集团有限公司“学无止境”QC小组一、工程概况1、本工程为杭政储出[2015]10号地块商业商务综合用房(以下简称为本工程),本工程位于杭州市拱墅区莫干山路与萍水街路口,总建筑面积80911.43m2。
2、结构形式:主体结构形式为框剪结构,地上层数为16层,地下室3层,建筑高度为69.9m。
建筑结构安全等级为二级,所在地区抗震设防烈度为7度,设计使用年限为50年。
2、QC小组简介QC小组概况表表2-1三、选择课题1、选题理由(1)理由1:本工程是公司的重点项目之一,从项目建设之初,我司便确定以确保“钱江杯”优质工程为目标,因此在施工过程中,良好的施工质量对我司争创品牌工程,树立“浙江杰立建设集团有限公司”形象具有十分重要的意义。
(2)理由2:三段式螺杆操作方便、大量使用时可节约成本,同时可避免拆模后螺杆切割,提高功效。
公司在各项目部进行推广使用,但根据以往工程,三段式止水螺杆外杆及螺套回收合格率平均为80%,仍然存在较高的浪费。
2、选择课题根据以上情况,QC小组运用头脑风暴法,广泛提出自己的想法和意见,然后整理形成了4个可供选择的研究课题,组织成员进行分析、评价、选择,具体见表3-1。
课题分析、评价及选择表3-1评定标准:◎5分□3分▲1分四、设定目标及目标可行性分析(一)、目标确定:通过对三段式止水螺杆连接接头的创新优化,保证外杆及螺套有效回收。
目标值:外杆及螺套回收率达95%。
(二)、目标可行性分析:1、我公司在其余项目已推行实施三段式止水螺杆,对于该项目施工有充分的施工经验,以及技术实力。
2、该三段式止水螺杆连接节点创新课题得到了公司的大力支持,由公司总工负责指导,公司技术部门在施工过程中给予全程支持;3、该课题已报公司通过审批,有专项资金供课题研究和试验。
4、本QC小组成员现场经验丰富,从材料选购到现场操作,具备自我检查及相互纠正的能力。
5、项目部在项目现场剪力墙止水螺杆模型,进行模拟试验,为最终优化方案提供有力保障;由以上几个方面的可行性分析,小组认为目标可以实现。
缺乏相应的施工用采用超前止水构造,杜绝地下室后浇带部位渗漏(省略)有限公司(省略)工程项目部QC小组:一、工程概况:(省略)大厦工程为(省略)Ⅱ标段,位于(省略),百西侧紧靠***城小区,北面紧(省略)两个规模较大的居民住宅小区,东侧毗邻(省略)居民住宅小区。
本工程地上二十二层,地下室一层,总建筑面积49470平方米,其中地下(省略)平方米,地上(省略)平方米,建筑物基底面积4980平方米,建筑物东西长128.94米,南北宽72.20米,建筑物总高度为86.2米;裙房4层、主楼22层。
建筑占地面积11792平方米,其中地下室为车库,一~四层为商场,五层及五层以上为商务办公楼,工程±0.00相当于***高程(省略)米。
本工程为现浇框剪结构,部分为核心筒体结构体系,模板采用组合扣件式钢管支撑、多层板、竹胶板组合模板系统。
本工程混凝土强度等级为:基础\承台、地下室底板、顶板、外墙均为C40(抗渗标号为S8),裙房地下室顶板~裙房屋面为C35,主楼地下室顶板~7层为C40,7~12层为C35,12~17层为C30,17层~屋顶为C25。
本工程裙房立面为干挂石材,主楼立面为铝板幕墙和玻璃幕墙,屋面安装钢结构装饰架,前后两道月牙,造型美观大方,富有时代气息,体现了世界经济一体化的氛围和风格。
本工程由(省略)承担建筑、结构、给排水、暖通、消防、电力等专业工程设计,由(省略)研究院承担基坑围护设计。
二、QC小组活动组织:为确保工程质量目标的实现,进一步激发全体管理人员及施工人员的积极性和创造性,通过群众性质量管理活动为工程建设顺利进行提供保证,项目部组织成立了全面质量管理的QC小组.小组成员中有管理人员、有技术人员、也有一线班组人员。
宁(省略)工程项目部QC小组组成人员一览表:小组类型为创新型。
小组活动的工作流程如下:小组活动计划如下:200(省略)年12月成立QC小组,组织强化QC培训。
200(省略)年1月-200年3月计划阶段,选择课题,确定目标,提出最佳方案,制定对策图表。
防水套管预埋质量控制发表单位:发表人:发表时间:防水套管预埋质量控制的QC小组活动报告一、工程概况某工程位于上海开发区净水厂内,是为了解决上海开发区日益增长的用水情况而建。
厂区总用地72855.4 m2,建筑面积15384.8 m2。
三期工程建成后日处理规模为15万m3/d。
厂区工艺采用法国得利满工艺,要求完全按国外同等工艺最高标准,工程工期为2007年5月18日~2008年5月30日,施工工期相当紧迫。
二、小组概况本QC小组于2007年7月1日成立,并同时在公司内部登记注册。
成员分别由管理干部、技术人员和队长组成的三结合公攻关小组。
平均接受TQC教育时间为169小时,具体见小组概况表-1:表-1 防水套管QC小组概况表三、选题理由和目标1、本工程为天津经济技术开发区的标志性工程,它的建成将有效的解决开发区缺水现状,改善开发区的投资环境,促进该地区的经济发展和全面建设。
其设计理念来自于法国,结构形式新颖,工艺复杂,技术含量高,在国内属首先采用,质量标准高,目标为获得天津市海河杯。
2、管道穿池壁套管是本工程施工中的一个薄弱环节,其要求防水质量很高,它不同于一般工民建工程中管道穿墙、板套管,它必须一次性安装合格。
套管一旦埋错或存在质量问题,基本上就没有方法可以补救,同时直接决定后期管道安装质量。
3、套管预埋要求精度要求高,定位困难,施工干扰大。
套管的加固方式、模板支撑牢固与否、混凝土振捣方式都直接影响套管预埋质量。
故前期套管预埋的质量对整个安装工程质量有重要影响。
本工程在天津市开发区施工,为树立企业形象,我们决定以“提高防水套管预埋质量”为课题,开展QC小组攻关活动。
四、课题目标1、套管预埋各项技术指标合格率达到95%以上。
2、攻克各项技术难题,确保160天内完成主体结构。
3、总结一套防水套管安装施工的经验。
五、QC小组活动(一)、第一次PDCA循环。
1、现状调查2007年7月10日QC小组对现场防水套管预埋质量情况进行了调查统计,绘制了如下的表-2及图1。