门式移动操作平台技术交底
- 格式:docx
- 大小:24.38 KB
- 文档页数:5
一、材料要求a)钢管:Ф 48×3.5mmQ235钢管,钢管长度 3m、4m、 6m。
b)扣件:回转扣件、十字扣件、对接扣件等。
扣件材料应符合《钢管脚手架扣件》( GB15831)的规定。
在螺栓拧紧扭力矩达 64N〃 m 时,不得发生破坏。
架子使用前有安全部门做进场材料复试,复试合格后方可使用。
c)脚手板:采用松木脚手板,每块重量不大于 30kg,厚度不小于 50 ㎜,材质要符合《木结构设计规范》( GBJ5)中二级材质的规定。
d)安全平网 3.0 × 6.0m。
e)档脚板:档脚板由脚手板或专用档脚板组成,高度不小于150mm;二、主要机具a)扳手、安全带等。
三、编制依据a)建筑施工扣件式钢管脚手架安全技术规范JGJ 130-2011 。
b) 《建筑施工高处作业安全技术规范》JGJ80-91 。
四、移动式操作平台的构造、搭设及使用要求1、用扣件式钢管搭设的移动式操作平台是室内墙面装饰施工临时结构,它要在室内墙面装饰施工中承受各种垂直和水平荷载。
2、按规范及施工组织设计的要求对钢管、扣件、板材、轮子等进行检查验收,不合格产品不得使用。
3、经检查合格的材料应按品种、规格分类堆放整齐、平稳的放在耐磨地坪上,并于地坪面要有成品保护措施。
4、移动式搭设要求:a)立杆上的对接扣件交错布置:两根相邻立杆的接头不得设置在同步b)搭接长度不得小于 1m,采用不少于 2 个旋转扣件固定,端部扣件盖板的边缘距离不小于 100mm。
c)移动式操作平台两个立面必须设置剪刀撑,斜杆与地面的倾角宜在45 度~ 60 度之间,剪刀撑斜杆的接长宜采用搭接,剪刀撑斜杆使用旋转扣件固定在与之相交的横向水平杆的伸出端或立杆上,旋转扣件中心线至主节点的距离不得大于 150mm。
5、注意事项:a)底部移动的轮子在架体投入使用时,必须设置锁止装置,限制平面上移动的至少 3 个轮子。
b)架体移动时,上部严禁有作业人员。
c)如果上部全封闭后影响施工,必须有一部分位置敞开时,作业人员在敞开部位作业时,必须系挂安全带,按照高挂低用的原则系挂安全带。
精心整理移动式操作平台安全技术交底工程名称:施工单位建设单位分项工程名称作业部位交底部门交底人施工期限年月日至年月日接受交底班组或员工签名:交底内容:(1)操作平台虚由专业技术人员按现行的相应规范进行设计。
计算书及图纸应编人施工组织设计。
(2)操作平台的面积不应超过5平方米,高度不应超过4m。
还应进行稳定验算。
并采取措施减少立柱的长细比。
(3)装设轮子的移动式操作平台,轮子与平台的接合处应牢固可靠,防拆支架立柱底端离地面为零接触。
轮子有停靠锁死装置,选用轮子的承载量为500公斤。
(4)操作平台可采用(48~51)×3.5钢管以扣件连接,亦可采用门架式式或承重式钢管脚手架部件,按产品使用要求进行组装。
平台的次梁,间距不应大于40cm,台面应满铺3cm厚的木板或竹笆。
(5)操作平台四向必须按临边作业要求设置防护栏杆,并应布置登高扶梯。
(6)操作平台上应显着地标明容许荷载值400公斤,操作平台上人员和物料的总重量,严禁超过设计的容许荷载。
应配备专人加以监督。
(7)移动架子安装到位后,需用设计值400公斤的重物进行承载试验,试验后经尺量、目测检查移动架子立杆、轮子、防拆支架没有发生变形弯曲现象后方可投入使用。
(8)移动架子移至施工部位时,必须将防拆支架打开并与地面坚实固定,并将防侧翻支架固定好。
(9)移动架子时,移动前将操作平台上的施工人员及物品清理干净并撤离至地面,严禁载人、载物移动。
(10)在操作平台上施工人员不能超过两人,施工人员必须戴安全帽,腰系安全带,并将挂钩挂在砼顶板上非常牢固的各种吊杆上,如没有需将挂钩挂在平台防护栏杆上。
(11)施工人员上下移动架时必须从爬梯上下,严禁从其他移动架钢管上下攀爬。
防水工程施工安全技术交底工程名称:施工单位建设单位分项工程名称作业部位交底部门交底人施工期限年月日至年月日接受交底班组或员工签名:交底内容:1、进入现场必须遵守安全生产六大纪律。
2、配制冷底子油,下料应分批、少量、缓慢,不得搅拌,不得超过锅容量的l/2,温度不得超过80℃,并严禁烟火。
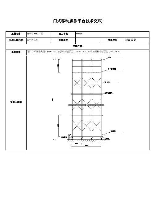
门式移动操作平台技术交底工程名称梅州市xxx工程施工单位xxxxx分项工程名称脚手架工程交底部位交底时间2021-01-24交底内容主要参数门架立杆钢管类型:Φ48×3.5;加强杆钢管类型:Φ26.8×2.5;水平加固杆钢管类型:Φ48×3.5;安装示意图施工工艺流程预埋件设置→安装悬挑主梁→悬挑主梁上下支撑杆件设置→定位→垫板→立两边立杆,扣扫地杆、横向水平杆、纵向水平杆→立抛撑→树中间立杆→横向水平杆、纵向水平杆、防护栏杆→以此类推、形成一步闭合加体→搭第二步架→拉连墙件→拆抛撑→转角处设置“之”剪刀撑→挂密目安全网、铺脚手板→接立杆→架体外立面设置剪刀撑→搭第三步架(剪刀撑与安全网同步上)→…→完成。
质量要求脚手架搭设的技术要求、允许偏差与检验方法质量保证措施1、脚手架的各种材料,在进入施工现场时,应进行检查验收,经检查验收不合格的材料应及时清除出场;2、主要受力杆件的规格、杆件设置应符合专项施工方案的要求;3、地基应符合专项施工方案的要求,应平整坚实,垫板必须铺放平整,不得悬空;4、连墙件应设置牢固;5、剪刀撑、斜撑等的加固杆件应设置齐全,连接可靠;6、搭设过程中门洞、转角等部位的构造应符合《建筑施工扣件式钢管脚手架安全技术规程》JGJ130-2011的规定7、在使用过程中,应对竹脚手架经常性的检查与维护,并应及时清理架体上的垃圾和杂物。
安全保证措施1、脚手架搭设人员必须是经过国家现行标准<<特种作业人员安全技术考核管理规则>>考核合格的专业架子工。
搭设脚手架人员必须戴安全帽、安全带,穿防滑鞋。
2、脚手架搭设时应按下列阶段进行质量检查,发现问题应及时校正。
1)基础完工后及脚手架搭设前;2)作业层上施加荷载前;3)每搭设完6m~8m高度后;4)达到设计高度后;5)遇有六级强风及以上风或大雨后;冻结地区解冻后;6)停用超过一个月。
3、使用阶段1)操作层上的施工荷载应符合设计要求,不得超载;2)不得将模板支撑、缆风绳、泵送混凝土管等固定在脚手架上,严禁任意悬挂起重设备;3)六级及六级以上大风和雾、雨天应停止脚手架作业,雨后上架操作应有防滑措施。
精心整理移动式操作平台安全技术交底工程名称:施工单位建设单位分项工程名称作业部位交底部门交底人施工期限年月日至年月日接受交底班组或员工签名:交底内容:(1)操作平台虚由专业技术人员按现行的相应规范进行设计。
计算书及图纸应编人施工组织设计。
(2)操作平台的面积不应超过5平方米,高度不应超过4m。
还应进行稳定验算。
并采取措施减少立柱的长细比。
(3)装设轮子的移动式操作平台,轮子与平台的接合处应牢固可靠,防拆支架立柱底端离地面为零接触。
轮子有停靠锁死装置,选用轮子的承载量为500公斤。
(4)操作平台可采用(48~51)×3.5钢管以扣件连接,亦可采用门架式式或承重式钢管脚手架部件,按产品使用要求进行组装。
平台的次梁,间距不应大于40cm,台面应满铺3cm厚的木板或竹笆。
(5)操作平台四向必须按临边作业要求设置防护栏杆,并应布置登高扶梯。
(6)操作平台上应显着地标明容许荷载值400公斤,操作平台上人员和物料的总重量,严禁超过设计的容许荷载。
应配备专人加以监督。
(7)移动架子安装到位后,需用设计值400公斤的重物进行承载试验,试验后经尺量、目测检查移动架子立杆、轮子、防拆支架没有发生变形弯曲现象后方可投入使用。
(8)移动架子移至施工部位时,必须将防拆支架打开并与地面坚实固定,并将防侧翻支架固定好。
(9)移动架子时,移动前将操作平台上的施工人员及物品清理干净并撤离至地面,严禁载人、载物移动。
(10)在操作平台上施工人员不能超过两人,施工人员必须戴安全帽,腰系安全带,并将挂钩挂在砼顶板上非常牢固的各种吊杆上,如没有需将挂钩挂在平台防护栏杆上。
(11)施工人员上下移动架时必须从爬梯上下,严禁从其他移动架钢管上下攀爬。
防水工程施工安全技术交底工程名称:施工单位建设单位分项工程名称作业部位交底部门交底人施工期限年月日至年月日接受交底班组或员工签名:交底内容:1、进入现场必须遵守安全生产六大纪律。
2、配制冷底子油,下料应分批、少量、缓慢,不得搅拌,不得超过锅容量的l/2,温度不得超过80℃,并严禁烟火。
一、交底对象1. 作业人员2. 现场管理人员3. 操作班组长二、交底目的为确保操作平台作业安全,预防事故发生,提高作业人员安全意识,特进行本次安全技术交底。
三、操作平台作业安全要求1. 操作平台应符合国家相关标准和规范,具备足够的承载能力、稳定性和安全性。
2. 操作平台的设计、安装、使用和维护应由专业人员进行,并经过相关资质认证。
3. 操作平台应定期进行安全检查,发现问题及时整改。
4. 作业人员必须经过专业培训,取得相应资格证书后方可上岗作业。
5. 作业人员应穿戴符合要求的安全防护用品,如安全帽、安全带、防滑鞋等。
6. 操作平台四周应设置防护栏杆,并配备登高扶梯。
7. 操作平台使用过程中,严禁超载、超限、超高度作业。
8. 作业人员应严格遵守操作规程,不得擅自更改设备参数。
四、操作平台作业注意事项1. 操作平台作业前,应对作业区域进行清理,确保无障碍物。
2. 操作平台作业时,应保持平台稳定,避免晃动。
3. 作业人员应站在平台中央,双手握紧扶手,确保自身安全。
4. 作业过程中,严禁在平台边缘作业,防止坠落。
5. 作业人员不得携带易燃易爆物品进入作业区域。
6. 作业过程中,如发现安全隐患,应立即停止作业,并向相关部门报告。
7. 作业完成后,应将操作平台恢复至原位,并清理现场。
五、应急措施1. 发生坠落事故时,立即停止作业,对受伤人员进行急救,并拨打急救电话。
2. 发生火灾事故时,立即切断电源,使用灭火器进行灭火,并拨打火警电话。
3. 发生触电事故时,立即切断电源,使用绝缘物品将触电人员与电源隔离,并拨打急救电话。
六、交底签字1. 作业人员签名:__________2. 现场管理人员签名:__________3. 操作班组长签名:__________4. 项目负责人签名:__________注:本安全技术交底模板仅供参考,具体内容可根据实际情况进行调整。
一、交底目的为确保施工现场移动操作平台的安全使用,防止事故发生,特制定本安全技术交底。
二、适用范围本交底适用于施工现场所有使用移动操作平台的作业人员。
三、操作平台基本要求1. 移动操作平台应由专业技术人员按照国家相关规范进行设计,并确保其结构安全可靠。
2. 平台面积不应超过10平方米,高度不应超过5米。
3. 平台立柱底部离地面不得超过80毫米。
4. 平台四周必须按照临边作业要求设置防护栏杆,并配备登高扶梯。
5. 平台台面应满铺厚度不小于50毫米的木板或竹笆。
四、操作平台安装与使用要求1. 安装前的检查:(1)检查平台部件是否齐全、完好,如有损坏、变形等情况,应立即更换。
(2)检查连接件是否牢固,如有松动,应及时紧固。
(3)检查平台整体结构是否稳定,如有异常,应立即停止使用。
2. 安装步骤:(1)根据现场情况,确定平台安装位置。
(2)将平台部件按照设计要求进行组装。
(3)组装完成后,检查平台整体结构是否稳定。
(4)安装防护栏杆、登高扶梯等安全设施。
3. 使用过程中的注意事项:(1)操作人员必须经过专业培训,熟悉操作规程。
(2)操作前,应检查平台是否稳固,确认无异常后方可使用。
(3)操作过程中,严禁超载使用平台。
(4)操作人员应穿戴符合规定的个人防护用品。
(5)严禁在平台边缘作业,避免发生坠落事故。
(6)操作过程中,如发现平台异常,应立即停止使用,并及时上报。
五、紧急情况处理1. 如发现平台结构异常,应立即停止使用,并及时上报。
2. 如操作人员发生坠落,应立即启动应急预案,采取紧急救援措施。
3. 如发生火灾、触电等事故,应立即切断电源,并采取相应的灭火、救援措施。
六、安全教育与培训1. 定期对操作人员进行安全教育培训,提高安全意识。
2. 加强现场安全管理,确保操作人员遵守安全操作规程。
3. 对违反安全操作规程的行为,依法进行处罚。
七、本交底由项目安全员负责监督执行,如发现违反规定的行为,应立即制止并上报。
一、交底目的为确保门式操作平台在使用过程中的安全,预防事故发生,提高操作人员的安全意识和操作技能,特进行本次安全技术交底。
二、交底对象1. 门式操作平台操作人员2. 门式操作平台维护人员3. 相关管理人员三、交底内容1. 门式操作平台概况(1)门式操作平台结构:由门架、横梁、立柱、平台板、防护栏杆、升降机构等组成。
(2)门式操作平台功能:用于高空作业、设备安装、维修等。
2. 安全操作规程(1)操作人员应熟悉门式操作平台的性能、结构及操作方法。
(2)操作前应检查门式操作平台是否完好,升降机构、防护栏杆等安全装置是否齐全有效。
(3)操作时,必须穿戴安全帽、安全带等个人防护用品。
(4)操作过程中,严禁无关人员进入平台,确保平台安全。
(5)平台升降过程中,严禁站在平台边缘或超载作业。
(6)平台升降到位后,操作人员应确保平台固定牢固,方可进行作业。
(7)作业完毕后,应将平台降至地面,锁紧安全装置。
3. 安全注意事项(1)操作人员应定期对门式操作平台进行检查、维护,确保其正常运行。
(2)操作过程中,如发现异常情况,应立即停止操作,排除故障。
(3)严禁使用损坏、变形的零部件。
(4)严禁将门式操作平台作为吊装设备使用。
(5)严禁将门式操作平台作为临时休息场所。
(6)严禁在平台边缘站立、行走。
(7)严禁酒后操作门式操作平台。
4. 事故应急处理(1)如发生意外事故,应立即切断电源,确保现场安全。
(2)根据事故情况,迅速采取相应措施,如拨打急救电话、报警等。
(3)事故发生后,应立即上报相关部门,配合进行调查和处理。
四、交底要求1. 操作人员应认真学习本次安全技术交底内容,确保掌握安全操作规程。
2. 维护人员应定期对门式操作平台进行检查、维护,确保其安全运行。
3. 管理人员应加强对门式操作平台的安全管理,定期组织安全检查,确保操作人员遵守安全操作规程。
4. 交底人应负责对操作人员进行安全技术交底,确保其了解和掌握安全操作规程。
一、交底目的为确保移动操作平台施工过程中的安全,预防事故发生,现将移动操作平台施工的安全技术要求及注意事项进行交底。
二、交底对象全体参与移动操作平台施工的施工人员、管理人员及监督人员。
三、交底内容1. 操作平台设计要求(1)移动式操作平台应由专业技术人员按照相关规范进行设计,计算书及图纸应编入施工组织设计。
(2)操作平台的面积不应超过10平方米,高度不应超过5米。
应进行稳定验算,并采取措施减小立柱的长细比。
2. 操作平台结构要求(1)移动式平台可采用48-51毫米×3.5毫米钢管以扣件连接,亦可采用门架式或承插式目管脚手架部件,按产品使用要求进行组架。
(2)平台的次梁间距不应大于40厘米,台面应满铺5厘米厚的木板或竹笆。
3. 操作平台安全防护措施(1)操作平台四周必须按临边作业要求设置防护栏杆,并布置登高扶梯。
(2)装设轮子的移动式操作平台,轮子与平台的接合处应牢固可靠,立柱底离地面不得超过80毫米。
4. 操作平台施工注意事项(1)操作平台在施工过程中,应确保其稳定性,防止发生倾覆、坍塌等事故。
(2)施工人员应严格遵守操作规程,不得擅自改动操作平台的结构。
(3)操作平台上的施工人员应佩戴安全帽、安全带等个人防护用品。
(4)施工过程中,应随时检查操作平台的连接部位,发现问题及时处理。
(5)操作平台附近应设置警示标志,提醒过往人员注意安全。
四、操作平台使用要求1. 操作平台使用前,应进行验收,确保其符合安全要求。
2. 操作平台使用过程中,施工人员应按照规定操作,不得超载、超范围使用。
3. 操作平台使用完毕后,应将平台降至地面,并做好收尾工作。
4. 操作平台应定期进行维护保养,确保其处于良好状态。
五、应急处置1. 发生操作平台倾覆、坍塌等事故时,施工人员应立即停止作业,并迅速撤离现场。
2. 发现操作平台存在安全隐患时,应立即停止使用,并报告相关部门进行处理。
3. 事故发生后,应按照相关程序进行事故调查和处理。
安全交底记录工程名称:钓鱼嘴西(半岛佳园)安置房三标段编号:1.移动式操作平台的(图 B)的次梁的恒荷载(永久荷载)中的自重,钢管应以 0.04kN/m 计,铺板应以0.22kN/㎡计;施工荷载(可变荷载)应以 1kN/㎡计算,并应符合下列规定:1.1 按次梁承受均布活荷载依下式计算最大弯矩设计值:式中:M c ——次梁最大弯矩设计值(N.mm);Qhc ——次梁上等效均布恒荷载标准值(N/mm);qck ——次梁上等效均布活荷载标准值(N/mm);γG ——恒荷载分项系数;γQ ——活荷载分项系数;Lc ——次梁的计算跨度(mm)。
1.2 按次梁承受集中荷载活荷载依下式计算最大弯矩设计值:式中: F ck ——次梁上的集中活荷载标准值(N/mm),可按 1kN 计1.3 取以上两项弯矩设计值中的较大值按本规范附录 A 公式(A.0.2-2、A.0.2-3)计算次梁抗弯强度。
注:1、钢管 Q235B 的抗弯、抗压强度设计值可按 f=215N/mm2取用。
2.移动式操作平台的主梁以立杆为支承点,将次梁传递的恒荷载和施工可变荷载,加上主梁自重的恒荷载,按等效均布荷载计算最大弯矩,并应符合下列规定:2.1 当立杆为 3 根时,可按下式计算位于中间立杆上部的主梁最大弯矩设计值:式中:My ——主梁最大弯矩设计值(N.mm);q ——主梁上的等效均布荷载设计值(N/mm);Ly ——主梁计算跨度(㎜)。
2.2 以上项弯矩设计值按公式(A.0.2-2)计算主梁抗弯强度。
3 立杆计算:3.1 以中间立杆为准,按轴心受压构件计算抗压强度:式中:N x ——立杆的轴心压力设计值(N);A n ——立杆净截面面积(mm2);f n ——立杆抗压强度设计值(N/mm2 )。
3.2 立杆尚应按下式计算其稳定性:式中:φ——受压构件的稳定系数;A——立杆的毛截面面积(mm2 )。
三.操作要求移动式操作平台搭设技术措施1、操作平台移动时必须距离临边一定距离,并派专人看护;2、移动中禁止突然启动加速,必须平稳、缓慢前进;3、定期检查脚手架操作平台,发现问题和隐患,在施工作业前及时维修加固,以达到坚固稳定,确保施工安全。
一、交底目的为确保移动式操作平台的安全使用,预防事故发生,现将移动式操作平台的安全操作规程及相关注意事项进行交底,请所有参与操作人员认真学习并严格执行。
二、交底内容1. 操作平台基本知识(1)移动式操作平台是一种用于高处作业的临时性作业平台,主要由立柱、横梁、台面、防护栏杆等组成。
(2)操作平台分为电动和手动两种,电动操作平台适用于大型、高空作业,手动操作平台适用于小型、高空作业。
2. 操作平台使用前的安全检查(1)检查操作平台整体结构是否完好,无变形、裂纹等缺陷。
(2)检查立柱、横梁、台面、防护栏杆等部件是否牢固,连接处有无松动。
(3)检查电动操作平台的电机、电缆、开关等电气元件是否完好,绝缘性能是否符合要求。
(4)检查手动操作平台的传动机构、制动装置等是否正常。
3. 操作平台使用过程中的安全操作(1)操作人员必须佩戴安全帽、安全带等个人防护用品。
(2)操作平台升起或下降过程中,严禁人员攀爬、跨越平台。
(3)操作平台升起后,严禁超载作业,所载物品应均匀分布,确保平台平衡。
(4)操作平台四周必须设置防护栏杆,防止人员坠落。
(5)操作过程中,如遇异常情况,应立即停止操作,检查原因,排除故障后方可继续作业。
4. 操作平台使用后的注意事项(1)操作完毕后,应将操作平台降至地面,并固定好。
(2)检查操作平台各部件是否完好,如有损坏,应及时维修或更换。
(3)清理操作平台上的杂物,保持现场整洁。
三、交底要求1. 所有参与操作人员必须认真学习并掌握本交底内容。
2. 操作过程中,严格遵守安全操作规程,确保自身和他人的安全。
3. 发现安全隐患,应及时上报,不得擅自处理。
4. 定期对操作平台进行检查、维护,确保其安全性能。
四、结语移动式操作平台的安全使用直接关系到操作人员的人身安全和作业现场的安全。
请大家务必高度重视,认真学习并严格执行安全操作规程,共同营造一个安全、有序的作业环境。
交底人:________交底日期:____年__月__日。
移动式操作平台安全技术交底移动式操作平台是一种灵活、多功能的设备,广泛应用于工业生产、建筑施工、维修等领域。
然而,由于操作平台高度的限制和作业环境的复杂性,移动式操作平台的安全性问题备受关注。
为了确保操作人员的安全,减少事故发生的风险,对操作人员进行安全技术交底是至关重要的。
下面是针对移动式操作平台的安全技术交底的内容,供参考:1.移动式操作平台的安全操作规程安全操作规程是为了确保操作人员在使用移动式操作平台时的安全而制定的。
安全操作规程应包括以下内容:-确保操作人员充分了解操作平台的安全特性和使用方法;-强调操作人员必须严格按照操作手册进行操作和维护;-确保操作人员了解风险和事故防范措施,并培训他们如何应对突发状况;-强调操作人员在进行高空作业时必须系好安全带,并遵循正确的升降平台出入口操作规程;-鼓励操作人员报告任何与操作平台有关的问题和故障,以便及时修复。
2.移动式操作平台的维护保养工作-预防性维护措施,如定期检查各部件的磨损程度,定期更换易损件等;-如何正确操作液压系统,包括正确使用和更换液压油,防止系统泄漏等;-如何进行机械部件的维修和更换,以确保其正常工作和安全性;-怎样对电气部分进行巡检,包括保持电气元件的干燥清洁,定期检查电缆线路等;-移动式操作平台出现故障时的应急处理方法和紧急停止按钮的使用。
3.移动式操作平台的使用环境安全要求不同的操作环境对于移动式操作平台的安全性提出不同的要求。
进行安全技术交底时,需要对操作人员强调以下内容:-确保操作平台在使用过程中有足够的空间,避免与周围的设备、工具或障碍物发生碰撞;-进行高空作业时,应注意周围环境的稳定性,避免遭受恶劣天气的干扰;-如何正确设置和使用安全警示标志,保护周围人员的安全;-在有人行道交通的区域使用操作平台时,应采取合适的交通控制措施,确保行人和车辆的安全;-针对特殊环境(如高温、低温、潮湿等)的安全问题,进行专门说明和培训。
移动式操作平台安全技术交底安全技术交底表表AQ-C11-1工程名称施工单位编号009×××××公司交底部位安全技术交底内容工种安装工1、工人必须参加入场安全教育,考试合格后方可上岗。
2、对使用的移动式升降机,在入场前要进行检查,不符合安全规定或设备设施不合格不得使用。
3、升降平台的使用,必须由项目部指定人员操作,严守工作岗位;非指定人员一律不准擅自动用。
4、工作前要认真检查升降平台各部件,重点检查螺丝连接是否可靠,液压管路元件有无泄漏,电线接点有无松脱、破损等情况。
5、升降台升降前,支放好四角支腿,四个支腿应牢固的支撑在坚实的地面上,将工作台面调至水平状态(目测即可)。
接通电源,指示灯应亮。
然后起动电机,油泵工作,在空载下升降一两次,检查各部位动作正常后再开始工作。
当气温低于10℃时,应使油泵运转3—5分钟,确认油泵工作正常后方可进行。
6、作业人员进入平台后应关闭护栏门,插上插销,系挂好安全带,载荷的中心(人站得位置)应尽量处于工作台面的中心位置。
7、起升下降:按“起升”按钮,启动电动机,电机旋转,液压系统工作,油缸伸出,平台起升;待升到工作所需高度时,按电机“停止”按钮,平台停止升降,即可作业,若不按“停止”钮,平台升至标定高度时行程开关工作,平台停在标定高度。
工作完毕,按“下降”按钮,电磁阀动作,此时油缸回油接通,平台靠自重下降。
8、当平台出现故障无法正常工作时,应及时切断电源进行维修,严禁设备带病作业,非专业人员勿拆卸液压元件及电气元件。
9、升降平台使用完毕后,操纵人员将平台停在底层,关闭层门,关闭钥匙电源开关,关闭总电源。
针对性交底:1、升降平台的使用,必须由项目部指定人员操作,严守工作岗位;非指定人员一律不准擅自动用。
一、交底对象全体施工人员、现场管理人员二、交底时间[具体日期]三、交底内容1. 安全生产方针及法律法规(1)严格遵守国家有关安全生产的法律法规,落实“安全第一,预防为主,综合治理”的安全生产方针。
(2)认真学习《建筑施工安全生产管理条例》、《建筑施工高处作业安全技术规范》等相关法规。
2. 移动式门式架的基本知识(1)移动式门式架是一种常用的建筑施工工具,主要用于高空作业、运输、堆放等。
(2)移动式门式架由门架、立杆、横杆、连接棒、挂扣式脚手板或水平架、锁臂等组成。
3. 移动式门式架的搭设与拆除(1)搭设:1)检查门架及配件是否完好,有无损坏、变形等情况。
2)按照设计要求,合理选择场地,确保地面平整、坚实。
3)按照规范要求,正确组装门架,确保连接牢固。
4)搭设完成后,检查各部件连接是否牢固,是否符合设计要求。
(2)拆除:1)拆除前,确认现场人员已撤离,并设置警戒区域。
2)按照规范要求,正确拆除门架,确保拆除过程中安全。
4. 移动式门式架的安全注意事项(1)搭设过程中,严禁在门架上进行高空作业。
(2)严禁超载使用移动式门式架,确保荷载不超过规定范围。
(3)严禁在门架上进行焊接、切割等高温作业。
(4)移动式门式架的行走过程中,严禁人员站立或行走。
(5)移动式门式架在移动过程中,应确保平稳、缓慢,防止突然加速或刹车。
(6)移动式门式架在停放时,应将门架固定牢固,防止倾倒。
5. 应急措施(1)如发现移动式门式架存在安全隐患,应立即停止使用,并报告相关部门。
(2)如发生意外事故,应立即启动应急预案,进行现场救援。
四、交底要求1. 施工人员要认真听取交底内容,了解安全注意事项,确保在施工过程中严格遵守。
2. 现场管理人员要加强对移动式门式架的监督检查,确保施工安全。
3. 施工单位应定期对移动式门式架进行检查、维护,确保其安全性能。
五、交底记录[具体日期] 安全生产交底会,交底对象:全体施工人员、现场管理人员。
一、交底对象本安全技术交底适用于所有参与操作平台作业的施工人员、管理人员以及现场监理人员。
二、交底目的为确保操作平台作业过程中的安全,预防事故发生,特制定本安全技术交底。
三、操作平台作业安全注意事项1. 人员资质要求操作平台作业人员必须具备相应的操作技能和专业知识,且持有相关资格证书。
2. 安全防护用品作业人员必须正确佩戴安全帽、安全带、防尘口罩、防护眼镜等防护用品。
3. 平台搭设与拆除(1)搭设平台前,应了解现场环境,确保平台基础坚实、平整,符合规范要求。
(2)平台搭设过程中,应严格按照设计图纸和操作规程进行,确保平台结构稳定、安全。
(3)平台拆除时,应按照从上至下的顺序进行,确保拆除过程安全有序。
4. 平台使用与维护(1)操作平台使用前,应检查平台结构、连接件、安全防护设施等是否完好,发现异常情况立即停止使用。
(2)操作过程中,严禁超载、超范围使用平台,避免发生意外。
(3)定期对平台进行维护保养,确保平台各项性能指标符合要求。
5. 高处作业安全(1)高处作业时,应采取防滑、防坠落措施,确保作业人员安全。
(2)作业人员应遵守高处作业操作规程,不得擅自攀爬、翻越平台边缘。
(3)作业过程中,严禁酒后作业、疲劳作业,确保作业人员精神状态良好。
6. 临时用电安全(1)操作平台作业过程中,如需使用临时用电,应确保电源线路安全可靠,符合规范要求。
(2)操作人员应熟悉用电设备的使用方法,严禁私自拆卸、改装用电设备。
(3)用电设备应定期检查、维护,确保设备安全运行。
四、应急处理1. 作业过程中,如发现异常情况,应立即停止作业,采取必要措施排除隐患。
2. 发生事故时,应立即启动应急预案,组织救援,确保受伤人员得到及时救治。
五、交底记录1. 交底人:__________,时间:____年__月__日。
2. 受交底人:__________,时间:____年__月__日。
3. 交底内容已全部了解,承诺遵守安全操作规程。
一、交底对象全体施工人员、管理人员及操作人员。
二、交底目的为确保施工升降平台安全、稳定、高效地运行,降低安全事故的发生,提高施工人员的安全意识,特进行安全技术交底。
三、交底内容1. 施工升降平台概述移动式施工升降平台是一种高空作业设备,主要用于建筑施工中的高空作业。
该平台具有移动方便、操作简单、安全可靠等特点。
2. 操作人员要求(1)操作人员应经过专业培训,取得相应资格证书;(2)熟悉设备性能、操作规程和安全注意事项;(3)严格遵守操作规程,不得擅自改变设备结构及参数。
3. 安全操作规程(1)作业前,检查设备各部件是否完好,液压系统、电器系统是否正常;(2)支腿应稳固地放置在坚实平整的地面上,确保设备稳定性;(3)作业过程中,不得超载使用,严禁在平台承载过重的情况下进行高空作业;(4)作业人员进入平台前,必须关闭护栏门,插上插销,系好安全带;(5)作业过程中,严禁站在平台边缘或护栏外作业;(6)作业过程中,注意观察周围环境,防止发生碰撞事故;(7)作业结束后,关闭电源,收回支腿,确保设备安全停放。
4. 安全防护措施(1)设备应配备安全防护装置,如安全限位器、超载报警器等;(2)作业人员应佩戴安全帽、安全带等防护用品;(3)定期检查设备安全性能,发现问题及时维修或更换;(4)加强现场安全管理,设立警示标志,提醒作业人员注意安全。
5. 应急处理(1)设备发生故障时,应立即停止作业,切断电源;(2)遇紧急情况,操作人员应迅速撤离平台,确保人身安全;(3)根据实际情况,采取相应的应急措施,如启动应急下降装置等。
四、交底要求1. 施工单位应组织全体施工人员进行安全技术交底,确保每位人员了解并掌握相关安全知识;2. 操作人员应认真学习并遵守安全操作规程,提高安全意识;3. 施工单位应定期对施工升降平台进行检查、维护,确保设备安全运行;4. 发生安全事故时,应立即上报,并采取措施防止事故扩大。
五、总结移动式施工升降平台的安全操作是确保施工顺利进行的重要保障。
移动式操作平台作业安全技术交底1. 引言移动式操作平台作为一种常见的工业设备,广泛应用于建筑施工、装修、设备维修等行业。
然而,由于操作平台高度和作业环境的特殊性,存在一定的安全隐患。
为了确保操作平台的安全使用,本文将对移动式操作平台的作业安全技术进行交底。
2. 移动式操作平台简介移动式操作平台是一种便于人员在高处作业的设备,通常由钢结构支架和承载平台组成。
它可以在工作现场根据需要进行升降和移动,为作业人员提供便利。
操作平台的高度可根据工作需求进行调整,并配备安全防护措施。
3. 作业前准备在开始操作平台作业之前,必须进行必要的准备工作,以确保作业的安全进行。
以下为作业前准备的主要步骤:3.1 工作现场准备•清理工作现场,清除障碍物和杂物,确保操作平台周围的通道畅通无阻。
•预先认识工作场所的地形、建筑结构和环境,特别是存在悬崖、坡面、高压线等风险的区域。
•根据现场情况,确定操作平台的安装位置,并采取相应的安全措施。
3.2 作业人员准备•作业人员必须接受相关安全培训,了解操作平台的使用方法和安全注意事项。
•穿戴适合作业的防护装备,包括安全帽、防滑鞋、安全带等。
•确保作业人员身体健康,无饮酒、嗜烟等不良习惯。
对于心脏病、高血压等慢性疾病患者,需要提前告知工作负责人。
3.3 操作平台准备•检查操作平台的外观、结构和安全装置是否完好。
•检查操作平台的升降、移动等机械运行部件是否正常。
•确保操作平台的稳定性,如紧固螺栓、安全防护网等。
4. 作业安全注意事项在进行移动式操作平台作业时,作业人员必须遵守以下安全注意事项,以保障作业的安全进行:4.1 安全驾驶操作平台•操作人员必须具备操作平台的合法驾驶资格证书。
•在驾驶操作平台之前,必须检查平台的各项操作部位是否正常,确保所有控制按钮、手柄等功能正常可用。
•驾驶操作平台时应注意平稳行驶,不得急转弯、急刹车等危险操作。
4.2 安全作业操作•在升降操作平台时,作业人员应注意平台的稳定性,如遇风力较大、突发事故等情况,应及时停止作业并迅速撤离。