生活污水处理站工艺流程图及简介完整版
- 格式:docx
- 大小:71.51 KB
- 文档页数:2
生活污水处理生产工艺流程图一、引言生活污水处理是指对城市和农村生活污水进行处理,以去除其中的污染物质,使其达到排放标准,保护环境和人类健康。
生活污水处理生产工艺流程图是对生活污水处理过程中各个环节和设备进行图形化展示,以便于工程师和操作人员理解和操作。
二、工艺流程图示例以下是一个典型的生活污水处理生产工艺流程图示例:1. 进水口生活污水从城市或农村进入处理厂的进水口,通常通过管道输送。
2. 预处理进水口后,生活污水需要经过预处理,包括去除大颗粒物质、沉淀悬浮物和油脂等。
预处理通常包括格栅、砂池和沉淀池等设备。
3. 活性污泥法处理经过预处理后的生活污水进入活性污泥法处理系统。
该系统利用活性污泥微生物的作用,将有机物质分解为二氧化碳和水,并去除其中的氮、磷等营养物质。
活性污泥法处理系统包括接触氧化池、好氧池、缺氧池和二沉池等。
4. 滤池活性污泥法处理后的水通过滤池进行过滤,去除残留的悬浮物和微生物。
滤池通常使用砂滤或活性炭滤材。
5. 消毒滤池后的水需要进行消毒,以杀灭其中的病原微生物。
常用的消毒方法包括紫外线消毒和氯消毒。
6. 出水口经过消毒后的水达到排放标准,可以通过出水口排放到环境中,或者作为再生水利用。
三、数据示例以下是一个典型的生活污水处理生产工艺流程图中各个环节的数据示例:1. 进水口:日均进水量为500立方米,水质COD浓度为300mg/L,BOD浓度为200mg/L。
2. 预处理:格栅设备能够去除直径大于10毫米的颗粒物质,砂池能够去除直径大于0.2毫米的颗粒物质,沉淀池能够去除直径大于0.05毫米的颗粒物质。
3. 活性污泥法处理:接触氧化池中的水停留时间为4小时,好氧池中的水停留时间为12小时,缺氧池中的水停留时间为6小时,二沉池中的水停留时间为2小时。
4. 滤池:砂滤池的滤料层厚度为1.5米,滤速为10米/小时。
5. 消毒:紫外线消毒设备消毒剂量为30mJ/cm²,氯消毒设备消毒剂量为2mg/L。
污水处理工艺流程图污水处理工艺流程图是指用于描述污水处理过程中各个处理单元之间关系和操作步骤的图表。
下面是一个典型的污水处理工艺流程图示例,详细介绍了污水处理的各个阶段和相关的处理单元。
1. 污水采集和初步处理阶段:- 污水采集:通过排水管网将城市、工业区等地区的污水采集到污水处理厂。
- 粗格栅:用于去除大颗粒物质,如树叶、纸张等。
- 细格栅:去除较小的悬浮物和固体颗粒。
- 沉砂池:通过重力作用使沉积物沉淀,去除沙子和砾石。
2. 污水生物处理阶段:- 活性污泥法:将污水引入活性污泥池,通过微生物降解有机物质。
- 曝气池:通过曝气装置供氧,促进微生物的生长和有机物的降解。
- 沉淀池:将处理后的污水引入沉淀池,使污泥沉淀。
- 污泥回流:将一部份沉淀后的污泥回流至活性污泥池,增加微生物数量。
3. 污泥处理阶段:- 污泥浓缩:将沉淀池中的污泥通过浓缩装置浓缩,减少体积。
- 污泥消化:将浓缩后的污泥进入消化池,通过厌氧消化降解有机物质。
- 污泥脱水:将消化后的污泥通过脱水设备脱水,减少水分含量。
4. 污水深度处理阶段:- 活性炭吸附:将处理后的污水通过活性炭吸附装置,去除有机物和异味。
- 膜分离:使用微孔膜或者超滤膜对污水进行过滤,去除弱小颗粒和细菌。
- 臭氧氧化:利用臭氧对污水进行氧化处理,去除难降解有机物和色度。
5. 出水处理和回用阶段:- 出水消毒:对处理后的污水进行消毒,杀灭细菌和病毒。
- 出水调节:对出水进行调节,使其达到国家和地方排放标准。
- 污水回用:将处理后的污水用于农田灌溉、工业用水等方面。
请注意,以上流程图仅为示例,实际的污水处理工艺流程图可能因地区、工艺和设备的不同而有所差异。
在设计和运营污水处理厂时,需要根据具体情况进行调整和优化。
希翼以上信息能够满足您的需求,如果还有其他问题,请随时提问。
生活污水处理生产工艺流程图生活污水处理是一项关键的环境保护工作,旨在将生活污水中的污染物去除,以确保水资源的可持续利用和保护生态环境。
下面是生活污水处理的标准工艺流程图:1. 污水采集和初步处理- 污水采集:通过管道系统将生活污水从住宅、工业区和公共设施等地采集起来。
- 筛网过滤:通过筛网过滤掉大颗粒的固体废物,如纸张、布料和树叶等。
- 沉砂池:将污水引入沉砂池,利用重力作用使沉积物沉淀到池底,形成污泥层。
2. 污泥处理- 污泥脱水:将沉淀在沉砂池底部的污泥抽取出来,经过脱水设备去除多余的水分,减少体积。
- 污泥处理:经过污泥处理设备,如厌氧消化池或者厌氧发酵池,将污泥进行进一步处理,以减少其有机物含量和臭味。
3. 生化处理- 初级生化池:将经过初步处理的污水引入生化池,通过微生物的作用将有机物质分解为无机物质。
- 氧化沟:将污水引入氧化沟,通过曝气系统供氧,促进微生物的生长和有机物的降解。
- 沉淀池:经过氧化沟处理的污水进入沉淀池,使微生物和悬浮物沉淀到池底,形成二沉池。
4. 消毒处理- 消毒剂投加:为了杀灭残留的细菌和病原体,向处理后的污水中加入消毒剂,如氯或者臭氧。
- 混合和静置:将消毒剂和污水进行充分混合,并在静置池中停留一段时间,以确保消毒剂的充分反应。
- 中和处理:为了去除消毒剂残留,向处理后的污水中加入中和剂,如亚硫酸钠或者次氯酸钠。
5. 水质监测和排放- 水质监测:对处理后的污水进行水质监测,包括浊度、COD(化学需氧量)和氨氮等指标的检测。
- 排放:将达到排放标准的处理后的污水通过排水管道或者河流等方式进行安全排放。
以上是生活污水处理的标准工艺流程图。
这个流程图可以根据具体的处理规模和技术要求进行调整和优化。
通过生活污水处理工艺,我们能够有效地去除污染物,保护水资源和生态环境的可持续发展。
生活污水处理设备工艺流程图生活污水处理设备工艺流程:生活综合污水自流经格栅格去大颗粒悬浮物流入废水调节池;调节池中废水均质均量后,通过液位计控制由污水提升泵打入水解池,利用厌氧微生物来对废水中N、P、CODcr、BOD5等污染物进行降解。
水解池内挂有弹性纤维复合填料以增加微生物量,池内存在高浓度的污泥混合液及生物膜,在池内有机物被兼氧菌降解,提高了废水的可生化性,同时,在微生物的作用下,将有机氮和氨态氮转化为N2和NxO气体的过程。
水解池出水流入氧化池,在好氧的微生物作用下,将废水中NH4+转化为NO2-和NO3-。
又借助池内弹性填料上附着的好氧微生物的氧化代谢作用,分解废水中的有机污染物,从而降低其BOD5、CODcr、等污染物指标。
接触氧化池出水自流入沉淀池,沉淀的污泥适当经气提打入污泥池消化处理,沉淀池的污水主要进行泥水分离后再流入后续清水消毒池达标排放。
污泥池累积的剩余污泥消化后由抽泥泵定期清理外运,上清液回流水解池进行反硝化脱氮处理。
生活污水处理设备回用工艺流程图生活污水处理设备回用工艺流程:生活污水井排水管网排入生活污水处理站,先经粗格栅去除大块的杂物,然后进入集水井。
集水井内配置抗堵塞污水泵,泵出水进入细格栅和沉砂池,通过细格栅去除小的悬浮物和砂粒,可以减轻后续处理负荷,同时避免悬浮物对MBR膜组件的不利影响,然后污水进入调节池内进行水质和水量的调节。
进入专门设计的MBR系统,污水在曝气好氧区及厌氧缺氧区完成有机物和氨氮的去除。
曝气装置将采用微孔曝气器。
曝气池后是膜池,污染物在膜池内进一步降解,通过膜分离出水,产水直接达到回用水标准,膜池浓缩液通过混合液循环泵循环回到前面的厌氧区保持其污泥浓度。
由MBR出水经紫外消毒设备后直接达到再生水指标,再经回用水池及回用水泵外输回用。
污泥排入污泥池,通过进泥螺杆泵输送至污泥压滤机,产生的污水直接排到厂区污水管网,泥饼外运。
污水处理站工艺流程图一、引言污水处理站是用于处理城市污水和工业废水的设施,其工艺流程图是指污水处理站中不同处理单元之间的流程和操作步骤的图示。
本文将详细介绍污水处理站的工艺流程图及其各个处理单元的功能和操作要点。
二、工艺流程图概述污水处理站的工艺流程图通常包括初级处理、中级处理和高级处理三个阶段。
初级处理主要是通过物理和化学方法去除污水中的悬浮物和沉淀物;中级处理是通过生物处理方法去除有机物和氮磷等污染物;高级处理则是对出水进行进一步的净化,以达到排放标准。
三、初级处理1. 污水进水口:将污水从管道引入处理站,通常设置格栅和除砂池,用于去除大颗粒物和沉砂。
2. 沉砂池:污水经过格栅后进入沉砂池,通过重力沉降去除污水中的沉砂和沉淀物。
3. 沉淀池:沉砂池出水进入沉淀池,通过静置使悬浮物进一步沉淀,减少悬浮物负荷。
4. 调节池:用于调节污水的流量和水质,平衡污水处理站的运行稳定性。
四、中级处理1. 好氧池:将初级处理后的污水引入好氧池,通过好氧菌的作用分解有机物,同时去除部份氮磷等营养物质。
2. 好氧池出水进入二沉池:好氧池出水经过沉淀池去除残留的悬浮物和生物絮凝物。
3. 混凝剂投加:在二沉池中加入混凝剂,促使悬浮物和絮凝物更好地沉淀。
4. 污泥回流:将二沉池中的一部份污泥回流到好氧池,增加好氧池内的微生物种群,提高有机物的去除效果。
五、高级处理1. 厌氧池:好氧池出水进入厌氧池,通过厌氧菌的作用去除残留的有机物和氮磷等营养物质。
2. 厌氧池出水进入三沉池:厌氧池出水经过沉淀池去除残留的悬浮物和生物絮凝物。
3. 混凝剂投加:在三沉池中加入混凝剂,促使悬浮物和絮凝物更好地沉淀。
4. 污泥浓缩:将三沉池中的污泥通过浓缩设备进行脱水,减少污泥的体积和处理成本。
5. 出水消毒:对处理后的水进行消毒,常用的消毒方法包括紫外线消毒和氯消毒。
六、出水处理1. 出水管道:将处理后的水排放到河流、湖泊或者进行进一步的利用。
生活污水处理站工艺流程图及简介生活污水处理站工艺流程图及简介一、引言生活污水处理站是为了处理城市、乡村等地区产生的生活污水而建立的。
本文将详细介绍生活污水处理站的工艺流程图及其简介,以帮助读者更好地了解该工艺流程,为污水处理工作提供参考。
二、工艺流程图生活污水处理站的工艺流程如下所示:1、集水:将生活污水通过排水管道引入处理站。
2、预处理:对生活污水进行初步处理,包括去除大部分固体废物、悬浮物和可溶性有机物。
3、沉淀池:将预处理后的污水引入沉淀池,通过沉淀作用去除污水中的悬浮物和沉淀物。
4、厌氧处理:将沉淀后的污水引入厌氧处理池,在无氧条件下,有机物被厌氧菌分解产生气体和有机酸。
5、好氧处理:将厌氧处理后的污水引入好氧处理池,通过好氧菌的作用继续分解有机酸和氧化其他有机物。
6、溶解氧供给:为好氧处理提供溶解氧,以促进好氧菌的活性和有机物的分解。
7、污泥处理:将好氧处理后产生的污泥进行处理,包括浓缩、脱水等工艺,以减少污泥体积。
8、出水处理:经过上述处理后,污水得到进一步净化,达到国家排放标准要求的出水。
三、附件本文档涉及的附件如下:1、生活污水处理站工艺流程图附件附件中包含了详细的生活污水处理站工艺流程图,供读者更直观地了解工艺流程。
2、污水处理相关法律名词及注释附件附件中包含了与污水处理相关的法律名词及其解释,帮助读者更好地理解相关法律法规。
四、法律名词及注释本文涉及的法律名词及注释如下:1、污水处理站:按照国家规定,进行污水处理的设施。
2、生活污水:包括家庭、办公楼、学校等单位产生的污水,主要含有有机物、悬浮物等。
3、排放标准:国家对污水处理后的排放水质要求的规定。
4、沉淀:污水中悬浮物和沉淀物通过重力作用逐渐下沉至污水底部。
5、厌氧菌:在无氧条件下能够分解有机物的微生物。
6、好氧菌:在有氧条件下能够分解有机物的微生物。
7、溶解氧:水中溶解的氧气,对好氧菌的生长和有机物的分解起重要作用。
五、结束语通过本文的介绍,大家对生活污水处理站的工艺流程图及其简介有了更深入的了解。
生活污水处理工艺流程图一、引言生活污水处理工艺是指对城市居民生活中产生的污水进行处理,以减少对环境的污染,保护水资源。
本文将详细介绍生活污水处理的工艺流程图及其各个步骤。
二、生活污水处理工艺流程图以下是一种常见的生活污水处理工艺流程图:1. 原水进水口:将生活污水引入处理系统。
2. 机械格栅:通过格栅去除污水中的大颗粒杂物,如纸张、布料等。
3. 沉砂池:污水通过沉砂池,使沉积的沙子和石块沉淀到池底。
4. 水解酸化池:将污水引入水解酸化池,通过厌氧菌的作用,将有机物质分解为有机酸。
5. 好氧生化池:将水解酸化池的污水引入好氧生化池,通过好氧菌的作用,进一步分解有机酸,减少有机物质的含量。
6. 沉淀池:将好氧生化池的污水引入沉淀池,通过重力沉淀,使污水中的悬浮物沉淀到池底。
7. 植物滤池:将沉淀池的污水引入植物滤池,通过植物的吸收和生物降解作用,进一步净化水质。
8. 消毒池:将植物滤池的污水引入消毒池,使用消毒剂进行消毒,杀灭残留的细菌和病毒。
9. 出水口:处理后的污水达到国家排放标准,可安全排入水体或者进行再利用。
三、各个步骤的详细描述1. 原水进水口:生活污水从管道进入处理系统,通过流量计控制进水量,确保处理系统的稳定运行。
2. 机械格栅:污水通过机械格栅,格栅间距根据需要可调,以去除大颗粒杂物。
格栅上方设置清污机构,定期清理堆积在格栅上的杂物。
3. 沉砂池:污水进入沉砂池后,由于流速减慢,使沉积的沙子和石块沉淀到池底。
定期清理沉淀池,防止阻塞。
4. 水解酸化池:污水从沉砂池引入水解酸化池,水解酸化池内维持厌氧环境,有机物质通过厌氧菌的作用分解为有机酸。
控制水解酸化池的温度、PH值等参数,以促进菌群的生长和有机物的分解。
5. 好氧生化池:水解酸化池的污水引入好氧生化池,通过好氧菌的作用,进一步分解有机酸,减少有机物质的含量。
控制好氧生化池的温度、DO值等参数,以提供适宜的生物环境。
6. 沉淀池:好氧生化池的污水进入沉淀池,通过重力沉淀,使污水中的悬浮物沉淀到池底。
(2)生活污水项目聘用职员80人,均不住厂,不设食堂,年工作时间300天,调试期间生活用水量为4t/d (年用水量1200t ),生活污水产生量为3.6t/d (年污水产生量1080t)。
生活污水经三级化粪池预处理后纳入南安市污水处理厂集中处理。
图4-3生活污水处理流程图表4-1废水的排放及治理情况一览表废水类别来源污染物种类排放规律排放量治理设施排放去向水帘柜废水净化喷漆废气产生废水COD 、BOD 、SS 、色度间断/循环水池循环回用,定期更换冷却废水热处理冷却废水/连续/冷却水池循环回用清洗废水部分工件清洗废水COD 、BOD 、SS 、石油类间断/水池循环使用生活污水职工生活废水COD 、BOD 、氨氮、SS间断/三级化粪池南安市污水处理厂集中处理图4-4冷却池4.1.2废气项目运营期废气主要为燃料废气、淬火油烟、喷砂粉尘、焊接烟尘和喷漆及泡漆废气。
(1)燃料废气项目回火炉采用天然气燃烧供热。
天然气燃烧过程会产生烟尘、二氧化硫和氮氧化物,尾气通过1#排气筒排放。
燃料废气处理工艺流程图见图4-5,排气筒见图4-6。
(2)淬火油烟在调质过程中,高温工件置于淬火油中冷却淬火会产生淬火油烟,淬火油烟拟经管道集中收集后采用油烟净化器处理,再汇同燃料废气通过1#排气筒排放。
淬火油烟处理工艺流程图见图4-5,废气处理见图4-6。
图4-5燃料废气、淬火油烟处理工艺流程图图4-6油烟净化器及排气筒(3)喷砂粉尘铸件需用抛丸机和喷砂机清理或强化表面,该设备密闭作业,喷砂过程会产生粉尘。
喷砂粉尘经的除尘设施处理后通过2#排气筒排放。
喷砂粉尘处理工艺流程图见图4-7。
图4-7喷砂粉尘处理工艺流程图(4)焊接烟尘项目部分钢材焊接时会产生焊接烟尘。
项目采用焊接烟尘净化器处理生产过程产生的焊烟,焊烟经净化处理后可通过四周窗户排出室外,呈无组织排放。
焊接烟尘处理工艺流程见图4-8,集尘设施见图4-9。
图4-8焊接烟尘排放流程图4-9焊接烟尘处理设施(5)喷漆及泡漆废气项目喷漆及泡漆过程会产生的有机废气,主要为非甲烷总烃、甲醛、甲苯、二甲苯、苯系物、乙酸丁酯、颗粒物。
生活污水处理生产工艺流程图生活污水处理是一项关键的环境保护工作,旨在将污水中的有害物质去除或转化为无害物质,以保护水资源和生态环境。
下面是一个标准格式的生活污水处理生产工艺流程图,详细描述了处理过程中的各个步骤和相关设备。
1. 进水口:生活污水从进水口流入处理系统。
进水口通常设有格栅,用于去除大颗粒物质,如树叶、纸张等。
2. 预处理:进入预处理阶段后,污水经过沉砂池,其中的沉淀物质如砂、泥被去除。
然后,污水进入调节池,通过调节水量和负荷来平衡进水的波动。
在调节池中,污水还会进行初步的生化处理。
3. 活性污泥法处理:在活性污泥法处理阶段,污水通过进入活性污泥池进行二次生化处理。
活性污泥是一种富含微生物的混合物,能够分解有机物质。
在活性污泥池中,微生物通过吸附和降解有机物质,将其转化为无害物质。
4. 沉淀池:经过活性污泥法处理后,污水进入沉淀池。
在沉淀池中,污水停留一段时间,使污泥和污水分离。
重力作用下,污泥沉降到池底,而净化后的水则从池顶流出。
5. 滤池:净化后的水通过滤池进行最后的处理。
滤池是由多层不同颗粒大小的滤料构成的。
这些滤料能够进一步去除悬浮物和微生物,使水质更加清澈。
6. 消毒:为了确保处理后的水质符合卫生标准,消毒是必不可少的一步。
常用的消毒方法包括氯消毒、紫外线消毒等。
消毒能够有效杀灭残留的病原体和细菌,确保水质安全。
7. 出水口:处理后的水通过出水口排放到环境中。
排放的水质应符合国家和地方的相关标准,以保护周围水体的生态环境。
8. 污泥处理:在处理过程中产生的污泥需要进行处理。
常见的处理方法包括厌氧消化、压滤和堆肥等。
这些方法能够将污泥中的有机物质稳定化,减少体积,并使其具备一定的肥料价值。
以上是一个标准格式的生活污水处理生产工艺流程图。
在实际应用中,具体的处理工艺可能会因地区和设备的不同而有所差异。
但总体而言,生活污水处理的目标是将污水中的有害物质去除,保护水资源和生态环境的可持续发展。
污水处理站工艺流程图标题:污水处理站工艺流程图引言概述:污水处理站是城市环境保护的重要设施,通过一系列的工艺流程将污水中的有害物质去除,最终达到排放标准。
工艺流程图是污水处理站运行的指导图,展示了污水处理过程中各个单元的连接和运行顺序。
本文将详细介绍污水处理站工艺流程图的内容和作用。
一、进水处理部份:1.1 进水预处理:污水首先进入预处理单元,通过格栅和除砂器去除大颗粒杂物和沙子。
1.2 进水调节:进入调节池,调节污水的水质和流量,保持进水的稳定性。
1.3 进水均化:将调节后的污水进入均化池,使污水中的水质更加均匀,便于后续处理。
二、生化处理部份:2.1 好氧处理:将均化后的污水进入好氧生物反应器,通过氧气和微生物的作用,去除有机物和氨氮。
2.2 厌氧处理:部份好氧处理后的污水经过厌氧生物反应器,去除硝酸盐和亚硝酸盐。
2.3 混凝沉淀:经过生化反应后的污水进入混凝沉淀池,使悬浮物和胶体物质沉淀到底部。
三、二沉池处理部份:3.1 一沉池:污水从混凝沉淀池进入一沉池,慢慢沉淀悬浮物和胶体物质。
3.2 二沉池:经过一沉池后的污水进入二沉池,进一步沉淀残留的悬浮物和胶体物质。
3.3 澄清池:经过二沉池后的清水进入澄清池,使水质更加清澈,准备排放或者进一步处理。
四、消毒处理部份:4.1 氯气消毒:为了杀灭残留的细菌和病原体,清水经过氯气消毒。
4.2 紫外线消毒:部份污水处理站采用紫外线消毒技术,对水质进行二次消毒。
4.3 消毒剂去除:最后通过还原剂去除氯气或者紫外线消毒剂残留,准备排放。
五、污泥处理部份:5.1 污泥浓缩:污水处理过程中产生的污泥经过浓缩处理,减少体积。
5.2 污泥脱水:浓缩后的污泥进入脱水机,去除多余水分,减少体积。
5.3 污泥处理:脱水后的污泥可以进行焚烧、填埋或者再利用,达到资源化利用的目的。
结论:污水处理站工艺流程图是污水处理站运行的重要指导,通过详细的工艺流程图,可以清晰了解每一个处理单元的作用和连接顺序,确保污水处理站的正常运行和达标排放。
污水处理站工艺流程图引言概述:污水处理站是用于处理城市污水的重要设施,它通过一系列工艺流程将污水中的有害物质去除,使污水得以净化后排放。
本文将详细介绍污水处理站的工艺流程图,包括预处理、初级处理、中级处理、高级处理和消毒五个部分。
一、预处理1.1 污水进站:污水从城市排水管网进入处理站,通过网格栅和格栅机进行初步过滤,去除大颗粒杂质。
1.2 沉砂池:经过初步过滤后的污水进入沉砂池,利用重力作用使沉降下来的沙子和砂石沉入池底,净化水质。
1.3 调节池:为了稳定进水水质和流量,污水经过沉砂池后进入调节池,通过搅拌和沉淀作用,调节污水的水质和流量。
二、初级处理2.1 气浮池:经过调节池后的污水进入气浮池,通过注入大量细小气泡,使悬浮物沉降并浮起,进一步去除悬浮物。
2.2 沉淀池:气浮池去除悬浮物后的污水进入沉淀池,通过重力沉降使污水中的污泥沉入池底,净化水质。
2.3 污泥处理:沉淀池中沉积的污泥经过集水、浓缩和脱水等步骤,处理后可作为肥料或填埋处理。
三、中级处理3.1 好氧处理:初级处理后的污水进入好氧处理池,通过加入氧气和好氧微生物,降解有机物,减少污水中的悬浮物和有机物含量。
3.2 好氧池:好氧处理后的污水进入好氧池,通过搅拌和曝气作用,加速微生物降解有机物的速度,提高水质。
3.3 二沉池:好氧池处理后的污水进入二沉池,通过重力沉降使微生物和悬浮物沉入池底,净化水质。
四、高级处理4.1 滤池:二沉池处理后的污水进入滤池,通过滤料层的过滤作用,进一步去除污水中的悬浮物和微生物。
4.2 活性炭吸附:滤池处理后的污水进入活性炭吸附池,通过活性炭对污水中的有机物和重金属等进行吸附,提高水质。
4.3 除磷除氮:活性炭吸附后的污水进入除磷除氮池,通过添加化学药剂,去除污水中的磷和氮等有害物质,进一步净化水质。
五、消毒5.1 消毒:除磷除氮池处理后的污水进入消毒池,通过添加消毒剂,杀死污水中的细菌和病毒等微生物,确保水质安全。
生活污水处理生产工艺流程图生活污水处理是一项重要的环境保护工作,旨在将生活污水中的有害物质去除,使其达到排放标准,不对环境造成污染。
下面是生活污水处理的标准格式工艺流程图:1. 污水收集:生活污水首先通过下水道系统被收集起来,进入处理厂。
2. 预处理:在进入处理厂后,生活污水需要经过预处理过程。
预处理的目的是去除大颗粒物质和固体悬浮物,以减轻后续处理设备的负荷。
预处理包括格栅过滤和沉砂池沉淀。
3. 水解酸化:经过预处理后的污水进入水解酸化池。
在水解酸化池中,有机物质被细菌分解成有机酸和气体。
这个过程产生的有机酸可以提供给后续的好氧处理过程。
4. 好氧处理:水解酸化后的污水进入好氧处理池。
在好氧条件下,细菌进一步分解有机酸,将其转化为二氧化碳和水。
同时,好氧处理还可以去除部分氮和磷。
5. 混凝沉淀:好氧处理后的污水进入混凝沉淀池。
在混凝沉淀池中,添加混凝剂,使悬浮颗粒物聚集成较大的团块,便于后续的固液分离。
6. 滤料过滤:经过混凝沉淀后的污水进入滤料过滤池。
在滤料过滤池中,通过过滤介质(如砂)的作用,去除残留的悬浮物和微生物。
7. 消毒:滤料过滤后的污水需要进行消毒处理,以杀灭其中的病原微生物。
常用的消毒方法包括紫外线消毒和氯消毒。
8. 排放:经过消毒处理的污水达到排放标准后,可以安全地排入水体或用于灌溉等用途。
以上是生活污水处理的标准工艺流程图。
值得注意的是,实际的处理工艺可能因地区和处理厂的不同而有所差异,但总体流程是相似的。
生活污水处理的工艺流程图可以为相关人员提供清晰的指导,确保处理过程高效、稳定,并达到环境保护的要求。
污水处理厂工艺流程图概述污水处理厂工艺流程图是用来描述污水处理过程中各个步骤和环节的图表。
通过这张图,我们可以直观地了解污水处理厂的运行机制和流程。
本文将介绍污水处理厂工艺流程图的基本内容和具体说明。
一、污水处理厂工艺流程图概述污水处理厂工艺流程图通常包括以下步骤:1.污水收集:污水通过管道收集,并送至污水处理厂。
2.预处理:污水进入预处理设施,进行格栅过滤、沉砂等处理,以去除大颗粒杂质和无机颗粒。
3.生物处理:污水进入生物反应池,通过微生物降解有机物质,同时进行硝化反硝化脱氮除磷等处理。
4.二次沉淀:生物处理后的污水进行二次沉淀,去除悬浮物和磷酸盐等物质。
5.深度处理:二次沉淀后的污水进行深度处理,包括过滤、消毒等环节,以满足排放标准或回用要求。
6.污泥处理:污水处理过程中产生的污泥进行减量、脱水、稳定等处理,以减少污泥体积和含水率,便于后续处置。
7.检测与排放:处理后的污水经过检测达标后排放或进入回用系统。
二、具体说明1.污水收集:污水主要来源于城市生活污水、工业废水、农业污水等。
通过污水管道系统收集送至污水处理厂。
2.预处理:预处理设施通常包括格栅过滤器和沉砂池。
格栅过滤器用于去除大颗粒杂质,沉砂池用于去除无机颗粒。
3.生物处理:生物反应池是污水处理厂的核心环节,通过微生物降解有机物质,同时进行硝化反硝化脱氮除磷等处理。
常用的生物反应池有活性污泥法、A2/O法等。
4.二次沉淀:生物处理后的污水进入二次沉淀池,去除悬浮物和磷酸盐等物质,同时将污泥回流至生物反应池。
5.深度处理:深度处理环节包括过滤、消毒等步骤。
过滤用于去除悬浮物和有机物质,消毒用于杀灭病原微生物,以满足排放标准或回用要求。
6.污泥处理:污水处理过程中产生的污泥进行减量、脱水、稳定等处理,以减少污泥体积和含水率,便于后续处置。
常用的污泥处理方法有机械脱水、干化脱水等。
7.检测与排放:处理后的污水经过检测达标后排放或进入回用系统。
比史上最全更全,近60种污水、废水处理工艺流程图及典型工艺生物处理方法阶段性的工艺过程详解:一、生物转盘二级处理流程(请点击图片放大后查看)二、生物吸附法(请点击图片放大后查看)三、氧化渠的典型布置(请点击图片放大后查看)四、完全混合法基本流程(请点击图片放大后查看)五、曝气生物滤池的污水处理系统(请点击图片放大后查看)典型工艺流程图:六、污水处理典型工艺流程(请点击图片放大后查看)七、氧化沟工艺(请点击图片放大后查看)八、中水回用处理典型工艺流程(请点击图片放大后查看)九、垃圾渗滤液典型工艺流程(请点击图片放大后查看)十、城市污水回用处理工艺(请点击图片放大后查看)十一、钢铁乳化液处理典型工艺流程(请点击图片放大后查看)十二、城市污水处理工艺流程图(请点击图片放大后查看)十三、污水处理厂典型工艺流程图(请点击图片放大后查看)十四、造纸污水处理工艺流程(请点击图片放大后查看)十五、屠宰废水处理工艺流程(请点击图片放大后查看)十六、CAST污水处理工艺(请点击图片放大后查看)十七、酸洗磷化废水处理工艺(请点击图片放大后查看)十八、高矿化度矿井排水深度处理新工艺流程图(请点击图片放大后查看)十九、脱硫废水处理工艺(请点击图片放大后查看)二十、农药废水处理工艺流程图(请点击图片放大后查看)二十一、高矿化度矿井排水深度处理新工艺流程图(请点击图片放大后查看)二十二、膜法处理石化废水处理工艺流程(请点击图片放大后查看)二十三、生活污水处理-CASS工艺(请点击图片放大后查看)二十四、MBR工艺处理制药废水(请点击图片放大后查看)二十五、污水处理工艺流程图(请点击图片放大后查看)二十六、城市污水处理工艺流程图(请点击图片放大后查看)二十七、传统活性污泥法工艺流程图(请点击图片放大后查看)二十八、MBFB工艺(请点击图片放大后查看)二十九、电镀污水处理工艺流程(请点击图片放大后查看)三十、脱硫废水处理工艺(请点击图片放大后查看)三十一、塑胶电镀废水处理工艺图(请点击图片放大后查看)三十二、炼油厂典型的废水处理工艺流程(请点击图片放大后查看)三十三、制糖废水处理工艺流程图(请点击图片放大后查看)三十四、焦化废水处理工艺流程(请点击图片放大后查看)三十五、高浓度氨氮废水处理工艺流程图(请点击图片放大后查看)三十六、cass工艺废水处理流程图(请点击图片放大后查看)三十七、污水处理工艺流程组态图(请点击图片放大后查看)三十八、SBR污水处理工艺(请点击图片放大后查看)三十九、A2O工艺流程图(请点击图片放大后查看)四十、污水处理的PLC自控系统(请点击图片放大后查看)四十一、GW-T型整体地埋式隔油池(请点击图片放大后查看)四十二、电镀污水处理设备(请点击图片放大后查看)四十三、这是生活污水净水工艺(请点击图片放大后查看)四十四、生活污水处理设备与工艺(请点击图片放大后查看)四十五、MBR膜生物反应器工艺流程(请点击图片放大后查看)四十六、反硝化除磷或其他脱氮工艺(请点击图片放大后查看)四十七、污水处理设备污水处理工艺流程(请点击图片放大后查看)四十八、ET RB悬链式污水处理曝气工艺及装置(请点击图片放大后查看)四十九、ITT污水深度处理工艺及主要设备(请点击图片放大后查看)五十、LP型一体化污水处理设备(请点击图片放大后查看)五十一、污水处理技术工艺流程图详解(请点击图片放大后查看)五十二、淀粉废水(请点击图片放大后查看)五十三、果汁废水(请点击图片放大后查看)五十四、含铅废水处理工艺流程图(请点击图片放大后查看)五十五、合成革废水处理工艺流程图(请点击图片放大后查看)五十六、化工废水处理工艺流程图(请点击图片放大后查看)五十七、化纤废水处理方案(请点击图片放大后查看)五十八、焦化废水处理工艺流程图(请点击图片放大后查看)五十九、垃圾渗透液废水工艺流程图(请点击图片放大后查看)六十、磷化废水废水处理工艺流程图(请点击图片放大后查看)六十一、印染废水工艺流程图(请点击图片放大后查看)六十二、制药废水处理工艺流程图。
生活污水处理工艺流程图生活污水处理是指对城市、乡村等地区产生的污水进行处理,以减少对环境的污染和保护水资源。
下面是一份标准格式的生活污水处理工艺流程图,详细描述了污水处理的各个环节和处理方法。
1. 污水收集生活污水首先通过下水道系统收集起来,包括来自住宅、商业和工业区域的污水。
收集系统包括污水管道、检查井和泵站等设施。
2. 初级处理初级处理是将污水中的固体物质和悬浮物去除的过程。
在初级处理中,污水经过格栅、沉砂池和沉淀池等设备,固体物质被拦截和沉淀,净化后的水流进入下一步处理。
3. 生化处理生化处理是将污水中的有机物质通过生物反应进行降解的过程。
在生化处理中,污水通过活性污泥法或固定膜生物反应器等设备,有机物质被微生物降解,产生较为清洁的水体。
4. 深度处理深度处理是对生化处理后的水进行进一步的净化和去除残余污染物的过程。
其中常用的方法包括沉淀、过滤、吸附和消毒等。
这些方法可以有效去除水中的悬浮物、细菌、病毒和重金属等有害物质。
5. 出水处理出水处理是对深度处理后的水进行最后的净化和调节,以满足排放标准和再利用要求。
出水处理包括调节pH值、去除氮磷等营养物质、消毒和添加防腐剂等步骤,确保出水安全、清洁。
6. 污泥处理污泥处理是对污水处理过程中产生的污泥进行处理和处置的过程。
常见的处理方法包括压滤、脱水、干化和焚烧等。
通过这些处理方法,污泥中的有机物质被降解,体积减小,以便于后续处置。
7. 再生利用处理后的水可以通过再生利用来减少对水资源的需求。
再生利用包括农田灌溉、工业用水和景观水等方面,有效地提高水资源的利用效率和保护环境。
以上是一份标准格式的生活污水处理工艺流程图,详细描述了污水处理的各个环节和处理方法。
通过这些处理步骤,生活污水可以得到有效的净化和处理,保护环境和水资源的可持续利用。
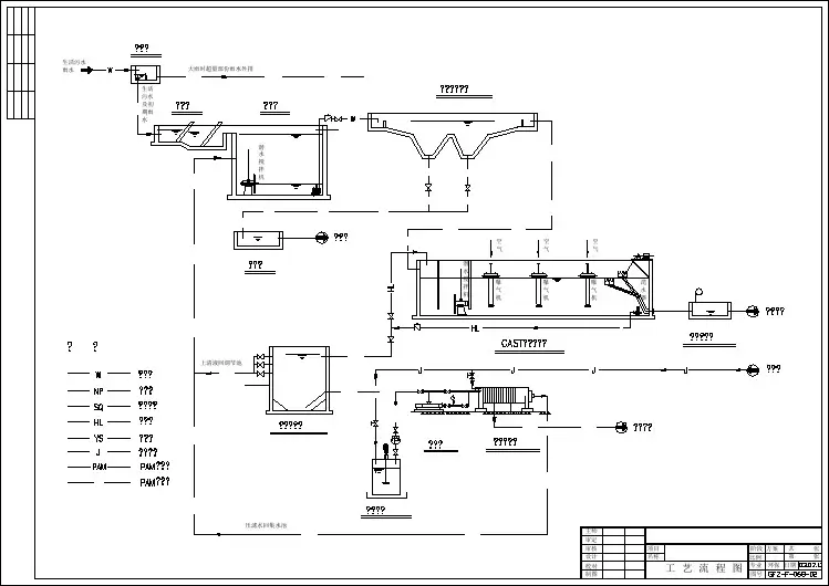
生活污水处理站工艺流
程图及简介
HEN system office room 【HEN16H-HENS2AHENS8Q8-HENH1688】
生活污水处理站工艺流程图
矿区生活污水经排水管网流入生活污水处理站,进入集水井,经格栅去除大块的悬浮物,然后进入调节池进行水质和水量的调节。
调节池内配置抗堵塞污水泵,经泵提升进入浓密机,通过浓密机去除小的悬浮物和砂粒。
浓密机出水进入生化系统,生化系统分为厌氧、好氧两个工作单元,厌氧单元采用厌氧接触工艺,好氧单元采用活性污泥法。
曝气工艺采用微孔曝气器。
生化系统之后是MBR池,有机污染物在MBR单元进一步降解,通过膜分离出水,膜池浓缩液通过混合液循环泵循环回到厌氧区保持系统污泥浓度。
MBR出水经消毒后达到回用水标准,进入回用水池经回用水泵进入回用管道。
污泥排入污泥池,通过螺杆泵输送至带式压滤机脱水,滤出的污水排入集水井再次进入污水处理系统,脱水后的泥饼外运。