施工现场工地出入口洗车槽设计图纸(比较详细的工程洗车池)
- 格式:dwg
- 大小:122.59 KB
- 文档页数:1
建筑工地洗车槽(附施工图)精编版
摘要
本文档介绍了建筑工地洗车槽的概述、设计要求和施工图。
通过详细的说明和施工图,读者可以了解到建筑工地洗车槽的结构和特点。
1. 概述
建筑工地洗车槽是为了解决建筑施工过程中车辆清洗及污水处理而设计的设施。
它具有方便、高效、环保等特点。
2. 设计要求
2.1 尺寸要求
洗车槽的尺寸需要根据施工现场的实际情况和车辆类型确定,保证车辆能够顺利进入洗车槽并进行清洗操作。
2.2 结构要求
洗车槽的结构需要具备耐压、耐酸碱、耐磨损等特性,确保设施的使用寿命和安全性。
2.3 排水系统
洗车槽的排水系统需要能够处理洗车过程中产生的污水,确保污水达到环保标准排放。
2.4 材料选择
洗车槽的主体材料需要选用高强度、耐腐蚀的材料,以适应恶劣环境下的使用。
3. 施工图
(在此处插入施工图,并对其进行详细的标注和说明。
)
4. 结论
建筑工地洗车槽是建筑施工中重要的设施之一,具有很大的实际意义。
本文档通过详细的说明和施工图对洗车槽进行了全面而精准的描述,有助于工程师设计和施工人员实施洗车槽。
同时,在设计和施工过程中需要遵守相关的法律和环保要求,确保洗车槽的安全和环保性能。
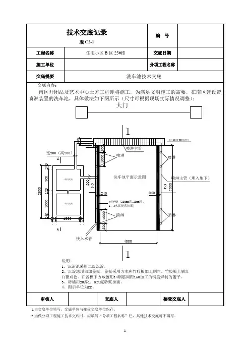
洗车槽施工方案编制:审核:审批:编制时间:目录一、编制依据 (2)二、工程概况 (2)三、洗车池设计 (2)四、洗车池系统施工 (2)五、洗车池系统管理 (3)六、注意事项 (3)七、附件 (3)一、编制依据1、公司相关规定2、《中建三局第二建设工程有限责任公司临建施工标准图集》二、工程概况中建·东湖明珠项目即将进入土方开挖施工阶段,为了达到安全文明施工的目的,保证运土车辆运土出现场后不污染周边的道路,需在施工现场设置洗车槽和沉淀池,并配置高压水枪,对进出车辆进行冲洗。
洗车槽位于2 号楼与3 号楼之间,距离大门30m。
具体位置见附件一。
三、洗车槽设计1、洗车槽构造:由下往上为:1)原土,2)200mm 厚C30 砼。
2、洗车槽完成后最低处低于路面300mm。
3、洗车槽向沉淀池方向排水坡度为3%。
4、具体详见附件二。
四、洗车池系统施工1、施工顺序2、施工方法1)沉淀池采用人工挖土,挖土完成后,打一层150mm 厚的底板,池壁用砖砌成240 厚,然后采用水泥砂浆批荡坑壁。
并洒水养护 3 天。
2)洗车槽先用“啄木鸟”对原来硬化的水泥砂浆路面进行处理,然后采用反铲挖土机挖至标高,回填碎石后,用挖土机压实,并浇筑面层混凝土。
混凝土养护七天。
五、洗车槽系统管理为了有效地利用洗车槽系统,达到运土车辆不污染道路的目的,应加强日常管理与维修。
1、在挖土过程中,安排1 人进行洗车池的日常维护与管理,并定期对洗车槽系统进行检查,有损坏的及时进行维修。
2、夜晚施工时,洗车槽应有足够的灯光照明,以确保运土车辆的行车安全及清洗质量。
3、需对排水沟及沉淀池内的积泥进行定期清理,以免沟内及池内的积泥过多,影响使用。
4、在洗车槽旁边设置专用水龙头,采用高压水枪清洗运土车轮子胎。
六、注意事项在施工过程中要按照业主的要求进行,对施工过程中产生的渣子等杂物,在施工完后要及时清理干净,并运至业主指定的地方。
七、附件1、附件一:洗车槽平面位置示意图2、附件二:洗车槽平面图及剖面图、沉淀池剖面图附件一:洗车槽平面位置示意图5附件二:洗车槽平面图及剖面图、沉淀池剖面图600冲洗槽1-1剖面图说明:1、洗车槽自下向上为:1)原土;2)100mm 厚C25砼;3)200mm 厚C30砼,配筋φ12@150双向。