工地洗车槽(附施工图)
- 格式:doc
- 大小:301.50 KB
- 文档页数:5
质量技术交底记录【1】
2022年3月23日;第1页共5页
2022年
3
月23日;第2页共5页
交底内容:
工程概况(施工图设计概括)
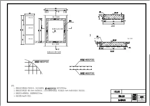
区位于车站中部生活区南侧,施工区大门位于施工区西侧,洗车槽设置在施工区大门处。
尺寸5700mm×7100mm 。
洗车槽槽底板厚200mm ,混凝土标号为C20,槽壁顶端设有5#角钢,并与槽壁浇筑到一起。
洗车槽排水明沟盖板用5#槽钢预制,宽400mm mm 。
具体施工图如下:
C
图1.洗车槽施工图
池:沉淀池尺寸为7320mm×1900mm×1400mm ,沉淀池墙壁采用18砖墙砌筑,沉淀池底部浇筑厚100mm 标号为C20的混凝土垫层间距设置两到隔墙,隔墙为18砖墙,隔墙上留500mm×500mm 洞口。
沉淀池盖板采用Φ16@200双向钢筋网作为格栅板。
具体施工
图2.沉淀池施工图
广州地铁
2022年3月23日;第3页共5页。
洗车槽施工方案编制:审核:审批:编制时间:目录一、编制依据 (2)二、工程概况 (2)三、洗车池设计 (2)四、洗车池系统施工 (2)五、洗车池系统管理 (3)六、注意事项 (3)七、附件 (3)一、编制依据1、公司相关规定2、《中建三局第二建设工程有限责任公司临建施工标准图集》二、工程概况中建·东湖明珠项目即将进入土方开挖施工阶段,为了达到安全文明施工的目的,保证运土车辆运土出现场后不污染周边的道路,需在施工现场设置洗车槽和沉淀池,并配置高压水枪,对进出车辆进行冲洗。
洗车槽位于2 号楼与3 号楼之间,距离大门30m。
具体位置见附件一。
三、洗车槽设计1、洗车槽构造:由下往上为:1)原土,2)200mm 厚C30 砼。
2、洗车槽完成后最低处低于路面300mm。
3、洗车槽向沉淀池方向排水坡度为3%。
4、具体详见附件二。
四、洗车池系统施工1、施工顺序2、施工方法1)沉淀池采用人工挖土,挖土完成后,打一层150mm 厚的底板,池壁用砖砌成240 厚,然后采用水泥砂浆批荡坑壁。
并洒水养护 3 天。
2)洗车槽先用“啄木鸟”对原来硬化的水泥砂浆路面进行处理,然后采用反铲挖土机挖至标高,回填碎石后,用挖土机压实,并浇筑面层混凝土。
混凝土养护七天。
五、洗车槽系统管理为了有效地利用洗车槽系统,达到运土车辆不污染道路的目的,应加强日常管理与维修。
1、在挖土过程中,安排1 人进行洗车池的日常维护与管理,并定期对洗车槽系统进行检查,有损坏的及时进行维修。
2、夜晚施工时,洗车槽应有足够的灯光照明,以确保运土车辆的行车安全及清洗质量。
3、需对排水沟及沉淀池内的积泥进行定期清理,以免沟内及池内的积泥过多,影响使用。
4、在洗车槽旁边设置专用水龙头,采用高压水枪清洗运土车轮子胎。
六、注意事项在施工过程中要按照业主的要求进行,对施工过程中产生的渣子等杂物,在施工完后要及时清理干净,并运至业主指定的地方。
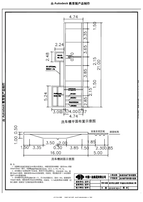
七、附件1、附件一:洗车槽平面位置示意图2、附件二:洗车槽平面图及剖面图、沉淀池剖面图附件一:洗车槽平面位置示意图5附件二:洗车槽平面图及剖面图、沉淀池剖面图600冲洗槽1-1剖面图说明:1、洗车槽自下向上为:1)原土;2)100mm 厚C25砼;3)200mm 厚C30砼,配筋φ12@150双向。
洗车槽施工方案一、编制说明(一)现场概况:本洗车槽为虎门港联想增益供应链华南总部基地项目(仓储物流一区)1、2#楼工程洗车槽,本洗车槽位于港口大道对虎门港联想增益供应链华南总部基地唯一的一个市政道路开口,基本位于整个场区中段,距我施工项目1、2#冷库大门约300米。
根据我公司文明施工现场管理规定,进出车辆与市政道路接口处必须配备自动冲洗设备和洗车槽。
经与建设监理方协商,一致选定在工地至港口大道入口处设置一个带有自动洗轮机设备的洗车槽。
具体位置和做法如下图:1、洗车槽位置选定图:3、 洗车槽详图4、 沉淀池详图UPVC100C15 5、自动洗轮机图片:(二)洗车槽设计概况:本洗车槽带部分入口道路设计为7米宽,混凝土路面厚度为现状路基上浇筑250厚混凝土路面,洗车槽长12米,自动洗轮机距洗车槽1.6米,自动洗轮机长2.45米,宽3.7米。
第一步施工路面带洗车槽为3.5米宽,总长60米。
待洗车槽可以使用以后,再施工另一幅路面宽3.5米,长约60米。
本洗车槽除了以上设备和设施以外,并不能将车轮子冲洗彻底。
再辅以人工高压枪冲洗机设备进行人工冲洗,洗槽附近设置一间2X3平方的设备房,并派专人负责对过往车辆进行冲洗。
二、施工准备1、人员准备:管理人员3人,砼工:7人,砌工3人,小工4人,木工2人,电工2人。
2、材料准备:混凝土C30:120方,C15:3方;240X115X53砖7000块,砂6m3,水泥5吨;彩布2块。
Ф20钢筋头靠桩,400根500长;水泥棚一个。
3、机具准备:插入式振动棒两台,平板振动器一台,电动或柴油磨光机一台,混凝土路面压纹机一台,马路切缝机一台,塑料抹子4把,铁板抹子4把、3把;模板、木枋若干、刮尺十根、泥桶、胶线若干、配电开关箱一个、3*10+4*1平方电缆60米,毛毯50张,过路PVC110管16米。
三、施工程序1、施工程序:土方开挖——模板支撑——混凝土路面及垫层浇筑——路面压纹——路面养护——砌砖工作——砌体粉水泥砂浆——路面切缝——砌体及路面养护——自动洗轮子机安装试运行——通车四、主要施工方法1、土方开挖,认真研究图指导土方开挖,入口处道路为回填路基,压实系数不大。
附件4建设工地硬地化、洗车槽、冲洗设备及沉淀池设置要求一、施工现场大门内外通道应当浇厚度不小于20厘米,强度不低于C15的混凝土进行硬底化。
二、工地内车辆出入口应当设置用混凝土挠捣的由宽30厘米、深40厘米沟槽围成宽3米、长5米的矩形洗车场地。
三、施工现场应设置高压冲洗水设备。
工地内洗车槽外侧应当设置管道泵(或潜水泵)和两支高压冲洗水枪。
管道泵功率4000瓦以上(或扬程应40米以上),潜水泵功率3000瓦以上(或扬程应40米以上),高压冲洗水枪应设置内口径32毫米以上的胶管,水枪钢管内口径20-25毫米,机动车辆必须在工地内冲洗干净方可行驶出工地。
四、工地内洗车槽外侧应当设置三级过滤沉淀池,工程施工产生的泥水应经沉淀过滤后,再利用冲洗车辆或者排入市政排水管网。
备注:设置要求详见范本。
建设工地硬地化、洗车槽、冲洗设备、沉淀池及工地施工现场照片(范本)建设单位:**公司施工单位:**公司工程名称:广州市轨道交通**号线工程【施工*标】(**站,**站-**站区间)拍摄注意事项:1.照片须显示有拍照日期;2.拍摄六张照片,分别显示:建设工地出口硬地化、洗车槽及两支高压冲洗水枪、洗车槽(近图)、管道泵(或潜水泵)、排水沟、沉淀池、工地施工现场;3.尽量拍到工地周边参照物(如建筑物、构筑物、景点等);4.建设工地出入口硬地化照片须拍到工地大门;5.拍摄高压冲洗水枪及洗车槽照片,须两名工作人员分别持水枪对洗车槽地面冲洗,照片可清晰显示出水量及水压。
图片1:建设工地出口硬地化图片2:洗车槽及两支高压冲洗水枪图片3:洗车槽图片4:管道泵(或潜水泵)图片5:排水沟、沉淀池图片6:工地施工现场。