梁计算书
- 格式:docx
- 大小:46.09 KB
- 文档页数:5
连续梁计算书:LXL-1============================================1 计算简图:2 计算条件:荷载条件:均布恒载 : 0.00kN/m_活载准永久值系数: 0.50均布活载 : 0.00kN/m_支座弯矩调幅系数: 100.0%梁容重 : 25.00kN/m3_计算时考虑梁自重: 考虑恒载分项系数: 1.20__活载分项系数 : 1.40配筋条件:抗震等级 : 非抗震__纵筋级别 : HRB400混凝土等级 : C30__箍筋级别 : HPB235配筋调整系数: 1.0__上部保护层厚度 : 25mm面积归并率 : 30.0%__下部保护层厚度 : 25mm最大裂缝限值: 0.400mm__挠度控制系数C : 200截面配筋方式: 单筋3 计算结果:单位说明:弯矩:kN.m_剪力:kN纵筋面积:mm2__箍筋面积:mm2/m裂缝:mm__挠度:mm----------------------------------------------------------------------- 梁号 1: 跨长 = 16500mm B × H = 600mm × 400mm左中右弯矩(+) : 0.001 245.025 0.001弯矩(-) : 0.000 0.000 -0.001剪力: 59.400 0.000 -59.400上部纵筋: 480 480 480下部纵筋: 480 2124 480箍筋: 981 981 981上纵实配: 4E14(616) 4E14(616) 4E14(616)下纵实配: 7E20(2199) 7E20(2199) 7E20(2199)箍筋实配: 4d8@200(1005) 4d8@200(1005) 4d8@200(1005)腰筋实配: ----(0) ----(0) ----(0)裂缝: 0.000 0.354 0.000挠度: 0.000 155.172 0.000最大裂缝:0.354mm<0.400mm最大挠度:155.172mm>82.500mm(16500/200) 超限----------------------------------------------------------------------- 4 所有简图:。
0.4m×1.0m梁模板计算书一、工程参数二、 新浇砼对模板侧压力标准值计算依据《砼结构工程施工规范GB50666-2011》,浇筑速度大于10m/h ,或砼坍落度大于180mm 时,新浇筑砼对模板的侧压力标准值,按下列公式计算:H F c γ==24×1=24 kN/m 2其中 γc -- 混凝土的重力密度,取24kN/m 3;H -- 混凝土侧压力计算位置处至新浇混凝土顶面总高度,取1m ;三、 梁侧模板面板验算面板采用木胶合板,厚度为12mm ,验算跨中最不利抗弯强度和挠度。
计算宽度取1000mm 。
面板的截面抵抗矩W= 1000×12×12/6=24000mm 3; 截面惯性矩I= 1000×12×12×12/12=144000mm 4; (一)强度验算1、面板按三跨连续板计算,其计算跨度取支承面板的次楞间距,L=0.20m 。
2、荷载计算新浇筑混凝土对模板的侧压力标准值G 4k =24kN/m 2,砼下料产生的水平荷载标准值Q2K=2kN/m2。
均布线荷载设计值为:q1=(1.2×24+1.4×2)×1=31.6KN/mq2=(1.35×24+1.4×0.7×2)×1=34.36KN/m取较大值q=34.36KN/m作为设计依据。
3、强度验算施工荷载为均布线荷载:M 1=0.1q1l2=0.1×34.36×0.202=0.14kN·m面板抗弯强度设计值f=15N/mm2;σ= Mmax=0.14×106=5.83N/mm2 < f=15N/mm2 W 24000面板强度满足要求!(二)挠度验算q = 1×24=24kN/m;面板最大容许挠度值: 200/400=0.5mm;面板弹性模量: E = 7000N/mm2;ν= 0.677ql4=0.677×24.000×2004=0.26mm < 0.5mm 100EI 100×7000×144000满足要求!四、梁侧模板次楞验算次楞采用40×90mm(宽度×高度)方木,间距:0.2m,截面抵抗矩W和截面惯性矩I分别为: 截面抵抗矩W =40×90×90/6=54000mm3;截面惯性矩I =40×90×90×90/12=2430000mm4;(一)强度验算1、次楞承受面板传递的荷载,按均布荷载作用下三跨连续梁计算,其计算跨度取主楞间距,L=0.5m。
梁(500x1100)模板(扣件式)计算书计算依据:1、《建筑施工模板安全技术规范》JGJ162-20082、《混凝土结构设计规范》GB50010-20103、《建筑结构荷载规范》GB 50009-20124、《钢结构设计规范》GB 50017-2003一、工程属性平面图立面图四、面板验算W=bh2/6=1000×15×15/6=37500mm3,I=bh3/12=1000×15×15×15/12=281250mm4q1=0.9max[1.2(G1k+ (G2k+G3k)×h)+1.4Q2k,1.35(G1k+(G2k+G3k)×h)+1.4×0.7Q2k]×b=0.9max[1.2×(0.1+(24+1.5)×1.1)+1.4×2,1.35×(0.1+(24+1.5)×1.1)+1.4×0.7×2]×1=35.966kN/mq1静=0.9×1.35×[G1k+(G2k+G3k)×h]×b=0.9×1.35×[0.1+(24+1.5)×1.1]×1=34.202kN/mq1活=0.9×1.4×0.7×Q2k×b=0.9×1.4×0.7×2×1=1.764kN/mq2=(G1k+ (G2k+G3k)×h)×b=[0.1+(24+1.5)×1.1]×1=28.15kN/m1、强度验算M max=0.1q1静L2+0.117q1活L2=0.1×34.202×0.1672+0.117×1.764×0.1672=0.101kN·mσ=M max/W=0.101×106/37500=2.686N/mm2≤[f]=15N/mm2满足要求!2、挠度验算νmax=0.677q2L4/(100EI)=0.677×28.15×166.6674/(100×10000×281250)=0.052mm≤[ν]=l/250=166.667/250=0.667mm满足要求!3、支座反力计算设计值(承载能力极限状态)R1=R4=0.4 q1静l +0.45 q1活l=0.4×34.202×0.167+0.45×1.764×0.167=2.412kN R2=R3=1.1 q1静l +1.2 q1活l=1.1×34.202×0.167+1.2×1.764×0.167=6.623kN 标准值(正常使用极限状态)R1'=R4'=0.4 q2l=0.4×28.15×0.167=1.877kNR2'=R3'=1.1 q2l=1.1×28.15×0.167=5.161kN五、小梁验算q1=max{2.412+0.9×1.35×[(0.3-0.1)×0.5/3+0.5×(1.1-0.15)]+0.9max[1.2×(0.5+(24+1.1)×0.15 )+1.4×2,1.35×(0.5+(24+1.1)×0.15)+1.4×0.7×2]×max[0.45-0.5/2,(0.9-0.45)-0.5/2]/2×1,6.623+0.9×1.35×(0.3-0.1)×0.5/3}=6.664kN/mq2=max[1.877+(0.3-0.1)×0.5/3+0.5×(1.1-0.15)+(0.5+(24+1.1)×0.15)×max[0.45-0.5/2,(0.9-0.45)-0.5/2]/2×1,5.161+(0.3-0.1)×0.5/3]=5.194kN/m1、抗弯验算M max=max[0.107q1l12,0.5q1l22]=max[0.107×6.664×0.92,0.5×6.664×0.32]=0.578kN·mσ=M max/W=0.578×106/49050=11.775N/mm2≤[f]=15.44N/mm2满足要求!2、抗剪验算V max=max[0.607q1l1,q1l2]=max[0.607×6.664×0.9,6.664×0.3]=3.64kNτmax=3V max/(2bh0)=3×3.64×1000/(2×38×88)=1.633N/mm2≤[τ]=1.78N/mm2满足要求!3、挠度验算ν1=0.632q2l14/(100EI)=0.632×5.194×9004/(100×9350×2158000)=1.067mm≤[ν]=l/250=900/250=3.6mmν2=q2l24/(8EI)=5.194×3004/(8×9350×2158000)=0.261mm≤[ν]=l/250=300/250=1.2mm满足要求!4、支座反力计算梁头处(即梁底支撑小梁悬挑段根部)承载能力极限状态R max=max[1.143q1l1,0.393q1l1+q1l2]=max[1.143×6.664×0.9,0.393×6.664×0.9+6.664×0.3]=6.855kN同理可得,梁底支撑小梁所受最大支座反力依次为R1=R4=3.85kN,R2=R3=6.855kN正常使用极限状态R'max=max[1.143q2l1,0.393q2l1+q2l2]=max[1.143×5.194×0.9,0.393×5.194×0.9+5.194×0.3]=5.343kN同理可得,梁底支撑小梁所受最大支座反力依次为R'1=R'4=3.299kN,R'2=R'3=5.343kN六、主梁验算1、抗弯验算主梁弯矩图(kN·m)σ=M max/W=0.731×106/4250=171.971N/mm2≤[f]=205N/mm2 满足要求!2、抗剪验算主梁剪力图(kN)V max=8.92kNτmax=2V max/A=2×8.92×1000/398=44.826N/mm2≤[τ]=125N/mm2满足要求!3、挠度验算主梁变形图(mm)νmax=0.195mm≤[ν]=l/250=450/250=1.8mm满足要求!4、扣件抗滑计算R=max[R1,R3]=1.785kN≤1×8=8kN单扣件在扭矩达到40~65N·m且无质量缺陷的情况下,单扣件能满足要求!同理可知,右侧立柱扣件受力R=1.785kN≤1×8=8kN单扣件在扭矩达到40~65N·m且无质量缺陷的情况下,单扣件能满足要求!七、立柱验算长细比满足要求!查表得,φ=0.5021、风荷载计算M w=0.92×1.4×ωk×l a×h2/10=0.92×1.4×0.22×0.9×1.82/10=0.073kN·m2、稳定性计算根据《建筑施工模板安全技术规范》公式5.2.5-14,荷载设计值q1有所不同:1)面板验算q1=0.9×[1.2×(0.1+(24+1.5)×1.1)+0.9×1.4×2]×1=32.67kN/m2)小梁验算q1=max{2.197+(0.3-0.1)×0.5/3+0.9×[1.2×(0.5+(24+1.1)×0.15)+0.9×1.4×1]×max[0.45-0.5/2,(0.9-0.45)-0.5/2]/2×1,6.027+(0.3-0.1)×0.5/3}=6.061kN/m同上四~六计算过程,可得:R1=1.671kN,R2=16.384kN,R3=1.671kN立柱最大受力N w=max[R1+N边1,R2,R3+N边2]+0.15×(4.25-1.1)+M w/l b=max[1.671+0.9×[1.2×(0.75+(24+1.1)×0.15)+0.9×1.4×1]×(0.9+0.45-0.5/2)/2×0.9,16.384,1.671+0.9×[1.2×(0.75+(24+1.1)×0.15)+0.9×1.4×1]×(0.9+0.9-0.45-0.5/2)/2×0.9]+0.472+ 0.073/0.9=16.938kNf=N/(φA)+M w/W=16937.574/(0.502×398)+0.073×106/4250=101.892N/mm2≤[f]=205N/mm2满足要求!八、可调托座验算2 30kN满足要求!。
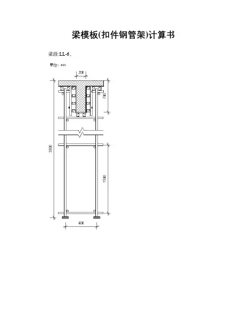
梁模板(扣件钢管架)计算书梁段:LL-6。
一、参数信息1.模板支撑及构造参数梁截面宽度B(m):0.20;梁截面高度D(m):0.70;混凝土板厚度(mm):120.00;立杆沿梁跨度方向间距L a(m):1.00;立杆上端伸出至模板支撑点长度a(m):0.10;立杆步距h(m):1.50;板底承重立杆横向间距或排距L b(m):1.50;梁支撑架搭设高度H(m):3.00;梁两侧立杆间距(m):0.60;承重架支撑形式:梁底支撑小楞垂直梁截面方向;梁底增加承重立杆根数:0;采用的钢管类型为Φ48×3.5;立杆承重连接方式:双扣件,考虑扣件质量及保养情况,取扣件抗滑承载力折减系数:0.75;2.荷载参数新浇混凝土重力密度(kN/m3):24.00;模板自重(kN/m2):0.50;钢筋自重(kN/m3):1.50;施工均布荷载标准值(kN/m2):2.0;新浇混凝土侧压力标准值(kN/m2):17.8;振捣混凝土对梁底模板荷载(kN/m2):2.0;振捣混凝土对梁侧模板荷载(kN/m2):4.0;3.材料参数木材品种:柏木;木材弹性模量E(N/mm2):9000.0;木材抗压强度设计值fc(N/mm):16.0;木材抗弯强度设计值fm(N/mm2):17.0;木材抗剪强度设计值fv(N/mm2):1.7;面板材质:胶合面板;面板厚度(mm):20.00;面板弹性模量E(N/mm2):6000.0;面板抗弯强度设计值fm(N/mm2):13.0;4.梁底模板参数梁底方木截面宽度b(mm):60.0;梁底方木截面高度h(mm):80.0;梁底纵向支撑根数:2;5.梁侧模板参数主楞间距(mm):500;次楞根数:4;主楞竖向支撑点数量:2;固定支撑水平间距(mm):500;竖向支撑点到梁底距离依次是:100mm,450mm;主楞材料:圆钢管;直径(mm):48.00;壁厚(mm):3.50;主楞合并根数:2;次楞材料:木方;宽度(mm):60.00;高度(mm):80.00;二、梁侧模板荷载计算按《施工手册》,新浇混凝土作用于模板的最大侧压力,按下列公式计算,并取其中的较小值:F=0.22γtβ1β2V1/2F=γH其中γ -- 混凝土的重力密度,取24.000kN/m3;t -- 新浇混凝土的初凝时间,取2.000h;T -- 混凝土的入模温度,取20.000℃;V -- 混凝土的浇筑速度,取1.500m/h;H -- 混凝土侧压力计算位置处至新浇混凝土顶面总高度,取0.750m;β1-- 外加剂影响修正系数,取1.200;β2-- 混凝土坍落度影响修正系数,取1.150。
跨度为9米时,DL1计算一、几何数据及计算参数构件编号: LL-1混凝土: C30 主筋: HRB400 箍筋: HPB300纵筋合力点边距as(mm): 35.00 指定主筋强度:无跨中弯矩调整系数: 1.00 支座弯矩调整系数: 1.00 (说明:弯矩调整系数只影响配筋)自动计算梁自重:是恒载系数: 1.20 活载系数: 1.40二、荷载数据荷载工况1 (恒载):三、内力及配筋1. 弯矩图2. 剪力图3. 截面内力及配筋0支座: 正弯矩 0.00 kN*m,负弯矩 160.04 kN*m,剪力106.69 kN,上钢筋: 4f16, 实际面积: 804.25 mm2, 计算面积: 771.59 mm2下钢筋: 3f12, 实际面积: 339.29 mm2, 计算面积: 325.00 mm2裂缝 0.43mm1跨中: 正弯矩 80.02 kN*m,负弯矩 0.00 kN*m,剪力106.69 kN,挠度 12.82mm(↓), 位置:跨中裂缝 0.16mm上钢筋: 3f12, 实际面积: 339.29 mm2, 计算面积: 325.00 mm2下钢筋: 4f12, 实际面积: 452.39 mm2, 计算面积: 372.80 mm2箍筋: d6@150, 实际面积: 376.99 mm2/m, 计算面积: 340.48 mm2/m 1支座: 正弯矩 0.00 kN*m, 位置: 9.00m负弯矩 160.04 kN*m, 位置: 9.00m剪力-106.69 kN, 位置: 9.00m上钢筋: 4f16, 实际面积: 804.25 mm2, 计算面积: 771.59 mm2下钢筋: 3f12, 实际面积: 339.29 mm2, 计算面积: 325.00 mm2裂缝 0.43mm实际配筋:4根20(三级钢)A S=1257mm2 >计算面积: 771.59 mm2跨度为7米其上有集中荷载时,DL1计算一、几何数据及计算参数构件编号: LL-1混凝土: C30 主筋: HRB400 箍筋: HPB300纵筋合力点边距as(mm): 35.00 指定主筋强度:无跨中弯矩调整系数: 1.00 支座弯矩调整系数: 1.00(说明:弯矩调整系数只影响配筋)自动计算梁自重:是恒载系数: 1.20 活载系数: 1.40二、荷载数据荷载工况1 (恒载):三、内力及配筋1. 弯矩图2. 剪力图3. 截面内力及配筋0支座: 正弯矩 0.00 kN*m,负弯矩 214.94 kN*m,剪力150.48 kN,上钢筋: 5f18, 实际面积: 1272.35 mm2, 计算面积: 1063.39 mm2下钢筋: 3f12, 实际面积: 339.29 mm2, 计算面积: 325.00 mm2裂缝 0.32mm1跨中: 正弯矩 166.53 kN*m,负弯矩 0.00 kN*m,剪力150.48 kN,挠度 10.45mm(↓), 位置:跨中裂缝 0.41mm上钢筋: 3f12, 实际面积: 339.29 mm2, 计算面积: 325.00 mm2下钢筋: 3f20, 实际面积: 942.48 mm2, 计算面积: 805.26 mm2箍筋: d6@150, 实际面积: 376.99 mm2/m, 计算面积: 340.48 mm2/m 1支座: 正弯矩 0.00 kN*m, 位置: 7.00m负弯矩 214.94 kN*m, 位置: 7.00m剪力-150.48 kN, 位置: 7.00m上钢筋: 5f18, 实际面积: 1272.35 mm2, 计算面积: 1063.39 mm2下钢筋: 3f12, 实际面积: 339.29 mm2, 计算面积: 325.00 mm2裂缝 0.32mm实际配筋:4根20(三级钢)A S=1257mm2 >计算面积: 1063.39 mm2跨度为7.35米时,DL计算一、几何数据及计算参数构件编号: LL-1混凝土: C30 主筋: HRB400 箍筋: HPB300纵筋合力点边距as(mm): 35.00 指定主筋强度:无跨中弯矩调整系数: 1.00 支座弯矩调整系数: 1.00(说明:弯矩调整系数只影响配筋)自动计算梁自重:是恒载系数: 1.20 活载系数: 1.40二、荷载数据荷载工况1 (恒载):三、内力及配筋1. 弯矩图2. 剪力图3. 截面内力及配筋0支座: 正弯矩 0.00 kN*m,负弯矩 95.09 kN*m,剪力81.51 kN,上钢筋: 3f16, 实际面积: 603.19 mm2, 计算面积: 488.80 mm2下钢筋: 3f12, 实际面积: 339.29 mm2, 计算面积: 300.00 mm2裂缝 0.29mm1跨中: 正弯矩 47.55 kN*m,负弯矩 0.00 kN*m,剪力-81.51 kN,挠度 5.06mm(↓), 位置:跨中裂缝 0.07mm上钢筋: 3f12, 实际面积: 339.29 mm2, 计算面积: 300.00 mm2下钢筋: 3f12, 实际面积: 339.29 mm2, 计算面积: 300.00 mm2箍筋: d6@150, 实际面积: 376.99 mm2/m, 计算面积: 340.48 mm2/m 1支座: 正弯矩 0.00 kN*m, 位置: 7.00m负弯矩 95.09 kN*m, 位置: 7.00m剪力-81.51 kN, 位置: 7.00m上钢筋: 3f16, 实际面积: 603.19 mm2, 计算面积: 488.80 mm2下钢筋: 3f12, 实际面积: 339.29 mm2, 计算面积: 300.00 mm2裂缝 0.29mm实际配筋:3根18(三级钢)A S=763mm2 >计算面积: 488.80 mm2。
一、参数信息1.模板支撑及构造参数梁截面宽度B(m):0.45;梁截面高度D(m):0.95;混凝土板厚度(mm):200.00;立杆沿梁跨度方向间距La(m):0.90;立杆上端伸出至模板支撑点长度a(m):0.10;立杆步距h(m):1.50;板底承重立杆横向间距或排距Lb(m):0.90;梁支撑架搭设高度H(m):3.60;梁两侧立杆间距(m):0.90;承重架支撑形式:梁底支撑小楞平行梁截面方向;梁底增加承重立杆根数:0;采用的钢管类型为Φ48×3;立杆承重连接方式:双扣件,考虑扣件质量及保养情况,取扣件抗滑承载力折减系数:0.80;2.荷载参数模板自重(kN/m2):0.35;钢筋自重(kN/m3):1.50;施工均布荷载标准值(kN/m2):2.5;新浇混凝土侧压力标准值(kN/m2):22.8;倾倒混凝土侧压力(kN/m2):4.0;振捣混凝土荷载标准值(kN/m2):2.0;3.材料参数木材品种:杉木;木材弹性模量E(N/mm2):9000.0;木材抗弯强度设计值fm(N/mm2):11.0;木材抗剪强度设计值fv(N/mm2):1.4;面板类型:胶合面板;面板弹性模量E(N/mm2):9500.0;面板抗弯强度设计值fm(N/mm2):13.0;4.梁底模板参数梁底方木截面宽度b(mm):60.0;梁底方木截面高度h(mm):80.0;梁底模板支撑的间距(mm):225.0;面板厚度(mm):18.0;5.梁侧模板参数主楞间距(mm):400;次楞根数:4;主楞竖向支撑点数量为:2;支撑点竖向间距为:150mm;穿梁螺栓水平间距(mm):400;穿梁螺栓直径(mm):M12;主楞龙骨材料:钢楞;截面类型为圆钢管48×3.0;主楞合并根数:2;次楞龙骨材料:木楞,宽度60mm,高度80mm;二、梁模板荷载标准值计算1.梁侧模板荷载强度验算要考虑新浇混凝土侧压力和倾倒混凝土时产生的荷载;挠度验算只考虑新浇混凝土侧压力。
梁(截面0.24m2)模板扣件钢管高支撑架计算书计算依据1《建筑施工扣件式钢管脚手架安全技术规范》(JGJ130-2011)。
计算参数:模板支架搭设高度为7.0m ,梁截面 B ×D=300mm ×800mm ,立杆的纵距(跨度方向) l=0.60m ,立杆的步距 h=1.20m , 梁底增加2道承重立杆。
面板厚度18mm ,剪切强度1.4N/mm 2,抗弯强度15.0N/mm 2,弹性模量6000.0N/mm 2。
木方50×100mm ,剪切强度1.3N/mm 2,抗弯强度13.0N/mm 2,弹性模量9500.0N/mm 2。
梁底支撑木方长度 0.60m 。
梁顶托采用100×100mm 木方。
梁底按照均匀布置承重杆2根计算。
模板自重0.50kN/m 2,混凝土钢筋自重25.50kN/m 3,施工活荷载4.50kN/m 2。
扣件计算折减系数取1.00。
图1 梁模板支撑架立面简图按照规范4.3.1条规定确定荷载组合分项系数如下:由可变荷载效应控制的组合S=1.2×(25.50×0.80+0.50)+1.40×2.00=27.880kN/m 2 由永久荷载效应控制的组合S=1.35×24.00×0.80+0.7×1.40×2.00=27.880kN/m 2由于永久荷载效应控制的组合S 最大,永久荷载分项系数取1.35,可变荷载分项系数取0.7700×1.40=0.98采用的钢管类型为48×3.0。
一、模板面板计算面板为受弯结构,需要验算其抗弯强度和刚度。
模板面板的按照三跨连续梁计算。
静荷载标准值 q1 = 25.500×0.800×0.300+0.500×0.300=6.270kN/m活荷载标准值 q2 = (2.000+2.500)×0.300=1.350kN/m面板的截面惯性矩I和截面抵抗矩W分别为:本算例中,截面惯性矩I和截面抵抗矩W分别为:W = 30.00×1.80×1.80/6 = 16.20cm3;I = 30.00×1.80×1.80×1.80/12 = 14.58cm4;(1)抗弯强度计算f = M / W < [f]其中 f ——面板的抗弯强度计算值(N/mm2);M ——面板的最大弯距(N.mm);W ——面板的净截面抵抗矩;[f] ——面板的抗弯强度设计值,取15.00N/mm2;M = 0.100ql2其中 q ——荷载设计值(kN/m);经计算得到 M = 0.100×(1.35×6.270+0.98×1.350)×0.200×0.200=0.039kN.m经计算得到面板抗弯强度计算值 f = 0.039×1000×1000/16200=2.417N/mm2面板的抗弯强度验算 f < [f],满足要求!(2)抗剪计算 [可以不计算]T = 3Q/2bh < [T]其中最大剪力 Q=0.600×(1.35×6.270+1.0×1.350)×0.200=1.175kN截面抗剪强度计算值 T=3×1175.0/(2×300.000×18.000)=0.326N/mm2截面抗剪强度设计值 [T]=1.40N/mm2抗剪强度验算 T < [T],满足要求!(3)挠度计算v = 0.677ql4 / 100EI < [v] = l / 250面板最大挠度计算值 v = 0.677×6.270×2004/(100×6000×145800)=0.078mm面板的最大挠度小于200.0/250,满足要求!二、梁底支撑木方的计算(一)梁底木方计算作用荷载包括梁与模板自重荷载,施工活荷载等。
铁路T梁模板计算书编制:校核:审核:目录一、前言 (3)二、侧压力计算 (4)三、侧模强度验算 (6)1、面板:采用6mm 热轧钢板................................................................................................................................................772、纵肋:、纵肋:[12[12......................................................................................................................................................................................................993、桁架受力计算:....................................................................................... (1313)一、前言本次力学计算是结合PKPM软件进行计算。
PKPM力学计算在计算过程中如果程序中数字变成红色字眼,即表示此处材料达不到受力要求,本计算书中将出现的图片是在使用PKPM计算过程中自动生成切的屏,请大家参照图片查看。
在计算桁架的稳定性时,由于PKPM软件会自动生成《配筋包络和钢结构应力比图》根据此图可以判断桁架稳定性是否符合要求,如果图片中的数字出现红色字眼的地方即表示该处达不到受力要求,反之则表示此桁架稳定性符合要求。
二、侧压力计算1、混凝土浇筑时侧压力的标准值:由式F c =0.22r c t o β1β2ν½取⑴r c =25KN/m ³⑵t o =5.71(h)新浇混凝土的初凝时间(h),可按实测确定。
梁模板(扣件式,梁板立柱共用)计算书计算依据:1、《建筑结构荷载规范》GB 50009-20122、《混凝土结构设计规范》GB50010-20103、《钢结构设计规范》GB 50017-20034、《建筑施工扣件式钢管模板支架技术规程》DB33/1035-2006一、工程概况二、模板支撑体系设计模板设计立面图模板设计平面图三、荷载设计模板及支架自重标准值模板(kN/m2) 0.3 次楞(kN/m) 0.01 主楞(kN/m) 0.033 支架(kN/m) 0.15 梁侧模板自重标准值(kN/m2) 0.5新浇筑混凝土自重标准值(kN/m3) 24钢筋自重标准值(kN/m3)梁 1.5板 1.1 施工人员及设备荷载标准值(kN/m2) 1振捣混凝土时产生的荷载标准值(kN/m2)2风荷载标准值ωk(kN/m2 ) 基本风压ω0(kN/m2)重现期10年一遇0.40.12城市杭州市风荷载高度变化系数μz地面粗糙度C类(有密集建筑群的城市市区)0.88模板支架顶部离建筑物地面的高度(m)25风荷载体型系数μs支架模板支架状况敞开式0.487风荷载作用方向沿模板支架横向作用与风荷载在同面内的计算单元立杆数n70模板 1 0.246四、模板验算模板类型胶合板模板厚度t(mm) 15模板抗弯强度设计值[f](N/mm2) 15 模板抗剪强度设计值[τ](N/mm2) 1.4模板弹性模量E(N/mm2) 6000取1.0m单位宽度计算。
计算简图如下:W=bh2/6=1000×152/6=37500mm3,I=bh3/12=1000×153/12=281250mm4q=γGΣq Gk+1.4Σq Qk=1.35×[0.3+(24+1.5)×0.8]×1.0+1.4×(1+2)×1.0=32.145kN/m q`=Σq Gk+Σq Qk=[0.3+(24+1.5)×0.8]×1.0+(1+2)×1.0=23.7kN/m1、抗弯验算弯矩图(kN·m)M max=0.068kN·mσmax=M max/W=0.068×106/37500=1.826N/mm2≤[f]=15N/mm2符合要求!2、抗剪验算剪力图(kN)Q max=2.764kNτmax=3Q max/(2bh)=3×2.764×103/(2×1000×15)=0.276N/mm2≤[τ]=1.4N/mm2 符合要求!3、挠度验算变形图(mm)νmax=0.037mm≤[ν]=min[L/150,10]=min[142/150,10]=0.947mm符合要求!4、支座反力R1=1.8kN,R2=5.175kN,R3=4.404kN,R4=4.597kN,R5=4.597kN,R6=4.404kN,R7=5.175kN ,R8=1.8kNR`1=1.327kN,R`2=3.816kN,R`3=3.247kN,R`4=3.389kN,R`5=3.389kN,R`6=3.247kN,R`7=3.816kN,R`8=1.327kN五、次楞验算次楞验算方式三等跨连续梁次楞材质类型方木次楞截面类型(mm) 70×45 次楞材料自重(kN/m) 0.01次楞抗弯强度设计值[f](N/mm2) 13 次楞抗剪强度设计值[τ](N/mm2) 1.3次楞截面抵抗矩W(cm3) 23.625 次楞截面惯性矩I(cm4) 53.156次楞弹性模量E(N/mm2) 90001G梁左侧楼板传递给次楞荷载:q2=γGΣN Gk+1.4ΣN Qk=[1.35×(0.3+(24+1.1)×0.45)+1.4×(1+2)]×(0.9-1/2)/2=3.971kN/m梁右侧楼板传递给次楞荷载:q3=γGΣN Gk+1.4ΣN Qk=[1.35×(0.3+(24+1.1)×0.45)+1.4×(1+2)]×(1.8-0.9-1/2)/2=3.971kN/m梁左侧模板传递给次楞的荷载:q4=γGΣN Gk=1.35×0.5×(0.8-0.45)=0.236kN/m 梁右侧模板传递给次楞的荷载:q5=γGΣN Gk=1.35×0.5×(0.8-0.45)=0.236kN/m q=max[1.8/1.0+0.013+3.971+0.236, 5.175/1.0+0.013,1.8/1.0+0.013+3.971+0.236]=6.021kN/mq`=max[1.327/1.0+0.01+2.919+0.175, 3.816/1.0+0.01,1.327/1.0+0.01+2.919+0.175]=4.431kN/m计算简图如下:1、强度验算M max=0.1ql2=0.1×6.021×0.42=0.096kN·mσmax=M max/W=0.096×106/23625=4.077N/mm2≤[f]=13N/mm2符合要求!2、抗剪验算Q max=0.6ql=0.6×6.021×0.4=1.445kNτmax=3Q max/(2bh0)=3×1.445×1000/(2×70×45)=0.688N/mm2τmax=0.688N/mm2≤[τ]=1.3N/mm2符合要求!3、挠度验算νmax=0.677q`l4/(100EI)=0.677×4.431×4004/(100×9000×531560)=0.161mmνmax=0.161mm≤[ν]=min[L/150,10]=min[400/150,10]=2.667mm符合要求!4、支座反力计算梁底次楞依次最大支座反力为:R1=1.1×(1.8+0.013+3.971+0.236)×0.4=2.649kNR2=1.1×(5.175+0.013)×0.4=2.283kNR3=1.1×(4.404+0.013)×0.4=1.944kNR4=1.1×(4.597+0.013)×0.4=2.029kNR5=1.1×(4.597+0.013)×0.4=2.029kNR6=1.1×(4.404+0.013)×0.4=1.944kNR7=1.1×(5.175+0.013)×0.4=2.283kNR8=1.1×(1.8+0.013+3.971+0.236)×0.4=2.649kNR`1=1.1×(1.327+0.01+2.919+0.175)×0.4=1.95kN R`2=1.1×(3.816+0.01)×0.4=1.683kNR`3=1.1×(3.247+0.01)×0.4=1.433kNR`4=1.1×(3.389+0.01)×0.4=1.496kNR`5=1.1×(3.389+0.01)×0.4=1.496kNR`6=1.1×(3.247+0.01)×0.4=1.433kNR`7=1.1×(3.816+0.01)×0.4=1.683kNR`8=1.1×(1.327+0.01+2.919+0.175)×0.4=1.95kN 六、主楞验算1G计算简图如下:1、强度验算主楞弯矩图(kN·m)M max=0.422kN·mσmax=M max/W=0.422×106/4490=94.02N/mm2≤[f]=205N/mm2 符合要求!2、抗剪验算主楞剪力图(kN)Q max=4.55kNτmax=2Q max/A=2×4.55×1000/424=21.462N/mm2τmax=21.462N/mm2≤[τ]=125N/mm2符合要求!3、挠度验算主楞变形图(mm)νmax=0.173mm≤[ν]=min[L/150,10]=min[600/150,10]=4mm符合要求!4、支座反力支座反力依次为R1=0.409kN,R2=8.536kN,R3=8.536kN,R4=0.409kN支座反力依次为R`1=0.301kN,R`2=6.291kN,R`3=6.291kN,R`4=0.301kN七、2号主楞验算2号主楞材质类型钢管2号主楞截面类型(mm) Ф48×3.22号主楞计算截面类型(mm) Ф48×32号主楞材料自重(kN/m) 0.0332号主楞截面面积(mm2) 424 2号主楞抗弯强度设计值[f](N/mm2) 2052号主楞抗剪强度设计值[τ](N/mm2) 205 2号主楞截面抵抗矩W(cm3) 4.492号主楞截面惯性矩I(cm4) 10.78 2号主楞弹性模量E(N/mm2) 206000主楞受力不均匀系数0.6 验算方式三等跨连续梁R=max[R2,R3]×0.6=max[8.536,8.536]×0.6=5.121kN主楞自重荷载:q1=γG q=1.35×0.033=0.045kN/m计算简图如下:1、强度验算2号主楞弯矩图(kN·m)M max=0.719kN·mσmax=M max/W=0.719×106/4490=160.154N/mm2≤[f]=205N/mm2 符合要求!2、抗剪验算2号主楞剪力图(kN)Q max=3.35kNτmax=2Q max/A=2×3.35×1000/424=15.803N/mm2τmax=15.803N/mm2≤[τ]=205N/mm2符合要求!3、挠度验算2号主楞变形图(mm)νmax=1.01mm≤[ν]=min[L/150,10]=min[800/150,10]=5.333mm符合要求!4、支座反力支座反力依次为R1=6.928kN,R2=11.05kN,R3=11.05kN,R4=6.928kN 八、纵向水平钢管验算R=max[R1,R4]=max[0.409,0.409]=0.409kN计算简图如下:1、强度验算纵向水平钢管弯矩图(kN·m)M max=0.059kN·mσmax=M max/W=0.059×106/4490=13.234N/mm2≤[f]=205N/mm2 符合要求!2、抗剪验算纵向水平钢管剪力图(kN)Q max=0.287kNτmax=2Q max/A=2×0.287×103/424=1.356N/mm2τmax=1.356N/mm2≤[τ]=125N/mm2符合要求!3、挠度验算纵向水平钢管变形图(mm)νmax=0.084mm≤[ν]=min[L/150,10]=min[800/150,10]=5.333mm符合要求!4、支座反力支座反力依次为R1=0.567kN,R2=0.919kN,R3=0.919kN,R4=0.567kN九、扣件抗滑验算是否考虑荷载叠合效应是扣件抗滑承载力设计值折减系数 1max1.05×R max=1.05×0.919=0.965kN,0.965kN≤1×8.0=8kN在扭矩达到40~65N·m且无质量缺陷的情况下,单扣件能满足要求!十、可调托座验算是否考虑荷载叠合效应是可调托座内2号主楞根数 2可调托座承载力设计值[f](kN) 30max1.05×R max=1.05×18.416=19.337kN,19.337kN≤30kN符合要求!十一、模板支架整体高宽比验算根据《建筑施工扣件式钢管模板支架技术规程》DB33/1035-2006第6.4.4:模板支架的高宽比不应大于5H/L a=5.4/40=0.135<5符合要求!十二、立杆验算h/l a'=1800/800=2.25,h/l b'=1800/800=2.25,查附录D,得k=1.163,μ=1.272 l0=max[kμh,h+2a]=max[1.163×1.272×1800,1800+2×50]=2663mmλ=l0/i=2663/15.9=168≤[λ]=210长细比符合要求!查《浙江省模板支架规程》附录C得φ=0.2512、风荷载验算1) 模板支架风荷载标准值计算l a=0.8m,h=1.8m,《浙江省模板支架规程》表4.2.7得φw=0.123因风荷载沿模板支架横向作用,所以b=l a=0.8m,b/h=0.8/1.8=0.444通过插入法求η,得η=0.966μzω0d2=0.88×0.4×0.0482=0.001,h/d=1.8/0.048=37.5通过插入法求μs1,得μs1=1.2因此μstw=φwμs1(1-ηn)/( 1-η)=0.123×1.2×(1-0.96670)/(1-0.966)=3.956μs=φwμstw=0.123×3.956=0.487ωk=0.7μzμsω0=0.7×0.88×0.487×0.4=0.12kN/m22) 整体侧向力标准值计算ωk=0.7μzμsω0=0.7×0.88×1×0.4=0.246kN/m23、稳定性验算K H=1/[1+0.005×(5.4-4)]=0.9931) 不组合风荷载时立杆从左到右受力为(N ut=γG∑N Gk+1.4∑N Qk):R1=0.919+[1.35×(0.3+(24+1.1)×0.45)×0.8+1.4×(1+2)×0.8]×(0.8/2+(0.9-1/2)/2)+1.35×0.15×5.4=11.542kNR2=18.42+1.35×0.15×(5.4-0.8)=19.351kNR3=18.42+1.35×0.15×(5.4-0.8)=19.351kNR4=0.919+[1.35×(0.3+(24+1.1)×0.45)×0.8+1.4×(1+2)×0.8]×(0.8/2+(1.8-0.9-1/2)/2) +1.35×0.15×5.4=11.542kNN ut=max[R1,R2,R3,R4]=max[11.542, 19.351, 19.351, 11.542]=19.351kN1.05N ut/(φAK H)=1.05×19.351×103/(0.251×424×0.993)=192.26N/mm2≤[f]=205N/mm2符合要求!2) 组合风荷载时立杆从左到右受力为(N ut=γG∑N Gk+0.85×1.4∑N Qk):R1=9.82kN, R2=18.961kN, R3=18.961kN, R4=9.82kNN ut=max[R1,R2,R3,R4]=max[9.82, 18.961, 18.961, 9.82]=18.961kNM w=0.85×1.4ωk l a h2/10=0.85×1.4×0.12×0.8×1.82/10=0.037kN·m1.05N ut/(φAK H)+M w/W=1.05×18.961×103/(0.251×424×0.993)+0.037×106/(4.49×103)=196.623N/mm2≤[f]=205N/ mm2符合要求!4、整体侧向力验算F k a aN1=3FH/[(m+1)L b]=3×0.134×5.4/[(34+1)×40]=0.002kNσ=(1.05N ut+N1)/(φAK H)=(1.05×18.961+0.002)×103/(0.251×424×0.993)=188.394N/mm2≤[f]=205N/mm2符合要求!。
8#楼300*900梁模板安全计算书一、计算依据1、《建筑施工模板安全技术规范》JGJ162-20082、《建筑施工承插型拉扣式钢管支架安全技术规程》DBJ15-98-20143、《混凝土结构设计规范》GB50010-20104、《建筑结构荷载规范》GB 50009-20125、《钢结构设计规范》GB 50017-20036、《建筑施工临时支撑结构技术规范》JGJ300-20137、《施工手册》(第五版)二、计算参数钢筋自重标准值G3k(kN/m^3) 1.5 施工人员及设备产生荷载标2.5准值Q1k(kN/m^2)简图剖面图1剖面图2三、面板验算根据规范规定面板可按简支跨计算,根据施工情况一般楼板面板均搁置在梁侧模板上,无悬挑端,故可按简支跨一种情况进行计算,取b=1m单位面板宽度为计算单元。
W=bh2/6=1000×152/6=37500 mm3,I=bh3/12= 1000×153/12=281250mm41、强度验算由可变荷载控制的组合:q1=0.9×{1.2[G1k+(G2k+G3k)h]b+1.4Q1k b}=0.9×(1.2×(0.5+(24+1.5)×950/1000)×1+1.4×2.5×1)=29.853kN/m由永久荷载控制的组合:q2=0.9×{1.35[G1k+(G2k+G3k)h]b+1.4×0.7Q1k b}=0.9×(1.35×(0.5+(24+1.5)×950/1000)×1+1.4×0.7×2.5×1)=32.246 kN/m取最不利组合得:q=max[q1,q2]= max(29.853,32.246)=32.246 kN/m面板简图M max= 0.267kN·m面板弯矩图σ=M max/W=0.267×106/37500=7.112N/mm2≤[f]=22 N/mm2满足要求2、挠度验算q k=(G1k+(G3k+G2k)×h)×b=(0.5+(24+1.5)×950/1000)×1=24.725kN/m面板挠度简图ν=0.107 mm≤[ν]=350/((3-1)×400)=0.438mm面板挠度图四、次梁验算计算简图:次梁简图由可变荷载控制的组合:q1=0.9×{1.2[G1k+(G2k+G3k)h]a+1.4Q1k a}=0.9×(1.2×(0.5+(24+1.5)×950/1000)×350/((3-1)×1000)+1.4×2.5×350/((3-1)×1000)) =5.224 kN/m由永久荷载控制的组合:q2=0.9×{1.35[G1k+(G2k+G3k)h]a+1.4×0.7Q1k a}=0.9×(1.35×(0.5+(24+1.5)×950/1000)×350/((3-1)×1000)+1.4×0.7×2.5×350/((3-1)×1000))=5.643 kN/m取最不利组合得:q=max[q1,q2]= max(5.224,5.643)=5.643 kN/m次梁弯矩图(kN·m)M max= 1.18kN·mσ=M max/W=1.18×106/(85.333×1000)=13.825N/mm2≤[f]=15N/mm2满足要求2、抗剪验算次梁剪力图(kN)V max=4.984kNτmax= Q max S/(Ib) =4.984×103×40×103/(341.333×104×5×10)=1.168N/mm2≤[τ]=2N/mm2满足要求3、挠度验算挠度验算荷载统计,q k=(G1k+(G3k+G2k)×h)×a=(0.5+(24+1.5)×950/1000)×350/((3-1)×1000)=4.327kN/m次梁挠度简图次梁变形图(mm)νmax=1.43mm≤[ν]=1.2×1000/400=3 mm满足要求五、主梁验算根据实际工况,梁下增加立杆根数为3,故可将主梁的验算力学模型简化为3-1=2跨梁计算。
梁板支撑体系计算书一、梁模板计算(以300×900框架梁为例)其传力系统为:现浇砼及施工等荷载、梁底模板、横方木、纵方木、水平钢管、承接层。
1、荷载(底板承受的标准荷载)1)静载模板自重:0.3×0.3=0.09KN/M钢筋砼自重:0.3×0.9×25=6.75KN/M钢筋自重:1.5×0.3×0.9=0.405 KN/M总重:0.09+6.75+0.405=7.25 KN/M2)活载振捣砼动载:2×0.3×0.9=0.54 KN/M3)竖向设计荷载q=18.7×1.2+0.9×1=23.34 KN/M2、内力计算梁静跨8.8m,因跨度校长,按四跨连梁简化计算,按最不利荷载布置,查《建筑施工手册》附录二附表2-14得:Km=-0.121;Kv=-0.62;Kw=0.967。
另模板底横方木间距在250,查《建筑施工手册》表2-54得18mm胶合模板设计强度Fv=1.2N/mm2,Fm=20N/mm2。
弹性模量:E=6500N/mm2。
受力简图如下:①强度验算:M max =2ql K v =-0.121×23.34×0.25²=-0.177KN/m需要截面抵抗矩:W n =mf M =2010177.06⨯=8850mm ³ 选用底板截面为500×18mm ,W n =61bh ²=61×500×18²=27000 mm ³> W n1 可满足要求。
②剪应力验算 V=ql K v =0.62×23.34×0.25=3.62KN剪应力=0.62N/ mm ²< f v =1.2N/mm 2满足要求③刚度验算刚度验算时按标准荷载,同时不考虑振动荷载,所以q=8.04KN/m挠度 ωA =EI ql k m 1004=3418500121650010025004.8967.0⨯⨯⨯⨯⨯⨯=0.45mm <[ω]=400l =400330=0.83mm 可以满足要求。
400X900梁计算书一、 工程参数二、 新浇砼对模板侧压力标准值计算依据《砼结构工程施工规范GB50666-2011》,浇筑速度大于10m/h ,或砼坍落度大于180mm 时,新浇筑砼对模板的侧压力标准值,按下列公式计算:H F c γ==24×0.9=21.6 kN/m 2其中 γc -- 混凝土的重力密度,取24kN/m 3;H -- 混凝土侧压力计算位置处至新浇混凝土顶面总高度,取0.9m ;三、梁侧模板面板验算面板采用木胶合板,厚度为15mm,验算跨中最不利抗弯强度和挠度。
计算宽度取1000mm。
面板的截面抵抗矩W= 1000×15×15/6=37500mm3;截面惯性矩I= 1000×15×15×15/12=281250mm4;(一)强度验算1、面板按三跨连续板计算,其计算跨度取支承面板的次楞间距,L=0.25m。
2、荷载计算新浇筑混凝土对模板的侧压力标准值G4k=21.6kN/m2,砼下料产生的水平荷载标准值Q2K=2kN/m2。
均布线荷载设计值为:q=0.9×(1.35×0.9×21.6+1.4×0.9×2)×1=25.888KN/m3、强度验算施工荷载为均布线荷载:M 1=0.1q1l2=0.1×25.888×0.252=0.16KN·m面板抗弯强度设计值f=12.5N/mm2;σ= Mmax=0.16×106=4.27N/mm2 < f=12.5N/mm2 W 37500面板强度满足要求!(二)挠度验算验算挠度时不考虑可变荷载值,仅考虑永久荷载标准值,故其作用效应的线荷载计算如下:q = 1×21.6=21.6KN/m;面板最大容许挠度值: 250/400=0.63mm;面板弹性模量: E = 4500N/mm2;ν= 0.677ql4=0.677×21.600×2504=0.45mm < 0.63mm 100EI 100×4500×281250满足要求!四、梁侧模板次楞验算次楞采用40×80mm(宽度×高度)方木,间距:0.25m,截面抵抗矩W和截面惯性矩I分别为:截面抵抗矩W =40×80×80/6=42667mm3;截面惯性矩I =40×80×80×80/12=1706667mm4;(一)强度验算1、次楞承受面板传递的荷载,按均布荷载作用下三跨连续梁计算,其计算跨度取主楞间距,L=0.45m。
500X1200梁计算书-CAL-FENGHAI.-(YICAI)-Company One1Ⅰ、500×1200主梁模板(扣件钢管架)计算书一、参数信息1.模板支撑及构造参数梁截面宽度 B(m):;梁截面高度 D(m):;混凝土板厚度(mm):120;立杆沿梁跨度方向间距La(m):;立杆上端伸出至模板支撑点长度a(m):;立杆步距h(m):;板底承重立杆横向间距或排距Lb(m):;梁支撑架搭设高度H(m):;梁两侧立杆间距(m):;承重架支撑形式:梁底支撑小楞垂直梁截面方向;梁底增加承重立杆根数:2;采用的钢管类型为Φ48×;立杆承重连接方式:双扣件,考虑扣件质量及保养情况,取扣件抗滑承载力折减系数:;2.荷载参数模板自重(kN/m2):;钢筋自重(kN/m3):;施工均布荷载标准值(kN/m2):;新浇混凝土侧压力标准值(kN/m2):;倾倒混凝土侧压力(kN/m2):;振捣混凝土荷载标准值(kN/m2):;3.材料参数木材品种:柏木;木材弹性模量E(N/mm2):;木材抗弯强度设计值fm(N/mm2):;木材抗剪强度设计值fv(N/mm2):;面板类型:胶合面板;面板弹性模量E(N/mm2):;面板抗弯强度设计值fm(N/mm2):;4.梁底模板参数梁底方木截面宽度b(mm):50;梁底方木截面高度h(mm):100;梁底纵向支撑根数:5;面板厚度(mm):16;5.梁侧模板参数主楞间距(mm):500;次楞根数:5;主楞竖向支撑点数量为:4;支撑点竖向间距为:150mm,150mm,150mm;穿梁螺栓水平间距(mm):500;穿梁螺栓直径(mm):M12;主楞龙骨材料:木楞,,宽度80mm,高度100mm;主楞合并根数:2;次楞龙骨材料:木楞,宽度50mm,高度100mm;次楞合并根数:2;二、梁模板荷载标准值计算1.梁侧模板荷载强度验算要考虑新浇混凝土侧压力和倾倒混凝土时产生的荷载;挠度验算只考虑新浇混凝土侧压力。
1.端横梁计算1.1横梁截面概述端横梁截面:梁高2.0m,顺桥向宽度3.0m(端横梁实际宽度1.5m,考虑一侧主梁的影响,计算断面向外延伸6h的长度,h为箱梁顶板厚度),边腹板坡度3:1。
1.2计算模型概述(1)荷载:编号荷载分类荷载横向取值1 恒载3488.4 kN2 沉降90.6 kN3 温度174.4 kN4 汽车3206.4 kN(2)计算模型:利用空间有限元软件MIDAS建立横向模型,各杆件采用平面梁单元模拟。
将经主梁整体计算求得的荷载施加在腹板处,在横梁支座处施加边界约束。
(3)钢筋布置:横梁顶底部设置单排直径28mm钢筋,顺桥向间距10cm,横梁截面套三圈共6肢箍筋,直径16mm,模型如下图所示:图1.2.1 横梁模型示意图(4)本计算按钢筋混凝土构件设计。
1.3主要计算结果及验算1.3.1承载力计算结果及验算(1)正截面抗弯强度验算图1.3.1 端横梁最大弯矩验算由上图可得最大弯矩出现现在支座及跨中处r0Mu=-4770kN.m<11270kN.m,正截面抗弯承载力满足要求。
(2)斜截面抗剪强度验算图1.3.2端横梁最大剪力验算由上图可得最大剪力出现现在支座处r0Vd=4891kN.m<8806kN.m,斜截面抗剪承载力满足要求。
1.3.2使用阶段裂缝宽度计算结果及验算(1)正截面抗裂验算图1.3.3端横梁顶缘裂缝验算图1.3.4端横梁底缘裂缝验算由上图可得横梁最大顶缘裂缝出现跨中Wtk=0.0803mm<0.20mm,最大底缘裂缝为0<0.20mm,使用阶段裂缝宽度满足要求。
由以上验算可得,12.5m端横梁设计符合规范要求。
梁实训计算书
任务分工
计算①号钢筋的长度,绑扎中完成箍筋的量取
计算②号钢筋的长度,绑扎中完成纵筋的绑扎
计算③号钢筋的长度,绑扎中完成纵筋的量取
计算④号钢筋的长度,绑扎中完成箍筋的绑扎
计算箍筋长度,绑扎中完成箍筋的制作
计算箍筋根数,绑扎中完成纵筋的制作
教学实践环节——框架梁钢筋绑扎
绑扎下图所示的梁,其中梁的集中标注为KL1,500*800,Φ10@200/400,2Φ22(HRB400);2Φ22(HRB400)。
柱的截面尺寸为600*600一级抗震等级,混凝土C25,环境类别为一类。
长度按照1:10的比例制作,箍筋间距按照1:5比例(10根)
长度按照1:10缩小箍筋间距比例1:5
纵筋
①〔6600+(0.4l abe+15d)〕×2=16139.2mm 实际每根806.9mm
②4(0.4l abe+15d+l n1/3)=11739.2mm 实际每根293.5mm
③2(l n-2×0.1l n)=10560mm 实际每根528mm
④〔6600+(0.4l abe+15d)〕×2=16139.2mm 实际每根806.9mm
箍筋
单根长度{(500-25×2)+(800-25×2)+80}×2=2560mm 实际每根256mm 根数{(1600÷200+1)}×2+{(7200-2×300-2×1600)÷400+1-2}=25根
实际用10根,加密区为4根,非加密区为2根
心得体会:
绑扎梁的纵筋要保持纵筋竖直,箍筋的间距要按要求,在绑扎相同间距箍筋时要保持箍筋间距的相同,绑扎上梁的箍筋的四角要与柱四角的纵筋绑扎牢固,箍筋要水平放置,箍筋的135弯角在柱中要错开设置,在绑扎时使用顺扣绑或反扣绑务必要绑紧,使箍筋不能滑动。
这次的绑扎梁的纵筋实训中使我对梁构造的要求有了深入的了解,对梁纵筋、箍筋的架设情况有了深层的认识,所学的理论内容在这次实践中得到了很好的运用,理论与实践的结合对我认识专业知识理解梁纵筋、梁箍筋的架设得到很大的帮助。
在我们组在梁纵筋绑扎中进展得还顺利,分工合作做得不错以至缩短了工期完成。
通过这次的箍筋制作掌握了下料长度计算、制作箍筋技术、检验箍筋等知识,使我们的专业技能得到了提高为以后工作奠定了良好的基础。
对于制作出的箍筋不合乎要求,可能是在定箍筋内环长度时与要求有偏差或者是在制作过程中碰移了定的箍筋内环长度标尺以至制作出来的箍筋或大或小,这种情况只要调整好定箍筋长度标尺即好。