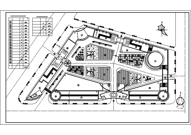
大洋绿地绿化园林总平面布置图(CAD)
- 格式:dwg
- 大小:646.88 KB
- 文档页数:1
小区住宅园林绿化工程施工总平面布置图
一、施工组织平面布置原则
根据施工场区实际情况,在总平面布置时,充分考虑下列因素:
1、充分利用施工空地、避开拟施工部位,减少二次性临建费用;
2、施工道路与总平面规划道路力求一致,减少施工道路费用,并能缩短总平面规划道路施工时间;
3、总平面布置必须实用、方便;
4、材料堆放便于施工取用且不景响现场环境和正常使用;
5、现场道路及临时设施布置
a、根据本工程的特点和场地情况,现场不能设立生活区食堂等临时设施,为了满足甲方的工期要求,我方将合理的布置现场的临时道路,在不影响现场施工前提下择地堆放工程材料和设备。
b、现场不设立生活区,我方会根据现场的施工进度及场
地条件,设置临时休息区,以满足工人用餐及需要。
二、施工组织平面布置图
施工组织平面布置图见附图。
园林绿化工程施工总平面图方案附表五:施工总平面图(一)、设备、人员动员周期本工程以优质工程为目标,质量要求优良,我公司将发挥多年的园林工程施工经验和组织能力,以高标准严格规范施工过程,充分做好前期准备工作,在接到中标通知后6日内完成设备、人员的动员工作,确保在接到监理工程师开工令后2日内开工。
(二)、人员进场计划为了有效管理,防止窝工待料现象,顺利完成工程,我公司拟采取以下人员进场管理措施:(1)工程前期:拟派8名工程技术工人进场,乘坐公司的管理车辆到工地现场,用中巴车运送40名工人到工地现场,对场地进行初步平整,清除石块、垃圾,这是缩短工期的关键。
(2)工程中期:主要进行全面的种植工作阶段,此阶段是施工质量关键时期,要求公司的全部技术力量到场,拟派经验丰富的绿化工人40名进场施工,以确保施工质量和工期。
(3)工程后期:工程进入修补阶段,这也是完善施工质量的关键阶段,人员拟减少30名,确保工程按期完成。
(4)工程收尾:工程进入清理场地工作,工作量较少,技术含量不高,只保留1个施工队伍(30人)。
(5)养护管理阶段:按1000平方米配备一个人,要求全场拟派一名中级专业技术员统一指挥管理。
(三)、设备进场计划我公司所有机械设备均采用本标段机械绝不外用的原则,所有机械设备一次性进场。
(四)、材料进场的质量及采购、运输方法植物的质量、采购、选择应按图纸要求,以保证成活率高、景观效果好的目的,选择生长良好,树形美观,树干挺拔,内膛丰满不偏冠,无病虫害的苗木。
在选择苗木时还要注意移出地与栽植地土壤相符,两地温差不大地区的苗木,以确保成活效果。
花灌木的运输在带足土球,包根运输,运输时要注意淋水、防晒、防风干,确保栽植后的成活率。
机械设备要根据工程需要按时达到施工现场。
低矮地被植物的铺设种植后及时喷水,保持湿度,保证成活率,长势良好。
按照材料需用量计划分批进场,开工前组织第一批材料进场。
道路绿化带园林绿化工程施工平面图一、施工总体布置本工程范围内项目内容较多,绿地分布大,距离长,工期紧。
所以在施工总体布置上分为几个施工区:种植工程施工区、土建施工区、园艺施工区、安装施工区、配套工程施工区,并组成相对应的施工队,其中种植施工队分为大树移植施工班和苗木种植施工班。
土建施工队为园林建筑施工班和市政设施施工班。
各个施工区、队、班及各工种在施工中相互配合,紧密合作,在项目部的统一协调下流水作业,种植、土建、安装、园艺和配套工程相互交替进行。
(附施工流程总框图)二、场地总平面布置施工现场平面布置按照建设部 15号令《建设工程施工现场管理规定》的要求和城市建设管理的有关法规,科学合理地安排施工现场,协调各专业管理和各项施工活动,控制污染,创造文明安全的施工环境和人流、物流、资金流、信息流畅通的施工秩序所进行的一系列管理工作。
(施工平面图布置见附件)总平面布置是否合理,直接关系到施工进度的快慢,安全文明施工的要求和体现我公司管理水平的高低,施工平面布置应考虑以下因素:1.确保场内道路畅通,满足施工对材料堆放场地的要求,尽量减少二次搬运和场内运输。
2.满足安全、文明施工对场地的要求,生活区和生产区要有明显的隔离。
3.符合施工现场山林防火要求和环境卫生的要求。
4.符合施工现场安全用电规范要求。
5.场地布置中,要避免土建、安装、装饰单位相互干扰,还要满足甲方的有关要求。
(一 )、临时道路:根据施工场地布置的要求,结合总平面布置,利用场地内待建道路先做路基垫层后作为施工通道,一方面可避免重复挖填路基所造成的人力财力浪费.另一方面也可以趁施工运输碾压路基,防止道路沉降。
在路侧设排水沟,出口处设洗车平台,并设沉淀池,废水经沉淀后排入指定管道。
(二 )、临时设施场地布置以保持现场总体环境,重点保护管线及周围环境、场内施工方便为原则。
食堂宿舍等生活设施拟定设在工地西北角。
因为这块地方是地坪,因此利用这块地方进行施工用房搭设,待整个绿地完成后再拆除施工用房,局部进行地坪施工。
园林景观工程施工总平面布置图及临时用地表1.1 总体设计1.1.1 办公设施现场自建办公设施,采用彩板钢架结构房屋,共10间。
包括项目经理办公室、项目总工室、财务室、资料室、综合办公室等。
1.1.2宿舍(1)宿舍内保证有必要的生活空间,室内净高 2.4m,通道宽度0.9m,每间宿舍居住最大人数为16人。
(2)宿舍设置可开启式窗户,保证室内通风良好,宿舍内的床铺为上下2层,。
1.1.3食堂(1)食堂设置独立的制作间、储藏间,门扇下方设0.2米的防鼠挡板。
(2)制作间灶台及其周边应贴瓷砖,所贴瓷砖高度不小于1.5米,制作间内还设置橱柜,地面做好硬化和防滑处理。
(3)食堂配备必要的排风设施和冷藏设施,室内配备上下水设施。
1.1.4厕所(1)厕所设置为水冲式,门窗齐全,通风良好,有照明设施。
(2)蹲位之间设置隔板,隔板高度不低于0.9米,厕所内贴瓷砖,高度不低于隔板。
(3)厕所按水冲式要求做化粪池,化粪池做抗渗处理。
1.1.5其他设施(1)生活区内设置相应数量的垃圾桶或箱。
(2)生活区场地做硬化处理,设置排水设施。
1.1.6防尘设施(1)施工现场出入口地面场地采用砼硬化。
工地出入口外两侧10m范围内用砼硬化,出入口处硬化路面不小于出口宽度。
其余的地面采用石子铺垫硬化地面,保证坚实平整。
(2)施工现场出入口内设置深、宽均在30cm以上、用钢筋网覆盖的明排水横沟,沟旁设置长×宽×深大于60×60×60cm以上的沉淀池,接通城市排水管网,门内侧设冲洗用水管。
1.2 施工现场总平面布置图1.3 临时用地表。
道路绿化带园林绿化工程施工平面图一、施工总体布置本工程范围内项目内容较多,绿地分布大,距离长,工期紧。
所以在施工总体布置上分为几个施工区:种植工程施工区、土建施工区、园艺施工区、安装施工区、配套工程施工区,并组成相对应的施工队,其中种植施工队分为大树移植施工班和苗木种植施工班。
土建施工队为园林建筑施工班和市政设施施工班。
各个施工区、队、班及各工种在施工中相互配合,紧密合作,在项目部的统一协调下流水作业,种植、土建、安装、园艺和配套工程相互交替进行。
(附施工流程总框图)二、场地总平面布置施工现场平面布置按照建设部 15号令《建设工程施工现场管理规定》的要求和城市建设管理的有关法规,科学合理地安排施工现场,协调各专业管理和各项施工活动,控制污染,创造文明安全的施工环境和人流、物流、资金流、信息流畅通的施工秩序所进行的一系列管理工作。
(施工平面图布置见附件)总平面布置是否合理,直接关系到施工进度的快慢,安全文明施工的要求和体现我公司管理水平的高低,施工平面布置应考虑以下因素:1.确保场内道路畅通,满足施工对材料堆放场地的要求,尽量减少二次搬运和场内运输。
2.满足安全、文明施工对场地的要求,生活区和生产区要有明显的隔离。
3.符合施工现场山林防火要求和环境卫生的要求。
4.符合施工现场安全用电规范要求。
5.场地布置中,要避免土建、安装、装饰单位相互干扰,还要满足甲方的有关要求。
(一 )、临时道路:根据施工场地布置的要求,结合总平面布置,利用场地内待建道路先做路基垫层后作为施工通道,一方面可避免重复挖填路基所造成的人力财力浪费.另一方面也可以趁施工运输碾压路基,防止道路沉降。
在路侧设排水沟,出口处设洗车平台,并设沉淀池,废水经沉淀后排入指定管道。
(二 )、临时设施场地布置以保持现场总体环境,重点保护管线及周围环境、场内施工方便为原则。
食堂宿舍等生活设施拟定设在工地西北角。
因为这块地方是地坪,因此利用这块地方进行施工用房搭设,待整个绿地完成后再拆除施工用房,局部进行地坪施工。