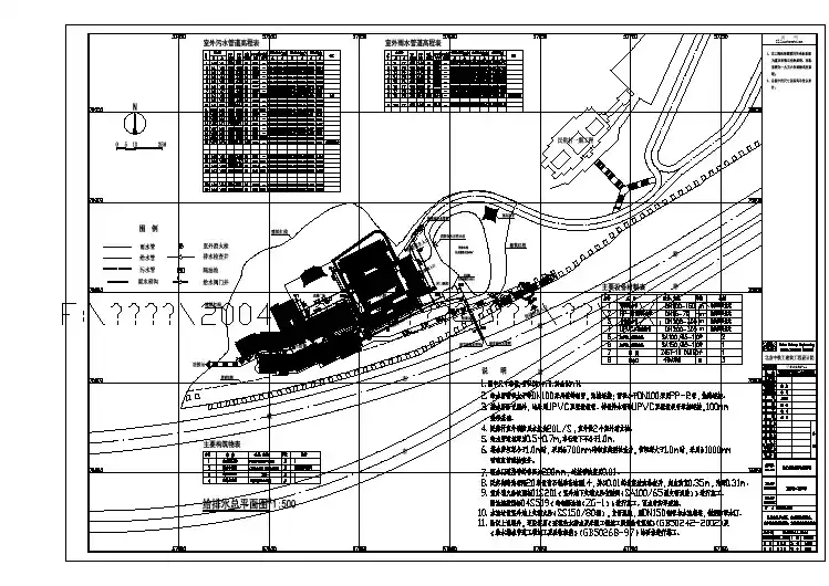
China Railway EngineeringZ设计证书号DESIGN LICENSE NO.签会地 址ADDRESS注 册 师REGISTERED ARCHITECT/ENGR.项目负责人CAPTAIN专业负责人CHIEF ENGINEER审 核EXAMINED BY校 对CHECKED BY设 计DESIGNED BY制 图DRAWN BYNO.6, 27 THEATER ROAD WEST CITY DISTRICT BEIJING CHINA总 图GEN. DRAWING建 筑ARCHITECTURE结 构STRUCTURE电 气ELECTRIC给排水PLUMBING暖 通HVACJGDSF图 别阶 段存 档 号电子存档号图 名比 例图 号日 期DRAWING TITLEOWNER建设单位PROJECT TITLE工程名称ITEM TITLE项目名称Design Institute (Beijing)给 排 水施 工 图S0011:5002005.1CREDI_SW05给排水总平面图、主要设备材料表、民俗村二期工程重庆高科集团有限公司排水检查井给水管污水管雨水管室外消火栓YC隔油池室外污水管道高程表室外雨水管道高程表说 明雨水暗沟F给水阀门井室外污水管道高程表、室外雨水管道高程表DN200DN150DN25接市政给水管网生化池接市政雨水管网接市政污水管网YC消防取水用消火栓DN300DN20DN50DN70DN20W1W2W3W4W5W6W7W8W9W10W11W12W13W14W15W16W17Y1Y2Y3Y4Y5Y6Y7Y10W18W19W20Y8Y9出户管1508.91100.090340.570序号( )管径(mm)起止管段井号坡度管长(m)000设计地面标高跌水高度管底坡降(m)(mm)起止(mm)起止管内底标高(mm)起止(m)管道埋深备注1W1340.420339.670339.5800.9000.8402W1W22004.39100.044340.420339.5800.840340.420340.420340.420339.5360.8843W2W32005.78100.058339.536339.4780.8840.9424W3W42003.70100.037340.420340.420339.441339.4780.9420.9795W4W52006.73100.067340.420340.1Байду номын сангаас0339.441339.3740.9790.7466W5W62002.72100.027340.120340.120339.374339.3470.7460.7737W6W72004.48100.045340.120340.120339.347339.3020.7730.8188W7W820020.10100.201340.120339.520338.902338.7011.2180.8190.400跌水 9W8W92004.85100.049339.520339.520339.520338.701338.6520.8190.86810W9隔油池20010.84100.108339.520339.520338.6520.100338.4440.8680.976112002.68100.027隔油池W10339.520339.520338.444338.4171.103W10W15122006.90100.069339.520339.520338.417338.3481.172W15W161320014.26100.143339.520339.520338.348338.2051.315W16W171420018.21100.182339.520338.205338.0231.497W17W181520013.56100.136339.520339.520338.023337.8871.633W18162002.00100.020生化池0.200339.520339.520337.8871.0761.1031.1721.3151.4971.633337.8671.613172002.00100.020生化池W19339.520339.520337.667337.6471.8131.833W19W201820024.93339.520333.520337.647332.5201.0001.8332065.136采用铸铁排水管出户管15013.43100.134340.570W1119340.1200.800339.770339.6360.48420W11W1221W12W1322W13W1020011.77100.1180.100340.120340.120339.536339.4180.5840.70220026.36100.264340.120340.120339.418339.1540.7020.96620016.36100.164340.120339.520339.054338.8901.0660.6300.100出户管1507.50100.075W1423340.1201.400339.6200.575341.020339.54524W14W1320015.75100.1580.100340.120340.120339.3870.5840.733339.5452009.69100.097340.120序号( )管径(mm)起止管段井号坡度管长(m)000设计地面标高跌水高度管底坡降(m)(mm)起止(mm)起止管内底标高(mm)起止(m)管道埋深备注1339.5200.697Y1Y2338.921.200338.8233003.36100.0342339.5200.731Y2Y3338.789339.520338.8230.6973003.47100.0353339.520Y3Y4339.520339.520338.7890.731338.7540.7663006.54100.0654Y4Y5339.520339.520338.754338.6890.7660.83130012.93100.1295Y5Y6339.520339.520338.6890.831338.5600.96030030.00100.3006Y6Y7339.520339.520338.560338.2600.9601.26030015.99100.1607Y7Y8339.520339.520338.260338.160338.1601.2601.3601.36030019.488Y8Y9333.5201.000332.5205.640290采用铸铁排水管339.52030014.60100.1469Y10Y7339.5200.800338.820338.6740.946DN100DN100雨水口连接管的管径为200mm,连接管坡度为0.01。排水管除说明外,均采用UPVC双壁波纹管。铸铁排水管和UPVC双壁波纹管承插连接,100mm给水管道埋深为0.5~0.7m,车行道下不小于1.0m.给水管管径大于等DN100采用镀锌钢管,沟槽连接;管径小于DN100采用PP-R管,热熔连接。 图中尺寸单位,管径以mm计.其余以m计.1.5.7.8.6.3.4.2.民俗街暗沟每隔20米设青石制雕花地漏1个,并以0.01的坡度坡向检查井,起点沟宽0.35m,沟深0.31m。排水管埋深小于1.0m时,采用Φ700mm砖砌直筒型检查井,管埋深大于1.0m时,采用Φ1000mm室外消火栓按国标01S201《室外地下式消火栓安装图(SA100/65型支管浅装)》进行施工。9.除以上说明外,还应遵照《建筑给水排水及采暖工程施工质量验收规范》(GB50242-2002)及垫砂基础。砖砌直筒型检查井。《给水排水管道工程施工及验收规范》(GB50268-97)的要求进行施工。日处理能力40m/d3隔油池按国标04S519《砖砌隔油池(ZG-1)》进行施工。雨水暗沟详建施。套套个单位铸铁给水管名 称雨水口室外地上式消火栓闸 阀UPVC双壁波纹管3541序号2SA100/65-1.0平箅式单箅Z45T-10 DN150DN200-300DN100-150型号、规格221按实际用量定按实际用量定数量mmFPP-R塑料给水管DN15-70按实际用量定m6Φ700/1000 圆形砖砌直筒型式Φ1200 井下操作立式阀门井3412序号室外水表井排水检查井给水阀门井名 称按实际用量定无旁通管无止回阀型号、规格座1座座单位1数量ZG-1砖砌隔油池1座枯水期蓄水量500m3民俗村室外消防用水量为20L/S,室外设2个室外消火栓。11.DN100DN100水池边设室外地上式消火栓(SS150/80型),支管浅装,用DN150钢管与水池相连,做消防取水口。10.套室外地上式消火栓SA150/80-1.017铸铁排水管DN200-300按实际用量定m8主要设备材料表主要构筑物表