20-5t桥式吊钩起重机设计
- 格式:doc
- 大小:2.46 MB
- 文档页数:70
优秀设计1概述1.1起重机械的用途及工作特点起重机械主要用于装卸和搬运物料,是现代化生产的重要设备。
它不仅广泛应用于工厂、矿山、港口、车站、建筑工地、电站等生产领域,而且也应用到人们的生活领域。
使用起重运输机械,能减轻工人劳动强度,降低装卸费用,减少货物的破损,提高劳动生产率,实现生产过程机械化和自动化不可缺少的机械设备。
起重机械是以间歇、重复工作方式,通过起重吊钩或其它吊具的起升、下降,或升降与运移重物的机械设备。
其工作特点具有周期性。
在每一工作循环中,它的主要机构作一次正向及反向运动,每次循环包括物品的装载及卸载,搬运物品的工作行程和卸载后的空钩回程,前后两次装载之间还有包括辅助准备时间在内的短暂停歇。
综合起重机械的工作特点,从安全技术角度分析,可概括如下:⑴起重机械通常具有庞大的结构和比较复杂的机构,能完成一个起升运动、一个或几个水平运动。
例如,桥式起重机能完成起升、大车运行和小车运行三个运动;门座起重机能完成起升、变幅、回转和大车运行四个运动。
作业过程中,常常是几个不同方向的运动同时操作,技术难度较大。
⑵所吊运的重物多种多样,载荷是变化的。
有的重物重达几百吨乃至上千吨,有的物体长达几十米,形状很不规则,还有散粒、热融状态、易燃易爆危险物品等,使吊运过程复杂而危险。
⑶大多数起重机械,需要在较大的范围内运行,有的要装设轨道和车轮(如塔吊、桥吊等),有的要装设轮胎或履带在地面上行走(如汽车吊、履带吊等),还有的需要在钢丝绳上行走(如客运、货运架空索道),活动空间较大,一旦造成事故影响的面积也较大。
⑷有些起重机械,需要直接载运人员在导轨、平台或钢丝绳上做升降运动(如电梯、升降平台等),其可靠性直接影响人身安全。
⑸暴露的、活动的零部件较多,且常与吊运作业人员直接接触(如吊钩、钢丝绳等),潜在许多偶发的危险因素。
⑹作业环境复杂。
从大型钢铁联合企业,到现代化港口、建筑工地、铁路枢纽、旅游胜地,都有起重机械在运行;职业场所常常会遇有高温、高压、易燃易爆、输电线路、强磁等危险因素,对设备和作业人员形成威胁。
20T桥式起重机小车机构设计2017届本科生毕业设计分类号:TH215题目: 20T桥式起重机小车机构设计作者姓名:阮吴祥学号: 2013080832学院:机械与电子工程学院专业:机械设计制造及其自动化指导教师姓名:杨权王松指导教师职称:助教工程师2017年5月摘要桥式起重机主要应用于大型加工企业,完成生产过程中的起重和吊装工作。
其中用于生产车间的桥式起重机,作业范围能扫过整个厂房的建筑面积,具有非常重要的和不可替代的作用。
本论文是对20T桥式起重机的小车进行总体设计。
本文首先对桥式起重机用途,工作特点,发展概况进行了介绍;然后设计了起重机的运行机构,最后设计并校核了起升机构的结构和许用应力,最优选择了电机,减速器,制动器和联轴器,验算了起升机构的起升时间。
并通过A u t o C A D进行小车各部分设计图的绘制得出合理的设计方案。
关键词:桥式起重机;起升机构;小车运行机构;校核目录绪论 01桥式起重机的用途 02桥式起重机的分类及工作特点 03桥式起重机及发展概述 (1)第1章小车运行机构设计 (4)1.1小车运行机构设计说明 (4)1.2小车运行机构设计简述 (4)1.3小车运行机构设计计算说明书 (5)第3章起升机构的设计 (18)2.1确定起升机构传动方案,选择滑轮组和吊钩组 (18)2.2吊钩组的选择计算 (18)2.3选择钢丝绳 (19)2.4确定滑轮主要尺寸 (20)2.5确定卷筒尺寸,并验算强度 (20)2.6电动机的选择 (24)2.7减速器的选择 (25)2.8校验电机的过载和发热 (26)2.9制动器的选择 (27)2.10联轴器的选择 (27)2.11起动时间的验算 (28)结论 (32)参考文献 (33)致谢 (34)绪论1 桥式起重机的用途桥式起重机是横架在高架轨道上平面运行的一种桥架式起重机,又称天车。
桥式起重机的的桥架沿着铺设在两侧高架上的轨道纵向往复运行,起重小车沿铺设在桥架上的轨道横向往复运行,设置在小车上的起升机构实现货物垂直升降。
5吨桥式起重机机械部分吊钩设计––––––––––––––––––––––––––––––––––设计说明书目录第一章绪论……………………………………………………………………1 学术背景及其理论…………………………………………………2 设计的实际意义……………………………………………………3 影响起升机构的主要因素…………………………………………4 起升机构的载荷特点………………………………………………第二章起升机构的确定…………………………………………………1 原始参数…………………………………………………………2 起升机构的确定……………………………………………………3 钢丝绳的选择………………………………………………………4卷筒尺寸的确定……………………………………………………4.1 卷筒直径………………………………………………………4.2 卷筒尺寸………………………………………………………4.3 卷筒壁厚………………………………………………………4.4 卷筒壁厚应力计算……………………………………………5 选择电动机…………………………………………………………6 选择减速器…………………………………………………………7 选择制动器…………………………………………………………8 计算启动时间………………………………………………………第三章吊钩组的设计计算………………………………………………1 吊钩设计原始参数………………………………………………2 吊钩设计步骤………………………………………………………2.1 吊钩形式的选择………………………………………………2.2 吊钩结构及制造方法的确定…………………………………2.3 钓钩主要尺寸的确定…………………………………………2.4 钩身强度的计算………………………………………………2.5 吊钩尾部螺纹直径的确定……………………………………2.6 确定吊钩螺纹尺寸……………………………………………2.7 选择推力轴承…………………………………………………2.8 吊钩横梁的计算………………………………………………2.9 吊钩拉班强度的计算…………………………………………第四章滑轮组的设计计算………………………………………………1 滑轮结构形式及相关尺寸的确定…………………………………2 滑轮直径的确定……………………………………………………3 吊钩组上滑轮轴的计算……………………………………………4 滑轮轴承的选择计算………………………………………………第五章主要零件加工工艺………………………………………………1 滑轮轴的加工工艺………………………………………………2 吊钩横梁的加工工艺……………………………………………3 滑轮的加工工艺…………………………………………………第一章绪论1. 学术背景及其理论起重机械是用来对物料进行其重、运输和安装作业的机械。
摘要桥式起重机是一种提高劳动生产率重要物品搬运设备,主要适应车间物品搬运、设备的安装与检修等用途。
我国生产的吊钩电动双梁桥式起重机额定起重范围为5~500t,一般10t以上,起重机有主、副两套起升机构;300t以上,起重机还有三套起升机构。
电动双梁起重机由桥架、小车运行机构、大车运行机构和电气设备构成。
在系统整体设计中采用传统布局的典型结构,小车运行机构采用集中驱动。
起升机构滑轮组采用双联滑轮组,重物在升降过程中没有水平移动,起升过程平稳,且钢丝绳的安装和更换容易。
相应的卷绕装置采用单层卷筒,有与钢丝绳接触面积大,单位压力低的优点。
在起升机构中还涉及到钢丝绳、减速器、联轴器、电动机和制动器的选择等。
小车运行机构中涉及小车轮压计算、小车车轮、小车轨道、减速器、联轴器、电动机和制动器的选择计算等。
在起重机控制方面,起升机构用主令控制器和磁力控制屏来实现控制,大、小车运行机构用凸轮控制器直接控制。
在控制系统设计中,主要针对起升机构、大车运行机构、小车运行机构电路控制系统的设计及保护电路的设计。
利用低压电气元件控制起重机,其使用寿命较长,适合车间恶劣环境。
关键词:桥式起重机起升机构小车运行机构电气控制系统ABSTRACTBridge crane is a significant increase labor productivity goods handling equipment, primarily to carry goods workshops, equipment installation and maintenance, and other purposes. China's production of electrical hook rated double-beam bridge crane lifting the range of 5 ~ 500 t, generally more than 10 t, cranes are the main, two sets of lifting300 t above, there are three sets of cranes lifting bodies.Two-electric beam from the bridge crane, the trolley running, traveling mechanism and electrical equipment constituted. The overall design of the system using the traditional layout of the typical structure and operation of institutions used car driven focus. Pulley group or agency from using double-pulley blocks, heavy objects in the process of lifting the level of no movement, or from the process smooth, and the installation and replacement of wire rope easily. Winding installations in the corresponding single reel, a large area of contact with the rope, the advantages of low pressure units. In lifting bodies also involves rope, reducer, couplings, electrical and brake the choice. Vehicles involved in the operation of institutions pressure on the wheels, car wheels, car track, reducer, couplings, electrical and brake the choice of calculation.In the crane control, or from the institutions with the main controller and magnetic control of the screen to achieve control, big and small car cam controller running institutions with direct control. In the control system design, mainly for lifting bodies, traveling mechanism, the car run institutions circuit design and control system for the protection of the circuit design. Use of low-voltage electrical components control crane, a longer service life for workshop harsh environment.Key words: bridge crane hoisting mechanism car agencies operating electric control system目录中文摘要 (Ⅰ)英文摘要 (Ⅱ)1绪论 (1)1.1桥式起重机简介 (1)1.2普通桥式起重机的主要组成部分 (1)1.2.2大车 (1)1.2.2小车 (1)1.2.3动力装置和控制系统 (1)1.3普通桥式起重机的运行方式 (1)2设计任务及参数 (2)2.1主要技术参数 (2)2.2起重机工作机构的级别 (2)3吊钩组的设计计算 (3)3.1原始参数 (3)3.2设计步骤 (3)4滑轮组的设计计算 (8)5钢丝绳的选择 (11)6卷筒的设计计算 (12)7钢丝绳在卷筒上的固定 (16)8起升机构的设计计算 (18)8.1原始参数 (18)8.2设计计算步骤 (18)9小车运行机构的设计计算 (26)9.1原始参数 (26)9.2设计计算步骤 (26)10起重机主梁的设计计算 (36)10.1桥式起重机主梁的设计计算主要涉及内容 (36)11安全装置的选择说明 (37)11.1主要安全装置的说明 (37)11.1.1走台与栏杆 (37)11.1.2排障板 (37)11.1.3小车行程限位开关 (37)11.1.4起升高度限位开关 (37)11.1.5大车行程限位开关 (37)11.1.6缓冲器与挡铁 (37)11.2小车缓冲器选择计算 (38)11.3大车缓冲器选择计算 (39)12 20吨桥式起重机的控制系统设计 (40)12.1控制电路设计分析 (40)12.1.1控制对象分析及控制元件的确定 (40)12.1.2控制系统的基本要求 (40)12.1.3电动机的工作状态分析 (41)12.1.4起重机的供电 (43)12.2起升机构控制电路的工作原理 (44)12.2.1起升机构控制电路的特点 (44)12.2.2起升机构电路的保护与联锁 (44)12.2.3起升机构电气工作控制原理 (45)12.3小车运行机构电路工作原理 (49)12.3.1小车运行机构电路工作特点 (49)12.3.2小车运行机构的电气控制原理 (50)12.4大车运行机构电路工作原理 (51)12.4.1大车运行机构电路工作特点 (51)12.4.2大车运行机构的电气控制原理 (52)12.5保护电路的工作原理 (53)12.5.1保护电路的组成 (53)结束语 (55)参考文献 (56)附录1触点状态表1.1起升机构主令控制器SA触点状态表1.2小车凸轮控制器SA1触点状态表1.3大车凸轮控制器SA2触点状态表附录2电气原理图2.1起升机构电气原理图2.2小车运行机构电气原理图2.3大车运行机构电气原理图2.4保护电路电气原理图2.5 20t桥式起重机总电气原理图1 绪论1.1桥式起重机的简介桥式起重机是生产车间、料场、电站厂房和仓库中为实现生产过程机械化和自动化,减轻体力劳动,提高劳动生产率的重要物品搬运设备。
205t桥式起重机控制线路设计目录摘要ABSTRACT第一章20/5t桥式起重机常用电器,电机及选用1.1 常用低压电器1.2 熔断器1.3 刀开关1.4 20/5t桥式起重机变频调速系统主要辅件选用1.5 20/5t桥式起重机变频调速系统电动机容量选用1.6 20/5t桥式起重机变频调速系统变频器容量选用1.7 电阻器和频敏变阻器1.8 电磁铁第二章凸轮控制器,变频器2.1 凸轮控制器2.2 变频器第三章20/5t桥式起重机电气控制线路3.1 桥式起重机的电气控制要求3.2 副钩凸轮控制器控制电路3.3保护电路结束语参考文献摘要桥式起重机是桥架在高架轨道上运行的一种桥架型起重机,又称天车。
桥式起重机的桥架沿铺设在两侧高架上的轨道纵向运行,起重小车沿铺设在桥架上的轨道横向运行,构成一矩形的工作范围,就可以充分利用桥架下面的空间吊运物料,不受地面设备的阻碍。
桥式起重机广泛地应用在室内外仓库、厂房、码头和露天贮料场等处。
桥式起重机可分为普通桥式起重机、简易粱桥式起重机和冶金专用桥式起重机三种。
普通桥式起重机一般由起重小车、桥架运行机构、桥架金属结构组成。
起重小车又由起升机构、小车运行机构和小车架三部分组成。
起升机构包括电动机、制动器、减速器、卷筒和滑轮组。
电动机通过减速器,带动卷筒转动,使钢丝绳绕上卷筒或从卷筒放下,以升降重物。
小车架是支托和安装起升机构和小车运行机构等部件的机架,通常为焊接结构。
起重机运行机构的驱动方式可分为两大类:一类为集中驱动,即用一台电动机带动长传动轴驱动两边的主动车轮;另一类为分别驱动、即两边的主动车轮各用一台电动机驱动。
中、小型桥式起重机较多采用制动器、减速器和电动机组合成一体的“三合一”驱动方式,大起重量的普通桥式起重机为便于安装和调整,驱动装置常采用万向联轴器。
起重机运行机构一般只用四个主动和从动车轮,如果起重量很大,常用增加车轮的办法来降低轮压。
当车轮超过四个时,必须采用铰接均衡车架装置,使起重机的载荷均匀地分布在各车轮上。
1 起升机构方案的选择起升机构一般由驱动装置(包括电动机、联轴器、制动器、减速器、卷筒等)、钢丝绳卷绕装置(包括钢丝绳、卷筒、定滑轮和动滑轮)、取物装置和安全保护装置组成。
电动机驱动是起升机构的主要驱动方式。
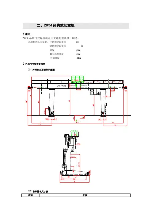
当起重量在50t以下时,常见的桥式起重机的起升机构布置方式如图1所示;1-电动机;2-联轴器;3-传动轴;4-制动器;5-减速器;6-卷筒;7-轴承座;8-平滑滑轮;9-钢丝绳;10-滑轮组;11-吊钩图1起升机构配置方案当起重量在20-30t时,常见的起升机构钢丝绳卷绕如图2所示。
采用双联滑轮组,滑轮组倍率m=4。
图2 钢丝绳卷绕示意图2 起升机构设计计算2.1 钢丝绳、滑轮和卷筒直径的确定 2.1.1 钢丝绳的计算与确定采用双联滑轮组,按t Q 20=,查取滑轮组倍率m =4; 钢丝绳所受最大拉力(载荷):N Z P S Q 2602098.08204000max =⨯==滑η(式1) 式中 Q P ——最大载荷,()()N g Q Q P G Q 2040001040020000=⨯+=+=其中 kg Q Q G 40002.0==;Z ——悬挂吊重的钢丝绳分支数,8422=⨯==m Z ; 滑η——滑轮组效率,滑η=0.98; 所选钢丝绳的直径应满足:max S C d ≥ (式2) 260201.0=mm 1.16=式中 d ——钢丝绳直径;m ax S ——钢丝绳最大静工作拉力;C ——选择系数,根据《起重机械》表2-4,()N mm C /1.0=; 取钢丝绳直径mm d 18=,捻向:交互捻;选择钢丝绳型号为: 178167019618ZS S NAT +⨯ 119 19968918/-T GB2.1.2 滑轮和卷筒直径的确定按钢丝绳中心来计算滑轮与卷筒的最小直径:hd D =min ; (式3) 式中 min D ——按钢丝绳中心计算的滑轮和卷筒的最小直径;d ——钢丝绳直径;h ——与机构工作级别和钢丝绳结构有关的系数,根据《机械设计手册》表8.1-61,对滑轮1h =20,对卷筒2h =18;根据(式1-3),得滑轮 mm d h D 36018202min =⨯==;取动滑轮直径(滑轮槽底直径)mm D 450=,平衡滑轮()D D 8.0~6.0=平。
目录摘要 (1)Abstract (2)第1章桥式起重机的分类和用途 (3)1.1桥式起重机的分类 (3)1.2桥式起重机的基本结构 (3)1.3桥式起重机的基本参数 (4)第2章小车起升机构计算 (7)2.1确定起升结构传动方案,选择滑轮组和吊钩组 (7)2.2选择钢丝绳 (7)2.3确定滑轮主要尺寸 (8)2.4确定卷筒尺寸并验算强度 (8)2.5选择电动机 (13)2.6验算电动机发热条件 (14)2.7选择标准减速器 (14)2.8验算起升速度和实际所需功率 (15)2.9校核减速器输出轴强度 (16)2.10选择制动器 (17)2.11选择联轴器 (18)2.12验算起动时间 (19)2.13验算制动时间 (21)2.14高速浮动轴计算 (21)第3章小车运行机构计算.............................................. 错误!未定义书签。
3.1确定机构传动方案............................................... 错误!未定义书签。
3.2选择车轮与轨道并验算其强度........................... 错误!未定义书签。
3.3运行阻力计算....................................................... 错误!未定义书签。
3.4选择电动机........................................................... 错误!未定义书签。
3.5验算电动机发热条件........................................... 错误!未定义书签。
3.6选择减速器........................................................... 错误!未定义书签。
内容摘要:桥式起重机主要由起升机构、小车运行机构、小车架和一些安全防 护措施组成,桥架横跨车间两侧的轨道上,小车在桥架横梁上的轨道上沿着横梁 运动,吊钩可到达车间的每一个角落,实现物体的提升和平移。
桥式起重机,具 有适应范围广,提升重量范围大,操作简单,安装拆卸方便等优点,广泛用于工 厂生产和港口物流搬运中。
机械部分主要由小车架、卷筒、吊钩、桥架横梁和操 纵室等构成。
桥式起重机可实现升降、平移两种工作模式,本设计中根据起重量、起升速 度和运行速度计算出电机功率、减速器、卷筒及各联轴器型号,并以此依据来选 型,综合考虑多方面的因素,根据桥式起重机工作环境设计了起重机的安全保护 措施等;同时各个系统有相应的安全保护措施来保证起重机安全可靠运行。
关键词:桥式起重机 车间 起重机 机械部分Abstract:Bridge crane hoisting mechanism, cars run by institutions, mainly composed of small frame and some security measures, on a bridge across the shop floor on either side of the track, trolley tracks along the beam movement on the bridge beams, crane to reach every corner of the shop, improving the realization of objects of peace moves. Bridge cranes, has to adapt to a wide range and large range of lifting weights, simple operation, easy installation and removal, and other advantages, widely used in factories and ports for transport. Mechanical parts, mainly by small frame, reel, hook, form of bridge beams and cabinets.Bridge type crane can implementation lifting, and pan two species work mode, this design in the under up weight, and up rose speed and run speed calculation out motor power, and reducer, and reel and the all coupling model, and to this pursuant to to selection, integrated considered many of factors, under bridge type crane work environment design has crane of security protection measures. At the same time the system has the appropriate security measures to ensure the safe and reliable operation of a crane.Key Words:Bridge type hoist shop crane The mechanical part目录内容摘要 (1)关 键 词 (1)Abstract (1)Key words (1)绪 论 (2)1.主起升机构计算 (3)1.1钢丝绳选择 (3)1.2卷筒设计 (3)1.3起升电机选择 (5)1.4减速器选择 (5)1.5制动器选择 (6)2. 副起升机构计算 (7)2.1钢丝绳选择 (7)2.2卷筒设计 (8)2.3起升电机选择 (9)2.4减速器选择 (9)2.5制动器选择 (10)3.小车运行机构计算 (10)3.1运行阻力 (11)3.2选择电动机 (12)3.3确定减速器 (12)4.大车运行机构计算 (13)4.1轮压计算 (13)4.2电机选择 (14)4.3确定减速器 (15)5.主梁设计 (16)5.1选择主梁 (16)5.2主梁载荷计算 (18)5.3起升载荷及其最大弯矩计算 (18)5.4水平惯性载荷 (20)5.5载荷组合与主梁应力计算 (20)5.6刚度计算 (22)6.端梁计算 (23)6.1中间断面系数计算 (23)6.2端部支承处断面系数计算 (24)7.整车总功率 (25)7.1整车电机功率之和 (25)总结语 (26)参考文献 (27)致谢 (28)绪 论桥式起重机是桥架在高架轨道上运行的一种桥架型起重机,又称天车。
5吨桥式起重机机械部分吊钩设计桥式起重机是一种常见的起重设备,主要由机械部分和电气部分组成。
在机械部分中,吊钩是起重机的核心部件之一,其设计对于起重机的性能至关重要。
下面将从吊钩的结构、选材、设计指标等方面详细阐述5吨桥式起重机机械部分吊钩的设计。
1.吊钩的结构设计吊钩的基本结构包括上吊环、横梁、横梁下作用装置和吊钩头。
其中,上吊环用于连接起重机的起吊机构,横梁通过纵梁连接上吊环,并承受起重物的重量,横梁下的作用装置包括吊钩和吊钩头,用于连接起重物体。
2.吊钩的选材吊钩的选材需要考虑起重物的重量、工作环境等因素。
通常,吊钩的材料选择高强度低合金钢或碳结构钢。
这些材料具有良好的强度和韧性,能够满足起重物的要求,并保证吊钩在工作过程中不发生断裂或变形。
3.吊钩的设计指标-起重能力:吊钩的起重能力是指吊钩可以承受的最大工作负荷。
对于5吨桥式起重机来说,吊钩的起重能力应为5吨。
-安全系数:吊钩的设计中需要考虑安全系数,以保证吊钩在工作过程中不发生意外事故。
通常,吊钩的安全系数为1.5-2.0,即吊钩的破断载荷应为起重能力的1.5-2.0倍。
-材料强度:吊钩的材料强度需要满足起重物的重量。
具体来说,材料的屈服强度应大于或等于起重物的重量,并应考虑一定的安全余量。
-结构稳定性:吊钩在工作状态下需要保持稳定,并能承受起重物的重力和动载荷。
因此,吊钩的结构应具有足够的刚度和承载能力。
4.吊钩的设计过程吊钩的设计过程包括确定吊钩的结构、选择合适的材料和计算吊钩的设计指标。
在设计过程中,需要进行强度、刚度和稳定性等方面的计算和分析,以保证吊钩的安全可靠性。
综上所述,5吨桥式起重机机械部分吊钩的设计需要考虑结构、选材、设计指标等方面的要求。
通过科学的设计和合理的选择,可以保证吊钩在工作过程中具有良好的性能和安全可靠性。
优秀设计1概述1.1起重机械的用途及工作特点起重机械主要用于装卸和搬运物料,是现代化生产的重要设备。
它不仅广泛应用于工厂、矿山、港口、车站、建筑工地、电站等生产领域,而且也应用到人们的生活领域。
使用起重运输机械,能减轻工人劳动强度,降低装卸费用,减少货物的破损,提高劳动生产率,实现生产过程机械化和自动化不可缺少的机械设备。
起重机械是以间歇、重复工作方式,通过起重吊钩或其它吊具的起升、下降,或升降与运移重物的机械设备。
其工作特点具有周期性。
在每一工作循环中,它的主要机构作一次正向及反向运动,每次循环包括物品的装载及卸载,搬运物品的工作行程和卸载后的空钩回程,前后两次装载之间还有包括辅助准备时间在内的短暂停歇。
综合起重机械的工作特点,从安全技术角度分析,可概括如下:⑴起重机械通常具有庞大的结构和比较复杂的机构,能完成一个起升运动、一个或几个水平运动。
例如,桥式起重机能完成起升、大车运行和小车运行三个运动;门座起重机能完成起升、变幅、回转和大车运行四个运动。
作业过程中,常常是几个不同方向的运动同时操作,技术难度较大。
⑵所吊运的重物多种多样,载荷是变化的。
有的重物重达几百吨乃至上千吨,有的物体长达几十米,形状很不规则,还有散粒、热融状态、易燃易爆危险物品等,使吊运过程复杂而危险。
⑶大多数起重机械,需要在较大的范围内运行,有的要装设轨道和车轮(如塔吊、桥吊等),有的要装设轮胎或履带在地面上行走(如汽车吊、履带吊等),还有的需要在钢丝绳上行走(如客运、货运架空索道),活动空间较大,一旦造成事故影响的面积也较大。
⑷有些起重机械,需要直接载运人员在导轨、平台或钢丝绳上做升降运动(如电梯、升降平台等),其可靠性直接影响人身安全。
⑸暴露的、活动的零部件较多,且常与吊运作业人员直接接触(如吊钩、钢丝绳等),潜在许多偶发的危险因素。
⑹作业环境复杂。
从大型钢铁联合企业,到现代化港口、建筑工地、铁路枢纽、旅游胜地,都有起重机械在运行;职业场所常常会遇有高温、高压、易燃易爆、输电线路、强磁等危险因素,对设备和作业人员形成威胁。
⑺作业中常常需要多人配合,共同进行一个操作,要求指挥、捆扎、驾驶等作业人员配合熟练、动作协调、互相照应,作业人员应有处理现场紧急情况的能力。
多个作业人员之间的密切配合,存在较大的难度。
上述诸多危险因素的存在,决定了起重伤害事故较多。
根据有关资料统计,我国每年起重伤害事故的因工死亡人数,占全部工企业因工死亡总人数的15%左右。
为了保证起重机械的安全运行,国家将它列为特种设备加以特殊管理,许多企业都把管好起重设备作为安全生产工作的关键环节。
1.2起重机械的发展简史随着社会生产力的发展和人民生活水平的提高,起重机械在不断地发展和完善。
这是因为,起重机械是物流机械化系统中的重要设备。
社会化大生产愈发展,人民生活水平愈提高,物料搬运和人员的输送量就愈大,起重机械的应用范围也就愈广泛。
根据人类生产和生活的需要,许多具有特殊用途的新型设备不断出现。
简单的起重运输装置的诞生,可以追溯到公元前5000~4000年的新石器时代末期。
那时,我国劳动人民已能利用这些简单装置开凿和搬运巨石,砌成石棺、石台,用以埋葬和纪念死者。
进入18世纪以后,英、法、德、美和匈牙利、意大利等国的机械工业发展较快。
特别是1765年,瓦特发明了蒸汽机,蒸汽机的应用大大推进了起重机械的发展。
19世纪下半叶,世界上出现了铁路,一些工业比较发达的国家为了满足港口、码头等地吊运物资和其它装备的需要,对起重机械提出了新的要求,以前那些用人力驱动、低效率、固定式的起重机已经达不到要求,取而代之的是轨道式起重机。
起重机械的兴盛发展,还是到电动机被应用于工业之后。
随着冶金业、煤炭业、采矿业、机械制造业和海港、内河码头装备的发展,起重机械的品种不断完善,其参数也大大扩展。
1880年,美国的奥的斯电梯公司,首先使用电动机作为动力装置安装在客梯上,从而出现了第一台电力驱动的电梯。
电力驱动装置的出现,同样是起重机发展史上的转折点。
目前,由于高性能金属材料的采用和材料加工能力的提高,起重机零部件的性能和寿命也不断提高,整机使用寿命一般规定在10年以上。
由于电动机、电气拉制技术和液压技术的发展,近年来起重机电力驱动的品质和自动化水平也大为提高。
起重机的发展趋势,将主要体现在如下几个方面:⑴大型化。
起重机的起重量将会越来越大,以满足特殊工程的需要。
⑵轻量化。
将广泛采用新材料和采用合理的结构形式,以减轻设备自重。
采用新的结构形式,主要是在梁、臂的截面形式上下功夫,如汽车起重机吊臂采用八角形截面或带有变形孔的伸缩臂;采用新的计算方法,如有限单元法与结构力学的有机结合,并配合使用电子计算机,精确计算应力值,避免设计中的“肥梁胖柱”;采用新材料,起重机结构件将越来越多地采用高强度钢,零部件逐渐采用塑料,现在滑轮已经采用铸尼龙材料,缓冲器采用了聚氨脂材料,国外还有采用碳纤维强化塑料(比重是钢的1/3~1/4,强度是钢的3~5倍)代替起重机部分结构的趋势。
⑶提高作业性能。
如提高运行速度,保证运行的准确性和平稳性。
⑷多样化。
将向同一设备可使用多种工作装置的要求发展,扩大使用范围。
⑸最优化。
将普遍采用先进的设计计算方法,并配用电子计算机进行优化设计,以选择合理的结构形式。
⑹通用化。
力求提高系列产品零部件的通用率。
⑺液压化。
主要体现在轮式起重机向全液压传动发展。
⑻安全化。
起重机械的可靠性、安全性和舒适性将成为评价设备的重要指标;特别是安全性,将作为评价先进性的头等重要指标。
例如,在安全防护装置的配备、司机室的合理布置、以及减少振动和噪音等方面,都将作为制造厂家设计原则的一部分。
1.3起重机械的组成和种类1.3.1起重机械的组成起重机械一般是由工作结构、金属结构、动力装置与控制系统三部分组成的。
⑴工作机构起重机械的工作机构一般可概括为起升、运行、回转和变幅四大机构。
起升机构是升降重物的机构。
它是起重机械最主要的机构,任何一种起重机械,都有这种机构。
有的起重机械不止一套起升机构,升降重物能力最大的起升机构叫主起升机构,除主起升机构以外的其它起升机构叫副起升机构。
运行机构是使起重机械或起重小车行走的机构。
回转机构是使起重机械的回转部分在水平面,绕回转中心线转动的机构。
变副机构是使起重机械臂架倾角变化,改变幅度的机构。
所谓幅度是指起重机械置于水平场地时,空载吊具垂直中心线至回转中心线之间的水平距离。
⑵金属结构金属结构是指起重机械的骨架,主要用来支承工作结构、承受自身的重力和作业时的外载荷。
⑶动力装置和控制系统动力装置是驱动起重机械运动的动力设备。
它在很大程度上决定了起重机械的性能和构造特点。
起重机械的控制系统包括操纵装置和安全装置。
各种机构的起动、调速、改向、制动和停止,都是通过操纵控制系统来实现的。
1.3.2起重机械的种类根据起重机械构造的特点、机构的多少和服务范围的不同,通常分为三类,即轻小起重设备、起重机、升降机。
⑴轻小起重设备轻小起重设备是体积小,结构紧凑,动作简单,作业范围投影以点、线为主的轻便起重机械,如千斤顶、手拉葫芦、绞车和电动葫芦等。
⑵起重机起重机是具有多种机构的起重机械,挂在它的取物(吊具)上的重物,在空间除了能作升降运动以外,还能作水平移动。
取物装置是指吊取、抓取、吸取、夹取、托取或用其它方法吊运货物的装置,如吊钩、抓斗、电磁吸盘(起重电磁铁)、夹钳等。
起重机按构造特点,分为桥架型起重机、臂架型起重机和缆索型起重机。
桥架型起重机是取物装置挂在可沿桥架运行的起重小车或运行式葫芦上的起重机。
其特点是具有一个桥架式的金属结构。
这类起重机依靠起升机构和在水平面内两个相互垂直方向移动的运行机构,能在长方形场地及其上空作业。
属于这类的起重机有桥式起重机、门式起重机和半门式起重机。
它们适合在车间、仓库、露天堆场等处作货物的装卸运输工作。
臂架型起重机是取物装置悬挂在臂架顶端或可沿臂架运行的起重小车上的起重机。
其特点是具有一个臂架式的金属结构。
这类起重机有起升机构,一般还有回转和变幅机构。
依靠这些机构的配合,能在圆形场地及其上空作业。
有些还有运行机构,这样就构成了常见的各种可以运行的臂架型起重机。
它们具有很好的机动性,特别适合作露天装卸及安装工作。
属于这类的起重机如塔式起重机、汽车起重机等。
缆索型起重机是挂有取物装置的起重小车沿架空承载索运行的起重机。
这类起重机常用于林场、山区、水库、矿山、水电站等处。
⑶升降机升降机是重物或取物装置只能沿导轨升降的起重机械,如电梯、高炉上料机、矿井升降机等。
1.4桥式起重机的分类和用途桥式起重机是在固定的跨间内吊装重物的机械设备,被广泛用于车间、仓库或露天场地。
桥式起重机的大梁横跨于跨间内一定高度的专用轨道上,可沿轨道在跨间的纵向移动,在外观上布置有起升装置,大多数起升装置采用起重小车,起升装置可沿大梁在跨间横向移动,外观像一条金属的桥梁,所以人们称它为桥式起重机。
桥式起重机俗称“天车”、“行车”。
1.4.1桥式起重机的分类桥式起重机的种类较多,可按不同方法分类。
根据吊具不同,可分为吊钩式起重机、抓斗式起重机、电磁吸盘式起重机。
根据用途不同,可分为通用桥式起重机、专用桥式起重机两大类。
专用桥式起重机的形式较多,主要有:锻造桥式起重机、铸造桥式起重机、冶金桥式起重机、电站桥式起重机、防爆桥式起重机、绝缘桥式起重机、挂梁桥式起重机、两用(三用)桥式起重机、大起升高度桥式起重机等。
按主梁结构形式可分为箱行结构桥式起重机、桁架结构桥式起重机、管行结构桥式起重机。
还有型钢(工字钢)和钢板制成的简单截面梁的起重机,称为梁式起重机。
梁式起重机多采用电动葫芦作为起重小车。
1.4.2桥式起重机的用途桥式起重机被广泛用于各类工业企业、港口车站、仓库、料场、水电站、图1-1栏杆走台端梁大车行走机构起重小车大梁火电站等场所。
不同类型的桥式起重机所适合吊装的重物不同,并根据不同的要求采用不同的吊具。
吊钩起重机吊装各种成件重物;抓斗起重机吊装各种散装物品,如煤、焦碳、砂、盐等;电磁起重机吊装导磁的金属材料,如型钢、钢板、废钢铁等。
两用起重机是为了提高生产效率,在一台小车上装有可换的吊钩和抓斗或者电磁盘和抓斗,但每一工作循环只能使用其中的一种取物装置;三用起重机即吊钩、抓斗、电磁铁3种可以互换的取物装置,可吊装成件、散粒物品或导磁的金属材料,但每次吊装重物时,只能使用其中的一种取物装置。
防爆起重机用于在有易爆、易燃介质的房间、库房等场所吊装成件重物,起重机上的电气设备和有关装置具有防爆特性,以免发生火花而爆炸。
绝缘起重机用于吊装电解车间的各种成件物品,起重机上有关部分具有可靠的绝缘装置,保证安全操作。
双小车起重机是在同一台主梁上设有两台相同的小车,用来搬运长件材料,各小车又可单独使用。