外墙保温施工技术交底
- 格式:doc
- 大小:84.50 KB
- 文档页数:5
外墙保温工程技术交底一、工程概述本次外墙保温工程位于XX小区X栋,总建造面积为XXX平方米。
工程的主要目的是提高建造的保温性能,降低能耗,改善居住环境。
本次工程采用XX保温系统,具体施工内容包括保温材料的选择、施工工艺、质量要求等。
二、保温材料的选择1. 外墙保温材料的种类本次工程选用的外墙保温材料为聚苯板,其具有优良的保温性能和抗压强度,适合于该项目的保温需求。
2. 保温材料的规格要求聚苯板的规格为XXX毫米厚度,XXX宽度,XXX长度。
保温材料应具有良好的耐候性、防水性和耐腐蚀性能,以确保长期的使用寿命。
3. 保温材料的施工要求在施工过程中,保温材料应严格按照厂家提供的施工要求进行安装。
保温材料的接缝处应采用专用胶水进行粘接,确保接缝处的密封性。
三、施工工艺1. 外墙保温系统的施工步骤a. 基层处理:清理墙面,确保墙面平整、无杂物。
b. 粘贴网格布:使用专用胶水将网格布粘贴在墙面上。
c. 打底层:在网格布上涂抹保温砂浆,形成均匀的底层。
d. 粘贴保温板:将预先切割好的保温板粘贴在底层上,注意保温板的平整度和垂直度。
e. 补强层处理:在保温板上涂抹一层补强砂浆,增加保温系统的稳定性。
f. 防护层处理:在补强层上涂抹防护砂浆,保护保温系统不受外界环境的伤害。
g. 饰面层处理:根据设计要求,在防护层上进行饰面处理,如涂料、瓷砖等。
2. 施工注意事项a. 施工人员应具备相关的施工技能和经验,严格按照施工工艺要求进行操作。
b. 施工现场应保持清洁,杂物应及时清理,确保施工质量。
c. 施工过程中应注意保温材料的保护,避免损坏。
d. 施工结束后,应进行验收,确保施工质量符合要求。
四、质量要求1. 外墙保温系统的保温性能要求外墙保温系统的导热系数应符合国家标准,保温效果良好,能够满足建造的保温需求。
2. 施工质量要求a. 外墙保温材料的粘接坚固,无空鼓、脱落现象。
b. 保温板的平整度和垂直度符合要求。
c. 补强层和防护层的厚度均匀,无明显的起鼓、裂缝等问题。
外立面保温施工技术交底1. 引言本文档旨在交底外立面保温施工所需的技术要求和方法。
外立面保温是建筑施工中的一个关键环节,正确的施工方法和技术可确保保温效果和建筑的耐久性。
2. 施工材料2.1 外墙保温材料:- 选用符合国家标准的外墙保温材料,确保材料的质量和安全性;- 根据设计要求选择适合的保温材料类型,如挤塑板、聚苯颗粒等;- 考虑保温材料的导热系数和吸水率,确保其保温效果和耐久性。
2.2 抗裂层:- 在外墙保温层与基层之间设置抗裂层,以减少保温层出现裂缝的可能性;- 抗裂层应选用高强度、耐久性好的材料,如玻纤网格布等;- 抗裂层的施工应符合相关的工艺要求,确保其与保温层的牢固粘结。
3. 施工方法3.1 基层处理:- 外墙基层应清理干净,去除油污、灰尘等杂物;- 如有明显裂缝,应进行修补;- 基层湿润处理,以提高保温材料的粘结性能。
3.2 保温层施工:- 根据设计要求和保温效果进行保温层的施工;- 定位标识保温层的厚度和位置,确保施工的准确性;- 保温层的施工应均匀、牢固,避免出现缺陷和空鼓。
3.3 抗裂层施工:- 在保温层施工完成后,立即进行抗裂层的施工;- 抗裂层应覆盖整个保温层,并确保与保温层的良好粘结;- 抗裂层的施工应按照相关的工艺要求进行,避免出现裂缝和开裂。
4. 安全措施4.1 施工人员应具备相应的资质和技术能力,了解施工操作规程和安全注意事项;4.2 在施工现场应设置明显的警示标识,并采取必要的安全防护措施;4.3 各种施工设备和工具应符合安全要求,定期检查和维护;4.4 施工现场应保持整洁,及时清理施工垃圾和杂物。
以上是外立面保温施工技术交底的主要内容,施工过程中应严格按照要求进行操作,确保施工质量和施工安全。
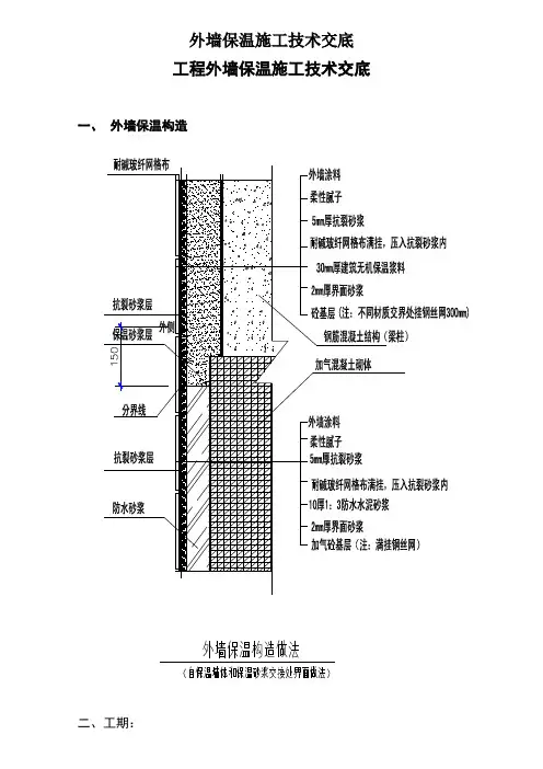
外墙保温施工技术交底工程外墙保温施工技术交底一、外墙保温构造二、工期:该工程的工程量较大、工期紧、每栋楼的吊篮一次安装完,因此必须从人力、物力、机具、材料方面得到保证,而且需要与相关专业工种同时进行施工,交叉作业较多。
作好进度打算的和谐配合工作,及时、合理地组织好平行流水作业和立体交叉作业,工期30天完成。
三、施工要点:〔一〕基层墙面处理要求:1、对墙体有松动、灰浆不饱满的拼缝及梁、板下的顶头缝,墙面坑凹不平处,砌块缺楞掉角用水泥胶浆填塞密实、平顺,将露出墙面的舌头灰刮净,凸出部位剔凿平坦。
2、结构施工时留下的对拉螺栓孔采纳1:2水泥砂浆加甲基纤维胶液填补密实。
3、砌体施工时留下的脚手眼孔洞、悬挑槽钢孔洞、剔凿的设备管线槽用掺入UEA微膨胀C20细石砼找补平坦,将抹灰基层处理完好。
4、外门窗框安装完毕、检查合格。
5、基层应平坦、坚实。
基层墙面必须清理洁净,使墙面无油渍、浮尘、脱模剂、污垢、风化物、霜,泥土等污染物或其它阻碍粘结的材料。
施工前一天用水将基层墙面充分潮湿;但基层墙体不能饱和面干,不能有明水,否那么会显现龟裂现象。
经冲洗的墙面必须晾干后,方可进行下道工序的施工。
〔二〕厚度操纵打巴1、厚度操纵巴的顶面应以保温层的设计厚度为准。
2、打顶部巴:距顶部400mm左右和在墙的两尽头阳角处同一水平面线上〔用透亮乳胶管找水平〕吊垂线,用水泥砂浆做上部标准块2个,标准块厚度同保温层厚度标高相同,标准块大小见方成宝塔形,在同一水平面线上做其他标准块,厚度由水平通线操纵,标准块间距为1.2~1.5m。
3、打其它巴:依次以顶部第一排标准块为依据,吊垂线确定下部对应的标准块厚度,间距为1.2~1.5m。
〔三〕界面砂浆施工1、配料调浆将YG甲基纤粉:水=1:150〔重量比〕,用搅拌器充分搅拌平均〔约搅拌10分钟〕制成甲基纤维胶液〔以下简称胶液〕。
胶液在兑好12小时〔现在胶液达到最正确粘结成效〕后,按比例在胶液中掺入水泥〔胶液重量比水泥重量为1:2〕充分搅拌成水泥胶浆〔界面砂浆〕。
外墙保温工程技术交底引言概述:外墙保温工程技术交底是指在施工前,施工单位与监理单位、设计单位等相关人员之间进行的一次技术交流和确认,旨在确保施工过程中的质量和安全。
本文将从材料选择、施工方法、施工注意事项、验收标准和常见问题等五个方面,详细阐述外墙保温工程技术交底的内容。
一、材料选择1.1 保温材料- 选择合适的保温材料,如聚苯板、聚氨酯板、挤塑板等,根据建造结构和保温要求进行合理搭配。
- 确保保温材料符合国家标准,具备良好的保温性能和耐久性。
1.2 粘结剂- 选择适合的粘结剂,如聚合物砂浆、水泥砂浆等,保证其与保温材料的粘结强度和耐候性。
- 注意粘结剂的配比和搅拌均匀,以确保施工质量。
1.3 防护层材料- 选择防护层材料,如涂料、石材等,保证其具备良好的防水、防火和耐候性能。
- 根据建造外墙的特点和要求,选择合适的防护层材料。
二、施工方法2.1 表面处理- 清除外墙表面的油污、灰尘等杂质,确保施工面干净。
- 对于老旧建造,需要进行外墙破损部份的修复和处理。
2.2 保温材料安装- 根据设计要求和施工方案,将保温材料按照规定的厚度和密度进行安装。
- 保温材料的安装要坚固,避免浮现空鼓和裂缝。
2.3 粘结剂涂抹- 采用均匀涂抹的方式,将粘结剂涂抹在保温材料表面。
- 确保粘结剂与保温材料充分粘结,避免浮现脱落和空鼓。
三、施工注意事项3.1 温度控制- 施工过程中要注意环境温度,避免在过高或者过低的温度下施工。
- 温度过高会影响粘结剂的固化速度,温度过低会影响施工质量。
3.2 施工工艺- 严格按照施工工艺进行施工,确保每一个环节的质量。
- 注意施工过程中的细节,如保温材料的对接、粘结剂的涂抹等。
3.3 安全措施- 施工现场要设置安全警示标志,确保工人的安全。
- 使用安全工具和设备,避免施工过程中发生意外。
四、验收标准4.1 外墙保温层厚度- 根据设计要求,测量外墙保温层的厚度,确保符合规定的标准。
4.2 保温材料粘结强度- 进行粘结强度测试,确保保温材料与墙体的粘结坚固。
外墙保温工程安全技术交底
外墙保温工程是建造工程中非常重要的一环,保温工程安全技术交底是确保工程质量和施工安全的关键环节。
本文将从外墙保温工程安全技术交底的重要性、内容要点、注意事项、施工流程和验收标准五个方面进行详细介绍。
一、外墙保温工程安全技术交底的重要性
1.1 确保施工人员了解工程要求和安全措施
1.2 防止施工过程中浮现安全事故
1.3 提高工程质量,确保保温效果和使用寿命
二、外墙保温工程安全技术交底的内容要点
2.1 工程设计要求和施工规范
2.2 施工过程中的安全注意事项和应急措施
2.3 施工材料的选用和质量要求
三、外墙保温工程安全技术交底的注意事项
3.1 交底内容要详细具体,不遗漏任何环节
3.2 施工单位要有专业技术人员进行交底
3.3 施工单位要建立健全安全管理制度,确保施工安全
四、外墙保温工程安全技术交底的施工流程
4.1 施工前准备工作,包括材料准备和施工区域清理
4.2 施工过程中的安全措施和质量监控
4.3 施工结束后的清理和验收工作
五、外墙保温工程安全技术交底的验收标准
5.1 外墙保温层厚度和材料质量符合设计要求
5.2 施工工艺符合规范要求,无明显质量缺陷
5.3 施工单位提供完整的施工记录和验收报告
综上所述,外墙保温工程安全技术交底是保障工程质量和施工安全的必要步骤,施工单位应严格按照规范要求进行交底,并加强对施工过程的监督和管理,确保工程质量和施工安全。
外墙外保温工程施工技术交底1、施工条件(1)基层墙体应按有关施工质量验收规范验收合格;屋面保温工程基层应按《屋面工程质量验收规范》验收合格。
(2)门窗框(或附框)及墙身上各种进户管线、管支架、预埋套管、连接件等按设计要求安装完毕并验收合格。
(3)基层墙体表面应平整无影响粘贴保温层的污染附着物,施工洞孔、脚手架眼等应按规范要求封堵,必要时应抹1:3水泥砂浆找平,加气混凝土砌块墙、陶粒混凝土砌块墙应于墙体表面刷界面剂后再抹砂浆。
抹灰找平层应经验收合格。
(4)外保温工程施工期间以及完工后24h内,基层及环境空气温度不应低于5℃o夏季应避免阳光暴晒,在5级以上大风天气和雨天不得施工。
(5)既有居住建筑进行节能改造时,应对基层进行处理,外墙饰面层需进行粘结强度检测,强度应Nl.OMPa。
基层如已出现脱层、空鼓等现象,应将原外墙饰面层铲除干净,重新抹灰,若被油污或浮灰污染须清理干净。
(6)外保温施工方案应报总监理工程师(或业主代表)签字认可方可施工。
2、施工要求(1)外保温使用所有材料均应达到国家规定的性能指标,并验收合格,特别是聚苯板的陈化期必须严格掌握。
(2)外墙保温施工应遵守相关的施工工艺流程。
(3)墙体外保温完工后,应做好成品保护。
A、防止施工污染;B、拆脚手架或升降外挂架时应注意保护墙面避免碰撞;C、严禁踩踏窗台线脚;D、及时修补损坏的墙面。
(4)外墙保温工程应由保温专业施工队或经过专门培训并考核合格的人员承担施工,需提供成套材料的厂家进行技术指导。
(5)施工时除应按图集要求操作外,尚应遵守现行国家和行业相关标准规范的规定。
3、实施施工流程要点(1)粘贴EPS板A、粘贴EPS板前应根据建筑平立面图及有关变更对每面墙进行EPS板排版设计,依据排版设计弹出垂直、水平控制线。
B、墙表面应洒水湿润,表面干后方可施工。
C、EPS板应错缝粘贴,错缝长度不小于1/3板长,阴阳角处应交错咬槎搭接。
D、自上而下粘贴EPS板时,可用8#铁丝制成U型钩,将上下层板同时拉住,作为下层板临时固定,防止下滑。
外墙保温施工技术交底一、工程概述本工程为_____,位于_____,建筑总面积为_____平方米。
外墙保温采用_____保温系统,以提高建筑物的保温性能,降低能源消耗。
二、施工准备1、材料准备(1)保温板:选用符合设计要求的_____保温板,规格为_____,密度不小于_____kg/m³,导热系数不大于_____W/(m·K)。
(2)粘结砂浆:采用专用的粘结砂浆,具有良好的粘结性能和耐水性能。
(3)抹面砂浆:选用抗裂抹面砂浆,具有优异的抗裂性能和防水性能。
(4)耐碱玻纤网格布:选用_____规格的耐碱玻纤网格布,单位面积质量不小于_____g/m²。
(5)锚固件:采用_____型锚固件,单个锚固件抗拉承载力不小于_____kN。
2、工具准备(1)电动搅拌器:用于搅拌粘结砂浆和抹面砂浆。
(2)抹子:包括抹面抹子、压边抹子等。
(3)靠尺:用于检查墙面平整度。
(4)美工刀:用于切割保温板。
(5)电钻:用于安装锚固件。
3、作业条件(1)外墙基层应平整、坚实、干燥,无油污、脱模剂等妨碍粘结的附着物。
基层平整度偏差不应大于 4mm。
(2)外墙门窗框应安装完毕,并通过验收。
(3)施工现场环境温度和基层表面温度在施工及施工后 24 小时内均不得低于 5℃,风力不大于 5 级。
三、施工工艺流程1、基层处理(1)清理基层表面的浮灰、油污、脱模剂等杂物。
(2)对基层表面进行凿毛处理,增加粘结力。
(3)用 2m 靠尺检查基层平整度,偏差大于 4mm 的部位应进行找平处理。
2、弹控制线(1)根据建筑立面设计和外墙保温技术要求,在墙面弹出外门窗水平、垂直控制线及伸缩缝线、装饰缝线等。
(2)在建筑物外墙阴阳角及其他必要处挂垂直基准线,每个楼层适当位置挂水平线,以控制保温板的垂直度和平整度。
3、配制粘结砂浆(1)将粘结砂浆按照产品说明书的要求进行配制,用电动搅拌器搅拌均匀,静置 5 分钟后再次搅拌。
外墙保温施工技术交底一、背景介绍随着人们生活水平的提高,建筑外墙保温已经成为建筑工程的标配。
外墙保温的意义在于既能降低建筑物的能耗,也能有效地改善室内环境和提升居住舒适度。
在进行外墙保温前,必须对施工技术进行交底,以确保施工效果达到预期效果。
二、施工技术交底的目的施工技术交底主要是为了保障施工质量,避免因操作不当而导致保温材料损坏、漏洞等施工缺陷。
同时也可以减少工程变更,提高施工效率。
三、施工技术交底的内容1.工程量验收及材料准备:在施工前,首先需要对工程量进行验收,并准备好所有必要的材料,以便保证施工进展顺利。
2.基层处理:基层应先清洁干净,将基层表面的浮浆、疑似松动的混凝土、杂物等清除干净,确保基层表面光滑平整。
3.梁柱搭设灰线:确定保温板的厚度后,从基层的四周向内依次搭设2cm宽的厚度与保温板厚度相同的灰线,并在梁柱上搭设竖线。
离地面高度为15cm ~ 20cm,风口位置要留意设置。
4.涂刷聚合物砂浆:在灰线上切出虚线,涂刷聚合物砂浆,厚度应控制在2-3mm左右。
5.铺贴保温材料:从底部向上逐渐铺贴保温板。
板缝要横向错开,上下板缝要交错设置,板缝一定要紧密对齐,不能翻边。
保温板的四周要留出裂缝缝隙,防止随季节变换引起的热胀冷缩交替下产生温差应力,使之产生裂缝。
6.预应力网格布埋设:在保温板上铺设预应力网格布,将其压入砂浆中,注意与墙面贴合的紧密程度。
7.锚固件安装:安装预留好锚固件,并调整其位置,使锚固件与预留孔紧密贴合。
8.砂浆抹灰:在保温层上涂刷一层聚合物砂浆,厚度约为2-3mm。
9.纹理处理及保温层除尘:在保温层的砂浆未干之前,打出保温层的表面花纹。
施工完成后,应及时对保温层上的尘土、泥浆等进行清理。
10.防水层施工:在砂浆抹灰层干燥后,可以进行防水层施工,同时要做好防腐、防蛀和防锈的处理。
四、施工技术交底的注意事项1.严格按照国家规定的施工标准进行工作。
2.施工时应特别注意安全。
施工中应穿戴好工作服、安全帽等个人防护用具。
外墙外保温技术交底附件一外墙外保温工程施工技术交底一,基层墙体验收1)系统施工前,应对基础墙进行检查,必须彻底清除基础墙表面的浮灰、油污、脱模剂、土壤和风化、钢筋铁丝头等影响粘结强度的材料,并修补墙体上的空鼓和无用孔洞。
2)对新建工程的结构墙体,应按照现行国家施工验收规范检测其平整度和垂直度,超出粘贴要求部分应剔凿或用水泥砂浆修补平整。
弹控制线、挂基准线3)根据建筑立面设计和外墙外保温技术要求,在外门窗洞口、伸缩缝、装饰线处弹设水平、垂直控制线。
4)建筑物外墙阴阳角及其它必要处挂出垂直基准控制线,每4层贴饼找平,弹出水平控制基线控制装饰线条水平。
5)在施工过程中,每层均应悬挂水平和垂直控制线,以控制保温板的垂直度和平整度整度。
注:基层处理、挂基准线、铁饼找平完成后,必须报监理人验收批准道工序施工。
二,材料要求所有材料在使用前必须经过我们的批准。
每批材料进场前必须报我方监理验收。
进入现场的XPS板厚度为65三,粘贴保温板要求:1)做法要求:标准层每四层150(厚)×450(宽)装饰线,线下增加1l厚镀锌铁皮托架。
托架固定用金属φ8膨胀螺栓,固定间距不小于450mm。
线条粘贴采用框点粘法。
2)标准绝缘板尺寸为1200mm×600mm。
工具可用于非标准尺寸和局部不规则刀现场切割,尺寸允许偏差为±1.5mm,大小面垂直。
整块墙面的边角处应用最小尺寸超过300mm的保温板。
3)将配制好的胶粘剂涂在绝缘板背面,粘贴方法为点粘法。
漆面保有效粘结面积在40%以上。
采用框点粘,如确有粘结不到的部位可采用点粘法。
点粘法:40%粘结面积:用抹子在每块保温板四周抹出宽8个直径200mm的圆点,并在窗口四周收口部位用胶浆封堵,不得留有空隙。
4)涂有胶粘剂的保温板应迅速粘贴在墙上,防止表面剥落,失去粘结效果。
不得在保温板拼缝处侧面涂胶粘剂。
底排保温板应在胶粘剂达到强度前做好临时支护,以防止下滑。
外墙外保温施工技术交底范本一:外墙外保温施工技术交底一、施工前准备阶段1.1 工程项目概况1.1.1 工程名称1.1.2 工程地址1.1.3 建设单位及连系方士1.2 设计文件审查1.2.1 总体设计方案1.2.2 施工图纸和说明书1.3 材料准备1.3.1 外墙外保温材料清单1.3.2 材料质量检查1.4 人员组织安排1.4.1 施工人员分工1.4.2 安全、质量责任人员二、基层处理2.1 基层清理2.1.1 清除基层浮尘、杂物 2.2 基层处理要求2.2.1 基层平整度要求2.2.2 基层强度要求2.3 基层检验2.3.1 拍打检验2.3.2 视觉检验2.4 基层处理方法2.4.1 砂浆找平2.4.2 胶粘剂涂刷三、外墙外保温系统3.1 保温材料安装3.1.1 检查保温板材质量 3.1.2 平整度、垂直度要求 3.2 固定件安装3.2.1 固定件类型及要求3.2.2 固定件安装方法3.3 碳纤维网格布安装3.3.1 布局要求3.3.2 粘结剂选择及施工3.4 中层保温材料安装3.4.1 粘结剂施工方法3.4.2 保温材料固定3.5 防护层施工3.5.1 防护层材料种类及要求 3.5.2 防护层施工方法3.6 饰面层施工3.6.1 饰面层种类及要求3.6.2 饰面层施工方法四、施工安全及质量控制4.1 安全技术措施4.1.1 安全教育培训4.1.2 施工现场安全措施4.2 施工质量控制4.2.1 材料质量检查4.2.2 施工记录与验收五、施工检查与验收5.1 施工节点检查5.1.1 基层处理节点检查5.1.2 保温材料安装节点检查 5.2 施工质量验收5.2.1 施工质量验收标准5.2.2 施工质量整改措施六、附件:本所涉及附件如下:附件一:工程项目概况表附件二:设计文件审查记录附件三:材料质量检查合格证明书 ……七、法律名词及注释:本所涉及的法律名词及注释如下:法律名词一:“施工基准面”是指基础部位的最高点,作为测量高程的基准面。
外墙保温施工技术交底一、工程概述本次外墙保温施工的工程为_____,建筑总面积为_____平方米,结构形式为_____。
外墙保温施工的范围包括建筑物的所有外墙表面,旨在提高建筑物的保温性能,降低能源消耗,同时增强建筑物的耐久性和美观度。
二、施工准备1、技术准备施工前,施工人员应熟悉施工图纸和技术规范,了解外墙保温的施工工艺和质量要求。
同时,应制定详细的施工方案,并向施工人员进行技术交底。
2、材料准备(1)保温材料:本次施工选用的保温材料为_____,其性能应符合国家相关标准和设计要求。
保温材料应具有良好的保温性能、防火性能和耐久性。
(2)粘结剂:选用_____粘结剂,其粘结强度应符合要求。
(3)锚固件:采用_____锚固件,其规格和数量应根据设计要求确定。
(4)抗裂砂浆:选用_____抗裂砂浆,具有良好的抗裂性能和柔韧性。
(5)耐碱玻纤网格布:选用_____耐碱玻纤网格布,其性能应符合相关标准。
3、施工机具准备(1)电动搅拌器:用于搅拌粘结剂和抗裂砂浆。
(2)抹子:用于涂抹粘结剂和抗裂砂浆。
(3)靠尺:用于检查墙面平整度。
(4)角磨机:用于打磨墙面。
(5)电钻:用于安装锚固件。
三、施工工艺流程1、基层处理(1)清理基层墙面:将墙面上的灰尘、油污、松散物等清理干净,确保墙面干净整洁。
(2)剔除凸出物:用角磨机或凿子剔除墙面上的凸出物,如混凝土接茬、砖砌体灰缝等。
(3)修补缺陷:对墙面的裂缝、孔洞等缺陷进行修补,确保墙面平整。
(4)墙面浇水湿润:在施工前一天,对墙面进行浇水湿润,使墙面充分吸收水分。
2、测量放线(1)根据设计要求,在墙面上弹出保温层的控制线,包括水平控制线和垂直控制线。
(2)在门窗洞口、阴阳角等部位弹出控制线,确保保温层的施工质量。
3、粘贴保温板(1)将粘结剂均匀涂抹在保温板背面,涂抹面积不应小于保温板面积的 40%。
(2)按照控制线,将保温板粘贴在墙面上,用靠尺检查平整度,用橡皮锤轻轻敲打保温板,使其粘贴牢固。
外墙保温施工技术交底一、工程概况1. 工程名称:[项目名称]2. 工程地点:[项目地址]3. 建筑面积:[建筑面积]4. 保温材料:[保温材料名称、规格、型号]5. 施工工艺:[施工工艺名称]二、施工准备1. 技术资料准备:施工图纸、设计说明、技术规范、质量标准、材料说明等。
保温材料的性能检测报告、产品合格证等。
2. 材料准备:保温材料、粘结剂、抹面砂浆、锚固件、网格布、防水材料等。
3. 工具准备:水泥搅拌机、电动工具、水平尺、线锤、刮板、抹刀、切割机等。
4. 劳动力准备:具有相关专业技术资质和操作经验的施工人员。
三、施工工艺1. 基层处理:清理基层表面,清除浮尘、油污、松散物等。
对基层进行修补,确保基层平整、牢固。
对基层进行处理,提高基层与保温层的粘结强度。
2. 保温层施工:粘贴法:在基层上涂抹粘结剂,均匀地铺贴保温板。
保温板之间要错缝排列,接缝处要涂抹粘结剂,并用网格布加强。
锚固法:在基层上钻孔,安装锚固件。
将保温板固定在锚固件上。
锚固件的间距、长度要符合设计要求。
抹灰法:在基层上涂抹一层水泥砂浆,作为保温层的底层。
在底层上铺设保温材料,并用网格布加强。
用水泥砂浆覆盖保温层,形成外饰面。
3. 防护层施工:采用防水材料对保温层进行保护,防止雨水渗入。
防护层的施工应符合设计要求,确保其耐久性和防水性能。
4. 外饰面施工:外饰面施工应符合设计要求,确保其美观性和耐久性。
常见的外饰面材料有:涂料、瓷砖、石材等。
四、质量控制1. 材料质量控制:保温材料、粘结剂等材料必须符合国家标准和设计要求。
严格进场验收,确保材料质量合格。
2. 施工工艺控制:施工人员必须严格按照施工工艺进行操作。
严格控制施工过程中的质量,确保施工质量符合规范要求。
3. 质量验收:每一工序完成后都要进行质量验收,确保施工质量合格。
验收合格后,才能进行下一道工序的施工。
五、安全措施1. 安全教育:对施工人员进行安全教育,提高安全意识。
2. 安全防护:施工人员必须戴安全帽、安全带等安全防护用品。
外墙保温施工技术交底外墙保温施工技术交底本旨在对外墙保温施工技术进行详细的交底,确保施工人员了解和掌握相关操作规范,提高施工质量和效率。
一、施工准备1.1 工程资料准备:收集施工图纸、施工方案、施工规范等相关资料。
1.2 设备准备:确认所需的设备包括保温材料切割机、喷涂设备、搅拌器等是否齐备。
1.3 材料准备:检查外墙保温材料的种类、规格、质量标准是否符合要求,并进行验收。
二、施工流程2.1 清理施工区域:清除外墙表面的灰尘、杂物等,确保施工基准面干净平整。
2.2 防护措施:对窗户、门等开口部位进行防护措施,以防止保温材料的污染和损坏。
2.3 泡沫板安装:根据设计要求和施工图纸进行泡沫板的安装,确保板材平直并牢固固定。
2.4 粘结剂涂刷:使用适量的粘结剂均匀涂刷在泡沫板表面,形成粘结层,增加保温材料的粘结力。
2.5 玻璃钢网格布安装:将玻璃钢网格布平铺在粘结层上,注意边角部位的处理,确保整体紧密连接。
2.6 粘结层补强:在玻璃钢网格布上再次涂刷一层粘结剂,加强粘结层的粘结效果。
2.7 装饰保护层施工:根据设计要求进行装饰保护层的涂刷和喷涂,保护外墙保温系统。
三、施工注意事项3.1 施工质量控制:在施工过程中,严格按照设计要求进行操作,保证施工质量。
3.2 安全措施:施工人员必须佩戴个人防护用品,注意安全操作,避免发生事故。
3.3 施工环境要求:施工现场必须保持整洁有序,材料应妥善堆放,不得影响周围环境和居民生活。
3.4 施工记录:每天施工结束后,记录施工情况、材料使用情况等重要信息。
四、质量验收4.1 施工完工检查:对施工质量进行全面检查,确保符合设计要求和规范要求。
4.2 技术交底:对施工完成情况进行技术交底,告知使用和维护注意事项。
4.3 维修和保养:告知关于维修和保养外墙保温系统的方法和要求。
附件:1. 外墙保温施工图纸2. 外墙保温施工方案3. 外墙保温施工规范法律名词及注释:1. 建筑工程施工规范:指建筑施工行业相关法律法规和标准文件中对建筑工程施工的规范要求。
外墙保温施工技术交底技术交底全套一、施工准备:1人员准备:各分项工程施工人员必须配备专业人员施工。
2材料及机具准备:各分项工程材料及机具准备按照图纸设计要求准备,材料及机具进场必须堆放在指定位置。
二、工艺流程:基层清理一抄平放线一配粘砂浆一粘贴挤塑板一配制抹面砂浆一挂网罩面抹灰一验收三、施工要点:1弹控制线:根据建筑立面设计和外墙外保温技术要求,在墙面弹出外门窗水平、垂直控制线及伸缩线,装饰线等。
2挂基准线:在建筑外墙大角(阴角、阳角)及其他必要处挂垂直基准线,每个楼层适当位置挂水平线,以控制挤塑板的垂直度和平整度。
3对结构墙体基面必须清理干净,并检验墙面平整度和垂直度。
用2m靠尺检查,最大偏差不大于5mm,超差部分应剔除或用水泥砂浆修未呼整。
砌块墙面必须用水泥砂浆找平。
用钢刷及抹子用力刷掉结构层上的油污、浮尘和粉化物并用扫帚扫干净,以确保砂浆与基层的粘接强度。
4安装挤塑板:(1)粘贴翻包网格布:凡在粘贴的挤塑板侧边外露出(如伸缩缝、建筑沉降缝等缝线两侧、门窗口处),都应预贴250mm宽翻包网格布。
门窗洞口部位做法详见下图。
在墙面上洞口四角处紧挨角部斜向45。
粘贴200mm×400mm 的网格布,防止应力集中,导致角部开裂。
(2)挤塑板切割标准面尺寸为1200χ60Omm.非标准板按实际需要的尺寸加工,尺寸允许偏差为±2mm,大小面垂直。
整块墙面的边角处应用最小尺寸超过300mm的挤塑板。
挤塑板的拼缝不得正好留在门窗口的四角边。
(3)配置聚合物胶粘剂搅拌单组份聚合物粘结砂浆(以下简称粘结砂浆),水与聚合物粘结砂浆粉料的重量比为1:5o机械搅拌均匀,应将配好的粘结剂静置10分钟,再搅拌一次即可使用。
一次配制量以45分钟内用完为宜。
(4)粘贴挤塑板粘贴挤塑板排版按照水平顺序排列,上下错缝粘接,板与板挤紧,碰头缝处不抹粘接剂。
阴阳角应做错茬处理。
每贴完一块板,应及时清除挤出的粘接剂,不得有碰头灰。
外墙保温工程技术交底引言概述:外墙保温工程技术交底是指在施工前,施工单位与监理单位、设计单位等相关方进行技术交底,确保外墙保温工程施工过程中各项技术要求得到满足,从而保证工程质量。
下面将从外墙保温工程技术交底的准备工作、施工工艺、质量控制、安全措施以及验收标准等五个方面进行详细阐述。
一、准备工作1.1 确定外墙保温材料:根据设计要求和环境条件,选择适合的外墙保温材料,如挤塑板、聚苯板等。
1.2 制定施工方案:根据设计方案和实际情况,制定详细的外墙保温施工方案,包括施工工艺、施工顺序等。
1.3 确定施工人员:确定施工人员的资质和数量,保证施工人员具备相关技术和经验。
二、施工工艺2.1 基层处理:对外墙基层进行清洁、修补和处理,确保基层平整、牢固。
2.2 材料铺设:按照施工方案,将外墙保温材料进行粘贴、固定,确保材料的平整、紧密。
2.3 防护措施:在施工过程中,采取必要的防护措施,避免外墙保温材料受到损坏或污染。
三、质量控制3.1 施工过程监控:对外墙保温工程施工过程进行监控,及时发现和解决施工中的质量问题。
3.2 质量检测:对外墙保温工程施工完成后进行质量检测,确保施工质量符合设计要求。
3.3 质量记录:对外墙保温工程的施工过程和质量检测结果进行记录,形成完整的施工档案。
四、安全措施4.1 安全培训:对施工人员进行安全培训,提高其安全意识和应急处理能力。
4.2 安全防护:在施工现场设置必要的安全警示标识,保证施工人员和周围人员的安全。
4.3 安全检查:定期对施工现场进行安全检查,及时发现和处理安全隐患,确保施工安全。
五、验收标准5.1 外墙平整度:外墙保温工程施工完成后,应符合设计要求的平整度标准。
5.2 施工质量:外墙保温工程施工完成后,应符合相关规范和标准的质量要求。
5.3 安全合格:外墙保温工程施工完成后,应经过相关部门的验收合格,确保工程安全可靠。
总结:外墙保温工程技术交底是外墙保温工程施工的重要环节,通过准备工作、施工工艺、质量控制、安全措施和验收标准等方面的详细规范,可以有效保证外墙保温工程的施工质量和工程安全,为建筑提供良好的保温效果和使用环境。
外墙保温施工安全技术交底范本一:【一、前言】外墙保温工程施工安全是保障工程质量和人身安全的重要环节,为了确保施工过程中的安全,现对施工人员进行技术交底,要求全体人员参与并遵守相关操作规程和安全标准。
【二、施工单位及责任】1.施工单位:xxxx公司2.施工单位应具备施工资质,并按照法律规定的标准进行施工。
3.施工单位应派遣经验丰富的施工人员,并对其进行培训和考核,确保其具备相应的技术能力和安全防护意识。
【三、施工准备】1.材料准备:确认所需保温材料的品种、规格、数量,确保材料质量符合要求。
2.施工设备准备:确认施工设备的可靠性和安全性,确保设备能够正常使用。
3.施工现场准备:清理施工现场,确保施工场地的整洁、平整,并做好防护措施。
【四、施工工序及安全措施】1.基层处理:包括清理基层、处理碱性、修补损坏等。
操作时应戴好手套和口罩,防止化学药品对皮肤和呼吸系统的损害。
2.保温材料的安装:包括固定、切割、拼接等。
操作时应穿戴好工作服和安全鞋,使用合适的固定工具,保证施工人员的安全。
3.保护层的施工:包括涂刷防水涂料、安装防护网等。
操作时应佩戴好防护眼镜和手套,防止材料对皮肤和眼睛的刺激。
4.外墙装饰:包括涂料、瓷砖等。
操作时应使用合适的涂料刷具和砖砌工具,严禁高空作业和使用过期材料。
【五、施工安全控制】1.考勤制度:施工单位应建立施工人员的考勤制度,确保施工进度和施工质量。
2.安全检查:施工单位应定期进行安全检查,并及时消除存在的安全隐患。
3.安全培训:施工单位应定期组织安全培训,提高施工人员的安全意识和技能。
【六、附件】附件1:施工设备清单附件2:材料品种及规格清单附件3:安全标准和操作规程【七、法律名词及注释】1.施工资质:指施工单位所具备的履行施工合同所必须的技术、经济、管理等方面的条件。
2.安全防护意识:指施工人员对施工过程中可能存在的危险及其防范措施的认知和重视程度。
范本二:【一、前言】保温施工技术交底是外墙保温工程中的重要环节,通过交底,施工人员能够熟悉施工要求,掌握相关安全技术,提高施工质量和人身安全保障水平。
外墙保温工程安全技术交底外墙保温工程是建造工程中非常重要的一环,保温工程安全技术交底是确保工程质量和施工安全的关键步骤。
本文将从五个方面详细介绍外墙保温工程安全技术交底的内容。
一、施工方案交底1.1 确定保温材料和施工工艺:在交底会上明确外墙保温所使用的保温材料种类、规格和施工工艺,确保施工人员了解并按照要求进行施工。
1.2 确定施工人员资质:要求施工单位提供施工人员的相关资质证明,确保施工人员具备相应的技术能力和安全意识。
1.3 制定安全预案:针对外墙保温工程可能浮现的安全风险,制定详细的安全预案,包括应急措施和安全防护措施。
二、施工过程交底2.1 确认施工现场环境:在施工前对施工现场进行检查,确保施工环境符合要求,消除安全隐患。
2.2 安全操作规程:明确施工人员的安全操作规程,包括穿戴安全防护用品、使用施工设备等,确保施工过程中安全可控。
2.3 施工质量要求:交底施工质量要求,包括保温材料的密实度、外墙平整度等,确保施工质量达标。
三、质量验收交底3.1 质量验收标准:明确外墙保温工程的质量验收标准,包括保温层厚度、平整度、抗压性等指标,确保工程质量符合要求。
3.2 检测方法:交底外墙保温工程的检测方法,包括超声波探伤、热像仪检测等,确保施工质量可靠。
3.3 质量记录保存:要求施工单位保存外墙保温工程的质量验收记录,包括检测报告、验收合格证明等,以备日后查验。
四、安全交底4.1 安全教育培训:组织施工人员进行安全教育培训,提高安全意识和应急处理能力。
4.2 安全巡查制度:建立外墙保温工程的安全巡查制度,定期检查施工现场安全情况,及时发现并解决安全隐患。
4.3 安全事故处理:交底外墙保温工程的安全事故处理流程,包括报警程序、事故调查和处理程序等,确保安全事故得到妥善处理。
五、监督检查交底5.1 监督单位要求:明确监督单位的监督要求,包括监督频次、监督内容等,确保外墙保温工程的监督检查得到落实。
5.2 监督记录保存:要求施工单位保存监督检查的记录,包括监督单位的意见反馈、整改情况等,以备查阅。
1、本表由施工单位填写,交底单位与接受交底单位各保存一份。
2、当做分项工程施工技术交底时,应填写“分项工程名称”栏,其他技术交底可不填写。
1、本表由施工单位填写,交底单位与接受交底单位各保存一份。
2、当做分项工程施工技术交底时,应填写“分项工程名称”栏,其他技术交底可不填写。
1、本表由施工单位填写,交底单位与接受交底单位各保存一份。
2、当做分项工程施工技术交底时,应填写“分项工程名称”栏,其他技术交底可不填写。
1、本表由施工单位填写,交底单位与接受交底单位各保存一份。
2、当做分项工程施工技术交底时,应填写“分项工程名称”栏,其他技术交底可不填写。
2、当做分项工程施工技术交底时,应填写“分项工程名称”栏,其他技术交底可不填写。