安全标志平面布置图
- 格式:doc
- 大小:67.50 KB
- 文档页数:4
安全标志、安全平面布置图及操作规程安全平面布置图、安全标志及安全操作规程施工单位: 滁州金和建筑装饰工程公司工程名称: 武警滁州支队机关新营区工程日期: 2009.11.14滁州金和建筑装饰公司武警滁州支队机关新营区工程项目部工人安全技术操作规程滁州金和建筑装饰公司目录一、架子工二、瓦工三、木工四、钢筋工五、油漆工六、电工七、电焊工八、混凝土工九、普通工架子工安全技术操作规程1、认真执行“建筑施工扣件钢管脚手架安全技术规范”做到技术先进、经济合理、安全适用、确保质量。
钢管脚手架应用外径48~51毫米、壁厚3~3.5毫米的钢管,长度以4~6.5米和2.1~2.3米为宜。
有严重锈蚀、弯曲、压扁或裂纹的不得所有。
2、扣件应有出厂合格证明,发现有脆裂、变形、滑丝的禁止使用,钢管上严禁打孔。
3、钢制脚手板应采用2~3毫米的I级钢材,长度为1.5~3.6米,宽度23~25厘米,肋高5厘米为宜,两端应有连续装置,板面应钻有防滑孔。
凡是裂纹、扭曲的不得使用。
4、钢管脚手架的立杆应垂直稳放在金属底座或垫木上。
立杆间距不得大于2米;大横杆间距不得大于1.5米。
钢管立杆、大横杆接头应错开,要用扣件联接拧紧螺栓,不准用铁丝绑扎。
5、脚手架必须设置纵、横向扫地杆。
纵向扫地杆应采用直角扣件固定在距底座上皮不大于200毫米处的立杆上。
横向扫地杆亦应采用直角扣件固定在紧靠纵向扫地杆下方的立杆上。
当立杆基础不在同一高度上时,必须将高处的纵向扫地杆向低处延长两跨与立杆固定,高低差不应大于1米。
靠边坡上方的立杆轴线到边坡的距离不应小于500毫米。
6、立杆接长除顶层顶步可采用搭接外,其余各层各步接头必须采用对接扣件连接。
立杆上的对接扣件应交错布置在同步内,两根相连立杆接头不应设置在同步内,同步内隔一根立杆的两个相隔接头在高度方向错开的距离不宜小于500毫米;各接头中心至主节点的距离不宜大于步距的1/3。
搭接长度不应小于1米,应采用不少于2个旋转扣件固定,端部扣件盖板的边缘至杆端距离不应小于100毫米。
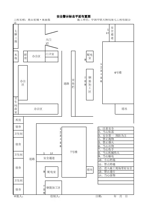
安全警示标志平面布置图AQ2.9.1工程名称:依云上城一期1、2、3、5、14#楼住宅、商业、施工单位:茂名市电白建筑工程总公司审批人:绘制人:日期:年月日填表说明AQ2.9.1 1.安全标志平面布置图必须针对工程项目的作业环境、危险部位,按照禁止标志、警告标志、指令标志、提示标志详细绘制。
当建筑物各层平面不一致时,按各层列表或绘制分层布置图。
安全警示标志平面布置图应有绘制人签名,经项目技术负责人审批。
施工现场应根据该图在醒目、与安全有关的地方悬挂安全标志,不能流于形式将全部标志牌不论该处是否需要并排挂设在一起。
2.施工单位应当在施工现场入口处、施工起重机械、临时用电设施、脚手架、出入通道口、楼梯口、电梯井口、孔洞口、桥梁口、隧道口、基坑边沿、爆破物及有害危险气体和液体存放处等危险部位,设置明显的安全警示标志。
安全警示标志必须符合国家标准。
----------------下面是赠送的excel操作练习不需要的下载后可以编辑删除(Excel 2003部分)1.公式和函数1.(1)打开当前试题目录下文件excel-10.xls;(2)利用函数计算每个人各阶段总成绩,并利用函数计算各阶段的平均成绩;(3)“平均成绩”行数字格式都为带一位小数(例如0.0)格式;(4)同名存盘。
步骤:a)文件→在各阶段总成绩单元格内,点插入,点函数,在对话框中选择求和函数“SUM”,在对话中Number1内点右侧的按钮,将出现另外一个对话框,在文件中选择需要求和的单元格,然后点该对话框的右侧按钮,点确定(完成一个总成绩求和后,利用填充柄完成其他的总成绩求和,或者重复上面的顺序)→在平均成绩单元格内,点插入,点函数,选择算术平均值函数AVERAGE,出现对话框后,采用求和时的相同方法,完成操作→选中平均成绩行,点右键点设置单元格,点数字,在分类项下点数值,设小数位为1,b)确定→保存2.(1)打开当前试题目录下文件excel-13.xls;(2)根据工作表中给定数据,按“合计=交通费+住宿费+补助”公式计算“合计”数,并计算交通费、住宿费和补助的合计数;(3)所有数字以单元格格式中货币类的“¥”货币符号、小数点后2位数表现(如:¥2,115.00格式);(4)同名存盘。
安全警示标志平面布置图安全警示标志平面布置图是指在特定场所和区域内,对安全警示标志进行规划和布置,以提醒人们在此区域内需要注意的安全事项和规定。
以下是安全警示标志平面布置图的内容:一、制定安全规定在场所和区域内制定一定的安全规定,如区分危险区域和安全区域,明确禁止行为和行为规定等,为制定安全警示标志提供基础。
二、绘制区域平面布置图根据场所和区域的不同,绘制其平面布置图。
此布置图应明确区分不同区域,标识出给人们的行为提醒、禁止、警告等标志的具体位置与数量。
布置图应明确易于识别,具有可读性和有效性,并应根据需要对其进行调整。
三、制定标志种类和颜色根据制定的安全规定和平面布置图,对标志种类和颜色进行规定。
常见的安全标志包括禁止标志、警告标志、提示标志等。
颜色的规定是为了让人直观地认识标志,针对不同的安全状况,选择不同的颜色。
其中,红色的标志主要用于禁止,黄色的标志主要用于警告,绿色的标志主要用于提示。
四、标志的布置按照制定的规定和平面布置图的要求,安排标志的布置位置。
应按照标准要求,确保标志大小、高度位置的规范,使其能够在相关人员到达之前被清晰地识别。
五、安全标识文字内容标志的文字内容应简洁明了,容易理解和识别。
要区分重要性和紧急程度不同的标志,并对每个标志进行详细解释。
文字的字体和大小应易于辨认和阅读,特别是在夜间和低照度条件下。
六、标志的定期检查和维护标志是人们警醒安全的重要渠道,但随着时间的推移,标志可能会被磨损、失效或破损。
因此,定期检查和维护标志的工作至关重要。
应当针对不同的安全状况、风险隐患、维护周期来制定具体的维护计划。
以上是安全警示标志平面布置图的主要内容。
在日常生活、工作和学习中,我们应根据需要对场所和区域进行规划和布置,为人们的生命财产安全提供有效的警示和保障。