景观喷泉水池设计方法
- 格式:doc
- 大小:644.26 KB
- 文档页数:4
园林工程水池喷泉设计方案一、设计目的水池喷泉设计是园林工程设计中重要的一部分,它不仅能美化环境,提升景观品质,还能为人们营造出清新怡人的氛围,给人们带来舒适的感觉。
因此,本设计旨在通过水池喷泉的设计,提升园林景观的吸引力,为人们创造出更舒适的休闲环境。
二、设计原则1.美观性原则:水池喷泉设计应当注重美观性,有利于打造出吸引人的园林景观,使人们在其中感受到舒适和愉悦。
2.可持续性原则:设计方案应当具有可持续性,考虑到水资源的节约利用和环境保护,以便确保水池喷泉的长期可持续运行。
3.安全性原则:设计应当注重喷泉设施的安全性,避免发生意外事故,确保人们在观赏喷泉时能够放心享受。
4.功能性原则:根据园林的实际需要和使用场景,设计应当具有一定的功能性,能够满足人们在其中休憩、观赏和娱乐的需求。
三、设计内容1.水池设计:水池作为喷泉的基础设施,应当具有一定的面积和深度,以容纳喷泉设施和满足景观需要。
水池的形状可以根据园林场地的具体情况设计,可以是方形、圆形、椭圆形等,同时水池的边缘还可以种植一些水生植物,让整个水池看起来更加自然。
2.喷泉设计:喷泉的设计应当考虑到水流的形式和高度,根据园林景观的需要来设计不同形式的喷泉。
可以设计出喷射式、喷雾式、花洒式等多种形式的喷泉,从而使园林景观更加多样化和丰富化。
3.灯光设计:在夜晚,通过灯光的照射,可以使喷泉更加生动活泼,增加夜间园林景观的视觉冲击力。
因此,设计应当考虑到夜间灯光的设置,使得水池喷泉在白天和夜间都具有吸引力。
4.景观绿化设计:在水池喷泉周围,可以进行合理的景观绿化设计,通过种植花草树木等植物,打造出更加优美的园林景观。
同时,景观绿化还可以增加空气湿度,改善空气质量。
5.人工瀑布设计:如果园林场地条件允许,还可以设计人工瀑布,通过人工挖掘或布置瀑布结构,形成瀑布景观,与水池喷泉相辅相成,增添景观的变化和趣味性。
四、设计步骤1.方案确定:根据园林场地的实际情况,综合考虑环境条件、使用需求和设计目的,确定水池喷泉设计的整体方案。
喷泉水景工程设计方案一、项目背景随着城市化进程加快,城市空间日益压缩,城市绿化水景工程成为城市提升品质的一种重要手段。
喷泉水景工程作为城市公共空间中潮流、时尚、艺术的标志物和城市形象的一部分,是建设现代城市的重要组成部分。
因此,喷泉水景工程的设计和建设对于城市的美化和提升具有重要意义。
二、项目概况本项目位于城市中心广场,占地面积约5000平方米。
设计包括一个中央喷泉和周边景观设施。
三、设计目标1. 突出地标性:通过设计一个独特的中央喷泉,将广场打造成城市的标志性地标,提升城市形象。
2. 创造艺术感:通过设计别具一格的水景艺术,使广场成为人们休闲娱乐的好去处。
3. 提升城市品质:通过优美的设计和高品质的建设,提升城市的绿化水景工程,增强城市品质。
四、设计方案1. 中央喷泉设计:中央喷泉采用高度自动化控制系统,可以根据不同的场景设置不同的水柱形态和音乐效果。
喷泉采用LED灯光,夜间可以进行色彩变幻,呈现出美丽的景观效果。
喷泉设计以简约、时尚风格为主,体现城市现代感。
2. 水景艺术设计:在周边的景观设计上,采用不同形态的水池、小型喷泉和雕塑等艺术装置,通过水的表现形式和声音效果,创造出优美的水景艺术。
3. 植物景观设计:在广场的周边植入各种花卉和绿植,打造生态环境,使广场呈现出一片生机勃勃的景象。
4. 设施配套:在广场周边设置休息座椅、遮阳伞等便民设施,方便市民休息和游玩。
五、建设工艺1. 地基处理:对广场地基进行均匀沉实处理,确保喷泉水景工程的稳固性。
2. 喷泉设备安装:选择高品质的喷泉设备,并由专业团队进行安装调试,确保喷泉设备的正常运行。
3. 灯光布置:在喷泉的周围布置LED灯光,进行全方位的照明设计,确保夜晚的喷泉景观有良好的效果。
4. 植物配置:选用各类适合广场环境的植物进行配置,确保广场的绿化效果。
六、环保措施1. 节水措施:在喷泉水景工程设计中,采用可再生水资源,并且通过高科技节水设备,实现节水循环利用。
一、工程概况本工程为河南省三门峡市城市文化公园亲水平台、喷泉水池工程施工项目,位于三门峡市涧河两岸(209国道-甘棠路段)。
主要工程内容包括花岗岩铺装台阶约3000平方米、亲水平台约2000平方米、混凝土喷泉水池约2000平方米。
二、施工方案设计1. 施工顺序(1)施工准备阶段:现场勘查、施工图纸会审、编制施工组织设计、材料设备采购、人员组织、施工场地布置等。
(2)基础施工阶段:基坑开挖、地基处理、基础施工。
(3)主体施工阶段:花岗岩铺装、亲水平台施工、喷泉水池施工。
(4)装饰施工阶段:喷泉装饰、亲水平台装饰、绿化景观施工。
(5)竣工验收阶段:工程验收、资料整理、工程移交。
2. 施工工艺(1)基础施工:采用明挖法进行基坑开挖,采用C15混凝土进行地基处理,C25混凝土进行基础施工。
(2)花岗岩铺装:选用优质花岗岩,按照设计图纸进行切割、打磨、铺设,确保平整、牢固。
(3)亲水平台施工:采用现浇C25混凝土,按设计要求进行施工,确保平台平整、坚固。
(4)喷泉水池施工:采用C25混凝土进行水池主体施工,根据设计要求进行喷泉设备安装,确保喷泉效果。
3. 施工措施(1)施工人员:组织专业施工队伍,确保施工人员具备相关资质和技能。
(2)材料设备:选用优质材料,确保施工质量;合理配置施工设备,提高施工效率。
(3)施工进度:制定合理的施工进度计划,确保工程按期完成。
(4)安全文明施工:加强施工现场安全管理,确保施工人员安全;保持施工现场整洁,营造文明施工环境。
(5)质量控制:严格执行施工规范和质量标准,确保工程质量。
4. 环保措施(1)施工期间,严格控制扬尘、噪声等污染,采取洒水降尘、隔音等措施。
(2)施工结束后,对施工现场进行清理,恢复原貌。
三、施工进度计划根据工程规模和施工条件,制定以下施工进度计划:(1)施工准备阶段:1个月(2)基础施工阶段:2个月(3)主体施工阶段:3个月(4)装饰施工阶段:1个月(5)竣工验收阶段:1个月总计:8个月四、结论本工程水池喷泉工程施工方案设计充分考虑了工程特点、施工条件、施工质量、安全文明施工等因素,确保工程顺利进行。
景观水系喷泉施工方案设计一、项目背景景观水系喷泉是一种常见的景观设计元素,它能够为城市、公园和建筑物增添美感和活力。
喷泉施工方案的设计对于确保喷泉的稳定性、安全性和景观效果至关重要。
本文将针对景观水系喷泉的施工方案进行设计和详细说明。
二、方案设计1. 喷泉总体设计在开始施工之前,需要根据景观设计需求和场地条件制定喷泉的总体设计方案。
总体设计方案应包括喷泉的形式、规模、布局和材料等要素。
此外,还需要考虑喷泉的水源、排水系统以及所需的电力供应等基础设施要求。
2. 喷泉结构设计喷泉的结构设计是确保喷泉稳定性和安全性的重要环节。
喷泉的结构设计要考虑到水压、水流以及环境因素对喷泉的影响。
结构设计应满足以下要求:•结构材料应具备防水、抗腐蚀和耐久性能,常用的材料包括不锈钢、玻璃纤维和钢筋混凝土等;•喷泉结构要具备良好的稳定性,需考虑不同水压和水流对结构的影响;•喷泉的结构设计应符合相关安全标准和建筑规范。
3. 喷泉水源设计喷泉的水源设计要确保喷泉的水量和水质能够满足景观设计的要求。
水源可以选择自来水、地下水或循环水等,需根据实际情况进行选择。
水源设计应包括以下内容:•水质检测和处理,确保喷泉水质达到国家标准;•确定水源供应管线的布置和连接方式;•考虑水源的供水能力和水位控制。
4. 喷泉排水系统设计喷泉排水系统设计是为了保证喷泉在使用过程中排除多余水量,防止积水对喷泉的损坏。
喷泉排水系统设计应包括以下内容:•确定排水管线和排水口的位置;•考虑排水管线的材料和施工要求;•考虑排水系统的排水速度和冲洗频率。
5. 喷泉灯光设计喷泉的灯光设计可以增加夜间的景观效果,为喷泉增加一种魅力。
喷泉灯光设计应包括以下内容:•确定喷泉灯光的位置和数量;•考虑灯光的颜色和亮度;•确定灯光控制的方式,可以选择手动控制或自动控制。
三、施工步骤1. 场地准备在开始施工前,需要进行场地准备工作,包括清理场地、测量和标记,确保施工区域的平整和清洁。
学校喷泉景观设计工程方案一、前言喷泉作为一种常见的园林景观,在学校工程设计中扮演了重要的角色。
它不仅可以美化校园环境,增加学校的文化底蕴,更重要的是可以为师生提供一个休闲和娱乐的场所。
因此,在学校喷泉景观设计工程方案中,需要兼顾美观性与实用性,注重景观的美化和社会功能的发挥。
二、总体布局1.位置选择校园内的喷泉位置选址应考虑到多方面因素,例如地理位置、视野广阔度和周边环境。
最好选择校园中心位置或者是学生经常活动的区域,以便更好地起到装点校园环境的作用。
此外,选择位置时还需要考虑到便于管理和维护的问题。
2.布局设计布局设计应考虑到喷泉的大小与周围环境的协调性,足够宽敞的空间可供师生们休憩和活动。
同时,还要考虑到与校园的其他景观和建筑风格能够良好地相协调,并能够为师生们提供一个宜人的环境。
三、设计要素1.喷泉形式根据学校的特点和场地条件,可以选择喷泉的形式,包括喷泉的类型、尺寸和造型。
景观设计师需要考虑到学校的风格和特点,选择合适的喷泉形式,以便更好地探索和体现学校文化。
2.景观配套除了喷泉之外,设计方案还需要考虑到喷泉周围的配套设施和植被绿化。
例如,可以在周围设置凳子、树木和草坪,以便为师生们提供一个休憩和交流的场所。
同时,还可以在周围种植一些花草,使整个喷泉区域更加生机与美观。
3.照明设计照明设计是喷泉景观设计中不容忽视的一部分。
一方面,喷泉照明可以在夜间增加校园的美观度,另一方面也可以为师生们提供一个夜间休闲娱乐的场所。
因此,在设计方案中需要考虑到照明的位置、亮度与色彩的设计,以便更好地烘托喷泉的美感。
四、环境效应1.环境美化喷泉景观不仅可以美化校园环境,还可以改善校园的气候与环境。
例如,喷泉附近的气温通常要比其他地方要低,周围空气也更加湿润,对于缓解炎热的夏季气候有一定的帮助。
2.教育功能喷泉景观设计还可以帮助学校实现一些教育功能,例如增加学校的文化底蕴、美育教育和环保教育。
师生们可以在欣赏喷泉的同时,领会自然之美、培养审美情趣和热爱大自然的意识。
制作水池景观工程方案一、前言水池景观工程是指通过设计、施工、养护等环节,利用水池作为景观元素,打造出美丽、宜人的景观环境。
水池景观工程广泛应用于园林、城市、农村等各种场所,为人们带来一片清新、自然的空间,成为美化环境、增加生活情趣的一种重要手段。
本文将结合水池景观工程的实际情况,介绍水池景观工程的制作方案。
二、水池景观工程的设计与规划1. 确定水池位置和尺寸首先需要确定水池的位置和尺寸,位置的选择应考虑采光、通风、周围环境等因素,尺寸的确定需根据实际需求和场地条件进行适当调整。
2. 设计水池形状和风格根据水池的用途和环境特点,设计水池的形状和风格,可以是圆形、长方形、不规则形状等,风格可以是自然风格、现代风格、古典风格等。
3. 确定水池材质和结构水池的材质可以是混凝土、钢筋混凝土、聚乙烯、陶瓷等,根据实际情况进行选择。
水池的结构要考虑稳固、坚固、耐久等因素。
4. 设计水池周边的景观装饰考虑到水池周边的环境,可以设计绿化、灯光、喷泉、雕塑、汀边景观等,使水池周边的景观更加丰富多彩。
5. 确定水池的运行系统根据水池的用途和规模,确定水池的运行系统,包括水泵、过滤系统、水质管理系统等,确保水池的运行畅通。
三、水池景观工程的施工流程1. 土地准备和清理首先需要清理水池周围的土地,清除杂草、垃圾等,保持施工现场整洁。
2. 土方和护坡工程根据设计方案进行土方和护坡工程,保证水池周围的地势平整,稳固。
3. 水池结构施工根据设计方案进行水池的结构施工,包括水泥浇筑、防水处理、边缘处理等,确保水池结构坚固。
4. 水泵和过滤系统安装安装水泵和过滤系统,确保水池的正常运行和清洁度。
5. 景观装饰施工进行景观装饰的施工,包括绿化、灯光、喷泉、雕塑等,使水池景观更加丰富多彩。
6. 水质管理系统安装安装水质管理系统,保证水池水质的清洁与稳定。
7. 养护工作进行水池景观工程的养护工作,包括水质管理、景观装饰的养护等,确保水池景观的长期美观。
园林设计中的水池与喷泉应用水池与喷泉作为园林设计中常见的景观元素,不仅能为人们带来美感和愉悦体验,还可以增添环境的湿润度和凉爽感,成为人们放松心情、休闲娱乐的理想场所。
在园林设计中,水池与喷泉的应用非常广泛,可以用于公园、庭院、商业广场等各种场所。
本文将探讨水池与喷泉在园林设计中的应用原则与技巧。
一、水池的应用1. 营造静谧与安宁的氛围水池可以通过其静谧的表面和微弱的水声,营造出宁静的氛围。
在园林设计中,可以将水池布置在庭院的中央或者偏僻的角落,形成一个独特的空间,以供人们感受自然之美。
此外,可以在水池周围种植花草,以增加水池的美感和生态环境,营造出一个宜人的休闲场所。
2. 提供水资源和湿度在干旱地区或者城市中,水池可以提供水资源和湿度,改善周围的气候条件。
通过合理的设计和布局,可以将多个水池连接在一起,形成一个小型的水道,利用水的循环流动,为周围的植物和生态系统提供充足的水源,并增加空气中的湿度,改善人们的生活环境。
3. 增加景观层次感和动感在园林设计中,通过设置不同大小和形状的水池,可以增加景观的层次感和动感。
可以使用多层级的水池设计,让水从高处自然地流向低处,形成水台、水阶等景观元素,增加园林的空间变化和层次感,使整个景观更为丰富有趣。
二、喷泉的应用1. 创造壮观的景观效果喷泉作为园林设计中的重要元素之一,可以通过水流和光影的变化,创造出壮观的景观效果。
在公园或者广场中设置大型喷泉,可以吸引游客的眼球,为景区带来人气和知名度。
同时,喷泉的形状和设计也需要与周围景观相协调,以完美融入整体的园林环境。
2. 提供视觉和听觉的愉悦体验喷泉通过水的流动和水花的飞溅,给人以美妙的视觉和听觉体验。
水流的连续变化和水花的跳跃声音,可以让人们感受到水的活力和生命力。
在园林设计中,可以通过合理的布局和灯光效果,让喷泉在夜晚展现出不同的魅力,给人们带来更多的乐趣和享受。
3. 调节环境温度和空气湿度喷泉的水汽和雾化效果,能够有效调节周围的环境温度和空气湿度。
公园假山流水喷泉水景设计说明假山喷泉是一种将大自然的景观缩小化的家居装饰摆设,假山喷泉利用纯自然水的循环,吸附空气当中的飘尘、细菌、细小纤维等,在水循环过程中同时使杂质滞留在水中,净化生活和工作空间。
喷泉原是一种自然景观,是承压水的地面露头,园林的喷泉,一般是为了造景的需要。
随着人民对生活素质要求不断的提高,一种以室内装饰、陈设为中心的家居文化现象已蔚成风气,21世纪家庭消费的主旋律。
有个性、艺术品味和美化家居功能,又具有实用性的室内假山喷泉。
一款漂亮的室内假山喷泉即是件精美的工艺装饰品,又是一件吉祥瑞气的镇宅利市之物,放置家居客厅论艺术在人类文化中的.办公室,店铺,都很好,绝对吸引眼球,作为居家装饰和馈赠亲友,都是实用而且物美价廉的。
做室内假山喷泉时,水池最好做二次防水,选择的喷头要根据空间大小来决定,一般家庭使用一台0.55的水泵,三个喷头,三个台就可以了。
室内假山灯光颜色一般以红、绿、蓝三种颜色搭配为主,如果假山喷泉不大,可以只装一个带冷雾效果的彩灯就可以了。
一、室内装饰。
假山喷泉与盆栽或有特色的植物、装饰工艺品、灯具结合可以改变室内环境呆板、一成不变的单调;流水、花草与彩灯交相辉映,使这些空间景象一新,充满生气,有入仙境美妙感觉。
二、雾化治疗。
在水中加入香董精油,香味随水花散发,更是满室幽香。
根据不同的爱好加入适合自己感觉得香味或中药剂,如(陈醋、花露水等中药剂)在医生指导加入盆景水中可起到雾化治疗效果。
三、净化空气。
消除异味,净化空气,室内假山喷泉能够持续的产生大量负氧离子,有效驱除异味二手烟甲醛、细菌及有害粉尘,吸附二氧化碳和家电产品释放的电磁辐射,进一步消除空气中飘浮的正离子。
四、掩盖噪音。
一座室内假山喷泉给室内带来自然的声音,声音虽然轻柔却足以掩盖周遭的噪音。
水声温柔,水滴飞溅,撞击在容器上的自然韵律可以消除许多不想听到的噪音,带来了一种安宁和悠闲的感觉。
五、添福催财。
室内假山喷泉寓意美好,行运流水,石来运转,钱财滚滚来,长流不息的流水增加了工作,生活空间的动感与灵气,带来源源不断的财源。
打造庭院喷泉工程施工方案地形选址在打造庭院喷泉的工程施工之前,首先要确定喷泉的地形选址。
地形选址要考虑庭院的整体布局、水源、电源等方面。
一般来说,庭院喷泉应当选址在庭院中央,这样可以使整个庭院的美化效果更好。
同时,要注意选择离水源、电源较近的地方,这样可以减少管道铺设的难度。
设计方案确定地形选址之后,需要根据庭院的具体情况设计喷泉的形状和大小。
一般来说,庭院喷泉的设计可以参考当地的环境和文化,可以采用欧式、中式或者日式的设计风格。
在设计方案中要考虑到水的循环、喷泉的高度和形状、灯光的设置以及周围环境的融入等方面。
材料选用在打造庭院喷泉的工程施工中,材料的选用非常重要。
首先要选择具有良好耐久性和防水性能的材料,如玻璃钢、不锈钢等。
其次要根据设计方案选择适合的水泵、喷头、管道等设备。
最后要选择适合的照明设备,如水下灯、地埋灯等,以增加喷泉的美化效果。
工程施工在进行庭院喷泉的工程施工时,需要按照以下步骤进行:1. 地面准备:先清理选址上的杂草和垃圾,然后进行地面的平整和打砂。
2. 喷泉基础:根据设计方案制作喷泉的基础,一般采用混凝土浇筑。
3. 管道铺设:根据设计方案进行管道的铺设,要注意铺设的深度和斜度,保证水的流向和循环。
4. 设备安装:将水泵、喷头、灯光等设备安装在合适的位置。
5. 装饰美化:根据设计方案进行周围环境的装饰美化,如栽植花草、安装围栏等。
6. 调试运行:进行喷泉设备的调试和运行测试,保证喷泉的正常运行。
在工程施工中,要注意安全和环保,保证工程的质量和美观度。
经过以上工程施工方案的实施,一个高品质的庭院喷泉就会呈现在人们面前。
庭院喷泉不仅可以提高庭院的美化效果,还可以为人们提供休闲放松的场所,带来愉悦和舒适的享受。
希望本文的介绍对打造庭院喷泉的工程施工方案有所帮助。
设计目的:它是一种水景的艺术形式,近代,国内外随着城市和工业的发展,改善城市环境,兴建自然景观日益增多,它具有分隔空间、增加层次、净化空气美化环境的作用,具有美化环境的功能。
喷泉原是一种自然景观,是承压水的地面露头。
园林中的喷泉,一般是为了造景的需要,人工建造的具有装饰性的喷水装置。
喷泉可以湿润周围空气,减少尘埃,降低气温。
喷泉的细小水珠同空气分子撞击,能产生大量的负氧离子。
因此,喷泉有益于改善城市面貌和增进居民身心健康。
随着我国人民物质和精神生活水平的不断提高,现在许多城市的市民广场、单位居民生活区里都能看到各种形式的喷泉。
随着科学技术突飞猛进的发展,在喷泉工程中采用了大量的高新技术,在人们的视觉和听觉上形成和谐的统一,使人们在精神上有种愉悦的感受。
从而使喷泉效果更绚丽多彩,婀娜多姿,令人赏心悦目、流连忘返。
喷泉在炎热的夏日可以起到增湿和降温的作用;也为水体充氧,有利于水体增加自净能力,起到防止水体黑臭的作用。
花样喷泉运行的灵活性是评价花式喷泉优劣的关键,而这与花样喷泉的控制系统息息相关。
花式喷泉可以根据自己的设计,设计出各种各样的花样,加上灯光,能给人有种不错的视觉享受。
1969 年美国数字设备公司研制书上世界第一台可编程控制器,并成功地应用在美国的生产线上。
但当时只能进行逻辑运算,故称为可编程逻辑控制期,70 年代后期,随着微电子技术和计算机的迅猛发展,使可编程序控制器从开关量的逻辑控制扩展到数字控制及生产过程控制域,真正成为一种电子计算机工业控制装置,故称为可编程控制器。
可编程序控制器是继电器逻辑控制系统发展而来,所以它在数学处理、顺序控制方面具有一定优势。
同时它也是在集成电路、计算机技术的基础上发展起来的一中新型工业控制设备。
具有可靠性高、抗干扰能力强、设计、安装容易,维护工作量少、功能强、通用性好、开发周期短、成功率高、体积小,重量轻、功耗底等特点。
具有功能强、可靠性高、配置灵活、使用方便以及体积小、重量轻等优点,已经广泛应用于自动化控制的各个领域,并已成为实现工业生产自动化的支柱产品。
水池喷泉工程施工方案一、工程概况水池喷泉是一项将水池与喷泉进行结合的工程,通过水泵将水抽到高处后再喷出形成各种形式的水幕、水柱、水花等水景效果。
水池喷泉工程旨在美化环境、增加景观效果、提高空间品质,适用于公园、广场、商业综合体等场所。
本次水池喷泉工程位于某市中心公园,涉及面积约1000平方米。
主要工程包括水池建设、喷水系统安装、灯光布置等。
二、施工准备1、项目组织组建专业施工团队,包括项目经理、工程师、技术人员、施工人员等。
2、人员培训对施工人员进行相关安全操作培训,提高施工人员安全意识和技能水平。
3、材料准备准备所需的喷水系统设备、水泵、管道、喷头、灯具等材料,并对材料进行验收。
4、机械设备准备所需的机械设备,如挖掘机、起重机、水泵等,并对设备进行检查和维护。
5、安全防护提前制定安全施工方案,准备好各类安全防护用品,确保施工人员的安全。
6、环境保护制定施工环境保护方案,采取措施减少对周边环境的影响。
三、方案实施1、水池建设首先进行现场勘察,确定水池的形状和尺寸,并进行土方开挖、排水、防渗等处理。
然后进行水池的混凝土浇筑和修整。
2、喷水系统安装根据设计方案,进行水泵和管道的安装,同时安装各种喷头和水景装置,并进行调试和检测。
3、灯光布置为了增加水景的艺术效果,需要进行水池周边或水下的灯光布置,根据设计方案进行灯具的安装和调试。
4、系统调试对完成的水池喷泉系统进行全面调试,确保各项设备正常运行,喷水效果良好。
5、环境美化对施工过程中受损的植被和地面进行修复和美化,提高周边环境的整体品质。
四、安全监控1、安全巡检设立专门的安全巡检组,对施工现场进行定期巡查,及时发现和排除安全隐患。
2、安全演练定期组织安全应急演练,提高施工人员的安全意识和应急处理能力。
3、安全培训定期组织安全培训,向施工人员普及安全知识和技能要求。
五、环境保护1、施工废弃物处理规范施工废弃物的收集、分类和处置,保障施工现场环境卫生。
喷泉水池工程施工方案一、项目概述喷泉水池工程是指设计、施工、安装具有艺术性和观赏性的水景喷泉设施,是城市公共景观建设中的重要组成部分。
喷泉水池工程的施工方案需要综合考虑设计、材料、技术、工程机械等多个方面因素,确保施工进度和质量,达到美观、实用、安全、稳定的效果。
二、技术要求1. 设计要求:喷泉水池工程的设计需要满足艺术性、观赏性和实用性。
需要考虑喷泉的形式、水池的大小、喷泉布局、水景动态效果等因素,同时还需要考虑到材料的选择和施工的技术要求。
2. 材料要求:水泵、管道、灯具、喷嘴等喷泉设备需要选用耐腐蚀、耐高温、耐磨损的优质材料,确保其使用寿命和效果。
3. 技术要求:施工人员需要具有丰富的喷泉水池工程施工经验,熟练掌握动态水景喷泉的布线、管道连接、设备安装、调试等技术要求,保证工程质量。
4. 安全要求:喷泉水池工程施工过程中需要严格遵守安全操作规程,保证施工现场的安全,确保施工人员的人身安全。
5. 环保要求:喷泉水池工程施工需要考虑节能、环保因素,合理选择节能设备和环保材料,减少对环境的影响。
三、工程施工方案1. 施工准备a. 确定施工队伍:根据工程规模和施工要求,组建合适的施工队伍,包括工程技术人员、施工人员、机械操作人员等。
b. 采购材料设备:根据设计要求,采购合格的喷泉设备、水泵、管道、喷嘴、灯具等材料设备,并确保其质量。
c. 施工现场布置:根据设计图纸和施工要求,对施工现场进行布置,并清理现场杂物,确保安全施工。
d. 安全措施:制定施工安全措施,确保施工人员的人身安全,包括安全帽、防护眼镜、防护服等个人防护装备。
2. 地面准备a. 地质勘测:对施工现场进行地质勘测,了解地下水情况、土质情况等,为后续施工提供参考依据。
b. 地面处理:根据设计要求,对地面进行平整、打磨、清理等工作,确保水池基础的平整和牢固。
3. 水池安装a. 水池基础施工:根据设计要求,进行水池基础的施工,包括混凝土浇筑、水泥砂浆抹面等工作。
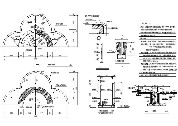
景观喷泉水池设计方法
景观喷泉是一种使用广泛的水景工程,景观喷泉设计上水池是很重要的一步,那么景观喷泉水池应该怎么设计造型?在这里厂家给大家做出总结。
一般常见的景观水池深度均为0.6~0.8m,这样作法的原因是要保证吸水口的淹没深度,并且池底为一整体的平面,也便于池内管路设备的安装施工和维护。
只有在为体现亲水特点的浅蝶形池体设计时,才采用吸水坑或泵坑。
0.6~0.8m的水深实际上存在着较大的不安全性。
同样,在儿童戏水池设计中,一般采用的深度为0.3~0.6m左右,一旦幼儿落入景观池中的将是十分危险的。
我们认为较为适宜的水深以0.2~0.4m为宜。
这样做的另一优点是,当水质浊度略高的,给人的感觉仍然清澈见底。
池壁顶面应可供游人坐下休息,池壁顶面距地面高度一般为0.30~0.45m,除人工湖外,水面以高于地面为宜。
若水面水位较低,便会有如临深潭的感觉。
从亲水的角度出发,较为合适的尺度是水面距池壁顶面为0.2m较为合理。
潜水泵坑或水泵吸水口则只需局部加深以满足吸水条件,泵坑表面可设置篦子,即可遮蔽设备又可作为格栅以阻止大颗粒杂质吸入。
从美观的角度出发,池表面应尽量减少外露的管道设备,尤其是垂直设置的溢流管口,它会在水面上升时产生很大的排水吸气声。
四川省内江市艺术喷泉厂,一家以喷泉景观为主导的水景公司,位于四川省内江市的市中区玉溪路401号1栋2号。
公司主营音乐喷泉、程控喷泉、漂浮喷泉、舞台喷泉、气爆、旱喷、变频跑泉、移动喷泉、水幕电影、激光水幕电影、水幕电影出租、喷泉设计、百米高喷泉制作工程。
多年来,承接了大量喷泉的设计、制作、安装、维护,对湖泊、广场、公园、河道、小区等大中小型喷泉都有独特的设计理念和专业的施工队伍,受到业内外各
界好评。
公司将始终“以市场为导向、以质量求生存、以管理求效益、以价格为优势。
质量至上、服务至上”的经营理念,以“科技创新.精益求精”为质量目标,为客户奉献优质工程。
以让客户满意为目标,凭借坚实的艺术基础,一流的专业设计,与你共同营造出更奇、更新、更美的人文景观艺术。