模具设计与制造毕业考核
- 格式:doc
- 大小:63.50 KB
- 文档页数:5
模具设计与制造毕业设计选题异形环件热轧制过程数值建模方法与实验研究基于高速开关阀的新型3D打印喷射装置研究基于楔横轧制坯的中空气门终锻成形工艺研究利用组织遗传性双重变质过共晶Al-Si合金的研究管双段胀形铆板试验研究数字化测量下的钣金件贴模度分析与校形设计基于碳纤维复合材料的轻质结构仿生设计及力学性能研究板料渐进边界成形工艺与机理研究等通道转角挤压7075铝合金组织性能演化规律研究铝合金复杂杯形薄壁件冷镦挤成型工艺研究弹簧数控卷绕成形及回弹数值分析基于CAE技术的汽车内饰板翘曲与缩痕的优化研究复合能场作用下电化学磨粒射流加工机理及工艺研究纯铝泡沫的真空发泡制备与力学性能研究用于金属冷塑性变形的新型环保磷化工艺及其应用研究永磁场高硬度导磁材料磁力光整加工试验研究基于电活性生物膜的生物电化学系统及环境效应研究高压扭转对金属锆组织与性能影响高速断续加工过程工件及刀具瞬态切削温度的研究深海用高活性铝合金牺牲阳极电化学性能研究异形件微冲裁有限元分析与模具设计模具形线参数对厚壁封头成形的影响汽油机集成式塑料缸盖罩壳设计及模具开发基于知识的油箱壳冷冲压工艺及模具智能设计方法及应用研究高速铣削RoyAlloy模具钢铣削力及表面质量研究钛合金复杂大件等温局部加载成形极限研究铝合金梯形环塑性成形工艺研究34CrMo4钢冲压气瓶的成形工艺优化压铸与液态模锻复合成形车用空调头盖技术的研究仿鲨鱼皮减阻微沟槽滚压复制技术研究基于数据挖掘的发动机缸盖燃烧室容积制造误差控制方法研究U型调整垫冲裁数值模拟非对称件温楔横轧技术研究基于Moldflow的汽车保险杠成型分析及产品优化设计大尺寸叶片成形过程模拟及实验研究聚合物五腔微管挤出胀大与冷却定型研究新能源汽车全塑车身设计及制造技术研究数控转塔冲床旋转工位传动系统设计与精度研究发动机气门热锻模热机复合疲劳失效分析A公司塑料异型材生产过程质量控制研究青岛YC公司薪酬体系优化研究镀锌板摩擦和成形特性及锌层失效研究陶瓷磨边超声加工电源的研究与设计不同张开度裂纹扩展的模型试验研究K-cor增强泡沫夹层结构力学性能研究基于纸基微流器件的生化量检测中频非平衡磁控溅射制备TiA1N薄膜及其性能研究面向数控加工检测一体化的在线检测系统误差预测与补偿陶瓷无模直写成型技术的研究三维立体增强机织物预制件的开发与研究弹簧数控卷绕成形及回弹数值分析基于CAE技术的汽车内饰板翘曲与缩痕的优化研究复合能场作用下电化学磨粒射流加工机理及工艺研究纯铝泡沫的真空发泡制备与力学性能研究用于金属冷塑性变形的新型环保磷化工艺及其应用研究永磁场高硬度导磁材料磁力光整加工试验研究基于电活性生物膜的生物电化学系统及环境效应研究高压扭转对金属锆组织与性能影响高速断续加工过程工件及刀具瞬态切削温度的研究深海用高活性铝合金牺牲阳极电化学性能研究基于数据挖掘的模具业客户流失分析模具拆装实训系统的开发水泥基模具在冲压成型领域的应用研究高强度钢车身冲压件拉深模具型面设计研究铝合金支架压铸模具设计及工艺模拟自润滑复合叠层陶瓷拉拔模具成形及摩擦磨损性能研究小孔冲裁模具失效分析及提高模具寿命措施研究基于非晶模具的微热压成型工艺优化与性能研究基于加工工艺参数优化的汽车锻压模具高速铣削数据库系统的研究与开发汽车差速器齿轮精锻成形研究基于CAE技术的接线盒注塑成型工艺研究ZG29MnMoNi堆焊过渡层组织和硬度研究及焊接参数优化镁合金板材正反向快速气压胀形数值模拟与实验研究基于CAE技术的汽车覆盖件冲压工艺分析薄壁注塑件成型工艺参数优化研究工艺参数对薄壁塑件成型后的收缩和残余应力的影响规律研究硬质合金刀片压坯密度分布与烧结变形的研究薄壁高筋AM60B镁合金结构件铸-锻复合成形研究汽车覆盖件冲压成形关键技术仿真优化及冲压质量控制研究微深杯成形过程仿真模拟及尺度效应研究变形条件对6061铝合金焊合区晶粒生长影响的研究轻型飞机起落架弹簧钢弯曲回弹及工艺优选研究基于CATIA的汽车覆盖件产品设计同步仿真系统研究摩托车缸体用铝液净化及压铸工艺参数优化SPS制备多孔HA骨修复材料的孔隙特征与力学性能研究H13钢经济高效的预处理工艺研究铝合金控制臂锻造工艺模拟研究A公司新产品供应链成本控制策略研究TC4钛合金TIG填丝堆焊成型技术研究锥形玻璃钢电线杆内固化缠绕机设计基于数据挖掘的模具业客户流失分析模具拆装实训系统的开发水泥基模具在冲压成型领域的应用研究高强度钢车身冲压件拉深模具型面设计研究铝合金支架压铸模具设计及工艺模拟自润滑复合叠层陶瓷拉拔模具成形及摩擦磨损性能研究小孔冲裁模具失效分析及提高模具寿命措施研究基于非晶模具的微热压成型工艺优化与性能研究基于加工工艺参数优化的汽车锻压模具高速铣削数据库系统的研究与开发汽车差速器齿轮精锻成形研究。
模具设计及制造毕业设计一、题目:模具设计及制造二、选题的背景及意义1.选题背景随着我国经济的不断发展和制造业的快速崛起,对于工业领域中的模具制造和设计需求和要求已经愈加严格。
尤其是在汽车制造、航空航天、电子电器等高科技领域中,对于模具的设计与制造质量更加注重。
因此,本篇毕业设计的选题就是为了解决这个问题,尝试着探讨一下作为工业制造的一个重要环节–模具的设计与制造。
2.选题意义当代的制造业发展趋势是快速生产、高品质、低成本的智能化制造,这就对模具设计与制造提出了更高的要求。
因为模具的质量直接影响到整个产品的质量,并且需要时刻关注生产成本。
因此,对模具的设计和制造进行深入的研究,不仅可以提高整个制造过程中的精度和效率,更可以优化制造成本,提高我国制造业的竞争力,促进国家经济持续快速增长。
三、研究内容本篇毕业设计的研究内容将会包括以下几个方面:1、模具设计原理在模具的设计之前,我们必须要了解到模具的设计原理,这样才能更好的理解模具设计中存在的一些问题、难点。
在本篇毕设中,我们将系统地介绍模具设计的基本原理,包括模具的分类、模具制作及组成、模具设计中的要求等方面,力求全面深入地了解模具的设计原理。
2、模具设计流程模具的设计流程主要分为以下几个阶段:方案设计,设计工艺的确定,零部件的设计和配件的选择等。
本篇毕设中我们将在实践中探究每个阶段所涉及的内容,尝试运用现代的设计理念和工艺方法进行模具的设计流程,为工业制造提供更加高效、先进的解决方案。
3、模具材料的选择与应用模具制造使用的材料对于制品的质量和成本都有很大的影响。
因此,本篇毕业设计将会对于不同种类的材料进行对比,并从材料性能、工艺等方面进行讨论,提供一些关于模具材料选择与应用的权威参考。
4、模具的加工方式模具的制造是一个相对比较复杂的过程,包括了多种不同的加工方式。
在本篇毕设中,我们将会深入了解模具的加工方式,包括传统加工工艺和现代复合制造技术等。
我们会结合案例进行分析和实践,通过加工方式确保模具的质量和工艺效率。
模具课程设计考核要求一、教学目标本课程的教学目标是使学生掌握模具的基本概念、分类、材料及制造工艺,培养学生具备模具设计、制造和维修的基本技能,增强学生对模具行业的认识和兴趣。
具体目标如下:1.知识目标:(1)了解模具的定义、分类和作用;(2)掌握模具的材料选择和热处理工艺;(3)熟悉模具的设计原理和方法;(4)了解模具的制造和维修技术。
2.技能目标:(1)能够运用模具设计软件进行简单的模具设计;(2)能够阅读和理解模具图纸;(3)具备模具零件的加工和装配能力;(4)能够进行模具的调试和维修。
3.情感态度价值观目标:(1)培养学生对模具行业的热爱和敬业精神;(2)培养学生团队合作意识和解决问题的能力;(3)增强学生的创新意识和实践能力。
二、教学内容本课程的教学内容主要包括模具的基本概念、分类、材料及制造工艺。
具体安排如下:1.模具的基本概念:介绍模具的定义、作用及其在制造业中的重要性。
2.模具的分类:讲解模具的分类,包括塑料模具、冲压模具、铸造模具等。
3.模具的材料:介绍模具材料的选用原则、热处理工艺及其对模具性能的影响。
4.模具的设计:讲解模具设计的基本原理、方法,包括模腔设计、导向装置、模具零件的配合等。
5.模具的制造:介绍模具制造的过程、方法,包括模具零件的加工、装配和调试。
6.模具的维修:讲解模具维修的方法和技巧,提高学生对模具故障的诊断和处理能力。
三、教学方法为了提高教学效果,本课程将采用多种教学方法相结合的方式进行授课,包括:1.讲授法:讲解模具的基本概念、分类、材料及制造工艺等知识点。
2.案例分析法:分析典型模具设计、制造和维修案例,提高学生的实践能力。
3.实验法:学生进行模具实验,培养学生的动手能力和实际操作技能。
4.讨论法:学生就模具相关问题进行讨论,激发学生的思考和创新意识。
四、教学资源为了支持教学内容的实施,我们将准备以下教学资源:1.教材:选用权威、实用的模具专业教材,为学生提供系统、全面的知识学习。
毕业设计:模具设计与制造毕业设计
题目:基于某零件的模具设计与制造
研究背景和目的:
介绍所选零件的重要性和应用领域。
阐述设计和制造该零件所需的模具的重要性和必要性。
零件设计:
对所选零件进行详细的结构设计,包括外形、尺寸、材料等要求。
进行相关的工程计算和分析,确保设计的合理性和可制造性。
模具设计:
根据零件设计的要求,进行模具设计,包括模具结构、零件定位方式、冷却系统等。
使用CAD软件进行三维模型设计,并生成相应的工程图纸。
模具制造:
根据模具设计图纸,进行模具的制造工艺规划,确定所需的加工步骤和工艺参数。
进行模具材料的选择,并进行模具加工、装配和调试。
模具试验与调试:
制造完成后,进行模具的试验与调试,验证模具的性能和准确性。
检查模具制造过程中可能存在的问题,并进行相应的改进和优化。
模具性能评价:
对制造完成的模具进行性能评价,包括使用寿命、生产效率、零件质量等方面的考虑。
进行与其他同类模具的比较,评估设计和制造的优劣之处。
结论和展望:
总结毕业设计的工作内容和成果。
分析模具设计与制造过程中的问题和挑战,并提出改进和进一步研究的展望。
备注:在具体的毕业设计中,应根据所选零件的复杂程度和实际条件进行具体设计和制造的规划。
同时,要充分考虑工艺性、经济性和环境友好性等方面的因素。
与导师保持密切沟通,并按照学校的要求完成相关文献综述、实验数据分析等工作。
复习题一、填空1、冲裁断面由圆角带、光亮带、断裂带、毛刺组成。
2、拉深系数的表达式为m=d/D(拉深直径/毛坯直径)。
3、拉深变形的主要失效形式为起皱和破裂。
4、拉深时拉深件不能一次拉深成形的条件是m≤m1(拉深件的拉深系数m小于等于第一次极限拉深系数m1)。
、冲裁过程中材料的利用率η=F/F0*100%(= F/AB*100% )。
6、冲裁主要包括落料和冲孔。
7、在模具中导柱与导套为间隙(H7/h6或H6/h5的小间隙)配合,导套与上模板为过盈(H7/r6的过盈)配合。
8、弯曲可分为自由弯曲和校正弯曲两大类。
9、极限拉深系数就是使拉深件不拉裂的最小拉深系数。
10、冲裁力是对板料的压力。
(冲裁时所需要的压力叫做冲裁力)11、弯曲时,零件尺寸标注在内侧时凸凹模尺寸计算以凸模为基准。
12、在JB23-63型压力机的型号中,63表示压力机的公称压力,即630KN 。
13、圆筒形工件拉深时的危险断面在筒壁与桶底圆角相切稍靠上的位置处。
14、弯曲时,零件尺寸标注在外侧,凸凹模尺寸计算以凹模为基准。
15、设计冲孔模时以凸模为基准,间隙取在凹模上。
16、冷冲压工艺有两大类,一类是分离工序,另一类是成形工序。
17、冲裁的变形过程主要包括弹性变形阶段、塑性变形阶段、断裂阶段三阶段。
18、下模板与导柱的配合为过盈配合,导柱与导套的配合为间隙配合。
19、冲裁时废料有工艺废料和结构废料两大类。
20、拉深工序中的退火主要是为了使材料塑性降低,硬度提高。
21、塑料模按型腔数目分类,可以分为单型腔模具﹑多型腔模具。
22、分型面选择时为便于侧分型和抽芯,若塑件有侧孔或侧凹时,宜将侧芯设置在垂直开模方向上。
23、为了保证塑件质量,分型面选择时,对有同轴度要求的塑件,将有同轴度要求的部分设在同一模板内。
24、当塑料大型﹑精度要求高﹑深型腔﹑薄壁及非对称塑件时,会产生大的侧压力,不仅用导柱导向机构,还需增设锥面导向和定位。
25、注射机的锁模力必须大于型腔内熔体压力与塑件及浇注系统在分型面上的投影面积之和的乘积。
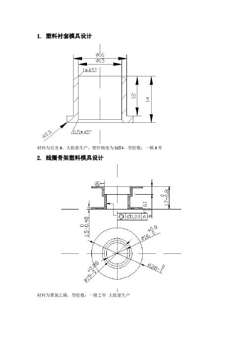
1. 塑料衬套模具设计
材料为尼龙6,大批量生产,塑件精度为MT4。
型腔数:一模6件2. 线圈骨架塑料模具设计
材料为聚氯乙烯,型腔数:一模2件大批量生产
3.盖板注塑模的成型工艺及模具设计
工程聚丙烯pp一模2件大批量生产,工件尺寸按未注公差要求4.电风扇旋扭的塑料模具设计
选用材料为ABS 公差等级为IT5级大批量生产型腔数:一模4件
5.封油盖塑料模具设计
注:AB为两段同轴螺纹,旋向相同,螺距为1mm材料为PA,精度等级5级一模四腔,大批量生产。
6.罩壳冲压模具设计
技术要求:1. 本产品为直筒形拉伸件,材料为08F钢,厚度为0.8mm。
2. 生产纲领:大批量生产。
工件尺寸按未注公差要求。
3. 未注圆角为R2.5。
7.水泵密封圈冲压模具设计
选用材料为H62,板厚2.5mm,制件精度为IT14级.,大批量生产。
属普通冲压件。
8.扇形件冲压模具设计
材料为Q235,板厚1mm,制件精度为IT14级.,大批量生产,年产量为10万件。
9.夹紧板冲压模具设计
材料为08F钢,板厚1mm,制件精度为IT14级.,大批量生产。
10.蝶形垫片冲压模具毕业设计
材料为10号钢,板厚2mm,制件精度为IT14级.,大批量生产。
11.散热器支架冲压模具毕业设计
材料:08F 厚度:2mm 批量:大批量12.带孔中字形零件冲压模具设计
材料为08,厚度为2mm。
批量:大批量生产。
模具设计与制造专业毕业大作业1.根据凹模零件图,编制零件机加工工艺路线和工艺卡片。
如图所示。
2.根据上模座零件图,编制零件机加工工艺路线和工艺卡片。
如图所示。
3.根据浇口套零件图,编制零件机加工工艺路线和工艺卡片。
如图3所示。
4.根据导套零件图,编制零件机加工工艺路线和工序卡片。
如图所示。
5.确定如图所示零件的数控铣削加工的工艺方案,并编制工艺卡片及数控加工程序。
6.塑料模具设计课题产品名称:三通管产品材料:PVC产品数量:大批量生产。
塑件尺寸:高100mm如图所示。
塑件重量:30克技术要求:按4级精度设计;塑件厚薄均匀,外侧表面光滑,不允许有浇口痕迹。
请按以下步骤进行设计(1)型腔布置、(2)确定分型面(3)选择设计浇注系统、(4)确定推出方式(5)模具结构形式及外形尺寸、(6)校核模具安装尺寸(7)计算成型零件尺寸、(8)绘制模具装配图。
完成时间:要求1~~2周时间内完成。
作业要求:交一份完整的设计说明书,一张模具装配图。
工件简图如图所示生产批量:大批量材料:20F料厚:0.8mm二、设计要求:1.冲压件的工艺分析根据工件图纸,认真分析该冲压件的形状、尺寸,精度要求和材料性能等因素是否符合冲压工艺的要求。
(5分)2.确定冲压件的最佳工艺方案通过对冲压件的工艺分析及必要的工艺计算,在分析冲压性质、冲压次数、冲压顺序和工序组合方式的基础上,提出各种可能的冲压工艺方案,并从多方面综合分析和比较,确定最佳工艺方案。
(10分)3.确定模具类型根据冲压件的生产批量,冲压件的形状,尺寸和精度等因素,确定模具的类型。
(5分)4.工艺尺寸计算(20分)1)排样设计与计算并画排样图2)冲压力、模具压力中心计算及压力设备的选择3)凸、凹模刃口尺寸的计算4)弹性元件的选取与计算5.选择与确定模具的主要零部件的结构、尺寸(20分)6.绘制模具总装图及零件图(40分)模具总装图中的非标准件,均需分别画出零件图。
7.编写技术文件作业要求:交一份完整的设计说明书,一张模具装配图。
模具设计与制造专业毕业设计考核大纲
一、毕业设计的目的:
通过毕业课程设计,使学生掌握模具设计的相关知识,培养使用3维设计软件进行塑料模具设计、冷冲压模具设计,以及其它机械机构设计的能力,并进一步培养学生在生产实践中运用所学知识为生产服务,增强学生的协作精神和能力,提高专业技术水平。
二、主要培养的能力与技能:
1、培养学生理论联系实际的动手能力,进一步加深对理论课程内容的理解;
2、培养学生学习使用3维设计软件进行塑料模具设计的基本步骤和方法,使学生掌握塑料模具设计的基本技能;
3、培养学生撰写完整的设计说明书的能力,为学习其他相关课程的设计、编写相应的报告文档奠定良好基础。
三、选题依据和范围:
模具专业毕业设计的设计内容主要包括:塑料模具设计、冷冲压模具设计、以及机械行业中的任何机械创新设计等,学生可根据自己的设计水平及喜好自己选题。
四、设计要求:
1、选择模具设计的,可设计造型任一生活中常用的塑件或冲压件,并将它的成型模具完整地设计出来。
选择机械创新设计的,要求突出创新特点,设计思路新颖,结构完整,设计作品有一定实用性。
2、设计题目难度可根据学生自身实际情况自定,自我感觉对模具设计知识掌握较好的同学,可设计三板模、斜导柱侧抽芯滑块塑料模,或冷冲压模中的复合模、级进模;对模具设计知识掌握较差的同学,可设计简单二板塑料模或单工序冷冲压模。
3、塑料模的设计内容包括:塑件的三维造型设计、模仁的分模、模架的安装设计、浇注系统的设计、冷却系统的设计、推出机构的设计等;设计三板模的要求设计出完整的各分型面开模的控制装置(如定距拉板等);需要设计侧抽芯的模具,要求设计出完整的侧抽芯机构。
4、冷冲压模具设计的内容包括:板金件的三维造型设计、冲载工艺的方案分析、冲载件的排样及条料尺寸确定、冲压模架的选择及设计、导向机构的设计、工作零部件的设计、推出系统的设计等。
5、要求设计完整:完成设计的塑料模具要有模仁、模架、浇注系统、推出机构、冷却系统、其它控制机构等;冷冲压模具要有工作零件、定位零件、卸料及压料零件、导向零件、支撑零件、连接零件等,不能有遗漏。
6、要求设计正确:完成的塑料模具设计要求分型面位置正确、完整,能进行模仁的分模;模仁设计符合塑料成型、脱模要求;各零部件安装位置正确;各零部件相互不干涉;根据设计需要修改各模板厚度后,导致螺钉、导柱、导套等零件尺寸不正确的,要在后面进行修正。
五、毕业设计时间要求
学生完成教学计划规定的全部课程或修完必修学分,方可进入做毕业论文(设计)阶段。
本次毕业设计完成的时间——计划于4月10日开始,9月10日结束,为期5个多月。
1、4月15至27日根据教学大纲的要求,选题。
2、一周左右应向指导教师提交论文提纲,在经过指导教师认可后即可开始论文的写作。
论文的初稿应在6月10日前提交给指导教师,由指导教师审阅后提出修改意见,再由学生对论文进行修改;7月1日之前学生向指导教师提交论文第二稿,并根据指导教师意见再次进行修改;论文定稿必须于9月10日之前提交指导教师。
凡未按时交上论文的,一律按不及格处理。
3、9月20日前由指导教师审阅并打出评语、评定成绩。
六、参考书目:
1、《Pro\ENGINEER塑料模具设计入门与实践》,作者:葛正浩
2、《Pro/ENGINEER中文野火版塑料模具设计从入门到精通》,作者:李刚
3、《Pro/E模具设计与工程应用精选50例》,作者:余强,周京平
4、《Pro/E Wildfire4中文版模具设计入门视频教程》,作者:王金生
七、毕业论文(设计)撰写、成绩评定要求及评分标准
1、毕业论文(设计)撰写要求:概念清楚、内容正确、条理分明、语言流
畅、数据完整、计算准确、图表齐全、文章结构严谨。
2、对毕业论文(设计)评定,参考以下四个方面
(1)对论文内容的评价;
(2)对学生综合素质能力的估计;
(3)对学生撰写论文中工作态度和写作水平的评定;
(4)论文的不足及改进。
3、成绩评定标准:
(1)优秀(90分以上)
能够很好地结合所学知识,能以正确的观点方法提出问题,并有创见性的解决问题。
内容充实具体,论文层次清楚,结构严谨,图表清晰,文笔流畅,无错别字,答辩时口头表达清楚,回答问题正确无误。
(2)良好(80-89分)
能够较好地综合运用所学知识,能以正确的观点方法较好地解决实际问题。
内容充实具体,论文结构严谨,图表清晰,文笔流畅,无错别字,答辩时口头表述清晰。
能正确回答问题。
(3)中等(70-79)
能够运用所学知识,能以较正确的观点方法一般地解决实际问题。
内容较充实,较具体,论文结构合理,图表清晰,文笔流畅,基本无错别字,答辩时表达能力较好,能一般地回答问题。
(4)及格(60-69)
基本观点正确,内容不够充实,论据不够有力,论证不够充分,理论结合实际不够,图表、论文无严重错误,文字尚通顺,错别字较少,答辩时经提示后能回答问题。
(5)不及格(60分以下)
有下列情况之一者毕业论文不及格:
未完成预订任务者;
抄袭他人的论文者;
没有掌握必要的基础理论和专业知识,基本观点有错误,数据和计算有严重错误,论文质量差者;
论文结果混乱,层次不清文字不通顺,错别字较多;
八、毕业论文(设计)打印及装订要求
1、毕业论文全部用标准A4复印纸打印,采用统一封面,左侧装订成
册。
2、打印格式:论文题目使用宋体三号加黑,正文标题使用宋体四号加
黑,正文使用宋体小四号,行距1.5倍,摘要、关键词使用宋体五号,参考文献使用宋体小五号。
3、毕业论文(设计)装订顺序:
一般为论文封面、课题任务书、论文目录、内容摘要、论文正文、参考文献、论文评语及答辩评分表。
附:备用设计题目:
如学生自己没有找到模具设计题目,可使用软件设计右图所示相机镜头盖的模具。
下图为相机镜头盖:材料:ABS。
根据图中尺寸在Pro/E中将镜头盖三维造型,并为其设计塑料模具。
(注:文档可能无法思考全面,请浏览后下载,供参考。
可复制、编制,期待你的好评与关注!)。