地上两层框架结构独栋别墅建筑、结构全套设计施工图
- 格式:dwg
- 大小:1.39 MB
- 文档页数:1
农村自建房2层半独栋别墅含水电、结构全套施工图纸
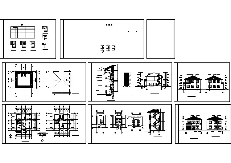
本户型为2层半独栋别墅,建筑面积682.4平米,占地面积246.97平米。
设有半地下层,建筑面积250.78平方米,有工人房、洗衣房、晾衣间、4间卧室、5个卫生间、健身房、家庭厅、桑拿淋浴室、双车库、5个衣帽间、设备用房、家庭影院;一层设有客厅、厨房、早餐厅、正餐厅、书房、卫生间3间、卧室2间、会客厅、2间衣帽间;二层设有主卧室、2间卧室、3个卫生间、活动室、起居室、4个衣帽间和一个梳妆台;
本户型外观造型简洁大方,色彩明快,功能分区合理,房间尺度设计适宜,采光通风良好,富有时代气息。
农村自建房设计要点及图纸分享
自建房,也叫单门独院,单门独户,独门独户,是泛指拥有自有土地的单位和个人,自己组织并通过雇佣他人施工,而建造的房屋和建筑。
自建房是我国传统建造方式的主流,尤其是在我国农村地区,农村居民几乎都是通过自建房方式,来满足各自的居住需求。
建房结构
自建房的方式:框架结构
框架结构的自建房的优点是:抗震8级、抗风13级,得房率比传统多50%,集成化的住宅,一年内占地100平方米内房屋可建好直接入住。
框架结构的梁、柱构件易于标准化、定型化,便于采用装配整体式结构,以缩短施工工期;采用现浇混凝土框架时,结构的整体性、刚度较好,设计处理好也能达到较好的抗震效果,而且可以把梁或柱浇注成各种需要的截面形状。
缺点就是用钢量比砖混结构高出约30%,与砖混结构相比,造价偏高。
自建房的方式:砌体结构
砖混结构的特点。
农村自建房中砖混结构最大的特点当然首先是以砖墙来做为承重体,还有就是造价比较低,相比较于框架结构来说,不管是人工还是材料都有很大的区别,成本差别最少在200元/平方以上。
而且砖混结构施工标准相对比较简单,就这点来说也被大多数农村自建房乐于接受。
新农村二层住宅全套施工图、效果图及方案说明 12x9ﻫ图纸预览图及简介:[仅是局部效果预览,详细内容及整套图纸请下载附件查看]内部功能分区该方案为二层,生活区主要位于首层,日常生活包括餐饮均设于此层。
厨房内设小餐桌,平时少人就餐可以使用,喜庆聚餐可移至室内餐厅及起居室,室内首层还设方便使用之父母房。
二层设主要家庭成员休息的三个卧室。
顶层晒台满足农民生产需要。
新技术,新设备及建筑设备选用情况ﻫ在该住宅方案设计中,采用节能灶,据村镇使用节能灶节约柴薪估计分析,比以往旧式炉灶可以节约一半以上,既可以燃烧充分又节能,可以达到环保节能之要求;在屋顶另设太阳能热水器,充分利用湛江地区丰富太阳能资源,满足家庭热水需要。
ﻫ建筑设备的选用方面,均选用无毒可再生节能设备,以达到环保之要求。
另外从现代生活环境情况考虑,农村生猪家禽与人混住存是一种不合适的人居环境,因此该方案考虑家禽生猪应根据总体另设专门集中喂养处。
ﻫﻫ主要经济技术指标ﻫ占地面积:110 m2;建筑面积:202.7 m2;使用面积:172.3 m2 ;使用面积系数:85 % ;阳台面积:4.7m2 ;概算:680元/ m2方案说明此方案受广大农民欢迎,设计人员根据农民的意见,本着设计为农民服务的精神,将方案做了部分修改,与效果图不完全相符。
设计方案以建筑结构图为准。
ﻫﻫ二层带院落住宅通用设计图(结构、电气、暖通、给排水、效果图)10x7ﻫ图纸预览图及简介:[仅是局部效果预览,详细内容及整套图纸请下载附件查看] 适用于华北地区新农村建设,抗震等级8级,其他地区可作参考。
建筑占地面积为:26.7m*7.2m;(此占地面积尺寸包含前后院落)建筑层数:二层;ﻫ建筑高度:7.8m(含屋顶);坡屋顶;建筑结构:砖混结构;设计功能:一层:客厅、门厅、内院、暖廊、走廊、卧室、卫生间、厨房、餐厅、杂物间、杂物院;二层:露台、内院上空、卧室两间、卫生间、家庭活动室、走廊; 图纸目录:总平面示意图、建筑设计说明、材料做发表、室内装修做发表、门窗表及门窗立面示意图、首层平面家具布置示意图、二层平面家具布置示意图、首层平面图(无残疾人坡导类型)首层平面图(有残疾人坡道类型)、二层平面、屋顶平面、1-8轴立面、8-1轴立面、1-1剖面、A-D轴立面、D-A轴立面、2-2剖面图、外墙详图、楼梯详图、厨房、卫生间详图;结构:结构说明、基础平面图、基础详图、二层楼板平面图、楼梯配筋详图;给排水:图例、主要设备表、标准图集、给排水设计说明、给水、热水、排水、雨水、系统图、一层给排水平面图、二层给排水平面图、卫生间给排水大样图;暖通空调:采暖通风设计说明、一层暗装采暖系统平面图、二层暗装采暖系统平面图、暗装采暖系统图、一层明装采暖系统平面图、二层明装采暖系统平面图、明装采暖系统图;电气:电气设计说明、图例、强弱电系统图、一层照明平面图、一层电气平面图、二层照明平面图、二层电气平面图、防雷接地平面图、一层弱电平面、二层弱电平面、效果图等。
如今农村的发展越来越好了,大家的经济条件也变好了。
所以很多有宅基地的人,开始回乡建别墅了。
在农村建一个独栋的小别墅,在围上一个院子里,种点花花草草,比在城市拥挤的房子里要好多了。
下面小编就跟大家推荐几款农村独栋小别墅户型图一、团圆版乡村别墅1、外观形象图主体结构:砖混占地面积:149m²室内布局:九室四厅四卫建筑面积:356m²建筑层数:两层+顶层阁楼面宽进深:14.3m*12.6m建筑风格:坡顶纯中式建筑层高:3.3m+3m2、户型平面图一层平面图:前厅、客厅、餐厅、厨房、老人房、娱乐室、保姆房、老人卫、公卫二层平面图:主卧、次卧1、次卧2、次卧3、儿童房、茶室、露台、主卫、公卫阁楼层平面图:103m²阁楼层可用空间,最高处2.5米。
伸缩梯上阁楼,设通风口,保障室内通风和照明。
木结构斜屋顶+木檩条+瓦,隔热保温效果好,确保二楼的舒适度。
二、最唯美乡村小墅1、外观形象图主体结构:砖混结构建筑面积:229m²户型布局:六室三厅四卫二露台面宽进深:8.8m*11.8m建筑层数:二层+阁楼层建筑层高:3.3+3+1.2~3m 占地面积:97m²2、户型平面图一层平面图:客厅、餐厅、厨房、老人房、老人卫、户外工作区二层平面图:卧室、子女房、书房、露台、阳台、卫生间1、卫生间2阁楼层平面图:储藏间、超大露台、储藏/临时卧室1、储藏/临时卧室2三、海派风格别墅1、外观形象图主体结构:砖混占地面积:132m²建筑风格:坡顶海派建筑面积:330m²室内布局:七室四厅三卫面宽进深:13.5m*11.5m 建筑层数:二层+顶层阁楼建筑层高:3.3m+3m 2、户型平面图一层平面图:前厅、客厅、餐厅、厨房、储藏1、储藏2、老人房、保姆房、公卫、户外平台二层平面图:主卧1、主卧2、次卧1、次卧2、家庭厅、茶室、观景阳台1、观景阳台2、主卫、公卫阁楼层平面图:伸缩楼梯上三楼,现浇楼板,木檩条增加防水卷材,作为隔热层保障二楼的舒适;阁楼超大空间做储物使用,储藏粮食、被褥等不常用物件,满足父母储物需求。