独栋别墅图纸(二层)
- 格式:pdf
- 大小:309.47 KB
- 文档页数:8
农村自建房2层半独栋别墅含水电、结构全套施工图纸
本户型为2层半独栋别墅,建筑面积682.4平米,占地面积246.97平米。
设有半地下层,建筑面积250.78平方米,有工人房、洗衣房、晾衣间、4间卧室、5个卫生间、健身房、家庭厅、桑拿淋浴室、双车库、5个衣帽间、设备用房、家庭影院;一层设有客厅、厨房、早餐厅、正餐厅、书房、卫生间3间、卧室2间、会客厅、2间衣帽间;二层设有主卧室、2间卧室、3个卫生间、活动室、起居室、4个衣帽间和一个梳妆台;
本户型外观造型简洁大方,色彩明快,功能分区合理,房间尺度设计适宜,采光通风良好,富有时代气息。
农村宅基地自建精致带车库的别墅设计图纸在农村自建房,如果不喜欢建太大面积又想实用。
下面这个户型就很适合你,精致而不局促,100平方左右竟然还可以轻松容纳车库!外观效果图屋顶采用多彩沥青瓦,二层用质感涂料或水泥纤维挂板,一层选用文化石。
三步入户台阶,车库,露台,门柱栏杆,多边形墙窗大面积采光。
外观让人感觉实用,层次感强。
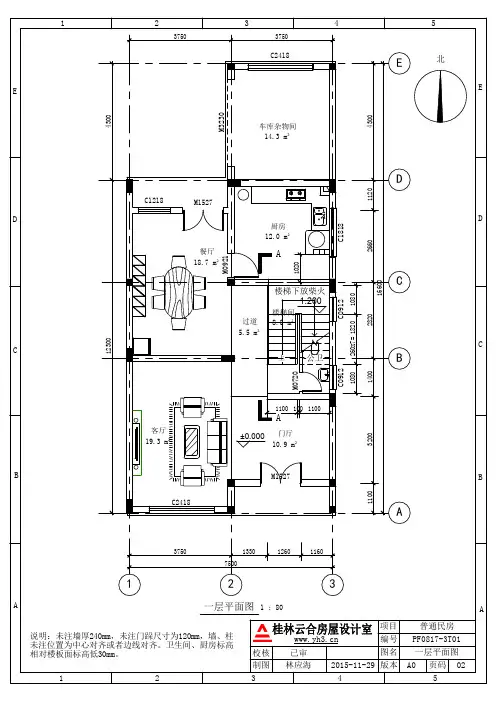
一层平面图大门进入就是玄关,餐桌。
右侧以转角楼梯为核心,采光最好的位置为客厅,楼梯上面的角落空间是卫浴,同样作为湿区的厨房挨着卫浴开门临近餐桌,左侧是卧室和车库。
看似有些杂乱,实则最大限度的利用了面积,方便生活。
二层平面图二楼一样从便利起居出发,围绕楼梯口三室一卫,采光最好的多窗卧室可以作为主卧,也便于户主观察楼下的环境。
亮点在左侧L型露台,充分利用了朝向(一般正面南),不浪费西南的一点阳光,面积也很够用,甚至可以轻松搭个葡萄架还有剩余空间晒日光浴。
30万建成农村宅院小别墅有图纸有实照/p-1459805947.html 适合农村宅基地建设的别墅图纸/p-72371428.html 精选10套小型别墅郊果图和平面户型图/p-97824705.html 农村宅基地建房外观效果图大集合/p-84539606.html /p-615881606.html 农村自建房超漂亮的户型设计/p-226596096.html /p-66130374.html 农村宅基地建造11G15米现代风格别墅的图纸/p-1884910845.html 简单时尚的9.5G10.5米农村自建房户型图纸/p-1884910844.html 农村自建12G10米经济实用别墅图纸/p-1884910846.html 外观时尚的农村3层别墅平面图和效果图/p-1884910847.html。
鼎川别墅设计图纸_二层农村双拼自建房设计图纸
建筑图:建筑设计说明、工程做法及门窗表、技术层平面图、一层平面图、二层平面图、屋顶平面图、正立面图、背立面图、左立面图、右立面图、A-A剖面图、楼梯大样图、节点详图
结构图:结构设计说明、基础平面图、基础详图、一层结构平面图、二层结构平面图、三层结构平面图、一层梁结构平面图、二层梁结构平面图、三层梁结构平面图、一层柱结构平面图、二层柱结构平面图、三层柱结构平面图、屋面板折角处配筋详图、楼梯结构图
给排水图:给排水设计说明、技术层给排水平面图、一层给排水平面图、二层给排水平面图、屋顶给排水平面图、给排水系统图
电气图:电气设计说明、电气系统图、电位联结做法、技术层照明平面图、一层照明平面图、二层照明平面图、一层插座平面图、二层插座平面图、技术层弱电平面图、一层弱电平面图、二层弱电平面图
技术层:车库、储藏间
一层:客厅、卧室、活动室、厨房、餐厅、卫生间、阳台
二层:起居室、主卧(附步入式衣柜,卫生间,阳台)、2卧室、书房、卫生间。
农村自建房二层别墅设计图纸及效果图大全
独特二层带车库别墅设计图纸及效果图_别墅设计图纸,农村房
效果图:
施工案例图:
二层别墅设计全套图纸效果图_别墅设计图纸,农村房屋设计图
图纸属性
效果图:
施工案例图:
新农村住宅方案_别墅设计图纸,新农村别墅,农村自建房设计
效果图:
施工案例图
二层农村自建房_别墅设计图纸,新农村房屋设计图,农村自建
效果图:
施工案例图:
要找更多二层别墅设计图纸,在别墅图纸超市有上千款设计图纸。
非常好看的农村二层别墅图纸设计范例精选汇总(建议收藏)今天为大家推荐几套不可错过的流行图纸。
下面就一起来看看吧。
图纸编号:gg057别墅风格:中式占地面积:320㎡建筑占地:11.9m×26.9m建筑面积:428㎡建筑整体为中式风格,该栋建筑并非是传统的方正格局,造型较为奇特。
立面多方位开窗设计,使得房屋舒适度更高。
一层入户门居中设计,开门便是挑空客厅,让室内显得敞亮阔气。
一层设有一间卧室,邻近公卫,便于居住者使用。
二层设有三间卧室,均设有阳台,可满足居住者多角度观景的需求。
大露台的设计为居住提供晾衣晒被和休闲的场所。
三层主要是阁楼空间,可灵活进行设计。
图纸链接:12x27二层中式庭院带阁楼别墅图纸编号:yg645别墅风格:中式占地面积:109㎡建筑占地:11.9m×9.2m 建筑面积:334㎡建筑整体为新中式风格,颜色选择上极为淡雅,底部采用面砖配合二层部分的白色真石漆形成舒适视觉感。
屋顶颜色与面砖相近,整体颜色运用突出不同空间。
地下空间相对私密,设计有汗蒸房、健身房、影音室和茶室,相对齐全的功能配合卧室可作业主自用空间。
考虑到卧室需要采光,在东侧和南侧设计有高窗,配合围墙的降低,使得地下空间也有极好居住环境。
一层入户空间利用出挑平台克服高差问题,平台作为室外活动区域,与室内环境相辅相成。
老人房占据东南角采光最好空间,并配有独立卫生间,方便老人日常生活使用。
客餐厅一体化设计让公共空间更加大气,多向采光也使得室内干燥通透,更利于身体健康。
二层为起居空间,共有两间卧室。
西侧卧室配有大面积衣帽间,并与书房紧邻,方便业主家人学习及生活使用。
整层阳台采用连通设计,增加各个房间之间的联系,使得平面更为整体。
图纸链接:占地12x9二层带庭院自建别墅设计全套施工图图纸编号:yg848别墅风格:欧式占地面积:251㎡建筑占地:18.6m×13.5m建筑面积:367㎡通过形体的错落来呼应实现造型的丰富,入口处加入欧式敞廊,作为雨篷强调了入口处的形式感,增加了住宅的华贵气息。
二层新农村小别墅全套图纸
图纸属性
编号:DC0140 层数:二层结构形式:砖混结构主体造价:16-20万
开间:10.76米进深:7.96米占地面积:102.4平方米建筑面积:196.6平方米图纸内容
建筑图:建筑设计说明、一层平面图、二层平面图、屋顶平面图、正立面图、背立面图、左立面图、右立面图、剖面图、门窗详图、门窗表
结构图:基础节点图、基础垫层布置图、基础梁布置图、二层梁布置图、屋顶梁布置图、二层板配筋图、屋顶板配筋图、室外台阶详图、阳台详图、屋顶结构透视图、天沟大样图给排水图:一层水路走向图、二层水路走向图、化粪池详图
电气图:配电系统图、一层插座布局图、二层插座布局图、一层布灯图、二层布灯图设计功能
一层:客厅、卧室、卧室(可作厨房)、餐厅、卫生间
二层:客厅(附阳台)、活动厅、3卧室、卫生间。
带庭院的农村小别墅设计图纸
在农村建套小别墅,围个小庭院,冬天一家人围坐在火炕上唠唠嗑,最美不过的事情了。
今天小编精心挑选的5款农村房屋设计图,都不超过20万,两款带火炕,一款有堂屋,造价都很便宜,建起来也很简单,中式风格,最适合建在农村。
户型一
建筑用地:11.1×10.5米
所需用地:15.34×14.24米(含庭院)
一层面积:99.65平方米
二层面积:97.32平方米
总建筑面积:196.97平方米
院落占地面积:205.84平方米
建筑高度:9.35米
平面功能
一层设计:客厅、餐厅、厨房、老人房(附卫生间)、卫生间、车库、储藏室;
二层设计:客厅、主卧(附卫生间)、卧室(附衣帽间)、卧室(附露台)、卫生间。
户型二。
一、新农村住宅户型户型一:地基:12mx12m占地面积:116平米,总建筑面积:213.53平米;户型二地基:9m x 13m占地面积:76.60平米,总建筑面积:185.11平米;三大材料用量估算:水泥44.64吨,钢筋6.932吨,多孔砖85.643立方米;北 W 2800 4M12004Si ■ __________ , E ____ C 」E M ■—一■Ml :5Cli ^0C-|R 17C iaa o 180Q 38C0 200%「 _____ 36口0 —土列现 J 个 ----------------------------------------------------------- r - 1工阳 ④一层平而图 33M _____ ___ :SM 舞茂 ._•‘」『.巫'工:一二rrj1 2 3 4 !6亚,-UJ JiL-. _4C日加融 U1S21I 殳:脑12ft『, ,,吊饼也苴 毫Cl 024 C1OM JM1225刘:伽户型三地基:9m x 12m占地面积:75.1平米,总建筑面积:119.7平米;三大材料用量估算:水泥32.28吨,钢筋4.753吨,多孔砖74.179立方米;LE f 二―%'田雨中*》:那,■ A)户型四:地基:12m x 10m占地面积:109.68平米,总建筑面积:287.82平米;®⑥ aw 2Q ,14 55ft 1 r D § (c) C 20 T?泞 s s 5U 42 DO 1s E E s J200 m ;…就 _it 孥< 4। _ 甲衽而诵版品 K % 1 耽 15) 1200 HOP 1 -0.3DO 京廿再 Bi J7 4M 土口00口 印氯|窗 9 GO 字赫: 下型帆配 riimm !BO0 建工। M M 一层平面二、双拼户型家里有两兄弟需要建房的可以考虑双拼的,一来兄弟间能有个照应,二来可以节省建筑成本。
一、新农村住宅户型户型一:地基:12m×12m占地面积:116平米,总建筑面积:213.53平米;户型二地基:9m×13m占地面积:76.60平米,总建筑面积:185.11平米;三大材料用量估算:水泥44.64吨,钢筋6.932吨,多孔砖85.643立方米;户型三地基:9m×12m占地面积:75.1平米,总建筑面积:119.7平米;三大材料用量估算:水泥32.28吨,钢筋4.753吨,多孔砖74.179立方米;户型四:地基:12m×10m占地面积:109.68平米,总建筑面积:287.82平米;二、双拼户型家里有两兄弟需要建房的可以考虑双拼的,一来兄弟间能有个照应,二来可以节省建筑成本。
户型一地基:24m×10m占地面积:178.46平米,总建筑面积:284.2平米;户型二地基:19m×12m占地面积:123平米,总建筑面积:213.2平米;三、独栋别墅户型独栋别墅即独门独院,上有独立空间,下有私家花园领地,是私密性很强的独立式住宅,表现为上下左右前后都属于独立空间,一般房屋周围都有面积不等的绿地、院落。
这一类型是别墅历史最悠久的一种,也是别墅建筑的终极形式。
在城市里花50万买一百平米,在农村却可以建这样的别墅:户型一:地基:14m×15m占地面积:147.7平米,总建筑面积:366.4平米;户型二:地基:13m×16m占地面积:130平方米,总建筑面积:310平方米;户型三:地基:14m×13m占地面积:170.38平米,总建筑面积:412.72平米;户型四:地基:8m×12m占地面积:88.7平米,总建筑面积:220.9平米;四、精选小成本户型如果感觉以上房屋建筑成本太高,手头又没有足够的资金,可以考虑以下户型:户型一:地基:12m×9m占地面积:80.3平米,总建筑面积:80.3平米;三大材料用量估算:水泥22.85吨,钢筋2.77吨,多孔砖57.702立方米;户型二:地基:11m×9m占地面积:89.96平米,总建筑面积:185.92平米;三大材料用量估算:水泥44.07吨,钢筋6.544吨,多孔砖90.525立方米;户型三:地基:11m×10m占地面积:89.66平米,总建筑面积:174.61平米;三大材料用量估算:水泥40.61吨,钢筋5.929吨,多孔砖88.851立方米;户型四:地基:8m×12m占地面积:75.1平米,总建筑面积:119.7平米;三大材料用量估算:水泥49.47吨,钢筋7.771吨,多孔砖86.371立方米;户型五:地基:8m×10m占地面积:80平米,总建筑面积:160平米;户型六:地基:8m×10m占地面积:89.60平米,总建筑面积:194.94平米。