重力式挡土墙设计实例
- 格式:doc
- 大小:354.00 KB
- 文档页数:6
(一)重力式挡土墙设计实例1、某二级公路重力式路肩墙设计资料如下:(1)墙身构造:墙高5m ,墙背仰斜坡度:1:0.25(=14°02′),墙身分段长度20m ,其余初始拟采用尺寸如图3-40示;(2)土质情况:墙背填土容重γ=18kN/m 3,摩擦角φ=35°;填土与墙背间的摩擦角δ=17.5°;地基为岩石地基容许承载力[σ]=500kPa ,基地摩擦系数f=0.5;(3)墙身材料:砌体容重γ=20kN/m 3, 砌体容许压应力[σ]=500kPa ,容许剪应力[τ]=80kPa 。
图3-40 初始拟采用挡土墙尺寸图2、破裂棱体位置确定:(1)破裂角(θ)的计算假设破裂面交于荷载围,则有:14021730353828ψαδφ'''++-++o o o o ===90ω<o 因为00000111()(22)tan 0(00)(2)tan 222B ab b d h H H a h h H H h αα=++-++=++-+01(2)tan 2H H h α=-+00011(2)()(2)22A a H h a H H H h =+++=+根据路堤挡土墙破裂面交于荷载部时破裂角的计算公式:tg tg θψ=-tg ψ=-+3828tg '=-o0.7945=-+0.7291=36544θ'''=o(2)验算破裂面是否交于荷载围:破裂契体长度:()()050.72910.25 2.4L H tg tg m θα=+=-=车辆荷载分布宽度:()12 1.8 1.30.6 3.5L Nb N m d m =+-+=⨯++=所以0L L <,即破裂面交于荷载围,符合假设。
3、荷载当量土柱高度计算:墙高5米,按墙高确定附加荷载强度进行计算。
按照线性插法,计算附加荷载强度:q =16.25kN/m 2,016.250.918q h m γ=== 4、土压力计算()()()()01120 5.020 5.01722A a H a H +++=++⨯+=0=h 0.9 ()()()()011122tan 5.0502tan 142 4.25222B ab b d H H a α'++-++⨯++⨯-=o 00=h h =0+0-0.9 根据路堤挡土墙破裂面交于荷载部土压力计算公式:()()()()()()a 003654435tan 18170.7291 4.2549.25sin sin 365443828E A B KN θφγθθψ'''++=-=⨯⨯-=+'''''+o o o o cos cos ()()X a 49.25142173049.14E E KN αδ''=+=-+=o o cos cos()()y a sin 49.25sin 1421730 2.97E E KN αδ''=+=-+=o o5、土压力作用点位置计算:5 1.36H =⨯=10K =1+2h 1+20.9X101/3/35/30.9/3 1.36 1.59Z H h K m =+=+⨯=-查数学手册X1Z -土压力作用点到墙踵的垂直距离;6、土压力对墙趾力臂计算基地倾斜,土压力对墙趾力臂:X X11 1.590.19 1.4Z Z h m =-=-=y 1X 0.98 1.40.25 1.33Z b Z tg m α=-=+⨯=7、稳定性验算(1)墙体重量及其作用点位置计算:挡墙按单位长度计算,为方便计算从墙趾处沿水平方向把挡土墙分为两部分,上部分为四边形,下部分为三角形:1110.98 4.48 4.71V b H m =⨯=⨯=11 4.712094.28G V KN γ=⨯=⨯=()G1111 1.09Z H tg b m α=+=/2 -查数学手册21110.50.980.190.093V b h m =⨯⨯=⨯⨯=/2221 1.86G V KN γ=⨯=G20.6510.6510.980.64Z b m =⨯=⨯= -查数学手册(2)抗滑稳定性验算:00.21111836α'''o 倾斜基地:(=),验算公式:()()Q1y x 0Q2P 0Q1y 0Q1x Q2P 1.1tan tan 1.1tan 0G E E E G E E E γαγαμγαγγ⎡⎤++-++-+>⎣⎦()()1.196.14 1.4 2.9749.140.19800.5 1.196.14 1.4 2.970.198 1.449.140⨯+⨯+⨯-⨯+⨯+⨯⨯-⨯+⎡⎤⎣⎦ ()()105.75 1.42.979.730.5105.75 4.160.19868.80=++⨯++⨯-⎡⎤⎣⎦10.280=>所以抗滑稳定性满足。
重力式挡土墙设计范例重力式挡土墙设计范例1. 引言重力式挡土墙是一种常见的土木工程结构,常用于土地开发和交通基础设施建设中。
本将详细介绍重力式挡土墙的设计原理、施工步骤和施工注意事项。
2. 设计原理2.1 挡土墙的作用重力式挡土墙是通过重力作用来抵抗土壤的侧推力,保持土地的稳定。
挡土墙通过其自身的重量来产生对土体的压力,从而抵消土壤的剪切力。
2.2 土体力学参数在进行重力式挡土墙设计之前,需要确定土体的力学参数,如土壤的重度、摩擦角、内摩擦角等。
这些参数对挡土墙的设计和稳定性分析至关重要。
2.3 挡土墙的形式重力式挡土墙可以采用不同的形式,如重力墙、重力墙+钢筋混凝土面板、重力墙+土钉墙等。
选择合适的形式要考虑土体的特性、设计要求和经济性。
3. 设计步骤3.1 确定土体参数通过土体试验和现场勘察,确定土体的重度、摩擦角、内摩擦角等力学参数。
这些参数将用于挡土墙的稳定性分析。
3.2 计算挡土墙的稳定性根据土体参数和设计要求,进行挡土墙的稳定性分析。
主要包括计算侧推力、地震力、抗滑稳定性和抗倾覆稳定性等。
3.3 选择适当的挡土墙形式和材料根据设计要求和经济性,选择适当的挡土墙形式和材料。
考虑到挡土墙的稳定性、耐久性和施工难度等因素。
3.4 进行结构设计和荷载计算根据挡土墙的形式和材料,进行挡土墙的结构设计和荷载计算。
确保挡土墙能够承受设计荷载并保持稳定。
3.5 进行施工准备工作在施工挡土墙之前,需要进行施工准备工作。
包括地面平整、挖掘基坑、打地基等。
确保基坑和基础能够满足设计要求。
3.6 进行挡土墙的施工根据设计要求和施工图纸,进行挡土墙的施工。
主要包括搭建模板、浇筑混凝土、安装钢筋、固化混凝土等工作。
3.7 进行监测和验收在挡土墙施工完成后,需要进行监测和验收工作。
主要包括挡土墙的变形监测、荷载测试和质量验收等。
4. 施工注意事项4.1 施工材料的选择在进行重力式挡土墙的施工时,需要选择适当的材料。
重力式挡土墙计算实例一、计算资料某二级公路,路基宽8.5m ,拟设计一段路堤挡土墙,进行稳定性验算。
1.墙身构造:拟采用混凝土重力式路堤墙,见下图。
填土高a=2m ,填土边坡1:1.5(4133),墙身分段长度10m 。
2.车辆荷载:二级荷载3.填料:砂土,容重3/18m KN ,计算内摩擦角35,填料与墙背的摩擦角2。
4.地基情况:中密砾石土,地基承载力抗力a KP f500,基底摩擦系数5.0。
5.墙身材料:10#砌浆片石,砌体容重3/22m KN a ,容许压应力[a ]a KP 1250,容许剪应力[]aKP 175βθα二、挡土墙尺寸设计初拟墙高H=6m ,墙背俯斜,倾角2618(1:0.33),墙顶宽b 1=0.94m ,墙底宽B=2.92m 。
三、计算与验算1.车辆荷载换算当m 2时,a KP q 0.20;当m H 10时,aKP q 10由直线内插法得:H=6m 时,aKP q 1510102021026换算均布土层厚度:mr q h 83.0181502.主动土压力计算(假设破裂面交于荷载中部)(1)破裂角由30172352618,,得: 56703017261835149.028.77318.2381.1183.022626261883.024665.0383.025.1222222000))(()()())(()()(tg h a H a H tg h aH H d bh ab A 55.0443.3893.2149.0893.2893.2428.1893.2149.056705670355670))(())(())((tg tg ctg tg A tg tg ctg tgtg 492881.28验核破裂面位置:路堤破裂面距路基内侧水平距离:mb H t g tg a H 4.3333.0655.0)26()(荷载外边缘距路基内侧水平距离: 5.5+0.5=6m因为:0.5〈3.4〈6,所以破裂面交于荷载内,假设成立(2)主动土压力系数K 和1152.2261855.055.0231tg tg tg atg b h 566.0261855.05.02tg tg tg d h 282.3566.0152.26213h h H h 395.0261855.0()56704928sin()354928cos(()sin()cos())tg tg tg K698.1151.0547.016282.383.02)12152.21(6412)21(21223011H h h H h Ha K (3)求主动土压力a 及土压力的作用点KN KK a 31.217698.1395.06182121212KN E a x96.175)30172618cos(31.217)cos(KN E a y53.127)30172618sin(31.217)sin(mK H H h h h h H a H Z x 13.2129.02698.163)62282.33(282.383.0)152.26(2363)23()(3221233021m tg tg Z B Z x y 22.2261813.292.2因基底倾斜,土压力对墙趾的力臂x Z 改为:mB Zx x Z 55.12.092.213.2tan 03.稳定性验算一般情况下,挡土墙的抗倾覆稳定性较容易满足,墙身断面尺寸主要由抗滑稳定性和基底承载力来控制,故选择基底倾斜1:5(18110)(1)计算墙身重G 及力臂(取墙长1m 计)KN tg Btg B H B b A G a a 2362285.058.1122]181192.292.221)92.294.0(3[1]21)(21[01)(由力矩平衡原理:a G B Ab B b A b A G ]3)3(2[311211(其中:H b A 11,)(2112b B H A ,1321Bh A )则:22]392.2181192.292.221)394.092.294.0()94.092.2(621294.0694.0[236tg GmG 05.1(2)抗滑稳定性验算x Q Q x y Q y E G E G1001t a n )1.1(]t a n (1.1[1,(5.0,4.11Q )1811)53.1274.12361.1(5.0]2.096.17553.127(4.12361.1[tan )1.1()]tan (1.1[0011tg E G E G y x y Q Q 34.33134.24696.1754.11X Q anghuak331.34 〉246.34,故满足抗滑稳定性的方程。
(一)重力式挡土墙设计实例1、某二级公路重力式路肩墙设计资料如下:(1)墙身构造:墙高5m ,墙背仰斜坡度:1:0.25(=14°02′),墙身分段长度20m ,其余初始拟采用尺寸如图3-40示;(2)土质情况:墙背填土容重γ=18kN/m 3,内摩擦角φ=35°;填土与墙背间的摩擦角δ=17.5°;地基为岩石地基容许承载力[σ]=500kP a ,基地摩擦系数f=0.5;(3)墙身材料:砌体容重γ=20kN/m 3, 砌体容许压应力[σ]=500kP a ,容许剪应力[τ]=80kPa 。
图3-40 初始拟采用挡土墙尺寸图2、破裂棱体位置确定:(1)破裂角(θ)的计算假设破裂面交于荷载范围内,则有:14021730353828ψαδφ'''++-++ ===90ω< 因为00000111()(22)tan 0(00)(2)tan 222B ab b d h H H a h h H H h αα=++-++=++-+01(2)tan 2H H h α=-+00011(2)()(2)22A a H h a H H H h =+++=+根据路堤挡土墙破裂面交于荷载内部时破裂角的计算公式:tan tan θψ=-+tan ψ=-+tan3828︒'=-+0.7945=-0.7291= 36544θ'''=(2)验算破裂面是否交于荷载范围内:破裂契体长度:()()0tan tan 50.72910.25 2.4L H m θα=+=-=车辆荷载分布宽度:()12 1.8 1.30.6 3.5b L N N m d m =+-+=⨯++=所以0L L <,即破裂面交于荷载范围内,符合假设。
3、荷载当量土柱高度计算:墙高5米,按墙高确定附加荷载强度进行计算。
目录1.设计资料 (2)2.墙型选择 (3)3.挡土墙布置 (4)3.1基础埋置深度 (4)4.挡土墙的构造和尺寸初拟 (4)5.挡土墙的主动土压力 (5)5.1车辆荷载作用下的土压力 (5)5.2复杂边界条件下的主动土压力 (5)5.3土压力作用位置 (8)6.挡土墙的验算 (9)6.1抗滑移验算 (9)6.2抗倾覆验算 (9)6.3 地基应力及偏心距验算 (10)6.4 基础强度验算 (10)6.5 墙底截面强度验算 (10)6.6极限状态验算法 (11)7.改进措施 (15)重力式挡土墙设计1.设计资料(1)高速公路,双向四车道路基宽度为路基宽度26米,即:3.50(中间带)+4×3.75(行车道) +2×3.00( 硬路肩)+2×0.75(土路肩)。
边坡坡度为1:1.5,高填方路堤段,中心填筑高度为10m ,地面坡度平均为5%。
(2)大体可变荷载只考虑正常利用情形下的行车荷载。
(3)挡土墙墙身材料,石料为MU30,砂浆为M7.5,其允许压应力为[]=1500kpa σ,允许剪应力为[]=190kpa τ 。
(4)地基为土质地基,以砂性土为要紧,挡土墙基底的摩擦系数为0.36,地基的承载能力特点值为350kPa 。
(5)墙后填料为砂类土,填土重度取193kN/m ,内摩擦角ϕ为︒34,粘聚力近似为0kPa 。
(6)墙背与填土间的摩擦角δ为ϕ1/2。
(7)季节性冰冻地域,本地最大冻深为1.8m 。
(8)挡土墙设计荷载组合取组合Ⅱ。
(9)其他需要的建筑供给充沛,自行选择,相关资料参照标准选取。
2.墙型选择常见的挡土墙形式有重力式、衡重式、悬臂式、扶壁式、加筋土式、锚杆式和锚定板式及桩板式等。
重力式挡土墙要紧依托墙身自重维持稳固,取材容易,形式简单,施工简便,适用范围普遍。
重力式挡土墙墙身截面大,圬工数量也大,在软弱地基上修建往往受到地基承载力的限制。
若是墙太高,材料花费多,那么不经济。
重力式挡土墙设计实例设计实例:地坡道挡土墙设计1.工程背景:地坡道长200米,最大高度10米。
地基为砂质土壤,土体粒径分析显示主要由干砂组成,内摩擦角为35度,容重为18kN/m³。
设计要求挡土墙能够抵抗土体的水平推力。
2.坡度分析:根据地坡高和水平距离,计算坡度。
使用一坡三坡图法,确定化简的坡度,以保证坡度均衡,并减少地形改变的需求。
3.坡道设计:根据地坡高和坡度分析结果,设计坡道。
确定坡道长度、坡顶宽度和坡底宽度,保证坡道稳定和路面设计要求。
4.挡土墙类型选择:根据挡土墙高度、土体参数和设计要求,选择合适的挡土墙类型。
在这个案例中,重力式挡土墙是合适的选择。
5.摩擦力计算:根据土体参数和墙体几何特征,计算土体的水平推力和墙体的摩擦力。
摩擦力大小应大于土体的水平推力,以保证挡土墙的稳定性。
6.底座宽度计算:根据土体参数和墙体高度,计算挡土墙底座的宽度。
底座宽度应足够大,以保证挡土墙的稳定和抗滑性能。
7.墙体高度计算:根据土体参数和挡土墙的几何形状,计算合理的墙体高度。
墙体高度应满足稳定性和承载能力的要求。
8.墙体尺寸计算:根据挡土墙的高度和几何形状,计算墙体的尺寸。
包括墙身厚度和墙脚截面宽度等,以确保墙体的稳定和承载能力。
9.墙体内力计算:根据挡土墙的几何形状和土体参数,计算墙体内力。
包括弯矩和剪力等,以保证墙体的结构安全。
10.墙体排水设计:根据场地情况和土体参数,设计挡土墙的排水系统。
确保排水的顺利进行,防止土体饱和和墙体的变形和破坏。
11.墙体施工:根据设计图纸和规范要求,进行挡土墙的施工。
确保施工质量和施工过程的安全。
12.墙体监测和维护:在挡土墙竣工后,进行墙体的监测和维护工作。
及时发现和处理墙体的变形和破坏,确保工程的可持续运行。
以上是关于重力式挡土墙设计实例的简要介绍。
在实际设计中,还需要结合具体场地要求和土体参数进行综合考虑,以确保挡土墙的稳定和安全性。
设计过程中需要参考国家和地区的相关规范和标准,并严格按照标准要求进行设计、施工和维护。
重力式挡土墙设计1 设计参数几何参数:挡土墙墙高H=6m, 取基础埋置深度D=1.5m (按规范规定, D 不小于1.0m, 本设计中可取1.25m 或1.5m ), 挡土墙纵向分段长度取L=10m ;墙面与墙背平行, 墙背仰斜, 仰斜坡度1:0.2, =-11.3°(注意这个角度是负值), 墙底(基底)倾斜度tan =0.190, 倾斜角 =10.76°;墙顶填土高度 =2m, 填土边坡坡度1:1.5, =arctan (1.5) =33.69°, 汽车荷载边缘距路肩边缘 =0.5m ;力学参数:墙后填土砂性土内摩擦角 =34°, 填土与墙背外摩擦角 = /2=17°, 填土容重 =18kN/m ;墙身采用 2.5号砂浆砌25号片石, 墙身砌体容重 =22kN/m ,砌体容许压应力[ ]=600kPa,砌体容许剪应力[ ]=100kPa,砌体容许拉应力[ ]=60kPa ;地基容许承载力[0σ]=250kPa 。
2 车辆荷载换算按墙高确定的附加荷载强度进行计算γq h =0=1815=0.83 3 主动土压力计算3.1 计算破裂角θ直线形仰斜墙背, 且墙背倾角 较小, 不会出现第二破裂面。
经验算, 按破裂面交于荷载中部进行计算 a=2m,b==βtan a 667.02=3m,d=0.5m,H=6m,m h 83.00=,°34=ϕ,°17=δ, °-11.3α= 39.7δ+α+ωψ==° ﹚2h ﹙H+a ﹚﹙H+a+﹚2h 2a ﹙b+d ﹚-H ﹙H++2h 00+=ab A αtan =0.33θtan =-﹚A ω﹚﹙tan ωtan ﹙cot ±ψtan ++ϕ=0.81或-2.47(舍) 39arctan0.81θ==°3.2 计算主动土压力a E 及其作用点位置3.2.1计算主动土压力a E﹚αtan ﹙tan ﹚sin ﹙﹚﹙cos +++=θψθϕθa K =0.18αθtan tan 0+=dh =0.82mαθαtan tan tan 3+-=a b h =2.26m =--=321h h H h 2.92m=+-+=210312)21(21Hhh H h H a K 1.68 12γH 21K K E a a ==98KN ﹚δ+α﹙cos a x E E ==97.5KN y E ﹚δ+αin ﹙s E a ==9.7KN3.2.2计算主动土压力的合力作用点位置经试算, 取挡土墙顶宽 2.8m011tan tan ααb b B +==2.6912110233)23(h h -2(3K H H h h H a H Z x -++=)=2.1m αtan -Z x B Z y ==2.69+2.1×0.2=3.1m将 , 修正为 ,1X Z =01tan αb Z x -=2.1-2.8×0.19=1.57m 1y Z =αtan 11x Z b -=2.8-1.57×(-0.2)=3.11m3.3 被动土压力墙前的被动土压力忽略不计。
重力式挡土墙设计一、设计题目重力式挡土墙(仰斜式)设计 二、设计资料1) 公路等级:二级2) 墙身构造:墙高6m ,墙背仰斜坡度1:0.16,墙身分段长度20m.3) 土质情况:墙背填土重度γ=18kN/m3,内摩擦角为φ=36°;填土与墙背间的摩擦角为δ=18°;地基为岩石,地基容许承载力[σ]=500kPa ,基底摩擦系数f=0.5。
4) 墙身材料:砌体重度γ1=20kN/m3,砌体容许压应力[σ]=500kPa ,容许剪应力[τ]=80kPa 。
5) 建设地点为某一级公路DK23+415.00DK23+520.00段,在穿过一条深沟时,由于地形限制,无法按规定放坡修筑路堤,而采取了贴坡式(仰斜式)浆砌片石挡土墙。
线路经过的此处是丘陵地区,石材比较丰富,挡土墙在设计过程中应就地选材,结合当地的地形条件,节省工程费用。
6) 挡土墙布置形式及各项计算参数如下图所示:7)H=6 b 1=1h 0 H 1=5.84h 1=0.16α= -9°05′α= 9°05′设计计算一、主动土压力计算1)计算破裂角假设破裂面交于荷载范围内,则有:Ψ = α+φ+δ= -9°05′+36°+18°=44°55′<90°tan θ= -tanΨ+√(cotφ+tanΨ)(tanΨ+tanα)=-tan44°55′+√(cot36°+tan44°55′)(tan44°55′+tan9°05′)=-0.99709+√(1.37638+0.99709)(0.99709+0.15987)=0.66001θ =tan-1θ = 33°25′32″2)计算主动土压力系数K和K1,(tanθ+tanα)K = cos(θ+φ)sin(θ+Ψ)(tan33°25′-tan9°05′)= cos(33°25′+36°)sin(33°25′+44°55′)=0.162按照线性内插法,计算附加荷载强度:q = 20 +(((20-10)/(2-10))× (6-2)) = 15 KPah0= q /γ= 15/18 = 0.83mK1 = 1+(2h0 / H)=1+(2×0.83/6)=1.28mZ y1= H/3+h0 /(3×K1)=6/3+0.83/(3×1.28)=2.22mZy = Z y1 -h1 =2.22-0.16 =2.06mZx = b1+Z y tanα =1+2.06×0.15987 =1.33m3)计算主动土压力的合力作用点E = 1/2γH² K K1 = 0.5×18×6²×0.162×1.28 =67.18 KNE x= Ecos(α+δ)=67.18×cos(18°-9°05′)=63.37 KNE y = Esin(α+δ)=67.18×sin(18°-9°05′)=9.45 KN二、挡土墙截面计算1)计算墙身重G及力臂Z G1、墙身体积计算:V1= b1(H-b1 tanα0)= 1×(6 - 1×0.16)=5.84 m³V2 = 0.5 b1²tanα0=0.5×1²×0.16 =0.08 m³2、墙身自重计算:G1 = V1 γ1 =5.84×20 =116.8 KNG2 = V2 γ1 =0.08×20 =1.6 KNG = G1+G2 =116.8+1.6 =118.4 KN3、力臂Z计算:ZG1 = 0.5(H1 tanα+b1)=0.5(5.84×0.15987+1)=0.97mZG2 = 0.651 b1=0.651×1=0.65mZG = (ZG1 G1 +ZG2 G2)/G =(0.97×116.8 +0.65×1.6)/118.4 =0.96m2)抗滑稳定性验算(1.1G+γQ1 E y)μ+1.1G tanα0=(1.1×118.4+1.4×9.45)×0.5+1.1×118.4×0.15987= 92.56KN >γQ1 E x=1.4×63.37= 88.72KN满足抗滑稳定性要求。
重力式挡土墙设计范例一、工程背景假设我们要在一个坡度较陡的山坡上修建一条道路,为了保证道路的稳定性和安全性,需要在道路一侧设置重力式挡土墙。
该山坡的土体主要为粉质黏土,重度为 18kN/m³,内摩擦角为 20°,粘聚力为15kPa。
道路的设计荷载为公路I 级。
二、设计要求1、挡土墙高度:根据地形和道路设计要求,确定挡土墙的高度为5m。
2、稳定性要求:挡土墙在自重、土压力和其他荷载作用下,应满足抗滑移和抗倾覆稳定性要求。
3、基底应力要求:基底平均应力不应超过地基承载力,且最大应力与最小应力之比不应超过规定值。
三、设计参数1、墙身材料:采用浆砌片石,重度为 22kN/m³,抗压强度为30MPa。
2、基础材料:采用混凝土基础,重度为 25kN/m³,抗压强度为25MPa。
四、土压力计算1、主动土压力系数:根据库仑土压力理论,计算主动土压力系数Ka。
Ka = tan²(45° 20°/2) = 0492、土压力分布:土压力呈三角形分布,顶部土压力为零,底部土压力强度为:e =Ka × γ × h = 049 × 18 × 5 = 441kN/m3、土压力合力:土压力合力 Ea 为土压力分布图形的面积,即:Ea = 05 × 441 × 5 = 11025kN4、土压力作用点位置:距墙底的距离为 h/3 = 5/3 = 167m。
五、稳定性验算1、抗滑移稳定性验算:抗滑移稳定性系数 Ks =(W +Ey)μ / Ex其中,W 为挡土墙自重,Ey 为墙后土压力的水平分力,Ex 为墙后土压力的水平分力,μ 为基底摩擦系数。
挡土墙自重 W = 05 × 5 ×(22 18) × 5 + 5 × 18 = 275kNEy =Ea × cos(α δ) = 11025 × cos(0 10°)= 1081kN (假设墙背与填土之间的摩擦角δ = 10°)Ex =Ea × sin(α δ) = 11025 × sin(0 10°)=-191kN基底摩擦系数μ 取 04,则:Ks =(275 + 1081) × 04 / 191 = 78 > 13 (满足要求)2、抗倾覆稳定性验算:抗倾覆稳定性系数 Kt =(G × x0 + Ey × zy) /(Ex × zx)其中,G 为挡土墙自重,x0 为挡土墙重心到墙趾的水平距离,zy 为 Ey 作用点到墙趾的距离,zx 为 Ex 作用点到墙趾的距离。
挡土墙计算实例在土木工程中,挡土墙是一种常见的结构,用于支撑土体或防止土体坍塌。
为了确保挡土墙的稳定性和安全性,需要进行精确的计算。
下面将通过一个具体的实例来详细介绍挡土墙的计算过程。
假设我们要设计一个重力式挡土墙,用于支撑高度为 5 米的填土。
填土的物理性质如下:重度为 18kN/m³,内摩擦角为 20°,粘聚力为10kPa。
首先,我们需要确定挡土墙的尺寸。
假设挡土墙的顶宽为 1 米,底宽为 3 米,墙高为 5 米。
接下来,计算土压力。
土压力的计算可以采用库仑土压力理论或朗肯土压力理论。
这里我们采用库仑土压力理论。
根据库仑土压力理论,主动土压力系数可以通过以下公式计算:Ka =tan²(45° φ/2)其中,φ 为填土的内摩擦角。
将φ = 20°代入公式,可得 Ka = 049。
主动土压力的大小可以通过以下公式计算:Ea =05 × γ × h² × Ka其中,γ 为填土的重度,h 为填土的高度。
将γ = 18kN/m³,h =5m,Ka = 049 代入公式,可得 Ea = 11025kN/m。
土压力的作用点位于距离墙底高度为 h/3 处,即 5/3 = 167m 处。
然后,我们需要计算挡土墙的自重。
挡土墙的体积可以通过梯形面积乘以长度来计算。
体积= 05 ×(1 + 3) × 5 ×长度假设长度为 1m,则体积为 10m³。
挡土墙的材料假设为混凝土,其重度为25kN/m³,则自重为250kN。
接下来,计算挡土墙的抗滑稳定性。
抗滑力=墙底摩擦力+墙底粘聚力墙底摩擦力=μ × 自重其中,μ 为墙底与地基之间的摩擦系数,假设为 04。
则墙底摩擦力= 04 × 250 = 100kN墙底粘聚力= c ×底宽其中,c 为墙底与地基之间的粘聚力,假设为 20kPa。
1、某二级公路重力式路肩墙设计资料如下,请验算该挡土墙得稳定性。
(1)墙身构造:墙高5m ,墙背仰斜坡度:1:0、25(=14°02′),墙身分段长度20m ,其余初始拟采用尺寸如图3-40示;(2)土质情况:墙背填土容重γ=19kN/m 3,内摩擦角φ=35°;填土与墙背间得摩擦角δ=19、5°;地基为岩石地基容许承载力[σ]=550kPa ,基地摩擦系数f=0、55;(3)墙身材料:砌体容重γ=22kN/m 3, 砌体容许压应力[σ]=500kPa ,容许剪应力[τ]=100kPa 。
图3-40 初始拟采用挡土墙尺寸图2、破裂棱体位置确定:(1)破裂角()得计算假设破裂面交于荷载范围内,则有:14021*******ψαδφ'''++-++o o o o ===4000000111()(22)tan 0(00)(2)tan 222B ab b d h H H a h h H H h αα=++-++=++-+00011(2)()(2)22A a H h a H H H h =+++=+ 根据路堤挡土墙破裂面交于荷载内部时破裂角得计算公式:tg tg θψ=-+tg ψ=-4028tg '=-+o0.8531=-(2)验算破裂面就是否交于荷载范围内:破裂契体长度:()()050.73320.25 2.416m L H tg tg θα=+=-=车辆荷载分布宽度:()12 1.8 1.30.6 3.5m L Nb N m d =+-+=⨯++=所以,即破裂面交于荷载范围内,符合假设。
3、荷载当量土柱高度计算墙高5米,按墙高确定附加荷载强度进行计算。
按照线性内插法,计算附加荷载强度:q =16、25kN/m 2,4、土压力计算()()()()01120 5.020 5.01722A a H a H +++=++⨯+=0=h 0.9 ()()()()011122tan 5.0502tan 142 4.25222B ab b d H H a α'++-++⨯++⨯-=o 00=h h =0+0-0.9 根据路堤挡土墙破裂面交于荷载内部土压力计算公式:()()()()()()a 00361535tan 19170.7332 4.2551.49kN sin sin 36154028E A B θφγθθψ'++=-=⨯⨯-=+'''+o o o o cos cos ()()X a 51.49142193051.26kN E E αδ''=+=-+=o o cos cos()()y a sin 51.49sin 1421930 4.91kN E E αδ''=+=-+=o o5、土压力作用点位置计算:1.36H =⨯=10K =1+2h 1+20.9X101/3/35/30.9/3 1.36 1.59Z H h K m =+=+⨯=-查数学手册-土压力作用点到墙踵得垂直距离;6、土压力对墙趾力臂计算基地倾斜,土压力对墙趾力臂:X X11 1.590.19 1.4m Z Z h =-=-=y 1X 0.98 1.40.25 1.33m Z b Z tg α=-=+⨯=7、稳定性验算(1)墙体重量及其作用点位置计算:挡墙按单位长度计算,为方便计算从墙趾处沿水平方向把挡土墙分为两部分,上部分为四边形,下部分为三角形:1110.98 4.48 4.71m V b H =⨯=⨯=11 4.7122kN G V γ=⨯=⨯=103.62()()G11111 4.480.250.98 1.05m Z H tg b α=+=⨯+=/2/2 -查数学手册21110.50.980.190.093m V b h =⨯⨯=⨯⨯=/22210.09322 2.046kN G V γ=⨯=⨯=G20.6510.6510.980.64m Z b =⨯=⨯= -查数学手册(2)抗滑稳定性验算:((此步骤按路基规范上得公式计算)00.21111836α'''o 倾斜基地:(=),验算公式:()()Q1y x 0Q2P 0Q1y 0Q1x Q2P 1.1tan tan 1.1tan 0G E E E G E E E γαγαμγαγγ⎡⎤++-++-+>⎣⎦()()1.1105.67 1.4 4.9151.260.19800.55 1.1105.67 1.4 4.910.198 1.451.260⨯+⨯+⨯-⨯+⨯+⨯⨯-⨯+⎡⎤⎣⎦ ()()116.24 1.44.9110.150.55116.24 6.870.19871.76=++⨯++⨯-⎡⎤⎣⎦所以抗滑稳定性满足。
100 4一一口o 5 =H(一)重力式挡土墙设计实例1、某二级公路重力式路肩墙设计资料如下:(1) 墙身构造:墙高5m ,墙背仰斜坡度:1: 0.25 (二14° 02;墙身分段长度20m ,其 余初始拟采用尺寸如图3 -40示;(2)土质情况:墙背填土容重 丫=18N/m 3,内摩擦角© =35°;填土与墙背间的摩擦角S=17.5 °地基为岩石地基容许承载力[c 丰500kPa,基地摩擦系数f=0.5;(3) 墙身材料:砌体容重 丫 =20N/m 3,砌体容许压应力[c 丰500kPa,容许剪应力[T #80kPa 。
图3- 40初始拟采用挡土墙尺寸图2、破裂棱体位置确定:(1) 破裂角()的计算假设破裂面交于荷载范围内,则有:= =14o0217o3035°=38°28因为 90o1 1 1B 0 ab (b d)h 0H (H 2a 2%)tan 0 (0 0)% H (H 2h 0)tan1—H(H 2h 0)ta n 211A -(a H 2h °)(a H )—H(H 2h 。
)b 1=0.982 2根据路堤挡土墙破裂面交于荷载内部时破裂角的计算公式:3、荷载当量 上柱高度计算:h 0= q 空180.9m 4、土压力计算2h °1 0 5.02 0.90 5.02171B 0= ab2根据路堤挡土墙破裂面交于荷载内部土压力计算公式:d h °1 -H 2H 2a 2h ° tan = 0+0-丄25.0 5 0 2 0.9 tan 14°24.25E a A ta n cos B 。
sin18 17 0.7291 4.25cos 36o 5 4435o sin36°54438。
28E xE a cos 49.25cos 14o 2 17o 30 49.14KN E yE a sin49.25s in 14o 217o 30 2.97KNtg tg J ctgtg B ^t gtg . ctg tg tg tgtg38°28 . ctg35° tg38°28 tg38°28 tg14°020.7945 , 1.428 0.7945 0.7945 0.25 0.729136o5 44(2)验算破裂面是否交于荷载范围内:破裂契体长度: L ) H tg tg 5 0.7291 0.25 2.4m车辆荷载分布宽度:L Nb N 1 m d 2 1.8 1.3 0.6 3.5m所以L 。
(一)重力式挡土墙设计实例
1、某二级公路重力式路肩墙设计资料如下:
(1)墙身构造:墙高5m ,墙背仰斜坡度:1:(=14°02′),墙身分段长度20m ,其余初始拟采用尺寸如图3-40示;
(2)土质情况:墙背填土容重γ=18kN/m 3,内摩擦角φ=35°;填土与墙背间的摩擦角δ=°;地基为岩石地基容许承载力[σ]=500kPa ,基地摩擦系数f=;
(3)墙身材料:砌体容重γ=20kN/m 3, 砌体容许压应力[σ]=500kPa ,容许剪应力[τ]=80kPa 。
图3-40 初始拟采用挡土墙尺寸图
2、破裂棱体位置确定:
(1)破裂角(θ)的计算
假设破裂面交于荷载范围内,则有:
14021730353828ψαδφ'''++-++===
90ω<因为
00000111()(22)tan 0(00)(2)tan 222
B ab b d h H H a h h H H h αα=++-++=++-+ 01(2)tan 2
H H h α=-+ 00011(2)()(2)22
A a H h a H H H h =+++=+
根据路堤挡土墙破裂面交于荷载内部时破裂角的计算公式:
tg tg θψ=-+
tg ψ=-()()38
2835382838281402tg ctg tg tg tg ''''=-+++
0.7945=-
0.7291=
36544θ'''=
(2)验算破裂面是否交于荷载范围内:
破裂契体长度:()()050.72910.25 2.4L H tg tg m θα=+=-=
车辆荷载分布宽度:()12 1.8 1.30.6 3.5L Nb N m d m =+-+=⨯++=
所以0L L <,即破裂面交于荷载范围内,符合假设。
3、荷载当量土柱高度计算:
墙高5米,按墙高确定附加荷载强度进行计算。
按照线性内插法,计算附加荷载强度:q =m 2
,
016.250.918q h m γ=== 4、土压力计算
()()()()01120 5.020 5.01722
A a H a H +++=++⨯+=0=h 0.9 ()()()()011122tan 5.0502tan 142 4.25222
B ab b d H H a α'++-++⨯++⨯-=00=h h =0+0-0.9 根据路堤挡土墙破裂面交于荷载内部土压力计算公式:
()()()()()()
a 003654435tan 18170.7291 4.2549.25sin sin 365443828E A B KN θφγθθψ'''++=-=⨯⨯-=+'''''+cos cos ()()X a 49.25142173049.14E E KN αδ''=+=-+=cos cos
()()y a sin 49.25sin 1421730 2.97E E KN αδ''=+=-+=
5、土压力作用点位置计算:
1.36H =⨯=10K =1+2h 1+20.9
X101/3/35/30.9/3 1.36 1.59Z H h K m =+=+⨯=-查数学手册
X1Z -土压力作用点到墙踵的垂直距离;
6、土压力对墙趾力臂计算
基地倾斜,土压力对墙趾力臂:
X X11 1.590.19 1.4Z Z h m =-=-=
y 1X 0.98 1.40.25 1.33Z b Z tg m α=-=+⨯=
7、稳定性验算
(1)墙体重量及其作用点位置计算:
挡墙按单位长度计算,为方便计算从墙趾处沿水平方向把挡土墙分为两部分,上部分为四边形,下部分为三角形:
1110.98 4.48 4.71V b H m =⨯=⨯=
11 4.712094.28G V KN γ=⨯=⨯=
()G1111 1.09Z H tg b m α=+=/2 -查数学手册
21110.50.980.190.093V b h m =⨯⨯=⨯⨯=/2
221 1.86G V KN γ=⨯=
G20.6510.6510.980.64Z b m =⨯=⨯= -查数学手册
(2)抗滑稳定性验算:
00.21111836α'''倾斜基地:(=),验算公式:
()()Q1y x 0Q2P 0Q1y 0Q1x Q2P 1.1tan tan 1.1tan 0G E E E G E E E γαγαμγαγγ⎡⎤++-++-+>⎣⎦
()()1.196.14 1.4 2.9749.140.19800.5 1.196.14 1.4 2.970.198 1.449.140⨯+⨯+⨯-⨯+⨯+⨯⨯-⨯+⎡⎤⎣⎦ ()()105.75 1.42.979.730.5105.75 4.160.19868.80=++⨯++⨯-⎡⎤⎣⎦
10.280=>
所以抗滑稳定性满足。
(3)抗倾覆稳定性验算:
()G Q1y x x y Q1p p 0.80GZ E Z E Z E Z γγ+-+>
()()0.894.28 1.09 1.860.64 1.4 2.97 1.449.14 1.330⨯+⨯+⨯⨯-⨯+
2.50=-<
所以倾覆稳定性不足,应采取改进措施以增强抗倾覆稳定性。
重新拟定b 1=1.02m 倾斜基地,土压力对墙址力臂:
X 1.4Z m =
y 1x 1.02 1.40.25 1.37Z b Z tg m α=+=+⨯=
111 1.02 4.81 4.91V b H m =⨯=⨯=
1 4.912098.12KN G =⨯=
()()G1110.50.5 4.871402 1.02 1.11Z H tg b tg m α'=+=⨯+=
2110.50.5 1.020.190.10V b H m ==⨯⨯=
20.096920 1.94G KN =⨯=
G210.6510.66Z b m =⨯=
()G Q1y x x y Q1p p 0.80GZ E Z E Z E Z γγ+-+>
()()0.894.12 1.11 1.940.66 1.4 2.97 1.449.14 1.330⨯+⨯+⨯⨯-⨯+
1.440=>
所以倾覆稳定性满足。
8、基地应力和合力偏心矩验算
1)合力偏心矩计算
()E G 1Q10Q10
1.2 1.4cos sin G y x M M M e N G E W E γγαγα⨯+⨯==+-+ 上式中弯矩为作用与基底形心的弯矩,所以计算时先要计算对形心的力臂:根据前面计算过的对墙趾的力臂,可以计算对形心的力臂。
G1
G1 1.090.510.582B Z Z m '=-=-= G2
G20.640.510.132B Z Z m '=-=-= X
X 0tan 1.40.510.198 1.52B Z Z m α'=+=+⨯= y y 1.330.510.822
B Z Z m '=-=-= ()E G 1Q10Q10
1.2 1.4cos sin G y x M M M e N G E W E γγαγα⨯+⨯==+-+ ()()
()1122Q10Q101.2 1.4cos sin y y x x G G G y x E Z E Z G Z G Z G E W E γγαγα''''⨯-+⨯+=+-+
()()()
1.2
2.970.8249.14 1.5 1.498.120.58 1.940.13100.14 1.2 1.4 2.9700.98 1.449.140.19⨯⨯-⨯+⨯⨯+⨯=⨯+⨯-⨯+⨯⨯ 10.0440.26m B m =<=
所以基底合力偏心矩满足规范的规定。
2)基地应力验算
161N e p A B ⎛⎫=
± ⎪⎝⎭ 252.5560.0411.02 1.02⨯⎛⎫=± ⎪⎝⎭
max 307.02kPa p =
min 188.17kPa p =
[]max 307.02kPa 500kPa p σ=<=
所以基底应力满足要求。
9.截面内力计算
墙面墙背平行,截面最大应力出现在接近基地处,由基地应力验算可知偏心矩及基地应力满足地基承载力,墙身应力也满足,验算内力通过,墙顶顶宽1.02m ,墙高5m 。
10.设计图纸及工程量
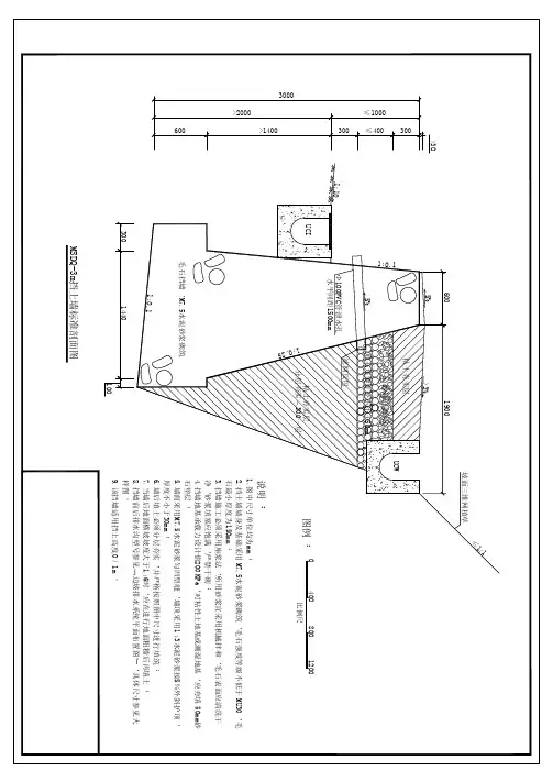
(1)典型断面如图3-41所示,立面布置图3-42所示, 平面布置图3-43所示。
(2)挡土墙工程数量见表3-28。
工程数量表 表3-28
2--3米布置一个,泄水孔应高出地面不小于30厘米;墙背均应设置50厘米砂砾透水层,并做土工布封层;
图3-41 典型断面图
图图。