理正基坑
- 格式:pdf
- 大小:1.66 MB
- 文档页数:47
理正深基坑破解原理
深基坑是一种大型土木工程项目中常见的建筑结构,用于承载高层建筑或地下
工程的基础。
然而,深基坑在施工过程中常常遇到许多技术难题,其中之一就是深基坑地面的破解原理。
理正深基坑破解原理是指通过科学合理的设计和施工方法,解决深基坑地面的
破解问题。
这种破解现象通常出现在土壤的收缩过程中,特别是在存在高水位的地下水情况下。
首先,为了理解深基坑破解原理,我们需要了解土壤的力学特性。
通常情况下,土壤受到地表荷载的压力并逐渐沉降。
然而,在深基坑施工过程中,地下水的压力和土壤的干燥程度会导致土壤的收缩和变形,从而引起深基坑地面的破解。
为了减小深基坑地面的破解风险,工程师通常会采取如下措施:
1. 地下水控制:通过合理的排水系统,控制深基坑施工区域的地下水位,以减
小地下水压力对土壤的影响。
这可以通过井点降水、水平降水层、斜井降水等方式来实现。
2. 土体加固:采用适当的土肩支撑和立面支撑结构来限制土壤的变形。
土肩支
撑是通过在基坑侧壁设置一定的土体,以提供额外的支撑来增加土壤的稳定性。
而立面支撑结构则是使用钢支撑或混凝土支撑的固定结构,以抵抗土壤的压力。
3. 锚杆支护:在深基坑施工过程中,可以利用锚杆支持系统,将锚杆固定在土
壤中,并用孤注桩进行加固。
这样可以消除或减小地下水和土壤的作用力,从而保护深基坑地面的稳定性。
总之,理正深基坑破解原理是通过综合运用地下水控制、土体加固和锚杆支护
等措施,来保证深基坑施工中的地面稳定性,从而解决深基坑地面破解的问题。
这些技术手段的合理应用可以有效地确保工程的安全和稳定性。
理正深基坑软件应用参数说明深基坑软件是一种专业的地下工程设计和分析软件,广泛应用于建筑、地下工程、土木工程等领域。
在使用深基坑软件进行设计和分析时,需要设置一些参数来确保计算的准确性和可靠性。
以下是深基坑软件应用参数的说明:1.地质参数:地质参数是指对地下土壤和岩石的性质和特性进行描述的参数。
包括土壤的密度、强度、岩石的弹性模量、泊松比等。
这些参数通常需要通过实地勘探和实验室测试获得,然后输入到深基坑软件中,以便进行地下工程的设计和分析。
2.地下水参数:地下水参数对于深基坑设计和分析至关重要。
包括地下水位、地下水的渗流性质等。
地下水的渗流对基坑的稳定性和地下结构的工作状态有重要影响,因此在进行深基坑设计和分析时,需要准确地输入地下水参数。
3.边界条件:边界条件是指影响地下工程行为和性能的外部条件。
在进行深基坑设计和分析时,需要设置边界条件,包括应力边界、位移边界等。
边界条件能够影响到地下工程的稳定性和变形性能,因此需要根据实际项目情况合理设置。
4.荷载参数:荷载参数是指施加在地下工程上的外部荷载。
包括静荷载、动荷载、温度荷载等。
荷载参数是进行深基坑设计和分析时必须考虑的因素,设计师需要根据实际情况合理设置荷载参数。
5.材料参数:材料参数是指用于构建地下工程的材料的特性和性能参数。
包括混凝土的强度、钢筋的强度、土壤的弹性模量等。
准确地输入材料参数可以保证深基坑的稳定性和耐久性。
6.模型选择:深基坑软件一般提供多种模型选择,包括二维模型和三维模型。
设计师需要根据实际情况选择合适的模型进行设计和分析。
二维模型适用于简单的地下工程,而三维模型适用于复杂的地下工程。
7.计算方法:深基坑软件提供多种计算方法,包括有限元法、边坡法、数值方法等。
设计师需要根据实际情况选择合适的计算方法,以确保计算结果的准确性和可靠性。
8.输出结果:深基坑软件一般能够输出多种结果,包括应力分布、位移分布、变形分布等。
输出结果能够直观地反映地下工程的行为和性能,设计师可以根据输出结果进行合理的优化和调整。
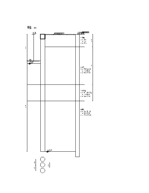
1、基本信息1.1 超载信息1.2附加水平力信息2、土层信息2.1土层参数3、土压力模型及系数调整弹性法土压力模型: 经典法土压力模型:4、工况信息4.1结构计算4.1.1各工况:4.1.2内力位移包络图:4.1.3地表沉降图:4.2冠梁选筋结果4.3截面计算钢筋类型对应关系:d-HPB300,D-HRB335,E-HRB400,F-RRB400,G-HRB500,P-HRBF335,Q-HRBF400,R-HRBF5004.3.1截面参数4.3.2内力取值4.4整体稳定验算计算方法:瑞典条分法应力状态:有效应力法条分法中的土条宽度: 1.00m滑裂面数据整体稳定安全系数K s = 7.984圆弧半径(m) R = 27.175圆心坐标X(m) X = 0.912圆心坐标Y(m) Y = 7.8254.5抗倾覆稳定性验算抗倾覆安全系数:M p——被动土压力及支点力对桩底的抗倾覆弯矩, 对于内支撑支点力由内支撑抗压力决定;对于锚杆或锚索,支点力为锚杆或锚索的锚固力和抗拉力的较小值。
M a——主动土压力对桩底的倾覆弯矩。
注意:锚固力计算依据锚杆实际锚固长度计算。
工况1:K s = 2.194 >= 1.250, 满足规范要求。
4.6抗隆起验算1) 从支护底部开始,逐层验算抗隆起稳定性,结果如下:m2m1 (tan )e tan(N tan支护底部,验算抗隆起: Ks = 15.484 ≥ 1.800,抗隆起稳定性满足。
5、嵌固深度计算5.1嵌固深度计算参数:嵌固深度计算过程:当地层不够时,软件是自动加深最后地层厚度(最多延伸100m)得到的结果。
1) 嵌固深度构造要求:依据《建筑基坑支护技术规程》 JGJ 120-2012,嵌固深度对于悬臂式支护结构l d 不宜小于0.8h 。
嵌固深度构造长度ld :4.520m 。
2) 嵌固深度满足抗倾覆要求:按《建筑基坑支护技术规程》JGJ 120-2012悬臂式支护结构计算嵌固深度l d值,规范公式如下:得到l d = 13.050m。
理正深基坑软件应用参数说明1.各种支护结构计算内容排桩、连续墙单元计算包括以下内容:⑴土压力计算;⑵嵌固深度计算;⑶内力及变形计算;⑷截面配筋计算;⑸锚杆计算;⑹稳定计算:整体稳定、抗倾覆、抗隆起、抗管涌承压水验算。
其中内力变形计算、截面配筋计算及整体稳定计算与规范无关,其他计算按选择的规范采用相应计算方法。
水泥土墙单元计算包括以下内容:⑴土压力计算;⑵嵌固深度计算;⑶内力及变形计算;⑷截面承载力验算;⑸锚杆计算;⑹稳定验算:整体稳定、抗倾覆、抗滑移、抗隆起、抗管涌承压水验算。
其中内力变形计算、截面配筋计算及整体稳定计算与规范无关,其他计算按选择的规范采用相应计算方法。
土钉墙单元计算包括以下内容:⑴主动土压力计算;⑵土钉抗拉承载力计算;⑶整体稳定验算;⑷土钉选筋计算。
系统仅提供《建筑基坑支护技术规程》(JGJ 120-99)及《石家庄地区王长科法》计算方法,放坡单元计算包括以下内容:系统仅提供整体稳定验算.2.增量法和全量法?(1)全量法是4.3版本以前采用多计算方法,采用这种计算时不能任意指定工况顺序。
(注意:采用该方法会使5.0版本某些新增数据丢失。
)所谓总量法,就是在施工的各个阶段,外力是实际作用在围护结构上的有效土压力或其它荷载,在支承处应考虑设置支承前该点墙体已产生的位移。
由此就可直接求得当前施工阶段完成后围护结构的实际位移和内力。
(2)增量法:采用这种方法,可以更灵活地指定工况顺序。
所谓增量法计算,就是在各个施工阶段,对各阶段形成的结构体系施加相应的荷载增量,该增量荷载对该体系内各构件产生的内力与结构在以前各阶段中产生的内力叠加,作为构件在该施工阶段的内力,这样就能基本上真实地模拟基坑开挖的全过程。
因此,在增量法中,外力是相对于前一个施工阶段完成后的荷载增量,所求得的围护结构的位移和内力也是相对于前一个施工阶段完成后的增量,当墙体刚度不发生变化时.与前一个施工阶段完成后已产生的位移和内力叠加,可得到当前施工阶段完成后体系的实际位移和内力。
理正深基坑单元计算和整体计算深基坑是指基础工程施工过程中,当地下水位高于地面或者需要挖掘超过6米深的基坑时所采取的一种施工措施。
深基坑的相关计算包括理正深基坑单元计算和整体计算两个部分。
1.地下水的影响:深基坑内部由于存在地下水,水压会对基坑的稳定性产生影响。
因此,需要计算地下水水压力以及水压力的分布情况。
2.土体的力学特性:深基坑开挖时,土体会受到应力改变的影响。
因此需要计算土体的强度参数,包括摩尔库仑强度、内摩尔摩擦角等。
3.深基坑结构的稳定性:深基坑除了开挖所需的土方工程外,还需要设计支护结构来维持基坑的稳定。
因此,需要计算深基坑结构的稳定性,包括土体和支护结构的受力情况、变形情况等。
4.施工过程中的变形控制:在深基坑的施工过程中,土体和支护结构会发生一定的变形。
因此,需要计算变形控制指标,如挠度、沉降等。
整体计算是指对整个深基坑的力学特性和结构稳定性进行综合计算和分析。
它包括以下几个方面的计算:1.地下水压力的变化分析:深基坑附近的地下水位不断变化,因此需要计算地下水压力的变化分布情况,以及对深基坑的影响程度。
2.土体变形的分析:深基坑的开挖会导致土体的变形,因此需要计算土体的变形情况,包括沉降、收敛、位移等。
3.支护结构的设计:深基坑需要设计支护结构来保证基坑的稳定。
因此,需要计算支护结构的受力情况和变形情况,以及与土体之间的相互作用。
4.施工过程中的风险评估:深基坑的施工是一个复杂且危险的过程,因此需要进行风险评估。
通过计算和分析深基坑的力学特性和结构稳定性,可以评估施工过程中的风险,并采取相应的措施进行控制。
综上所述,深基坑的计算可以分为理正深基坑单元计算和整体计算两个部分。
通过对深基坑内部力学特性和结构稳定性的计算和分析,可以指导深基坑的设计和施工过程,并确保深基坑的安全可靠。
理正深基坑60操作教程深基坑是建筑工程中的重要组成部分,它承载着建筑物的重量,并为建筑物提供坚实的基础。
在深基坑的施工过程中,正确的操作是至关重要的。
本文将为您介绍理正深基坑60的操作教程,包括施工前的准备工作、施工过程中的关键点以及施工后的处理措施。
首先,施工前的准备工作非常重要。
在开挖基坑之前,需要对施工现场进行勘察和测量,确定基坑的几何尺寸和地下水位。
在确认了基坑的尺寸后,需要先进行地下管线的避让工作,确保施工期间不会损坏到周围的管线。
同时,在施工前还需制定详细的施工方案和安全措施,确保施工过程中的安全性。
接下来是深基坑的开挖过程。
开挖深基坑时,首先需要进行测量和标定,确定开挖的起点和终点。
常用的开挖方法包括机械开挖和人工开挖。
机械开挖常使用挖掘机进行,挖掘机的操作人员需要具备一定的经验和技能,确保准确地控制挖掘机的深度和倾斜角度。
在开挖过程中,还需要进行地下水的排水工作,以确保开挖现场的干燥。
在深基坑开挖到一定深度后,需要进行基坑支护和加固工作。
基坑支护是防止土方坍塌和基坑变形的重要措施。
主要的基坑支护方法有钢支撑、混凝土护壁和地下连续墙等。
在进行基坑支护时,需要严格按照设计要求进行,确保支护结构的稳定性和承载能力。
施工结束后,还需要对基坑进行巡视和检查,确保施工质量和安全性。
同时,还需要对基坑进行填土和压实等处理,以恢复原地地貌,并确保基坑周围的地面不会发生下沉和变形。
最后,还需清理施工过程中产生的垃圾和废料,保持现场的整洁和干净。
结束语:深基坑的施工是一项复杂而重要的工作,需要严格按照操作规程进行。
本文介绍了理正深基坑60的操作教程,包括施工前的准备工作、施工过程中的关键点以及施工后的处理措施。
希望这篇文章对您有所帮助!。
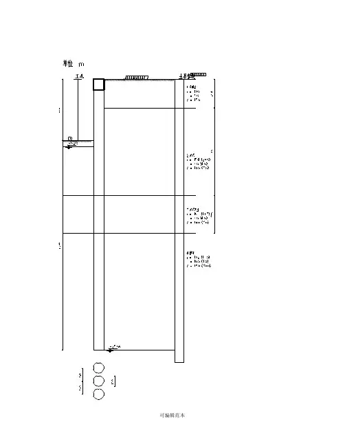
1、基本信息1.1 超载信息1.2附加水平力信息2、土层信息2。
1土层参数3、土压力模型及系数调整弹性法土压力模型: 经典法土压力模型:4、工况信息4.1结构计算4。
1.1各工况:4.1.2内力位移包络图:4.1。
3地表沉降图:4.2冠梁选筋结果4.3截面计算钢筋类型对应关系:d-HPB300,D—HRB335,E-HRB400,F-RRB400,G-HRB500,P-HRBF335,Q—HRBF400,R-HRBF5004。
3。
1截面参数4.3.2内力取值4.4整体稳定验算计算方法:瑞典条分法应力状态:有效应力法条分法中的土条宽度: 1。
00m滑裂面数据整体稳定安全系数 K s = 7.984 圆弧半径(m) R = 27。
175圆心坐标X(m) X = 0。
912圆心坐标Y(m) Y = 7.8254.5抗倾覆稳定性验算抗倾覆安全系数:M p——被动土压力及支点力对桩底的抗倾覆弯矩,对于内支撑支点力由内支撑抗压力决定;对于锚杆或锚索,支点力为锚杆或锚索的锚固力和抗拉力的较小值.M a——主动土压力对桩底的倾覆弯矩。
注意:锚固力计算依据锚杆实际锚固长度计算。
工况1:K s = 2。
194 〉= 1.250, 满足规范要求。
4.6抗隆起验算1) 从支护底部开始,逐层验算抗隆起稳定性,结果如下:m2m1 (tan )2e tan(Ntan支护底部,验算抗隆起: Ks = 15。
484 ≥ 1.800,抗隆起稳定性满足。
5、嵌固深度计算5。
1嵌固深度计算参数:嵌固深度计算过程:当地层不够时,软件是自动加深最后地层厚度(最多延伸100m)得到的结果。
1) 嵌固深度构造要求:依据《建筑基坑支护技术规程》 JGJ 120-2012,嵌固深度对于悬臂式支护结构l d 不宜小于0.8h 。
嵌固深度构造长度ld :4。
520m 。
2) 嵌固深度满足抗倾覆要求:按《建筑基坑支护技术规程》 JGJ 120-2012悬臂式支护结构计算嵌固深度l d值,规范公式如下:得到l d = 13.050m。
常见问题基坑支护1.基坑因各边土质条件不同,基坑深度不同,则产生土压力不同,软件在整体计算中如何考虑?答:划分成不同计算单元即可。
2.5。
2版比4。
31版计算结果有差异,为什么?答:造成这一现象的原因有以下五点:(1)4。
3版的验算过程中没有考虑土钉本身的抗拉强度,而5。
1版中是考虑了。
所以如果该工程正好是由这一条件为控制,所算结果自然不同,如要对比两个版本的计算结果,应该把5。
1版钢筋直径加到足够大;(2)4。
3版土条宽度是软件内部设定的,不能交互,而这一设定值是0.5,所以如要对比两个版本的计算结果,应把5。
1版中土条宽度也设成0.5;(3)4.3版只用了全量法,所以如要对比两个版本的计算结果,5.1版中也应用全量法;(4)4.3版没有考虑“搜索最不利滑面是否考虑加筋”,所以如要对比两个版本的计算结果,在5.1版中该选项应该选否;(5)由于新规范中调整了钢筋的抗拉强度,这也是原因之一。
3.基坑软件整体计算,单元分区中是否加锚杆,对计算结果有影响吗?答:没有影响。
锚杆只在单元计算里起作用。
如要在整体计算中起作用,要在建模时在锚杆的位置加弹性支撑。
4.在基坑支护设计中,遇到主动区土体加固的情况,在计算中能否将主动区与被动区土体的C、Φ值分开输入?答:根据C、Φ值换算出被动土压力调整系数,在其他规范算法中输入此系数.5.基坑软件排桩按《建筑基坑支护技术规程》计算时,地面超载何时对排桩计算不起作用?答:通常是当超载距坑边距离较大时,通常为距排桩1倍桩长以外的超载,由于应力的传递影响不到桩,所以对排桩内力没有影响。
6. 基坑软件中锚杆的刚度如何取?答:有四种方法:(1) 试验方法(2) 用户根据经验输入(3) 公式计算方法(见规程附录)(4) 软件计算。
具体做法是先凭经验假定一个值,然后进行内力计算、锚杆计算得到一个刚度值,系统可自动返回到计算条件中,再算;通过几次迭代计算,直到两个值接近即可,一般迭代2~3次即可。
理正深基坑二级放坡算例简介深基坑是指在土层中开挖的较深且边坡较陡的坑,常用于建筑物地下室、地下车库等工程。
在进行深基坑开挖时,为了保证施工安全和土方稳定,需要进行放坡设计。
本文将以理正深基坑为例,介绍二级放坡的算例。
算例背景理正深基坑位于某城市的市中心,用于建设一座高层商业综合体。
基坑的设计深度为25米,土层主要由黏土和砂土组成。
为了保证施工过程中的安全性和土方稳定性,需要进行放坡设计。
放坡设计原则放坡设计的主要原则如下: 1. 根据土层的物理力学性质,确定合适的边坡坡度。
2. 考虑施工过程中的振动、水位变化等因素,进行综合评估。
3. 保证基坑周边建筑物和地下管线的安全。
放坡设计步骤放坡设计的具体步骤如下: 1. 土层调查:通过进行现场勘察和取样分析,获取土层的物理力学性质和水平分布情况。
2. 边坡稳定性计算:根据土层的力学参数,采用合适的计算方法,进行边坡稳定性计算。
3. 放坡设计:根据边坡稳定性计算结果,结合工程实际情况,确定合适的放坡尺寸和坡度。
4. 安全评估:考虑施工过程中的振动、水位变化等因素,进行综合评估,确保放坡设计的安全性。
5. 放坡施工:按照设计要求,进行放坡施工,并进行监测和检测,确保放坡过程的稳定和安全。
理正深基坑二级放坡算例根据理正深基坑的实际情况和放坡设计原则,进行二级放坡算例。
1. 土层调查通过进行现场勘察和取样分析,得到理正深基坑的土层情况如下: - 上部土层:10米厚度的黏土,黏性较大,强度较高。
- 下部土层:15米厚度的砂土,黏性较小,强度较低。
2. 边坡稳定性计算根据土层的力学参数,采用合适的计算方法,进行边坡稳定性计算。
假设边坡坡度为1:1,计算结果如下: - 上部土层:稳定系数为1.2,满足稳定性要求。
- 下部土层:稳定系数为0.8,不满足稳定性要求。
3. 放坡设计根据边坡稳定性计算结果,结合工程实际情况,确定合适的放坡尺寸和坡度。
为了保证施工安全和土方稳定,决定采用二级放坡设计,即在边坡中设置一个中间台阶。
理正深基坑单元计算和整体计算【原创版】目录1.理正深基坑计算方法的背景和意义2.理正深基坑单元计算和整体计算的区别3.理正深基坑弹性计算方法的原理和应用4.理正深基坑计算方法的优缺点分析5.结论和展望正文一、理正深基坑计算方法的背景和意义随着城市化进程的加速,深基坑工程在我国的应用越来越广泛。
深基坑工程是指开挖深度大于一定值(一般为 5 米)的基坑工程。
由于深基坑工程涉及到土体稳定性、支护结构安全性、周围环境影响等多种因素,因此,对其进行科学的计算和分析至关重要。
理正深基坑计算方法是一种针对深基坑工程的计算方法,它综合考虑了土壤、支护结构、地下水等因素,为深基坑工程的安全性提供了有力的保障。
二、理正深基坑单元计算和整体计算的区别理正深基坑计算方法主要包括单元计算和整体计算两种。
单元计算是将深基坑划分为若干个单元,对每个单元进行独立计算,然后再将各个单元的结果合成总的计算结果。
整体计算则是将整个深基坑作为一个整体进行计算,不进行单元划分。
这两种计算方法各有优缺点,单元计算精度较高,但计算过程较为繁琐;整体计算则计算过程简化,但精度可能略有降低。
三、理正深基坑弹性计算方法的原理和应用理正深基坑弹性计算方法是一种基于弹性理论的计算方法,它假设土壤和支护结构都具有一定的弹性,然后在此基础上进行计算。
这种方法的原理是将深基坑周围的土壤和支护结构看作一个弹性体系,然后根据胡克定律、弹性模量等概念进行计算。
理正深基坑弹性计算方法在实际应用中具有较高的准确性和实用性,得到了广泛的认可。
四、理正深基坑计算方法的优缺点分析理正深基坑计算方法具有以下优点:1.综合考虑了土壤、支护结构、地下水等多种因素,计算结果更为准确;2.采用了弹性理论,能够较好地模拟实际情况;3.计算方法较为系统,便于操作和推广。
同时,理正深基坑计算方法也存在一些缺点:1.单元计算过程较为繁琐,计算工作量大;2.对某些特殊情况(如土体非线性、支护结构变形较大等),计算结果可能存在偏差。
理正深基坑内支撑水平间距你要了解基坑内支撑水平间距的问题?哈哈,这可不是一个普通的土木工程问题,听起来挺复杂的,但其实也没那么神秘。
简单来说,基坑支撑的水平间距就是那些支撑结构之间的距离。
它对深基坑的稳定性有着至关重要的作用,就像我们搭房子时,柱子之间的距离太宽,房子可就不稳了,容易倒塌。
所以基坑的支撑系统需要特别讲究,每一根支撑都得精准到位。
要是支撑太密,施工成本高,空间利用率低;要是太稀,基坑就容易发生变形,甚至发生塌陷,搞不好就会“出大事”!想象一下,如果你正在做一个深基坑,坑口又大又深,你得确保每一根支撑都能承受得住外界的压力。
支撑水平间距的大小,直接关系到施工安全和基坑的稳定性。
我们一般来说,支撑之间的距离是根据基坑的深度和土壤条件来定的。
如果土质松软,坑越深,支撑就得安排得越密,反之,土质紧实,深度不大,支撑就可以适当分开。
毕竟,我们都知道,基坑就像是土里的“洞”,而支撑就像是撑住洞壁的“骨架”,不稳妥了,随时可能崩塌。
不过说实话,基坑支撑间距这个东西,就像是量体裁衣一样,并不是固定的。
它得根据具体的情况来调整。
基坑的形状会影响支撑的间距,有些地方需要更细致地安排支撑点,有些地方则可以放宽点。
这就好比你逛街挑衣服一样,不是所有款式都适合每个人,得看个人的身材,得看具体的场合,才能穿出最好的效果。
支撑水平间距过大,基坑可能会发生形变,甚至导致土体失稳。
这就是我们常说的“人多了热闹,事多了麻烦”。
太多支撑,根本没有空间操作,施工效率也会下降。
所以,选择合适的支撑间距就像选择餐厅的位置,既要保证舒适度,又要避免人挤人。
要做到这一点,得有经验的工程师来把关,经验丰富的他们,就像是做饭的大厨,精准掌握火候,一切都能恰到好处。
在一些特殊的地方,比如地下水丰富的区域,支撑水平间距就得更加小心。
水多了,土壤就不那么稳定了,基坑墙体容易滑移。
如果支撑之间的距离过大,可能根本没法起到有效的支撑作用。
可以说,支撑水平间距的设定,完全是基坑设计的“心脏”,没有它,基坑就像是没有骨架的气球,随时会爆炸。
理正深基坑如何导出计算书【最新版】目录一、引言二、理正深基坑的概念与设计要点1.概念定义2.设计原则与目标三、理正深基坑设计的一般步骤1.收集相关资料2.实地考察3.初步确定设计方案4.合理确定变形量四、理正深基坑计算书的导出1.计算书内容概述2.计算书导出方法与流程正文一、引言理正深基坑是指在工程建设中,为保证地下室、地下停车场等地下空间的安全、稳定,采用深基坑开挖的方式进行的一种基础工程。
它具有施工难度大、安全风险高、设计与施工要求严格等特点。
因此,如何导出理正深基坑计算书成为基坑设计与施工的重要环节。
二、理正深基坑的概念与设计要点1.概念定义理正深基坑是指开挖深度大于等于 5 米,且周围环境复杂、地下空间利用要求高的基坑工程。
理正深基坑的设计与施工需遵循安全、可靠、经济、合理的原则,确保基坑周边环境及地下空间的安全使用。
2.设计原则与目标理正深基坑设计应遵循以下原则与目标:(1) 确保基坑周边道路、地下管线、建筑物等设施的安全;(2) 保证基坑变形在合理范围内,不会影响周围设施的正常使用;(3) 在安全、可靠的前提下,实现经济合理、施工便利的设计方案;(4) 保证工程施工工期,提高工程质量。
三、理正深基坑设计的一般步骤1.收集相关资料在进行理正深基坑设计前,需收集以下相关资料:(1) 工程总平面图:包括建筑物位置、周边道路、地下管线等设施的位置关系;(2) 主体地下室结构图:地下室的结构形式、尺寸、材料等;(3) 地质勘察报告:包括地质条件、土层分布、地下水位等信息;(4) 勘探孔平面布置图和剖面图:反映地质勘察的具体情况;(5) 地形图:体现地表地形地貌特征。
2.实地考察在收集资料的基础上,进行实地考察,了解工程周边环境、地下空间利用情况等,为设计提供实际依据。
3.初步确定设计方案根据收集的资料及实地考察结果,在安全可靠、经济合理、施工便利、工期保证的原则下,初步确定理正深基坑的设计方案。
理正深基坑参数的取值问题1.嵌固深度,一般按何经验取值?抗渗嵌固系数(1。
2),整体稳定分项系数(1。
3),以及圆弧滑动简单条分法嵌固系数(1。
1)的出处?答:如果桩是悬臂的或单支锚的,嵌固深度一般大约可取基坑底面以上桩长,当然还要结合地层情况、有水无水、支锚刚度等其他条件综合来看.抗渗嵌固系数(1。
2),和圆弧滑动简单条分法嵌固系数(1.1)在程序界面的黄条提示上都有标明所参照的规范依据,整体稳定分项系数(1.3)是根据经验给用户的参考值,用户可根据自己的设计经验取用。
2。
冠梁的水平侧向刚度取值如何计算?答:采用近似计算;公式如下,具体参数解释可参照软件的帮助文档冠梁侧向刚度估算公式:k = [1/3 *(L*EI)]/ [ a^2 (L-a)^2 ]3.土层信息,输入应注意哪些内容?避免出错。
答:土层信息中交互重度(天然重度)与浮重度两个指标,软件会根据水位自动判别选取。
水上土采用天然重度,水下的土计算根据计算方法采用浮重度或饱和重度(饱和重度=浮重度+10)4.支锚信息:支锚刚度(MN/m如何确定?答:有四种方法:①试验方法②用户根据经验输入③公式计算方法(见规程附录)④软件计算。
具体做法是先凭经验假定一个值,然后进行内力计算、锚杆计算得到一个刚度值,系统可自动返回到计算条件中,再算;通过几次迭代计算,直到两个值接近即可,一般迭代2~3次即可。
答:这个问题要分锚杆和内撑两部分说。
①对于锚杆,根据《建筑基坑支护技术规程》(JGJ120—99)附录C公式C.1。
1锚杆水平刚度系数公式进行计算:(C.1.1)式中A——杆体截面面积;ES-—杆体弹性模量;EC-—锚固体组合弹性模量,可按本规程第C。
1。
2条确定;AC—-锚固体截面面积;lf—-锚杆自由段长度;la——锚杆锚固段长度;θ——锚杆水平倾角.锚杆体组合弹性模量的计算公式:(C。
1.2)式中Em——锚固体中注浆体弹性模量。
以上是一个基本的计算,如果现场进行了基本了试验,则以基本试验为准。