男衬衫工序图
- 格式:wps
- 大小:176.50 KB
- 文档页数:1
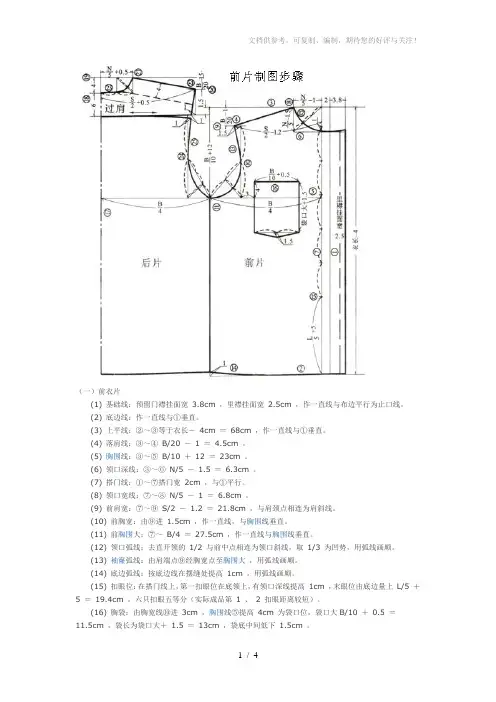
(一)前衣片(1) 基础线:预留门襟挂面宽3.8cm ,里襟挂面宽2.5cm ,作一直线与布边平行为止口线。
(2) 底边线:作一直线与①垂直。
(3) 上平线:②~③等于衣长-4cm =68cm ,作一直线与①垂直。
(4) 落肩线:③~④B/20 -1 =4.5cm 。
(5) 胸围线:③~⑤B/10 +12 =23cm 。
(6) 领口深线:③~⑥N/5 -1.5 =6.3cm 。
(7) 搭门线:①~⑦搭门宽2cm ,与①平行。
(8) 领口宽线:⑦~⑧N/5 -1 =6.8cm 。
(9) 前肩宽:⑦~⑨S/2 -1.2 =21.8cm ,与肩颈点相连为肩斜线。
(10) 前胸宽:由⑨进1.5cm ,作一直线,与胸围线垂直。
(11) 前胸围大:⑦~B/4 =27.5cm ,作一直线与胸围线垂直。
(12) 领口弧线:去直开领的1/2 与前中点相连为领口斜线,取1/3 为凹势,用弧线画顺。
(13) 袖窿弧线:由肩端点⑨经胸宽点至胸围大,用弧线画顺。
(14) 底边弧线:按底边线在摆缝处提高1cm ,用弧线画顺。
(15) 扣眼位:在搭门线上,第一扣眼位在底领上,有领口深线提高1cm ,末眼位由底边量上L/5 +5 =19.4cm 。
六只扣眼五等分(实际成品第1 、2 扣眼距离较短)。
(16) 胸袋:由胸宽线⑩进3cm ,胸围线⑤提高4cm 为袋口位,袋口大B/10 +0.5 =11.5cm ,袋长为袋口大+1.5 =13cm ,袋底中间低下1.5cm 。
(二)后衣片及过肩(1)后衣片上平线由前前衣片上平线低下1.5cm ,胸围线按前衣片延长,底边线按前衣片起翘延长。
(2) 背中线:在胸围线上由前摆缝线量出后胸围大B/4 =27.5cm ,作一直线与胸围线垂直。
(3) 过肩后中宽:由后片上平线量上,定数6cm 。
(4) 后领口深:由量上,定数4cm 。
(5) 落肩线:~B/20 -1.5 =3cm 。
(6)领口宽线:~N/5 +0.5 =8.3cm(7)后肩宽:~S/5 +0.5 =23.5cm ,与肩颈点相连为肩斜线,与过肩下端劈进1cm 相连。
男衬衫工艺男衬衫工艺缝制工艺程序清剪一做领—烫装门底襟一烫装胸袋—装肩复司一做袖子—做克夫—缝肩缝—装领一装袖子—缝大身缝一装克夫—圈下摆—锁眼、钉扣—整烫成品缝制工艺(精做工艺)(一)清剪清剪包括清点裁片、脱粉印、放刀眼等。
1.清点裁片秩序是先主件(前片、后片、袖片)后零件(领子、口袋、袖克夫、袖衩),查漏补缺。
2.脱粉印、放刀眼脱粉印主要是在袋位,放刀眼部位有:前片底襟领窝、下脚边、肩复司中点、后领窝中点、袖衫中点、领中点等处,如图7—4—2所示。
(二)做领衬衫领子的工艺,是整件衬衫工艺的难点,也是体现服装企业硬件设施科技含量高低的一个重要因素,同时能反映出企业软件水平的高低以及软件应用的合理性,还是企业在市场竞争中获胜的重要质量保证。
而领衬则是影响领子好坏的重要因素。
1.衬衫领子各部位名称,如图7—4—3所示。
(2)粘座领衬:门襟头放左边,底襟放右边,把浆均匀刷在衬头上,领料放平,衬头向座领里复合,摆平烫干。
条格面料的丝绺条纹要顺直,领衬不起泡、不能有浆糊渍(若是用有粘合剂的树脂衬,则直接用粘合剂粘。
如图7—4—4(b)所示。
(3)固定座领缝头:沿领座下口把缝头刮薄浆,翻转包紧烫干缉线,不可凹进凸出(若是用有粘剂的树脂衬,则直接用熨斗烫转缝头)。
缉线距座领下口为0.5~0.6cm宽,如图7—4—4(c)。
4.勾翻领勾翻领时,应把翻领里放在下层,领衬向上,根据领衬上的铅笔线缉线,两尖不缺针,起落针回针,两端领尖处,领里稍拉紧,使其产生面松里紧。
如图7—4—5所示。
5.修角翻领翻领之前,先将领角处斜形剪去缝头,剪角距缉线0.2cm为宜,用翻领机翻领,衬头向上,翻领机尖头对准领尖,领尖必须翻足,左右对称。
也可用手工翻出,即用锥子将领角尖翻出,如图7—4—6所示。
6.烫翻领从领两头处烫,左手伸在面、里中间,中指定准缉领线,从右至左,止口要烫平,坐缝要整齐,不反吐止口,领丝绺顺直,如图7—4—7所示。
服装CAD 男衬衫衣身结构制图使用工具:智能笔快捷键:F 1.使用智能笔在T字情况下绘制68cm竖线(止口线)。
2.使用智能笔左键单击不松手,向左侧拉出3.8cm平行线(搭门线)。
3.再重复上一步骤,拉出2cm平行线(前中线)。
从左向右:前中线—搭门线—止口线使用工具:智能笔快捷键:F 1.使用智能笔在T字情况下绘制27.5cm竖线(上平线)。
2.使用智能笔左键单击不松手,向下拉出23cm平行线(胸围线)。
3.使用智能笔在T字情况下绘制竖线。
上平线胸围线使用工具:智能笔快捷键:F1.使用智能笔在T字情况下绘制竖线。
2.使用智能笔左键单击不松手,向下拉出平行线(底边线)。
底边线使用工具:智能笔快捷键:F1.使用智能笔单击右键延长胸围线。
2.使用智能笔靠近端点,单击回车键,在对话框输入1.5cm,绘制后上平线。
3.使用智能笔靠近端点,单击回车键,在对话框输入1cm,绘制后底边线。
4.使用智能笔在T字情况下绘制竖线(后中线)。
后底边线后上平线后中线使用工具:智能笔快捷键:F 1.使用智能笔靠近端点,单击回车键,在对话框输入6.8cm,在T字情况下绘制6.3cm竖线(领口深线)。
2.使用智能笔在T字情况下绘制6.8cm竖线。
领口宽线领口深线使用工具:智能笔快捷键:F 1.使用智能笔在S情况下绘制领口斜线。
使用工具:等分规快捷键:D 2.使用等分规,在属性栏输入等分量,线条调整为短虚线。
落肩线使用工具:智能笔快捷键:F1.使用智能笔左键单击不松手,向下拉出平行线(落肩线)。
肩斜线使用工具:智能笔快捷键:F1.使用智能笔在S情况下绘制肩斜线。
使用工具:智能笔快捷键:F1.使用智能笔靠近端点,单击回车键,在对话框输入1.5cm,在T字情况下绘制竖线(前胸宽线)。
前胸宽线使用工具:等分规快捷键:D 1.使用等分规,在属性栏输入等分量,线条调整为短虚线。
使用工具:智能笔快捷键:F 2.使用智能笔在S情况下绘制斜线。
男衬衫制作流程表设 定 规 格号型 品名 男衬衫 衣 长 74 胸围 肩宽 领围 袖长 袖口 制作人 刘丽娇 李莎莎 罗振涛 戴 欣170/88A11047405925工艺说明 款 式 图工 艺 细 节材 料 准 备面料、粘合衬、对色线、纽扣若干(1)面料数量 裁 片 数 量 前衣片×2,后衣片×1,后过肩×2,袖头×4,袖衩门襟×2, 袖衩里襟×2,上领 ×2,下领×2,胸贴袋×1。
(2)辅料数量 钮扣、粘衬、缝纫线等各适量。
工 艺 流 程 单检查裁片→烫门里襟→烫钉胸袋→装过肩→做领→绱领→做袖衩→绱袖→合摆缝、袖 底缝→绱袖头→做下摆→锁眼、钉扣→整烫一:检查 裁片工 艺 流(1)数量检查 :对照排料图,清点裁片是否齐全。
2)质量检查:认真检查每个裁片的用料方向、正反、形状是否正确。
(3)核对 裁片:复核定位、对位标记,检查对应部位是否符合要求。
二:里 烫门 襟 将前片反面朝上,贴边的毛边对齐止口线后进行折烫,反面进行三折边折烫。
门襟宽 3.4cm,里襟宽 2.5cm。
三:烫钉胸袋 (1)做衣袋:做衣袋时将袋口按制成线扣烫好,扣烫时袋口向里折两层,袋口卷边宽程2.7cm,其他边口按净样板扣烫,袋底尖角居中。
(2)装衣袋: 将袋摆放在左前衣襟袋口位臵, 沿边缉止口 0.1cm, 封口两端为直角三角形, 宽 0.5cm、长 2.7cm。
起针,落针要打回 针。
四、装过肩 1)把过肩里、面正面相对,后衣身放中间,沿制成线缉线。
然后修剪缝头,过肩翻上, 用熨斗烫平 2)把前衣片面与里过肩表面相对,沿制成线缉线。
缝头倒向过肩侧,再把面过肩布折好 缝头缉 0.1cm 明线,此缉线要盖住前缝线迹。
五、做领(1)裁领绘制领型净样,然后按净样裁剪领面、领里,缝头为 1cm。
领衬通常用涤棉树脂粘合衬斜料,领衬放缝为“三净一毛” ,即领底线放缝 0.7cm,其余三周为净样。
服装生产工艺单
品名衬衣数量1件型号170/70
款式图
部位
规格
S M L
衣长74
胸围70*
肩宽32
袖长48
袖口33
领围40
生产制作描述
针距密度12针/3cm 倒顺无缝份包缝扣眼11个
分割后片有过肩一个,前片有一个翻贴边门襟,和一
个翻门襟.
门襟明线宽0.1cm,门襟宽3.6cm
贴袋明线0.1cm&0.6cm 袖克夫明线0.1/0.5
重点技术,特殊工艺描述
工艺描述
衣领:
1.衣领为立翻领
2.衣领内烫领衬
3.领座緝明线0.1cm和0.5cm 4.领片缉明线0.1cm和0.5cm 图示工艺描述图示
门襟:
1.门襟为翻门襟
2.门襟的宽度为
3.5cm
3.门襟上緝明线
0.1cm
工艺描述图示工艺描述图示
底摆:
1.底摆为弧形底摆
2.底摆卷边
3.底摆缉明线0.5和2cm
4.还采用了襻,2cm宽,上有两个
扣眼,缉0.5明线
过肩和侧缝:1.过肩和侧缝要
用包缝,明线
宽0.6cm .
制作人孙利容审核刘宝垚日期2011-12-22
-。
46服装实用技能第四章男女装基本款式工艺流程分析男女服装款式种类繁多,但其基本款式主要有八大件,即男女衬衫、男女西裤、男女西服、男女大衣。
这里因篇幅有限我们只选取男女衬衫及男西裤来讲解。
一、男衬衫1、款式特征:中尖领、六粒扣、左前襟贴袋一只,直摆缝、平下摆,圆装袖,袖口开衩、三个裥,装圆头袖克夫,袖头钉扣一粒。
(见图4-1)2、服装规格号/型部位衣长(L) 胸围(B) 颈围(N) 总肩宽(S) 袖长(SL)前腰节长(BAL) 170/88A规格71 110 39 46 59.5 42.53、工艺流程男衬衫的工艺流程包括单件制作步骤和批量生产工艺流程两种。
①单件制作步骤做缝制标记→烫门里襟挂面→做绱胸贴袋→绱过肩→合肩缝→做领→绱领→做袖衩、袖克夫→绱袖→合摆缝和袖缝→绱袖头→卷底边→锁扣眼→钉扣→整烫②批量生产工艺流程:由车工(缝纫工)和桌板工(手缝和熨烫)两个工种组成,具体见图4-2。
二、女衬衫1、款式特征小方领,前门五粒扣,前身收肩省,后片收背省,整片后背无缝、圆装袖、卡袖口、袖头钉扣1粒。
(见图4-3)男女装基本款式流程分析工艺47图4-1 男衬衫图4-3 女衬衫2、服装规格号/型部位衣长(L) 胸围(B) 总肩宽(S) 袖长(SL) 颈围(N) 前腰节长(BAL) 胸高位160/84A规格64 95 40 53 35 40 243、工艺流程①单件制作步骤烫衬、烫门里襟挂面→合袖头→合领→收省→合肩缝→绱领→做袖衩、绱袖→合摆缝和袖缝→绱袖克夫→卷底边→锁扣眼、钉扣→整烫②批量生产工艺流程:见图4-4三、男西裤1、款式特征绱腰、串带袢8根,前裤片反裥左右各两个,侧缝斜袋,后裤片左右各收省两个,右后片单嵌线袋一个,前中门里襟锁扣眼、平脚口。
见图4-5服装实用技能48图4-5 男西裤2、服装规格号/型部位裤长(L) 腰围(W) 臀围(H)上裆中裆脚口170/74A规格103 76 100 30 23 223、工艺流程①单件制作步骤打线钉→拷边→收后省→裤片拔裆→缝前裥→归烫→前裤片→做零部件(串带袢、门里襟、斜插袋、裤腰)→做后袋→缝斜插袋→缝合侧缝、缉下裆缝→缝合前后裆缝→装门里襟和拉链→装串带袢和腰头→门襟缉线、封小裆→锁钮眼、打套结、钉扣→整烫②批量生产工艺流程:见图4-6男女装基本款式流程分析工艺49男衬衫批量生产的缝制工艺流程图前后衣片服装实用技能 50 女衬衫批量生产的缝制工艺流程图合摆缝和袖缝 分烫摆缝和袖底缝 卷底边锁扣眼钉 扣整 烫 绱 领 做袖衩 绱 袖 绱袖克夫 前后衣片男女装基本款式流程分析工艺 51男西裤批量生产的缝制工艺流程图前后裤片 做零部件(串带衬、门里襟、斜插袋、裤腰) 缝前裥 做后袋缝斜插袋缝合侧缝、缉下裆缝、前后裆缝52服装实用技能第五章服装结构制图一、男衬衫二、1、款式与规格(见第四章―男衬衫)2、结构制图(见图5-1)服装实用技能56图5-1男衬衫男女装基本款式流程分析工艺57二、女衬衫58服装实用技能2、结构制图(见图5-2)图5-2女衬衫男女装基本款式流程分析工艺59三、男西裤1、款式与规格(见第四章-男西裤)。
格子衬衫做起来啦,图样与做工分享
裁剪需要准备的工具和材料:
棉布、剪刀、缝纫机、尺子、大头针、纽扣
步骤如下;
•样板复制好后,裁剪衣片;前片面料*2片后片面料*1片袖子面料*2片
•袖开衩面料*2片领子底面各4片面料袖口克夫各4片面料
•左边门襟面料一片
•领子部分,正面相对,直线缝。
•翻过来,烫平就行。
•做领子,同样正面相对,中间是刚刚的领子部分,直线缝。
•翻过来,压0.1厘米,领子就完成了。
•袖口的开口处,如图剪。
•开口处的两个边条分别在刚刚剪的开口上下叠放,剪出的小三角放在中间。
•袖口也是正面相对,直线缝,弧度的地方剪出小口。
•翻面,走明线。
•袖子是握手缝。
•握手缝制作工艺请参考
服装缝制工艺-握手缝缝制方法分享
•袖底缝同样是握手缝
•把左前片上好门巾,另一边直接烫好2厘米,做光
•肩线也同样握手缝。
•袖笼也同样握手缝,
•袖笼握手缝的时候,难免会有些起皱,走布的时候,尽量将布捋平就好
•最后将领子缝合上,缝扣眼。
下摆折进1厘米,压0.9厘米明线,完工
•缝份
-
前片
•前肩缝1.2厘米前侧缝1.2厘米领圈1厘米左前片门襟1厘米,右前片门襟4厘米
•前袖笼0.5厘米下摆2厘米
•后片
•后肩缝0.5厘米后侧缝0.5厘米领圈1厘米下摆2厘米
•袖子
•前袖底缝1.2厘米后袖底缝0.5厘米袖山弧线1.2厘米
•领子,袖克夫四圈1厘米。
一、现代男西装精做工艺:1.打线钉:前大片、前侧片、挂面、领里、领面、作标志、前片、驳线、串口线、袋位、腰节线、扣位、袖标点、领肩点、领窝点、底边、后片、后中线、叉位、腰节线、袖标点、底摆折边线、腋下片、底摆折边线、腰节线、袖大片、袖口线、袖肘线、装袖点、袖大片、袖口线。
2.做胸衬:收省、组合、归拔、冷却定型。
3.前片工艺:收省、组合侧片、前片推门(归拔工艺)、做大袋、做手巾袋、里布收省、挂面工艺、开里袋、复胸衬、复牵带、复挂面、扳止口。
4.后片工艺:缉合后背中线、归拔后片、劈后背缝、拉袖笼牵条、作背开叉、做后片里布。
5.摆缝工艺:缝合里子摆缝、面布摆缝、滴针、做贴边。
6.肩缝工艺:定扎肩缝、缉合肩缝、归拔肩缝、定扎肩缝。
7.做袖、装领工艺:做领里、做领面、缝合领止口、缝合挂面、领面串口线、缝合前片、领里串口线、面与衣身领圈缝合、领里与衣领圈缝合、做领缺角。
8.做袖、装袖工艺:归拔袖大片、缝合内袖缝、归拔内袖缝、扣烫袖贴边、做袖叉、缝合外袖面缝、收袖山吃势、做袖里子、定扎左袖子、车缉左袖子、装聋作哑弹袖棉、扎烫左袖子、按相同方法装右袖。
9.锁扣眼、钉钮扣。
10.整烫工艺。
男西装马夹精做工艺:1.前片工艺:粘有纺衬、打线钉、省位、袋位、扣位、底摆、腰节、缉缝省道、与挂面缝合。
2.缉缝前片里子、缝里子省道、与挂面缝合。
3.后片工艺:缝后片里、收省、合背中缝、缝后片面、收省、合背中缝、里与面缝合。
4.摆缝工艺。
5.肩缝工艺。
6.翻膛。
7.手针。
三、男西裤精做工艺:1.粘衬、门里襟、里襟袢、袋嵌线、腰面、2.包缝、门里襟、侧袋垫底布、后袋垫底布3.西裤归拔工艺4.做侧口袋5.做里襟6.做腰头7.前裤片缝制、前膝盖绸、包缝、缝褶裥、做侧袋口8.后片缝制、装大裤底、包缝、缉省道上、开后袋9.合侧缝10.装门襟11.缝小裆12.装门襟拉链13.合裆缝14.手针15.裤子整烫。
西装工艺全里西服——它是当前市场上常有的西服工艺,这种工艺的主要特色是经过大身接着粘合衬,附毛衬、胸绒、垫肩及增强衬,使得外观成效感觉挺括,给人以谨慎、挺秀、隆重的感觉。