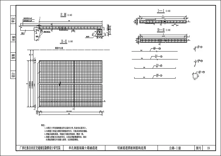
Pcv涵洞通用图-钢筋混凝土板涵盖板构造图斜度45°
- 格式:pdf
- 大小:141.28 KB
- 文档页数:2
厦蓉高速公路贵州境水口(桂黔界)至都匀段公路桥涵通用图钢筋混凝土盖板涵编号: SD/TYT H02标准化跨径: 1.5、2.0、2.5、3.0、4.0米交角: 0°汽车荷载: 公路-I级填土高度: 0.5~12.0米贵州省交通规划勘察设计研究院二00八年十二月说明一、依据技术标准及设计规范:1、《公路工程技术标准》JTG B01-20032、《公路桥涵设计通用规范》JTG D60-20043、《公路钢筋混凝土及预应力混凝土桥涵设计规范》JTG D62-20044、《公路圬工桥涵设计规范》JTG D61-20055、《公路工程抗震设计规范》JTJ 004-896、《公路桥涵地基及基础设计规范》JTJ 024-857、《公路桥涵施工技术规范》JTJ 041-2000二、采用技术指标:1、标准化跨径:1.5、2.0、2.5、3.0、4.0米2、交角:0°(涵洞轴线与路线法线之夹角)3、汽车荷载等级:公路—Ⅰ级4、地震动峰值加速度系数:小于0.05g5、涵洞技术指标:三、主要材料:四、设计要点1、装配式钢筋砼预制盖板按两端简支板计算内力,不考虑涵台传来的水平力。
2、盖板设计为变厚度板,根据内力计算分别确定跨中与板端的厚度。
3、预制盖板按99cm宽的正交板设计,若需要盖板宽度小于99cm时,可参照本图的配筋根数,按实际板宽进行折算。
4、当为斜交盖板涵时,洞口两端盖板设计为梯形盖板,可预制安装也可现场浇筑。
5、计算涵台内力时,按一端简支一端固定的竖梁计算。
6、台后活载换算成土柱高度,计算台后土压力。
7、路面车辆活荷载对涵顶的压力:按30°角分布。
填土内摩擦角为35°,土重力密度18KN/m3。
8、当涵底地基容许承载力不满足要求时,必须对地基进行加固处理,符合设计要求后,方可采用本图。
五、施工要点1、基坑开挖到位后,必须对地基土承载力进行检验,符合设计要求后再下基。
2、浆砌圬工基础的砌筑,必须按规定错缝,与台底的衔接面留出石笋;混凝土基础与台身衔接面须埋设锚筋。