电站厂房设计图纸平面布置图
- 格式:dwg
- 大小:682.19 KB
- 文档页数:49
2015年秋水利水电工程专业水电站厂房课程设计1.课程设计的目的课程设计是以工程实例为题,由学生独立思考,灵活应用有关的布置原则和要点,自己动手布置厂房,从而巩固和加深厂房部分的理论知识,并进一步培养学生的计算,制图和应用技术资料的技能。
2.工程枢纽概况水库库区跨越S、N两河,地处MY县城以北20km,两条河在MY县城以南约10km 处汇合成SN河。
水库是以防洪及工农业供水为主要任务,兼有发电效益的综合利用水利工程。
水库各特征水位如下:死水位:▽126.0m正常高水位:▽157.50m设计洪水位:▽158.20m校核洪水位:▽159.50m坝顶高程:▽160.00m主要建筑物包括:(1)挡水建筑物有N、S主坝两座及副坝五处,为碾压式粘土斜墙土坝,最大坝高为N河主坝,高66.4m,S河主坝高56m,各副坝15.7m~39m不等。
(2)泄水建筑物①溢洪道:有S河左岸第一、第二溢洪道。
第一溢洪道为正常溢洪道,底部高程▽140m,宣泄超过100年一遇的洪水,为5孔带胸墙式河岸溢洪道。
第二溢洪道为非常溢洪道,与第一溢洪道配合,宣泄1000年洪水,底部高程▽148.5m,为5孔开敞式河岸溢洪道。
②隧洞:a. N河左岸发电隧洞,用作发电供水和下游工农业供水,并在调压井上游设泄水支洞,用以宣泄10000年一遇特大洪水。
进水塔进口底部高程为▽116.0m,洞径6m,洞长416m,底坡i=1/400,调压室为园筒式,内径17.14m,调压室后接2根埋藏式压力钢管,管径5.5m,管长125m。
b. S河发电泄水隧洞,任务是施工导流,发电、灌溉、供水和泄水。
见图1所示。
③坝下廊道:为施工期的临时建筑物,施工导流采取S、N两河分别导流的方式,故设N河导流廊道、210180150图一:枢纽布置图(1:3000)S河导流廊道,可宣泄20年一遇洪水,另有南石骆驼输水廊道,用以泄放3个流量的灌带、灌溉用水。
3.厂房枢纽建筑物位置的选择(1)作为挡水建筑物的主坝分设于S河和N河,经比较,S河地面高程高于白河坝址地面高程,故建N河电站比建S河电站多出10m水头,每年可多发电400万度,所以,电站设在N河,装机容量为4台单机15MW,共60MW,N河电站发电泄水可灌溉MY县以下耕地。
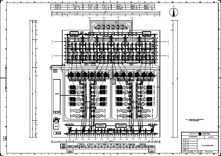
水电站厂房一、发电机层设备布置发电机层为安放水轮发电机组及辅助设备与仪表表盘的场地,也是运行人员巡回检查机组、监视仪表的场所。
要紧设备有:1.机旁盘(自动、保护、量测、动力盘)。
与调速器布置在同一侧,靠近厂房的上游或者下游墙。
2.调速柜。
应与下层的接力器相协调,尽可能靠近机组,并在吊车的工作范围之内。
3.励磁盘。
操纵励磁机运行,常布置在发电机近旁。
4.蝶阀孔。
假如在水轮机前装设蝴蝶阀,则其检修需要在发电机层的安装间内进行,在发电机层与其相应的部位预留吊孔,以方便检修与安装。
5.楼梯。
通常两台机组设置一个楼梯。
由发电机层到水轮机层至少设两个楼梯,分设在主厂房的两端,便于运行人员到水轮机层巡视与操作、及时处理事故。
楼梯不应破坏发电机层楼板的梁格系统。
6.吊物孔。
在吊车起吊范围内应设供安装检修的吊物孔,以勾通上下层之间的运输,通常布置在既不影响交通、又不影响设备布置的地方,其大小与吊运设备的大小相习惯,平常用铁盖板盖住。
发电机层平面设备布置应考虑在吊车主、副钩的工作范围内,以便楼面所有设备都能由厂内吊车起吊。
二、水轮机层设备布置水轮机层是指发电机层下列,蜗壳大块混凝土以上的这部分空间。
在水轮机层通常布置:1.调速器的接力器。
位于调速器柜的下方,与水轮机顶盖连在一起,并布置在蜗壳最小断面处,由于该处的混凝土厚度最大。
2.电气设备的布置。
发电机引出线与中性点侧都装有电流互感器,通常安装在风罩外壁或者机座外壁上。
小型水电站通常不设专门的出线层,引出母线敷设在水轮机层上方,而各类电缆架设在其下方。
水轮机层比较潮湿,对电缆不利。
对发电机引出母线要加装保护网。
3.油、气、水管道。
通常沿墙敷设或者布置在沟内。
管道的布置应与使用与供应地点相协调,同时避免与其他设备相互干扰,且与电缆分别布置在上下游侧,防止油气水渗漏对电缆造成影响。
4.水轮机层上、下游侧应设必要的过道。
要紧过道宽度不宜小于1.2m~1.6m。
水轮机机座壁上要设进人孔,进人孔宽度通常为1.2m~1.8m,高度不小于1.8m~2.0m,且坡度不能太陡。
厂房建筑工程施工图纸一、概述本工程为一栋位于XX省XX市XX区的厂房建筑工程,总建筑面积为XXX平方米,包括厂房主体和辅助设施。
本施工图纸包括建筑结构图、建筑设备图、给排水图、电气布置图等内容。
施工单位应严格按照本施工图纸的要求进行施工,确保建筑质量,保障施工安全。
二、建筑结构图1. 楼层平面布局图建筑总共包括地上X层,地下X层,每层布局如下:- 第一层:包括生产车间、办公室、休息区等;- 第二层:包括仓库、设备房等;- 地下层:包括仓库、设备房等。
2. 建筑立面图建筑总共有X个立面,立面设计采用XX风格,外墙采用XX材料,窗户布置合理,保证通风采光。
3. 结构构造图建筑主体结构采用钢筋混凝土结构,柱间距X米,梁跨度X米,楼板厚度X厘米,墙体厚度X厘米。
承重墙需设置加强筋,梁柱交接处需设立刚性连接。
4. 地基基础图地基采用XX基础形式,基础承载力满足建筑荷载要求,地下水位考虑在XX米以上。
5. 屋顶结构图屋面采用XX形式,斜坡方向采用XX角度,屋面防水层需考虑在设计中。
三、建筑设备图1. 通风空调系统生产车间和办公室需设置通风设备和空调设备,确保室内空气质量和温度舒适。
2. 给排水系统厂房内需要设置给排水系统,包括供水管道、排水管道等,水质符合国家标准,排水管道设置坡度,确保顺畅排水。
3. 供电系统建筑内需要设置电气设备,包括配电箱、电线等设备,电线需合理布置,确保供电安全。
4. 照明系统厂房内需要设置照明设备,照明布置合理,照度符合国家标准,确保工作场所明亮。
四、施工安全及质量控制1. 施工单位应根据本施工图纸要求,合理安排施工计划,保证施工进度;2. 施工单位应制定施工安全计划,加强施工现场安全管理,确保施工人员安全;3. 施工单位应负责施工质量,严格按照本施工图纸要求施工,保证建筑质量;4. 施工单位应配备专业人员进行监理,确保施工过程中质量控制。
五、验收及移交1. 施工单位须完成厂房建筑工程后,应邀请相关部门进行验收,合格后方可移交使用;2. 交房后,施工单位应提供建筑质量保修书,确保建筑质量;3. 施工单位应负责将施工现场清理整理干净,交付业主使用。
瓮安县清水电站地下式厂房设计秦 宇,程梦觉(贵州省黔南州水利水电勘测设计院,贵州 都匀 558000)摘 要:建成于1992年的清水电站是贵州省水利系统试办的首座地下式水电站,设计中充分研究岩体工程地质特性,合理布置前池以下至尾水的洞室群,地下厂房设计中采用了先进的锚喷支护、岩壁吊车梁等新技术,并在防潮、排水、隔音、通风的设计中力求作到简易可行且具互补性。
工程布置紧凑,设计合理,造价低。
关键词:清水电站;地下厂房;洞室群;岩壁吊车梁;防潮;排水;隔音;通风中图分类号:T V73116 文献标识码:B 文章编号:1007-0133(2001)S0-0020-041 工程概况清水电站是乌江支流瓮安河水电梯级开发的第七级电站,流域面积833km 2,设计水头68m,设计发电引用流量915m 3/s,装机容量2@215MW,保证出力116MW,年发电量2600万kW #h,年利用小时5230h,安装2台HL -200-WJ -71配SFW2500-8/1730水轮发电机组。
电站位于瓮安县龙塘乡,距乌江江界河大桥10km,是贵州省水利系统试办的首座地下式水电站。
工程于1986年冬动工,1992年秋建成发电。
工程所在区域属亚热带高原岩溶峰丛)))沟谷地貌,河谷深切,河道狭窄。
主要构造为天文复式倒转向斜及花帚状构造。
厂区处在天文复式向斜北西翼次一级清水)))焦园向斜北西翼,地层为二叠系下统栖霞灰黑色微晶硅质灰岩,厚度大于200m,图1 清水电站地下式厂区平面布置(高程单位:m;其他为:mm)与上覆茅口组灰岩及下覆梁山组砂页岩均为整合接触,岩层走向N35b E,倾向SE,倾角40b 。
厂区范围无断层破坏,软弱结构面裂隙均为硅、钙质胶结。
经取样物理力学试验表明,硅质灰岩结构致收稿日期:2001-01-09作者简介:秦 宇(1965-),男,四川省万源市人,工程师,从事水工建筑设计工作;程梦觉(1940-),男,江西省广丰县人,高级工程师,从事水工建筑设计工作。
能源厂房电气竣工图本资料是大型工业厂房电气施工图纸,工程包含厂房、职工宿舍、办公楼、科研楼、仓库、厂房门卫室工程。
厂房及配套设施5#、6#、7#及8#厂房。
其中5#及7#为单层钢结构厂房,建筑面积分别为4531.2m²和5618.57m²,建筑高度9.5m;6#建筑面积5253.36m²,地上五层,建筑高度32.5m;8#建筑面积896.04m²,地上六层,建筑高度23.5m;地下室建筑面积为1313.61m²。
本厂房为丙类厂房,为非爆炸危险和火灾危险区。
其余单体包括员工宿舍楼(建筑面积6203.19m²,建筑高度21m,地上六层,其中一层为食堂,二~六层为宿舍)、科研楼(建筑面积2423.93m²,建筑高度21m,地上五层)、公寓楼(2#楼建筑高度31.3m,地上十层;3#楼建筑高度19.3m,地上六层,总建筑面积4980.14m²)。
室外消防用水量:20L/S。
厂房及配套设施----大门及门卫,为单层建筑,建筑面积32.7m²,建筑高度3m。
电气设计包含配电系统设计、照明灯具布置、插座动力系统设计、有线电视系统设计、综合布线系统设计、楼宇可视对讲系统设计、建筑物防雷接地系统设计等。
目录第一章工程概况第二章施工部署第三章施工准备一、技术准备二、工程施工准备三、施工现场准备四、现场施工用水五、现场施工用电六、生产及生活设施布置第四章主要分项工程施工方法第一部分:土建部分:第二部分:钢结构部分:第五章施工进度计划第六章施工平面布置图第七章质量、技术保证措施第八章安全生产和文明施工措施第九章施工进度计划保证措施第十章雨期,冬期施工措施第十一章项目经理情况第十二章主要施工机具使用计划第十三章劳动力安排使用计划第十四章临时设施布置及临时用地表第十五章编制依据第一章工程概况第二章施工部署一、机构设置和管理目标1、机构设置按项目法施工模式组织项目经理部内的施工生产诸要素,对工程项目的工期、质量、安全、成本等综合效益进行高效有计划的组织,协调和管理,配备先进的机具设备,以科学的手段、先进的技术、优质高效地完成本工程。
抽水蓄能电站地下厂房系统土建工程施工总平面布置方案1.1布置原则根据本工程特点和招标文件提供的施工技术条件、施工规模及施工环境要求,本工程按下述原则进行布置:⑴所有生活、生产、施工辅助企业等临建设施以及施工道路布置均按有关文件要求及发包人提供的条件在合同征地线范围内进行规划布置。
⑵临建设施的规模和容量根据施工总进度和施工强度的需要进行规划设计,施工设施的布置在满足施工要求的前提下,尽量做到简单、实用,降低工程造价,布置力求紧凑、合理、管理集中、调度灵活、运行方便和节约用地,并尽量避免与其它标段的施工干扰和影响。
⑶按国家有关规定和业主的要求,所有生产、生活等设施的布置达到安全生产、文明施工和环境保护的要求。
⑷各施工场地及营地均按有关要求配置足够可靠的环保设施及消防设施,避免施工对公众利益的损害,并考虑为他人提供方便。
1.2总布置说明所有施工设施布置根据发包人给定指定的范围进行布置。
具体布置见《施工总平面布置图》X1C/C-CC-04-03-01)。
生产生活设施及辅助企业布置特性表1表1.3施工交通㈠发包人提供的施工道路:本工程业主提供的可用于本标段使用的主要交通道路有:1号公路、2号公路、9号道路、13号公路。
各道路特性见表3-2o发包人提供的场内道路及运渣洞基本能满足本标开挖、混凝土浇筑、渣场填筑等工程施工。
道路特性见表3-3。
表3-3本标段地下洞室施工主要施工通道为进厂交通洞、通风兼安全洞及与之相贯通的支洞。
具体特性见表3-4。
地下洞室施工通道特性表㈣11号公路设计与施工1「公路是贯穿下水库生活区及电站管理区的主干道。
根据标书要求,11'公路X点〜丫点(长287∙626∏1)段由本标段承包人依据施工总布置图要求自行完成合同范围内的路基、路面、排水、涵洞等的设计、施工,并在合同实施期间负责管理、维护和养护道路。
⑴主要设计依据设计主要依据为:《公路工程技术标准》(JTJ001-97).《公路环境保护设计规范》(JTJ/TOO6-98)、《公路路线设计规范》(JTJO1I-94)、《公路水泥混凝土路面设计规范》(JTJO16-94)、《公路路基设计规范》(JTJoI3-95)、《公路排水设计技术规范》(JTJ/T006-98)以及本标段标书要求等。
电厂施工工程总平面布置要求1 施工总平面布置原则1.1 本工程施工总平面布置根据厂区总平面布置方案、火力发电厂施工要求、建筑和安装工程量、厂区交通、地质条件、材料供应来源、各施工单位实际情况等因素综合考虑的,力求安全生产、文明施工,以满足有关规程的安全、防洪、排水、防火、防雷之要求。
1.2 施工场地布局尽可能紧凑合理,按施工职能分区规划,符合建安工艺流程。
既要布置整齐,又要方便施工、便于管理、节约用地。
1.3 合理组织交通运输,使各个施工阶段能做到交通方便,运输通畅,尽量避免二次搬运;施工区内的公路呈环状布置,施工道路尽可能地永临结合布置,各施工区排水系统良好通畅。
1.4 各标段施工场地合理分配,对主要施工场地进行整体规划,尽量避免和减少各单位、各工序之间的干扰。
1.5 充分利用厂区征地,控制租地。
按照设备及材料供应计划、施工先后顺序及工期进度等要求设置施工现场设备及材料堆置场地,以缩短堆放周期,力求节约施工用地,保证厂区文明施工。
1.6 扩建端施工用地的划分原则考虑二期工程施工时一期工程的施工生产设施的搬迁方便。
1.7 注意保护环境,避免对绿地及植被的破坏。
如确为工程所需,尽可能做好树木移植工作。
2 施工临时设施布置2.1 生活区布置1 号、2 号标段的施工生活区拟集中布置在××粮库大院内,总占地面积56285m2,1 号标段施工生活区布置在东侧,占地面积25000m2。
2 号标段施工生活区布置在西侧,占地面积31285m2。
原粮库行政办公楼(三层1952m2)经适当装修后用作项目部后方办公区,原粮库内的食堂、小车库、澡堂已基本完工,可经改造后利用。
两座未封顶的粮库经改造后可部分满足职工居住要求。
3 号标生活区利用金信公司原有生活设施,不在另建。
在粮库大院的西南角空地、东侧空地分别新建 2 号、1 号标段职工临时住房(砖结构平房或金属活动房)、锅炉房、职工活动中心等生活设施。
水电站最大水头40.2 水电站最小水头22.3算术平均水头31.25 水电站设计水头30.44.2.2 水轮机主要参数的确定⑴ 确定水轮机转轮直径取水轮机工作范围为22~41m ,在反击式水轮机系列型谱中查得HL240型水轮机比较适用于这一水头范围。
2 1.5d r d 11r d N =9.81Q H =9.81Q D H ηηηη´ (2)式中:N d —发电机单机容量Q r —水轮机设计流量 Q 1—单位最大流量 D 1—水轮机转轮 ηd —发电机效率 η—水轮机效率 H r —水轮机设计水头 初拟ηd =94%,η=92%。
则1D 1.35m === 查水轮机转轮标准系列取D 1=1.4m231Q Q D 1.24 1.413.4m /s ==⨯=´⑵ 效率修正值的计算查《小型水电站发电设备手册》图1-15HL240型水轮机转轮综合特性曲线,HL240型水轮机在最优工况下的最高效率ηMmax =92.0%,模型转轮直径D 1M =0.46m 。
则原型水轮机的最高效率max Mmax 111(193.6%ηη=--=--=( (3) 考虑制造水平的差异,根据水轮机的直径凭经验取ε=1.0%,原型水轮机所采用的蜗壳和尾水管与模型水轮机的相似故取‵ε=0。
则效率修正值由下式计算max =0.9360.920.010=0.006------ˋMmax △η=ηηεε (4)水轮机在限制工况处的效率为M =+ =0.904+0.006=0.91ηηη△⑶ 确定水轮机转速由水轮机相似定律''11M n n === (5)11n n D =在上式中原型水轮机的单位转速应取最大单位转速即10n '''+1△n 10M =n (6)HL240模型水轮机的最优单位转速1072n '=, 同时由于110110.0090.03M n n =-=-=<△´ 可不予修正,因此,原型水轮机的最优单位转速和模型机的相同,即1010M n n '=´=72。
工业厂房工程施工现场总平面布置1.施工现场特征本工程由14个单体工程组成,包括1号~2号提纯干燥车间、1号~7号球形车间、4号~5号负极材料车间、水泵房、储罐车间、1号大门及门卫室。
总建筑面积28232.74m2,其中地上建筑面积27094.94m2,地下建筑面积1137.80m2。
(1)出入口:为减少施工车辆在厂区内的行驶距离,减少现场施工对厂区员工的工作和生活的影响,本工程拟在1号大门和4号大门处设置两个出入口。
(2)场内交通:施工现场需设置临时施工道路。
2.施工总平面布置原则本工程合理组织将成为工程顺利进行的关键,施工总平面布置合理与否,将直接关系到施工进度的快慢。
为保证施工进度,本工程分阶段进行施工总平面布置。
施工平面布置原则如下:(1)依据工程特点和各施工阶段施工管理要求,结合现场实际情况,对施工平面实行分阶段布置和管理,不同施工阶段总平面布置作动态调整,但临时设施的迁移量不宜过大,方便进行管理和服务;(2)紧凑有序,在满足施工的条件下,科学合理的布置总平面,充分利用施工现场的场地;(3)在满足施工生产需要和市政府有关规定的前提下,按照美观、实用、节约的原则进行建设规划临时设施;(4)按专业划分施工用地,尽量避免各专业用地交叉而造成的相互影响干扰, 保证场内施工道路通畅;(5)施工设备和材料堆场按照“就近堆放”和“及时周转”的原则,既尽量布置在汽车吊覆盖范围内,同时考虑到交通运输的便利,尽量减少材料场内的二次搬运;(6)合理布置汽车吊、混凝土泵等大中型机械设备,以达到最优的使用率;(7)尽量避免对周围环境的干扰和影响;(8)临建布置符合施工现场卫生、环保、安全和卫生要求。
3.大中型机械设备的选型3.1土建起重机械的选型根据本工程场地大,建筑高度低,土建工程量小的特点,采用汽车吊作为起重机械。
3.2钢结构起重机械的选型根据现场工期紧,吊装重量不重等情况考虑,采用汽车吊进行吊装。
3.3混凝土输送泵的选型和布置根据本工程流水段的划分和工程量计算,根据分阶段进行混凝土输送泵的布置。