塑钢门窗安装方案
- 格式:docx
- 大小:37.29 KB
- 文档页数:13
塑钢窗施工方案三篇篇一:塑钢窗施工方案塑钢门窗方案XX(集团)工业有限公司塑钢分厂20XX年10月1日塑钢门窗安装技术方案及验收一、范围本工艺标准适用于工业与民用建筑的塑钢门窗安装。
门窗具用有密封、保温性能。
二、施工准备材料1.塑钢门窗:按照设计图纸检查核对门窗的型号、规格、开启形式、开启方向、安装孔方位及组合杆和附件等。
严禁门窗构件有变形的坏损的缺陷,且应有出厂合格证。
2.塑钢门窗所用的五金配件应与门窗型号相匹配,所用的零附件及固定件使用优质材质。
3.与结构固定的连接铁脚、连接铁板,应按图纸要求的规格备好。
4.嵌缝材料、发泡剂、密封胶的品种、型号应符合设计要求。
5.按图示尺寸弹好水平线,并弹好+50㎝水平线,校正门窗窗洞口位置尺寸及标高是否符合设计纸要求,如有问题应提前剔凿处理。
6.检查塑钢门窗两侧连接脚位置与墙体预留孔洞是否吻合,若有问题应提前处理,并将预留孔洞内的杂物清理干净。
7.图纸要核对型号,检查质量和表面的平整度,如发现有棱窜角和翘曲不平、严重超标、严重损伤、外观色差大等缺陷时,应找有关人员协商解决,经修整鉴定合格后才可安装。
8. 门窗口的水平位置应以楼层+50㎝水平线为准,往上反,出窗下皮标高,弹线找直,每层窗下皮(若标高相同)则应在同一水平线上。
9. 墙厚方向的安装位置:根据外墙大样图及窗台板的宽度确定塑钢门窗在墙厚方向的安装位置;如外墙厚度有偏差时,原则上应以同一房间窗台板外露尺寸一致为准,窗台板应伸入塑窗的窗下宜。
三、原材料的报检和复检1、塑钢门窗进场报检:合格证,生产许可证,复检报告2、聚氨脂发泡剂报检: 合格证3、中空玻璃安装报检:合格证浸泡自检记录四、进度计划序号工程名称塑钢窗时间中空玻璃安装时间1 玛纳斯凤凰新城20#楼10.6—10.9 11.5—11.72 玛纳斯凤凰新城21#楼10.6—10.9 11.5—11.7五、塑钢窗安装的准备工作(样板制)塑钢窗成品材料进场后,公司技术人员随后对施工现场进行检查,并和业主、监理,施工单位人员交流听取意见和建议,对施工机械、施工用电、安装技术和施工人员进行检查、安排,教育和交底。
一、施工准备1. 材料准备:(1)塑钢断桥窗框、扇:根据设计要求选择合适的规格和型号,确保窗框、扇表面无沾污和碰伤痕迹。
(2)附件:不锈钢螺钉、滑轮组、锁、尼龙毛刷等。
(3)其他:连接件、橡胶条、垫料、塑料胶纸、玻璃胶、木楔等。
(4)玻璃:中空白色平板玻璃。
2. 工具准备:铝质水平尺、射钉枪、电钻、打胶筒、玻璃吸手、榔锤等。
二、施工要点1. 安装位置:塑钢断桥窗安装位置要规矩、方正和牢靠,不得有翘曲、窜角及松动现象。
2. 材料堆放:按不同的规格和种类分别堆放整齐,底层需垫实垫平。
同时要有保护措施,防止在存放期间受到挤压或碰撞而引起变形。
3. 窗框安装:(1)窗框安装前,除塞灰的一侧外,其余三面需用塑料胶纸包裹保护,以防止受到污染。
(2)安装窗框的洞口尺寸要正确,框上下缝隙分别要有15~18mm,两侧需各留20~30mm的塞灰厚度。
(3)将窗框装入洞口,其上下框中线应与洞口中线位置对齐;窗的上下框四角及横框的对称位置应用木块塞紧作临时固定。
4. 窗扇安装:(1)安装窗扇时所选用的五金配件必须要配套,使窗安装后启闭灵活自如。
(2)窗扇四周都应装有密封胶条,并使金属框料之间不直接接触。
5. 成品保护:安装后的窗框必须严格避免因车撞、物碰而引起的位移和损伤。
6. 门窗四周嵌缝:门窗框与墙体的缝隙应按要求的材料嵌缝,如设计无要求时用沥青麻丝或泡沫塑料填充。
表面用厚度为5~8mm的密封胶封闭。
7. 门窗附件安装:安装时应先用电钻钻孔然后再用自攻螺丝拧入,不能用铁锤或硬物敲打。
三、操作方法1. 放线:窗框一般是后塞口,在安装前先放线确定窗框安装位置。
2. 门窗安装:按照图纸要求,将窗框、窗扇等安装到位,确保安装质量。
3. 嵌缝:按要求填充缝隙材料,并用密封胶封闭。
4. 安装附件:安装五金配件,确保窗扇启闭灵活。
5. 成品保护:安装完成后,对门窗进行成品保护,避免污染和损坏。
四、质量保证1. 严格按照施工方案进行施工,确保施工质量。
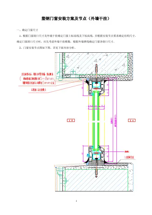
塑钢门窗安装方案及节点(外墙干挂)一、确定门窗尺寸1、根据门窗洞口尺寸及外墙干挂确定门窗上标高线及下标高线,并根据安装节点要求确定结构尺寸。
确定门窗洞口尺寸时,应先考虑外墙干挂模数,根据外墙弹线确定门窗净洞口尺寸。
2、门窗安装节点图如下图。
详见下面内容分析。
二、砼窗台施工1、砼窗台尺寸为200高,宽度同墙宽,长度为伸入窗洞两边100。
2、砼窗台面直接粉刷成折边行,外型及尺寸要求见下图。
2.1 窗台直接用C20砼浇捣,窗台直接磨平压光成下图尺寸及外形,且需严格控制止口进出线(进出线详见下图),止口内边高度控制在10-12mm(安装间隙为8mm,以使止口上边压框2-3mm)。
2.2窗框离外墙面距离控制在110mm。
3、根据门窗尺寸确定下止口上边及下边标高。
下止口上标为门窗上表高+2-3mm,下止口下标高为门窗上标高-8mm。
4、砼窗台完成后,砼窗台与墙面之间阴角用防水砂浆填满压实。
三、窗上口施工1、窗上口直接粉刷成净洞口,控制要求如下:1.1根据门窗尺寸确定上止口上边及下边标高。
上止口上标为门窗上表高+8mm,上止口下标高为门窗上标高减2-3mm标高。
1.2上止口进出线同下止口进出线。
1.3上口外檐粉刷时直接粉出老鹰嘴,且粉刷厚度控制在50mm以内。
2、门窗上口粉刷时须在底糙前及面层粉刷前铺贴玻纤网格布,并严格控制网格布的搭接量。
四、窗两边粉刷施工1、砌体砌筑时两边砼块设置原则为:砂加气墙体为隔一放一。
一般多孔砖为每隔350㎜放一个,原则上不能大于500㎜.2、根据确定的洞口尺寸,直接粉刷成净洞口。
严格控制垂直度、平整度及进出。
五、门窗安装1、门窗安装固定好后,门窗四边打发泡剂。
打发泡剂必须饱满,且四边需压实,需严格控制打发泡剂的量,避免出现打发泡剂过量需用刀切割修边的情况。
且需作为一个检验批,由监理单位负责检验。
2、发泡剂检验合格后,用防水砂浆对门窗四边进行封堵,防水砂浆必须压实,并捣成圆角。
由监理单位负责对该工序进行检验。
本工程为某住宅小区塑钢窗制作安装工程,工程内容包括塑钢窗框、窗扇的制作及安装。
工程规模为XXX平方米,工程地点位于XXX。
二、施工依据1. 《建筑门窗工程技术规范》(GB 50128-2005)2. 《塑料门窗》(GB/T 8814-2008)3. 《建筑门窗施工及验收规范》(GB 50210-2001)三、施工准备1. 材料准备:根据设计要求,采购符合国家标准的塑钢窗框、窗扇、玻璃、密封胶条、五金配件等材料。
2. 工具准备:电钻、射钉枪、水平尺、榔锤、打胶筒、玻璃吸手等。
3. 人员准备:组织具备相关资质的施工队伍,进行施工前的技术交底。
四、施工工艺1. 施工前,对施工现场进行清理,确保无障碍物。
2. 根据设计图纸,确定窗框、窗扇的安装位置,并做好标记。
3. 安装窗框:(1)在洞口处,用水平尺和吊线检查洞口尺寸,确保尺寸准确。
(2)将窗框放入洞口,调整窗框的位置,使其符合设计要求。
(3)在窗框两侧及上下框处,用射钉枪固定窗框,固定点间距不大于600mm。
(4)检查窗框的垂直度和水平度,确保窗框安装牢固。
4. 安装窗扇:(1)将窗扇放入窗框,调整窗扇的位置,使其符合设计要求。
(2)检查窗扇的垂直度和水平度,确保窗扇安装牢固。
(3)安装五金配件,包括滑轮、锁具、合页等,确保窗扇启闭灵活。
(4)在窗扇四周安装密封胶条,防止雨水渗入。
5. 安装玻璃:(1)根据设计要求,选择合适的玻璃。
(2)将玻璃放入窗扇,调整玻璃的位置,确保玻璃安装牢固。
(3)在玻璃四周安装密封胶条,防止雨水渗入。
6. 施工完毕后,清理施工现场,确保无杂物。
五、质量要求1. 窗框、窗扇安装牢固,无松动现象。
2. 窗框、窗扇垂直度和水平度符合设计要求。
3. 窗扇启闭灵活,无卡阻现象。
4. 玻璃安装牢固,无松动现象。
5. 密封胶条安装牢固,无脱落现象。
六、安全措施1. 施工人员必须佩戴安全帽、安全带等防护用品。
2. 高空作业时,必须系好安全带,确保安全。
塑钢门窗施工方案(新)
一、前言
随着建筑行业的发展,塑钢门窗作为一种新型建筑材料,在现代建筑中得到了广泛应用。
本文旨在探讨塑钢门窗的施工方案,以确保施工质量,提高施工效率。
二、材料准备
1.塑钢门窗材料:包括门框、门扇、窗框、窗扇等。
2.安装工具:主要有锤子、螺丝刀、尺子、消副等。
三、施工步骤
1. 确定安装位置
首先要根据设计图纸确定塑钢门窗的安装位置,并在墙面上做好标识。
2. 安装门窗框
1.首先安装门窗框,将门窗框放入预先准备好的洞口。
2.使用水平仪调整门窗框的水平度和垂直度。
3.在门窗框四周用螺丝固定门窗框。
3. 安装门扇和窗扇
1.将门扇或窗扇放入门窗框中。
2.调整门扇或窗扇的位置,使其与门窗框吻合。
3.使用螺丝将门扇或窗扇牢固固定在门窗框上。
4. 调整门窗
1.进行开窗和关窗测试,确保门窗的开启和关闭顺畅。
2.调整门窗的合页、锁具等部位,使其达到最佳效果。
四、收尾工作
1.清理施工现场,清除杂物。
2.检查门窗的安装质量,确保符合要求。
五、注意事项
1.在施工过程中要注意安全,避免发生意外事故。
2.施工过程中要认真对待每一个细节,确保施工质量。
3.如遇特殊情况需及时与设计师或相关专业人员沟通,寻求解决方案。
六、总结
塑钢门窗在建筑中起到了至关重要的作用,正确的施工方案能够保证其使用效
果和外观效果。
通过本文介绍的施工步骤,可以为建筑施工提供一定的指导和参考,帮助施工人员顺利完成塑钢门窗的安装工作。
塑钢门窗安装规范方案塑钢门窗作为建筑门窗的一种常见类型,安装需要遵循一定的规范方案。
下面将详细介绍塑钢门窗安装的规范方案。
一、施工准备工作1.确认门窗尺寸:在安装之前,需要严格按照设计文件或者施工图纸上的尺寸要求,确认门窗的实际尺寸。
2.检查材料:检查门窗材料的质量和数量,确保无损坏和不足之处。
3.准备工具:准备安装所需的工具和辅助材料,如螺丝刀、钳子、螺丝、密封胶等。
二、门窗安装过程1.确定安装位置:根据设计要求和实际情况,确定门窗的安装位置。
2.定位安装框架:根据门窗的尺寸和厚度,使用水平仪和垂直仪确定门窗的水平和垂直位置,然后使用膨胀螺丝将安装框架固定在墙体上。
3.安装门窗:将门窗无损坏地放置在安装框架上,同时调整门窗的位置,确保平顺运行和密封性能。
4.固定门窗:使用螺丝将门窗与安装框架进行牢固的连接,要确保螺丝紧固牢固,不松动。
5.检查门窗功能:安装完成后,需要检查门窗的打开、关闭、锁定等功能,确保运行正常。
6.检查密封性:使用密封胶对门窗和墙体之间的缝隙进行密封处理,确保防水、防风、保温性能。
7.清理整理:安装完成后,清理门窗周围的杂物和垃圾,确保安全和整洁。
三、安全注意事项1.安全设施:在安装过程中,要确保搭建安全设施,如梯子、脚手架等,确保安装人员的安全。
2.作业环境:确保安装环境的干燥、清洁,避免灰尘、水汽等对门窗材料和安装效果的影响。
3.物料搬运:门窗材料属于大件,需要使用合适的搬运工具和方式,避免磕碰、掉落等事故。
4.安全防护:安装人员需要戴好安全帽、手套等防护用具,避免意外伤害。
通过以上的规范方案,可以确保塑钢门窗的安装质量和效果。
在实际安装过程中,还需根据具体情况进行调整和改进,以确保安装质量和施工安全。
同时,施工人员应具备一定的专业知识和技能,保证安装的技术要求和标准要求的达到。
塑钢门窗安装施工方案塑钢门窗安装施工方案一、前期准备工作1. 安装前,根据设计图纸和施工方案,准备好所需的材料、工具和施工设备。
2. 对施工现场进行清理和平整,确保施工区域干净、无障碍物。
二、安装工序1. 开始安装前,根据图纸确定门窗的位置和尺寸,并进行标志。
2. 首先安装门窗的门套,将门套进行固定,确保门套与墙体之间的接触面平整牢固。
3. 安装门窗框架,将框架按照设计要求放置并固定,确保框架的垂直度和平整度。
4. 安装玻璃,将玻璃安装到门窗框架中,并用密封胶进行固定,确保玻璃的牢固和密封性能。
5. 安装门扇或窗扇,将门扇或窗扇按照设计要求放置并固定,确保扇与框的接触面平整牢固。
6. 进行调整,校准门窗的开闭平稳程度,调整好门窗的密封性能和安全性能。
三、验收工作1. 完成安装后,对安装的门窗进行全面检查,确保门窗的安装质量和外观效果。
2. 检查门窗的开闭平稳程度,确保门窗的使用功能正常。
3. 检查门窗的密封性能,确保门窗的防水、防风、防尘、隔音等功能正常。
4. 检查门窗的安全性能,确保门窗的抗压、抗震、抗爆等性能正常。
四、安全措施1. 施工过程中,工作人员必须佩戴好安全帽、防护眼镜、手套等个人防护用品。
2. 施工现场必须设置合理的安全警示标识和警示线,保护好施工区域的通行安全。
3. 使用电动工具时,必须接地并采取防止触电的措施。
4. 施工过程中,注意防止门窗的损坏和倒塌,保证施工人员的人身安全。
以上是塑钢门窗安装施工的一般方案,具体情况可根据实际需要进行调整和补充。
在安装过程中,施工人员应严格按照相关规范和要求进行操作,确保门窗的安装质量和使用效果。
(完整版)塑钢门窗施工方案第一篇范本:【文档概述】本文档旨在提供一份完整的塑钢门窗施工方案,详细描述了施工过程中的各项工作内容,以指导施工人员正确认识和执行。
【施工准备】1. 确定施工地点:详细勘察施工地点的环境和现场情况,确保其符合施工要求;2. 确定施工时间:根据工期和天气状况,合理安排施工时间,并制订施工计划;3. 验收施工材料:对采购的塑钢门窗进行验收,确保质量合格;4. 准备工具设备:准备必要的施工工具设备,确保施工过程顺利进行。
【施工步骤】1. 消除隐患:在施工前,检查施工地点的安全隐患,并采取相应措施消除;2. 安装门窗框架:按照设计图纸和要求,逐步进行门窗框架的安装,确保稳固牢靠;3. 安装门窗扇:将门窗扇与框架连接,并进行调整,使其开闭顺畅;4. 安装五金配件:根据设计要求,安装门窗的五金配件,如锁具、合页等;5. 调试和检测:对安装好的门窗进行调试,确保其使用功能正常;6. 清理和保养:施工结束后,对施工现场进行清理,并做好门窗的保养工作。
【附件】1. 相关设计图纸:包括门窗的尺寸、安装要求等信息;2. 施工进度表:记录了施工过程中的各个节点和完成情况;3. 施工记录表:记录了施工过程中的各项数据和问题。
【法律名词及注释】1. 建筑法:指《中华人民共和国建筑法》;2. 建筑工程标准:根据国家规定的建筑工程技术标准执行。
第二篇范本:【文档概述】本文档为塑钢门窗施工方案,旨在详细描述施工过程中各项工作内容,以确保施工质量和安全,并指导施工人员按照流程进行操作。
【施工准备】1. 施工地点选择:根据项目需求和设计要求,选择合适的施工地点;2. 施工时间安排:根据工期计划和天气条件,合理安排施工时间;3. 材料准备:仔细验收购买的塑钢门窗材料,确保质量合格;4. 工具设备准备:准备所需的工具设备,包括安装工具、检测工具等。
【施工步骤】1. 施工前准备:对施工地点进行勘察,消除安全隐患,并组织开展施工前会议;2. 安装门窗框架:根据设计图纸和规范要求,逐步进行门窗框架的安装;3. 安装门窗扇:将门窗扇与框架连接,并进行调整,保证其开闭顺畅;4. 安装五金配件:根据设计要求,安装门窗的五金配件,如锁具、合页等;5. 调试和检测:对安装好的门窗进行调试,确保其使用功能正常;6. 清理和保养:施工结束后,对施工现场进行清理,并做好门窗的保养工作。
塑钢门窗安装工程施工方案1、塑钢窗安装1.1施工准备(1)塑钢窗的品种、规格、开启形式应符合设计要求,各种附件配套齐全,并具有产品出厂合格证。
(2)防腐材料,填缝材料,密封材料,保护材料,清洁材料等应符合设计要求和有关标准的规定。
⑶窗洞已按设计要求施工完毕,并已画好安装墨线。
⑷检查窗洞尺寸是否符合设计要求,如有影响窗安装的问题应及时进行处理。
⑸检查塑钢窗,如有表面损伤、变形及松动等问题,及时进行修整、校正等处理,合格后才能进行安装。
1.2窗框安装施工要点⑴按照建筑50mm线弹出窗位置线,将预留窗洞按窗框尺寸修理好。
⑵在窗框的侧边固定好连接铁件,外墙塑钢窗应做可靠的防雷接地,严禁在窗上进行焊接工作。
⑶窗框按设计位置立好,找好垂直度及几何尺寸后用射钉或自攻螺丝将窗框与墙体连接件固定。
⑷窗框与洞的间隙用矿棉条或玻璃棉毡条分层填塞,缝隙表面留5〜8mm 深的槽,嵌填密封膏。
(5)全部竣工后,剥去窗上的保护膜。
1.3窗扇安装施工要点:⑴窗扇安装应在室内外装修基本完成后进行。
⑵推、拉窗的安装:将配好的窗扇分内扇和外扇:先将外扇插入上滑道的外槽内,自然下落于对应的下滑道内,然后用同样的方法安装内扇。
⑶窗扇应关闭严密、间隙均匀、开关灵活,扇与框搭接量应符合设计要求。
(4)窗玻璃安装时,要在窗框槽内放置弹性垫块不准玻璃与窗框直接接触,玻璃与框槽间隙应用胶皮条或密封胶将四周压牢或填满。
2、推拉门安装1.1施工准备:由生产厂家供应的推拉门框、扇,进场时应核对型号、尺寸、数量、加工质量和出厂合格证。
安装前结构工程应经验收全部完成,且质量标准符合要求,室内水平线已弹好,且门框靠墙防腐涂料已涂刷,其它面及扇面用清油涂刷一遍1.2推拉门安装施工要点:⑴推拉门框安装首先应检查导轨的尺寸、型号是否符合设计规范。
⑵据室内建筑50cm线,弹出安装位置线,对不符线的结构边楞进行处理。
⑶根据图纸门扇的开启方向确定门框安装的裁方向,门框固定好后,用线坠校正吊直。
本工程为塑钢门窗安装制作施工,包括塑钢门窗的加工、运输、安装及售后服务等。
塑钢门窗具有保温、隔音、防尘、防虫蛀等优点,适用于各种建筑物的门窗工程。
二、材料要求1. 塑钢型材:应符合国家标准,表面光滑,无气泡、裂纹、变形等缺陷。
2. 玻璃:应选用符合国家标准的中空白色平板玻璃。
3. 附件:包括不锈钢螺钉、滑轮组、锁、尼龙毛刷、连接件、橡胶条、垫料、塑料胶纸、玻璃胶、木楔等。
4. 密封材料:应选用耐候性、弹性好的密封胶。
三、施工工具1. 铝质水平尺2. 射钉枪3. 电钻4. 打胶筒5. 玻璃吸手6. 榔锤四、施工工艺流程1. 施工准备:根据设计图纸,确定门窗位置、尺寸,准备所需材料及工具。
2. 放线定位:按照设计图纸,确定门窗安装位置,弹出定位线。
3. 洞口处理:根据洞口尺寸,预留出适当的缝隙,以便安装门窗。
4. 门窗安装:(1)安装窗框:将窗框放入洞口,调整垂直度、标高,用木楔临时固定。
(2)固定窗框:使用膨胀螺栓将窗框与墙体牢固固定。
(3)嵌缝:在窗框与墙体缝隙处,按照设计要求,填充沥青麻丝或泡沫塑料,并用密封胶封闭。
(4)安装窗扇:将窗扇放入窗框,调整垂直度、标高,使用五金配件固定。
(5)安装附件:安装滑轮组、锁、尼龙毛刷等附件。
5. 成品保护:安装完成后,对门窗进行成品保护,防止污染、损坏。
五、施工要点1. 严格按照设计图纸进行施工,确保门窗安装位置、尺寸准确。
2. 安装过程中,注意窗框、窗扇的垂直度、标高,确保门窗安装牢固、平整。
3. 嵌缝时,选用合适的填充材料,确保缝隙密实、美观。
4. 安装五金配件时,注意配套齐全,确保门窗启闭灵活。
5. 施工过程中,做好成品保护,防止污染、损坏。
六、质量标准1. 门窗安装位置、尺寸准确,垂直度、标高符合设计要求。
2. 门窗安装牢固,无松动、翘曲现象。
3. 嵌缝密实、美观,无裂缝、脱落现象。
4. 门窗启闭灵活,五金配件齐全、完好。
5. 成品保护完好,无污染、损坏现象。
门窗玻璃安装施工方案一、工艺流程:清理玻璃槽口污物→玻璃安装前的准备工作→玻璃就位→像胶条刷胶嵌入凹槽将玻璃挤住→玻璃清理二、具体作法:1、除去玻璃和彩板钢窗表面的尘土、油污和水膜,并将玻璃槽口内的砂浆及异物清除干净,畅通排水孔,并复查框扇开关是否灵活。
使用密封胶固定时,应选调整好玻璃的垂直及水平位置,密胶与玻璃及槽。
粘结处必须干燥、洁净。
2、玻璃安装准备:将玻璃下部用约3mm厚的氯丁橡胶垫块垫于凹槽内,避免玻璃直接接触框扇。
3、玻璃安装:将已裁割好的玻璃在塑钢窗框扇中就位,就位的玻璃应摆在凹槽中间,装配后应保证玻璃与镶嵌槽间隙,并在主要部位装有减震垫块,使其能缓冲关闭开启等力的冲击。
4、用胶条固定:先将橡胶压条放在玻璃两侧挤紧,检查安装位置是正确,应不堵塞排水孔然后将橡胶压条拿出,在压条上均匀均刷胶,重新将压条依次嵌入玻璃凹槽内固定。
橡胶压条的规格应与凹槽实际尺寸相符,其长度应短于玻璃周边长度,拐角处应将压条切成八字角连接并用胶粘牢。
胶条应与玻璃和槽口紧贴,不得松动,安装不得偏位,不得强行填入胶条。
三、环境保护1、实行环保目标责任制,把环保指标以责任书的形式层层分解到项目部有关部门和个人,列入承包合同和岗位责任制。
项目经理为环保工作第一责任人。
2、组织所有施工人员学习环保知识,提高全体职工的环保意识,并自觉遵守国家和地方所有关于控制环境污染的法律和法规。
3、施工中保护好工地环境,加强施工现场的灰尘、噪音等监控工作,晴天安排洒水车对路面洒水湿润,大方量砼浇筑尽量避免在午休及夜间九点以后的时间内进行,夜零时后不使用高噪音设备。
4、施工渣土合理堆放并及时清运,堆积处采用组合式围挡或砖砌围墙作临时围护,必要时以彩条布覆盖,避免泥土散落,影响道路整洁;生活污水有组织地排入就近下水道,严禁流出施工区域,污染环境。
5、土方施工现场的出入口铺设草袋,并安排专人清理汽车轮胎,避免车轮将泥土带入其他道路,影响城市整洁。
塑钢门窗安装技术方案一、前期准备工作1.确定安装位置:根据设计图纸和实际要求,在门窗安装位置进行测量和标记,确保安装位置的准确性。
2.检查门窗材料:检查塑钢门窗的材料是否完好无损,每个门窗的型号、尺寸和配件是否齐全。
3.清理安装位置:清理门窗安装位置的杂物和灰尘,确保安装位置干净整洁。
二、安装门窗框架1.定位门窗框架:根据设计要求,用专用工具将门窗框架定位在正确的位置上,确保垂直和水平度。
2.固定门窗框架:使用钢筋、膨胀螺栓等固定门窗框架,确保门窗框架稳固可靠。
3.检查门窗框架:检查门窗框架的垂直度和平整度,必要时进行调整。
三、安装门窗扇1.安装门窗扇:将门窗扇放入框架中,确保门窗扇与框架的配合平衡,轻轻摩擦门窗扇使其流畅开启。
2.调整门窗扇:根据需要,使用专用工具对门窗扇进行调整,确保开启平稳、无噪音。
3.固定门窗扇:使用专用螺丝将门窗扇固定在框架上,使其牢固可靠。
4.校验门窗扇:对门窗扇进行校验,确保其开启和关闭的灵活性和阻尼力。
四、安装门窗配件1.安装拉手和锁具:根据设计要求,将门窗配件如拉手和锁具等安装在门窗上,确保其功能正常。
2.安装密封胶条:将密封胶条安装在门窗框架的接缝处,确保门窗的密封性能。
3.安装玻璃:根据设计要求,将玻璃安装在门窗扇上,使用密封胶条固定玻璃,并确保玻璃的垂直和水平度。
五、验收与清理1.验收安装质量:对安装完成的塑钢门窗进行全面的验收,检查其平整度、开启和关闭的顺畅性以及配件的功能正常性。
2.清理现场:清理安装现场,清除杂物、垃圾等,保持现场整洁。
六、注意事项1.严格按照设计图纸和安装操作规程进行安装,确保安装质量。
2.选择质量可靠的塑钢门窗材料,确保其使用寿命和安全性。
3.在安装过程中使用适量的密封胶条,确保门窗的密封性能。
4.定期检查和保养已安装的塑钢门窗,延长其使用寿命和性能。
以上是塑钢门窗安装的技术方案,通过严格的前期准备工作、精细的门窗框架安装、准确的门窗扇安装、合理的门窗配件安装以及严谨的验收和清理工作,可以确保塑钢门窗的使用效果和安全性。
塑钢门窗施工工艺及安装方案塑钢门窗是一种常见的建筑材料,用于室内和室外门窗的施工。
本文将介绍塑钢门窗的施工工艺及安装方案,希望对读者有所帮助。
一、材料准备1.检查塑钢门窗的尺寸和配件是否符合设计要求。
2.准备安装塑钢门窗所需的工具和设备,例如:千斤顶、搬运车、螺丝刀、封口胶、打灰机等。
二、门窗安装方案1.准备工作区域和施工现场。
2.根据施工图纸确定门窗的位置和尺寸,标出安装线和槽孔。
3.安装门窗框架,首先将底横梁固定在地面上,再安装竖立柱和横梁。
4.安装门窗框架的同时,根据施工图纸要求,在框架中安装门窗玻璃。
5.安装门窗玻璃之后,根据需要安装门窗扇和配件。
6.安装门窗扇时,要先将扇安装到扇轴上,然后将扇轴与框架连接。
确保门窗扇的开启和关闭灵活顺畅。
7.安装完成后,用封口胶填充门窗框架和墙体之间的空隙,以确保密封性和隔音效果。
8.最后,进行安装的检查和调整,确保门窗的质量和外观符合要求。
三、施工工艺要点1.安装前要先清理施工现场,确保施工区域干净整洁。
2.在安装门窗框架之前,要先进行水平、垂直和平直度的检查,确保门窗框架的安装位置准确。
3.在安装门窗玻璃时,要使用密封胶将玻璃与框架紧密贴合,以增加密封性和安全性。
4.在安装门窗扇时,要注意扇的开启方向和开启角度,确保门窗扇的开关顺畅。
5.安装完成后,要进行细部检查,确保门窗的质量和外观无明显瑕疵。
四、安全措施1.施工现场要做好防护措施,如人员挡板、警示标识等。
2.使用千斤顶和搬运车等设备时,要遵守安全操作规程,确保施工人员安全。
3.在高空作业时,要使用安全绳和安全带,确保人员的安全。
4.施工过程中要遵守相关安全操作规程,如穿戴好工作服、戴好防护眼镜等。
以上是关于塑钢门窗施工工艺及安装方案的介绍。
希望对读者有所启发,如有不足之处,欢迎指正补充。
塑钢门窗安装施工方案一、施工准备(一)作业条件1、塑钢门窗一般采用预留洞口法安装。
对于框架结构,洞口四周预埋同规格的砼砖,其位置参考门窗框安装固定片的位置图。
2、墙体的作业大面积完工。
3、门窗洞口尺寸、位置检验合格。
(二)材质要求1、门窗的进场检验:塑钢门窗进场时必须按“贯标"程序组织人员检查验收。
一是外观检查,查其有无破损、断裂;二是尺寸验收,查框的四边尺寸,查扇的方正、翘曲,做到安装前的质量预控.2、紧固件、五金件、增强型材及金属衬板等,应进行表面防腐处理。
3、固定片厚度应大于或等于1。
5mm,最小宽度应大于或等于15mm,其表面应进行镀锌处理.4、门窗与洞口密封用嵌缝膏应具有弹性和粘接性.(三)工器具电锤、电钻、自制方尺、线坠、水平尺等.二、质量要求(一)主控项目1、塑钢门窗的品种、类型、规格、尺寸、开启方向、安装位置、连接方式及填嵌密封处理应符合设计要求,内衬增强型钢的壁厚及设置应符合国家现行产品标准的质量要求。
2、塑钢门窗框、副框和扇的安装必须牢固。
固定片或膨胀螺栓的数量与位置应正确,连接方式应符合设计要求。
固定点应距窗角、中横框、中竖框150~200mm,固定点间距应不大于600mm.3、塑钢门窗拼樘料内衬增强型钢的规格、壁厚必须符合设计要求,型钢应与型材内腔紧密吻合,其两端必须与洞口固定牢固。
窗框必须与拼樘料连接紧密,固定点间距应不大于600mm。
4、塑钢门窗扇应开关灵活、关闭严密,无倒翘。
推拉门窗扇必须有防脱落措施。
5、塑钢门窗配件的型号、规格、数量应符合设计要求,安装应牢固,位置应正确,功能应满足使用要求。
6、塑钢门窗框与墙体间缝隙应采用闭孔弹性材料填嵌饱满,表面应采用密封胶密封。
密封胶应粘结牢固,表面应光滑、顺直、无裂纹.(二)一般项目1、塑钢门窗表面应洁净、平整、光滑,大面应无划痕、碰伤。
2、塑钢门窗扇的密封条不得脱槽。
旋转窗间隙应基本均匀。
3、塑钢门窗扇的开关力应符合下列规定:(1)平开门窗扇平铰链的开关力应不大于80N;滑撑铰链的开关力应不大于80N,并不小于30N.(2)推拉门窗扇的开关力应不大于100N。
塑钢门窗施工方案塑钢门窗是一种以塑料材料为基础,结合钢材增强,制成的门窗产品。
以下是一份塑钢门窗施工方案,总计700字:1. 施工前准备:- 确定施工图纸和门窗规格,材料齐备。
- 安排施工人员和工具,确保施工人员熟练掌握塑钢门窗的施工技术。
2. 施工过程:- 安装门窗框架:首先进行门窗框架的安装,根据施工图纸的要求,使用螺丝钉或膨胀螺栓将框架固定在墙体上。
- 安装玻璃:将预先准备好的玻璃板放入框架内,使用密封胶将玻璃固定在框架上,确保玻璃无松动现象。
- 安装门窗扇:根据施工图纸的要求,使用合适的工具将门窗扇安装在框架上,确保扇与框之间的间隙均匀且符合设计要求。
- 安装五金配件:将门窗扇与框连接的五金配件安装到位,确保扇的打开、关闭和锁定功能正常。
- 进行验收:在施工结束后,对已安装的门窗进行检查,确保其安装质量符合相关标准。
3. 施工注意事项:- 严格按照施工图纸和设计要求进行施工,确保门窗符合安全、防火和隔音等功能要求。
- 在施工过程中,避免对门窗造成损坏,如需施工及周围工作时,应采取保护措施。
- 在安装玻璃时,要确保其固定牢固,避免玻璃脱落造成安全隐患。
- 在安装五金配件时,要确保其连接紧固可靠,易于操作和使用。
- 施工结束后,及时进行验收,确保门窗的安装质量符合相关标准。
4. 安全措施:- 施工过程中,工人应佩戴防护手套和安全帽等个人防护用品,确保施工人员的安全。
- 在门窗安装时,要注意避免挤压、碰撞或其他不安全因素的产生。
- 施工现场应设置警示标志,提醒他人注意施工区域,避免发生不必要的人员伤害。
塑钢门窗施工方案是确保门窗安装质量的重要保证,只有按照正确的施工流程进行施工,严格检查每一环节的质量,才能保证塑钢门窗在使用中的安全可靠性。
金属(塑钢、断桥)窗施工方案金属(塑钢、断桥)窗施工方案(一)金属窗安装施工1、工艺流程:弹线找规矩→窗口处理→副框安装→发泡密封→塑钢窗拆包检查→按图纸编号运至安装地点→检查塑钢窗保护膜→塑钢窗安装→窗口四周嵌缝→清理→安装五金配件→安装窗密封条→质量检验→纱扇安装2、弹线找规矩:在最高层找出最外一列最上一排门窗洞口的中线,然后用大线坠将门窗口中线下引,并在每层门窗口处划线标记,然后根据同一类型、同一大小窗户的尺寸反算出窗户洞口的边线,对个别不直的口边应剔凿处理,但不宜做修补处理。
门窗口的上下位置应以主体1m水平线为准,往上反,量出窗下皮标高,弹线找直。
每一层必须保持窗下皮标高一致,总之的原则是同一类型和大小的窗户必须上下顺直、左右标高一致。
3、墙厚方向的安装位置:根据外墙大样图及窗台板的宽度,确定窗在墙厚方向的安装位置,一般是外墙外侧平齐放置。
4、安装固定片:固定片的安装要注意窗框的位置及其内外朝向,安装时应采用直径为3.2mm的钻头钻孔,固定片的位置应距门窗角、中竖框、中横框150-200mm,固定片之间的间距应不大于600mm。
5、根据位置线把门窗放入洞口内,利用仪器调整窗户的水平度、垂直度和直角度,然后用木楔临时固定,最后固定固定片。
6、窗副框与墙体固定:沿窗框外墙用电锤打φ6孔,孔深40mm,有保温层处采用φ8长度100mm胀管螺栓,处理门窗副框与墙体缝隙:副框固定好后,应及时处理门窗框与墙体缝隙。
采用聚氨酯发泡胶塞缝隙,外表面留5-8mm深槽口填嵌嵌缝膏,严禁用水泥砂浆填塞。
然后进行收口抹灰。
安装窗后在窗框框两侧进行防腐处理后,可填嵌设计指定的保温材料和密封材料,将窗框四周的缝隙同时填嵌,填嵌使用力不应过大,防止窗框受力变形。
7、断桥铝合金门窗安装:(1)根据副框洞口尺寸,提前将窗框加工好。
(2)用自攻螺丝将其与副框固定。
(3)带内外墙面层施工完毕后,用硅酮密封胶进行嵌缝。
8、门窗扇安装:门框扇的连接是用铝角码的固定方法,具体作法与门框安装相同,安装五金件:待浆活修理完,交活油刷完后才可安装门窗的五金配件,安装工艺要求详见产品说明,要求安装固定,使用灵活。
塑钢门窗安装施工方案一、施工前的准备工作1.按照设计图纸和规格要求,提前准备好所需的各类材料和工具。
2.检查施工现场,确保墙体结构完好,地面平整,并清理干净。
3.向施工人员讲解施工要求和安全注意事项,并提供必要的个人防护用品。
二、测量开槽1.根据设计图纸和实际情况,确定门窗的开槽位置和尺寸。
2.使用测量工具(如电子测距仪、水准仪等)进行精确测量,确保开槽位置准确无误。
3.在门窗位置标出开槽线,并使用墨线或打钉机固定,以便后续施工。
三、门窗开槽1.根据测量结果,使用电锤等工具,按照开槽线进行门窗开槽。
2.在开槽过程中,要注意保持墙体完整,避免过度振动和损坏墙体结构。
3.开槽后,使用尺子、水平仪等检查开槽的水平度和垂直度,必要时进行调整修正。
四、门窗安装1.将门窗的框架按照开槽尺寸,慢慢送入开槽内,并使用螺丝钉或膨胀螺丝等固定住。
2.安装门窗时,要注意保持门窗的水平和垂直,使用水准仪等工具进行调整。
3.安装门窗的框架后,进行门窗扇的安装,将门窗扇放入框架内,确保门窗扇的平直和稳定。
4.安装好门窗扇后,进行开启和关闭的测试,并检查密封性能和观感效果。
五、门窗调试1.调试门窗时,首先测试门窗的开启与关闭是否灵活顺畅,检查门窗扇的平直度和稳定性。
2.接下来,进行门窗的密封性能测试,关闭门窗后,使用烟雾或手触检查门窗的密封程度,确保无漏风漏雨现象。
3.最后,检查门窗的观感效果,查看门窗框架与墙体之间的缝隙是否均匀,门窗表面是否平整、无划痕等。
六、收尾工作1.清理施工现场,包括清理施工产生的垃圾、尘土和工具设备,保持现场清洁。
2.做好验收工作,与业主共同查验门窗安装工程的质量和效果,确保达到设计和规格要求。
3.将安装过程中遗留的问题和不足进行记录和整理,并及时处理和改进。
以上就是塑钢门窗安装施工方案的主要内容,通过合理的施工步骤和严谨的施工质量控制,可以确保塑钢门窗的安装效果和使用性能。
同时,在施工过程中要注意保护施工现场,做好安全防护工作,确保施工人员的人身安全。
塑钢门窗安装方案:塑钢门窗由框和扇组成。
一般在框和扇上都镶嵌有5—8mm存的玻璃。
塑钢门窗的构造和施工特点是:重量轻、强度高、保温、隔音、防尘、防虫蛀,经久耐用,而且表面色泽美观,装饰效果优良。
一、材料要求1、塑钢门窗的规格、型号应符合设计要求,五金配件配套齐全,并具有出厂合格证。
2、防腐材料、填缝材料、密封材料、防锈漆、水泥、砂、连接铁脚、连接板等应符合设计要求和有关标准的规定。
3、进场前应先对塑钢窗进行行验收检查,不合格者不准进场。
运到现场的塑钢门窗应分型规格堆放整齐,并存放于仓库内。
搬运时轻拿轻放,严禁扔摔。
二、主要机具设备1、机械设备电锤、射钉枪、电焊机、经纬仪。
2、主要工具螺丝刀、手锤、板后、钳子、水平尺、线坠。
三、作业条件1、主体结构经有关质量部门验收合格。
工种之间已办好交接手续。
2、检查门窗洞口尺寸及标高是否符合设计要求。
有预埋件的门窗洞口还应检查预埋件的数量、位置及埋设方法是否符合设计要求。
如果不符合设计要求,则应及时处理。
3、按图纸要求尺寸弹好门窗中线,并弹好室内+50cm水平线。
4、检查塑钢门窗,如有劈棱窜角和翘曲不平、偏差超标、表面损伤、变形及松动、外观色差较大者,应与有关人员协商解决。
经处理,验收合格后才能安装。
四、施工操作工艺(一)划线定位1、根据设计图纸中门窗的安装位置、尺寸和标高,依据门窗中线向两边量出门窗边线。
多层或高层建筑时,以顶层门窗边线为准,用线坠或经纬仪将门窗边线下引,并在各层门窗口处划线标记,对个别不直的边应剔凿处理。
2、门窗的水平位置应以楼层室内+50cm的水平线为准向上反,量出空下皮标高,弹线找直。
每一层必须保持窗下皮标高一致。
(二)塑钢门窗披水安装按施工图纸要求将披水固定在塑钢窗上,且要保证位置正确、安装牢固。
(三)防腐处理1、门窗框四周外表面的防腐处理如果设计有要求时,按设计要求处理。
如果设计没有要求时,可涂刷防腐涂料或粘贴塑料薄膜进行保护,以免水泥砂浆直接与塑钢门窗表面接触,产生电化学反应,腐蚀塑钢门窗。
2、安装塑钢门窗时,如果采用连接铁件固定,则连接铁件,固定件等安装用金属零件最好用不锈钢件,否则必须进行防腐处理,以免产生电化学反应,腐蚀塑钢门窗。
(四)塑钢门窗安装就位根据划好的门窗定位线,安装塑钢门窗框,并及时调整好门窗框的水平、垂直及对角线长度等符合质量标准,然后用木楔临时固定。
(五)塑钢门窗的固定1、当墙体上预埋有铁件时,可直接把塑钢门窗的铁脚直接与墙体上的预埋铁件焊牢。
2、当墙体上没有预埋铁件时,可用射钉枪把塑钢门窗的铁脚固定在墙体上。
3、当墙体上没有预埋铁件时,可用金属膨胀螺栓或塑料膨胀螺栓将射钉枪把塑钢门窗的铁脚固定在墙体上。
4、当墙体上没有预埋铁件时,也可用电钻在墙上打80mm深、直径为6mm的孔,用L型80*50的圆6钢筋,在长的一端粘涂108胶水泥浆,然后打入孔中。
待108胶水泥浆终凝后,再将塑钢门窗的铁脚与埋置的圆6钢筋焊牢。
(六)门窗框与墙体间缝隙间的处理1、塑钢门窗安装固定后,应先进行隐蔽工程验收,合格后及时按设计要求处理门窗框与墙体之间的缝隙。
2、如果设计未要求时,可采用矿棉或玻璃棉毡条分层填塞缝隙,外表面留5—8mm深槽口填嵌嵌缝油膏,或在门窗框四周外表面进行防腐处理后,填嵌水泥砂浆或细石混凝土。
(七)门窗扇及门窗玻璃的安装1、门窗扇和门窗玻璃应在洞口墙体表面装饰完工后安装。
2、推拉门窗在门窗框安装固定后,将配好玻璃的门窗扇整体安入框内滑道,调整好框与扇的缝隙即可。
3、平开门窗在框与扇格架组装上墙、安装固定好后再安玻璃,即先调整好框与扇的缝隙,再将玻璃安入扇并调整好位置,最后镶嵌密封条、填嵌密封胶。
4、地弹簧门应在门框及地弹簧主机入地安装固定后再安门扇。
先将玻璃嵌入门扇格架并一起入框就位,调整好框扇缝隙,最后填嵌门扇士度的密封条及密封胶。
(八)安装五金配件五金配件与门宽作连接用镀锌螺钉。
安装的五金配件应结实牢固,使用灵活。
五、质量标准(一)保证项目1、塑钢门窗及其附件质量必须符合设计要求和有关标准的规定。
2、塑钢门窗安装的位置、开启方向,必须符合设计要求。
3、塑钢门窗框安装必须牢固;预埋件数量、位置、埋设连接方法及防腐处理必须符合设计要求。
(二)基本项目1、塑钢门窗扇安装应符合以下规定:(1)平开门窗扇关闭严密,间隙均匀,开关灵活。
(2)推拉门窗扇关闭严密,间隙均匀,扇与框搭接量符合设计要求。
(3)弹簧门扇自动定位准确,开启角度为90度±1.5度,关闭时间在5—10s范围之内。
2、塑钢门窗附件安装齐全,安装位置正确、牢固、灵活适用,达到各自的功能,端正美观。
3、塑钢门窗表面洁净,无划痕、碰伤,无锈蚀;涂胶表面光滑、平整,厚度均匀,无气孔。
(三)允许偏差项目塑钢门窗安装允许偏差及检验方法见下表:项次项目允许偏差mm 检验方法1 门窗槽口宽度高度≤2000>2000 ±1.5±2 用3m钢卷尺检查2 门窗槽口对边尺寸之差≤2000>2000 ≤2≤2.5 用3m钢卷尺检查3 门窗槽口对角线尺寸之差≤2000>2000 ≤2≤3 用3m钢卷尺检查4 门窗框的垂直度≤2000>2000 ≤2≤2.5 用线坠、水平靠尺检查5 门窗框的水平度≤2000>2000 ≤1.5≤2 用水平靠尺检查6 门窗框扇搭接宽度差≤2>2 ±1±1.5 用深度尺或钢板尺检查7 门窗开启力≤60N 用100N弹簧秤检查8 门窗横框标高≤5 用钢板尺检查9 门窗竖向偏离中心≤5 用线坠钢板尺检查10 双层门窗内外框,框中心距≤4 用钢板尺检查六、成品保护1、塑钢门窗装入洞口临时固定后,应检查四周边框和中间框架是否用规定的保护胶纸和塑料薄膜封贴包扎好,再进行门窗框与墙体之间缝隙的填嵌和洞口墙体表面装饰施工,以防止水泥砂浆、灰水、喷涂材料等污染损坏塑钢门窗表面。
在室内外湿作业未完成前,不能破坏门窗表面的保护材料。
2、应采取措施,防止焊接作业时电焊火花损坏周围的塑钢门窗型材、玻璃等材料。
3、严禁在安装好的塑钢门窗上安放脚手架、悬挂重物。
经常出入的门洞口,应及时保护好门框。
严禁施工人员踩踏塑钢门窗,严禁施工人员碰擦塑钢门窗。
4、交工前撕去保护胶纸时,要轻轻剥离,不划破、刮花塑钢不面氧化膜。
七、安全措施1、进入现场必须戴安全帽。
严禁穿拖鞋、高跟鞋、带钉易滑鞋或光脚进入现场。
2、安装用的梯子应牢固可靠边,不应缺档,梯子放置不应过陡,其与地面夹角以60—70度为宜。
严禁两人同时站在一个梯子上作业。
高凳上作业人要站在中间,不能站其端头,防止跌落。
3、材料要堆放平稳。
工具要随手放入工具袋内。
上下传递东西时,不得抛掷。
4、机电器具必须安装触电保护器,以确保操作人员人身安全。
5、经常检查锤把是否松动,电焊机、电钻是否有漏电现象,一经发现立即修理,决不能勉强使用。
八、施工注意事项1、采用多组组合塑钢门窗时注意拼装质量,拼头应平整,不劈棱不窜角。
2、施工时必须严格做好产品保护,及时补封破损掉落的保护胶纸和薄膜,及时清除溅落在门窗表面的灰浆污物,以免塑钢门窗面层污染咬色。
3、门窗玻璃厚度与扇梃镶嵌槽及密封条和尺寸配合要符合国家标准及设计要求,安装密封条时要留有伸缩余地,以免密封条脱落。
4、门窗表面胶污尘迹应用专门深剂或用棉纱蘸干净水清洗掉,填嵌完璧归赵南腔北调多余的痕迹要及时清理掉,不得划伤塑钢门窗表面,并确保完工的塑钢门窗表面整洁美观。
塑钢门窗施工工艺1 工艺流程:弹线找规矩→门窗洞口处理→安装连接件的检查→塑料门窗外观检查→按图示要求运到安装地点→塑料门窗安装→门窗四周嵌缝→安装五金配件→清理2 本工艺应采用后塞口施工,不得先立口后搞结构施工。
3 检查门窗洞口尺寸是否比门窗框尺寸大3cm,否则应先行剔凿处理。
4 按图纸尺寸放好门窗框安装位置线及立口的标高控制线。
5 安装门窗框上的铁脚。
6 安装门窗框,并按线就位找好垂直度及标高,用木楔临时固定,检查正侧面垂直及对角线,合格后,用膨胀螺栓将铁脚与结构牢固固定好。
7 嵌缝:门窗框与墙体的缝隙应按设计要求的材料嵌缝如设计元要求时用沥青麻丝或泡沫塑料填实。
表面用厚度为5~8mm的密封胶封闭。
8 门窗附件安装:安装时应先用电钻钻孔,再用自攻螺丝拧入,严禁用铁锤或硬物敲打,防止损坏。
9 安装后注意成品保护,防污染,防电焊火花烧伤,损坏面层。
塑钢门窗由于大多是在工厂制作好,在现场整体安装到洞口内,因此工序比较简单。
但是,由于塑钢门窗的热膨胀系数较大,且弯曲弹性模量又较小,加之又是成品安装,如果稍不注意就可能造成塑钢门窗的损伤变形,影响使用功能、装饰效果和耐久性。
那么塑钢门窗施工方案都有哪些呢?下面简单介绍下塑钢门窗施工方案注意事项吧。
1、窗框与墙体的连接塑钢门窗框与墙体的固定方法,常见的有连接件法、直接固定法和假框法三种。
连接件法:是用一种专门制作的铁件将窗框与墙体相连接,其优点是比较经济,且基本上可以保证窗的稳定性。
连接件法的做法是先将塑料窗放入窗洞口内,找平对中后用木楔临时固定。
然后,将固定在窗框异型材靠墙一面的锚固铁件用螺钉或膨胀螺丝固定在墙上。
直接固定法:在砌筑墙体时先将木砖预埋入窗洞口内,当塑钢门窗安入洞口并定位后,用木螺钉直接穿过窗框与预埋木砖连接,从而将窗框直接固定于墙体上。
假框法:先在窗洞口内安装一个与塑钢门窗框配套的镀锌铁皮金属框,或者当木窗换成塑钢门窗时,将原来的木窗框保留,待抹灰装饰完成后,再将塑钢门窗框直接固定在上述框材上,最后再用盖口条对接缝及边缘部分进行装饰。
2、确定连接点位置确定连接点的位置时,首先应考虑能使窗扇通过合页作用于窗框的力,尽可能直接传递给墙体;确定连接点的数量时,必须考虑防止塑料窗在温度应力、风压及其它静荷载作用可能产生的变形;连接点的位置和数量,还必须保证在塑钢门窗与墙体之间微小的位移,不致影响窗的使用功能及连接本身。
3、框与墙间缝隙处理由于塑料的膨胀系数较大,故要求塑钢门窗框与墙体间应留出一定宽度的缝隙,以适应塑料伸缩变形的安全余量。
框与墙间的缝隙,应用泡沫塑料条或油毡卷条填塞,填塞不宜过紧,以免框架变形。
窗框四周的内外接缝应用密封材料嵌填严密。
也可以采用硅橡胶嵌缝条,不宜采用嵌填水泥砂浆的做法。
不论采用何种填缝方法,均要求做到以下两点:一,嵌填封缝材料应能承受墙体与框间的相对运动而保持密封性能;二,嵌填封缝材料不应对塑料窗框有腐蚀、软化作用,沥青类材料可能使塑料软化,故不宜使用。
4、五金配件安装塑钢门窗安装五金配件时,必须先在杆件上钻孔,然后用自攻螺丝拧入,严禁在杆件上直接捶击钉入。
5、清洁窗框扇安装后应暂时取下扇,编号单独保管。
窗洞口粉刷时,应将窗表面贴纸保护。
粉刷时如框扇沾上水泥浆,应立即用软料抹布擦洗干净,切勿使用金属工具擦刮。