西门子定位器官方版说明书
- 格式:pdf
- 大小:3.21 MB
- 文档页数:37
西门子智能定位器调试说明大家好,今天我要给大家讲解一下如何调试西门子智能定位器。
我们要明确一点,这个定位器可不一般,它可是高科技产品,有了它,我们的工作生活就会变得更加便捷。
那么,让我们一起来看看如何让这个神奇的定位器发挥出它的最大功效吧!1. 准备工作在开始调试之前,我们需要做好一些准备工作。
确保定位器的电源已经接通,并且电压稳定。
我们需要了解定位器的使用说明书,这样才能更好地进行调试。
我们需要一台电脑,因为我们将通过电脑来控制和查看定位器的状态。
2. 连接定位器接下来,我们需要将定位器与电脑进行连接。
用USB线将定位器的USB接口与电脑的USB接口相连。
然后,打开电脑,进入设备管理器,查看是否能够识别到定位器。
如果能够识别到,那么恭喜你,第一步已经成功完成!3. 下载驱动程序为了能够更方便地控制和管理定位器,我们需要下载安装一款名为“西门子定位器助手”的软件。
这款软件可以帮助我们实时查看定位器的位置信息,以及对定位器进行一些基本的操作。
下载并安装好软件之后,我们就可以开始进行调试了。
4. 查看定位器状态现在,我们已经成功地将定位器与电脑连接在一起,并且安装好了相关软件。
接下来,我们需要查看定位器的状态。
在电脑上打开“西门子定位器助手”,选择“连接设备”,然后选择我们刚刚连接好的定位器。
此时,我们就可以看到定位器的实时位置信息了。
如果一切正常,那么恭喜你,第二步也已经成功完成!5. 调试定位器在确认定位器状态正常之后,我们就可以开始对定位器进行一些基本的调试了。
我们可以尝试改变定位器的移动方向,看看是否能够准确地显示出新的位置信息。
我们还可以调整定位器的灵敏度,以便更好地适应不同的环境和场景。
这些调试操作都需要在电脑上进行,非常简单方便。
6. 保存设置在完成所有的调试操作之后,我们需要将这些设置保存下来,以便下次使用时能够直接调用。
在“西门子定位器助手”中,选择“保存设置”,然后按照提示输入相关信息即可。
西门子阀门定位器操作手册压电阀介绍:1引言传统的气动阀中大量使用了电磁铁作为电一机械转换级,其把电控制信号转换为机械的位移,推动阀芯,实现气路的切换或气体压力、流量的比例控制。
作为电一机械转换级的电磁铁有价格低廉,操作使用方便等优点;但其也有很多缺点:如功耗大、响应速度不够快、存在发热及有电磁干扰等。
把压电材料的电一机械转换特性引入到气动阀中,作为气动阀的电一机械转换级,这是一项不同于传统气动阀的全新技术。
采用了压电技术的气动阀在性能上有着传统气动阀无可比拟的优势。
2、压电效应简介对于晶体构造中不存在对称中心的异极晶体,加在晶体上的张紧力、压应力或切应力,除了产生相应的变形外,还将在晶体中诱发出介电极化或电场。
这一现象被称为正压电效应;反之,若在这种晶体上加上电场,从而使该晶体产生电极化,则晶体也将同时出现应变或应力,这就是逆压电效应。
两者通称为压电效应。
1880年居里兄弟发现了电气石的压电效应,从此开始了压电学的历史。
压电式气动换向阀即是利用压电逆效应而研制的。
3、压电技术在气动阀中的应用1、微型直动式换向阀利用压电材料在电场作用下的变形,来实现气动阀阀口的开启和关闭,这样就可以做成微型直动式换向阀。
如下图所示的微型二位三通换向阀, 1 口为进气口,2 口为输出气口,3、口为排气口,阀中间的弯曲部件为压电材料组成的压电片。
当没有外加电场作用时,阀处于:图1状态:进气口关闭,输出气口2经排气口3通大气。
当在压电阀片上外加控制电场后,压电阀片产生变形上翘,上翘的压电阀片关闭了排气口3,同时进气口1和输出气口2连通。
这样就完全实现了传统二位三通电磁换向阀的功能。
图1 图22、压电式电气比例调压阀压电材料的变形量正比于施加在其上的电场强度,禾U用这一特点,可以开发出比例调压阀。
女口图3所示,施加不同的控制电压到压电阀片上,压电阀片产生不同的弯曲变形量,这样就在进气口1与输出气口2之间及输出气口2与排气口3之间形成不同的气流阻力,从而在输出气口2 的得到不同的气体压力。
西门子阀门定位器中文说明书一、概述西门子阀门定位器是一种用于控制工业阀门开度的高精度设备。
它能够接收来自控制系统的信号,并将其转化为准确的阀门动作,以实现对工艺过程中流体流量、压力等参数的精确控制。
二、工作原理西门子阀门定位器通过检测阀门的实际位置,并将其与控制系统给定的目标位置进行比较,然后根据偏差信号驱动阀门执行机构,使阀门移动到目标位置。
其工作原理基于电气转换和反馈控制技术。
定位器内部包含传感器、放大器、控制器等部件。
传感器用于检测阀门的行程或转角,并将其转换为电信号。
放大器将微弱的电信号放大,以驱动执行机构。
控制器则根据输入信号和反馈信号的差异,计算出控制输出,确保阀门准确地定位在所需的位置上。
三、产品特点1、高精度定位能够实现精确到毫米级的阀门定位,满足各种严格的工艺控制要求。
2、快速响应对控制信号的变化能够迅速做出反应,使阀门动作及时、准确。
3、多种通信接口支持多种工业通信协议,方便与不同的控制系统集成。
4、自诊断功能可实时监测自身的工作状态,及时发现并报告故障,便于维护和维修。
5、适应性强能够适应不同类型的阀门和执行机构,具有广泛的应用范围。
四、安装与调试1、安装前的准备检查阀门和执行机构的状态,确保其完好无损。
准备好安装所需的工具和附件。
2、安装步骤将定位器安装在阀门执行机构上,并确保安装牢固。
连接气源和电气信号线路,注意连接的正确性和密封性。
3、调试步骤打开气源和电源,使定位器处于工作状态。
通过操作控制系统,给定不同的阀门开度信号,观察定位器的响应和阀门的动作。
调整定位器的参数,如增益、死区等,以获得最佳的控制性能。
五、操作与使用1、操作界面定位器通常配备有显示屏和操作按键,用于显示工作状态和参数设置。
2、常用操作手动操作:可以通过手动按键或旋钮,临时控制阀门的开度。
自动操作:在正常工作状态下,由控制系统自动控制阀门的开度。
六、参数设置1、基本参数包括阀门行程范围、控制信号类型、气源压力等。
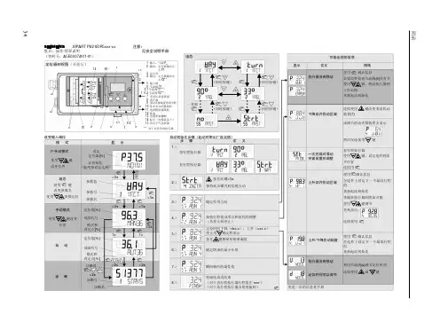
附录SIPART PS2 6DR5xxx-xx 散页“操作-简要说明”27 参数名 显 示 功 能 参数值 单位 出厂设定 用户设定执行器类型额定反馈角适当地设定选择器(7)变送比率(见部件图)阀杆范围(任意设定)当使用时,在执行器上设置的值必须与反馈杠杆相匹配驱动杆必须设定在执行器的行程值上,如果这个值不在刻度上,则设定到下一个较大一档刻度值初始化(自动)初始化(手动)设定电流范围方向设定点 上升 下降设定分程范围的起始点设定分程范围的结束点设定斜率上升点设定斜率下降点设定点功能 线性 等百分比1:25,1:33,1:50 反向等百分比1:25,1:33,1:50 可自由调节转折点设定在 0%控制器的死区行程下限值行程上限值行程标定 至机械杠杆 到流量行程方向显示 上升 下降行程“紧密关闭” 无 仅有顶端 仅有底端 顶和底都有紧密关闭值,底端紧密关闭值,顶端BI1功能 无 仅有信息 组态锁定 组态锁定和手动 驱动阀到上限位置 驱动阀到下限位置 移动行程锁定BI2功能 无 仅有信息 驱动阀到上限位置 驱动阀到下限位置 移动行程锁定报警功能 无 A1=最小,A2=最大 A1=最小,A2=最小 A1=最大,A2=最大报警1的临界响应值报警2的临界响应值报警输出功能 故障 故障+非自动 故障+非自动+BI (“+”指逻辑或操作)对于故障信息的监视时间“控制偏差”对于故障信息的临界响应值“控制偏差”对于整个行程的限位值对于方向改变的限位值对于停止监视末端的限位值,底部对于停止监视末端的限位值,顶部监视死区的限位值预设定(出厂设定)“no ”未激活“Strt ”工厂设定起动后,按住此键5秒“oCAY ”工厂设定完成后出现此显示 警示:预设定结果在“非初始化” Turn (角行程执行器) WAY (直行程执行器) LWAY (无正弦修正的直行程执行器) Ncst (带NCS 的角行程执行器) -ncst (相同,改变作用方向) 度数33 90 90。
西门子智能定位器调试证明:之阳早格格创做SIPART PS2电气定位器用去统造气动曲路程或者角路程真止机构如下图:角路程曲路程一、智能定位器功能图:证明:1、①机侧凝结火补充火箱出心调门为单效率定位器,反馈:61-ZI+;62-ZI-;②当得旗号时阀门齐启③支配时按“+”健阀门背关目标走,按“-”健阀门背齐启目标走(取证明书籍上差异).(单效率铭牌)2、炉侧磨煤机出心热热风调门为单效率定位器,(单效率铭牌)3.炉侧磨煤机出心热热风调门为单效率定位器交线本理图:二、校验取安排1、参数树立:(定位器上有三个按键:小脚形、“+”健、“-健”)树立.用“+”战“-”健可正在一组参数中举止采用,采用完了不妨按一下功能键加进第二组参数的树立,若上一个参数有误,不妨按功能键的共时按住“-”健,回到上一个参数举止树立.1.3 组态:以下几个参数是经时常使用到的,简曲请参照证明书籍上的组态表.YFCT(参数组号①)真止器典型:曲路程选WAY,角路程选TURN(本厂机侧的凝结火补充火箱出心调门战炉侧的磨煤机出心热热风调门皆为曲路程)YAGL②额定反馈角度:普遍情况下曲路程33度,角路程90度,(本厂本厂机侧的凝结火补充火箱出心调门战炉侧的磨煤机出心热热风调门皆为曲路程,但是选的是90度,简曲该当瞅反馈杆的少度,短杠杆33度的少度为:5/10/15/20mm,短杠杆90度的少度为:25/30/35mm,少杠杆90度的少度为:40/50/60/70/90/110/130mm)INITA④初初化(自动)SDIR⑦给定目标:降高RISE,下落FAILYDIR(38)支配变量隐现:降高RISE,下落FAIL.共时改变SDIR战YDIR那二组的参数不妨改变真止器的动做目标.2、西门子智能定位器初初化步调:2.1 交通4-20mA输进旗号,当前定位器处于脚动模式“MAN”,正在定位器隐现窗心上圆隐现的为电位计的电压百分数,比圆:“”,窗心的下圆闪烁隐现“HDINIT”即“已初初化”;2.2 用定位器隐现窗心下圆的“+”战“-”二个按键使真止机构疏通,瞅所有机构是可走谦齐程;2.3 让真止器疏通到路程的中间位子(曲路程的反馈杆处于火仄位子)便不妨举止初初化了.(注:当按住一个健的共时再按住另一个健不妨加快真止机构动做.如念要真止机构背启的目标疏通的更快需按住“+”健的共时再按住“-”健.)2.4 参数树立完成后,用功能键切换到第四个参数,即隐现“”,按住”+”健5秒定位器便不妨自动初初化了.2.5 初初化一共分为5步:RUN1 决断动做目标RUN2 查看真止机构路程战整面RUN3 决定真止机构上下动做时间,按住“+”健停止,按“-”健启初揭发查看RUN4 决定最小的定为删量RUN5 最好的瞬时赞同2.6 当初初化完成时屏幕隐现“FINISH”按一下功能健隐现“”.按功能键5秒后,当屏幕隐现有变更时紧脚,定位器加进脚动模式,再按一下功能键定位器处于自动模式.2.7 此时初初化中断,定位器加进仄常处事状态,凡是使用时按一下功能键可正在自动战脚动间切换,脚动时按“+”“-”使真止器动做.3、初初化历程中易出现的障碍及办理要领:(单打挨启此图标)4、三段呵护本理:①使用旗号检测拆置,不妨安排动做电流值,当电流小于4mA(或者任性一设定值,即断旗号)时通过动做电磁阀,释搁锁定阀讯号压力关锁真止器气路,进而真止断旗号保位的功能;②断电保位便是通过动做电磁阀,释搁锁定阀讯号压力真止;③断气保位是曲交用关锁阀真止.。
西门子阀门定位器操作手册压电阀介绍:1引言传统的气动阀中大量使用了电磁铁作为电一机械转换级,其把电控制信号转换为机械的位移,推动阀芯,实现气路的切换或气体压力、流量的比例控制。
作为电一机械转换级的电磁铁有价格低廉,操作使用方便等优点;但其也有很多缺点:如功耗大、响应速度不够快、存在发热及有电磁干扰等。
把压电材料的电一机械转换特性引入到气动阀中,作为气动阀的电一机械转换级,这是一项不同于传统气动阀的全新技术。
采用了压电技术的气动阀在性能上有着传统气动阀无可比拟的优势。
2、压电效应简介对于晶体构造中不存在对称中心的异极晶体,加在晶体上的张紧力、压应力或切应力,除了产生相应的变形外,还将在晶体中诱发出介电极化或电场。
这一现象被称为正压电效应;反之,若在这种晶体上加上电场,从而使该晶体产生电极化,则晶体也将同时出现应变或应力,这就是逆压电效应。
两者通称为压电效应。
1880年居里兄弟发现了电气石的压电效应,从此开始了压电学的历史。
压电式气动换向阀即是利用压电逆效应而研制的。
3、压电技术在气动阀中的应用1、微型直动式换向阀利用压电材料在电场作用下的变形,来实现气动阀阀口的开启和关闭,这样就可以做成微型直动式换向阀。
如下图所示的微型二位三通换向阀, 1 口为进气口,2 口为输出气口,3、口为排气口,阀中间的弯曲部件为压电材料组成的压电片。
当没有外加电场作用时,阀处于:图1状态:进气口关闭,输出气口2经排气口3通大气。
当在压电阀片上外加控制电场后,压电阀片产生变形上翘,上翘的压电阀片关闭了排气口3,同时进气口1和输出气口2连通。
这样就完全实现了传统二位三通电磁换向阀的功能。
图1 图22、压电式电气比例调压阀压电材料的变形量正比于施加在其上的电场强度,禾U用这一特点,可以开发出比例调压阀。
女口图3所示,施加不同的控制电压到压电阀片上,压电阀片产生不同的弯曲变形量,这样就在进气口1与输出气口2之间及输出气口2与排气口3之间形成不同的气流阻力,从而在输出气口2 的得到不同的气体压力。
西门子智能定位器调试说明:SIPART PS2电气定位器用来控制气动直行程或角行程执行机构如下图:角行程ﻫ直行程一、智能定位器功能图:说明:1、①机侧凝结水补充水箱出口调门为单作用定位器,反馈:61-ZI+;62—ZI-;②当失信号时阀门全开③操作时按“+”健阀门向关方向走,按“—"健阀门向全开方向走(与说明书上相反)、(单作用铭牌)2、炉侧磨煤机入口冷热风调门为双作用定位器,(双作用铭牌)3.炉侧磨煤机入口冷热风调门为双作用定位器接线原理图:二、校验与调整1、参数设置:(定位器上有三个按键:小手形、“+”健、“—健”)自动模式(MAN手动)阀门实际开度指令开度1.1按住功能键(小手形)5秒后就可以进行参数设置1.2西门子智能定位器共有55组参数,+"与“—”健可在一组参数中进行选择,选择完了可以按一下功能键进入第二组参数得设置,若上一个参数有误,可以按功能键得同时按住“-”健,回到上一个参数进行设置。
1。
3 组态:以下几个参数就是经常用到得,具体请参考说明书上得组态表、YFCT(参数组号①)执行器类型:直行程选WAY,角行程选TURN(本厂机侧得凝结水补充水箱出口调门与炉侧得磨煤机入口冷热风调门都为直行程)YAGL②额定反馈角度:一般情况下直行程33度,角行程90度,(本厂本厂机侧得凝结水补充水箱出口调门与炉侧得磨煤机入口冷热风调门都为直行程,但选得就是90度,具体应该瞧反馈杆得长度,短杠杆33度得长度为:5/10/15/20mm,短杠杆90度得长度为:25/30/35mm,长杠杆90度得长度为:40/50/60/70/90/110/130mm)INITA④初始化(自动)SDIR⑦给定方向:上升RISE,下降FAILYDIR(38)操作变量显示:上升RISE,下降FAIL。
同时改变SDIR与YDIR这两组得参数可以改变执行器得动作方向。
2、西门子智能定位器初始化步骤:2、1接通4-20mA输入信号,现在定位器处于手动模式“MAN",在定位器显示窗口上方显示得为电位计得电压百分数,例如:“P12。
西门子阀门定位器操作手册压电阀介绍:1引言传统的气动阀中大量使用了电磁铁作为电一机械转换级,其把电控制信号转换为机械的位移,推动阀芯,实现气路的切换或气体压力、流量的比例控制。
作为电一机械转换级的电磁铁有价格低廉,操作使用方便等优点;但其也有很多缺点:如功耗大、响应速度不够快、存在发热及有电磁干扰等。
把压电材料的电一机械转换特性引入到气动阀中,作为气动阀的电一机械转换级,这是一项不同于传统气动阀的全新技术。
采用了压电技术的气动阀在性能上有着传统气动阀无可比拟的优势。
2、压电效应简介对于晶体构造中不存在对称中心的异极晶体,加在晶体上的张紧力、压应力或切应力,除了产生相应的变形外,还将在晶体中诱发出介电极化或电场。
这一现象被称为正压电效应;反之,若在这种晶体上加上电场,从而使该晶体产生电极化,则晶体也将同时出现应变或应力,这就是逆压电效应。
两者通称为压电效应。
1880年居里兄弟发现了电气石的压电效应,从此开始了压电学的历史。
压电式气动换向阀即是利用压电逆效应而研制的。
3、压电技术在气动阀中的应用1、微型直动式换向阀利用压电材料在电场作用下的变形,来实现气动阀阀口的开启和关闭,这样就可以做成微型直动式换向阀。
如下图所示的微型二位三通换向阀, 1 口为进气口,2 口为输出气口,3、口为排气口,阀中间的弯曲部件为压电材料组成的压电片。
当没有外加电场作用时,阀处于:图1状态:进气口关闭,输出气口2经排气口3通大气。
当在压电阀片上外加控制电场后,压电阀片产生变形上翘,上翘的压电阀片关闭了排气口3,同时进气口1和输出气口2连通。
这样就完全实现了传统二位三通电磁换向阀的功能。
图1 图22、压电式电气比例调压阀压电材料的变形量正比于施加在其上的电场强度,禾U用这一特点,可以开发出比例调压阀。
女口图3所示,施加不同的控制电压到压电阀片上,压电阀片产生不同的弯曲变形量,这样就在进气口1与输出气口2之间及输出气口2与排气口3之间形成不同的气流阻力,从而在输出气口2 的得到不同的气体压力。
西门子定位器调整步骤
调整西门子定位器步骤
1、把定位器在底部黄色推板推到上面,在上部能看到即可。
2、给定输入信号12mA。
3、用手按“+”或“-”让执行器行到中间(45°)位置(气缸
一半)。
4、按功能键(手)出现“2 90°”. 按功能键(手)出现“4 no”,
按“+”5秒钟,自动调整。
如出现“ ”,旋转下面调整凸轮,“右转”直到出现“ ”。
再按“+”又出现自动调整,直到出现“FINSN”,按功能键(手)一下,出现“4”, 按功能键(手)5秒钟出现“C5”手动,再按功能键(手),以下自动。
5、如果发现信号给定反作用,“7”和“38”倒一下。
按功能键(手)
5秒钟出现“1”,继续按到“7”,再按“+”或“-”变换。
再接着按功能键(手)到“38”,按“+”或“-”变换。
按功能键(手)5秒出现“C5”,再按功能键(手)变为自动。
6、“34”是灵敏度调节。
7、如需要回到原始状态,按“手”5秒钟,出现“1”接着按“手”,
直到出现“55”,再按“+”5秒钟直到有变化即可。
(EURN)角行程(WRY)直行程。
西门子智能定位器调试说明:SIPART PS2电气定位器用来控制气动直行程或角行程执行机构如下图:角行程直行程一、智能定位器功能图:说明:1、①机侧凝结水补充水箱出口调门为单作用定位器,反馈:61-ZI+;62-ZI-;②当失信号时阀门全开③操作时按“+”健阀门向关方向走,按“-”健阀门向全开方向走(与说明书上相反)。
(单作用铭牌)2、炉侧磨煤机入口冷热风调门为双作用定位器,(双作用铭牌)3.炉侧磨煤机入口冷热风调门为双作用定位器接线原理图:二、校验与调整1、参数设置:(定位器上有三个按键:小手形、“+”健、“-健”)自动模式(MAN手动)阀门实际开度指令开度1.1 按住功能键(小手形)5秒后就可以进行参数设置1.2 西门子智能定位器共有55组参数,可以根据现场实际情况进行设置。
用“+”和“-”健可在一组参数中进行选择,选择完了可以按一下功能键进入第二组参数的设置,若上一个参数有误,可以按功能键的同时按住“-”健,回到上一个参数进行设置。
1.3 组态:以下几个参数是经常用到的,具体请参考说明书上的组态表。
YFCT(参数组号①)执行器类型:直行程选WAY,角行程选TURN(本厂机侧的凝结水补充水箱出口调门和炉侧的磨煤机入口冷热风调门都为直行程)YAGL②额定反馈角度:一般情况下直行程33度,角行程90度,(本厂本厂机侧的凝结水补充水箱出口调门和炉侧的磨煤机入口冷热风调门都为直行程,但选的是90度,具体应该看反馈杆的长度,短杠杆33度的长度为:5/10/15/20mm,短杠杆90度的长度为:25/30/35mm,长杠杆90度的长度为:40/50/60/70/90/110/130mm)INITA④初始化(自动)SDIR⑦给定方向:上升RISE,下降FAILYDIR(38)操作变量显示:上升RISE,下降FAIL.同时改变SDIR和YDIR这两组的参数可以改变执行器的动作方向。
2、西门子智能定位器初始化步骤:2.1 接通4-20mA输入信号,现在定位器处于手动模式“MAN”,在定位器显示窗口上方显示的为电位计的电压百分数,例如:“P12.3”,窗口的下方闪烁显示“HDINIT”即“未初始化”;2.2 用定位器显示窗口下方的“+”和“-”两个按键使执行机构运动,看整个机构是否走满全程;2.3 让执行器运动到行程的中间位置(直行程的反馈杆处于水平位置)就可以进行初始化了。
1435GEMU定位器使用说明书A4完全版(完全版)目录:1. 安装使用说明第 2 页2. 制造商的信息第 4 页3. 机械结构第 4 页4. 气线连接第 6 页5. 电线连接第 6 页6. 定位器的操作第 7 页7. 调试第 8 页8. 操作模式第10 页9. 附加设备的安装第26 页10. 参数表第26 页11. 错误信号第21 页12. 技术数据第22 页13. 安装件说明第25 页14. 定位器的尺寸图第26 页为了延长使用寿命, 请在安装使用前详细阅读此说明书!盖米阀门(上海)有限公司技术部2003.04 第一版Gemü 1435比例调节控制器使用说明书1 安装使用说明请仔细地阅读下面的注意事项,并且严格遵守其中的每一条指令。
1.1 总则只有下面的所有条件都被满足的情况下,定位器的正确操作才可完成 .在所有条件适合的情况下,运输和储存必须是通过正当方法进行 .只有受过正规培训的工程师才可以执行安装和试车的过程.必须按照正常的指令操作.坚持正常维修维护应遵守以下的原则.操作指令的内容.安装和电器设备等操作的相关的安全条例.此装置不允许安装在有爆炸危险的区域此本操作说明书中提到的条例、标准、准则和指令都符合德国标准,如果(盖米)Gemue ePos 1435定位器被用于其他国家,则在那些国家申请的条例和规则都必须被遵守。
1.2 符号和文字的说明在操作指令中,通过下列符号来识别重要信息:这个序号代表危险。
如果在这里给出的指令没有被执行,则大量的原材料危害会发生,并对人体的健康及生命带来危险。
如果给出的与这个符号有关的安全条例没有被遵守,那么对身体的轻微的损伤及原材料的危害都会发生。
这个符号表明, 操作说明书将给出关于您所使用的ePos 1435 定位器的重要信息。
1.3 关于电、气使用的安全条例只有获得资格证书和受过正规培训的员工才可以装配,连接和调试(盖米)Gemue 定位器的电、气连接。