钢结构节点图
- 格式:docx
- 大小:656.90 KB
- 文档页数:6
1、建筑体系
1—1、门式刚架体系1-1-1、基本构件图
1—1-2、说明
力学原理
门式刚架结构以柱、梁组成的横向刚架为主受力结构,刚架为平面受力体系。
为保证纵向稳定,设置柱间支撑和屋面支撑.刚架
刚架柱和梁均采用截面H型钢制作,各种荷载通过柱和梁传给基础。
支撑、系杆
刚性支撑采用热轧型钢制作,一般为角钢.柔性支撑为圆钢.系杆为受压圆钢管,与支撑组成受力封闭体系。
屋面檩条、墙梁
一般为C型钢、Z型钢.承受屋面板和墙面板上传递来的力,并将该力传递给柱和梁。
1—1—3、门式刚架的基本形式
a.典型门式刚架
b。
带吊车的门式刚架
c。
带局部二层的门式刚架
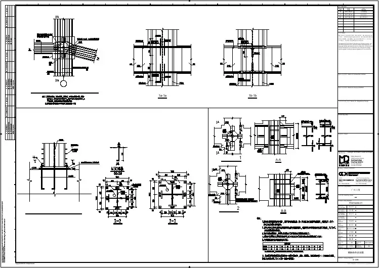
1—1—4、基本节点a。
柱脚节点
b。
梁、柱节点。
HUALU 1X02-2010华陆工程科技有限责任公司G O N G S I B I A O Z H U N S H E J I H U A L U 1X 02-2010目录目录………………………………………………………100 (共01张)钢结构节点详图说明…………………………… 101~106 (共06张)变截面H型钢柱工厂拼接……………………… 201、202 (共2张)H型钢柱工地拼接………………………………… 203、204 (共05张)梁与柱强轴刚接节点…………………………… 301~309 (共12张)梁与柱强轴铰接………………………………… 401、402 (共11张)梁与柱弱轴刚接节点…………………………………… 601 (共01张)梁与柱弱轴铰接………………………………… 701、702 (共11张)H型钢梁工厂拼接………………………………………801 (共01张)H型钢梁工地拼接………………………………………802 (共01张)H型钢柱节点域补强…………………………………901~906 (共06张)柱间支撑……………………………………………1001~1009 (共11张)H型钢柱间支撑工地拼接…………………………………1010 (共01张)梁与梁铰接连接……………………………………1101~1112 (共86张)水平支撑的连接节点………………………………1201~1206 (共06张)钢结构焊接连接节点通用图批准部门:华陆工程科技有限责任公司技管理术部标准编号:HUALU 1X02-2010主编单位:华陆工程科技有限责任公司土建室发布日期:2010年12月20日实行日期:2010年12月20日主编单位负责人:主编单位技术负责人:技术审定人:设计负责人:目录100说明:1.本套钢结构节点详图适用于非抗震及抗震等级低于或等于二级的一般工业与民用钢结构节点连接。
2.设计依据:《建筑结构可靠度设计统一标准》GB 50068-2001《钢结构设计规范》GB 50017-2003《建筑抗震设计规范》GB 50011-2010《高层民用建筑钢结构技术规程》JGJ 99-98《钢结构工程施工质量验收规范》GB 50205-2001《建筑钢结构焊接技术规程》JGJ 81-2002《建筑结构制图标准》GB/T 50105-2001《热扎H型钢和剖分T型钢》GB/T 11263-2005《焊接H型钢》YB 3301-20053.材料:3.1钢材采用Q235等级B、C、D的碳素结构钢及Q345等级B、C、D、E的低合金高强度结构钢。
HUALU 1X02-2010华陆工程科技有限责任公司G O N G S I B I A O Z H U N S H E J I H U A L U 1X 02-2010目录目录………………………………………………………100 (共01张)钢结构节点详图说明…………………………… 101~106 (共06张)变截面H型钢柱工厂拼接……………………… 201、202 (共2张)H型钢柱工地拼接………………………………… 203、204 (共05张)梁与柱强轴刚接节点…………………………… 301~309 (共12张)梁与柱强轴铰接………………………………… 401、402 (共11张)梁与柱弱轴刚接节点…………………………………… 601 (共01张)梁与柱弱轴铰接………………………………… 701、702 (共11张)H型钢梁工厂拼接………………………………………801 (共01张)H型钢梁工地拼接………………………………………802 (共01张)H型钢柱节点域补强…………………………………901~906 (共06张)柱间支撑……………………………………………1001~1009 (共11张)H型钢柱间支撑工地拼接…………………………………1010 (共01张)梁与梁铰接连接……………………………………1101~1112 (共86张)水平支撑的连接节点………………………………1201~1206 (共06张)钢结构焊接连接节点通用图批准部门:华陆工程科技有限责任公司技管理术部标准编号:HUALU 1X02-2010主编单位:华陆工程科技有限责任公司土建室发布日期:2010年12月20日实行日期:2010年12月20日主编单位负责人:主编单位技术负责人:技术审定人:设计负责人:目录100说明:1.本套钢结构节点详图适用于非抗震及抗震等级低于或等于二级的一般工业与民用钢结构节点连接。
2.设计依据:《建筑结构可靠度设计统一标准》GB 50068-2001《钢结构设计规范》GB 50017-2003《建筑抗震设计规范》GB 50011-2010《高层民用建筑钢结构技术规程》JGJ 99-98《钢结构工程施工质量验收规范》GB 50205-2001《建筑钢结构焊接技术规程》JGJ 81-2002《建筑结构制图标准》GB/T 50105-2001《热扎H型钢和剖分T型钢》GB/T 11263-2005《焊接H型钢》YB 3301-20053.材料:3.1钢材采用Q235等级B、C、D的碳素结构钢及Q345等级B、C、D、E的低合金高强度结构钢。
1023门式刚架横梁与立柱连接节点,可采用端板竖放、平放和斜放三种形式(图10.2.3a、b、c)。
斜梁与刚架柱连接节点的受拉侧,宜采用端板外伸式,与斜梁端板连接的柱的翼缘部位应与端板等厚度;斜梁拼接时宜使端板与构件外边缘垂直(图10.2.3d),应采用外伸式连接,并使翼缘内外螺栓群中心与翼缘中心重合或接近。
图10.2.3刚架连接节点10.2.8屋面梁与摇摆柱连接节点应设计成铰接节点,采用端板横放的顶接连接方式(图10.2.8 )。
(a)(b)图10.2.9 屋面梁和混凝土柱连接节点10.2.11吊车梁承受动力荷载,其构造和连接节点须满足以下规定:4吊车梁与制动梁的连接,可采用高强度摩擦型螺栓连接或焊接。
吊车梁与刚架上柱的连接处宜设长圆孔(图10.2.11-3a);吊车梁与牛腿处垫板采用焊接连接(图10.2.11-3b);吊车梁之间应采用高强螺栓连接。
(a) (b)图10.2.810.2.9屋面梁与混凝土柱采用锚栓连接(图设计同铰接柱脚。
10.2.9),该连接节点应为铰接节点,锚栓及底板(a)端板竖放(c)端板斜放(d)1屋面梁和摇摆柱连接节点F 翼缘的相应位置处应设置横向加劲肋;为保证传力均匀,在牛腿上翼缘吊车梁支座处应设置垫板,垫板与牛腿上翼缘连接采用围焊;为避免较大的局部承压应力,在吊车梁支座对应 牛腿与柱连接处承受剪力 V 和弯矩M=Ve 作用,其截面强度和连接焊缝应按现行钢结构设计规范GB50017进行计算。
10.2.13在设有夹层的结构中,夹层梁与柱可采用刚接,也可采用铰接(图刚接连接时,夹层梁翼缘与柱翼缘应采用全熔透焊接,而腹板可采用高强螺栓与柱连接。
柱 吊车梁与牛腿连接吊车梁连接节点10.2.12用于支承吊车梁的牛腿可做成等截面, 当也可做成变截面(图 10.2.12);柱在牛腿上的牛腿腹板处应设置横向加劲肋。
10.2.13)。
当采用(b)图 10211-3变截面牛腿(a)等截面牛腿(b)图10.2.12 牛腿节点在与夹层梁上下翼缘相应处应设置横向加劲肋。
.. 10.2.3 门式刚架横梁与立柱连接节点,可采用端板竖放、平放和斜放三种形式(图10.2.3a 、b 、c )。
斜梁与刚架柱连接节点的受拉侧,宜采用端板外伸式,与斜梁端板连接的柱的翼缘部位应与端板等厚度;斜梁拼接时宜使端板与构件外边缘垂直(图10.2.3d ),应采用外伸式连接,并使翼缘内外螺栓群中心与翼缘中心重合或接近。
10.2.8 屋面梁与摇摆柱连接节点应设计成铰接节点,采用端板横放的顶接连接方式(图10.2.8)。
10.2.9 屋面梁与混凝土柱采用锚栓连接(图10.2.9),该连接节点应为铰接节点,锚栓及底板设计同铰接柱脚。
10.2.11 吊车梁承受动力荷载,其构造和连接节点须满足以下规定:4 吊车梁与制动梁的连接,可采用高强度摩擦型螺栓连接或焊接。
吊车梁与刚架上柱的 连接处宜设长圆孔(图10.2.11-3a );吊车梁与牛腿处垫板采用焊接连接(图10.2.11-3b );吊车梁之间应采用高强螺栓连接。
(a)端板竖放 (b)端板平放 (c)端板斜放 (d)斜梁拼接 图10.2.3 刚架连接节点图10.2.9 屋面梁和混凝土柱连接节点(a) (b) (a) (b) (c) 图10.2.8 屋面梁和摇摆柱连接节点10.2.12 用于支承吊车梁的牛腿可做成等截面,当也可做成变截面(图10.2.12);柱在牛腿上下翼缘的相应位置处应设置横向加劲肋;为保证传力均匀,在牛腿上翼缘吊车梁支座处应设置垫板,垫板与牛腿上翼缘连接采用围焊;为避免较大的局部承压应力,在吊车梁支座对应的牛腿腹板处应设置横向加劲肋。
牛腿与柱连接处承受剪力V 和弯矩M=Ve 作用,其截面强度和连接焊缝应按现行钢结构设计规范GB50017进行计算。
10.2.13 在设有夹层的结构中,夹层梁与柱可采用刚接,也可采用铰接(图10.2.13)。
当采用刚接连接时,夹层梁翼缘与柱翼缘应采用全熔透焊接,而腹板可采用高强螺栓与柱连接。
柱在与夹层梁上下翼缘相应处应设置横向加劲肋。
门式刚架横梁与立柱连接节点,可采用端板竖放、平放和斜放三种形式(图、b 、c )。
斜梁与刚架柱连接节点的受拉侧,宜采用端板外伸式,与斜梁端板连接的柱的翼缘部位应与端板等厚度;斜梁拼接时宜使端板与构件外边缘垂直(图),应采用外伸式连接,并使翼缘内外螺栓群中心与翼缘中心重合或接近。
屋面梁与摇摆柱连接节点应设计成铰接节点,采用端板横放的顶接连接方式(图)。
屋面梁与混凝土柱采用锚栓连接(图),该连接节点应为铰接节点,锚栓及底板设计同铰接柱脚。
吊车梁承受动力荷载,其构造和连接节点须满足以下规定:
4 吊车梁与制动梁的连接,可采用高强度摩擦型螺栓连接或焊接。
吊车梁与刚架上柱的 连接处宜设长圆孔(图);吊车梁与牛腿处垫板采用焊接连接(图);吊车梁之间应采用高强螺栓连接。
(a)端板竖放 (b)端板平放 (c)端板斜放 (d)斜梁拼接 图 刚架连接节点
图 屋面梁和混凝土柱连接节点
(a) (b) (a) (b) (c) 图 屋面梁和摇摆柱连接节点
用于支承吊车梁的牛腿可做成等截面,当也可做成变截面(图);柱在牛腿上下翼缘的相应位置处应设置横向加劲肋;为保证传力均匀,在牛腿上翼缘吊车梁支座处应设置垫板,垫板与牛腿上翼缘连接采用围焊;为避免较大的局部承压应力,在吊车梁支座对应的牛腿腹板处应设置横向加劲肋。
牛腿与柱连接处承受剪力V 和弯矩M=Ve 作用,其截面强度和连接焊缝应按现行钢结构设计规范GB50017进行计算。
在设有夹层的结构中,夹层梁与柱可采用刚接,也可采用铰接(图)。
当采用刚接连接时,夹层梁翼缘与柱翼缘应采用全熔透焊接,而腹板可采用高强螺栓与柱连接。
柱在与夹层梁上下翼缘相应处应设置横向加劲肋。
山墙柱与刚架横梁宜采用铰接,若山墙柱仅传递水平风荷载,可采用图所示的弹簧片连接方图 夹层梁与柱连接节点
(a)梁与边柱刚接 (b)梁与边柱铰接 (c)梁与中柱刚接 (d)梁与中柱铰接
图 牛腿节点
(a)等截面牛腿 (b)变截面牛腿
式和图所示的开长圆孔的连接方式;若山墙柱与斜梁组成山墙刚架,可采用图所示的连接方式。
支撑与刚架梁柱可采用普通螺栓连接,应符合以下规定:
1 圆钢支撑与刚架梁柱连接可用连接板连接(图);也可直接与梁柱腹板连接,但应设置垫块,宜采用角钢垫块或特制的楔形垫块(图、c ),当圆钢直径大于25mm 或腹板厚度不大于5mm 时,应对支承孔周围进行加强。
圆钢端部应设丝扣,待校正定位后宜采用花篮螺栓张紧。
2 型钢支撑与刚架梁柱连接宜用连接板连接(图);受力较大时,可设置双片柱间支撑,并双片柱间支撑间沿支撑的长度方向每隔一定距离设置连接板焊于柱间支撑。
系杆与刚架梁柱连接应设计成铰接节点,可采用普通螺栓连接(图)。
对于钢管系杆,钢管端部应设置封头板,对于双角钢系杆,应沿系杆长度方向每隔一定距离设置垫块以保证其协调工作。
隅撑与刚架构件腹板夹角不宜小于 45,宜采用单角钢制作。
隅撑可连接在刚架构件受压侧附近的腹板上(图);也可连接在受压翼缘上(图);也可在靠受压侧设置连接板,隅撑连接在连接板上(图)。
隅撑与刚架和檩条连接可采用普通螺栓,每端可设置一个螺栓。
圆钢连接板圆钢角钢垫块圆钢楔形垫块连接板
型钢图 支撑与刚架梁柱连接节点 (a)圆钢用连接板连接 (b)圆钢用角钢垫块连接 (c)圆钢用楔形垫块连接 (d)型钢用连接板连接
图 系杆与刚架梁柱连接节点
(a) 钢管系杆 (b)单角钢系杆 (c)双角钢系杆
檩条与刚架的连接和檩条与拉条的连接应符合下列规定:
1 屋面檩条和墙梁与刚架梁柱宜采用普通螺栓连接,檩条每端应设两个螺栓(图)。
檩条应采用檩托板连接,若檩条高度较大时,檩托板处宜设加劲板,并应计算其受力。
在Z 形檩条重叠搭接的支承处,当有可靠依据时,可不设檩托,直接将Z 形檩条翼缘用螺栓连于刚架上,但重叠部分的檩条应采用螺栓相互连接。
2 当连接处采用连续搭接时,檩条的搭接长度2a (图)及其连接螺栓的直径应按连续檩条支座处承受的弯矩确定,且搭接长度不应小于檩条长度的10%。
3 檩条之间的拉条和撑杆直接连于檩条腹板上,采用普通螺栓连接(图),为便于螺栓拧紧,斜拉条宜弯折或设置垫块(图、c )。
4 屋脊两侧檩条之间可用槽钢、角钢和圆钢相连。
图 隅撑与刚架梁柱连接节点
(a)隅撑连于腹板 (b)隅撑连于翼缘 (c)隅撑连于连接板
檩条檩托屋架上弦
檩托檩条檩条
檩托檩托
檩条屋架上弦图 檩条与刚架梁柱连接节点 图 连续檩条的搭接
图 拉条和撑杆与檩条连接
(b) (c)
抽柱处托架或托梁宜与柱采用铰接连接,如图所示。
若托架或托梁挠度较大时,也可采用刚接连接,但柱须考虑由此引起的扭矩影响。
屋面梁搁置在托架或托梁上宜采用铰接连接,如图 所示,若采用刚接,则托梁应选择抗扭性能较好的截面。
托架或托梁连接还需考虑屋面梁产生的水平推力。
女儿墙立柱可直接焊于屋面梁上(图),按悬臂构件计算其内力,并对女儿墙立柱与屋面梁连接处的焊缝进行计算。
气楼或天窗形式如图所示,可直接焊于屋面梁或槽钢托梁上,当气楼间距与屋面钢梁相同时,槽钢托梁可取消。
气楼支架及其连接设计同主结构。
柱脚节点应符合以下规定:
1 门式刚架柱脚宜采用平板式铰接柱脚,如图和图所示;也可采用刚接柱脚,如图和图托梁托梁托梁图 托梁连接节点
(a) 托梁与柱连接 (b) 屋面梁与托梁连接
图 女儿墙连接节点
(a) 角部立柱连接 (b) 中间立柱连接
图 气楼大样
(a) 气楼一 (b) 气楼二
所示。
2 计算带有柱间支撑的柱脚锚栓在风荷载作用下上拔力时,应计入柱间支撑产生的最大竖向分力,且不考虑活荷载(雪荷载)、积灰荷载和附加荷载影响,恒载分项系数应取。
计算柱脚锚栓的受拉承载力时,应采用螺纹处的有效截面面积。
3 锚栓不宜抗剪,水平剪力应由底板与混凝土基础间的摩擦力来承受,摩擦系数可取,计算摩擦力时应考虑屋面风吸力产生的上拔力的影响,若不满足则应设置抗剪键。
4 柱脚锚栓应采用Q235钢或Q345钢制作。
锚栓的锚固长度应符合现行国家相关标准的规定,锚栓端部应设置弯钩和锚件。
锚栓直径不宜小于24mm ,且应采用双螺帽。
图 铰接柱脚
(a)两个锚栓柱脚 (b)四个锚栓柱脚
图 刚接柱脚 (a)带加劲肋 (b)带靴梁。