10kV负荷开关加熔断器组合开关柜二次图(PB-5-D2-03)
- 格式:dwg
- 大小:66.32 KB
- 文档页数:1
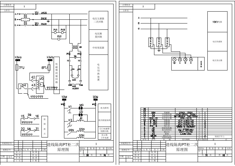
10KV开关柜二次接线图解时间:2011-03-301、综述10kV开关柜的主要部分包括:真空断路器、电流互感器、就地安装的微机保护装置、操作回路附件(把手、指示灯、压板等等)、各种位置辅助开关。
其中,断路器与电流互感器安装在开关柜内部,微机保护、附件、电度表安装在继电器室(沿用以前的叫法,其实已经没有继电器了)的面板上,端子排与各种电源空气开关安装在继电器室内部,端子排通过控制电缆或专用插座与断路器机构连接。
理解开关柜的二次接线,我们需要找到两份图纸:综自厂家提供的保护原理图、接线图;开关柜厂家提供的二次原理图、配线图、端子排图、断路器机构原理图。
综自厂的图纸是开关柜厂家的设计原始依据,也是我们审核开关柜厂家图纸的依据。
开关厂的原理图一般都是根据综自厂的原理图修改的,再示意性的画出电流、电压、信号量的输入,控制量的输出。
2、10kV电缆出线中置柜的二次接线KYN28A(GZS1)中置柜是城区变电站使用最多的10kV开关柜型式,从正面看,它明显分成三部分,最上面是继电器室,中间是断路器室,下面是空室(什么也没有),母线等高压设备安装在背面的柜体内。
如图8-1-1所示。
2.1继电器室继电器室的面板上,安装有微机保护装置、操作把手、保护出口压板、指示灯(合位红灯、分位绿灯、储能完成黄灯);继电器室内,安装有端子排、微机保护控制回路直流电源开关、微机保护工作直流电源、储能电机工作电源开关(直流或交流)。
图8-1-1是早期开关柜的图片,继电器室就是安装电流表和指示灯的位置。
2.2断路器室10kV中置柜最常用的断路器是VS1真空断路器,断路器机构内的接线通过专用插座与继电器室的端子排联接。
插头的一段与断路器机构固定连接,另一段是一个专用插头,配套的插座安装在断路器室的右上方,从插座引出线接至继电器室端子排。
为了搞明白二次回路,我们需要对操作过程进行一定的了解。
中置柜断路器手车有三个位置:断开、试验、运行(需要注意的是,断路器手车和断路器是两个概念,断路器手车其实就是断路器和它的座)。
10kv高压柜二次原理详解10kV开关柜的主要部分包括:真空断路器、电流互感器、就地安装的微机保护装置、操作回路附件(把手、指示灯、压板等等)、各种位置辅助开关。
其中,断路器与电流互感器安装在开关柜内部,微机保护、附件、电度表安装在继电器室(沿用以前的叫法,其实已经没有继电器了)的面板上,端子排与各种电源空气开关安装在继电器室内部,端子排通过控制电缆或专用插座与断路器机构连接。
理解开关柜的二次接线,我们需要找到两份图纸:综自厂家提供的保护原理图、接线图;开关柜厂家提供的二次原理图、配线图、端子排图、断路器机构原理图。
综自厂的图纸是开关柜厂家的设计原始依据,也是我们审核开关柜厂家图纸的依据。
开关厂的原理图一般都是根据综自厂的原理图修改的,再示意性的画出电流、电压、信号量的输入,控制量的输出。
KYN28A(GZS1)中置柜是城区变电站使用最多的10kV开关柜型式,从正面看,它明显分成三部分,最上面是继电器室,中间是断路器室,下面是空室(什么也没有),母线等高压设备安装在背面的柜体内。
如图8-1-1所示。
图8-1-12.1继电器室继电器室的面板上,安装有微机保护装置、操作把手、保护出口压板、指示灯(合位红灯、分位绿灯、储能完成黄灯);继电器室内,安装有端子排、微机保护控制回路直流电源开关、微机保护工作直流电源、储能电机工作电源开关(直流或交流)。
图8-1-1是早期开关柜的图片,继电器室就是安装电流表和指示灯的位置。
2.2断路器室10kV中置柜最常用的断路器是VS1真空断路器,断路器机构内的接线通过专用插座与继电器室的端子排联接。
插头的一段与断路器机构固定连接,另一段是一个专用插头,配套的插座安装在断路器室的右上方,从插座引出线接至继电器室端子排。
为了搞明白二次回路,我们需要对操作过程进行一定的了解。
中置柜断路器手车有三个位置:断开、试验、运行(需要注意的是,断路器手车和断路器是两个概念,断路器手车其实就是断路器和它的座)。
10KV开关柜二次接线图解1、综述10kV开关柜的主要部分包括:真空断路器、电流互感器、就地安装的微机保护装置、操作回路附件(把手、指示灯、压板等等)、各种位置辅助开关。
其中,断路器与电流互感器安装在开关柜内部,微机保护、附件、电度表安装在继电器室(沿用以前的叫法,其实已经没有继电器了)的面板上,端子排与各种电源空气开关安装在继电器室内部,端子排通过控制电缆或专用插座与断路器机构连接。
理解开关柜的二次接线,我们需要找到两份图纸:综自厂家提供的保护原理图、接线图;开关柜厂家提供的二次原理图、配线图、端子排图、断路器机构原理图。
综自厂的图纸是开关柜厂家的设计原始依据,也是我们审核开关柜厂家图纸的依据。
开关厂的原理图一般都是根据综自厂的原理图修改的,再示意性的画出电流、电压、信号量的输入,控制量的输出。
2、10kV电缆出线中置柜的二次接线KYN28A(GZS1)中置柜是城区变电站使用最多的10kV开关柜型式,从正面看,它明显分成三部分,最上面是继电器室,中间是断路器室,下面是空室(什么也没有),母线等高压设备安装在背面的柜体内。
如图8-1-1所示。
图8-1-12.1继电器室继电器室的面板上,安装有微机保护装置、操作把手、保护出口压板、指示灯(合位红灯、分位绿灯、储能完成黄灯);继电器室内,安装有端子排、微机保护控制回路直流电源开关、微机保护工作直流电源、储能电机工作电源开关(直流或交流)。
图8-1-1是早期开关柜的图片,继电器室就是安装电流表和指示灯的位置。
2.2断路器室10kV中置柜最常用的断路器是VS1真空断路器,断路器机构内的接线通过专用插座与继电器室的端子排联接。
插头的一段与断路器机构固定连接,另一段是一个专用插头,配套的插座安装在断路器室的右上方,从插座引出线接至继电器室端子排。
为了搞明白二次回路,我们需要对操作过程进行一定的了解。
中置柜断路器手车有三个位置:断开、试验、运行(需要注意的是,断路器手车和断路器是两个概念,断路器手车其实就是断路器和它的座)。
10KV开关柜二次接线图解1、综述10kV开关柜的主要部分包括:真空断路器、电流互感器、就地安装的微机保护装置、操作回路附件(把手、指示灯、压板等等)、各种位置辅助开关。
其中,断路器与电流互感器安装在开关柜内部,微机保护、附件、电度表安装在继电器室(沿用以前的叫法,其实已经没有继电器了)的面板上,端子排与各种电源空气开关安装在继电器室内部,端子排通过控制电缆或专用插座与断路器机构连接。
理解开关柜的二次接线,我们需要找到两份图纸:综自厂家提供的保护原理图、接线图;开关柜厂家提供的二次原理图、配线图、端子排图、断路器机构原理图。
综自厂的图纸是开关柜厂家的设计原始依据,也是我们审核开关柜厂家图纸的依据。
开关厂的原理图一般都是根据综自厂的原理图修改的,再示意性的画出电流、电压、信号量的输入,控制量的输出。
2、10kV电缆出线中置柜的二次接线KYN28A(GZS1)中置柜是城区变电站使用最多的10kV开关柜型式,从正面看,它明显分成三部分,最上面是继电器室,中间是断路器室,下面是空室(什么也没有),母线等高压设备安装在背面的柜体内。
如图8-1-1所示。
图8-1-12.1继电器室继电器室的面板上,安装有微机保护装置、操作把手、保护出口压板、指示灯(合位红灯、分位绿灯、储能完成黄灯);继电器室内,安装有端子排、微机保护控制回路直流电源开关、微机保护工作直流电源、储能电机工作电源开关(直流或交流)。
图8-1-1是早期开关柜的图片,继电器室就是安装电流表和指示灯的位置。
2.2断路器室10kV中置柜最常用的断路器是VS1真空断路器,断路器机构内的接线通过专用插座与继电器室的端子排联接。
插头的一段与断路器机构固定连接,另一段是一个专用插头,配套的插座安装在断路器室的右上方,从插座引出线接至继电器室端子排。
为了搞明白二次回路,我们需要对操作过程进行一定的了解。
中置柜断路器手车有三个位置:断开、试验、运行(需要注意的是,断路器手车和断路器是两个概念,断路器手车其实就是断路器和它的座)。
10KV开关柜二次接线图解1、综述10kV开关柜的主要部分包括:真空断路器、电流互感器、就地安装的微机保护装置、操作回路附件(把手、指示灯、压板等等)、各种位置辅助开关。
其中,断路器与电流互感器安装在开关柜内部,微机保护、附件、电度表安装在继电器室(沿用以前的叫法,其实已经没有继电器了)的面板上,端子排与各种电源空气开关安装在继电器室内部,端子排通过控制电缆或专用插座与断路器机构连接。
理解开关柜的二次接线,我们需要找到两份图纸:综自厂家提供的保护原理图、接线图;开关柜厂家提供的二次原理图、配线图、端子排图、断路器机构原理图。
综自厂的图纸是开关柜厂家的设计原始依据,也是我们审核开关柜厂家图纸的依据。
开关厂的原理图一般都是根据综自厂的原理图修改的,再示意性的画出电流、电压、信号量的输入,控制量的输出。
2、10kV电缆出线中置柜的二次接线KYN28A(GZS1)中置柜是城区变电站使用最多的10kV开关柜型式,从正面看,它明显分成三部分,最上面是继电器室,中间是断路器室,下面是空室(什么也没有),母线等高压设备安装在背面的柜体内。
如图8-1-1所示。
图8-1-12.1继电器室继电器室的面板上,安装有微机保护装置、操作把手、保护出口压板、指示灯(合位红灯、分位绿灯、储能完成黄灯);继电器室内,安装有端子排、微机保护控制回路直流电源开关、微机保护工作直流电源、储能电机工作电源开关(直流或交流)。
图8-1-1是早期开关柜的图片,继电器室就是安装电流表和指示灯的位置。
2.2断路器室10kV中置柜最常用的断路器是VS1真空断路器,断路器机构内的接线通过专用插座与继电器室的端子排联接。
插头的一段与断路器机构固定连接,另一段是一个专用插头,配套的插座安装在断路器室的右上方,从插座引出线接至继电器室端子排。
为了搞明白二次回路,我们需要对操作过程进行一定的了解。
中置柜断路器手车有三个位置:断开、试验、运行(需要注意的是,断路器手车和断路器是两个概念,断路器手车其实就是断路器和它的座)。
精品文档10KV开关柜二次接线图解时间:2011-03-301、综述10kV开关柜的主要部分包括:真空断路器、电流互感器、就地安装的微机保护装置、操作回路附件(把手、指示灯、压板等等)、各种位置辅助开关。
其中,断路器与电流互感器安装在开关柜内部,微机保护、附件、电度表安装在继电器室(沿用以前的叫法,其实已经没有继电器了)的面板上,端子排与各种电源空气开关安装在继电器室内部,端子排通过控制电缆或专用插座与断路器机构连接。
理解开关柜的二次接线,我们需要找到两份图纸:综自厂家提供的保护原理图、接线图;开关柜厂家提供的二次原理图、配线图、端子排图、断路器机构原理图。
综自厂的图纸是开关柜厂家的设计原始依据,也是我们审核开关柜厂家图纸的依据。
开关厂的原理图一般都是根据综自厂的原理图修改的,再示意性的画出电流、电压、信号量的输入,控制量的输出。
2、10kV电缆出线中置柜的二次接线KYN28A(GZS1)中置柜是城区变电站使用最多的10kV开关柜型式,从正面看,它明显分成三部分,最上面是继电器室,中间是断路器室,下面是空室(什么也没有),母线等高压设备安装在背面的柜体内。
如图8-1-1所示。
精品文档.精品文档图8-1-12.1继电器室继电器室的面板上,安装有微机保护装置、操作把手、保护出口压板、指示灯(合位红灯、分位绿灯、储能完成黄灯);继电器室内,安装有端子排、微机保护控制回路直流电源开关、微机保护工作直流电源、储能电机工作电源开关(直流或交流)。
图8-1-1是早期开关柜的图片,继电器室就是安装电流表和指示灯的位置。
2.2断路器室10kV中置柜最常用的断路器是VS1真空断路器,断路器机构内的接线通过专用插座与继电器室的端子排联接。
插头的一段与断路器机构固定连接,另一段是一个专用插头,配套的插座安装在断路器室的右上方,从插座引出线接至继电器室端子排。
为了搞明白二次回路,我们需要对操作过程进行一定的了解。
中置柜断路器手车有三个位置:断开、试验、运行(需要注意的是,断路器手车和断路器是两个概念,断路器手车其实就是断路器和它的座)。