《建筑面积计算》例题精选
- 格式:doc
- 大小:1.03 MB
- 文档页数:13
《建筑面积计算》例题精选【例1】例:计算下图单层建筑的建筑面积【例2】例:计算下图的建筑面积(墙厚均为240mm 。
)| 制面成都市工业职业技术学校土木系刘嘉解建筑面积: S = 45.24 X 15.24二689.46(楼隔层建筑面积:(4.0+0.24 )X( 3.30+0.24 ) =15.01( m2)全部建筑面积:69.30+15.01=78.91 (tf)【例3】例:建筑物如图所示试计算:(1 )当H = 3.0m时,建筑物的建筑面积。
A-A当H=3.0m 时S =(3.6 X6+7.2+0.24) X(5.4 X2+2.4+0.24) X5=1951.49 (怦)分析:多层建筑物,当层高在 2.20m及其以上者,应计算全面积S = (3.6 X6+7.2+0.24 : X( 5.4 X2+2.4+0.24 ) X4 当H=2.0m 时+ 1/2 (3.6 X6+7.2+0.24 )X(5.4 X 2+0.24)=1756.39 (m2)分析:多层建筑物,当层高不足 2.20m时,应计算一半面积【例4】例:计算下图地下室建筑面积,层高2.4m,出入口处有永解S =地下室建筑面积+出入口建筑面积地下室建筑面积:=(12.30+0.24 )X( 10.00+0.24 )= 128.41( m2)出入口建筑面积:=(2.1+0.24) X 0.68 + 6.00 X 2.00 = 13.59( m )【例5】例:某建筑物座落在坡地上,设计为深基础,并加以利用,计算其建筑面积,如图所示。
S = ( 6.00 + 0.40 ) X( 5.50 + 0.40 )=37.76( m)【例6】(27-0.24) X 2 X 3+(15-0.246) X 1 X 2= 160.56+17.56 = 178.08 (mJ架空走廊建筑面积为:6 X 1.5=9.0 (m )例:计算下图所示回廊的建筑面积。
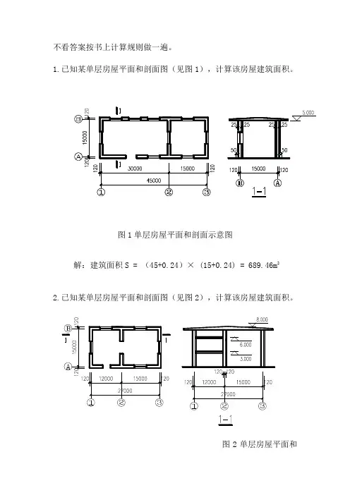
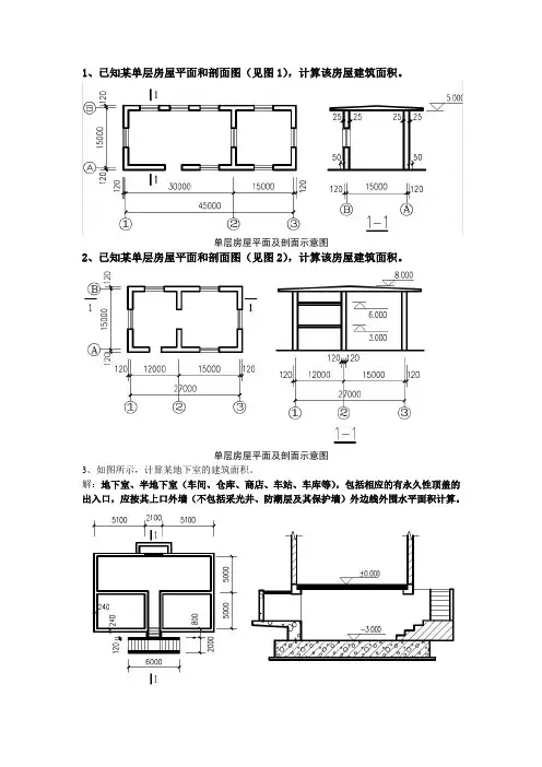
1、已知某单层房屋平面和剖面图(见图1),计算该房屋建筑面积。
单层房屋平面及剖面示意图
2、已知某单层房屋平面和剖面图(见图2),计算该房屋建筑面积。
单层房屋平面及剖面示意图
3、如图所示,计算某地下室的建筑面积。
解:地下室、半地下室(车间、仓库、商店、车站、车库等),包括相应的有永久性顶盖的出入口,应按其上口外墙(不包括采光井、防潮层及其保护墙)外边线外围水平面积计算。
4、计算突出屋面有维护结构的电梯间、楼梯间的建筑面积。
5、分别计算三种封闭阳台的建筑面积。
挑阳台凹阳台半挑半凹阳台
6、计算各跨的建筑面积。
高低连跨单层建筑物平面和里面示意图
7、某高低连跨单层厂房剖面图如图所示,该厂房总长为60350mm,柱断面尺寸240mm ×240mm,纵墙厚350mm,横墙厚175mm,试计算该厂房的建筑面积。
建筑面积计算例题【1】地下室及出入口尺寸如图所示,计算建筑面积*【2】图为舞台灯光控制室,计算建筑面积舞台灯光控制室S=3.14×22×1/2=6.28m211500例题1:计算如图所示建筑物的建筑面积底层平面示意(6.90+0.24)(4.50+4.50)64.26m2(11.50+0.24)(6.6+0.24)80.30m2扣:1.50(2.4+2.1)-6.75m2二、三层平面示意(11.50+0.24)(6.6+0.24)80.30m2(6.90+0.24)(4.50+4.50)64.26m2四层平面示意(6.90+0.24)×4.5032.13m2(6.60+0.24)(8.00+0.24)56.36m2S=(27-0.24)×3×2+(15-0.24-6)×(1+0.1)×2=179.83M21、某单层工业厂房,其外墙勒脚以上结构外围水平投影面积为1350㎡。
厂房内分隔出部分楼层,其首层为办公室,外墙结构外围水平面积为80㎡,层高2.8m;2层为休息室,层高2.6m;3层为仓库,层高2.1m。
则按《建筑工程建筑面积计算规范》(GB/50353-2005),该厂房的建筑面积为( )㎡。
S=1350+80+40=1470m2答案:AA、1470B、1510C、1550D、15902、根据《建筑工程建筑面积计算规范》(GB/50353-2005),按建筑物自然层计算建筑面积的有 ()。
A、穿过建筑物的通道 B/电梯井 C、建筑物的门厅D、建筑物内变形缝E、通风排气竖井答案:BDE3、根据《建筑工程建筑面积计算规范》(GB/50353-2005),以幕墙作为围护构件的建筑物,其建筑面积计算应按( )。
A、建筑物外墙外围水平面积B、幕墙内侧围护面积C、幕墙中心线围护面积D、幕墙外边线围护面积答案:D4、根据《建筑工程建筑面积计算规范》(GB/50353-2005),在下列项目中,不计算建筑面积的有 ( )。
不看答案按书上计算规则做一遍。
1.已知某单层房屋平面和剖面图(见图1),计算该房屋建筑面积。
图1单层房屋平面和剖面示意图解:建筑面积S = (45+0.24)× (15+0.24) = 689.46m22.已知某单层房屋平面和剖面图(见图2),计算该房屋建筑面积。
图2单层房屋平面和剖面示意图解:建筑面积S =(27+0.2)×(15+0.24)+(12+0.24)×(15+0.24)×3/2 = 694.95 m23.如图3所示,计算多层建筑物的建筑面积。
图3多层建筑物立面和平面示意图解:建筑面积S = 15.18 × 9.18 × 7 = 975.47 m24.如图4所示,计算某地下室的建筑面积,出入口800有顶盖。
图4地下室平面和剖面示意图解:S地下室 = (12.3+0.24)× (10+0.24) = 128.41 m2S出入口 =( 2.1 × 0.8 )/2 = 0.84 m2S = S地下室 + S出入口 = 128.41 + 0.84 = 129.25 m2 5.如图5所示,计算坡地建筑架空层及二层建筑物的建筑面积。
图5坡地建筑物架空层示意图解: S = 8.74 × 4.24 + 15.24 × 8.74 × 2 = 303.45 m2 6.如图6所示,计算利用深基础地下架空层的建筑面积。
图6深基础地下架空层示意图解:S = (18+0.4)× (8+0.4) = 154.56m27.如图8所示,计算有顶盖有围护架空通廊的建筑面积。
图8架空走廊的建筑面积示意图解:S = 6 × 1.5 = 9 m2解:S = 4.44 × 3.84 × 2 = 34.1 m2图10带有垃圾道和电梯井的某建筑物的平面和立面示意图解:S电梯井 = 3 × 2 × 9 = 54 m2S垃圾道 = 1 × 1 × 8 = 8 m28.如图11所示,分别计算三种封闭阳台的建筑面积。
造价员建筑面积计算练习题及解析单项选择题1、下列项目应计算建筑面积是()。
A.地下室的采光井B.室外台阶C.建筑物内的操作平台D.穿过建筑物的通道答案:D分析:室外台阶,建筑物内的操作平台明确规定不计算建筑面积,地下室要计算建筑面积但不计算采光井,所以本题计算建筑面积的只有D2、在清单报价中土方计算应以()以体积计算A.以几何公式考虑放坡、操作工作面等因素计算B.基础挖土方按基础垫层底面积价工作面乘挖土深度C.基础挖土方按基础垫层底面积加支挡土板宽度乘挖土深度D.基础挖土方按基础垫层底面乘挖土深度答案:D分析:挖土方按设计图示尺寸以体积计算,基础挖土方按基础垫层底面积乘挖土深度(地面标高到基底标高),以体积计算。
计量单位为m3.在计算土石方工程量时,土石方计算规则是以设计图示净量计算。
放坡、操作工作面、爆破超挖量及采取他措施(如支挡土板等),由投标人根据施工方案考虑在报价3、一建筑物平面轮廓尺寸为60xl5m,其场地平整工程量为[ ]m2A.960B.1054C.900D.1350答案:C分析:场地平整按设计图示尺寸以建筑物首层面积计算,计量单位为m2.所以应为:b4*19=1216(m2)4、砖基础计算正确的是[ ]A.按主墙间净空面积乘设计厚度以体积计算B.基础长度按中心线计算C.基础防潮层应考虑在砖基础项目报价中。
D.不扣除构造柱所占体积。
答案:C分析:砖基础按设计图示尺寸以体积计算。
其中基础长度:外墙按中心线,内墙按净长线计算。
应扣除地梁(圈梁)、构造柱所占体积。
基础大放脚T型接头处的重叠部分以及嵌入基础内的钢筋、铁件、管道、基础砂浆防潮层及单个面积在0.3m2以内孔洞所占体积不予扣除,但靠墙暖气沟的挑檐亦不增加,附墙垛基础宽出部分体积应并入基础工程量内。
1.如图所示,求其建筑面积。
(单层设有局部楼层的情况)2.求图所示单层工业厂房高跨部分及低跨部分的建筑面积。
(高低连跨建筑)3.某6层砖混结构住宅楼,2~6层建筑平面图均相同,如图所示。
阳台为不封闭阳台,首层无阳台,其他均与二层相同。
计算其建筑面积。
(注意阳台和雨篷的计算)4.计算如图所示建筑物的建筑面积底层二、三层11500四层5. 计算如图所示建筑物的建筑面积6.求图所示建筑物的建筑面积。
(地下室建筑面积)7.求图示深基础做地下架空层的建筑面积。
(深基础架空层建筑面积)8.求图所示的建筑物的建筑面积。
(架空走廊)9、某六层建筑物局部标准层平面图如图所示(墙厚为240mm),已知三个阳台的面积均为1.5m2,阳台1和阳台2不封闭,阳台3封闭,计算此建筑物的建筑面积(一层不设阳台)。
10、某住宅建筑各层外围水平面积为400m2,共六层,二层及以上每层有两个阳台,每个水平面积为5m2(有围护结构),建筑中间设置宽度为300mm变形缝一条,缝长为10m,求该建筑的总建筑面积。
11、某层高3.6m的六层建筑,每层建筑面积为2000m2,建筑内有一7.2m高的中央中央圆形大厅,直径10m,环绕大厅有一层半圆回廊。
回廊宽2m,层高3.6m。
求该建筑的建筑面积。
12、某单层建筑物的局部平面图如图所示(墙厚为240mm),层高为3m,外墙保温层厚度为50mm,门洞口尺寸为2000mm×900mm,附墙柱断面为400mm×500mm,飘窗的尺寸如图所示,试计算此单层建筑物的建筑面积。
13、有一砖混四层建筑,三面砖墙均为240mm厚,一面为1:3外倾的轻钢龙骨全玻璃幕墙后200mm,层高3。
0m,计算该建筑的建筑面积。
(维护结构不垂直于水平面)14、一沿街建筑物外墙厚皆为370mm(如图),该建筑物的建筑面积为多少?(骑楼建筑面积计算)15、一四层建筑,墙厚为370mm(如图),二层以上有权利外挑走廊,院内地坪为-0.15m,求该建筑物的建筑面积。
教学案例及习题建筑面积案例1.计算图示某单层房屋的建筑面积。
2.如图所示,求其建筑面积。
3.求图所示单层工业厂房高跨部分及低跨部分的建筑面积。
4.如图所示,计算高低联跨的单层建筑物的建筑面积。
5.某6层砖混结构住宅楼,2~6层建筑平面图均相同,如图所示。
阳台为不封闭阳台,首层无阳台,其他均与二层相同。
计算其建筑面积。
6.求图所示建筑物的建筑面积。
7.求图示深基础做地下架空层的建筑面积。
8.求图示建筑物的建筑面积。
土石方工程1.根据下图,计算人工平整场地工程量。
2.某地槽开挖如下图所示,不放坡,不设工作面,三类土。
试计算其工程量。
3.某工程基础如图所示,现场土质为一般土,室外设计地坪标高为-0.3m,不考虑排水沟和排水井,要求按图计算:1)人工挖地槽工程量。
2)若图中垫层上皮标高改为 1.7m,试计算人工挖地槽工程量(含清单和定额)。
3)计算槽底钎探工程量。
4)计算挖地槽回填土工程,已知混凝土基础工程量为23.61m³,砖基础工程量为17.67m³。
5)已知地面面层厚20mm,垫层厚60mm,计算室内回填土工程量;6)计算余土外运工程量。
4.某独立基础如下图所示,现场土质为一般土,室外设计地坪标高为-0.3m,垫层上皮标高为-1.8m,试计算人工挖土方工程量并计价。
5.某建筑物的基础如下图所示,三类土,计算(1)人工挖地槽工程量(2)砖基础工程量。
6.计算下图挖地槽工程量(土质为一般土)桩基础工程1.某工程用打桩机,打如图4-1所示钢筋混凝土预制方桩,共50根,求其工程量。
2.某工程有30根钢筋混凝土柱,根据上部荷载计算,每根柱下有4根350mm×350 mm方桩,桩长30 m(用2根长15 m方桩用焊接方法接桩),桩顶距自然地坪5 m,采用柴油打桩机打桩,计算桩基础工程量。
砌筑工程1.计算下图所示垫层和砖基础工程量。
2.求图所示的墙体工程量。
3.求图所示的墙体工程量4.某单层建筑物平面如图所示,层高3.6m,净高3.48m,计算高度3.48m,门窗及内外墙体、埋件体积分别见表1、表2。
《建筑面积计算》例题精选成都市工业职业技术学校土木系刘嘉【例1】【例2】例:计算下图单层建筑的建筑面积例:计算下图的建筑面积(墙厚均为240mm。
)解底层建筑面积:(++)×(++)= (㎡)【例3】例:建筑物如图所示试计算:(1)当H=时,建筑物的建筑面积。
(2)当H=时,建筑物的建筑面积。
【例5】S = 地下室建筑面积+出入口建筑面积地下室建筑面积:=(+)×(+)=(㎡)出入口建筑面积:=+ ×+×=(㎡)例:某建筑物座落在坡地上,设计为深基础,并加以利用,计算其建筑面积,如图所示。
【例6】【例7】例:计算下图所示回廊的建筑面积。
×2×3+×1×2=+ = (㎡)例:如图所示,计算有顶盖和围护结构架空走廊的建筑面积。
解架空走廊建筑面积为:6×=(㎡)【例8】例:计算下图立体车库的建筑面积(墙厚240㎜)底层建筑面积=14×(×3+)=(㎡)结构层建筑面积=(×3+ )××2×4=(㎡)总建筑面积=+318=(㎡)【例9】例:计算下图剧院的建筑面积。
【例10】剧院建筑面积=(100+)×(50+)=(㎡) 舞台灯光控制室建筑面积 =1/2× × ×4=(㎡) 总建筑面积=+=(㎡)例:计算下图所示建筑物门斗的建筑面积。
【例12】例:如图所示,计算突出屋面有围护结构的电梯间、楼梯间(层高在及以上)的建筑面积。
例:下图建筑物为电梯公寓,±以上有12层,地下室两层,电梯井尺寸如下(含壁厚)计算下图电梯井的建筑面积。
【例14】例:计算下图建筑物入口处无柱雨棚的建筑面积。
例:下图为四层建筑物,室外楼梯有永久性顶盖,计算室外楼梯的建筑面积。
【例16】例:计算下图所示建筑物各种阳台的建筑面积例:计算下图所示建筑物各种阳台的建筑面积。
1、建筑面积是指建筑物的水平平面面积,即(A)各层水平投影面积的总和。
A外墙勒脚以上B外墙勒脚以下C窗洞口处D接近地面处2、建筑面积包括(B ).A使用面积、有效面积和结构面积。
B使用面积、辅助面积和结构面积。
C使用面积、辅助面积和居住面积。
D有效面积、辅助面积和结构面积。
3、某厂房外墙勒脚外围水平面积1521 m2 ,勒脚以上外围水平面积1519 m2 ,内设有二层办公楼,层高2 m,每层外墙外围水平面积300 m2 ,总建筑面积为(C)。
A 1521m2B 1669m2C 1819m2 C 2119m24、一幢六层住宅,勒脚以上结构的外围水平面积,每层为448.38 m2,六层有围护结构的挑阳台的水平投影面积之和为108 m2,则该工程的建筑面积为( C )。
A 556.38m2B 502.38m2C 2744.28m2D 2798.28m25、单层建筑物的建筑面积,应按其外墙勒脚以上(A )计算。
A结构外围面积B建筑外围面积C结构净面积D建筑净面积6、关于多层建筑物的建筑面积,下列说法正确的是(D)。
A、多层建筑物的建筑面积=其首层建筑面积×层数B、同一建筑物不论结构如何,按其层数的不同应分别计算建筑面积C、外墙设有保温层时,计算至保温层内表面D、首层建筑面积按外墙勒脚以上结构外围水平面积计算7、建筑物顶部有围护结构的楼梯间、水箱间、电梯机房等,层高不足2.2米者应计算(B)。
A、全部面积B、1/2面积C、不计算面积D、3/4面积8、某建筑物为23层,电梯间围护结构外围长2m,宽2m,电梯间出屋面高2m,则该电梯间的建筑面积为(B)。
A、4m²B、94m²C、96m²D、88m²9、屋顶有围护结构、外径2.2m、高2m的圆形水箱,其建筑面积( A )。
A.1.9 m2B、3.80m2C、4.20m2D、8.40m210、建筑物外有围护结构层高2.2m的挑廊、檐廊按( C )计算建筑面积。
《建筑面积计算》例题精选成都市工业职业技术学校土木系刘嘉【例1】例: 计算下图单层建筑的建筑面积解建筑面积: S=45.24×15.24= 689.46 ( ㎡)【例2】例: 计算下图的建筑面积(墙厚均为240mm。
)解【例5】S = 地下室建筑面积+出入口建筑面积地下室建筑面积:=( 12.30+0.24) ×( 10.00+0.24) =128.41(㎡) 出入口建筑面积:=(2.1+0.24) × 0.68+6.00 × 2.00 =13.59(㎡)解例: 某建筑物座落在坡地上, 设计为深基础, 并加以利用, 计算其建筑面积, 如图所示。
S =( 6.00+0.40) ×( 5.50+解架空层【例6】【例7】例: 计算下图所示回廊的建筑面积。
回廊建筑面积:(27-0.24)×2×3+(15-0.246)×1×2=160.56+17.56 =178.08 ( ㎡)解例: 如图所示, 计算有顶盖和围护结构架空走廊的建筑面积。
解架空走廊建筑面积为: 6×1.5=9.0( ㎡)【例8】例:计算下图立体车库的建筑面积( 墙厚240㎜)解底层建筑面积=14×( 2.57×3+0.24) =111.3(㎡)结构层建筑面积=( 2.57×3+0.24 ) ×5.0×2×4=318.0( ㎡)总建筑面积=111.3+318=429.30( ㎡)【例9】例: 计算下图剧院的建筑面积。
【例10】剧院建筑面积=( 100+0.24) ×( 50+0.24) =5036.06(㎡) 舞台灯光控制室建筑面积=1/2× 3.14×1.242 ×4=9.66( ㎡) 总建筑面积=5036.06+9.66=5045.72( ㎡)解门斗建筑面积: S=3.5×例: 计算下图所示建筑物门斗的建筑面积。
《建筑面积计算》例题精选
成都市工业职业技术学校土木系刘嘉【例1】
【例2】# 例:计算下图单层建筑的建筑面积
解建筑面积:S=×= (㎡)
例:计算下图的建筑面积(墙厚均为240mm。
)
解
【例5】
S = 地下室建筑面积+出入口建筑面积
地下室建筑面积: =(+)×(+)=(㎡)
—
出入口建筑面积:
=+ × + × =(㎡)
例:某建筑物座落在坡地上,设计为深基础,并加以利用,
计算其建筑面积,如图所示。
S =(+) ×(+)
"
=(㎡)
解
架空层
建筑面积
【例6】
—
例:计算下图所示回廊的建筑面积。
解
×2×3+×1×2
=+
= (㎡)
【例7】
例:如图所示,计算有顶盖和围护结构架空走廊的建筑面积。
解—
架空走廊建筑面积为:6×=(㎡)
【例8】
例:计算下图立体车库的建筑面积(墙厚240㎜)
解
底层建筑面积=14×(×3+)=(㎡)
结构层建筑面积=(×3+ )××2×4=(㎡)
总建筑面积=+318=(㎡)
【例9】
【例
10】
例:计算下图剧院的建筑面积。
(
剧院建筑面积=(100+)×(50+)
=(㎡) 舞台灯光控制室建筑面积 =1/2× × ×4=(㎡) 总建筑面积=+=(㎡)
解
【例11】
门斗建筑面积: S=×=(㎡)
例:计算下图所示建筑物门斗的建筑面积。
#
解
【例12】
\
【例13】
例:如图所示,计算突出屋面有围护结构的电梯间、楼梯间
(层高在及以上)的建筑面积。
楼梯间(电梯间)建筑面积为:
S=+×+=㎡
解
例:下图建筑物为电梯公寓,±以上有12层,地下室两层,电梯井尺寸
如下(含壁厚)计算下图电梯井的建筑面积。
解
电梯井的建筑面积:S=××14=(㎡)
(自然层为14层,地上12层,地下2层)
【例14】
【例15】
例:计算下图建筑物入口处无柱雨棚的建筑面积。
解
雨篷建筑面积:S =1/2××4×=(㎡)
(该雨篷挑出外墙>,应计算面积)
例:下图为四层建筑物,室外楼梯有永久性顶盖,
计算室外楼梯的建筑面积。
解
【
室外楼梯建筑面积: (注:室外楼梯按三层计算)
S = 1/2× (2+2) ×(+2)×(4-1)
【例16】
~
;
例:计算下图所示建筑物各种阳台的建筑面积 解 阳台的建筑面积(凹阳台面积+挑阳台面积) S=1/2× × + 1/2+×= (㎡) 例:计算下图所示建筑物各种阳台的建筑面积。
挑阳台=1/2×1)=(㎡)
凹阳台=1/2×=(㎡)
半凸半凹阳台=1/2×+3×1)=(㎡) 解 阳台总建筑面积: S=++ =(㎡)
【例19】
)
例:计算下图所示自行车车棚的建筑面积。
顶盖水平投影尺寸 长度=6×3+ (+ )×2= (m ) 宽度=+ (+ )×2= (m ) 解 自行车车棚建筑面积 S=1/2×× =(㎡)
例:计算下图所示有维护性幕墙建筑物的建筑面积。
建筑面积:(按幕墙外边线尺寸计取)
S=×=(㎡)
解
【例21】 解 建筑面积:S=(3+×2)+(+×2)=(㎡) 例:下图所示建筑物外墙有保温隔热层,计算其建筑面积
例:下图所示为2层有变形缝的建筑物,计算其建筑面积。
解 =(㎡) 注:建筑物外变形缝不计算面积
建筑面积:S = (×15)+(×)+(×4) ×2。