建筑面积计算例题精选
- 格式:doc
- 大小:1.03 MB
- 文档页数:13
雨棚的建筑面积计算例题
在建筑设计和施工中,计算建筑面积是非常重要的一项工作。
而对于具有雨棚
的建筑物,计算建筑面积也有其特殊之处。
下面我们以一个实际的例题来详细说明如何计算雨棚的建筑面积。
问题描述
某建筑物的入口处设有一个长方形的雨棚,其长为6米,宽为3米。
该雨棚的高度为2米。
现需要计算该雨棚的建筑面积,包括地面上雨棚的面积和雨棚侧面
的面积。
地面上雨棚的面积计算
地面上雨棚的面积可以直接通过长方形的面积公式计算得出,即面积 = 长 × 宽。
根据题目中所给的数据,地面上雨棚的面积为:
面积 = 6m × 3m = 18平方米
雨棚侧面的面积计算
雨棚侧面的面积可以看作一个长方体的侧面积,即周长乘以高度。
根据所给数据,雨棚侧面的面积为:
面积 = (周长 + 长)× 高 = (2m + 3m)× 2m = 10平方米
总结
因此,雨棚的建筑面积等于地面上雨棚的面积加上雨棚侧面的面积,即:
总面积 = 18平方米 + 10平方米 = 28平方米
通过以上计算,我们得出该建筑物雨棚的建筑面积为28平方米。
在实际工程中,对于不同形状和结构的雨棚,可以根据类似的方法进行面积计算,确保设计和施工准确无误。
以上是关于雨棚的建筑面积计算的详细步骤和例题分析,希望能对您有所帮助。
《建筑面积计算》例题精选【例1】例:计算下图单层建筑的建筑面积【例2】例:计算下图的建筑面积(墙厚均为240mm 。
)| 制面成都市工业职业技术学校土木系刘嘉解建筑面积: S = 45.24 X 15.24二689.46(楼隔层建筑面积:(4.0+0.24 )X( 3.30+0.24 ) =15.01( m2)全部建筑面积:69.30+15.01=78.91 (tf)【例3】例:建筑物如图所示试计算:(1 )当H = 3.0m时,建筑物的建筑面积。
A-A当H=3.0m 时S =(3.6 X6+7.2+0.24) X(5.4 X2+2.4+0.24) X5=1951.49 (怦)分析:多层建筑物,当层高在 2.20m及其以上者,应计算全面积S = (3.6 X6+7.2+0.24 : X( 5.4 X2+2.4+0.24 ) X4 当H=2.0m 时+ 1/2 (3.6 X6+7.2+0.24 )X(5.4 X 2+0.24)=1756.39 (m2)分析:多层建筑物,当层高不足 2.20m时,应计算一半面积【例4】例:计算下图地下室建筑面积,层高2.4m,出入口处有永解S =地下室建筑面积+出入口建筑面积地下室建筑面积:=(12.30+0.24 )X( 10.00+0.24 )= 128.41( m2)出入口建筑面积:=(2.1+0.24) X 0.68 + 6.00 X 2.00 = 13.59( m )【例5】例:某建筑物座落在坡地上,设计为深基础,并加以利用,计算其建筑面积,如图所示。
S = ( 6.00 + 0.40 ) X( 5.50 + 0.40 )=37.76( m)【例6】(27-0.24) X 2 X 3+(15-0.246) X 1 X 2= 160.56+17.56 = 178.08 (mJ架空走廊建筑面积为:6 X 1.5=9.0 (m )例:计算下图所示回廊的建筑面积。
1、已知某单层房屋平面和剖面图(见图1),计算该房屋建筑面积。
单层房屋平面及剖面示意图
2、已知某单层房屋平面和剖面图(见图2),计算该房屋建筑面积。
单层房屋平面及剖面示意图
3、如图所示,计算某地下室的建筑面积。
解:地下室、半地下室(车间、仓库、商店、车站、车库等),包括相应的有永久性顶盖的出入口,应按其上口外墙(不包括采光井、防潮层及其保护墙)外边线外围水平面积计算。
4、计算突出屋面有维护结构的电梯间、楼梯间的建筑面积。
5、分别计算三种封闭阳台的建筑面积。
挑阳台凹阳台半挑半凹阳台
6、计算各跨的建筑面积。
高低连跨单层建筑物平面和里面示意图
7、某高低连跨单层厂房剖面图如图所示,该厂房总长为60350mm,柱断面尺寸240mm ×240mm,纵墙厚350mm,横墙厚175mm,试计算该厂房的建筑面积。
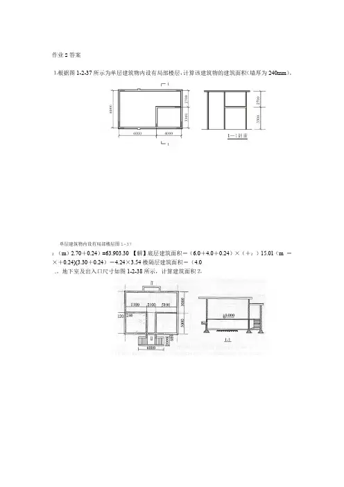
作业2答案⒈根据图1-2-37所示为单层建筑物内设有局部楼层,计算该建筑物的建筑面积(墙厚为240mm)。
图1-37 单层建筑物内设有局部楼层【解】底层建筑面积=(6。
0+4.0+0.24)×(3.30+2。
70+0。
24)=63。
90(m2) 楼隔层建筑面积=(4。
0+0.24)×(3。
30+0。
24)=4.24×3.54=15.01(m2)⒉地下室及出入口尺寸如图1-2—38所示,计算建筑面积。
图1-38 地下室及出入口【解】:地下室S1=(5。
1*2+2。
1+0.12*2)*(5*2+0。
12+2)=128.41m2出入口S2=6*2+0.68*(2。
1+0。
12*2)=13.59m2总建筑面积S=S1+S2=128。
41+13。
59=142 m2⒊图1—2-39为舞台灯光控制室,计算其建筑面积。
.图1-39 舞台灯光控制室【解】:单层悬挑式舞台灯光控制室S=3。
14*22/2=6。
28m2⒋某二层民用住宅如图1-2-40所示,雨篷水平投影面积为3300mm×1500mm,计算其建筑面积。
图1-40二层民用住宅【解】S=[(3+4。
5+3)×6+4.5×(1.2+0。
6)+0.8×0.8]×2+3。
3×1.5÷2(雨蓬)+3×1。
2×1.5(阳台)=151.36㎡⒌某四层办公楼(图1-2-41),墙厚均为240 m m;底层为有柱走廊,楼层设有无围护图1-41办公楼结构的挑廊,顶层设有永久性的顶盖。
计算该办公楼的建筑面积。
【解】该办公楼的走廊、挑廊未封闭,按结构底板水平面积的1/2计算建筑面积。
办公楼建筑面积S=(38。
5+0.24)×(8+0.24)×4-4×1/2×1。
8×(3.5×9-0。
24)=1164.33(m2)6.计算图示建筑物的建筑面积。
教学案例及习题建筑面积案例1.计算图示某单层房屋的建筑面积。
2.如图所示,求其建筑面积。
3.求图所示单层工业厂房高跨部分及低跨部分的建筑面积。
4.如图所示,计算高低联跨的单层建筑物的建筑面积。
5.某6层砖混结构住宅楼,2~6层建筑平面图均相同,如图所示。
阳台为不封闭阳台,首层无阳台,其他均与二层相同。
计算其建筑面积。
6.求图所示建筑物的建筑面积。
7.求图示深基础做地下架空层的建筑面积。
8.求图示建筑物的建筑面积。
土石方工程1.根据下图,计算人工平整场地工程量。
2.某地槽开挖如下图所示,不放坡,不设工作面,三类土。
试计算其工程量。
3.某工程基础如图所示,现场土质为一般土,室外设计地坪标高为-0.3m,不考虑排水沟和排水井,要求按图计算:1)人工挖地槽工程量。
2)若图中垫层上皮标高改为 1.7m,试计算人工挖地槽工程量(含清单和定额)。
3)计算槽底钎探工程量。
4)计算挖地槽回填土工程,已知混凝土基础工程量为23.61m³,砖基础工程量为17.67m³。
5)已知地面面层厚20mm,垫层厚60mm,计算室内回填土工程量;6)计算余土外运工程量。
4.某独立基础如下图所示,现场土质为一般土,室外设计地坪标高为-0.3m,垫层上皮标高为-1.8m,试计算人工挖土方工程量并计价。
5.某建筑物的基础如下图所示,三类土,计算(1)人工挖地槽工程量(2)砖基础工程量。
6.计算下图挖地槽工程量(土质为一般土)桩基础工程1.某工程用打桩机,打如图4-1所示钢筋混凝土预制方桩,共50根,求其工程量。
2.某工程有30根钢筋混凝土柱,根据上部荷载计算,每根柱下有4根350mm×350 mm方桩,桩长30 m(用2根长15 m方桩用焊接方法接桩),桩顶距自然地坪5 m,采用柴油打桩机打桩,计算桩基础工程量。
砌筑工程1.计算下图所示垫层和砖基础工程量。
2.求图所示的墙体工程量。
3.求图所示的墙体工程量4.某单层建筑物平面如图所示,层高3.6m,净高3.48m,计算高度3.48m,门窗及内外墙体、埋件体积分别见表1、表2。
1、计算图示工程各层建筑面积及总建筑面积(工程为地下一层地上三层,地下层至二层层高分别为3.0m、3.9m、3.2m;屋顶如图示为坡屋面,顶层即三层净高最低处为1.44m,净高2.1m线如图“三层平面图”所示。
外墙除标注外厚240mm)。
1、解地下层面积=底层面积=二层面积=三层面积=建筑面积=1、解(各层面积距答案±1m2以内,总面积±3m2以内,可得满分。
计算过程无法统一,可酌情给分但不应超过50%)地下层面积=10.84*12.24+(2.6+3.9)*0.65*0.5-1.2*3.6=130.47m2(考点地下层建筑面积计算规则变化)(5分)底层面积=10.84*12.24+(2.6+3.9)*0.65*0.5-1.2*3.6+(6*1.68+1.2*4.58+0.3*0.98)*0.5=138.41 m2(考点雨篷建筑面积计算规则变化) (4分)二层面积=10.84*12.24+(2.6+3.9)*0.65*0.5-1.2*3.6-1.8*3.6*0.5=127.23 m2(考点阳台建筑面积计算规则变化以及露台面积规则) (5分)三层面积=0.5*(10.84*12.24+(2.6+3.9)*0.65*0.5-1.2*3.6-1.8*3.6-10.04*8.54-3.5*1.8-3.5*1.2+(1.795+3.106)*0.5 *0.646)+10.04*8.54-3.5*1.8-3.5*1.2+(1.795+3.106)*0.5*0.646=91.49 m2 (考点阁楼建筑面积计算规则变化以及露台面积规则) (5分)建筑面积= 地下层面积+底层面积+二层面积+三层面积=487.61m2 (考点阁楼建筑面积计算规则变化以及露台面积规则) (5分)典型题型:图.量.价综合单价=人+材+机+管+利+风综合单价=方案费用/清单量=(方案量×方案单价)/清单量单位工程费用=分部分项工程费用+措施费+其他费用+规费+税金分部分项工程费用=Σ(分部分项工程量×综合单价)措施费用=通用措施费(内容)+专业措施费(内容)=Σ(部分措施费工程量×综合单价)+Σ以“项”计价的措施费其他项目费=暂列金额(报价时按清单考虑,结算时按实际发生的费用结算)+材料暂估价(报价计入具体工程材料费,结算时按实际材料的费用结算)+专业工程暂估价(报价时按清单考虑,结算时按实际发生的费用结算)+总承包服务费(按合同条款约定计)+计日工(按清单给出的量计价)案例一(识图、算量、编清单、综合单价)某工程柱下独立基础见图3-18,共18个。
作业2答案⒈根据图1-2-37所示为单层建筑物内设有局部楼层,计算该建筑物的建筑面积(墙厚为240mm)。
单层建筑物内设有局部楼层图1-372(m)2.70+0.24)=63.903.30 【解】底层建筑面积=(6.0+4.0+0.24)×(+2)15.01(m =×+0.24)(3.30+0.24)=4.24×3.54楼隔层建筑面积=(4.0.。
地下室及出入口尺寸如图1-2-38所示,计算建筑面积⒉地下室及出入口1-38 图2 =(5.1*2+2.1+0.12*2)*(5*2+0.12+2)=128.41m【解】:地下室S12 S=6*2+0.68*(2.1+0.12*2)=13.59m 出入口22 =128.41+13.59=142 m+SS=S 总建筑面积211⒊图1-2-39为舞台灯光控制室,计算其建筑面积.。
舞台灯光控制室图1-39 2单层悬挑式舞台灯光控制室S=3.14*22/2=6.28m【解】:,计1500mm3300mm1-2-40所示,雨篷水平投影面积为×⒋某二层民用住宅如图算其建筑面积。
二层民用住宅图1-40【解】(阳台)1.2×1.5×(雨蓬)÷×××××S=[(3+4.5+3)6+4.5(1.2+0.6)+0.80.8]2+3.31.52+3 ㎡=151.362楼层设有无围;底层为有柱走廊,1-2-41(图),墙厚均为240 m m⒌某四层办公楼1-41办公楼图护结构的挑廊,顶层设有永久性的顶盖。
计算该办公楼的建筑面积。
计算建筑面积。
挑廊未封闭,【解】该办公楼的走廊、按结构底板水平面积的1/20.24)9-(3.51/24)×(8+0.24)×-4××1.8××38.5+0.24S=办公楼建筑面积(2) =1164.33(m6.计算图示建筑物的建筑面积。
《建筑面积计算》例题精选成都市工业职业技术学校土木系刘嘉【例1】【例2】例:计算下图单层建筑的建筑面积例:计算下图的建筑面积(墙厚均为240mm。
)解底层建筑面积:(++)×(++)= (㎡)【例3】例:建筑物如图所示试计算:(1)当H=时,建筑物的建筑面积。
(2)当H=时,建筑物的建筑面积。
【例5】S = 地下室建筑面积+出入口建筑面积地下室建筑面积:=(+)×(+)=(㎡)出入口建筑面积:=+ ×+×=(㎡)例:某建筑物座落在坡地上,设计为深基础,并加以利用,计算其建筑面积,如图所示。
【例6】【例7】例:计算下图所示回廊的建筑面积。
×2×3+×1×2=+ = (㎡)例:如图所示,计算有顶盖和围护结构架空走廊的建筑面积。
解架空走廊建筑面积为:6×=(㎡)【例8】例:计算下图立体车库的建筑面积(墙厚240㎜)底层建筑面积=14×(×3+)=(㎡)结构层建筑面积=(×3+ )××2×4=(㎡)总建筑面积=+318=(㎡)【例9】例:计算下图剧院的建筑面积。
【例10】剧院建筑面积=(100+)×(50+)=(㎡) 舞台灯光控制室建筑面积 =1/2× × ×4=(㎡) 总建筑面积=+=(㎡)例:计算下图所示建筑物门斗的建筑面积。
【例12】例:如图所示,计算突出屋面有围护结构的电梯间、楼梯间(层高在及以上)的建筑面积。
例:下图建筑物为电梯公寓,±以上有12层,地下室两层,电梯井尺寸如下(含壁厚)计算下图电梯井的建筑面积。
【例14】例:计算下图建筑物入口处无柱雨棚的建筑面积。
例:下图为四层建筑物,室外楼梯有永久性顶盖,计算室外楼梯的建筑面积。
【例16】例:计算下图所示建筑物各种阳台的建筑面积例:计算下图所示建筑物各种阳台的建筑面积。
《建筑面积计算》例题精选成都市工业职业技术学校土木系刘嘉【例1】例: 计算下图单层建筑的建筑面积解建筑面积: S=45.24×15.24= 689.46 ( ㎡)【例2】例: 计算下图的建筑面积(墙厚均为240mm。
)解【例5】S = 地下室建筑面积+出入口建筑面积地下室建筑面积:=( 12.30+0.24) ×( 10.00+0.24) =128.41(㎡) 出入口建筑面积:=(2.1+0.24) × 0.68+6.00 × 2.00 =13.59(㎡)解例: 某建筑物座落在坡地上, 设计为深基础, 并加以利用, 计算其建筑面积, 如图所示。
S =( 6.00+0.40) ×( 5.50+解架空层【例6】【例7】例: 计算下图所示回廊的建筑面积。
回廊建筑面积:(27-0.24)×2×3+(15-0.246)×1×2=160.56+17.56 =178.08 ( ㎡)解例: 如图所示, 计算有顶盖和围护结构架空走廊的建筑面积。
解架空走廊建筑面积为: 6×1.5=9.0( ㎡)【例8】例:计算下图立体车库的建筑面积( 墙厚240㎜)解底层建筑面积=14×( 2.57×3+0.24) =111.3(㎡)结构层建筑面积=( 2.57×3+0.24 ) ×5.0×2×4=318.0( ㎡)总建筑面积=111.3+318=429.30( ㎡)【例9】例: 计算下图剧院的建筑面积。
【例10】剧院建筑面积=( 100+0.24) ×( 50+0.24) =5036.06(㎡) 舞台灯光控制室建筑面积=1/2× 3.14×1.242 ×4=9.66( ㎡) 总建筑面积=5036.06+9.66=5045.72( ㎡)解门斗建筑面积: S=3.5×例: 计算下图所示建筑物门斗的建筑面积。
作业2答案⒈根据图1-2-37所示为单层建筑物内设有局部楼层,计算该建筑物的建筑面积(墙厚为240mm)。
【解】底层建筑面积=(6.0+4.0+0.24)×(3.30+2.70+0.24)=63.90(m2)楼隔层建筑面积=(4.0+0.24)×(3.30+0.24)=4.24×3.54=15.01(m2)⒉地下室及出入口尺寸如图1-2-38所示,计算建筑面积.。
【解】:地下室S1=(5.1*2+2.1+0.12*2)*(5*2+0.12+2)=128.41m2出入口S2=6*2+0.68*(2.1+0.12*2)=13.59m2总建筑面积S=S1+S2=128.41+13.59=142 m2图1-37 单层建筑物内设有局部楼层图1-38 地下室及出入口⒊图1-2-39为舞台灯光控制室,计算其建筑面积.。
图1-39 舞台灯光控制室【解】:单层悬挑式舞台灯光控制室S=3.14*22/2=6.28m2⒋某二层民用住宅如图1-2-40所示,雨篷水平投影面积为3300mm×1500mm,计算其建筑面积。
图1-40二层民用住宅【解】S=[(3+4.5+3)×6+4.5×(1.2+0.6)+0.8×0.8]×2+3.3×1.5÷2(雨蓬)+3×1.2×1.5(阳台)=151.36㎡⒌某四层办公楼(图1-2-41),墙厚均为240 m m;底层为有柱走廊,楼层设有无围护结构的挑廊,顶层设有永久性的顶盖。
计算该办公楼的建筑面积。
【解】该办公楼的走廊、挑廊未封闭,按结构底板水平面积的1/2计算建筑面积。
办公楼建筑面积S=(38.5+0.24)×(8+0.24)×4-4×1/2×1.8×(3.5×9-0.24) =1164.33(m2)6.计算图示建筑物的建筑面积。
《建筑面积计算》例题精选成都市工业职业技术学校土木系刘嘉【例1】【例2】例:计算下图单层建筑的建筑面积解建筑面积:S=45.24×15.24= 689.46 (㎡)例:计算下图的建筑面积(墙厚均为240mm。
)解【例5】S = 地下室建筑面积+出入口建筑面积地下室建筑面积:=(12.30+0.24)×(10.00+0.24)=128.41(㎡) 出入口建筑面积:=(2.1+0.24) × 0.68+6.00 × 2.00 =13.59(㎡)解例:某建筑物座落在坡地上,设计为深基础,并加以利用,计算其建筑面积,如图所示。
S =(6.00+0.40) ×(5.50+0.40)=37.76(㎡)解架空层建筑面积【例6】【例7】【例8】例:计算下图所示回廊的建筑面积。
回廊建筑面积:(27-0.24)×2×3+(15-0.246)×1×2=160.56+17.56 =178.08 (㎡)解例:如图所示,计算有顶盖和围护结构架空走廊的建筑面积。
解架空走廊建筑面积为:6×1.5=9.0(㎡)例:计算下图立体车库的建筑面积(墙厚240㎜)解底层建筑面积=14×(2.57×3+0.24)=111.3(㎡)结构层建筑面积=(2.57×3+0.24 )×5.0×2×4=318.0(㎡)总建筑面积=111.3+318=429.30(㎡)【例9】例:计算下图剧院的建筑面积。
【例10】剧院建筑面积=(100+0.24)×(50+0.24)=5036.06(㎡) 舞台灯光控制室建筑面积=1/2× 3.14×1.242 ×4=9.66(㎡) 总建筑面积=5036.06+9.66=5045.72(㎡)解门斗建筑面积: S=3.5×2.5=8.75(㎡)例:计算下图所示建筑物门斗的建筑面积。
《建筑面积计算》例题精选
成都市工业职业技术学校土木系刘嘉【例1】
【例2】例:计算下图单层建筑的建筑面积
解建筑面积:S=×= (㎡)
例:计算下图的建筑面积(墙厚均为240mm。
)
解
【例5】
S = 地下室建筑面积+出入口建筑面积
地下室建筑面积: =(+)×(+)=(㎡) 出入口建筑面积: =+ × + × =(㎡)
例:某建筑物座落在坡地上,设计为深基础,并加以利用,
计算其建筑面积,如图所示。
S =(+) ×(+)
=(㎡)
解
架空层
建筑面积
【例6】
【例7】
例:计算下图所示回廊的建筑面积。
回廊建筑面积:
×2×3+×1×2
=+ = (㎡)
解
例:如图所示,计算有顶盖和围护结构架空走廊的建筑面积。
解
架空走廊建筑面积为:6×=(㎡)
【例8】
例:计算下图立体车库的建筑面积(墙厚240㎜)
解
底层建筑面积=14×(×3+)=(㎡)
结构层建筑面积=(×3+ )××2×4=(㎡)
总建筑面积=+318=(㎡)
【例9】例:计算下图剧院的建筑面积。
【例
10】
剧院建筑面积=(100+)×(50+)
=(㎡) 舞台灯光控制室建筑面积 =1/2× × ×4=(㎡) 总建筑面积=+=(㎡)
解
门斗建筑面积: S=×=(㎡)
例:计算下图所示建筑物门斗的建筑面积。
解
【例12】
例:如图所示,计算突出屋面有围护结构的电梯间、楼梯间
(层高在及以上)的建筑面积。
楼梯间(电梯间)建筑面积为:
S=+×+=㎡
解
例:下图建筑物为电梯公寓,±以上有12层,地下室两层,电梯井尺
寸如下(含壁厚)计算下图电梯井的建筑面积。
解
电梯井的建筑面积:S=××14=(㎡)
(自然层为14层,地上12层,地下2层)
【例14】
例:计算下图建筑物入口处无柱雨棚的建筑面积。
解
雨篷建筑面积:S =1/2××4×=(㎡)
(该雨篷挑出外墙>,应计算面积)
例:下图为四层建筑物,室外楼梯有永久性顶盖,
计算室外楼梯的建筑面积。
解
室外楼梯建筑面积: (注:室外楼梯按三层计算)
S = 1/2× (2+2) ×(+2)×(4-1)
【例16】
例:计算下图所示建筑物各种阳台的建筑面积
解
阳台的建筑面积(凹阳台面积+挑阳台面积)
S=1/2× × + 1/2+×= (㎡)
例:计算下图所示建筑物各种阳台的建筑面积。
挑阳台=1/2×1)=(㎡) 凹阳台=1/2×=(㎡) 半凸半凹阳台=1/2×+3×1)=(㎡)
解
阳台总建筑面积:
S=++ =(㎡)
【例17】
【例19】
例:计算下图所示自行车车棚的建筑面积。
顶盖水平投影尺寸
长度=6×3+ (+ )×2= (m )
宽度=+ (+ )×2= (m ) 解 自行车车棚建筑面积 S=1/2×× =(㎡)
【例20】
【例21】 例:计算下图所示有维护性幕墙建筑物的建筑面积。
建筑面积:(按幕墙外边线尺寸计取) S=×=(㎡) 解 解
建筑面积:S=(3+×2)+(+×2)=(㎡) 例:下图所示建筑物外墙有保温隔热层,计算其建筑面积
例:下图所示为2层有变形缝的建筑物,计算其建筑面积。
解
建筑面积:S = (×15)+(×)+(×4)×2
=(㎡)注:建筑物外变形缝不计算面积。