避雷针吊装及平面图
- 格式:docx
- 大小:44.62 KB
- 文档页数:4
避雷针安装示意图_避雷针制作方法避雷针的高度一般为400mm或500mm。
避雷针制作、安装 1.所有金属部件必须镀锌,操作时注意保护镀锌层。
2.采用镀锌钢管管制作针尖,管壁厚度不得小于3mm,针尖刷锡长度不得小于70mm 3.避雷针应垂直安装牢固。
垂直度允许偏差为3/1000。
4.焊接要求焊接应采用搭接焊,其搭接长度必须符合下列规定: 5.扁钢为其宽度的2倍(且至少3个棱边焊接)。
6.圆钢为其直径的6倍。
7.圆钢与扁钢连接时,其长度为圆钢直径的6倍。
8.避雷针一般采用圆钢或钢管制成,其直径不应小于下列数值:a独立避雷针一般采用直径为19mm镀锌圆钢。
b 屋面上的避雷针采用直径25mm镀锌钢管。
c水塔顶部避雷针采用直径25mm或40mm的镀锌钢管d烟囱顶上避雷针采用直径25mm镀锌圆钢或直径为40mm镀锌钢管e避雷环用直径12mm镀锌圆钢或截面为100mm2镀锌扁钢,其厚度应为4mm.避雷针制作与安装注意的质量问题:焊接处一不饱满,焊药处理不干净,漏刷防锈漆。
应及时予以补焊,将药皮敲掉,刷上防锈漆。
针体弯曲,安装的垂直度超出允许偏差。
应将针体重新调直,符合要求后再安装独立避雷针及其接地装置与道路或建筑物的出入口保护距离不符合规定。
其距离应大于3m,当小于3m时,应采取均压措施或铺设卵石或沥青地.注意:避雷针如果没接地将是个迎雷针,所以必须谨慎。
避雷针的作用没有一般人想像的那么好,建筑物是否遭雷击有很多因素,有无避雷针只是其中一种。
很多古代的建筑物建筑在山顶上,没有遭受雷击,反而是附近的山谷中容易雷击,这就是因为土壤电阻率不同。
山上砂石多,土壤电阻率大;山谷中多有河流,土壤中水分大,土壤电阻率小。
避雷针安装示意图、制作方法避雷针由接闪器、接地引下线和接地体 3部分组成。
接闪器通常采用直径为 15~20mm、长度为1~2m的圆钢或钢管,固定于支柱上端经接地引下线与接地体连接。
当雷云对地放电通道发展到临近地面时,由于避雷针尖端突出地面并有良好接地,在针尖附近的电场强度提高,聚积相反极性的电荷,引导放电。
进而防止建筑物或仪器蓄积过多电荷而遭受雷击。
一般来讲,雷电并不会直接击中避雷针。
避雷针制作、安装 :1.所有金属部件必须镀锌,操作时注意保护镀锌层。
2.采用镀锌钢管管制作针尖,管壁厚度不得小于3mm,针尖刷锡长度不得小于70mm3.避雷针应垂直安装牢固。
垂直度允许偏差为3/1000。
4.焊接要求焊接应采用搭接焊,其搭接长度必须符合下列规定: 5.扁钢为其宽度的2倍(且至少3个棱边焊接)。
6.圆钢为其直径的6倍。
7.圆钢与扁钢连接时,其长度为圆钢直径的6倍。
8.避雷针一般采用圆钢或钢管制成,其直径不应小于下列数值: a独立避雷针一般采用直径为19mm镀锌圆钢。
b屋面上的避雷针采用直径25mm镀锌钢管。
c水塔顶部避雷针采用直径25mm或40mm的镀锌钢管 d烟囱顶上避雷针采用直径25mm镀锌圆钢或直径为40mm镀锌钢管e避雷环用直径12mm镀锌圆钢或截面为100mm2镀锌扁钢,其厚度应为4mm.避雷针制作与安装注意的质量问题: 焊接处一不饱满,焊药处理不干净,漏刷防锈漆。
应及时予以补焊,将药皮敲掉,刷上防锈漆。
针体弯曲,安装的垂直度超出允许偏差。
应将针体重新调直,符合要求后再安装 独立避雷针及其接地装置与道路或建筑物的出入口保护距离不符合规定。
其距离应大于3m,当小于3m时,应采取均压措施或铺设卵石或沥青地. 注意: 避雷针如果没接地将是个迎雷针,所以必须谨慎。
避雷针的作用没有一般人想像的那么好,建筑物是否遭雷击有很多因素,有无避雷针只是其中一种。
很多古代的建筑物建筑在山顶上,没有遭受雷击,反而是附近的山谷中容易雷击,这就是因为土壤电阻率不同。
避雷针安装方法及要求
根据规范规定,在卫星通信天线背后1200角范围内,相距接收天线罩3米左右的地方安装防直接雷击避雷针,使室外天线处于直接雷防护区域内而更为安全。
(见避雷针安装示意图)
避雷针安装示意图
A、需提前在安装位置浇筑水泥基座,规格尺寸400mm×400mm×600mm(长X宽X高)并预埋地脚螺栓,或用膨胀螺丝。
B、安装避雷针,避雷针底座固定在预先设置的预制水泥基座,避雷针塔杆底座与水泥基座用地脚螺栓(或用膨胀螺丝)可靠联结。
C、避雷针接地线必须与接地棒可靠连接,接地线为黄绿相间色,截面积BVR25mm2多股铜导线
THANKS !!!
致力为企业和个人提供合同协议,策划案计划书,学习课件等等
打造全网一站式需求
欢迎您的下载,资料仅供参考。
1、吊装准备
a 轴线、标高复查与放线,复核根据土建提供的基础基准轴线和标高点,以此为基准确定安装基准线。
避雷针吊装前,对避雷针的外形尺寸、方位等等,进行全面复核。
确认符合设计图纸要求后,划出避雷针上下两端的安装中心线和钢柱下端标高线.
b 吊装前首先确定避雷针吊点位置为第四节处,用吊带捆绑避雷针,吊装时做好防护措施。
c 吊车站位后,应根据回转半径转杆、趴杆,检查是否抗杆。
d 设备吊装前,应掌握当地的天气预报,遇有大于五级的大风时,不得进行吊装作业。
2、正式吊装
a本工程吊装主要是独立避雷针吊装,现场根据设计要求组合完毕吊车直接吊装。
b另外,避雷针采用螺栓连接,对每两节之间的螺栓连接质量设立停检点,确保避雷针安装质量,螺栓连接完毕后进行自检、互检合格方可进行吊装,否则整改。
螺栓全部安装就位后,可以开始紧固。
紧固方法一般分两步进行,即初拧和终拧。
应将全部螺栓进行初拧,初拧扭矩应为标准轴力的60%~80%,具体还要根据材料厚度、螺栓间距等情况适当掌握。
本工程钢材是Q235B故根据螺栓拧紧力矩技术标准拧紧力矩为225.6N.m
初拧扭矩力度为人的臂力受到最大阻碍时为宜。
终拧时人的全身力气拧不动时为宜。
为了防止螺栓受外部环境的影响故一般初拧、终拧应该在同一时间内完成。
c吊车的选取:根据避雷针的自身重量40米高为3.55T、30米高为2.45T,以最
大重量选择吊车的型号满足现场吊装要求故选择25T吊车,25T吊车主臂加副臂的
高度能满足最大40米高度的要求。
3、现场参数
金堤变:(吊车支点按照方案实施,现场线路与吊车有冲突时根据现场调整位置)
1#避雷针安装时不受周围环境影响,吊车站在大门口处先把旧塔基拆除吊到门口
外围进行拆散。
吊车四角支撑点全部支撑在大门口处,现场能满足支撑要求。
2#避雷针安装时吊车的北边安全距离为5米不能带电施工。
吊车支设时四角支撑点
为南侧靠南墙、吊车北侧支撑在路边石北1米左右范围处。
3#避雷针安装时吊车的北边和东边安全距离为3米不能带电施工。
吊车支点全部支
撑在道路上。
卫一变:(吊车支点按照方案实施,现场线路与吊车由冲突时根据现场调整位置)
4#避雷针安装时吊车的西边安全距离为7米为了安全距离需要停电作业。
吊车支撑
在道路上满足要求。
4、现场协调
避雷针安装计划一天时间安装完毕,根据现场吊车与设备的距离特提出避雷针
基础施工完毕后,避雷针安装时施工单位提前一星期通知变电站相关负责人停电,
停电范围为整个站区以确保安装期间施工安全。
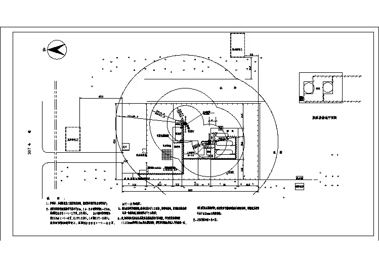
5、现场吊装平面图(吊车位置及支撑点根据现场参数确定)
设备区设备区办公用房40m 针30m 针40m 针
站区道路站区道路原有房子5m
吊车吊车
吊车1#避雷针3#避雷针2#避雷针8m
站区道路站区道路
30m 针4#避雷针吊车卫一变。