西门子模拟量输入输出模块235编程手册
- 格式:doc
- 大小:280.00 KB
- 文档页数:6
主题:S7-200模拟量EM235编程实例西门子S7-200模拟量编程本文以EM235为例讲解S7-200模拟量编程,主要包括以下内容:1、模拟量扩展模块接线图及模块设置2、模拟量扩展模块的寻址3、模拟量值和A/D转换值的转换4、编程实例模拟量扩展模块接线图及模块设置EM235是最常用的模拟量扩展模块,它实现了4路模拟量输入和1路模拟量输出功能。
下面以EM235为例讲解模拟量扩展模块接线图,如图1。
图1图1演示了模拟量扩展模块的接线方法,对于电压信号,按正、负极直接接入X +和X-;对于电流信号,将RX和X+短接后接入电流输入信号的“+”端;未连接传感器的通道要将X+和X-短接。
对于某一模块,只能将输入端同时设置为一种量程和格式,即相同的输入量程和分辨率。
(后面将详细介绍)EM235的常用技术参数:模拟量输入特性模拟量输入点数4输入范围电压(单极性)0~10V 0~5V 0~1V 0~500mV 0~100mV 0~50mV电压(双极性)±10V ±5V ±2.5V ±1V ±500mV ±250mV ±100mV ±50mV ±25mV电流0~20mA数据字格式双极性全量程范围-32000~+32000单极性全量程范围0~32000分辨率12位A/D转换器模拟量输出特性模拟量输出点数1信号范围电压输出 ±10V电流输出0~20mA数据字格式电压-32000~+32000电流0~32000分辨率电流电压12位电流11位下表说明如何用DIP开关设置EM235扩展模块,开关1到6可选择输入模拟量的单/双极性、增益和衰减。
EM235开关单/双极性选择增益选择衰减选择SW1 SW2 SW3 SW4 SW5 SW6ON 单极性OFF 双极性OFF OFF X1OFF ON X10ON OFF X100ON ON 无效ON OFF OFF 0.8OFF ON OFF 0.4OFF OFF ON 0.2由上表可知,DIP开关SW6决定模拟量输入的单双极性,当SW6为ON时,模拟量输入为单极性输入,SW6为OFF时,模拟量输入为双极性输入。
•EM 235 CN订货数据•EM 235 CN模拟量输入,输出和组合模块的技术规范•EM 235 CN端子连接图•EM 235 CN配置•EM 235 CN的校准和配置位置•EM 235 CN输入数据字格式•EM 235 CN的输入方框图•EM 235 CN输出数据字格式•EM 235 CN输出方框图EM 235 CN订货数据返回TOP EM 235 CN模拟量输入,输出和组合模块的技术规范返回TOP EM 235 CN端子连接图返回TOPEM 235 CN配置表A-13所示为如何用DIP开关设置EM 235 CN模块。
开关1到6可选择模拟量输入范围和分辨率。
所有的输入设置成相同的模拟量输入范围和格式。
表A-14所示为如何选择单/双极性(开关6)、增益(开关4和5)和衰减(开关1、2和3)。
下表中,ON为接通,OFF为断开。
表A-13 EM 235 CN选择模拟量输入范围和分辨率的开关表单极性满量程输入分辨率SW1SW2SW3SW4SW5SW6ON OFF OFF ON OFF ON 0到50mV 12.5μV OFF ON OFF ON OFF ON 0到100mV 25μVON OFF OFF OFF ON ON 0到500mV 125uAOFF ON OFF OFF ON ON 0到1V 250μVON OFF OFF OFF OFF ON 0到5V 1.25mVON OFF OFF OFF OFF ON 0到20mA 5μAOFF ON OFF OFF OFF ON 0到10V 2.5mV双极性满量程输入分辨率SW1SW2SW3SW4SW5SW6ON OFF OFF ON OFF OFF ±25mV 12.5μV OFF ON OFF ON OFF OFF ±50mV 25μVOFF OFF ON ON OFF OFF ±100mV 50μV ON OFF OFF OFF ON OFF ±250mV 125μV OFF ON OFF OFF ON OFF ±500 250μV OFF OFF ON OFF ON OFF ±1V 500μV ON OFF OFF OFF OFF OFF ±2.5V 1.25mV OFF ON OFF OFF OFF OFF ±5V 2.5mV OFF OFF ON OFF OFF OFF ±10V 5mV------表A-14 EM 235 CN选择单/双极性、增益和衰减的开关表EM 235 CN开关单/双极性选择增益选择衰减选择SW1SW2SW3SW4SW5SW6ON 单极性OFF 双极性OFF OFF X1OFF ON X10ON OFF X100ON ON 无效ON OFF OFF 0.8 OFF ON OFF 0.4 OFF OFF ON 0.2返回TOP EM 235 CN的校准和配置位置返回TOP EM 235 CN输入数据字格式图A-21 为CPU中模拟量输入字中12位数据值的存放位置。
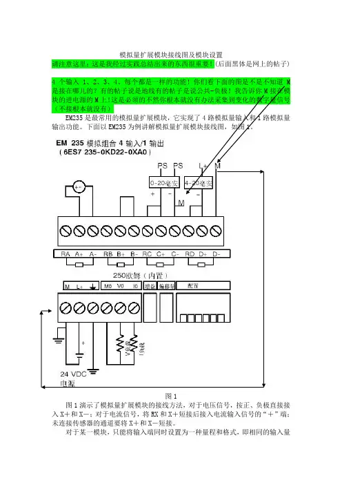
模拟量扩展模块接线图及模块设置请注意这里:这是我经过实践总结出来的东西很重要!(后面黑体是网上的帖子)4个输入1、2、3、4、每个都是一样的功能!你们看下面的图是不是不知道M 是接在哪儿的?有的帖子说是地线有的帖子是说公共-负极!我告诉你M接在模块的进电源的M上!这是必须的不然你根本就没有办法采集到变化的数字量信号(不接根本就没有)EM235是最常用的模拟量扩展模块,它实现了4路模拟量输入和1路模拟量输出功能。
下面以EM235为例讲解模拟量扩展模块接线图,如图1。
图1图1演示了模拟量扩展模块的接线方法,对于电压信号,按正、负极直接接入X+和X-;对于电流信号,将RX和X+短接后接入电流输入信号的“+”端;未连接传感器的通道要将X+和X-短接。
对于某一模块,只能将输入端同时设置为一种量程和格式,即相同的输入量程和分辨率。
(后面将详细介绍)量的单/双极性、增益和衰减。
时,模拟量输入为单极性输入,SW6为OFF时,模拟量输入为双极性输入。
SW4和SW5决定输入模拟量的增益选择,而SW1,SW2,SW3共同决定了模拟量的衰减选择。
6个DIP开关决定了所有的输入设置。
也就是说开关的设置应用于整个模块,开关设置也只有在重新上电后才能生效。
输入校准模拟量输入模块使用前应进行输入校准。
其实出厂前已经进行了输入校准,如果OFFSET和GAIN电位器已被重新调整,需要重新进行输入校准。
其步骤如下:A、切断模块电源,选择需要的输入范围。
B、接通CPU和模块电源,使模块稳定15分钟。
C、用一个变送器,一个电压源或一个电流源,将零值信号加到一个输入端。
D、读取适当的输入通道在CPU中的测量值。
E、调节OFFSET(偏置)电位计,直到读数为零,或所需要的数字数据值。
F、将一个满刻度值信号接到输入端子中的一个,读出送到CPU的值。
G、调节GAIN(增益)电位计,直到读数为32000或所需要的数字数据值。
H、必要时,重复偏置和增益校准过程。
西门子S7-200模拟量编程本文以EM235为例讲解S7-200模拟量编程,主要包括以下内容:1、模拟量扩展模块接线图及模块设置2、模拟量扩展模块的寻址3、模拟量值和A/D转换值的转换4、编程实例模拟量扩展模块接线图及模块设置EM235是最常用的模拟量扩展模块,它实现了4路模拟量输入和1路模拟量输出功能。
下面以EM235为例讲解模拟量扩展模块接线图,如图1。
图1图1演示了模拟量扩展模块的接线方法,对于电压信号,按正、负极直接接入X+和X-;对于电流信号,将RX和X+短接后接入电流输入信号的“+”端;未连接传感器的通道要将X+和X-短接。
对于某一模块,只能将输入端同时设置为一种量程和格式,即相同的输入量程和分辨率。
(后面将详细介绍)量的单/双极性、增益和衰减。
时,模拟量输入为单极性输入,SW6为OFF时,模拟量输入为双极性输入。
SW4和SW5决定输入模拟量的增益选择,而SW1,SW2,SW3共同决定了模拟量的衰减选择。
6个DIP开关决定了所有的输入设置。
也就是说开关的设置应用于整个模块,开关设置也只有在重新上电后才能生效。
输入校准模拟量输入模块使用前应进行输入校准。
其实出厂前已经进行了输入校准,如果OFFSET和GAIN电位器已被重新调整,需要重新进行输入校准。
其步骤如下:A、切断模块电源,选择需要的输入范围。
B、接通CPU和模块电源,使模块稳定15分钟。
C、用一个变送器,一个电压源或一个电流源,将零值信号加到一个输入端。
D、读取适当的输入通道在CPU中的测量值。
E、调节OFFSET(偏置)电位计,直到读数为零,或所需要的数字数据值。
F、将一个满刻度值信号接到输入端子中的一个,读出送到CPU的值。
G、调节GAIN(增益)电位计,直到读数为32000或所需要的数字数据值。
H、必要时,重复偏置和增益校准过程。
EM235输入数据字格式下图给出了12位数据值在CPU的模拟量输入字中的位置图2可见,模拟量到数字量转换器(ADC)的12位读数是左对齐的。
S7-200模拟量编程本文以EM235为例讲解S7-200模拟量编程,主要包括以下内容:1、模拟量扩展模块接线图及模块设置2、模拟量扩展模块的寻址3、模拟量值和A/D转换值的转换4、编程实例模拟量扩展模块接线图及模块设置EM235是最常用的模拟量扩展模块,它实现了4路模拟量输入和1路模拟量输出功能。
下面以EM235为例讲解模拟量扩展模块接线图,如图1。
图1图1演示了模拟量扩展模块的接线方法,对于电压信号,按正、负极直接接入X+和X-;对于电流信号,将RX和X+短接后接入电流输入信号的“+”端;未连接传感器的通道要将X+和X-短接。
对于某一模块,只能将输入端同时设置为一种量程和格式,即相同的输入量程和分辨率。
(后面将详细介绍)EM235的常用技术参数:模拟量输入特性模拟量输入点数4输入范围电压(单极性)0~10V0~5V0~1V0~500mV0~100mV0~50mV电压(双极性)±10V±5V±2.5V±1V±500mV±250mV±100mV±50mV±25mV电流0~20mA数据字格式双极性全量程范围-32000~+32000单极性全量程范围0~32000分辨率12位A/D转换器模拟量输出特性模拟量输出点数1信号范围电压输出±10V电流输出0~20mA数据字格式电压-32000~+32000电流0~32000分辨率电流电压12位电流11位下表说明如何用DIP开关设置EM235扩展模块,开关1到6可选择输入模拟量的单/双极性、增益和衰减。
时,模拟量输入为单极性输入,SW6为OFF时,模拟量输入为双极性输入。
SW4和SW5决定输入模拟量的增益选择,而SW1,SW2,SW3共同决定了模拟量的衰减选择。
6个DIP开关决定了所有的输入设置。
也就是说开关的设置应用于整个模块,开关设置也只有在重新上电后才能生效。
西门子S7-200模拟量编程韩耀旭本文以EM235为例讲解S7-200模拟量编程,主要包括以下内容:1、模拟量扩展模块接线图及模块设置2、模拟量扩展模块的寻址3、模拟量值和A/D转换值的转换4、编程实例模拟量扩展模块接线图及模块设置EM235是最常用的模拟量扩展模块,它实现了4路模拟量输入和1路模拟量输出功能。
下面以EM235为例讲解模拟量扩展模块接线图,如图1。
图1图1演示了模拟量扩展模块的接线方法,对于电压信号,按正、负极直接接入X+和X-;对于电流信号,将RX和X+短接后接入电流输入信号的“+”端;未连接传感器的通道要将X+和X-短接。
对于某一模块,只能将输入端同时设置为一种量程和格式,即相同的输入量程和分辨率。
(后面将详细介绍)EM235的常用技术参数:模拟量输入特性模拟量输入点数4输入范围电压(单极性)0~10V 0~5V 0~1V0~500mV 0~100mV 0~50mV电压(双极性)±10V ±5V ±2.5V±1V ±500mV ±250mV ±100mV±50mV ±25mV电流0~20mA数据字格式双极性全量程范围-32000~+32000单极性全量程范围0~32000分辨率12位A/D转换器模拟量输出特性模拟量输出点数1信号范围电压输出 ±10V电流输出0~20mA数据字格式电压-32000~+32000电流0~32000分辨率电流电压12位电流11位下表说明如何用DIP开关设置EM235扩展模块,开关1到6可选择输入模拟量的单/双极性、增益和衰减。
时,模拟量输入为单极性输入,SW6为OFF时,模拟量输入为双极性输入。
SW4和SW5决定输入模拟量的增益选择,而SW1,SW2,SW3共同决定了模拟量的衰减选择。
6个DIP开关决定了所有的输入设置。
也就是说开关的设置应用于整个模块,开关设置也只有在重新上电后才能生效。
主题:S7-200模拟量EM235编程实例西门子S7-200模拟量编程本文以EM235为例讲解S7-200模拟量编程,主要包括以下内容:1、模拟量扩展模块接线图及模块设置2、模拟量扩展模块的寻址3、模拟量值和A/D转换值的转换4、编程实例模拟量扩展模块接线图及模块设置EM235是最常用的模拟量扩展模块,它实现了4路模拟量输入和1路模拟量输出功能。
下面以EM235为例讲解模拟量扩展模块接线图,如图1。
图1图1演示了模拟量扩展模块的接线方法,对于电压信号,按正、负极直接接入X +和X-;对于电流信号,将RX和X+短接后接入电流输入信号的“+”端;未连接传感器的通道要将X+和X-短接。
对于某一模块,只能将输入端同时设置为一种量程和格式,即相同的输入量程和分辨率。
(后面将详细介绍)EM235的常用技术参数:模拟量输入特性模拟量输入点数 4输入范围电压(单极性)0~10V0~5V0~1V0~500mV0~100mV0~50mV?电压(双极性)±10V±5V±±1V±500mV±250mV±100mV±50mV±25mV电流0~20mA数据字格式双极性全量程范围-32000~+32000单极性全量程范围0~32000分辨率12位A/D转换器模拟量输出特性模拟量输出点数 1信号范围电压输出±10V电流输出0~20mA数据字格式电压-32000~+32000电流0~32000分辨率电流电压12位电流11位下表说明如何用DIP开关设置EM235扩展模块,开关1到6可选择输入模拟量的单/双极性、增益和衰减。
EM235开关单/双极性选择增益选择衰减选择SW1 SW2 SW3 SW4 SW5 SW6ON 单极性?OFF 双极性?OFF OFF X1 ?OFF ON X10 ?ON OFF X100 ?ON ON 无效?ON OFF OFFOFF ON OFFOFF OFF ON由上表可知,DIP开关SW6决定模拟量输入的单双极性,当SW6为ON时,模拟量输入为单极性输入,SW6为OFF时,模拟量输入为双极性输入。
S7-200模拟量编程本文以EM235为例讲解S7-200模拟量编程,主要包括以下内容:1、模拟量扩展模块接线图及模块设置2、模拟量扩展模块的寻址3、模拟量值和A/D转换值的转换4、编程实例模拟量扩展模块接线图及模块设置EM235是最常用的模拟量扩展模块,它实现了4路模拟量输入和1路模拟量输出功能。
下面以EM235为例讲解模拟量扩展模块接线图,如图1。
图1图1演示了模拟量扩展模块的接线方法,对于电压信号,按正、负极直接接入X+和X-;对于电流信号,将RX和X+短接后接入电流输入信号的“+”端;未连接传感器的通道要将X+和X-短接。
对于某一模块,只能将输入端同时设置为一种量程和格式,即相同的输入量程和分辨率。
(后面将详细介绍)EM235的常用技术参数:模拟量输入特性模拟量输入点数4输入范围电压(单极性)0~10V0~5V0~1V0~500mV0~100mV0~50mV电压(双极性)±10V±5V±2.5V±1V±500mV±250mV±100mV±50mV±25mV电流0~20mA数据字格式双极性全量程范围-32000~+32000单极性全量程范围0~32000分辨率12位A/D转换器模拟量输出特性模拟量输出点数1信号范围电压输出±10V电流输出0~20mA数据字格式电压-32000~+32000电流0~32000分辨率电流电压12位电流11位下表说明如何用DIP开关设置EM235扩展模块,开关1到6可选择输入模拟量的单/双极性、增益和衰减。
时,模拟量输入为单极性输入,SW6为OFF时,模拟量输入为双极性输入。
SW4和SW5决定输入模拟量的增益选择,而SW1,SW2,SW3共同决定了模拟量的衰减选择。
6个DIP开关决定了所有的输入设置。
也就是说开关的设置应用于整个模块,开关设置也只有在重新上电后才能生效。
模拟量扩展模块接线图及模块设置;请注意这里:这是我经过实践总结出来的东西很重要!;4个输入1、2、3、4、每个都是一样的功能!你们;EM235是最常用的模拟量扩展模块,它实现了4路;图1;图1演示了模拟量扩展模块的接线方法,对于电压信号;对于某一模块,只能将输入端同时设置为一种量程和格;程和分辨率;6个DIP开关决定了所有的输入设置;模拟量输入模块使用前应进模拟量扩展模块接线图及模块设置请注意这里:这是我经过实践总结出来的东西很重要!(后面黑体是网上的帖子)4个输入1、2、3、4、每个都是一样的功能!你们看下面的图是不是不知道M是接在哪儿的?有的帖子说是地线有的帖子是说公共-负极!我告诉你M块的进电源的M上!(不接根本就没有)EM235是最常用的模拟量扩展模块,它实现了4路模拟量输出功能。
下面以EM235图1图1演示了模拟量扩展模块的接线方法,对于电压信号,按正、负极直接接入X+和X-;对于电流信号,将RX和X+短接后接入电流输入信号的“+”端;未连接传感器的通道要将X+和X-短接。
对于某一模块,只能将输入端同时设置为一种量程和格式,即相同的输入量程和分辨率。
(后面将详细介绍)6个DIP开关决定了所有的输入设置。
也就是说开关的设置应用于整个模块,开关设置也只有在重新上电后才能生效。
输入校准模拟量输入模块使用前应进行输入校准。
其实出厂前已经进行了输入校准,如果OFFSET和GAIN电位器已被重新调整,需要重新进行输入校准。
其步骤如下: A、切断模块电源,选择需要的输入范围。
B、接通CPU和模块电源,使模块稳定15分钟。
C、用一个变送器,一个电压源或一个电流源,将零值信号加到一个输入端。
D、读取适当的输入通道在CPU中的测量值。
E、调节OFFSET(偏置)电位计,直到读数为零,或所需要的数字数据值。
F、将一个满刻度值信号接到输入端子中的一个,读出送到CPU的值。
G、调节GAIN(增益)电位计,直到读数为32000或所需要的数字数据值。
S7-200模拟量编程本文以EM235为例讲解S7-200模拟量编程,主要包括以下内容:1、模拟量扩展模块接线图及模块设置2、模拟量扩展模块的寻址3、模拟量值和A/D转换值的转换4、编程实例模拟量扩展模块接线图及模块设置EM235是最常用的模拟量扩展模块,它实现了4路模拟量输入和1路模拟量输出功能。
下面以EM235为例讲解模拟量扩展模块接线图,如图1。
图1图1演示了模拟量扩展模块的接线方法,对于电压信号,按正、负极直接接入X+和X-;对于电流信号,将RX和X+短接后接入电流输入信号的“+”端;未连接传感器的通道要将X+和X-短接。
对于某一模块,只能将输入端同时设置为一种量程和格式,即相同的输入量程和分辨率。
(后面将详细介绍)EM235的常用技术参数:模拟量输入特性模拟量输入点数4输入范围电压(单极性)0~10V0~5V0~1V0~500mV0~100mV0~50mV电压(双极性)±10V±5V±2.5V±1V±500mV±250mV±100mV±50mV±25mV电流0~20mA数据字格式双极性全量程范围-32000~+32000单极性全量程范围0~32000分辨率12位A/D转换器模拟量输出特性模拟量输出点数1信号范围电压输出±10V电流输出0~20mA数据字格式电压-32000~+32000电流0~32000分辨率电流电压12位电流11位下表说明如何用DIP开关设置EM235扩展模块,开关1到6可选择输入模拟量的单/双极性、增益和衰减。
时,模拟量输入为单极性输入,SW6为OFF时,模拟量输入为双极性输入。
SW4和SW5决定输入模拟量的增益选择,而SW1,SW2,SW3共同决定了模拟量的衰减选择。
6个DIP开关决定了所有的输入设置。
也就是说开关的设置应用于整个模块,开关设置也只有在重新上电后才能生效。
西门子S7-200模拟量编程本文以EM235为例讲解S7-200模拟量编程,主要包括以下内容:1、模拟量扩展模块接线图及模块设置2、模拟量扩展模块的寻址3、模拟量值和A/D转换值的转换4、编程实例模拟量扩展模块接线图及模块设置EM235是最常用的模拟量扩展模块,它实现了4路模拟量输入和1路模拟量输出功能。
下面以EM235为例讲解模拟量扩展模块接线图,如图1。
图1图1演示了模拟量扩展模块的接线方法,对于电压信号,按正、负极直接接入X+和X-;对于电流信号,将RX和X+短接后接入电流输入信号的“+”端;未连接传感器的通道要将X+和X-短接。
对于某一模块,只能将输入端同时设置为一种量程和格式,即相同的输入量程和分辨率。
(后面将详细介绍)EM235的常用技术参数:模拟量输入特性模拟量输入点数 4电压(单极性)0~10V 0~5V 0~1V 输入范围0~500mV 0~100mV 0~50mV电压(双极性)±10V ±5V ±2.5V ±1V ±500mV ±250mV ±100mV ±50mV ±25mV电流0~20mA数据字格式 双极性 全量程范围-32000~+32000单极性 全量程范围0~32000分辨率 12位A/D转换器模拟量输出特性模拟量输出点数 1信号范围 电压输出 ±10V电流输出0~20mA数据字格式 电压-32000~+32000电流0~32000分辨率电流 电压12位电流11位下表说明如何用DIP开关设置EM235扩展模块,开关1到6可选择输入模拟量的单/双极性、增益和衰减。
EM235开关单/双极性选择增益选择衰减选择SW1SW2SW3SW4SW5SW6ON 单极性OFF 双极性OFF OFF X1OFF ON X10ON OFF X100ON ON 无效ON OFF OFF 0.8OFF ON OFF 0.4OFF OFF ON 0.2 由上表可知,DIP开关SW6决定模拟量输入的单双极性,当SW6为ON时,模拟量输入为单极性输入,SW6为OFF时,模拟量输入为双极性输入。
西门子S7-200模拟量编程本文以EM235为例讲解S7-200模拟量编程,主要包括以下内容:1、模拟量扩展模块接线图及模块设置2、模拟量扩展模块的寻址3、模拟量值和A/D转换值的转换4、编程实例模拟量扩展模块接线图及模块设置EM235是最常用的模拟量扩展模块,它实现了4路模拟量输入和1路模拟量输出功能。
下面以EM235为例讲解模拟量扩展模块接线图,如图1。
EM 235槿拟组合4输入M输出(6ES7 235-0KD22-0XA0 )| RA A十2 RR R+ A HC 6 C- RD □+ D- |I m I I~I——□——I I r~i Ilu - 厶II備拠IO H!憎si倔林韵I “胡电源图1图1演示了模拟量扩展模块的接线方法,对于电压信号,按正、负极直接接入X+和X—;对于电流信号,将RX和X+短接后接入电流输入信号的“ + ”端;未连接传感器的通道要将X+和X-短接对于某一模块,只能将输入端同时设置为一种量程和格式,即相同的输入量程和分辨率。
(后面将详细介绍)EM235勺常用技术参数:下表说明如何用DIP开关设置EM235扩展模块,开关1到6可选择输入模拟量的单/双极性、增益和衰减。
由上表可知,DIP开关SW6决定模拟量输入的单双极性,当SW6为ON时, 模拟量输入为单极性输入,S W6^O F F时,模拟量输入为双极性输入。
SW4和SW5决定输入模拟量的增益选择,而SW1 SW2 SW洪同决定了模拟量的衰减选择。
根据上表6个DIP开关的功能进行排列组合,所有的输入设置如下表:6个DIP开关决定了所有的输入设置。
也就是说开关的设置应用于整个模块,开关设置也只有在重新上电后才能生效。
输入校准模拟量输入模块使用前应进行输入校准。
其实出厂前已经进行了输入校准,如果OFFSET和GAIN电位器已被重新调整,需要重新进行输入校准。
其步骤如下:A、切断模块电源,选择需要的输入范围。
B、接通CPU ffi模块电源,使模块稳定15分钟。
上面推导出的(2-1)、(2-2)、(2-3)三式就是对应(1)、(2)、(3)三种温度传感变送器经过模块转换成数字量后再换算为被测量的转换公式。
编程者依据正确的转换公式进行编程,就会获得满意的效果。
二、变送器与模块的连接通常输出4~20ma电流信号的传感变送器,对外输出只有+、- 二根连线,它需要外接24V电源电压才能工作,如将它的+、- 二根连线分别与24V 电源的正负极相连,在被测量正常变化范围内,此回路将产生4~20ma电流,见下左图。
下右图粉色虚线框内为EM235 模块第一路模拟输入的框图,它有3个输入端,其A+与A-为A/D转换器的+ - 输入端,RA与A-之间并接250Ω标准电阻。
A/D转换器是正逻辑电路,它的输入是0~5V电压信号,A-为公共端,与PLC的24V电源的负极相连。
那么24V电源、传感变送器、模块的输入口三者应如何连接才是正确的?正确的连线是这样的:将左图电源负极与传感器输出的负极连线断开,将电源的负极接模块的A-端,将传感器输出负极接RA端,RA端与A+端并接一起,这样由传感器负极输出的4~20ma电流由RA流入250Ω标准电阻产生0~5V 电压并加在A+与A-输入端。
切记:不可从左图的24V正极处断开,去接模块的信号输入端,如这样连接,模块是不会正常工作的。
对第(2)种电压输出的传感変送器,模块的输入应设置为0~5V电压模式,连线时,变送器输出只连A+、A-,RA端空悬即可。
三、按转换公式编程:根据转换后变量的精度要求,对转换公式编程有二种形式:1、整数运算,2、实数运算。
请见下面梯形图:(A)、整数运算的梯形图:该梯形图是对一个真空压力变送器(量程:0~0.1Mpa,输出:4~20 ma)按公式(2-1)以实数运算编写的转换程序,可作为一个子程序进行调用。
四、编程实例及解析某设备装有4种传感器:1、真空压力传感器,量程为:0~0.1Mpa;输出给PLC的信号为4~20ma。
西门子S7-200模拟量编程本文以EM235为例讲解S7-200模拟量编程,主要包括以下内容:1、模拟量扩展模块接线图及模块设置2、模拟量扩展模块的寻址3、模拟量值和A/D转换值的转换4、编程实例模拟量扩展模块接线图及模块设置EM235是最常用的模拟量扩展模块,它实现了4路模拟量输入和1路模拟量输出功能。
下面以EM235为例讲解模拟量扩展模块接线图,如图1。
图1图1演示了模拟量扩展模块的接线方法,对于电压信号,按正、负极直接接入X+和X-;对于电流信号,将RX和X+短接后接入电流输入信号的“+”端;未连接传感器的通道要将X+和X-短接。
对于某一模块,只能将输入端同时设置为一种量程和格式,即相同的输入量程和分辨率。
(后面将详细介绍)EM235的常用技术参数:模拟量输入特性模拟量输入点数 4输入范围电压(单极性)0~10V 0~5V 0~1V 0~500mV 0~100mV 0~50mV电压(双极性)±10V ±5V ±2.5V ±1V ±500mV ±250mV ±100mV ±50mV ±25mV电流0~20mA数据字格式双极性全量程范围-32000~+32000单极性全量程范围0~32000分辨率12位A/D转换器模拟量输出特性模拟量输出点数 1信号范围电压输出±10V电流输出0~20mA数据字格式电压-32000~+32000电流0~32000分辨率电流电压12位电流11位下表说明如何用DIP开关设置EM235扩展模块,开关1到6可选择输入模拟量的单/双极性、增益和衰减。
EM235开关单/双极性选择增益选择衰减选择SW1 SW2 SW3 SW4 SW5 SW6ON 单极性OFF 双极性OFF OFF X1OFF ON X10ON OFF X100ON ON 无效ON OFF OFF 0.8OFF ON OFF 0.4OFF OFF ON 0.2由上表可知,DIP开关SW6决定模拟量输入的单双极性,当SW6为ON时,模拟量输入为单极性输入,SW6为OFF时,模拟量输入为双极性输入。
西门子S7-200模拟量编程本文以EM235为例讲解S7-200模拟量编程,主要包括以下内容:1、模拟量扩展模块接线图及模块设置2、模拟量扩展模块的寻址3、模拟量值和A/D转换值的转换4、编程实例模拟量扩展模块接线图及模块设置EM235是最常用的模拟量扩展模块,它实现了4路模拟量输入和1路模拟量输出功能。
下面以EM235为例讲解模拟量扩展模块接线图,如图1。
EM 235槿拟组合4输入M输出(6ES7 235-0KD22-0XA0 )| RA A十2 RR R+ A HC 6 C- RD □+ D- |I m I I~I——□——I I r~i Ilu - 厶II備拠IO H!憎si倔林韵I “胡电源图1图1演示了模拟量扩展模块的接线方法,对于电压信号,按正、负极直接接入X+和X—;对于电流信号,将RX和X+短接后接入电流输入信号的“ + ”端;未连接传感器的通道要将X+和X-短接对于某一模块,只能将输入端同时设置为一种量程和格式,即相同的输入量程和分辨率。
(后面将详细介绍)EM235勺常用技术参数:下表说明如何用DIP开关设置EM235扩展模块,开关1到6可选择输入模拟量的单/双极性、增益和衰减。
由上表可知,DIP开关SW6决定模拟量输入的单双极性,当SW6为ON时, 模拟量输入为单极性输入,S W6^O F F时,模拟量输入为双极性输入。
SW4和SW5决定输入模拟量的增益选择,而SW1 SW2 SW洪同决定了模拟量的衰减选择。
根据上表6个DIP开关的功能进行排列组合,所有的输入设置如下表:6个DIP开关决定了所有的输入设置。
也就是说开关的设置应用于整个模块,开关设置也只有在重新上电后才能生效。
输入校准模拟量输入模块使用前应进行输入校准。
其实出厂前已经进行了输入校准,如果OFFSET和GAIN电位器已被重新调整,需要重新进行输入校准。
其步骤如下:A、切断模块电源,选择需要的输入范围。
B、接通CPU ffi模块电源,使模块稳定15分钟。
em235的输入接线和量程问题
em235的输入接线和量程问题
问题补充:
今天用到em235模块,其中三路是要用到模拟量4-20MA信号,但有一个仪器只输出0-10v信号,就用rb+和rb-直接接入电压正端和电压负端,结果好像测出的电压值是到达5v后就输出32000,现在我是想把电压取0-10v作为plc 对应的0-32000,但是不知道怎么弄。
西门子模拟输入只能接收一种信号吗比如只接收0-20ma或只接收0-5v信号或只接受0-10v等等,那这样的话我不是要在买个模块,好浪费钱啊,有什么别的解决办法吗?怎么让他识别0-10v信号又能识别4-20ma信号
最佳答案
em235可以同时使用0-5V和0-20mA,信号具有相同的DIP设置状态SW1SW2SW3SW4SW5SW6分别为ONOFFOFFOFFOFFON,但0-10V和0-20ma不行,只能DIP 设置为0-10V的,然后电流输入在输入端加500欧姆电阻就可以了。
本文以EM235为例讲解S7-200模拟量编程,主要包括以下内容:
1、模拟量扩展模块接线图及模块设置
2、模拟量扩展模块的寻址
3、模拟量值和A/D转换值的转换
4、编程实例
模拟量扩展模块接线图及模块设置
EM235是最常用的模拟量扩展模块,它实现了4路模拟量输入和1路模拟量输出功能。
下面以EM235为例讲解模拟量扩展模块接线图,如图1。
图1
图1演示了模拟量扩展模块的接线方法,对于电压信号,按正、负极直接接入X+和X-;对于电流信号,将RX和X+短接后接入电流输入信号的“+”端;未连接传感器的通道要将X+和X-短接。
对于某一模块,只能将输入端同时设置为一种量程和格式,即相同的输入量
程和分辨率。
(后面将详细介绍)
量的单/双极性、增益和衰减。
时,模拟量输入为单极性输入,SW6为OFF时,模拟量输入为双极性输入。
SW4和SW5决定输入模拟量的增益选择,而SW1,SW2,SW3共同决定了模拟量的衰减选择。
6个DIP开关决定了所有的输入设置。
也就是说开关的设置应用于整个模块,开关设置也只有在重新上电后才能生效。
输入校准
模拟量输入模块使用前应进行输入校准。
其实出厂前已经进行了输入校准,如果OFFSET和GAIN电位器已被重新调整,需要重新进行输入校准。
其步骤如下:
A、切断模块电源,选择需要的输入范围。
B、接通CPU和模块电源,使模块稳定15分钟。
C、用一个变送器,一个电压源或一个电流源,将零值信号加到一个输入端。
D、读取适当的输入通道在CPU中的测量值。
E、调节OFFSET(偏置)电位计,直到读数为零,或所需要的数字数据值。
F、将一个满刻度值信号接到输入端子中的一个,读出送到CPU的值。
G、调节GAIN(增益)电位计,直到读数为32000或所需要的数字数据值。
H、必要时,重复偏置和增益校准过程。
EM235输入数据字格式
下图给出了12位数据值在CPU的模拟量输入字中的位置
图2
可见,模拟量到数字量转换器(ADC)的12位读数是左对齐的。
最高有效位是符号位,0表示正值。
在单极性格式中,3个连续的0使得模拟量到数字量转换器(ADC)每变化1个单位,数据字则以8个单位变化。
在双极性格式中,4个连续的0使得模拟量到数字量转换器每变化1个单位,数据字则以16为单位变化。
EM235输出数据字格式
图3给出了12位数据值在CPU的模拟量输出字中的位置:
图3
数字量到模拟量转换器(DAC)的12位读数在其输出格式中是左端对齐的,最高有效位是符号位,0表示正值。
模拟量扩展模块的寻址
每个模拟量扩展模块,按扩展模块的先后顺序进行排序,其中,模拟量根据输入、输出不同分别排序。
模拟量的数据格式为一个字长,所以地址必须从偶数字节开始。
例如:AIW0,AIW2,AIW4……、AQW0,AQW2……。
每个模拟量扩展模块至少占两个通道,即使第一个模块只有一个输出AQW0,第二个模块模拟量输出地址也应从AQW4开始寻址,以此类推。
图4演示了CPU224后面依次排列一个4输入/4输出数字量模块,一个8输入数字量模块,一个4模拟输入/1模拟输出模块,一个8输出数字量模块,一个4模拟输入/1模拟输出模块的寻址情况,其中,灰色通道不能使用。
图4
模拟量值和A/D转换值的转换
假设模拟量的标准电信号是A0—Am(如:4—20mA),A/D转换后数值为D0—Dm(如:6400—32000),设模拟量的标准电信号是A,A/D转换后的相应数值为D,由于是线性关系,函数关系A=f(D)可以表示为数学方程:A=(D-D0)×(Am-A0)/(Dm-D0)+A0。
根据该方程式,可以方便地根据D值计算出A值。
将该方程式逆变换,得出函数关系D=f(A)可以表示为数学方程:
D=(A-A0)×(Dm-D0)/(Am-A0)+D0。
具体举一个实例,以S7-200和4—20mA为例,经A/D转换后,我们得到的数值是6400—32000,即A0=4,Am=20,D0=6400,Dm=32000,代入公式,得出:
A=(D-6400)×(20-4)/(32000-6400)+4
假设该模拟量与AIW0对应,则当AIW0的值为12800时,相应的模拟电信号是6400×16/25600+4=8mA。
又如,某温度传感器,-10—60℃与4—20mA相对应,以T表示温度值,AIW0为PLC模拟量采样值,则根据上式直接代入得出:
T=70×(AIW0-6400)/25600-10
可以用T 直接显示温度值。
模拟量值和A/D转换值的转换理解起来比较困难,该段多读几遍,结合所举例子,就会理解。
为了让您方便地理解,我们再举一个例子:
某压力变送器,当压力达到满量程5MPa时,压力变送器的输出电流是20mA,AIW0的数值是32000。
可见,每毫安对应的A/D值为32000/20,测得当压力为0.1MPa时,压力变送器的电流应为4mA,A/D值为(32000/20)×4=6400。
由此得出,AIW0的数值转换为实际压力值(单位为KPa)的计算公式为:
VW0的值=(AIW0的值-6400)(5000-100)/(32000-6400)+100(单位:KPa)
编程实例
您可以组建一个小的实例系统演示模拟量编程。
本实例的的CPU是CPU222,仅带一个模拟量扩展模块EM235,该模块的第一个通道连接一块带4—20mA变送输出的温度显示仪表,该仪表的量程设置为0—100度,即0度时输出4mA,100度时输出20mA。
温度显示仪表的铂电阻输入端接入一个220欧姆可调电位器,
简单编程如下:
温度显示值=(AIW0-6400)/256
编译并运行程序,观察程序状态,VW30即为显示的温度值,对照仪表显示值是否一致。