工 14M
2 0
35 50M
100M
物流中心平面图
10M
餐厅
Байду номын сангаас
厨房
自动化仓(63 物流中 ㎡) 心办
正一大自动化仓 库(二层 各84㎡)
卸
货
哲达 中德仓库
区
(二层各84㎡)
其
卸货区
6M
西 门
子
装机
大电机 YCT
SM改装区 (40㎡)
齿轮
20M
挤塑 机
大 货 架
大 货 防爆 架
西门子
西 门
无级
子
机
5.3M
其
维
围栏 国茂仓(41.5M*20M)
机座
机座
装
配
大电机
流 水
维修机
线
针齿壳
针齿壳
5.3M
空地未
喷
漆
整机成品
阁 楼
3.7M 围栏
20 40M
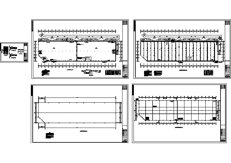
平面图和相关事项说明及要求: 1、阴影部分是公司的转租仓,备以后用;网格部分(办公室旁)不租.现准备用的1980平方,建议国茂装配加国茂仓合用830平方,配套仓和配星仓共用1150平方. 2、需加3台同轨吊机(横跨整个仓99*20M,整个仓可共用,中间一台装5TON,前后大门各一台装2TON); 3、需加二个侧门(宽*高:4*4.3M)和一个小门(宽*高:1.5*2M 从办公室通向仓库现场,仓库办公室与仓库之间需加一扇窗,能直接看到仓库内部的工作情况),原来的侧门太 小,需要改大至4*4.3M(宽*高),保证配套仓(国茂除外)有三个侧门,侧门要加斜坡,保证自动叉车能进出.备注:已有的门在图中为黑色,需要新增加的门为红色. 4、各门的尺寸.高*宽*长(前大门:4.3*5*18M 后大门:4.8*4.8*18M 侧门:4*4.3*5M) 5、空白地方为通道:主通道宽1.5M,大机区侧通道宽0.4M,货架区电机叉车通道宽2.6M.靠墙次通道宽0.5M。 6、住宿:共7人(国茂装机和国茂仓除外),共中5人有家室,建议公司提供单房。售后部住宿人员数量未能确定。 7、仓库办公室:共需3台电脑和5张电脑台,合计约需16平方,位置见上图总办公室的红色框处。 8、售后办公室:共需2台电脑和四张电脑台,合计约需15平方,位置见上图总办公室的玫瑰红框处。 9、图中每一空格的长和宽都是1。5米,各区的总面积计算方法:行数*列数*1.5*1.5。 10、饭堂建议在三楼搭一个铁皮房。