COL-2713-50支吊架安装记录
- 格式:doc
- 大小:77.50 KB
- 文档页数:3
管道支吊架安装工序管道支吊架安装工序是管道安装过程中非常重要的一步,它不仅关系到管道的稳定性和安全性,还关系到整个工程的质量和效果。
正确的安装工序可以确保管道支吊架的功能正常发挥,保证管道系统的正常运行。
下面将介绍管道支吊架安装的具体工序。
一、准备工作在进行管道支吊架安装之前,首先需要做好准备工作。
包括对工作场地的清理和整理,确认支吊架的数量和型号是否符合设计要求,核对支吊架的安装位置和方法。
此外,还需准备好所需的工具和设备,确保施工过程中能够顺利进行。
二、支吊架的安装位置确认在进行支吊架安装之前,需要在管道设计图纸上确认支吊架的安装位置。
根据设计要求,确定支吊架的间距和型号,并在管道上标出支吊架的位置。
在确认位置准确无误后,可以进行支吊架的安装。
三、支吊架的安装1. 连续支架的安装连续支架是最常用的一种支吊架,适用于直线管道。
安装时,首先根据设计要求确定支架的位置,然后使用螺栓将支架紧固在管道上。
在安装过程中要确保支架安装牢固、水平。
2. 单点吊架的安装单点吊架适用于管道需要在一定范围内进行伸缩的情况。
安装时,需要先确定吊架的位置,然后使用螺栓将吊架固定在天花板或梁上。
确保吊架安装稳固,能够承受管道的重量。
3. 弯头吊架的安装弯头吊架适用于弯曲管道的支撑,安装时需要根据弯头管道的弯曲角度和半径确定吊架的位置和形式。
使用螺栓将弯头吊架安装在墙壁或支架上,确保管道能够在弯曲处得到支撑。
四、支吊架的调整在安装完成后,需要对支吊架进行调整,确保其位置和水平度符合设计要求。
可以通过调整螺栓的松紧程度或调整吊架的高度来实现支吊架的调整。
调整完成后,需要再次检查支架的稳固性和正确性。
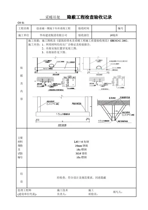
五、验收和记录支吊架安装完成后,需要进行验收。
检查支吊架的安装是否符合设计要求,确认支吊架的位置、数量和稳固度无误后,进行记录。
将支吊架的安装情况记录在施工日志中,以备日后查询和检验。
总结管道支吊架的安装工序是管道安装中不可或缺的一环,正确的安装工序可以保证管道系统的正常运行。
支吊架制作安装技术交底支吊架是建筑中常用的一种辅助结构,用于支撑和固定管道、电缆、风管等设备。
正确的支吊架制作和安装对于保证建筑物的结构安全和使用寿命具有重要作用。
以下是支吊架制作安装的技术交底。
一、制作支吊架的材料和工具准备1.材料:-支吊架规格型号适配的型钢和管材-适配规格的连接件和固定件-防腐涂料、防火材料等特殊需要的辅助材料2.工具:-钢尺、千分尺等测量工具-手锯、电锯等切割工具-手电钻、电动螺丝刀等固定工具-焊机、电焊钳等焊接工具-手套、安全帽、安全绳等个人防护设备二、支吊架制作的步骤1.根据设计图纸和横断面要求,测量和切割型钢和管材。
使用钢尺、千分尺等测量工具测量型钢和管材的准确尺寸,根据测量结果用手锯、电锯等切割工具进行切割。
2.进行支吊架的装配。
根据设计图纸和横断面要求,选择适配规格的连接件和固定件。
使用手电钻、电动螺丝刀等固定工具将型钢和管材连接件和固定件进行固定。
3.进行支吊架的焊接。
将支吊架的组件放置在焊接工作台上,按照设计要求使用焊机、电焊钳等焊接工具对连接件和固定件进行焊接。
4.进行支吊架的防腐处理。
根据设计要求,对支吊架进行防腐处理。
使用刷子、喷枪等工具将防腐涂料均匀涂刷在支吊架上,确保其表面光滑、平整。
5.进行支吊架的防火处理。
根据需要,对支吊架进行防火处理。
在支吊架的连接部位和周围使用防火材料进行填充和封闭,以增加其防火性能。
三、支吊架安装的步骤1.确定安装位置。
根据设计图纸和实际需要,确定支吊架的安装位置和数量。
2.进行支吊架的布置。
根据设计要求和安装位置,使用手电钻、电动螺丝刀等固定工具将支吊架固定在墙面或屋顶上。
3.进行支吊架与设备的连接。
使用适配的连接件和固定件将支吊架与管道、电缆、风管等设备进行连接,确保其牢固和稳定。
4.进行支吊架的调整和检查。
调整支吊架的高度和倾斜度,确保设备安装的水平和垂直度。
使用测量工具检查支吊架的尺寸和位置是否符合设计要求。
5.进行支吊架的验收。
管道支吊架安装施工工艺第一条、支吊架种类1.固定支架:固定支架用于管道上不允许有任何方向位移的支承点。
当管道在运行中产生热胀冷缩时,固定支架除了承重外,还必须具有防止管道在巨大应力作用下产生的过大变形,承受管道内压力的轴向反力、热胀冷缩的推力及活动支架的摩擦力等水平作用力,保证管道安全运行。
2.活动支架主要分为滑动支架、导向支架、滚动支架、吊架。
其中较为常用的为滑动支架和吊架。
(1)滑动支架滑动支架是能使管子与管座在支座上自由滑动的支架,除支承管道重量外,还要承受由于水平滑动而产生的较大摩擦力。
(2)吊架吊架是活动支架的一种,它不仅承受管子重量,还必须允许管道在热胀冷缩时,沿管子轴线移动。
3.弹簧支吊架弹簧支吊架用于管道有垂直位移的部位,或用于震动较大的系统及设备。
4.其他支架(1)普通卡具主要起承重作用,并防止管道受应力及外力位移。
(2)排管卡具分为双排管卡具和单排管卡具,应用于采暖系统的排管,在保证管道由于热胀冷缩轴向应力,并防止管道位移。
a 单排管卡具b 双排管卡具第二条、支吊架的选择与布置1.支吊架的选择支吊架的选择应满足管道的安全、经济运行,符合管道的热胀、冷缩、防振等特殊要求。
因此支吊架选择必须遵循下列基本原则:在管道上不允许有任何位移的地方,应设置固定支架。
如热的或冷的总管,当直线段较长时,一般宜在管段的中间附近设置固定支架,使管路可向两端伸缩;在配置补偿器时,在补偿器的两端适当位置应设置固定支架。
在水平管道上无垂直位移或垂直位移很小的地方,如对管道轴向摩擦力无严格限制时,可采用滑动支架。
如方形补偿器两侧的第一只支架,应设置滑动支架。
当要求减小管道轴向摩擦力时,可采用滚珠支架。
在水平管道上只允许有轴向位移而不允许有横向位移的地方,应设置支架。
如铸铁阀件的两侧和方形补偿器两侧的适当位置。
在管道具有垂直位移的地方,应设置弹簧吊架,当不便设置弹簧吊架时,可采用弹簧支架,当同时具有水平位移时,应采用滚珠弹簧支架。