石材干挂节点CAD图2019最新
- 格式:dwg
- 大小:119.51 KB
- 文档页数:1
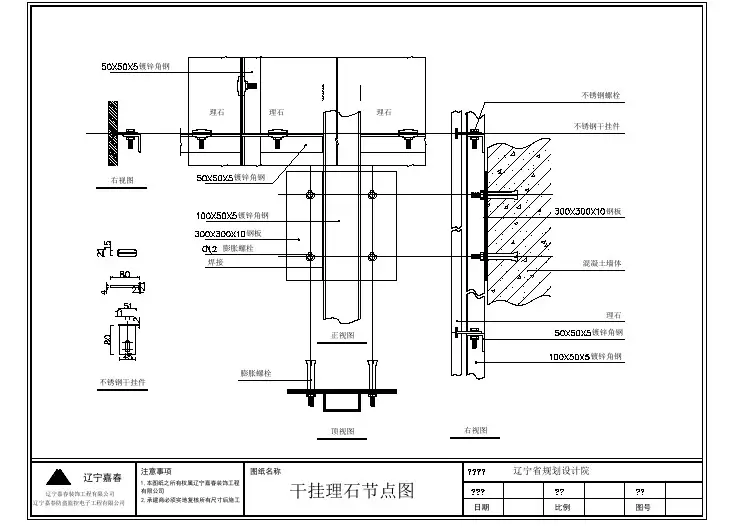
石材干挂法又名空挂法。
是当代饰面饰材装修中一种新型的施工工艺。
该方法以金属挂件将饰面石材直接吊挂于墙面或空挂于钢架之上,不需再灌浆粘贴。
其原理是在主体结构上设主要受力点,通过金属挂件将石材固定在建筑物上,形成石材装饰幕墙。
板材的固定方法有:一.是插销式固定法;二.是后切式干挂,也称无应力锚固式干挂。
石材干挂工艺优点:一.是可以有效地避免传统湿贴工艺出现的板材空鼓、开裂、脱落等现象,明显提高了建筑物的安全性和耐久性;二.可以完全避免传统湿贴工艺板面出现的泛白、变色等现象,有利于保持幕墙清洁美观;三.在一定程度上改善施工人员的劳动条件,减轻了劳动强度,也有助于加快工程进度。
石材干挂——钢骨架石材干挂——固定槽钢角码1石材干挂——固定槽钢角码1连接槽钢的伸缩节板1连接槽钢的伸缩节板2石材干挂——钢骨架节点干挂石材1干挂石材2干挂石材节点干挂完成后的石材背面石材工人在开槽 石材工人开槽完成 石材完成后塞泡沫棒 塞泡沫棒外打密封胶 完工后效果图如何鉴别石材好坏对于加工好的成品饰面石材,其质量好坏可以从以下四个方面来鉴别: 一观,即肉眼观察石材的表面结构。
一般来说,均匀的细料结构的石材具有细腻的质感,为石材之佳品;粗粒及不等粒结构的石材其外观效果较差。
另外,石材由于地质作用的影响常在其中产生一些细微裂缝,石材最易沿这些部位发生破裂,应注意剔除。
至于缺棱角更是影响美观,选择时尤应注意。
二量,即量石材的尺寸规格,以免影响拼接,或造成拼接后的图案、花纹、线条变形,影响装饰效果。
三听,即听石材的敲击声音。
一般而言,质量好的石材其敲击声清脆悦耳;相反,若石材内部存在轻微裂隙或因风化导致颗粒间接触变松,则敲击声粗哑。
四试,即用简单的试验方法来检验石材的质量好坏。
通常在石材的背面滴上一小粒墨水,如墨水很快四处分散浸出,即表明石材内部颗粒松动或存在缝隙,石材质量不好;反之,若墨水滴在原地不动,则说明石材质地好。
几点建议:1、石材有放射性合格证,您在购买时请向经销商索要。